Скачать Типовой проект 224-1-434.85 Альбом III. Электротехнические чертежиДата актуализации: 01.01.2021
|
| Обозначение: | Типовой проект 224-1-434.85 |
| Обозначение англ: | 224-1-434.85 |
| Статус: | не определен законодательством |
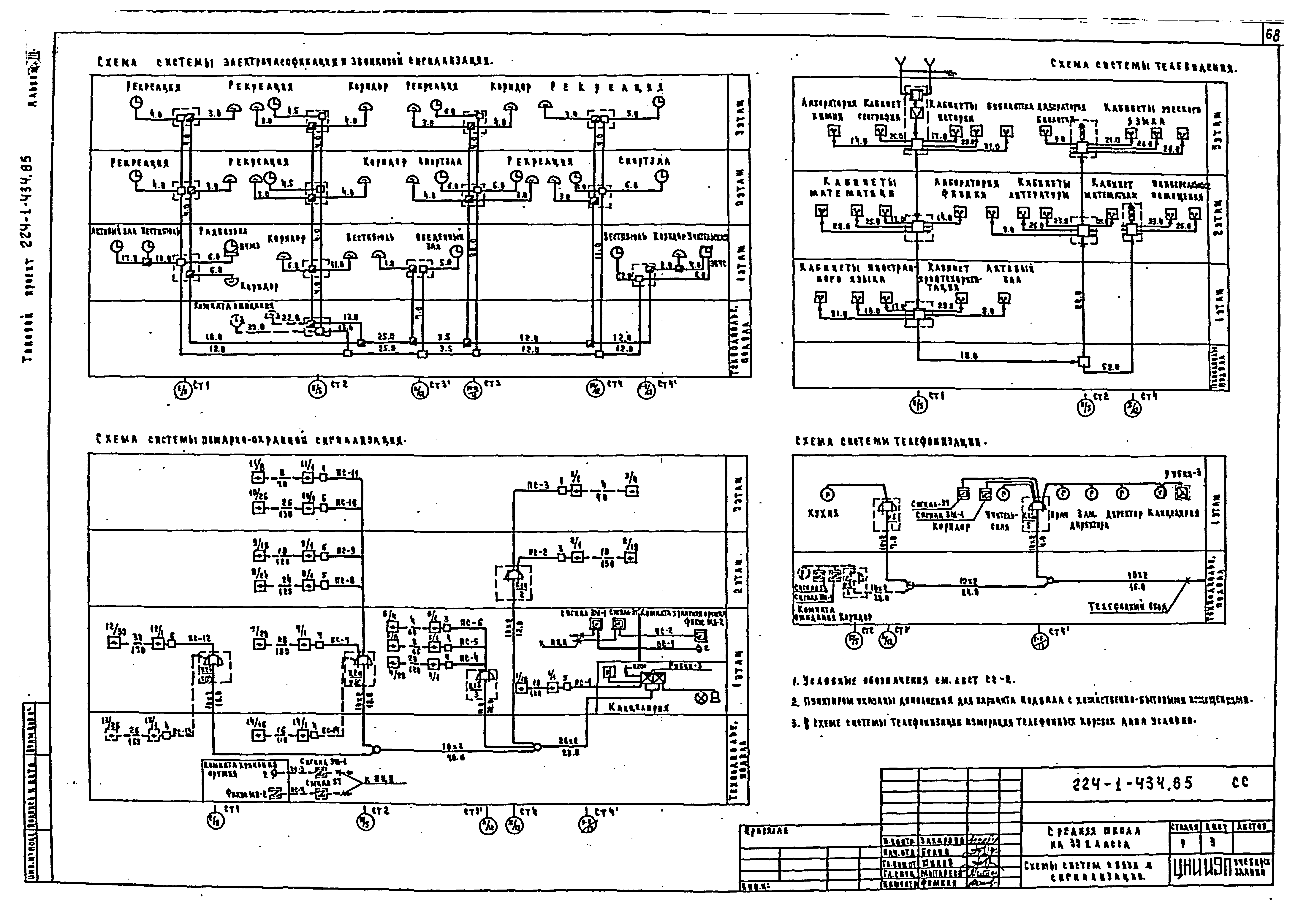
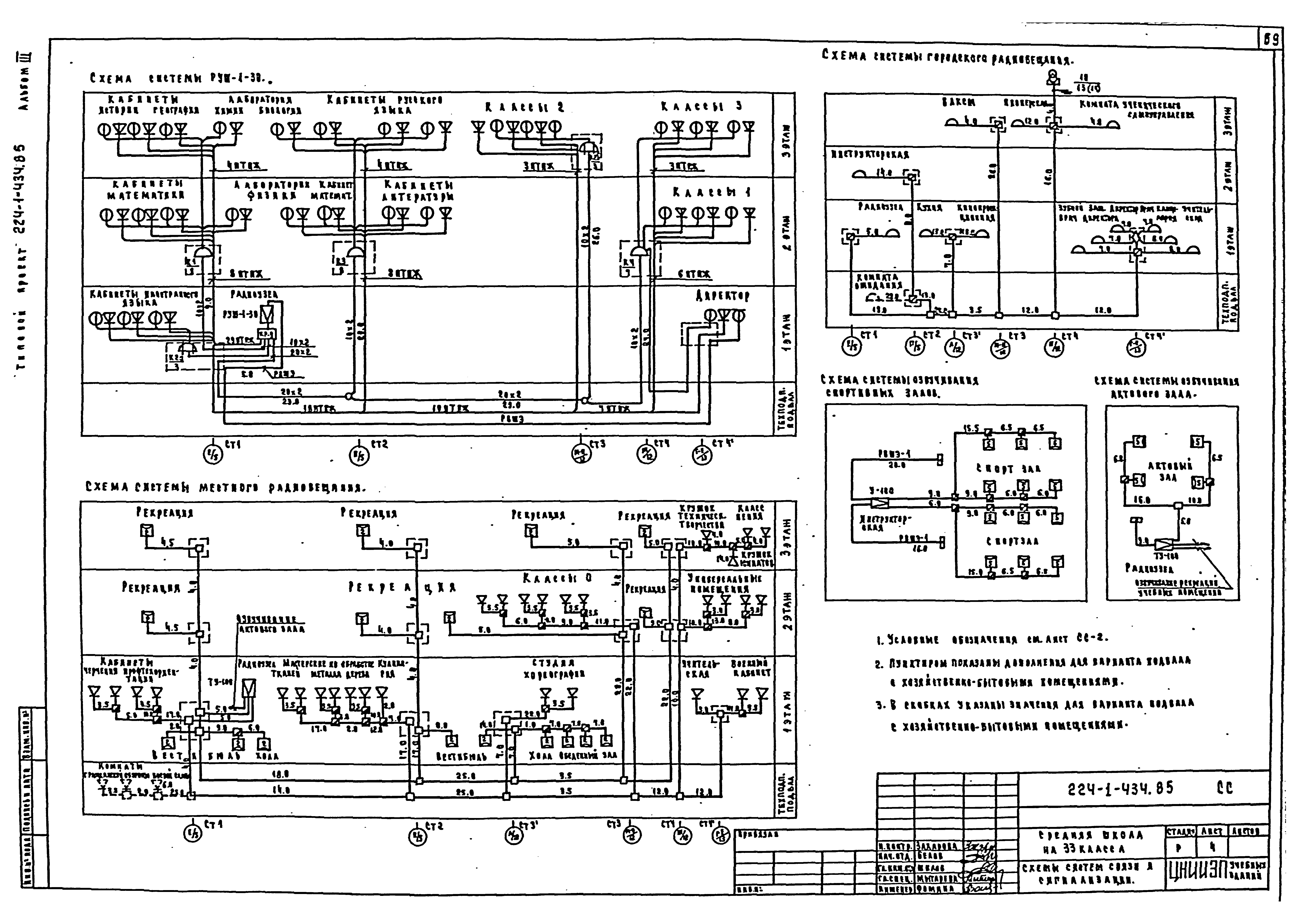
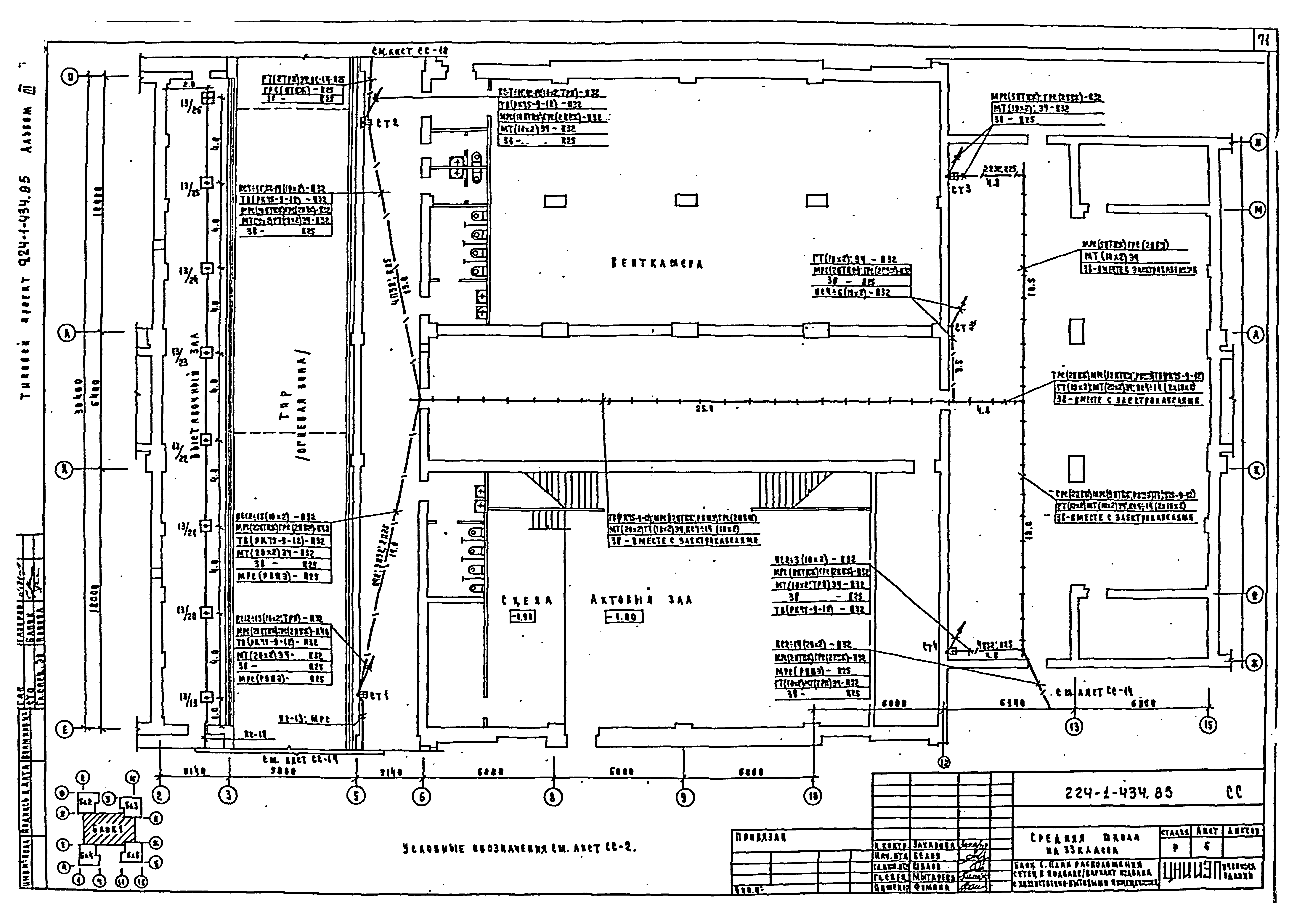
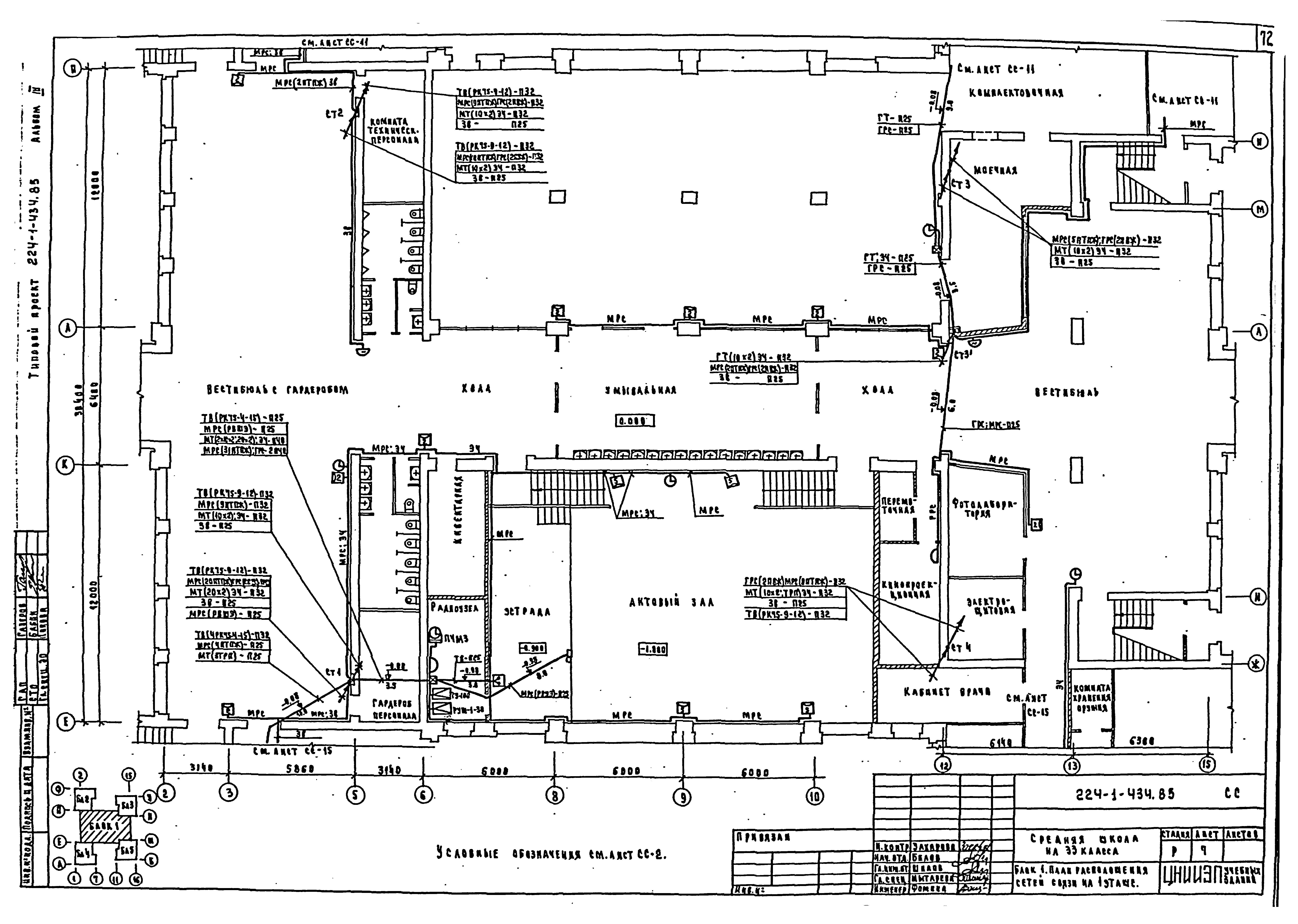
| Название рус.: | Альбом III. Электротехнические чертежи |
| Дата добавления в базу: | 01.09.2013 |
| Дата актуализации: | 01.01.2021 |
| Дата введения: | 23.04.1985 |
| Дата окончания срока действия: | 30.06.2003 |
| Разработан: | ЦНИИЭП учебных зданий Госгражданстроя |
| Утверждён: | 01.11.1982 Госгражданстрой (Gosgrazhdanstroy 293) |



































































































