Скачать Типовой проект 902-2-57/71 Альбом I. Архитектурно-строительная часть. Отопление и вентиляцияДата актуализации: 01.01.2021
|
| Обозначение: | Типовой проект 902-2-57/71 |
| Обозначение англ: | 902-2-57/71 |
| Статус: | не действует |
| Название рус.: | Альбом I. Архитектурно-строительная часть. Отопление и вентиляция |
| Дата добавления в базу: | 01.09.2013 |
| Дата актуализации: | 01.01.2021 |
| Дата введения: | 12.10.1972 |
| Дата окончания срока действия: | 01.01.1986 |
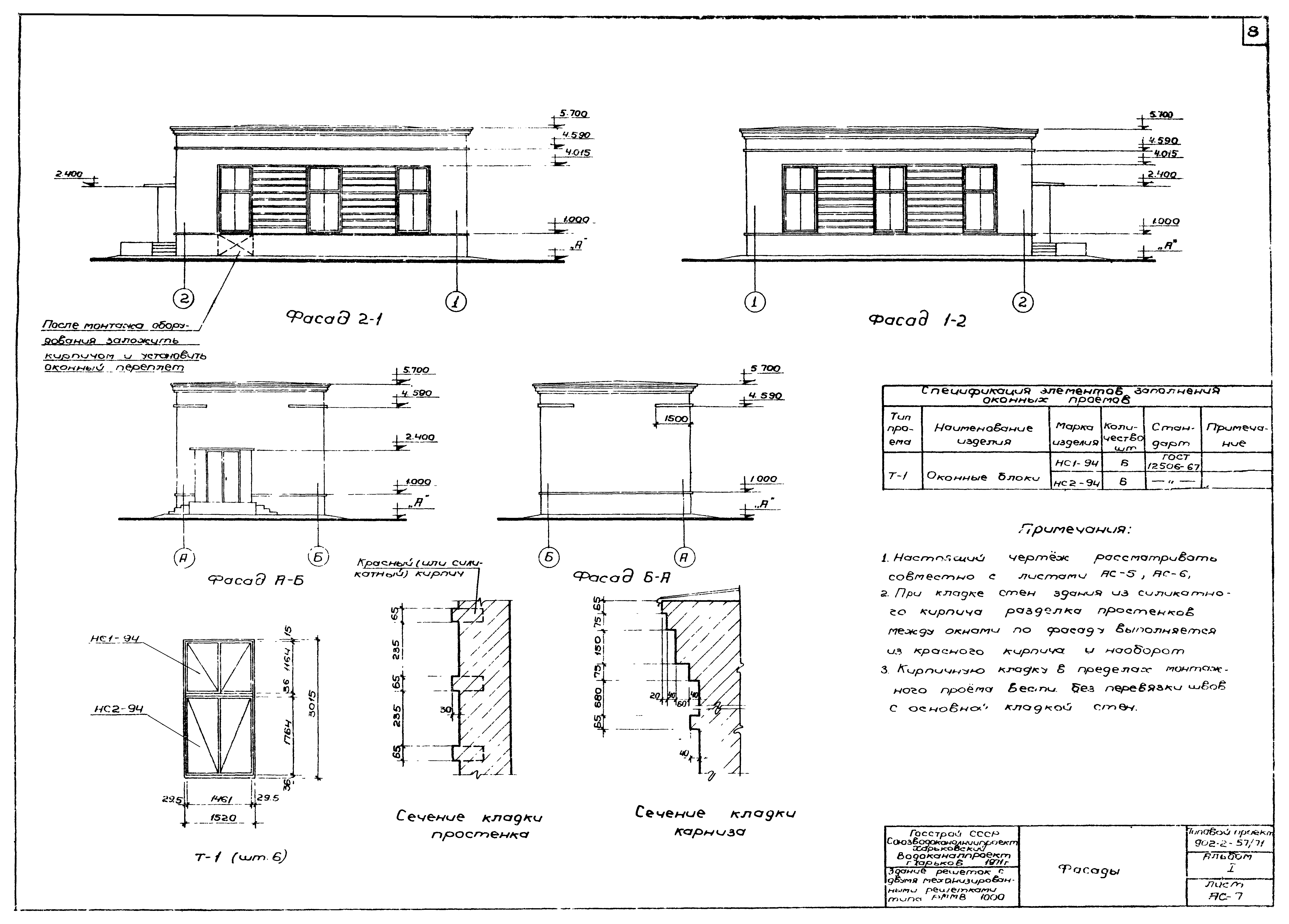
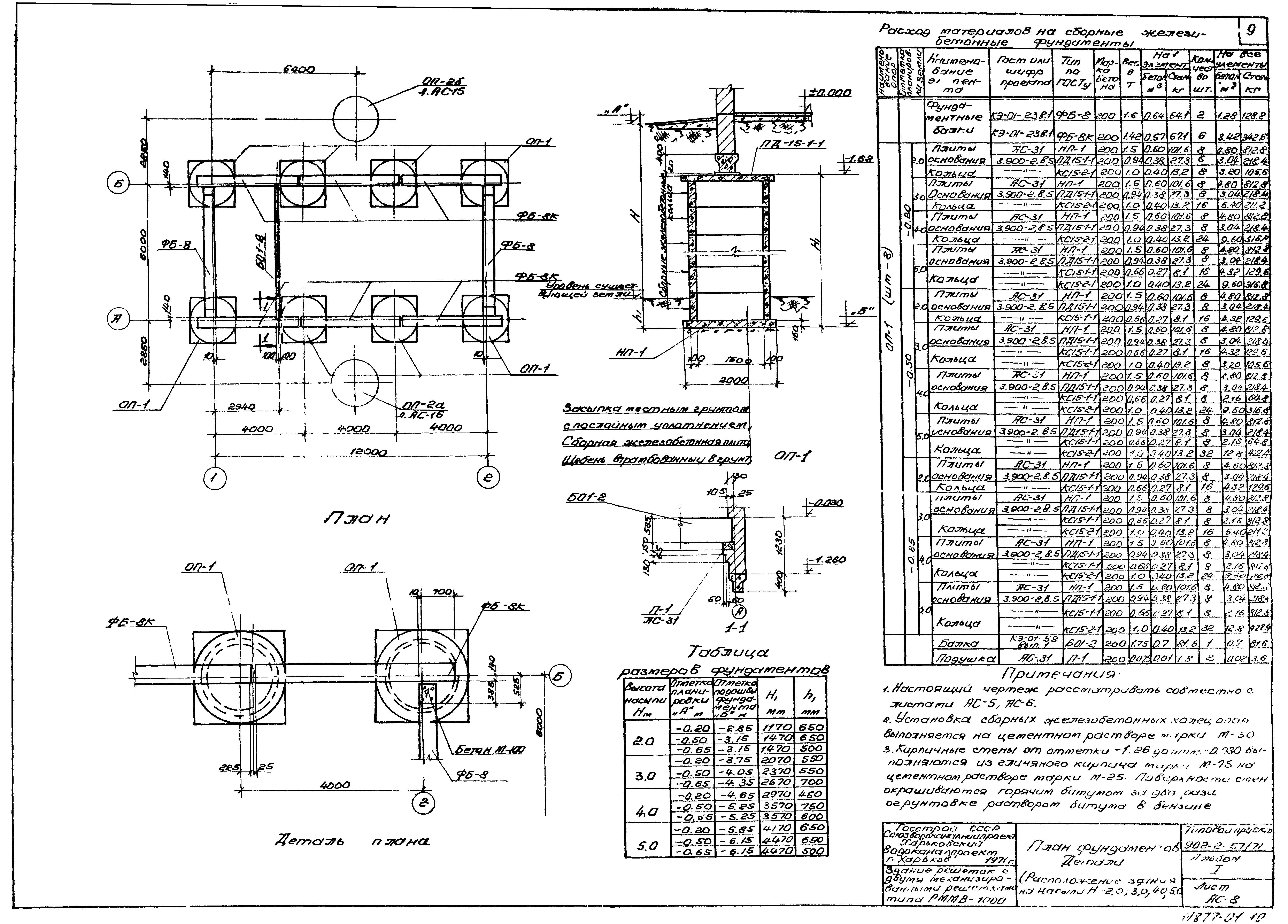
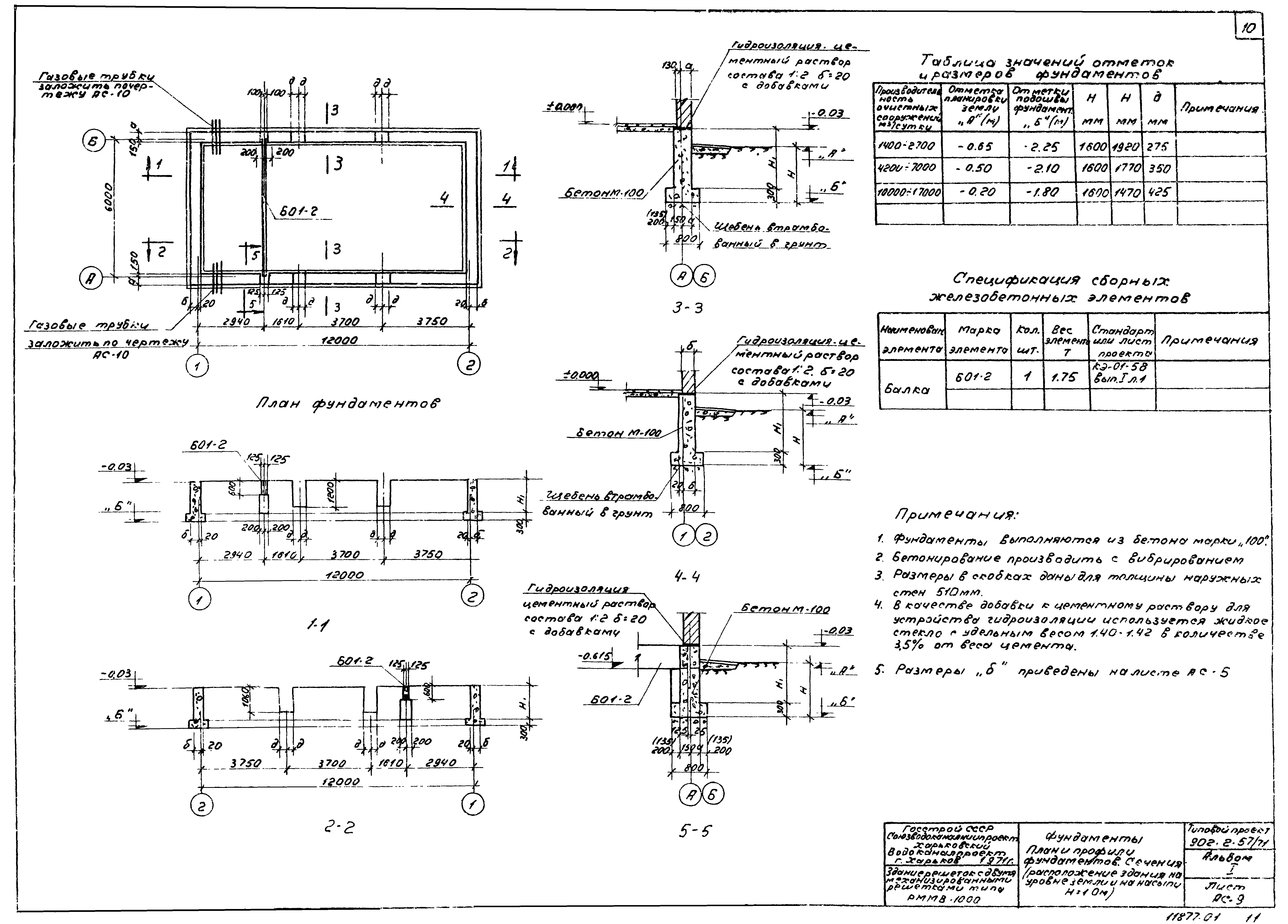
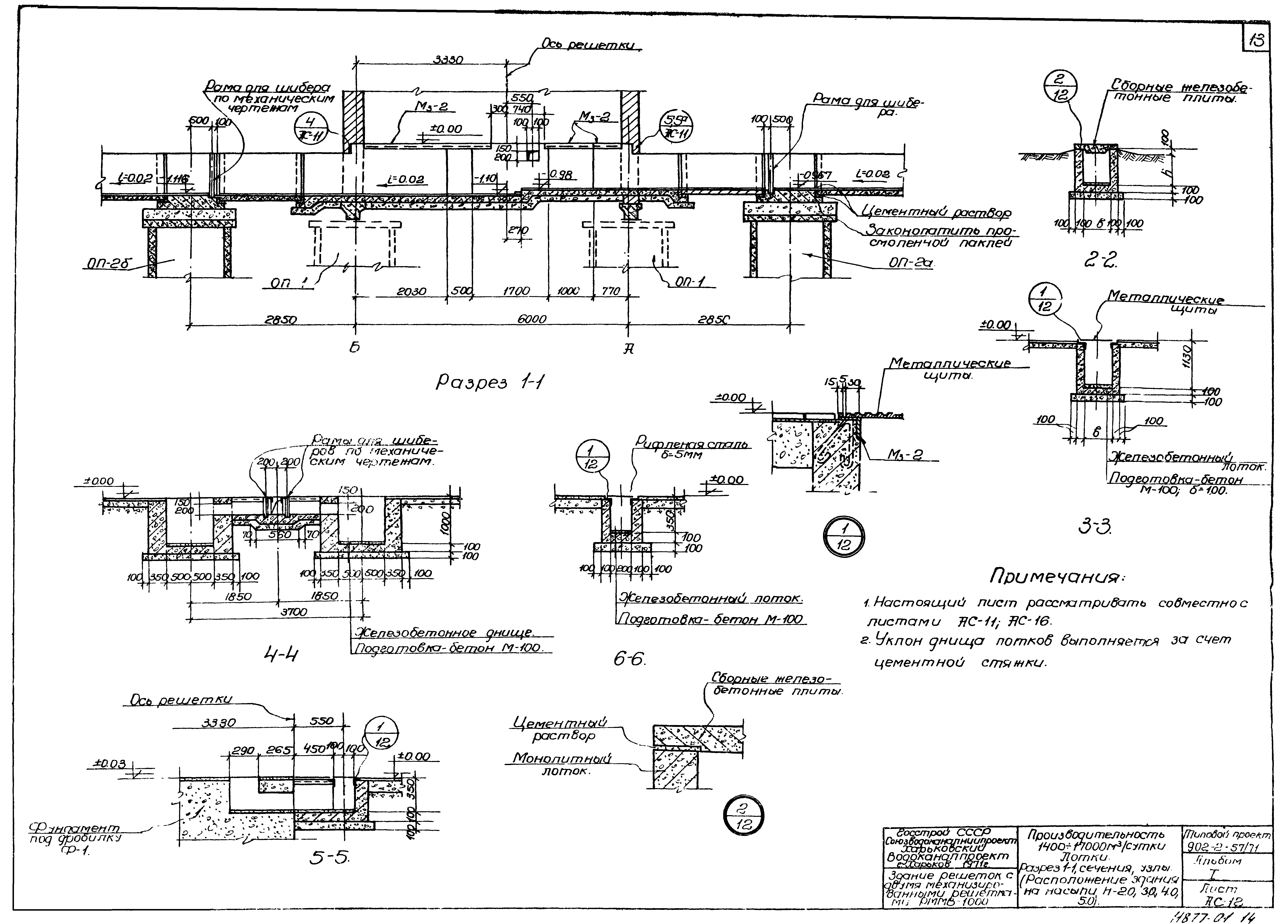
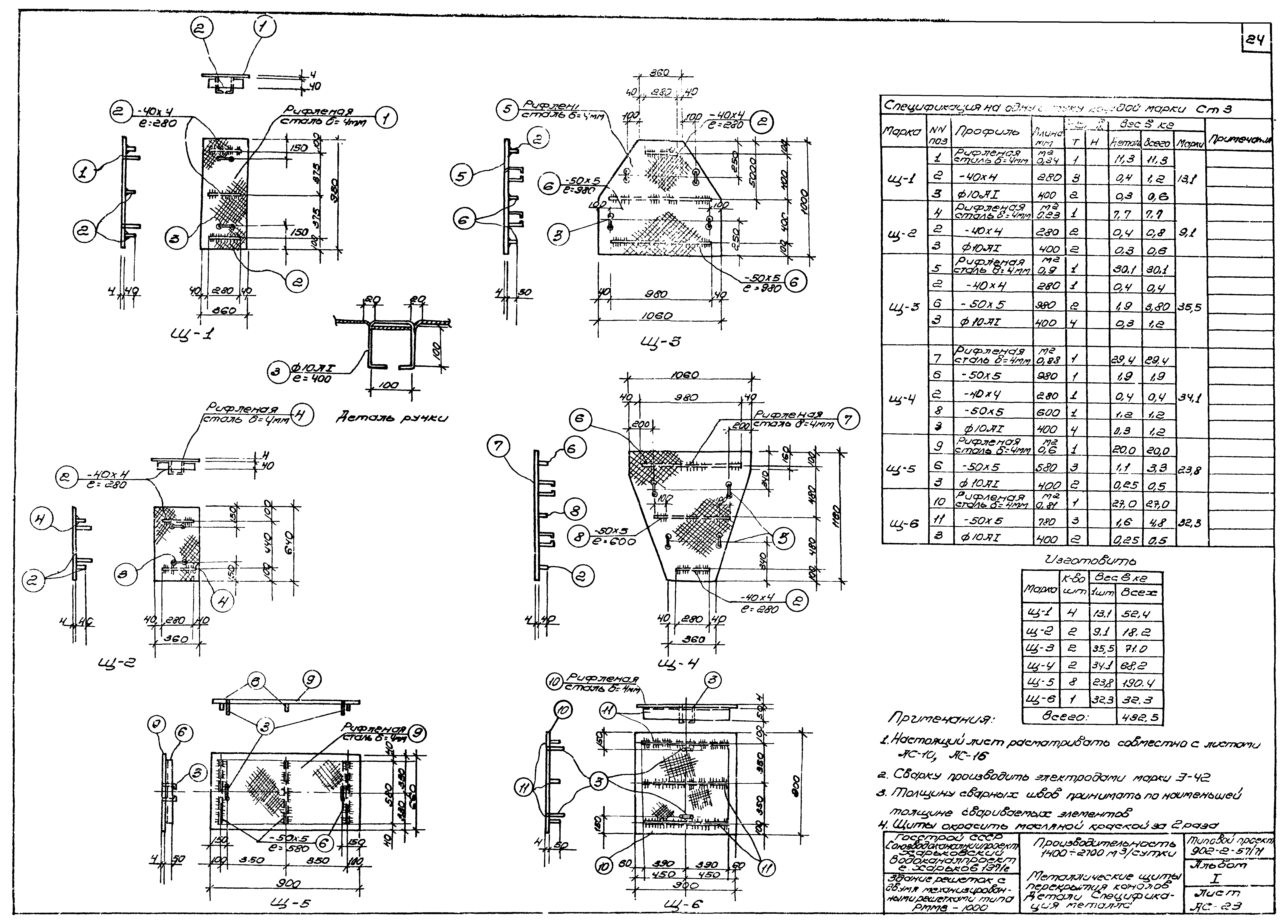
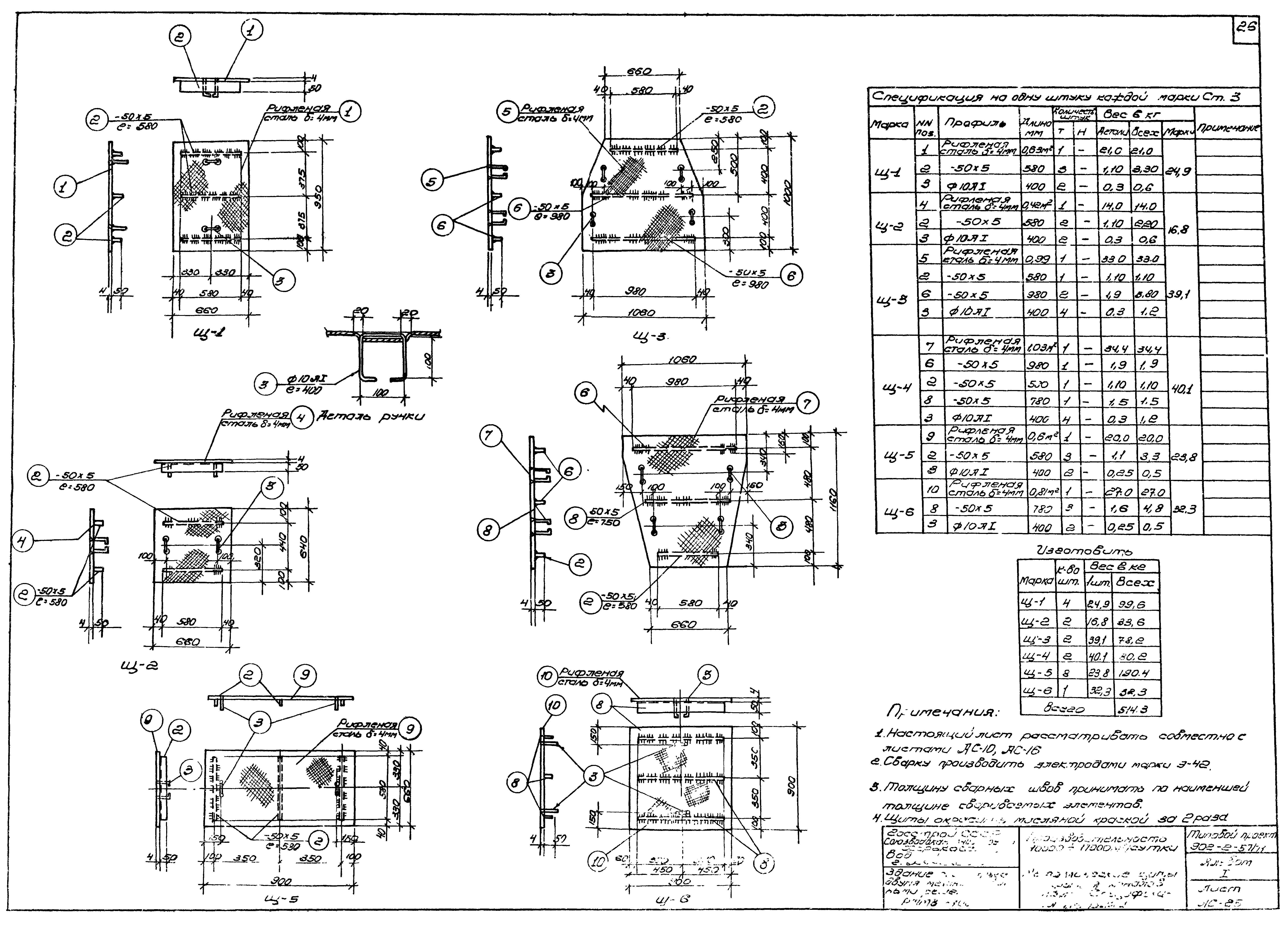
| Оглавление: | ТП 902-2-57/71-АС-1 Заглавный лист ТП 902-2-57/71-АС-2И Содержание альбома ТП 902-2-57/71-АС-3 Пояснительная записка ТП 902-2-57/71-АС-4 Пояснительная записка (продолжение) ТП 902-2-57/71-АС-5 Планы здания, кровли, покрытия и опорных подушек. Спецификация ТП 902-2-57/71-АС-6 Разрезы 1-1; 2-2; 3-3. Сечение 3-3; 4-4 ТП 902-2-57/71-АС-7 Фасады ТП 902-2-57/71-АС-8 План фундаментов. Детали (расположение здания на насыпи Н=2.0;3.0;4.0;5.0м) ТП 902-2-57/71-АС-9 Фундаменты. План и профили фундаментов. Сечения (расположение здания на уровне земли и на насыпи Н= 10м) ТП 902-2-57/71-АС-10 Лотки и каналы. Планы расположения перекрытия лотков и каналов ТП 902-2-57/71-АС-11 Каналы. Сечения и детали. Узлы лотков "4", "5", "5а" ТП 902-2-57/71-АС-12 Лотки. Разрез 1-1, сечения, узлы (расположение здания на насыпи Н=2.0;3.0;4.0;5.0 м) ТП 902-2-57/71-АС-13 Лотки. Разрез 1-1, сечения, узлы (расположение здания на уровне земли на насыпи Н=10 м) ТП 902-2-57/71-АС-14 Фундаменты под оборудование. Детали ТП 902-2-57/71-АС-15 Опоры под лотки ОП-2а, ОП-2б. Детали ТП 902-2-57/71-АС-16 Опалубочный чертеж лотка ЛМ-1. Расход материалов на лотки ЛМ-1,ЛМ-2,ЛМ-3 ТП 902-2-57/71-АС-17 Опалубочный чертеж лотка ЛМ-3 ТП 902-2-57/71-АС-18 Лоток ЛМ-1. Армирование. План. Разрезы 1-1; 2-2; 3-3 ТП 902-2-57/71-АС-19 Лотки ЛМ-1; ЛМ-2; ЛМ-3. Армирование ТП 902-2-57/71-АС-21 Лотки ЛМ-1; ЛМ-2; ЛМ-3. Спецификация арматуры ТП 902-2-57/71-АС-24 Металлические щиты перекрытия каналов. Детали. Спецификация металла ТП 902-2-57/71-АС-26 Направляющие пути кран-балки. Узлы, марки. Спецификация металла ТП 902-2-57/71-АС-27 Металлическая площадка на отм 200 м. План. Разрезы, детали. Спецификация металла ТП 902-2-57/71-АС-29 Сборный железобетонный лоток АС-1. Плита П-1. Армирование ТП 902-2-57/71-АС-31 Плита ПН-1. Опорная подушка ОП-1. Опалубка и армирование ТП 902-2-57/71-АС-32 Металлические закладные марки ТП 902-2-57/71-АС-33 Сводная спецификация на здание ТП 902-2-57/71-АС-34,35 Сводная выборка бетона и стали ТП 902-2-57/71-ОВ Отопление и вентиляция ТП 902-2-57/71-ОВ-1И Основные показатели проекта отопления и вентиляции ТП 902-2-57/71-ОВ-2И План с нанесением системы отопления. Схема системы отопления. Узел ввода. Схема обвязки калориферов (теплоноситель вода 150-70ºС) ТП 902-2-57/71-ОВ-3И План с нанесением системы отопления. Схема системы отопления. Узел ввода. Схема обвязки калориферов (теплоноситель вода 110-70ºС) ТП 902-2-57/71-ОВ-4И План с нанесением системы вентиляции. Схемы воздуховодов системы П-1 и В-1. Характеристика отопительно-вентиляционного оборудования ТП 902-2-57/71-ОВ-5И Отопление и вентиляция. Приточная установка П-1. Разрез 1-1. Детали |
| Разработан: | Союзводоканалниипроект |
| Утверждён: | 06.10.1972 СоюзводоканалНИИпроект (SoyuzvodokanalNIIproject 218) |










































