Скачать Серия 1.465-11 Выпуск 1. Плиты покрытий с деревянным каркасом. Рабочие чертежиДата актуализации: 01.01.2021
|
| Обозначение: | Серия 1.465-11 |
| Обозначение англ: | Series 1.465-11 |
| Статус: | не действует |
| Название рус.: | Выпуск 1. Плиты покрытий с деревянным каркасом. Рабочие чертежи |
| Дата добавления в базу: | 01.09.2013 |
| Дата актуализации: | 01.01.2021 |
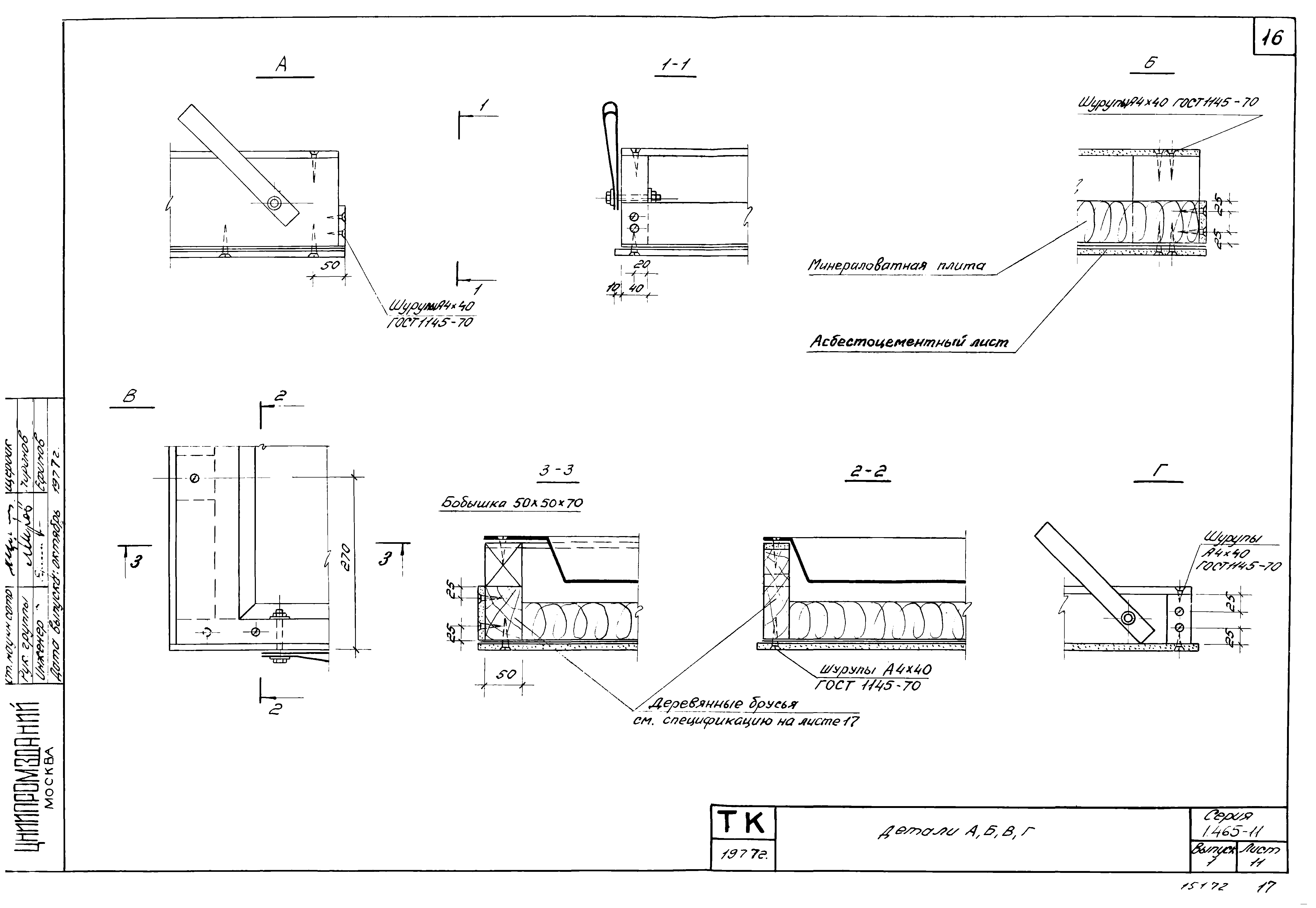
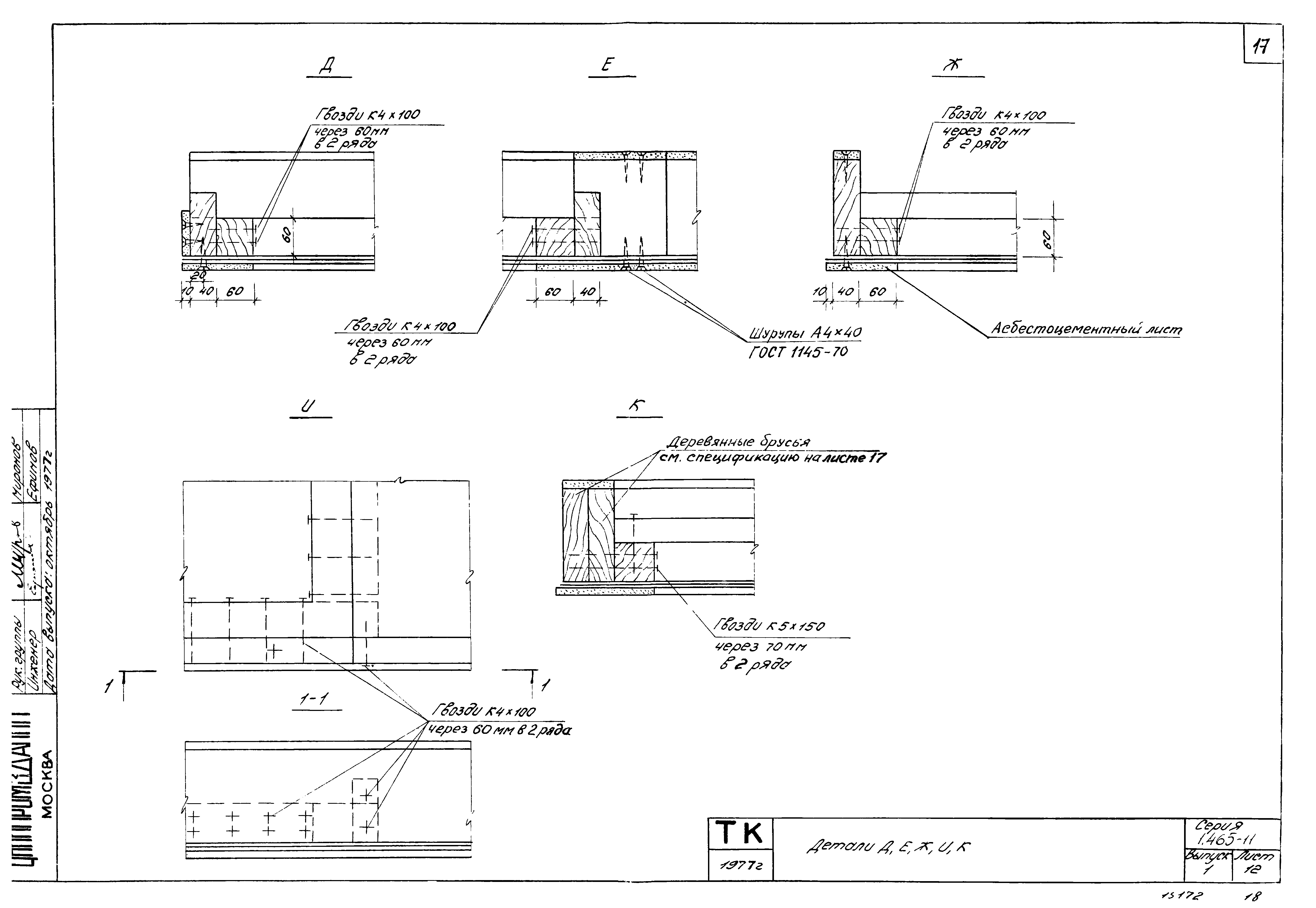
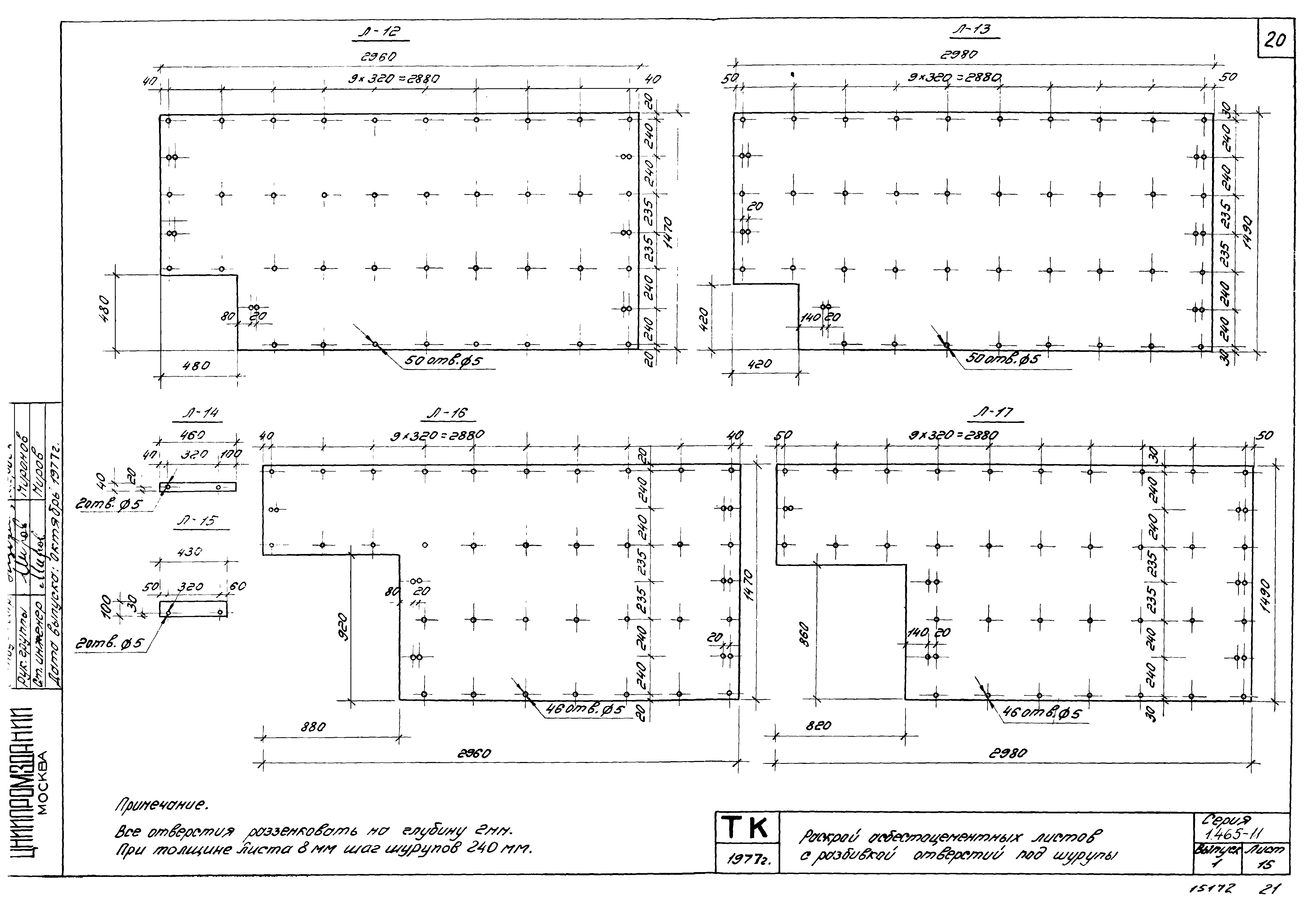
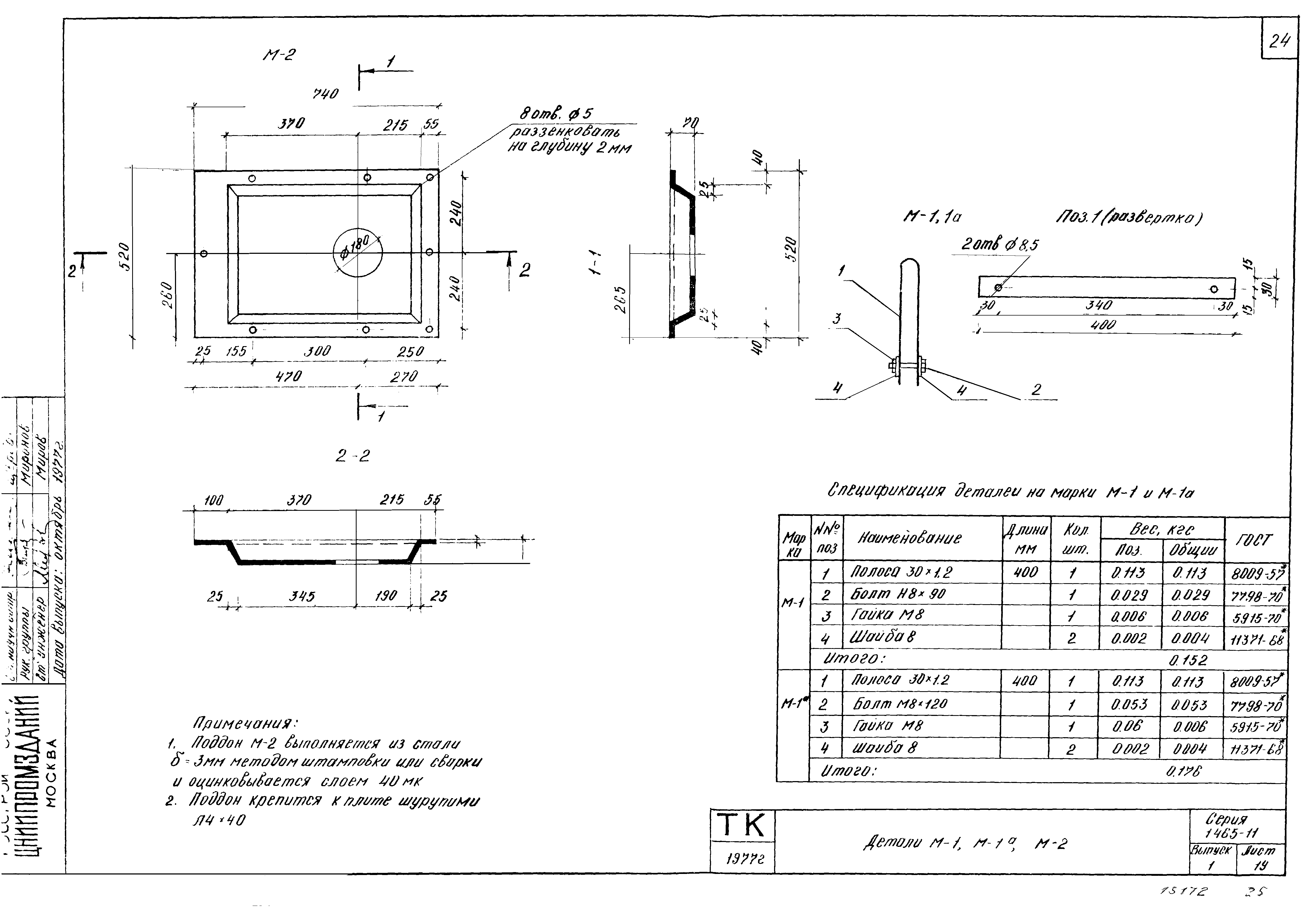
| Оглавление: | 1.465-11 Пояснительная записка 1.465-11 Номенклатура плит покрытий с деревянным каркасом 1.465-11 Плиты АКПД-1,АКПД-2 1.465-11 Плиты АКПД-3,АКПД-4 1.465-11 Плиты АКПД-5,АКПД-6 1.465-11 Плиты АКПД-7,АКПД-8 1.465-11 Плиты АКПД-9,АКПД-10 1.465-11 Плиты АКПД-11,АКПД-12 1.465-11 Плиты АКПД-13,АКПД-14 1.465-11 Детали А,Б,В,Г 1.465-11 Детали Д,Е,Ж,И,К 1.465-11 Раскрой асбестоцементных листов с разбивкой отверстий под шурупы 1.465-11 Элементы деревянных каркасов 1.465-11 Детали М-1,М-1а,М-2 1.465-11 Детали М-3,М-3а 1.465-11 Спецификация металлических изделий |
| Разработан: | ЦНИИСК им. В.А. Кучеренко ЦНИИпромзданий НИИСФ |
| Утверждён: | Госстрой СССР (Государственный комитет Совета Министров СССР по делам строительства) (USSR Gosstroy ) |



























