Скачать Серия 3.407.9-138 Выпуск 1. Железобетонные порталы ошиновки. Рабочие чертежиДата актуализации: 01.01.2021
|
| Обозначение: | Серия 3.407.9-138 |
| Обозначение англ: | Series 3.407.9-138 |
| Статус: | не действует |
| Название рус.: | Выпуск 1. Железобетонные порталы ошиновки. Рабочие чертежи |
| Дата добавления в базу: | 01.09.2013 |
| Дата актуализации: | 01.01.2021 |
| Дата введения: | 27.08.1986 |
| Дата окончания срока действия: | 01.02.1989 |
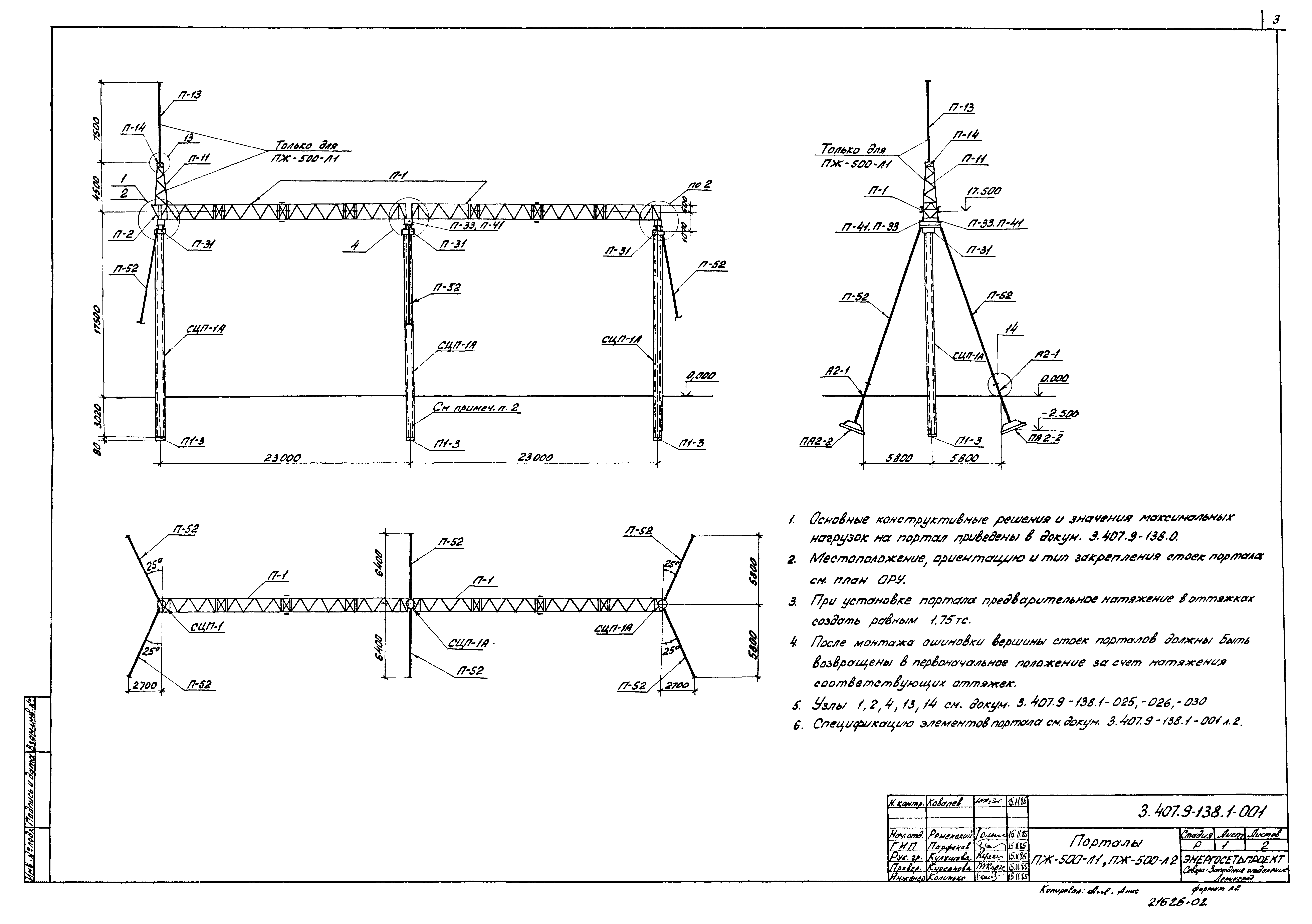
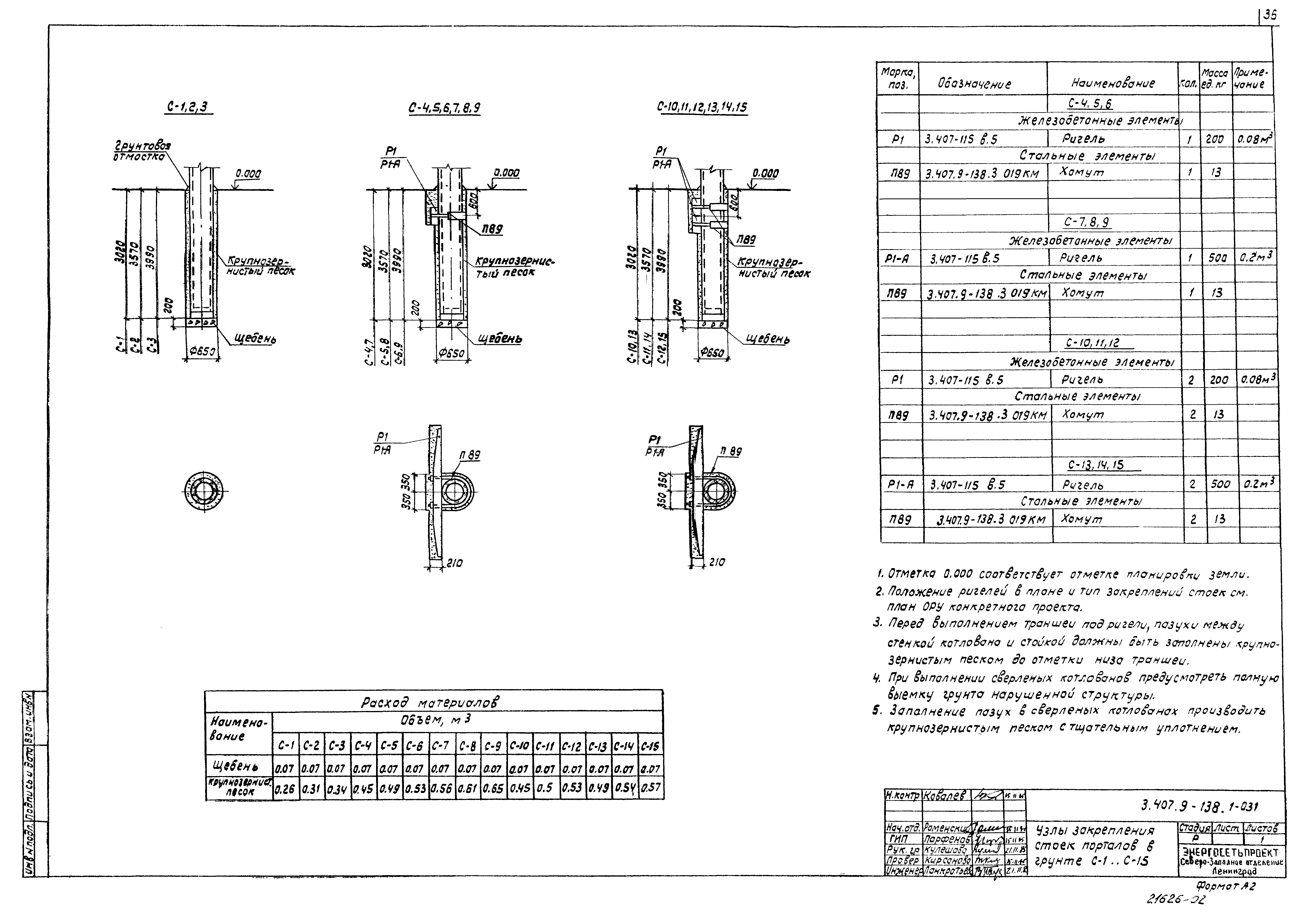
| Оглавление: | 3.407.9-138.1-000 Содержание 3.407.9-138.1-001 Л.1 Порталы ПЖ-500-Л1, ПЖ-500-Л2 3.407.9-138.1-002 Л.1 Портал ПЖ-500-Л3 3.407.9-138.1-001 Л.2 Порталы ПЖ-500-Л1, ПЖ-500-Л2 3.407.9-138.1-002 Л.2 Портал ПЖ-500-Л3 3.407.9-138.1-003 Л.1 Портал ПЖ-500-Л4 3.407.9-138.1-004 Л.1 Портал ПЖ-500-Л5 3.407.9-138.1-003 Л.2 Портал ПЖ-500-Л4 3.407.9-138.1-004 Л.2 Портал ПЖ-500-Л5 3.407.9-138.1-005 Л.1 Портал ПЖ-500-Л6 3.407.9-138.1-006 Л.1 Портал ПЖ-500-Л7 3.407.9-138.1-005 Л.2 Портал ПЖ-500-Л6 3.407.9-138.1-006 Л.2 Портал ПЖ-500-Л7 3.407.9-138.1-007 Портал ПЖ-500-Л8 3.407.9-138.1-008 Портал ПЖ-500-Л9 3.407.9-138.1-009 Портал ПЖ-500-Л10 3.407.9-138.1-010 Портал ПЖ-500-Л11 3.407.9-138.1-011 Портал ПЖ-500-Л12 3.407.9-138.1-012 Портал ПЖ-500-Л13 3.407.9-138.1-013 Портал ПЖ-500-Л14 3.407.9-138.1-014 Портал ПЖ-500-Л15 3.407.9-138.1-015 Портал ПЖ-500-Л16 3.407.9-138.1-016 Портал ПЖ-500-Л17 3.407.9-138.1-017 Портал ПЖ-500-Л18 3.407.9-138.1-018 Портал ПЖ-500-П1 3.407.9-138.1-019 Портал ПЖ-500-П2 3.407.9-138.1-020 Портал ПЖ-500-П3 3.407.9-138.1-021 Портал ПЖ-500-П4 3.407.9-138.1-022 Порталы ПЖ-500-Ш1, ПЖ-500-Ш2 3.407.9-138.1-023 Порталы ПЖ-500-Ш3, ПЖ-500-Ш3А; ПЖ-500-Ш4, ПЖ-500-Ш4А 3.407.9-138.1-024 Опоры ОЖ-1; ОЖ-2 3.407.9-138.1-025 Узел (1, 2) 3.407.9-138.1-026 Узел (3, 4) 3.407.9-138.1-027 Узел (5...7) 3.407.9-138.1-028 Узел (9..11) 3.407.9-138.1-029 Узел (12, 15) 3.407.9-138.1-030 Узел (8, 13, 14) 3.407.9-138.1-031 Узлы закрепления стоек порталов в грунте С-1...С-15 3.407.9-138.1-032 Узлы закрепления стоек порталов в грунте СН-1...СН-15 3.407.9-138.1-033 Узлы закрепления стоек порталов в грунте СБ-1...СБ-27 3.407.9-138.1-034 Узлы закрепления стоек порталов в грунте СНБ-1...СНБ-27 3.407.9-138.1-035 Узлы закрепления стоек порталов в грунте К-1...К-9 |
| Разработан: | Северо-западное отделение института Энергосетьпроект |
| Утверждён: | 27.08.1986 Минэнерго СССР (USSR Minenergo 25) |
| Чем заменён: |









































