Скачать Серия 3.501-81 Конструкции внутрицеховых упоров на железнодорожных путях промышленных предприятийДата актуализации: 01.01.2021
|
| Обозначение: | Серия 3.501-81 |
| Обозначение англ: | Series 3.501-81 |
| Статус: | не действует |
| Название рус.: | Конструкции внутрицеховых упоров на железнодорожных путях промышленных предприятий |
| Дата добавления в базу: | 01.09.2013 |
| Дата актуализации: | 01.01.2021 |
| Дата введения: | 01.08.1973 |
| Дата окончания срока действия: | 01.03.1992 |
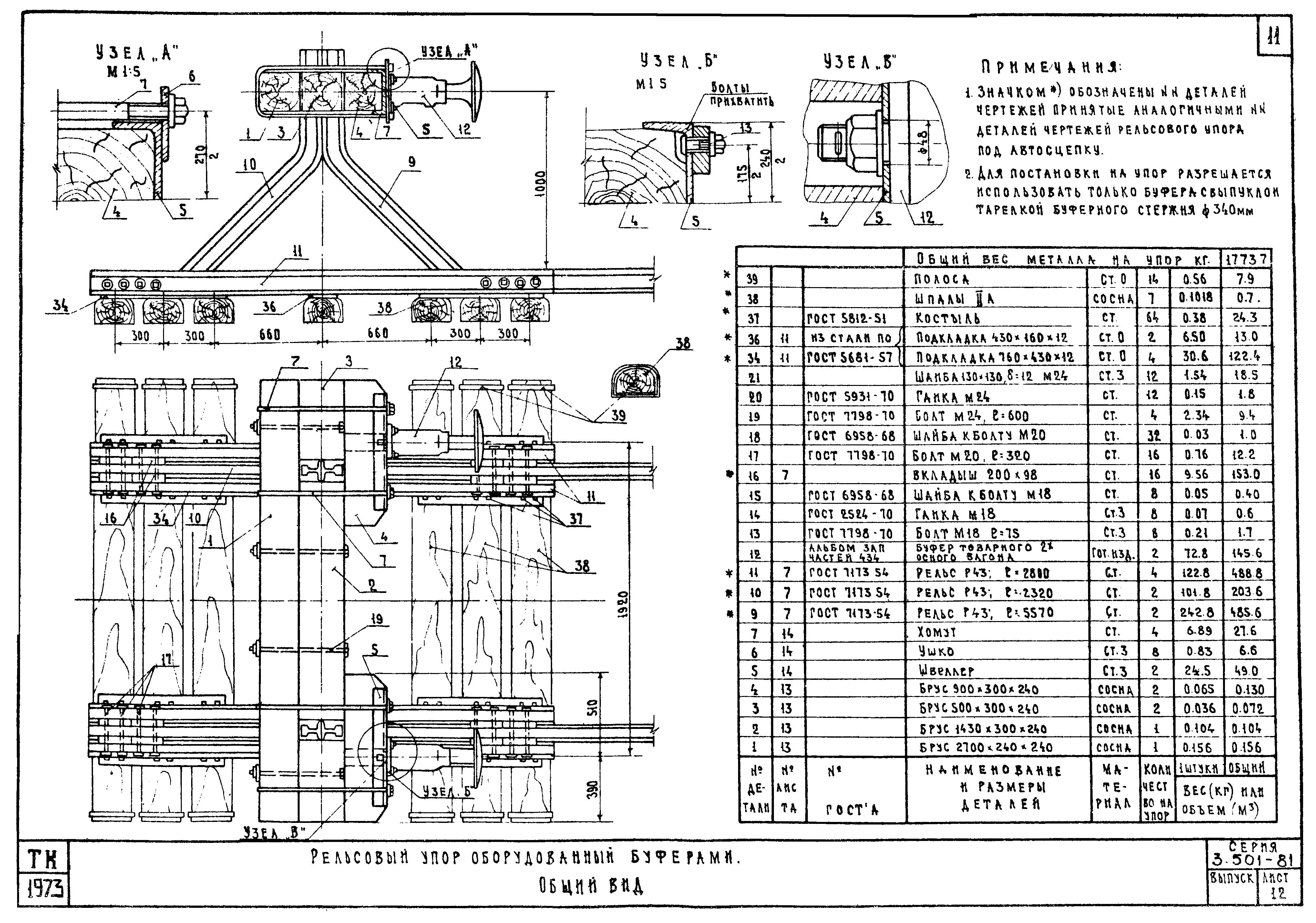
| Оглавление: | 3.501-81 Обложка 3.501-81 Титульный лист 3.501-81 Содержание проекта 3.501-81 Пояснительная записка 3.501-81 Рельсовый упор под автосцепку. Общий вид 3.501-81 Рельсовый упор под автосцепку. Детали деревянных брусьев 3.501-81 Рельсовый упор под автосцепку. Детали 3.501-81 Рельсовый упор под автосцепку. Уловитель 3.501-81 Рельсовый упор под автосцепку. Детали уловителя 3.501-81 Рельсовый упор под автосцепку. Детали листа и хомута 3.501-81 Рельсовый упор под автосцепку. Детали листов и подкладок 3.501-81 Рельсовый упор оборудованный буферами. Общий вид 3.501-81 Рельсовый упор оборудованный буферами. Детали деревянных брусьев 3.501-81 Рельсовый упор оборудованный буферами. Детали швеллера и хомута 3.501-81 Упор без амортизирующих устройств. Общий вид 3.501-81 Упор без амортизирующих устройств. Детали |
| Разработан: | Промтрансниипроект Госстроя СССР |
| Утверждён: | 28.05.1973 Промтрансниипроект (Promtransniiproject 106) |
















