Скачать Типовой проект 902-2-269 Альбом II. Архитектурно-строительные чертежи трехсекционного аэротенка-смесителяДата актуализации: 01.01.2021
|
| Обозначение: | Типовой проект 902-2-269 |
| Обозначение англ: | 902-2-269 |
| Статус: | действует |
| Название рус.: | Альбом II. Архитектурно-строительные чертежи трехсекционного аэротенка-смесителя |
| Дата добавления в базу: | 01.09.2013 |
| Дата актуализации: | 01.01.2021 |
| Дата введения: | 05.11.1976 |
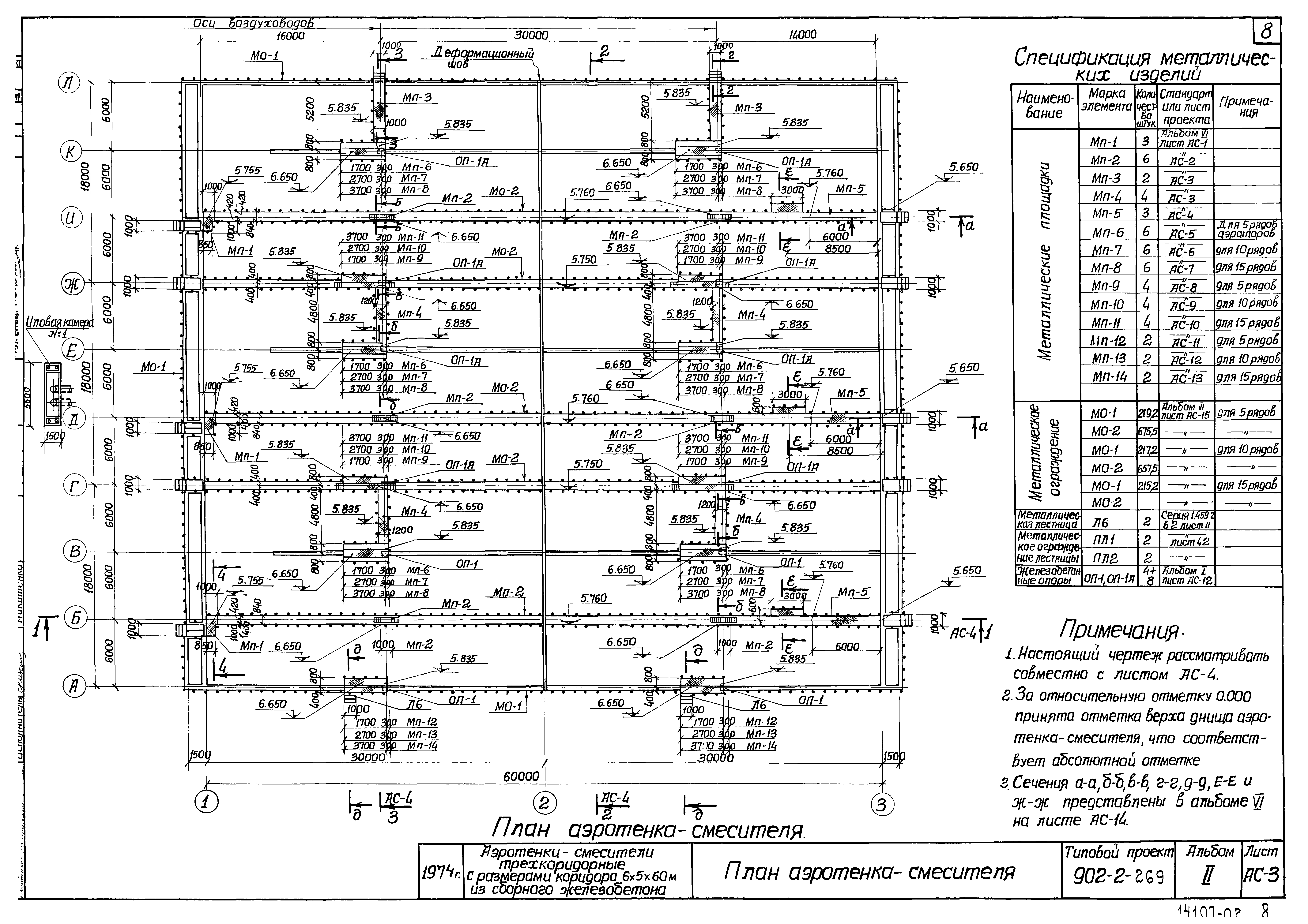
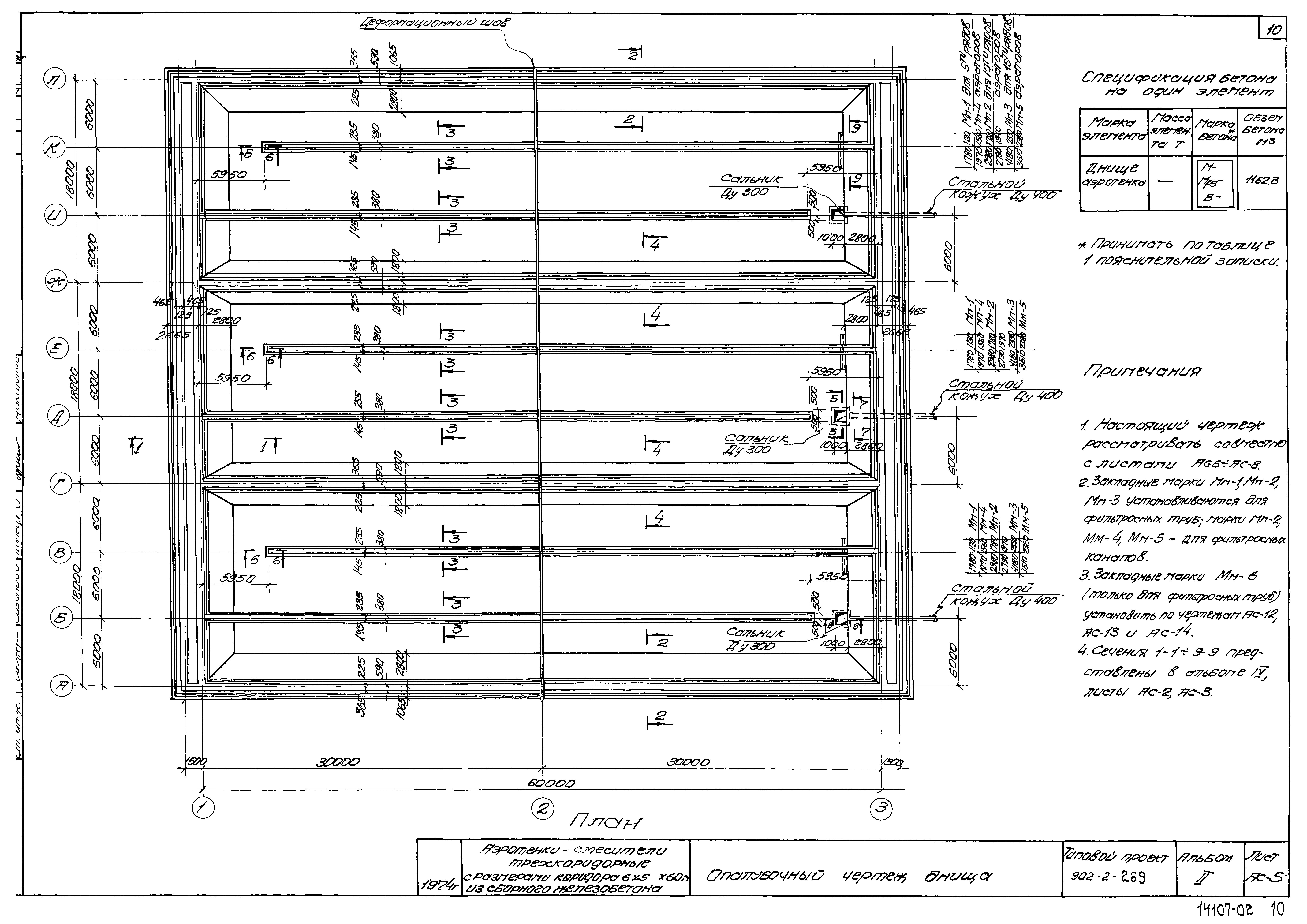
| Оглавление: | ТП 902-2-269-ПЗ-1 Содержание альбома ТП 902-2-269-ПЗ-2, ПЗ-3, ПЗ-4 Пояснительная записка ТП 902-2-269-АС-1 Заглавный лист ТП 902-2-269-АС-2 Выборка материалов на стальные и железобетонные конструкции аэротенка ТП 902-2-269-АС-3 План аэротенка-смесителя ТП 902-2-269-АС-4 Разрезы 1-1 ÷ 3-3 ТП 902-2-269-АС-5 Опалубочный чертеж днища ТП 902-2-269-АС-6 Армирование днища. План нижних и верхних сеток ТП 902-2-269-АС-7 Армирование днища. Сечения 1-1 ÷ 9-9 ТП 902-2-269-АС-8 Армирование днища. Сетки. Спецификация и выборка арматуры ТП 902-2-269-АС-9 Монтажный план стеновых и перегородочных панелей ТП 902-2-269-АС-10 Виды 1-1 ÷ 4-4 ТП 902-2-269-АС-11 Монтажный план балок, лотков, плит перекрытия лотков и ходовых мостиков ТП 902-2-269-АС-12 План набетонки и пористых труб (5 рядов аэраторов). Сечения ТП 902-2-269-АС-13 План набетонки и пористых труб (10 рядов аэраторов). Сечения ТП 902-2-269-АС-14 План набетонки и пористых труб (15 рядов аэраторов). Сечения ТП 902-2-269-АС-15 План набетонки и фильтросных каналов (5 рядов аэраторов). Сечения ТП 902-2-269-АС-16 План набетонки и фильтросных каналов (10 рядов аэраторов). Сечения ТП 902-2-269-АС-17 План набетонки и фильтросных каналов (15 рядов аэраторов). Сечения ТП 902-2-269-АС-18 Вариант с полносборными стенами и гибкими сопряжениями стеновых панелей в углах. Монтажный план стеновых панелей ТП 902-2-269-АС-19 Вариант с полносборными стенами и гибкими сопряжениями стеновых панелей в углах. Виды 1-1÷4-4 |
| Разработан: | ЦНИИпромзданий Союзводоканалниипроект |
| Утверждён: | 09.12.1975 Главпромстройпроект Госстроя СССР |
























