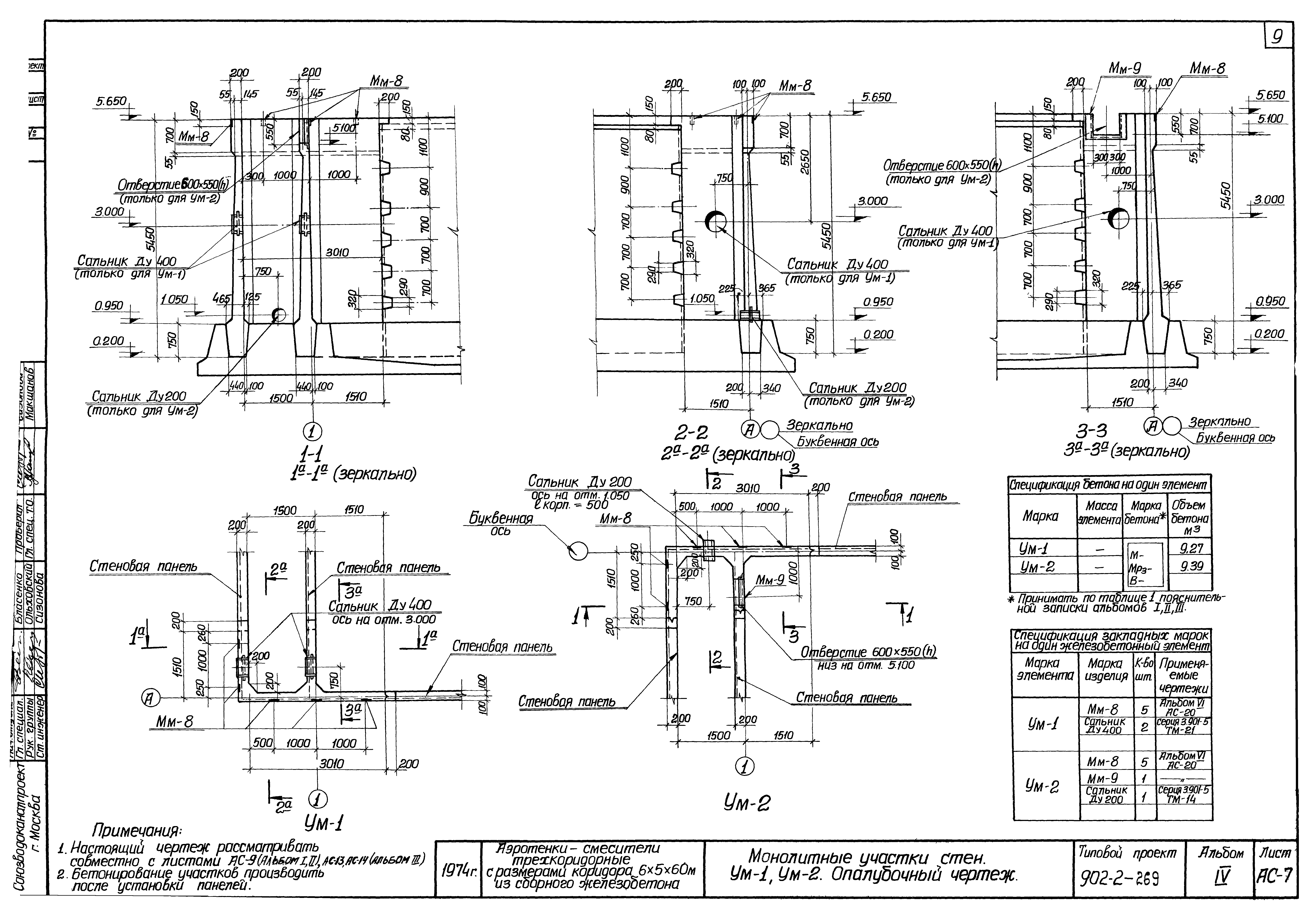
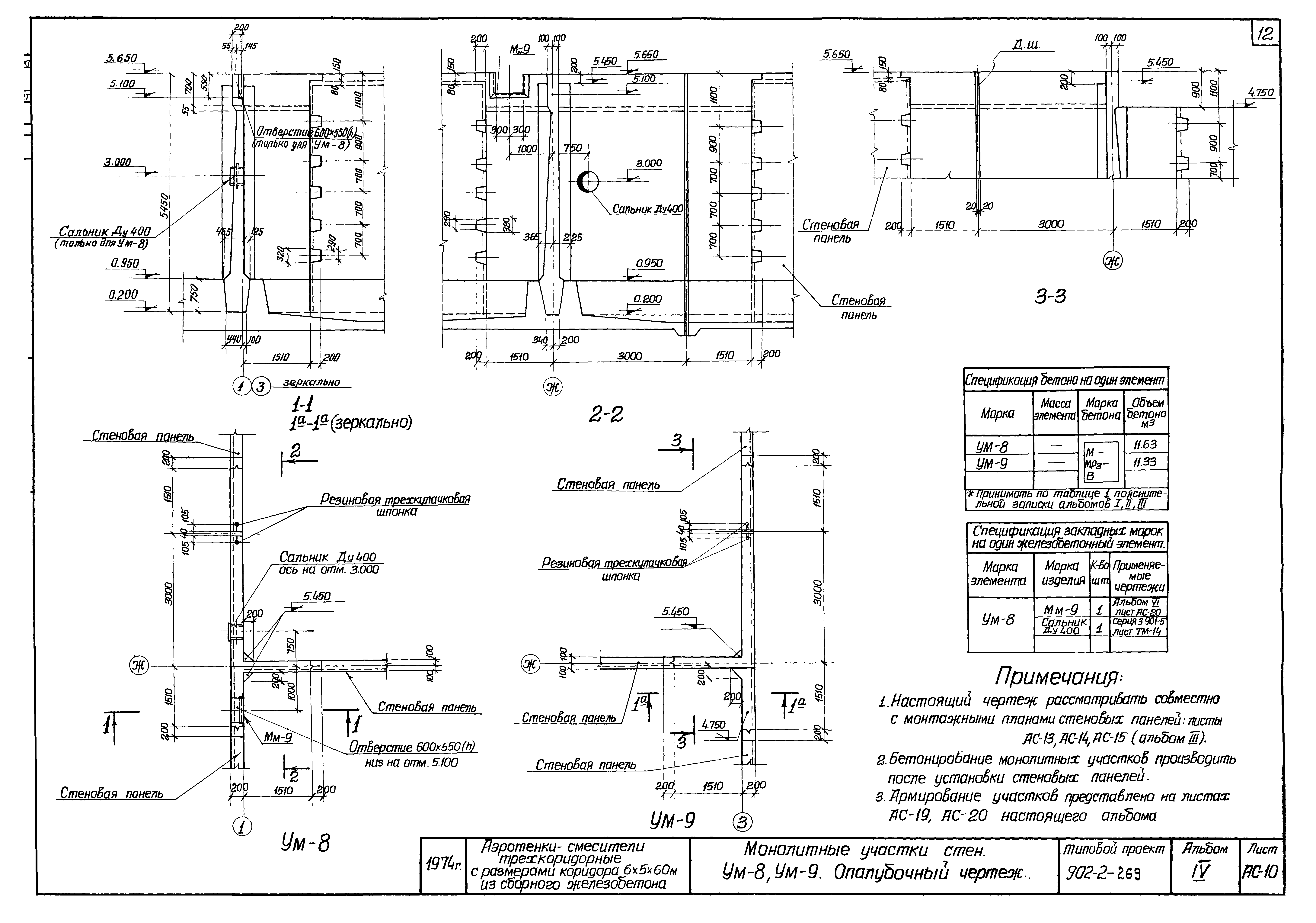
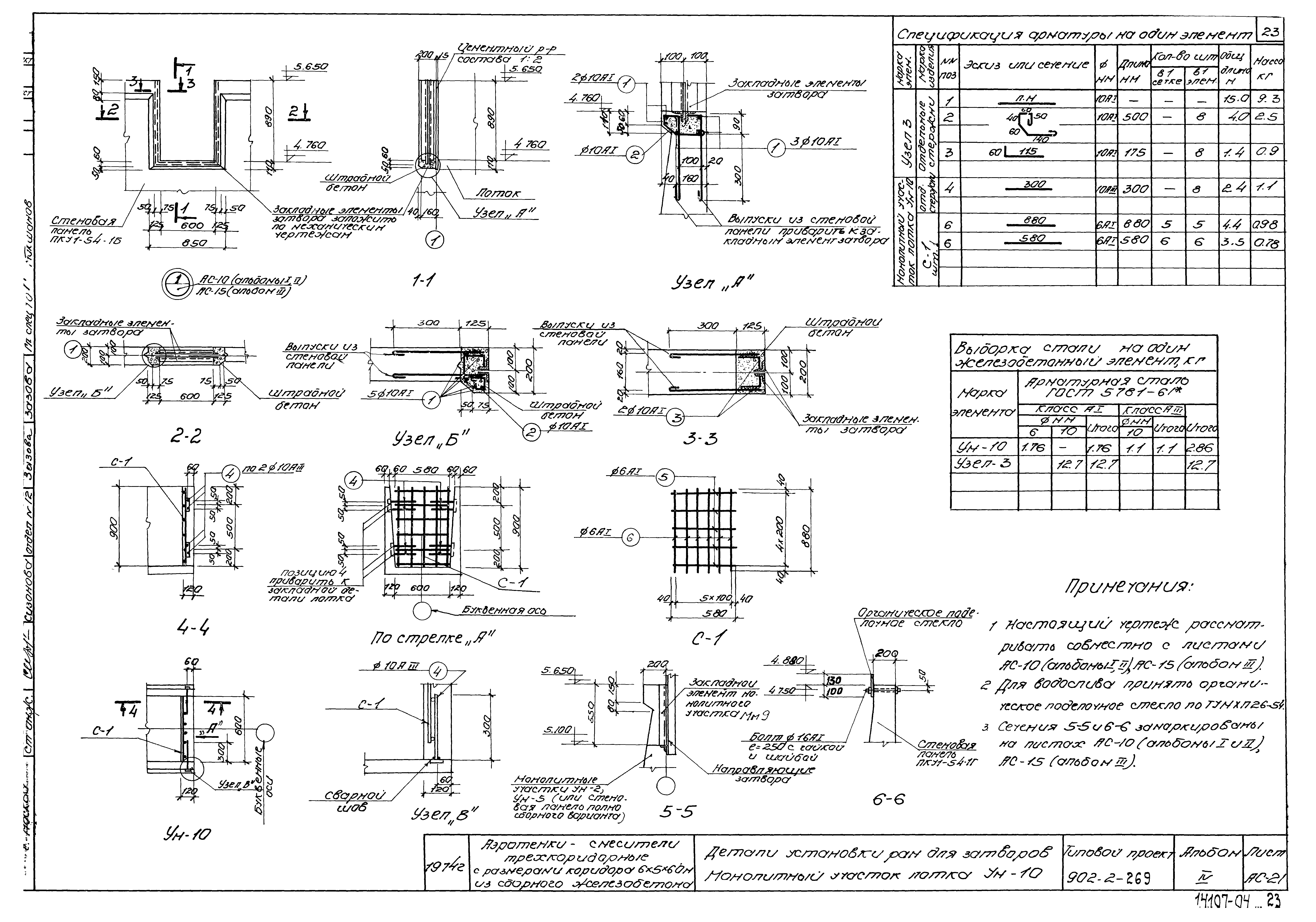
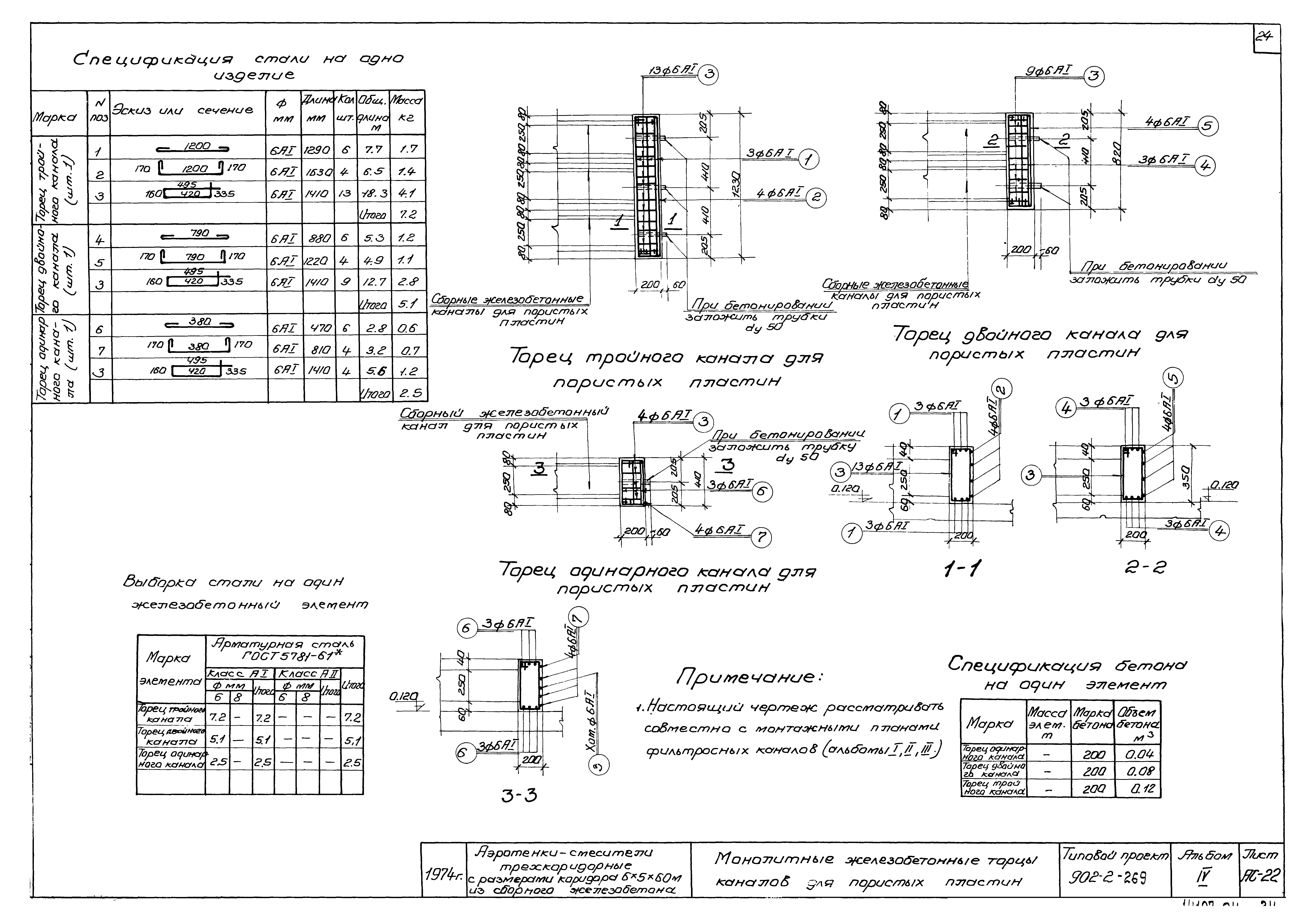
Скачать Типовой проект 902-2-269 Альбом IV. Узлы и детали, монолитные участки стен. Камеры распределения илаДата актуализации: 01.01.2021 Типовой проект 902-2-269
Альбом IV. Узлы и детали, монолитные участки стен. Камеры распределения ила| Обозначение: | Типовой проект 902-2-269 | | Обозначение англ: | 902-2-269 | | Статус: | действует | | Название рус.: | Альбом IV. Узлы и детали, монолитные участки стен. Камеры распределения ила | | Дата добавления в базу: | 01.09.2013 | | Дата актуализации: | 01.01.2021 | | Дата введения: | 05.11.1976 | | Разработан: | ЦНИИпромзданий Союзводоканалниипроект
| | Утверждён: | 09.12.1975 Главпромстройпроект Госстроя СССР
|
                                  
|