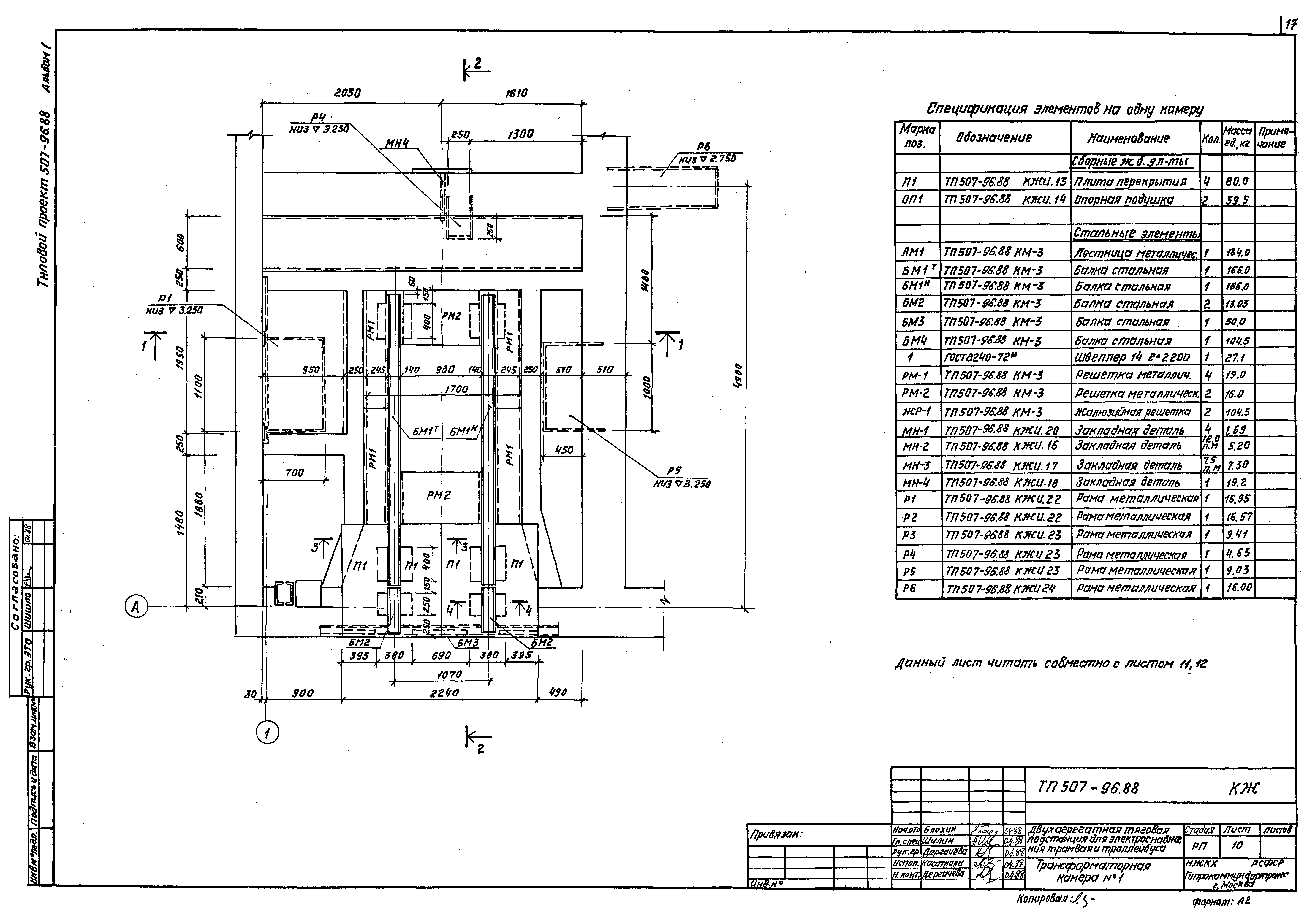
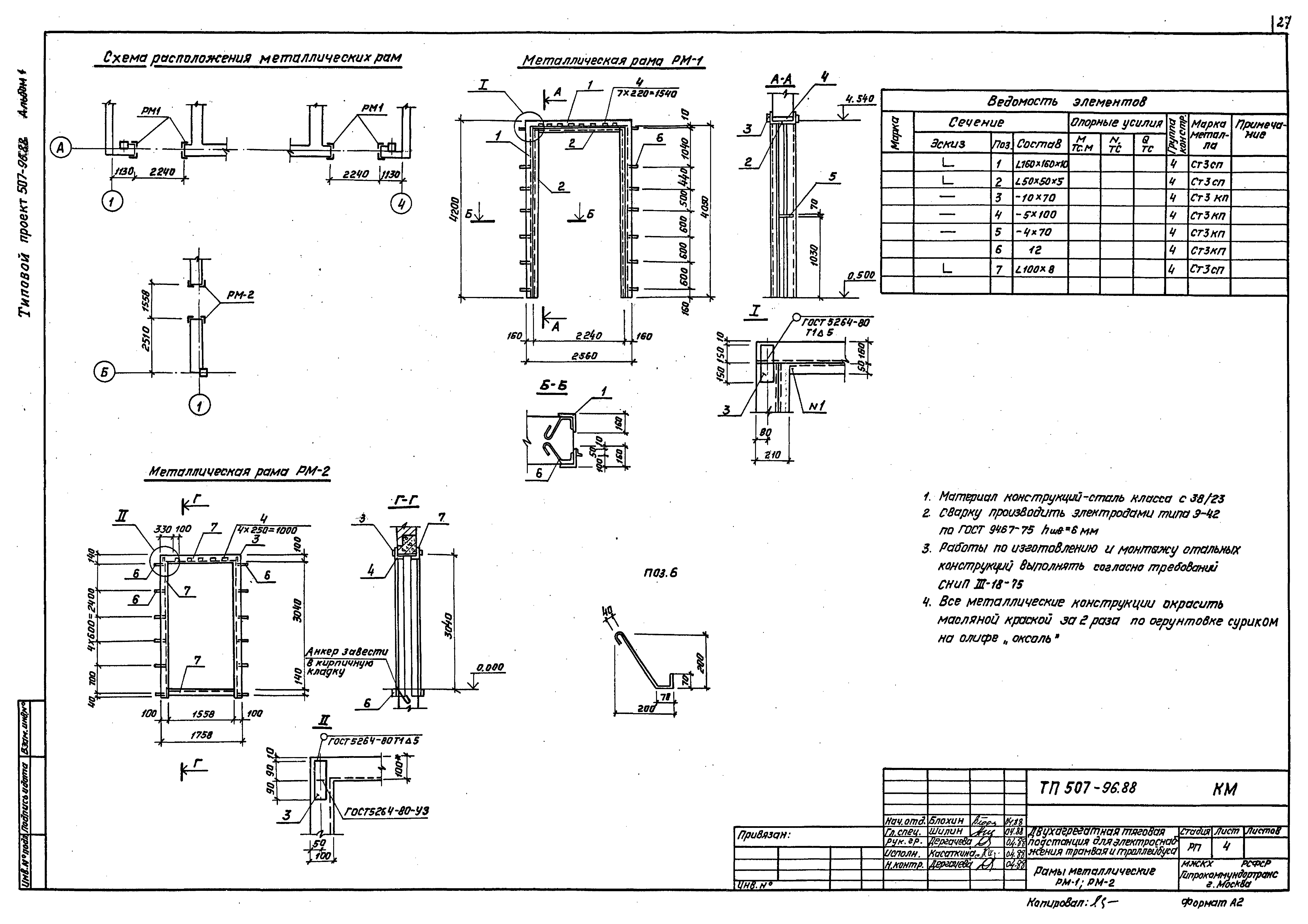
Скачать Типовой проект 507-96.88 Альбом 1. Пояснительная записка. Архитектурные решения. Конструкции железобетонные. Конструкции металлические. Внутренний водопровод и канализация. Отопление и вентиляция. Автоматизация отопления и вентиляции

Дата актуализации: 01.01.2021

Типовой проект 507-96.88

Альбом 1. Пояснительная записка. Архитектурные решения. Конструкции железобетонные. Конструкции металлические. Внутренний водопровод и канализация. Отопление и вентиляция. Автоматизация отопления и вентиляции

Обозначение: Типовой проект 507-96.88
Обозначение англ: 507-96.88
Статус:не определен законодательством
Название рус.:Альбом 1. Пояснительная записка. Архитектурные решения. Конструкции железобетонные. Конструкции металлические. Внутренний водопровод и канализация. Отопление и вентиляция. Автоматизация отопления и вентиляции
Дата добавления в базу:01.09.2013
Дата актуализации:01.01.2021
Дата введения:22.12.1988
Дата окончания срока действия:30.06.2003
Разработан: Гипрокоммундортранс Минжилкомхоза РСФСР
Утверждён:22.12.1988 Министерство жилищно-коммунального хозяйства РСФСР (350)
Типовой проект 507-96.88Типовой проект 507-96.88Типовой проект 507-96.88Типовой проект 507-96.88Типовой проект 507-96.88Типовой проект 507-96.88Типовой проект 507-96.88Типовой проект 507-96.88Типовой проект 507-96.88Типовой проект 507-96.88Типовой проект 507-96.88Типовой проект 507-96.88Типовой проект 507-96.88Типовой проект 507-96.88Типовой проект 507-96.88Типовой проект 507-96.88Типовой проект 507-96.88Типовой проект 507-96.88Типовой проект 507-96.88Типовой проект 507-96.88Типовой проект 507-96.88Типовой проект 507-96.88Типовой проект 507-96.88Типовой проект 507-96.88Типовой проект 507-96.88Типовой проект 507-96.88Типовой проект 507-96.88Типовой проект 507-96.88Типовой проект 507-96.88Типовой проект 507-96.88Типовой проект 507-96.88Типовой проект 507-96.88Типовой проект 507-96.88Типовой проект 507-96.88Типовой проект 507-96.88Типовой проект 507-96.88Типовой проект 507-96.88Типовой проект 507-96.88Типовой проект 507-96.88Типовой проект 507-96.88