Скачать Типовой проект 902-8-2.91 Альбом 1. Часть 1. Пояснительная записка. Технология производства. Технологические коммуникации. Архитектурно-строительные решения. Конструкции металлические. Отопление и вентиляция. Внутренние водопровод и канализацияДата актуализации: 01.01.2021
|
| Обозначение: | Типовой проект 902-8-2.91 |
| Обозначение англ: | 902-8-2.91 |
| Статус: | не определен законодательством |
| Название рус.: | Альбом 1. Часть 1. Пояснительная записка. Технология производства. Технологические коммуникации. Архитектурно-строительные решения. Конструкции металлические. Отопление и вентиляция. Внутренние водопровод и канализация |
| Дата добавления в базу: | 01.09.2013 |
| Дата актуализации: | 01.01.2021 |
| Дата введения: | 18.11.1991 |
| Дата окончания срока действия: | 30.06.2003 |
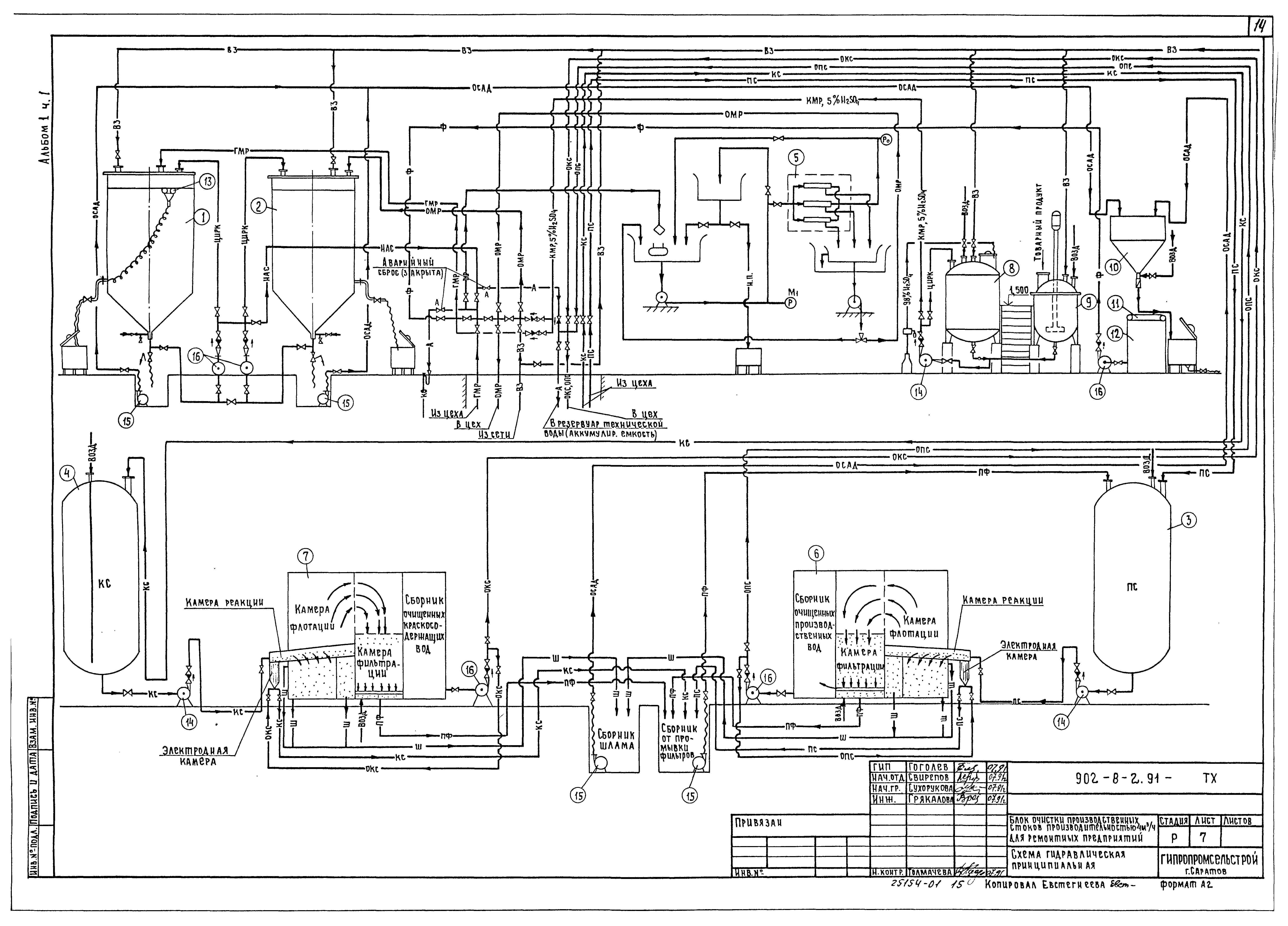
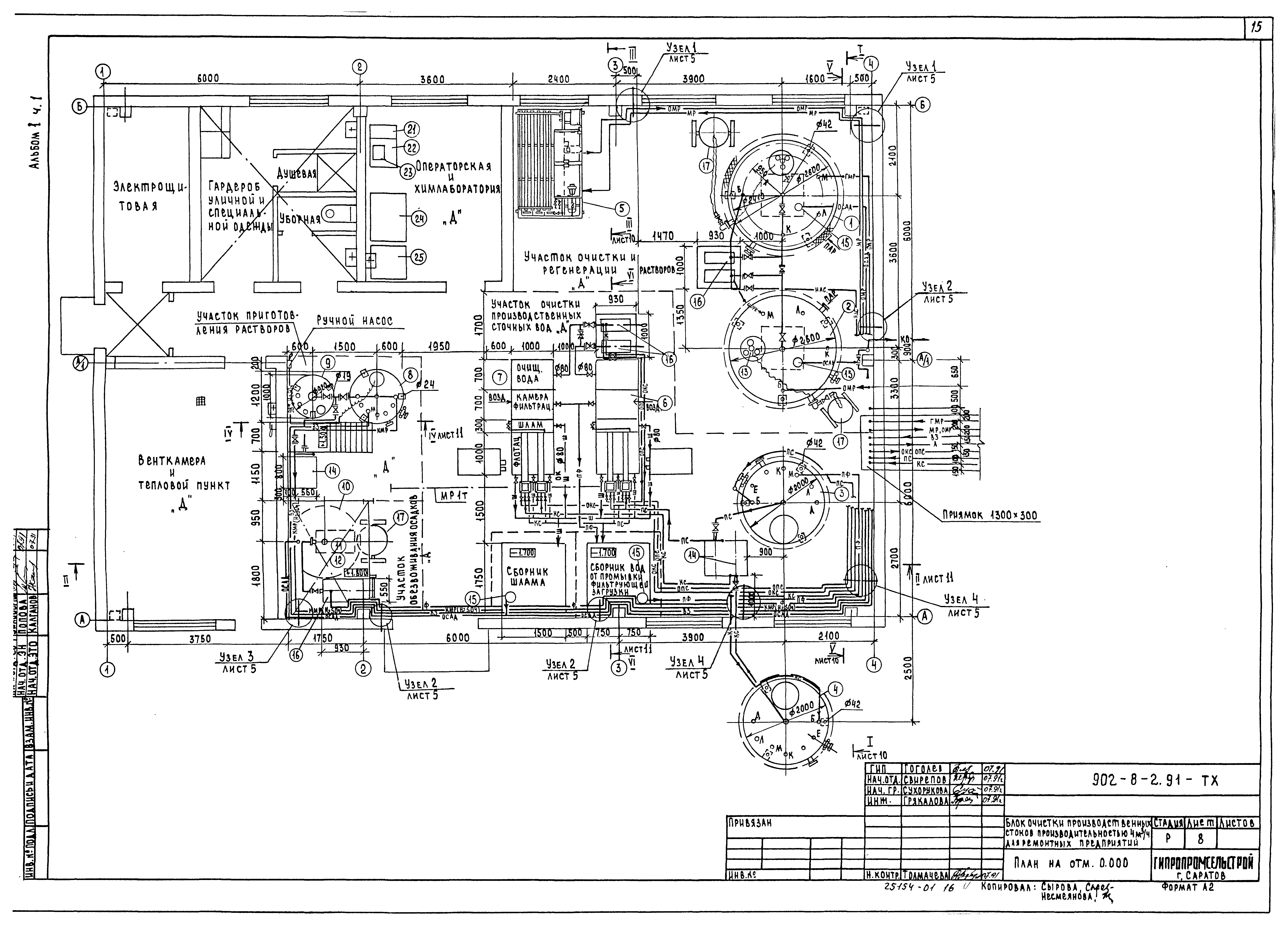
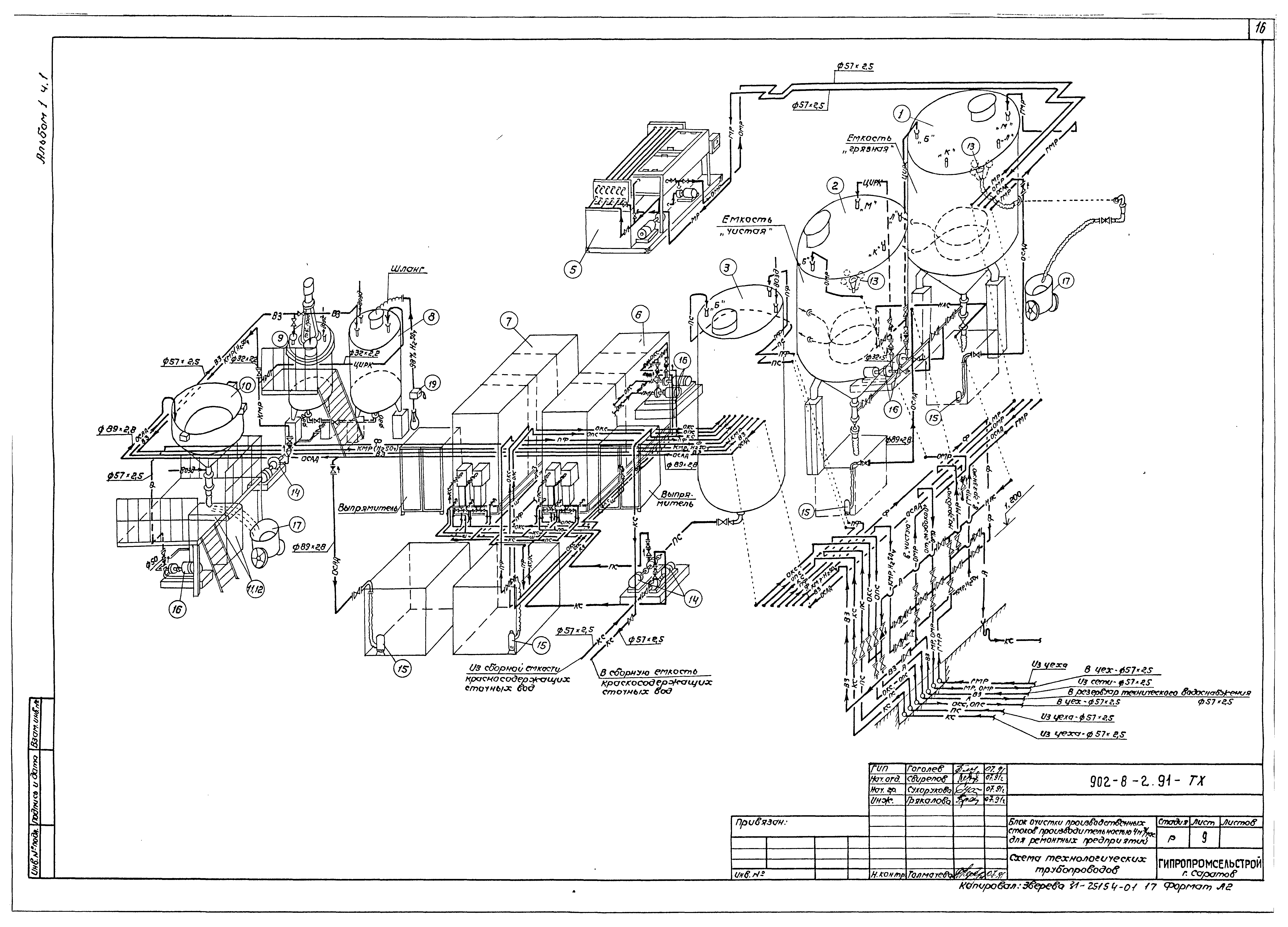
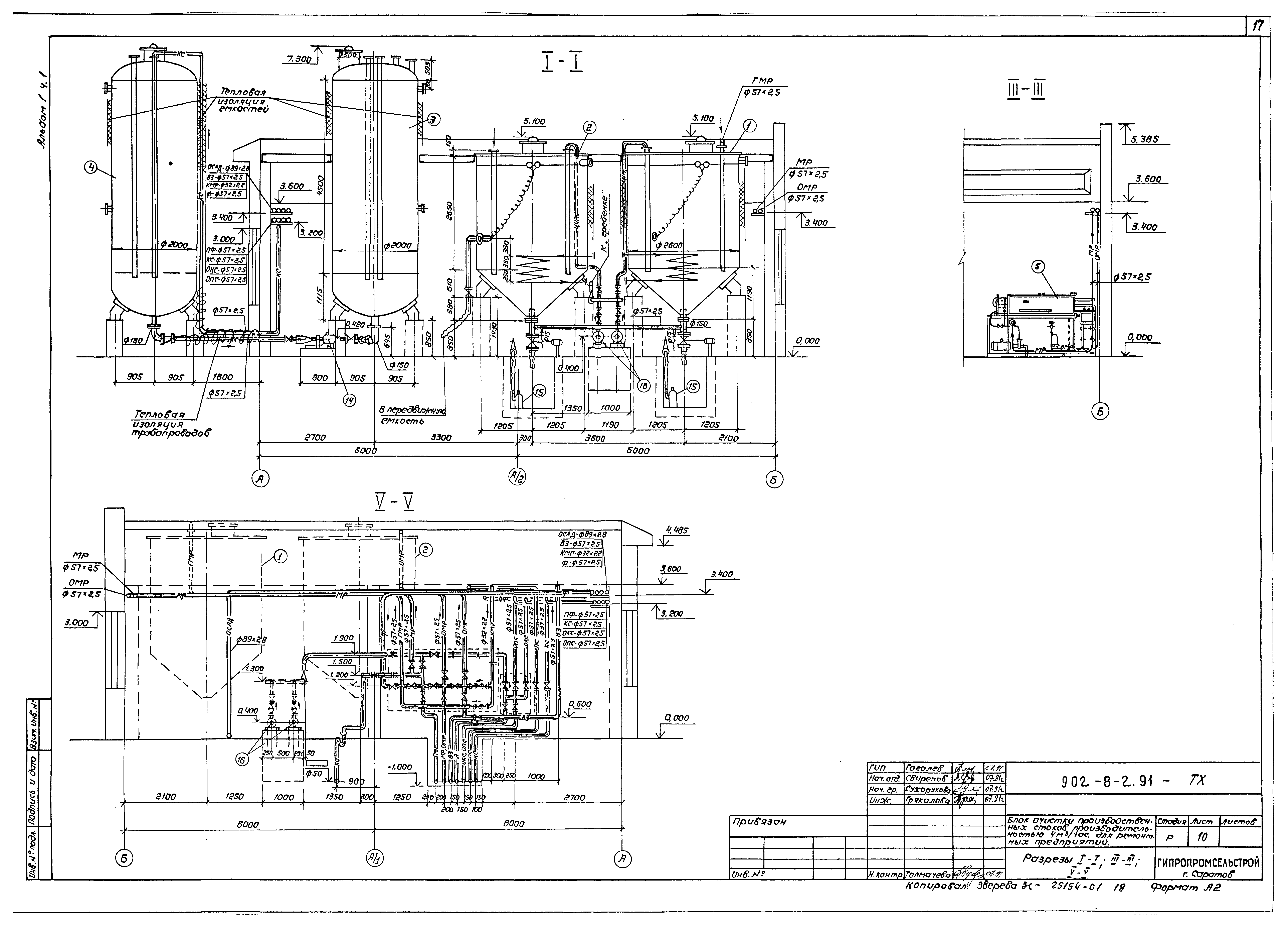
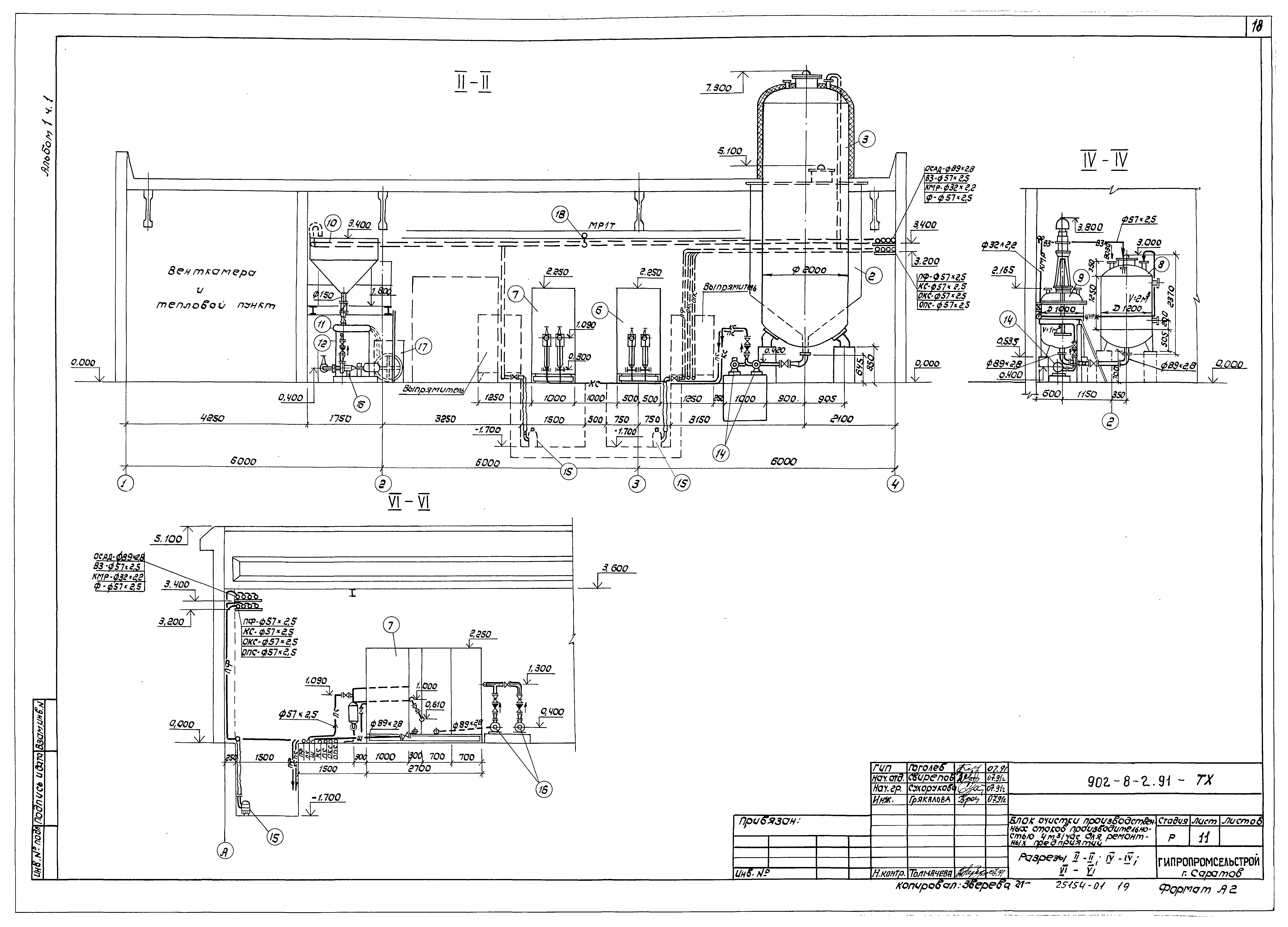
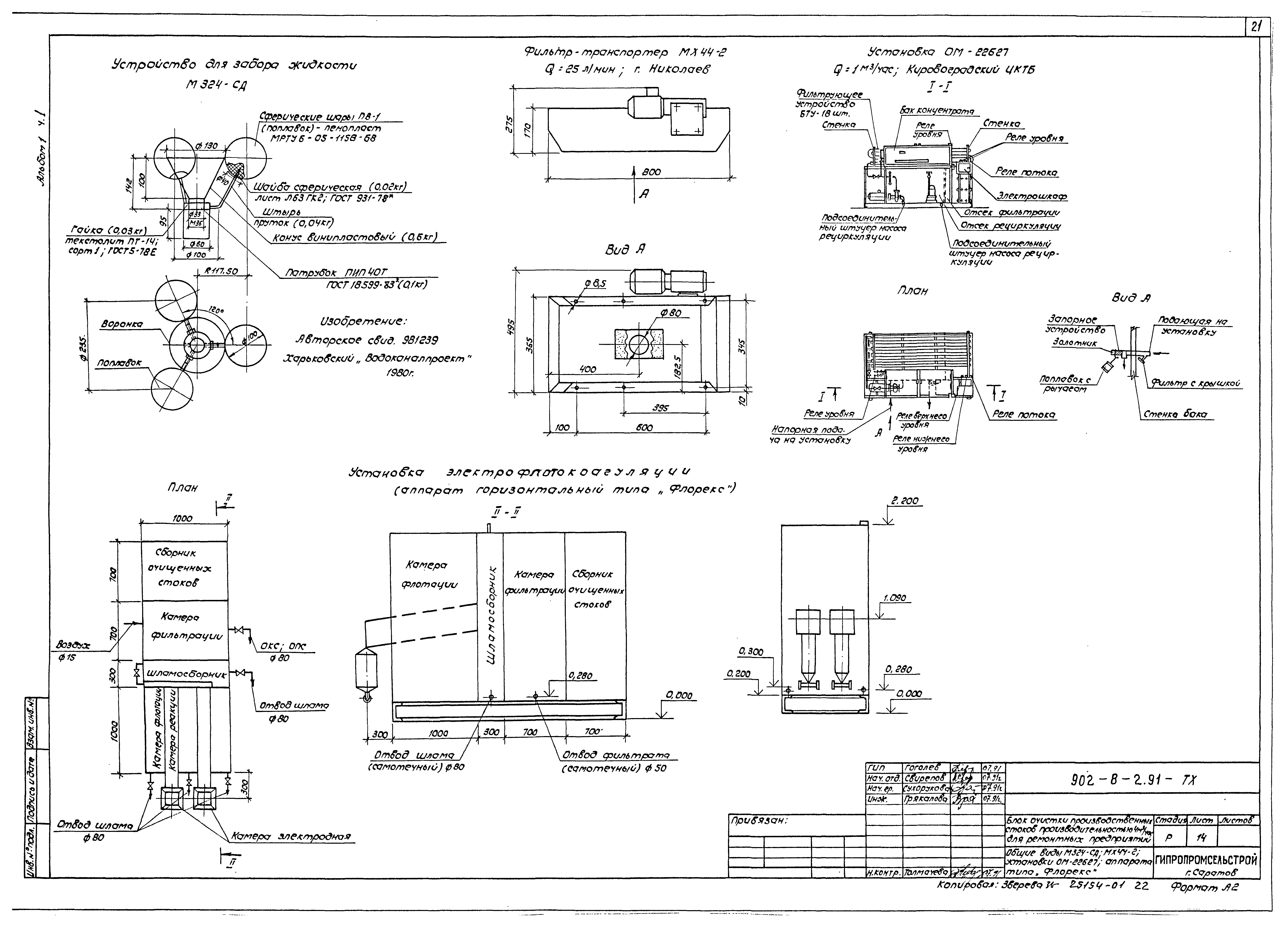
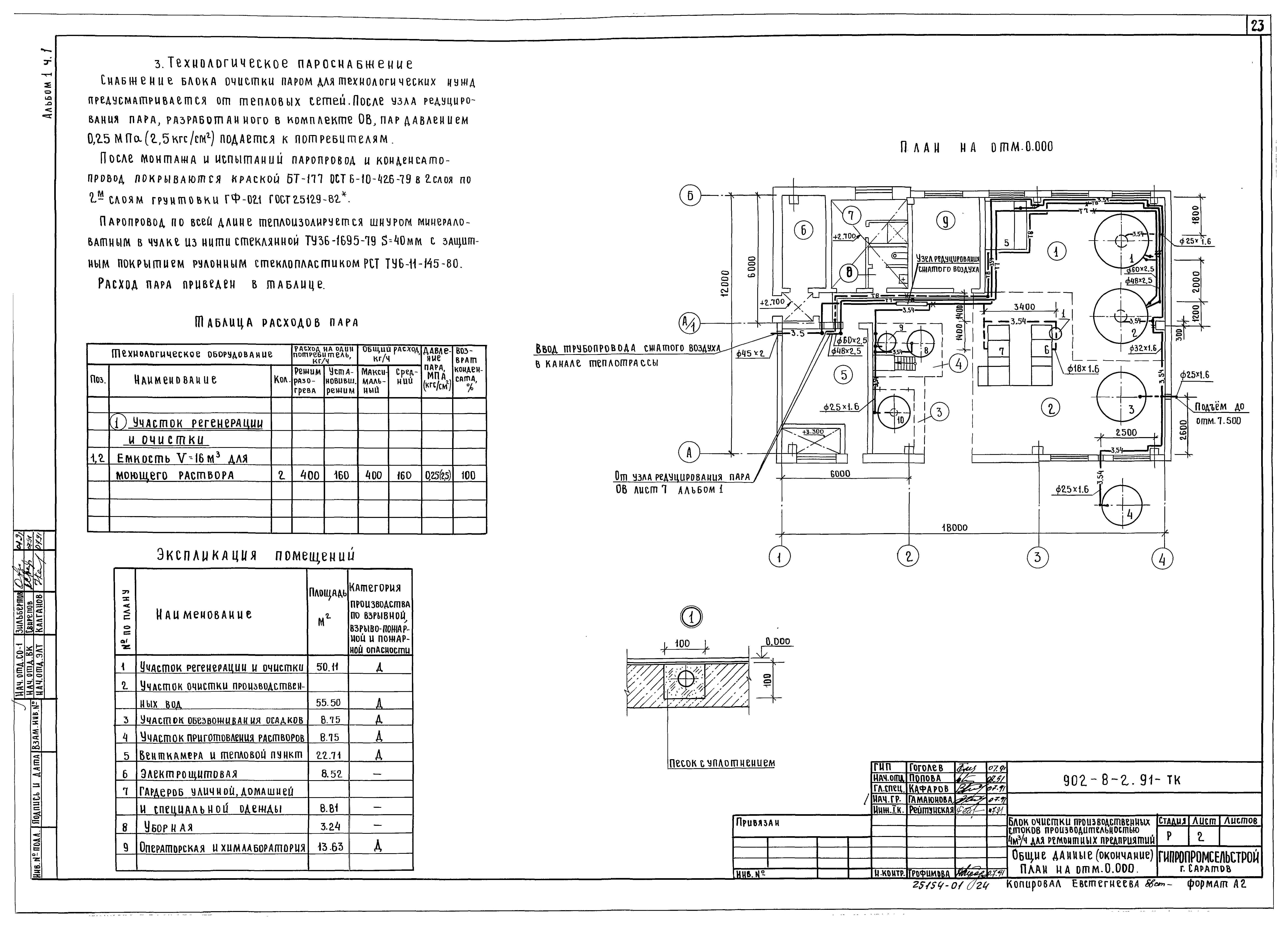
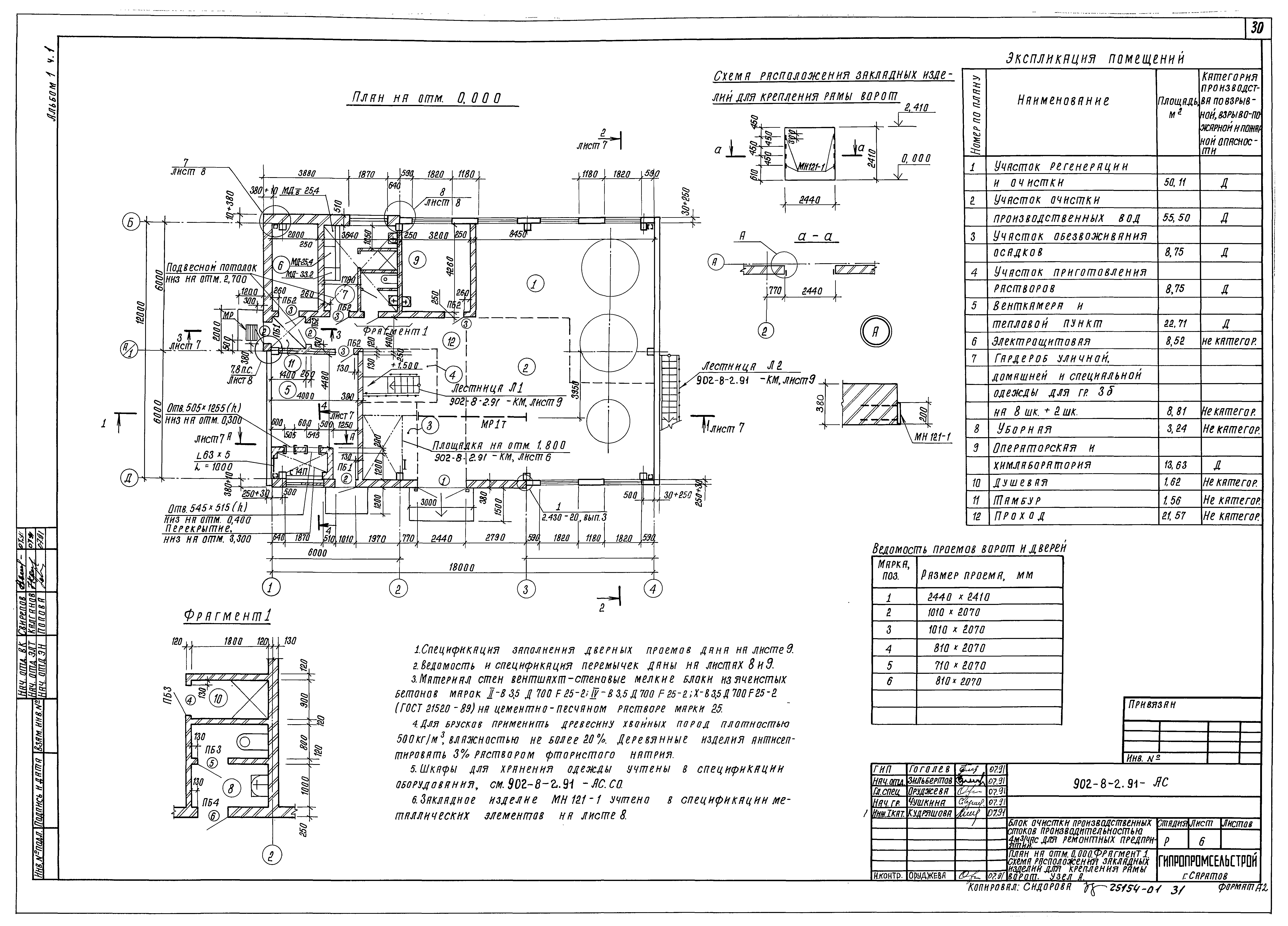
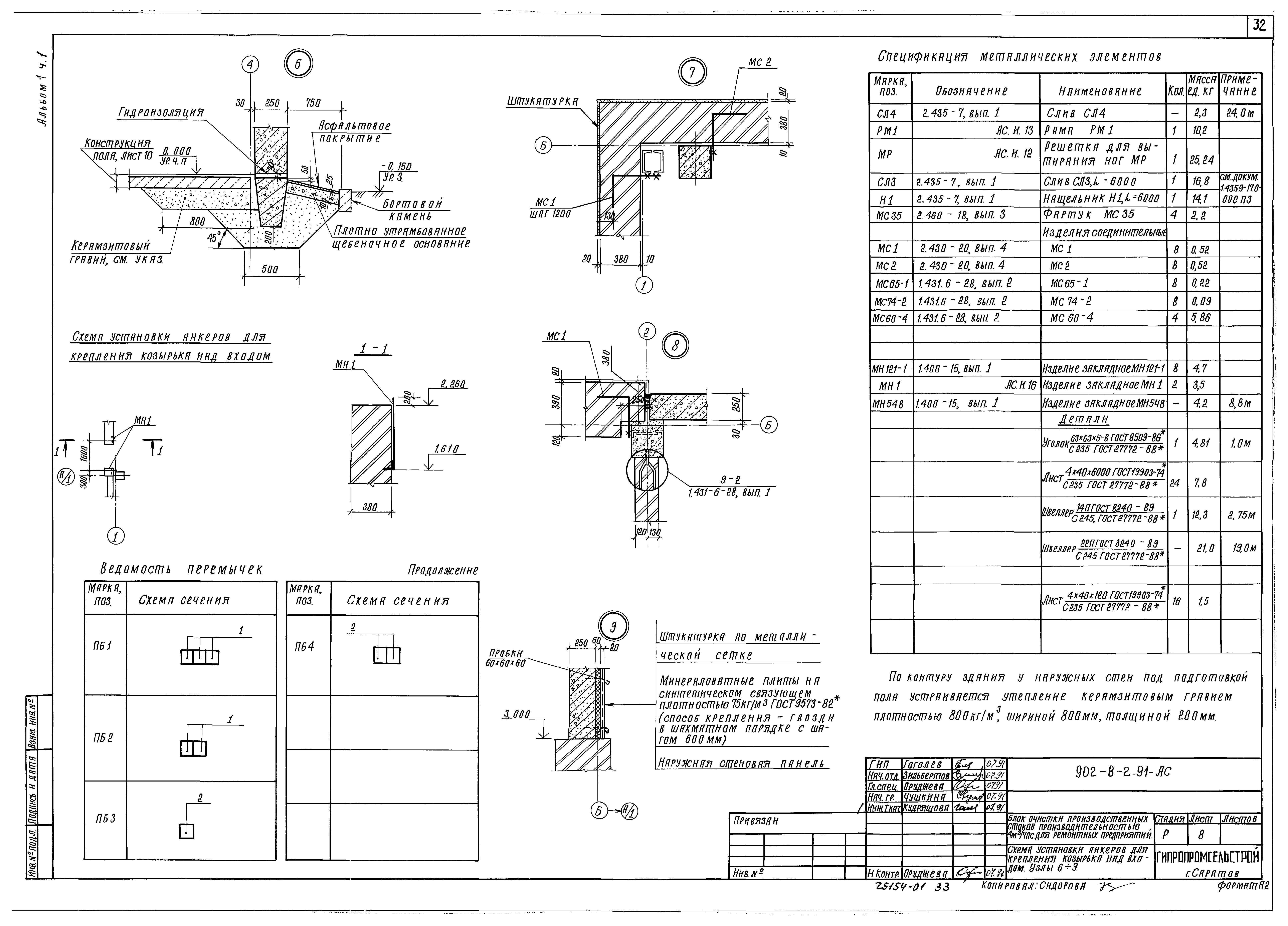
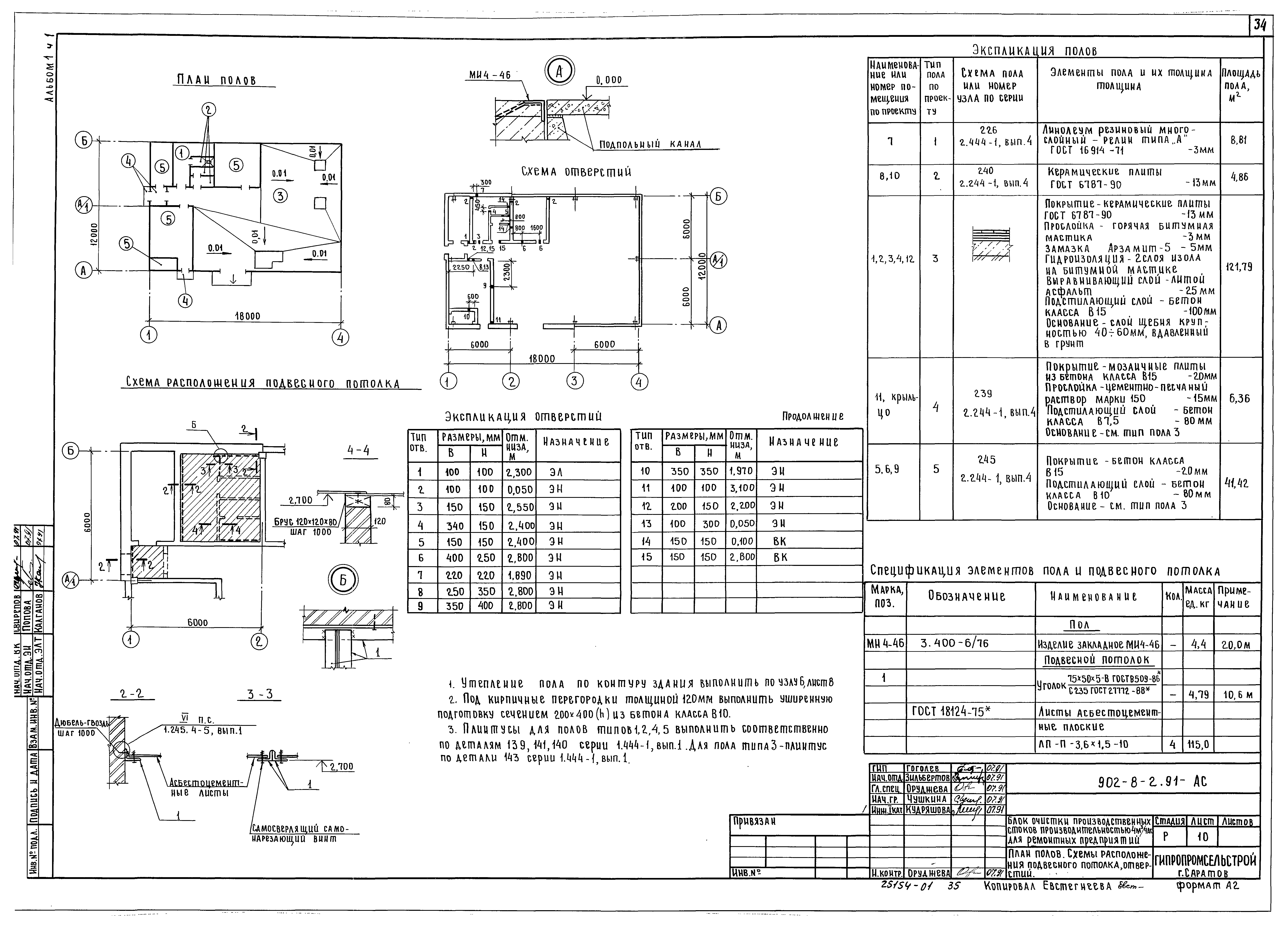
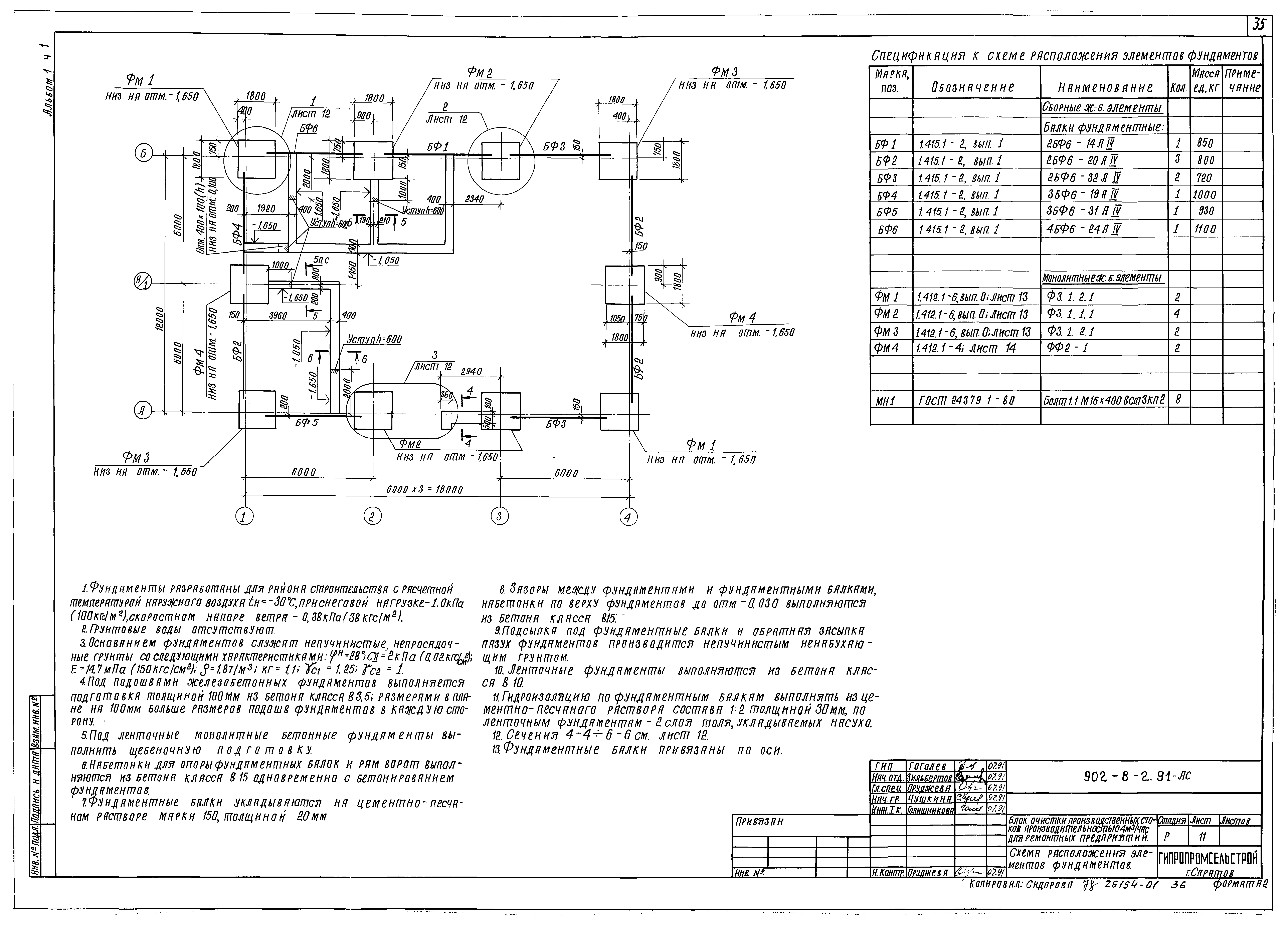
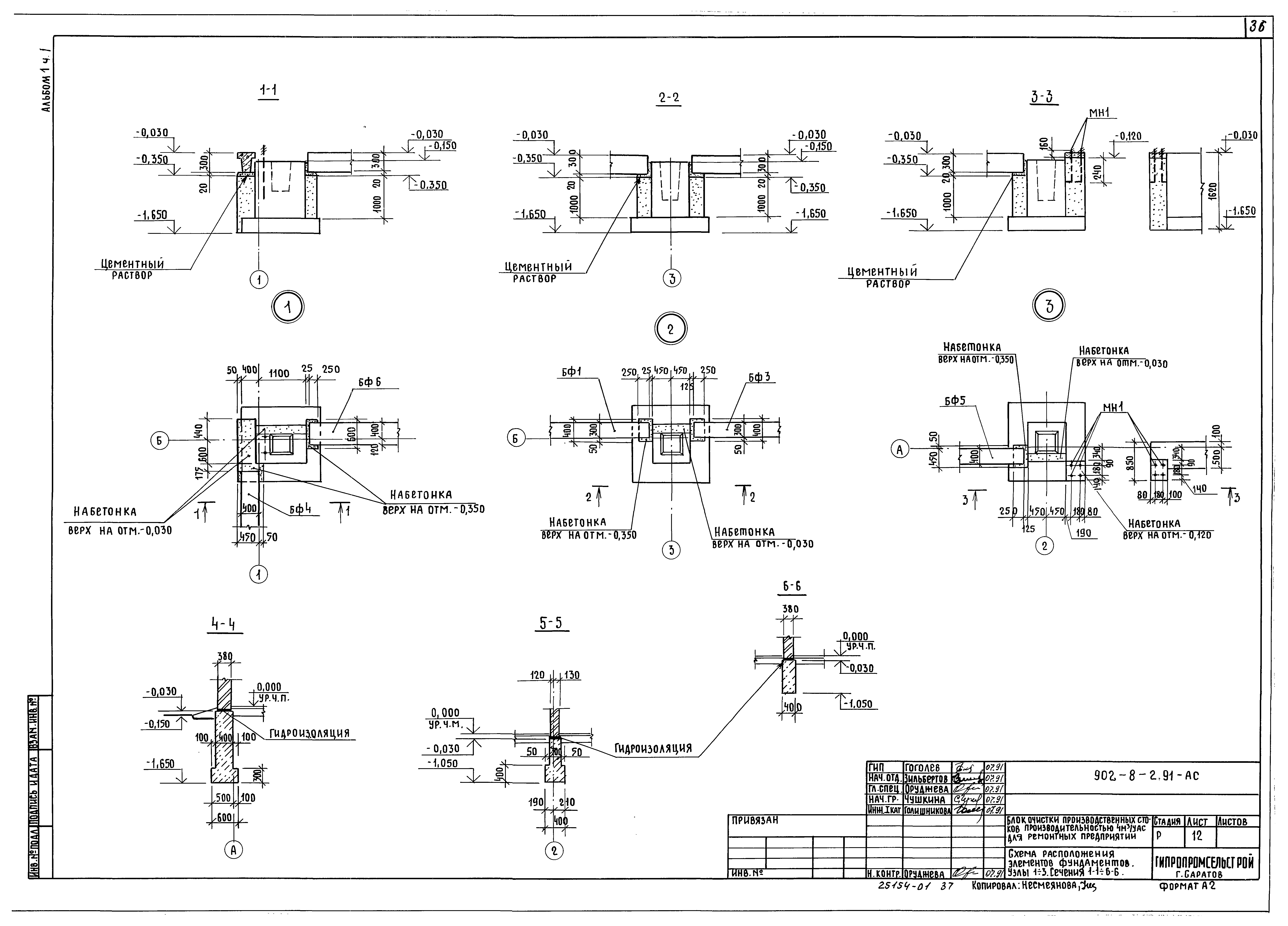
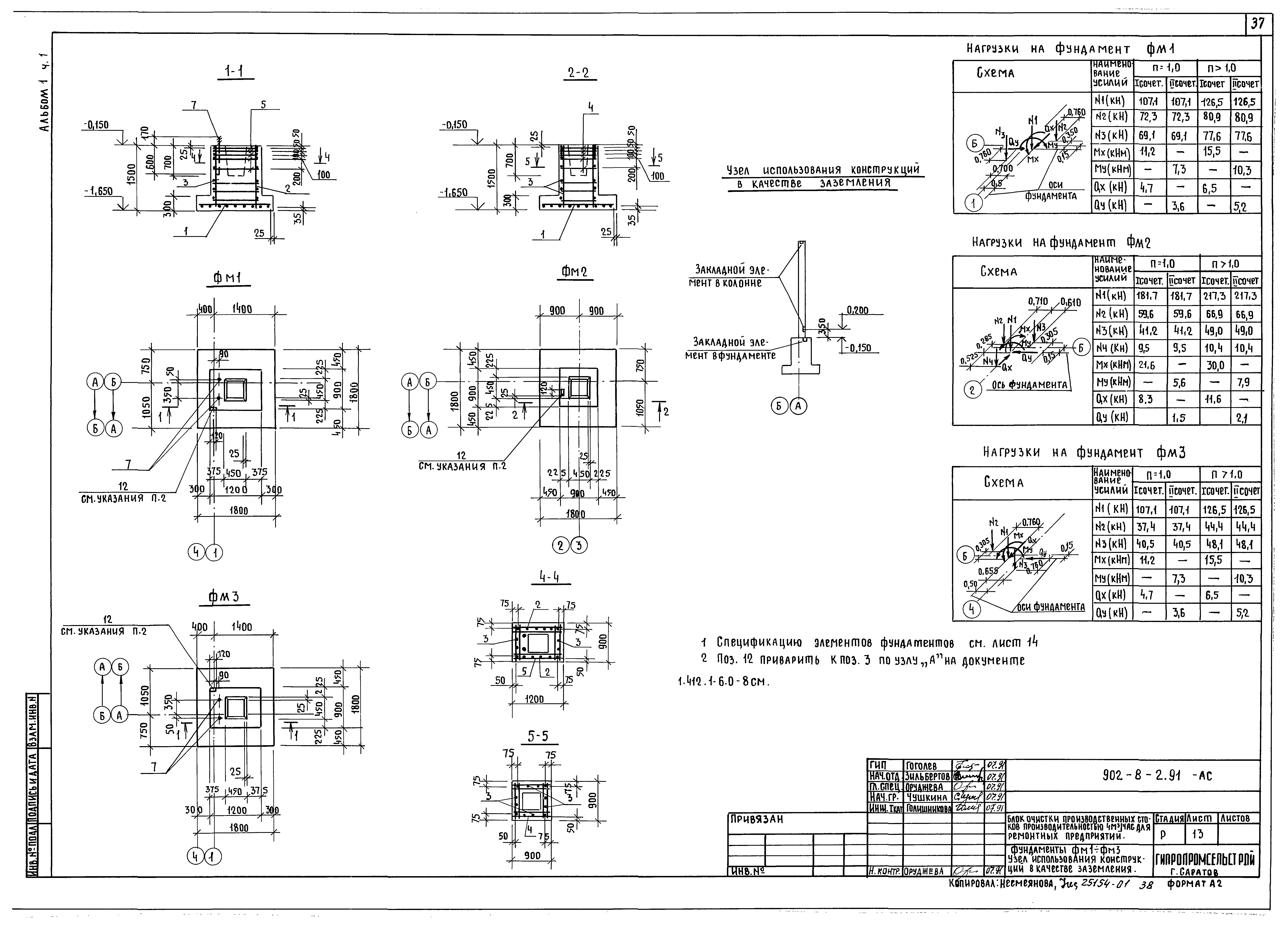
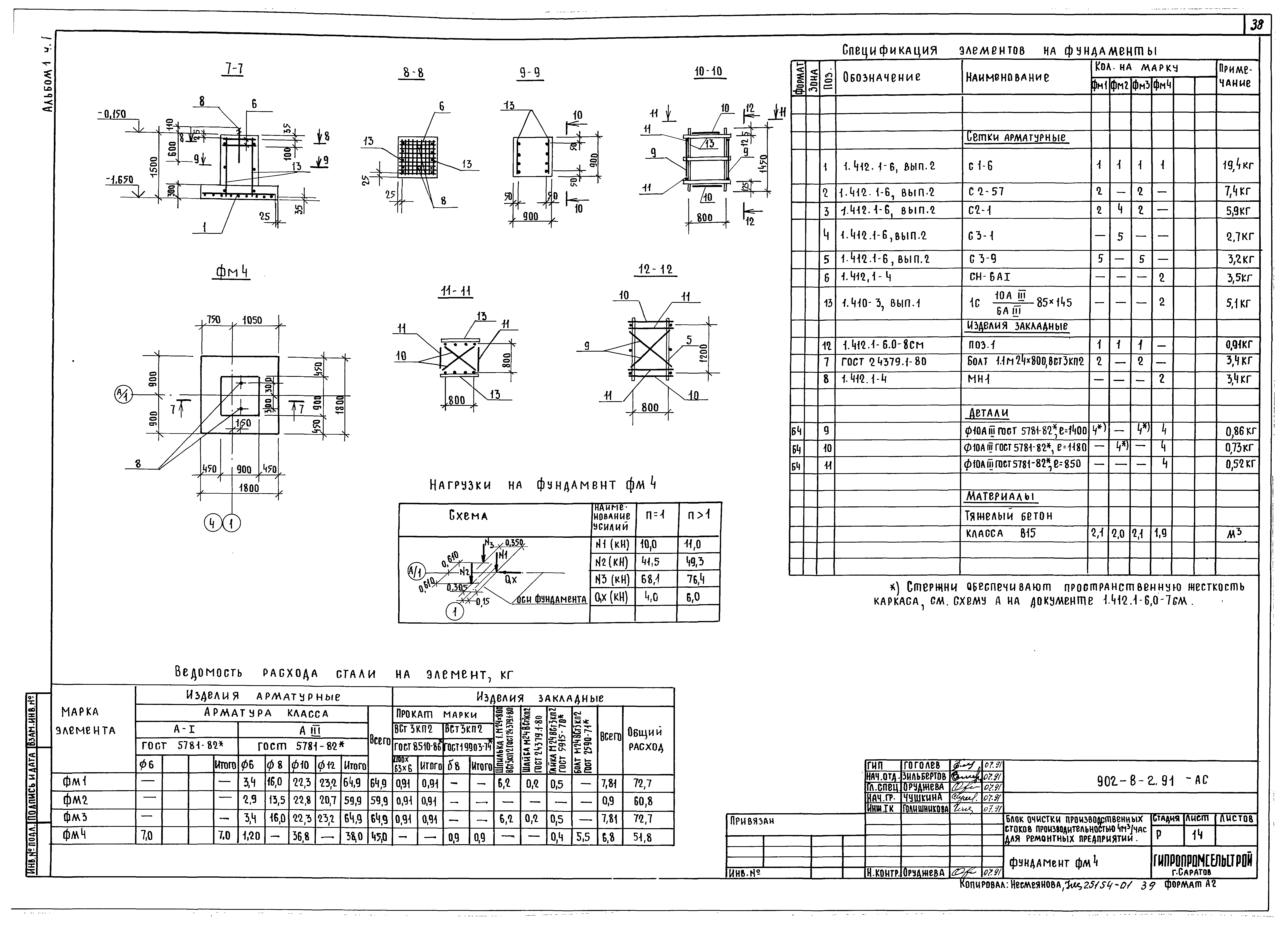
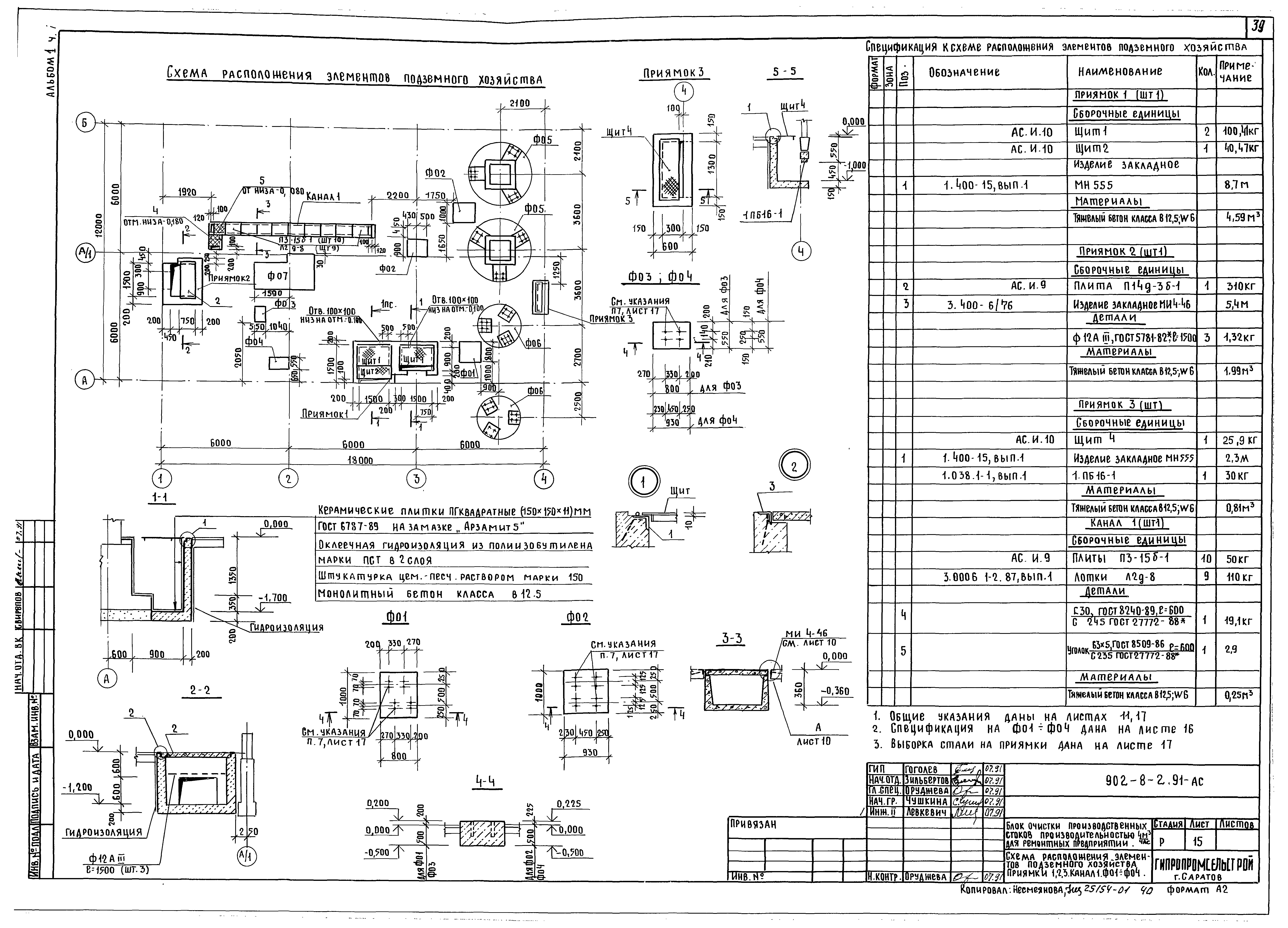
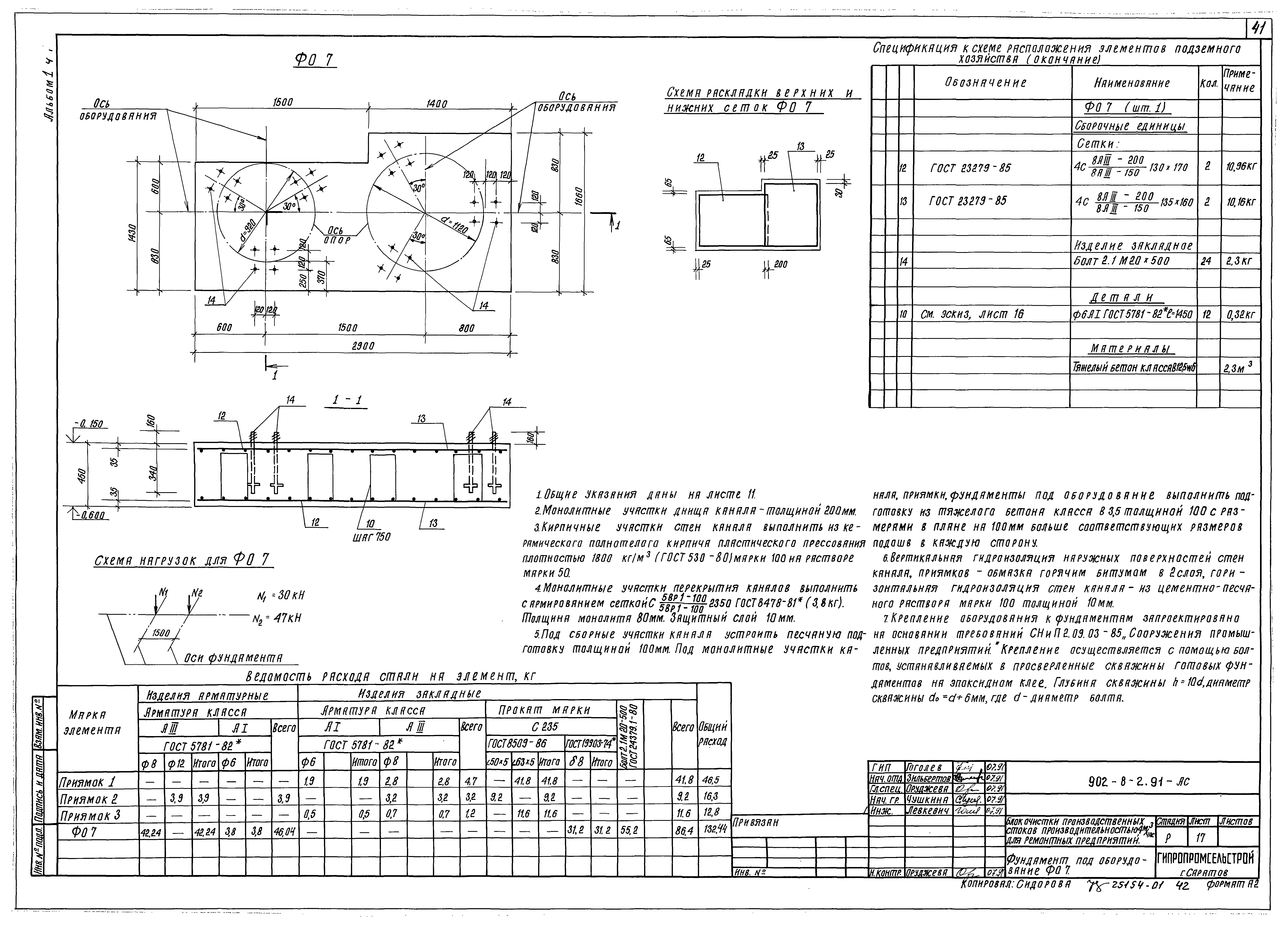
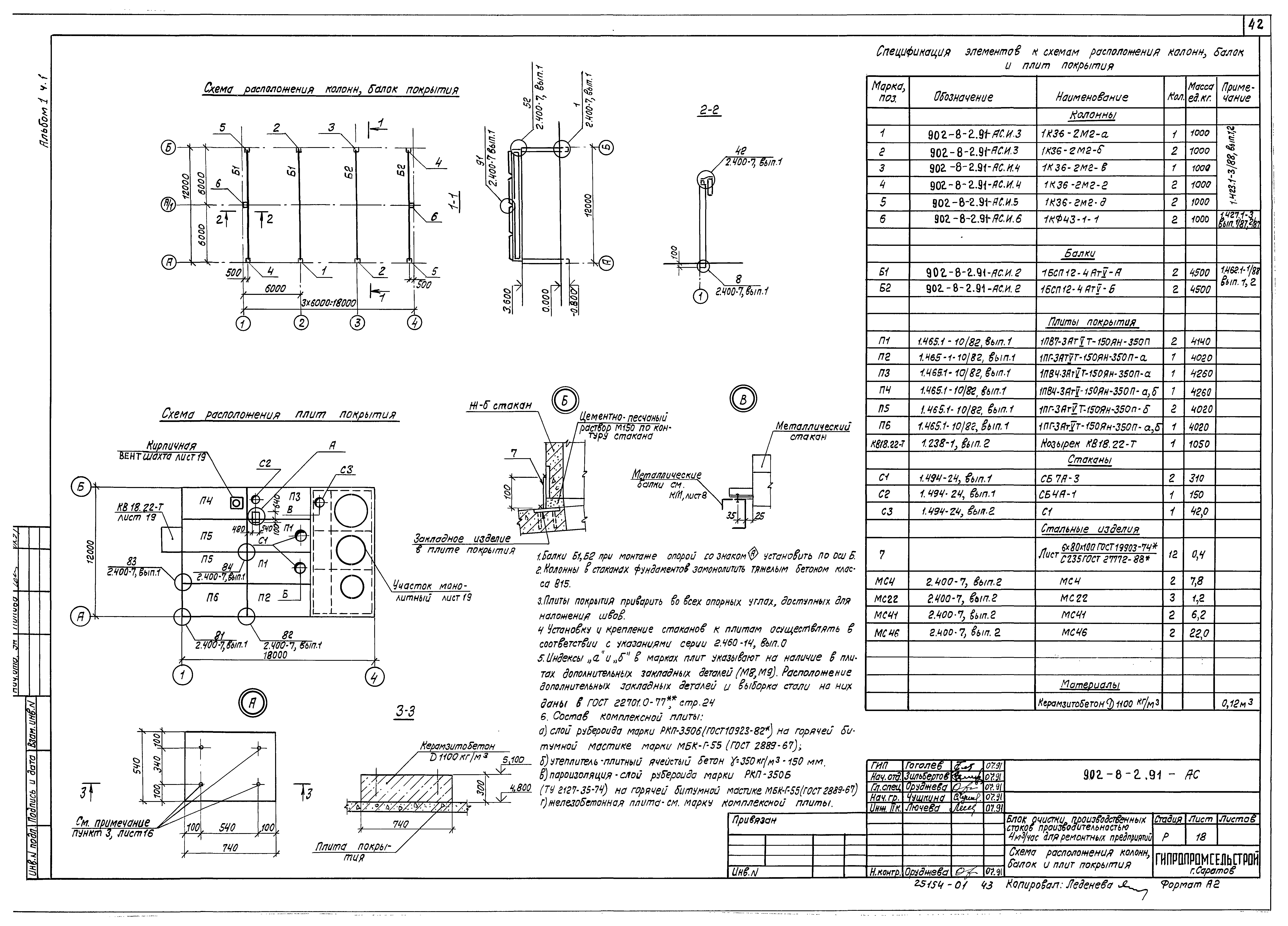
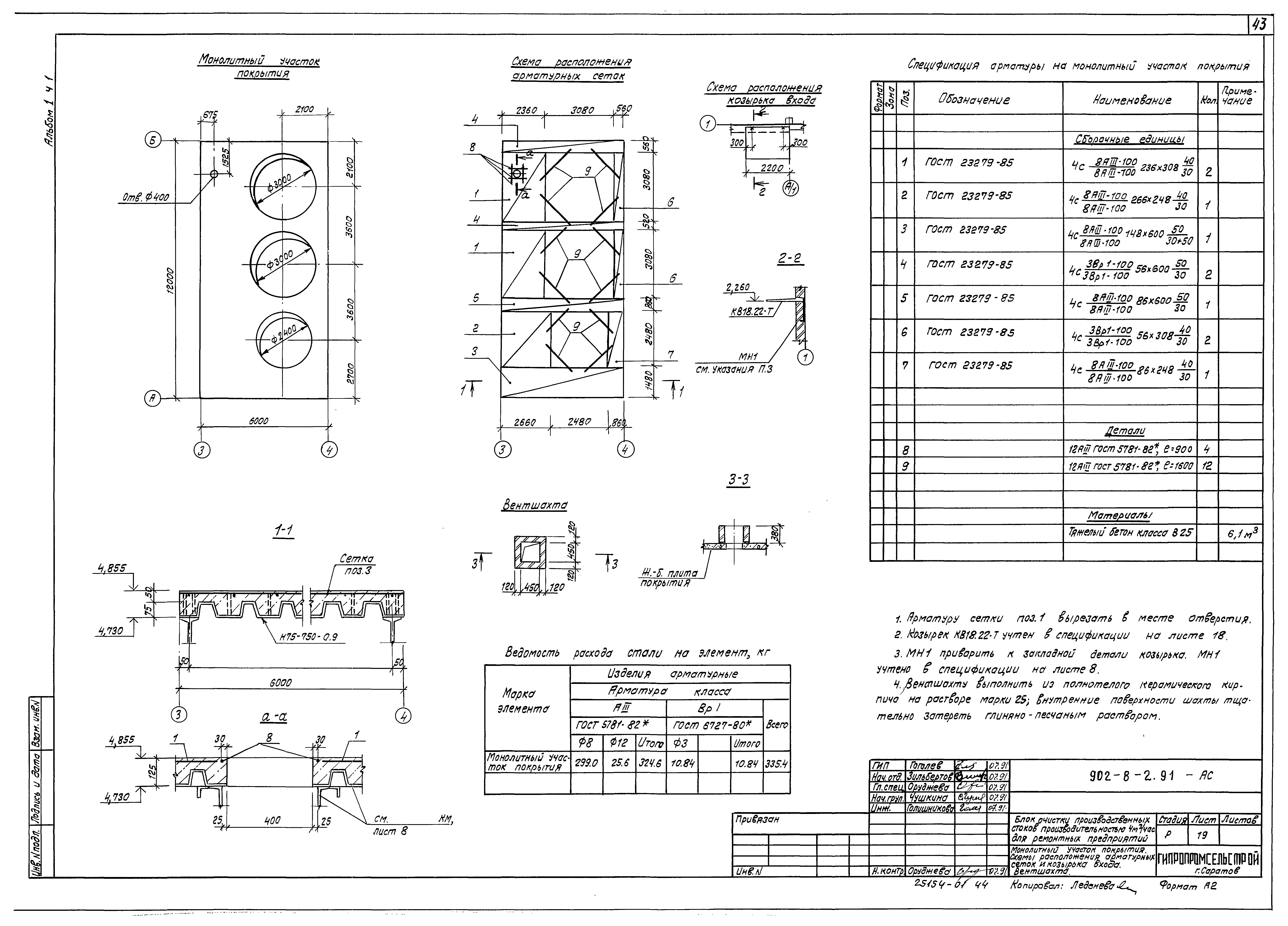
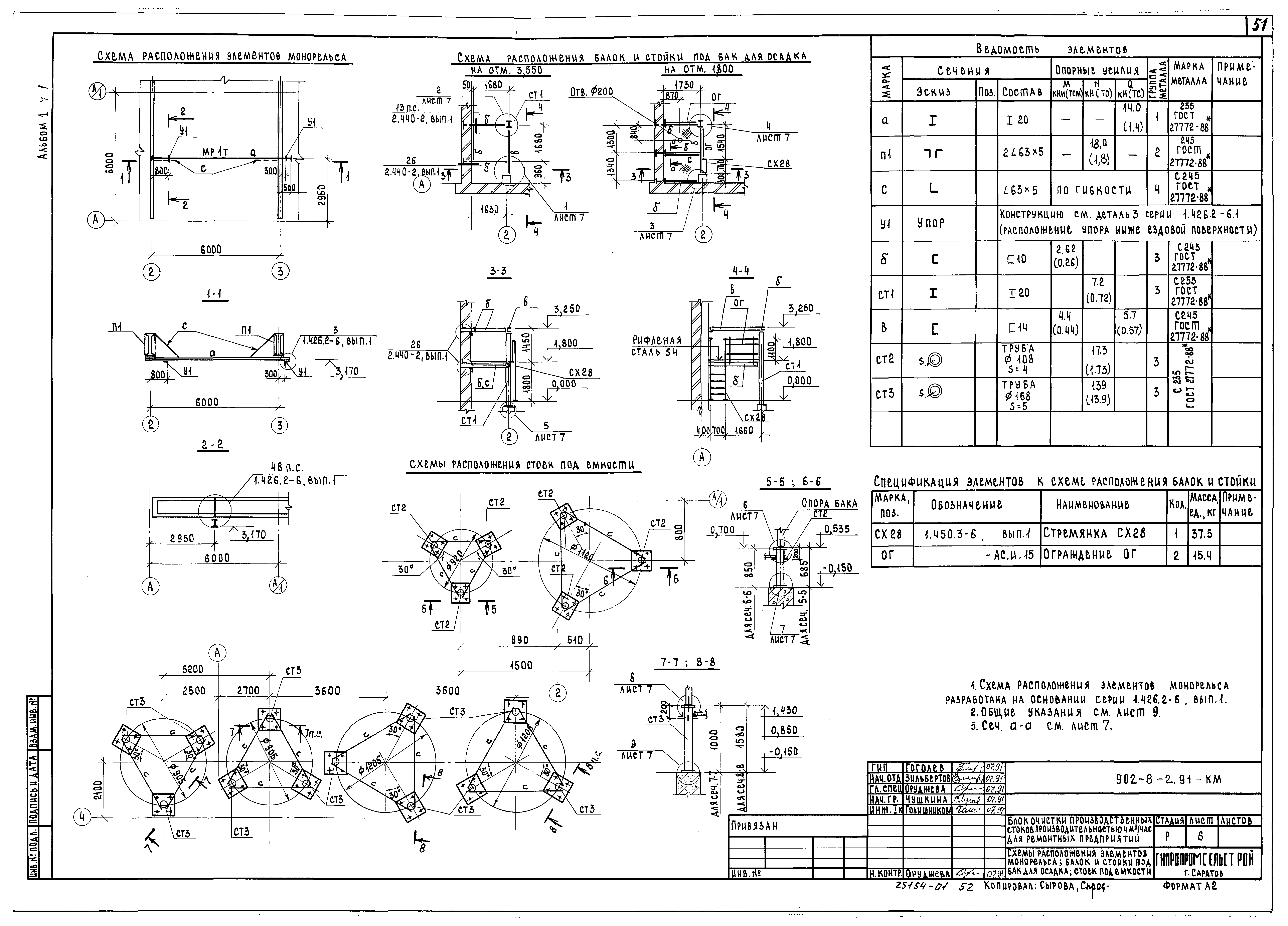
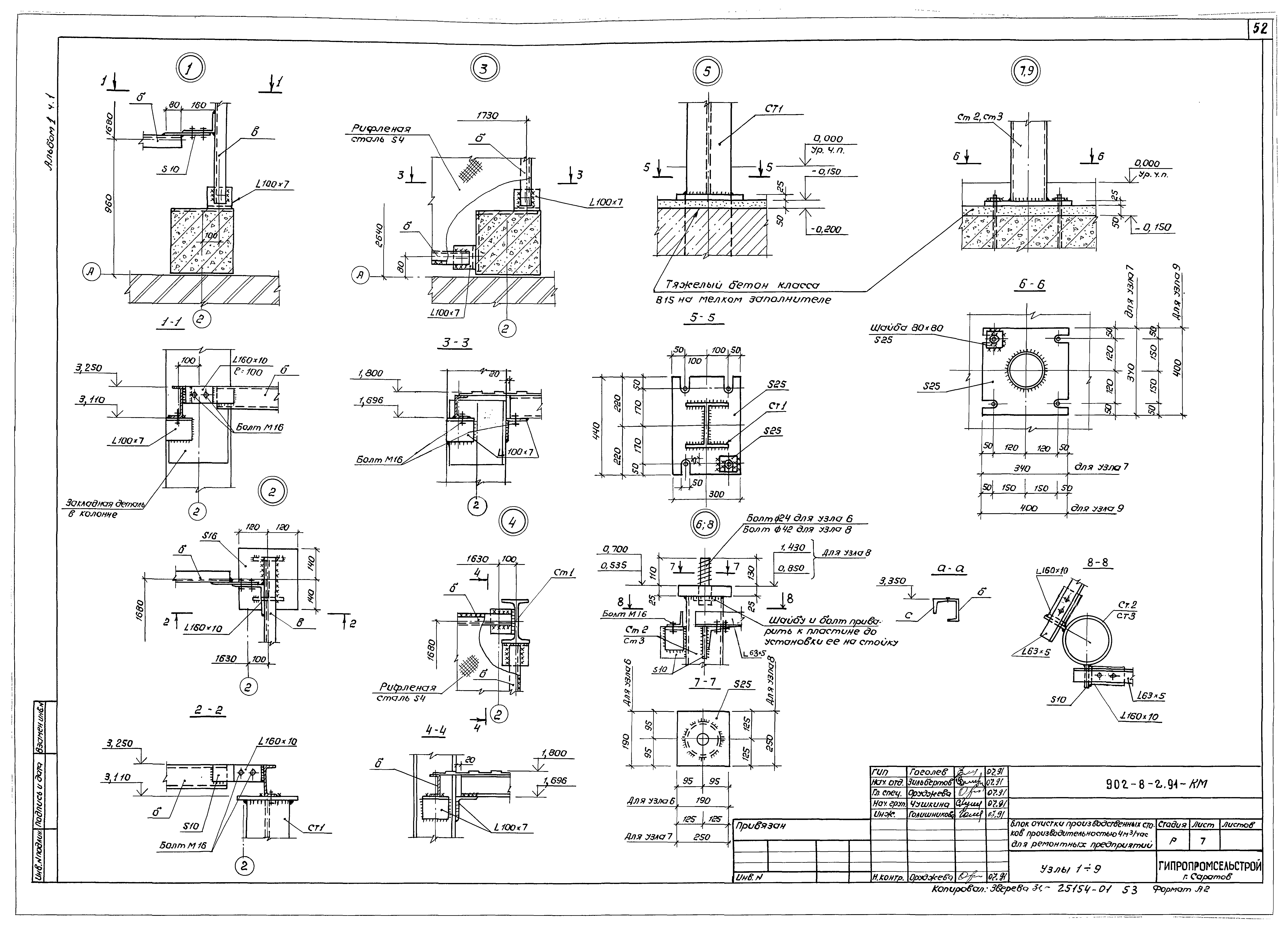
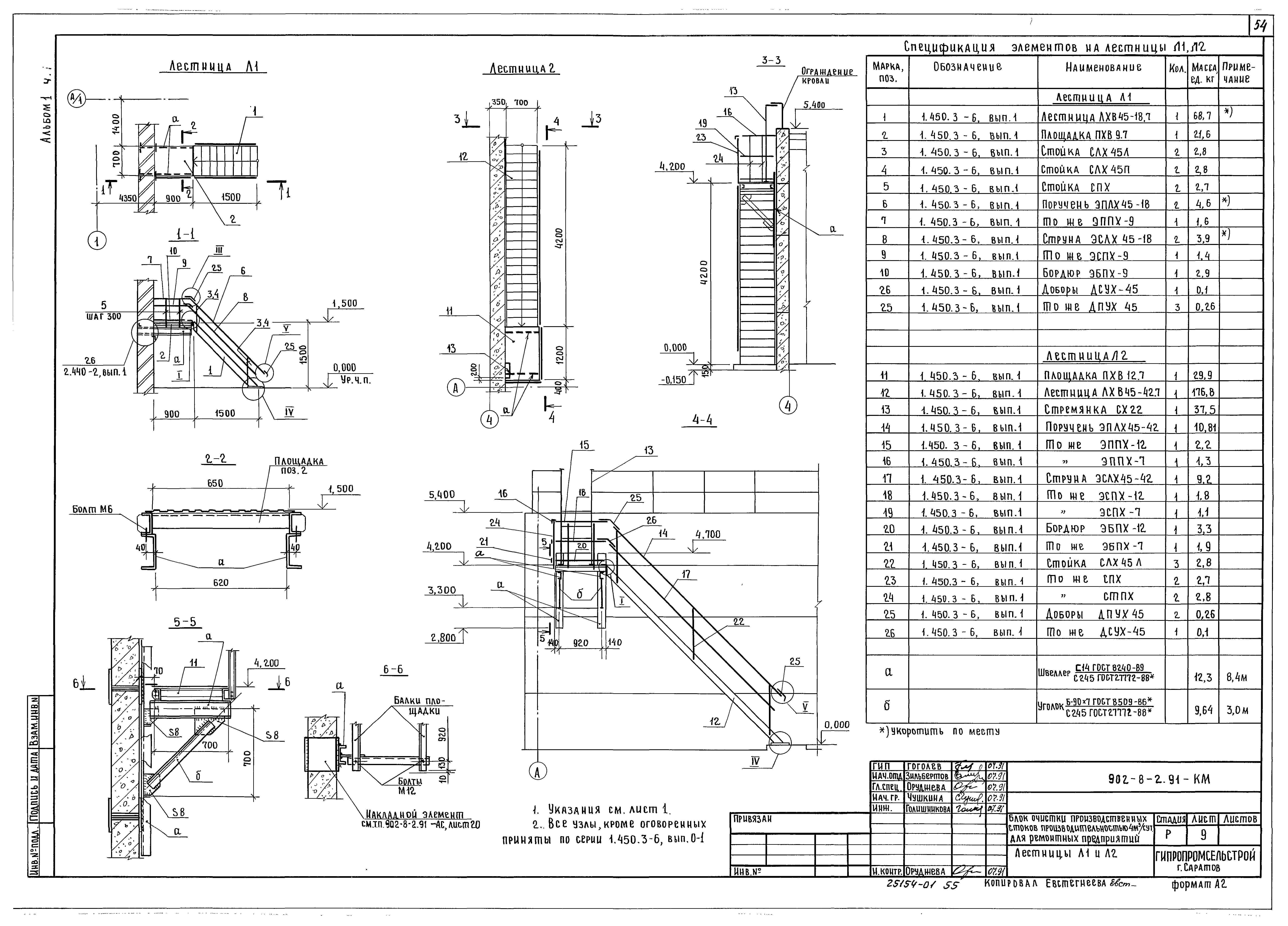
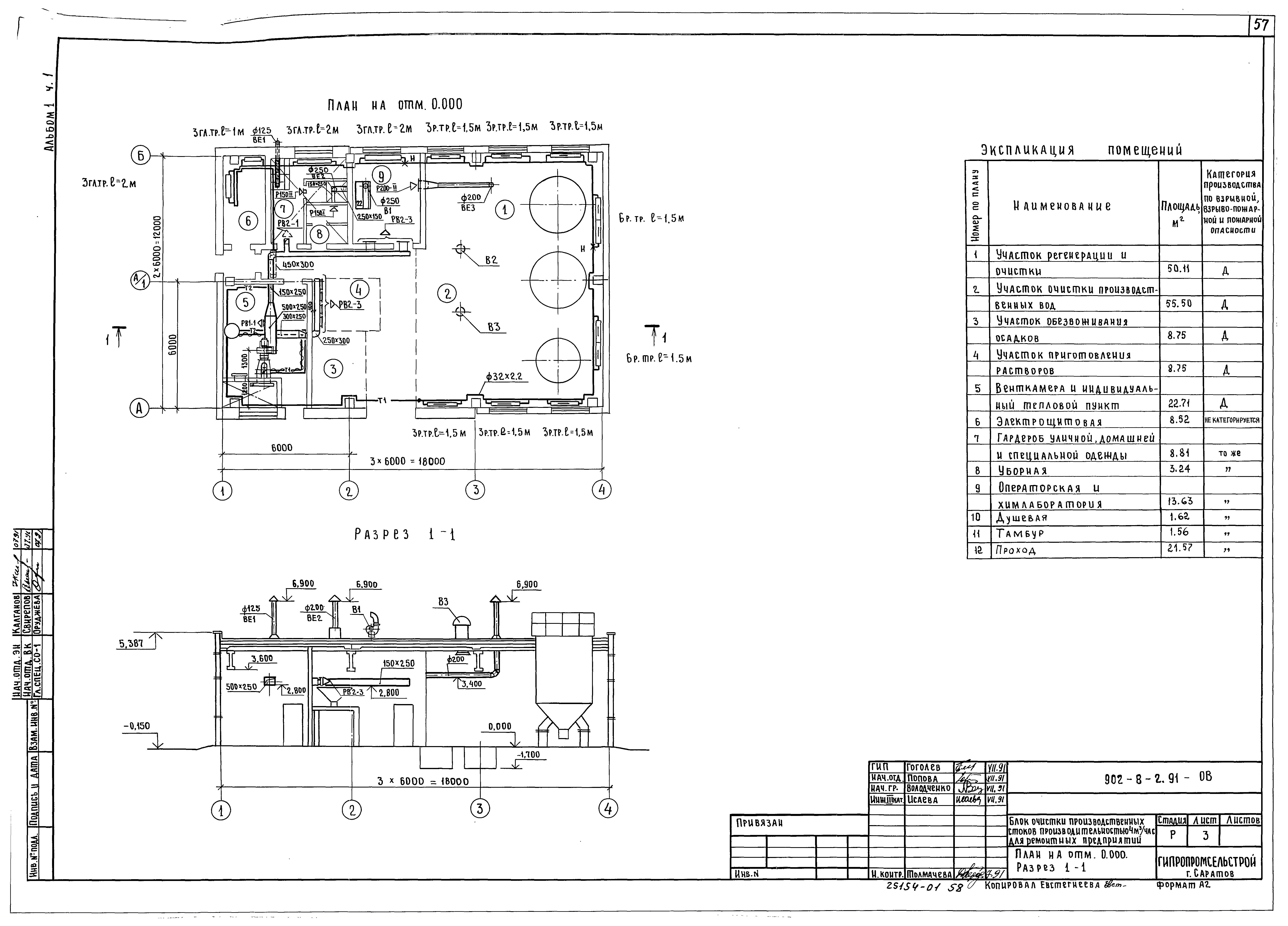
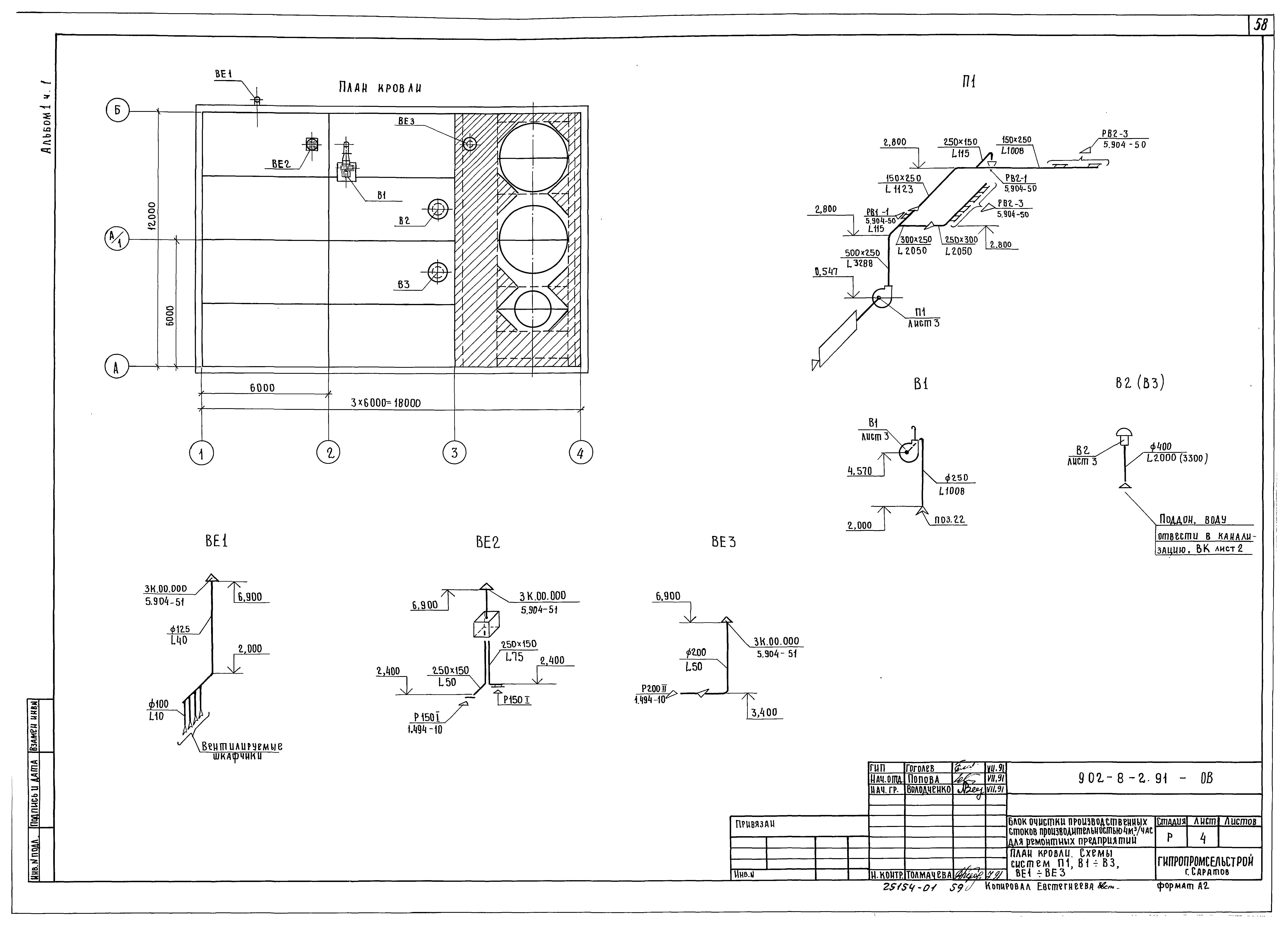
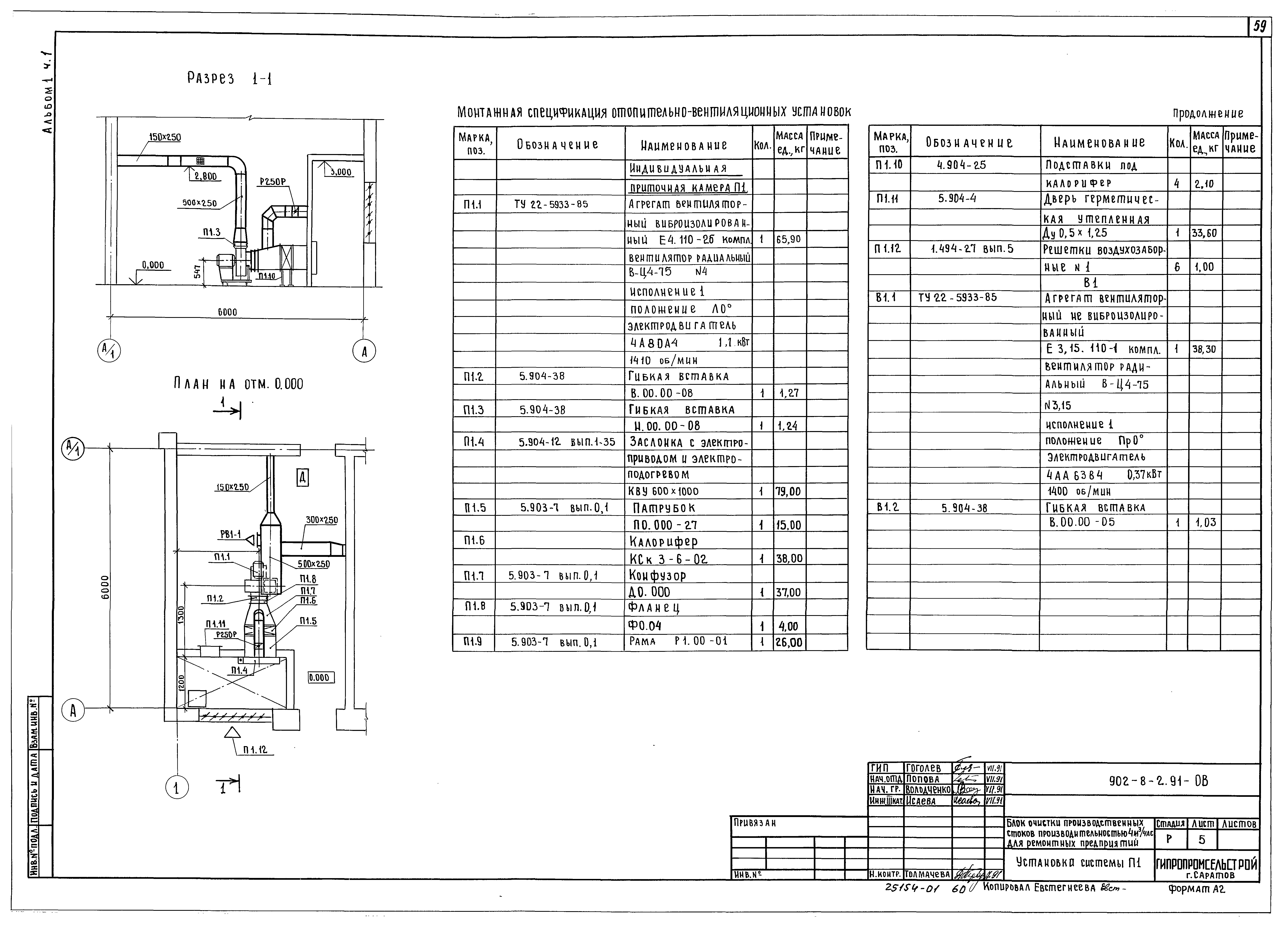
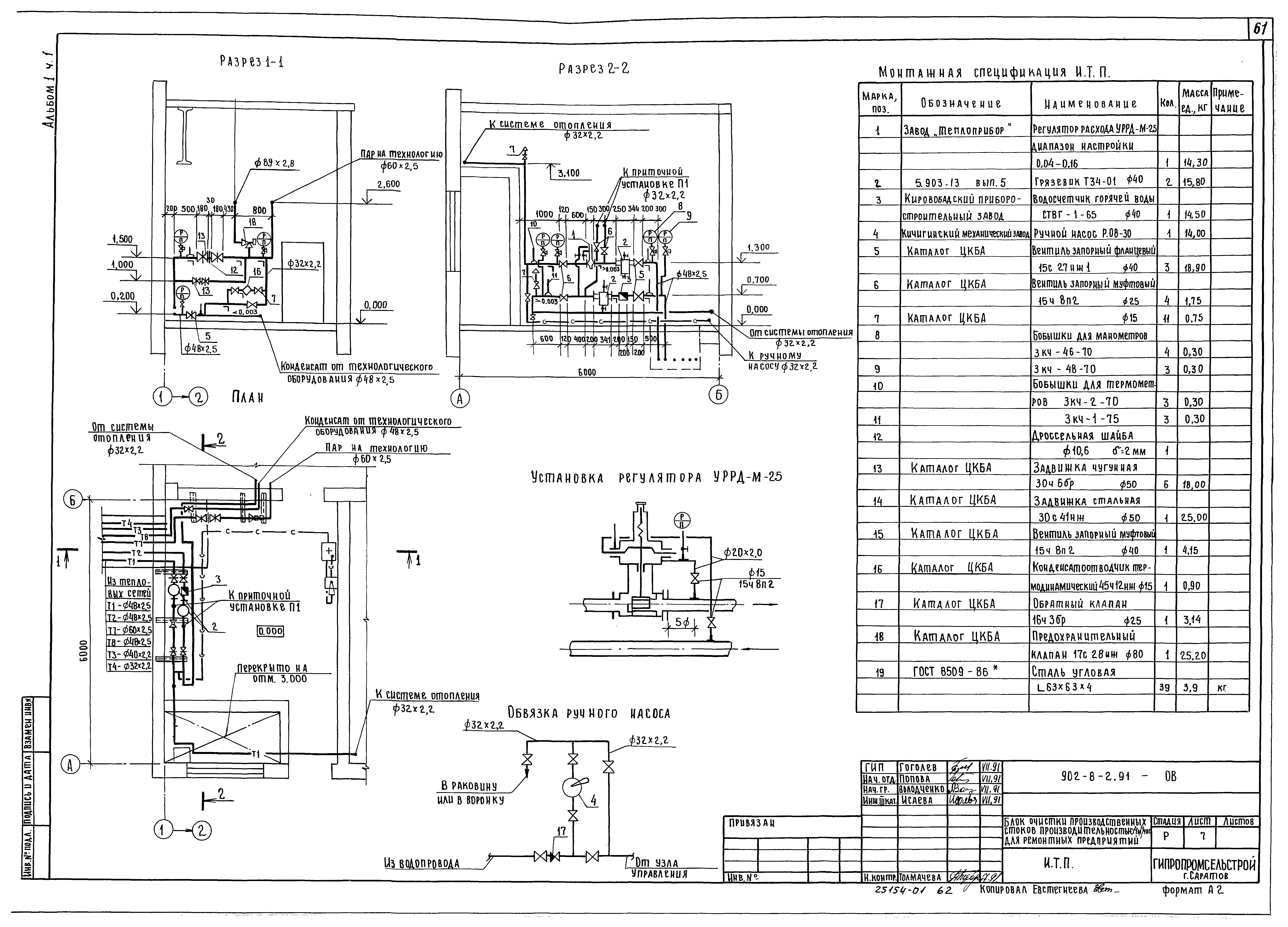
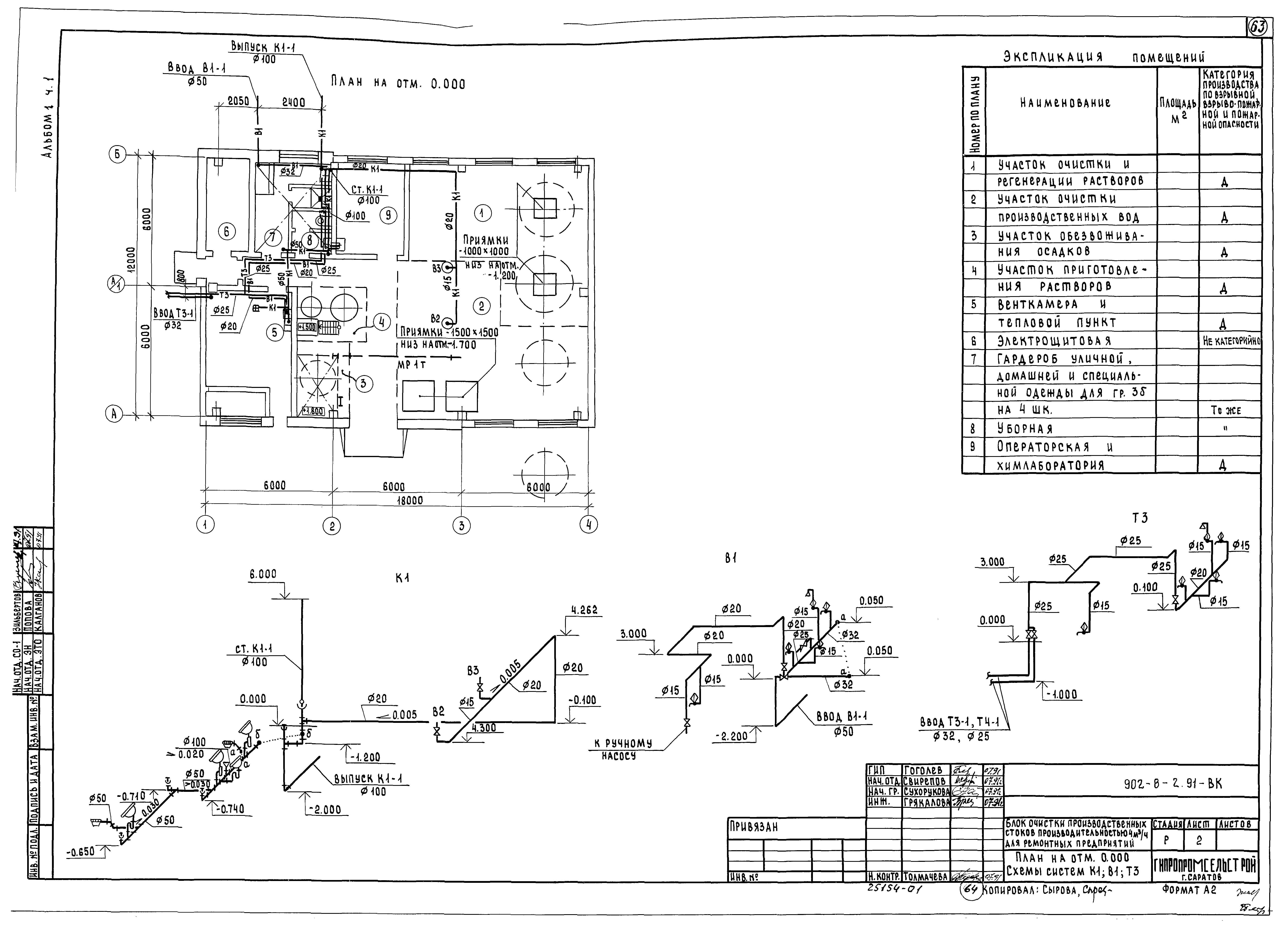
| Оглавление: | ТП 902-8-2.91 Содержание альбома ТП 902-8-2.91 Часть 1 ТП 902-8-2.91-ПЗ-1-5 Пояснительная записка ТП 902-8-2.91-ТХ Технология производства ТП 902-8-2.91-ТХ-1 Общие данные (начало) ТП 902-8-2.91-ТХ-2-5 Общие данные (продолжение) ТП 902-8-2.91-ТХ-6 Общие данные (окончание) ТП 902-8-2.91-ТХ-7 Схема гидравлическая принципиальная ТП 902-8-2.91-ТХ-8 План на отм. 0.000 ТП 902-8-2.91-ТХ-9 Схема технологических трубопроводов ТП 902-8-2.91-ТХ-10 Разрезы 1-1; 3-3; 5-5 ТП 902-8-2.91-ТХ-11 Разрезы 2-2; 4-4; 6-6 ТП 902-8-2.91-ТХН-1 Емкость передвижная. Чертеж общего вида ТП 902-8-2.91-ТХН-2 Бак осадка. Поддон под фильтр-транспортер. Чертеж общего вида ТП 902-8-2.91-ТХН-3 Общие виды М324-СД;МХ44-2, установки ОМ-22627, аппарата типа "Флорекс" ТП 902-8-2.91-ТК ТК Технологические коммуникации ТП 902-8-2.91-ТК-1 Общие данные (начало) ТП 902-8-2.91-ТК-2 Общие данные (окончание). План на отм. 0.000 ТП 902-8-2.91-ТК-3 Схемы систем снабжения сжатым воздухом и технологического пароснабжения ТП 902-8-2.91-АС Архитектурно-строительные решения ТП 902-8-2.91-АС-1 Общие данные (начало) ТП 902-8-2.91-АС-2 Общие данные (продолжение) ТП 902-8-2.91-АС-3 Общие данные (окончание) ТП 902-8-2.91-АС-4 План кровли. Узлы А,Б ТП 902-8-2.91-АС-5 Фасады 1-4; 4-1; Б-А, А-Б ТП 902-8-2.91-АС-6 План на отм. 0.000. Фрагмент 1. Схема расположения закладных изделий для крепления рамы ворот. Узел А ТП 902-8-2.91-АС-7 Разрезы 1-1÷4-4. Узлы 1-5. Вид А-А ТП 902-8-2.91-АС-8 Схема установки анкеров для крепления козырька над входом. Узлы 6-9 ТП 902-8-2.91-АС-9 Схемы заполнения оконных проемов ОК1-ОК3 ТП 902-8-2.91-АС-10 План полов. Схемы расположения подвесного потолка, отверстий ТП 902-8-2.91-АС-11 Схема расположения элементов фундаментов ТП 902-8-2.91-АС-12 Схема расположения элементов фундаментов. Узлы 1-3. Сечения 1-1÷6-6 ТП 902-8-2.91-АС-13 Фундаменты ФМ1-ФМ3. Узел использования конструкций в качестве заземления ТП 902-8-2.91-АС-14 Фундамент ФМ1 ТП 902-8-2.91-АС-15 Схема расположения элементов подземного хозяйства. Приямки 1,2,3. Канал 1. ФО1-ФО4 ТП 902-8-2.91-АС-16 Фундаменты под оборудование ФО5,ФО6 ТП 902-8-2.91-АС-17 Фундаменты под оборудование ФО7 ТП 902-8-2.91-АС-18 Схема расположения колонн, балок и плит покрытия ТП 902-8-2.91-АС-19 Монолитный участок покрытия. Схемы расположения арматурных сеток и козырьки входа. Вентшахта ТП 902-8-2.91-АС-20 Схемы расположения стеновых панелей крепления карнизной панели и подкарнизной ТП 902-8-2.91-АС-21 Схема расположения стальных стоек и насадок торцевого фахверка ТП 902-8-2.91-КМ Конструкции металлические ТП 902-8-2.91-КМ-1 Общие данные ТП 902-8-2.91-КМ-2 Техническая спецификация металла (начало) ТП 902-8-2.91-КМ-3 Техническая спецификация металла (окончание) ТП 902-8-2.91-КМ-4 Техническая спецификация металла на лестницы (начало) ТП 902-8-2.91-КМ-5 Техническая спецификация металла на лестницы (окончание) ТП 902-8-2.91-КМ-6 Схемы расположения элементов монорельса, балок и стойки под бак для осадка, стоек под емкости ТП 902-8-2.91-КМ-7 Узлы 1-9 ТП 902-8-2.91-КМ-8 Схемы расположения прогонов и листов настила ТП 902-8-2.91-КМ-9 Лестницы Л1 и Л2 ТП 902-8-2.91-ОВ Отопление и вентиляция ТП 902-8-2.91-ОВ-1 Общие данные (начало) ТП 902-8-2.91-ОВ-2 Общие данные (окончание). Местные отсосы от технологического оборудования ТП 902-8-2.91-ОВ-3 План на отм. 0.000. Разрез 1-1 ТП 902-8-2.91-ОВ-4 План кровли. Схемы систем П1,В1-В3, ВЕ1-ВЕ3 ТП 902-8-2.91-ОВ-5 Установка системы П1 ТП 902-8-2.91-ОВ-6 Схема системы отопления. Схема системы теплоснабжения установки П1. Узел схемы системы теплоснабжения установки П1 ТП 902-8-2.91-ОВ-7 И.Т.И ТП 902-8-2.91-ВК Внутренние водопровод и канализация ТП 902-8-2.91-ВК-1 Общие данные ТП 902-8-2.91-ВК-2 План на отм. 0.000. Схемы систем К1,В1,Т3 |
| Разработан: | Гипропромсельстрой |
| Утверждён: | 13.11.1991 Главагропромнаучпроект Минсельхозпрода СССР (Glavagropromnauchproject, USSR Minselkhozprod 073-3/188) |































































