Скачать Типовой проект 902-8-3.91 Альбом 1. Часть 2. Силовое электрооборудование. Внутреннее электрическое освещение. Автоматизация внутреннего водопровода и канализации. Автоматизация систем отопления и вентиляции. Чертежи заданий заводам-изготовителямДата актуализации: 01.01.2021
|
| Обозначение: | Типовой проект 902-8-3.91 |
| Обозначение англ: | 902-8-3.91 |
| Статус: | не определен законодательством |
| Название рус.: | Альбом 1. Часть 2. Силовое электрооборудование. Внутреннее электрическое освещение. Автоматизация внутреннего водопровода и канализации. Автоматизация систем отопления и вентиляции. Чертежи заданий заводам-изготовителям |
| Дата добавления в базу: | 01.09.2013 |
| Дата актуализации: | 01.01.2021 |
| Дата введения: | 18.11.1991 |
| Дата окончания срока действия: | 30.06.2003 |
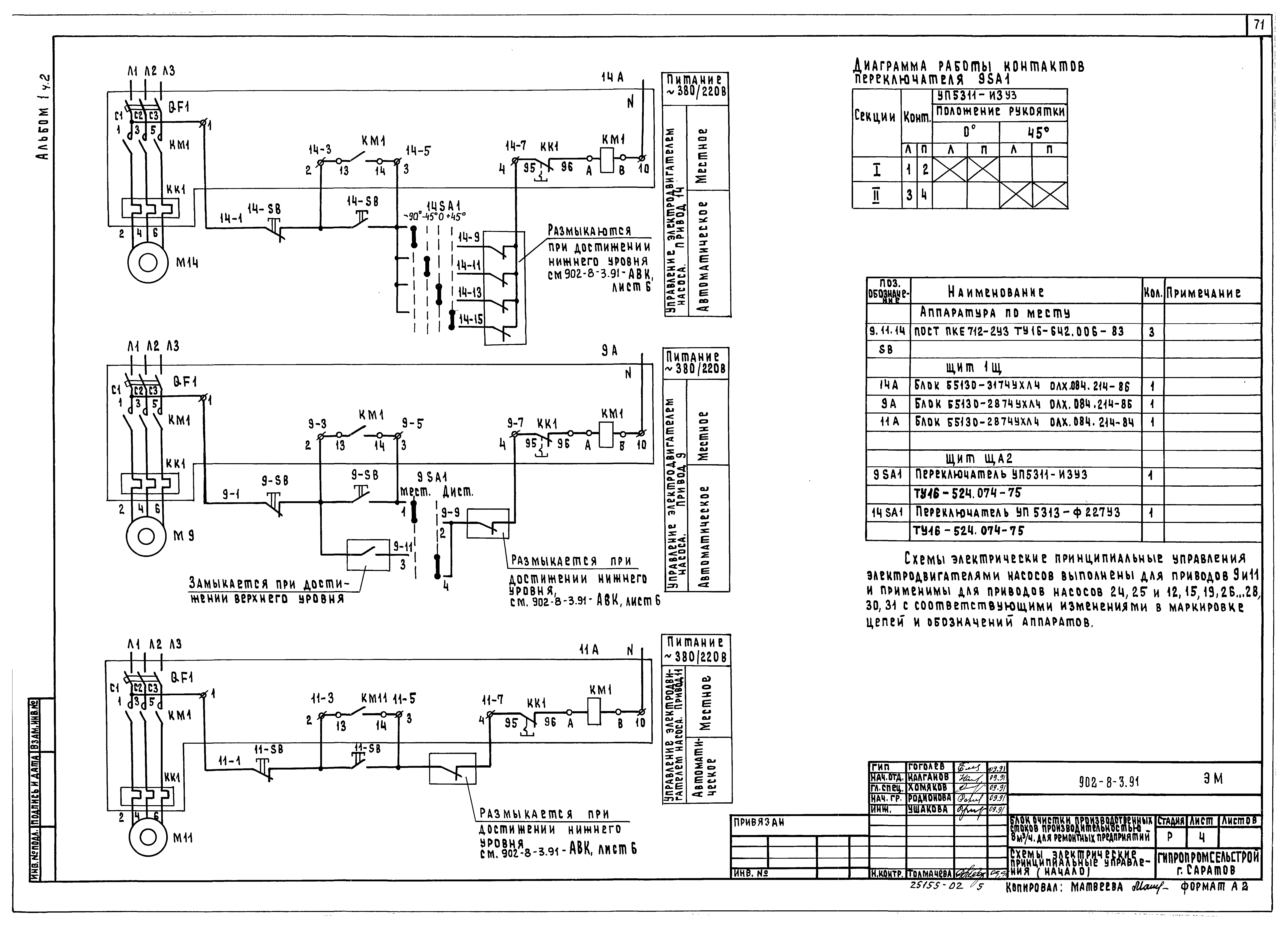
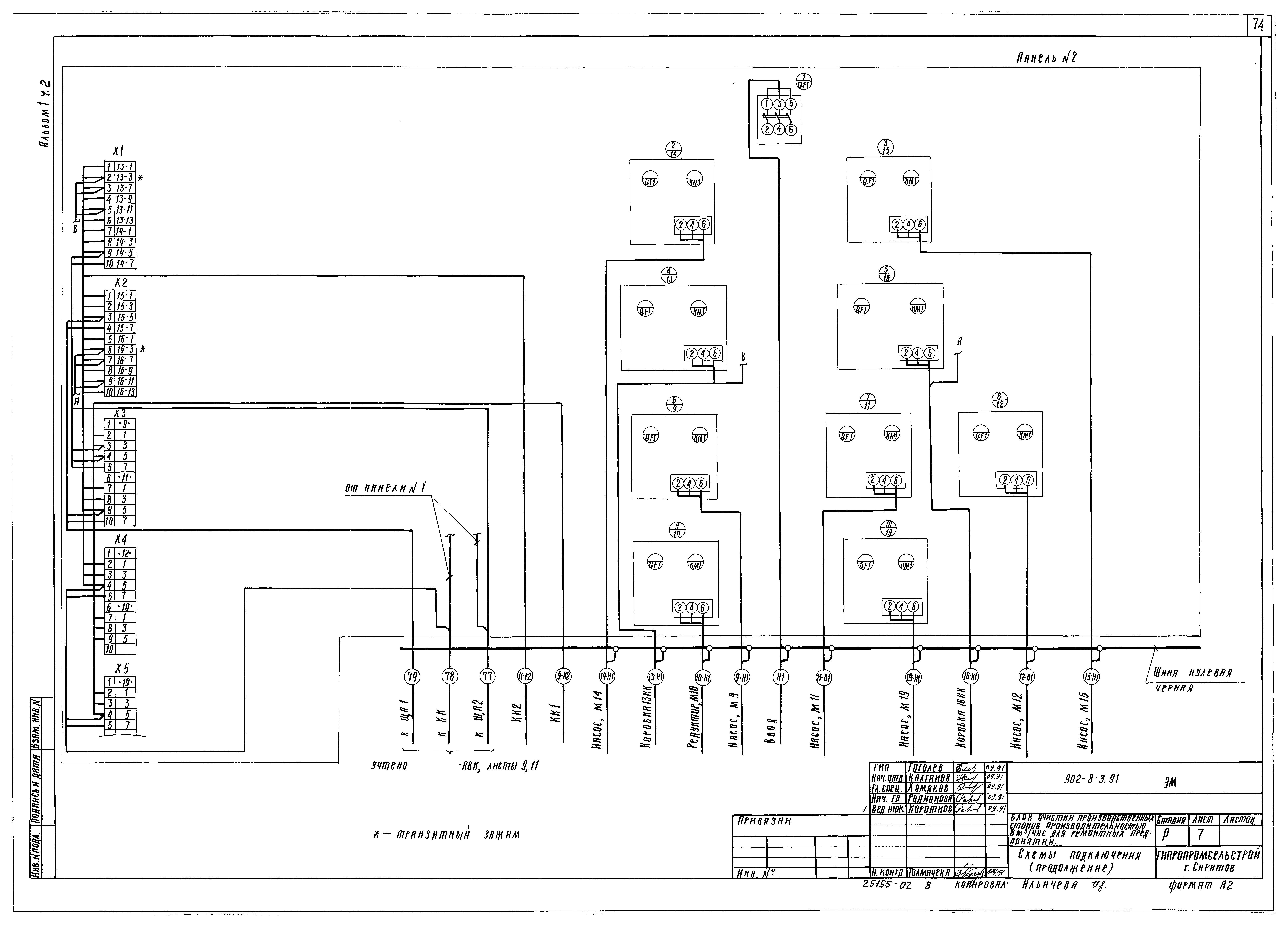
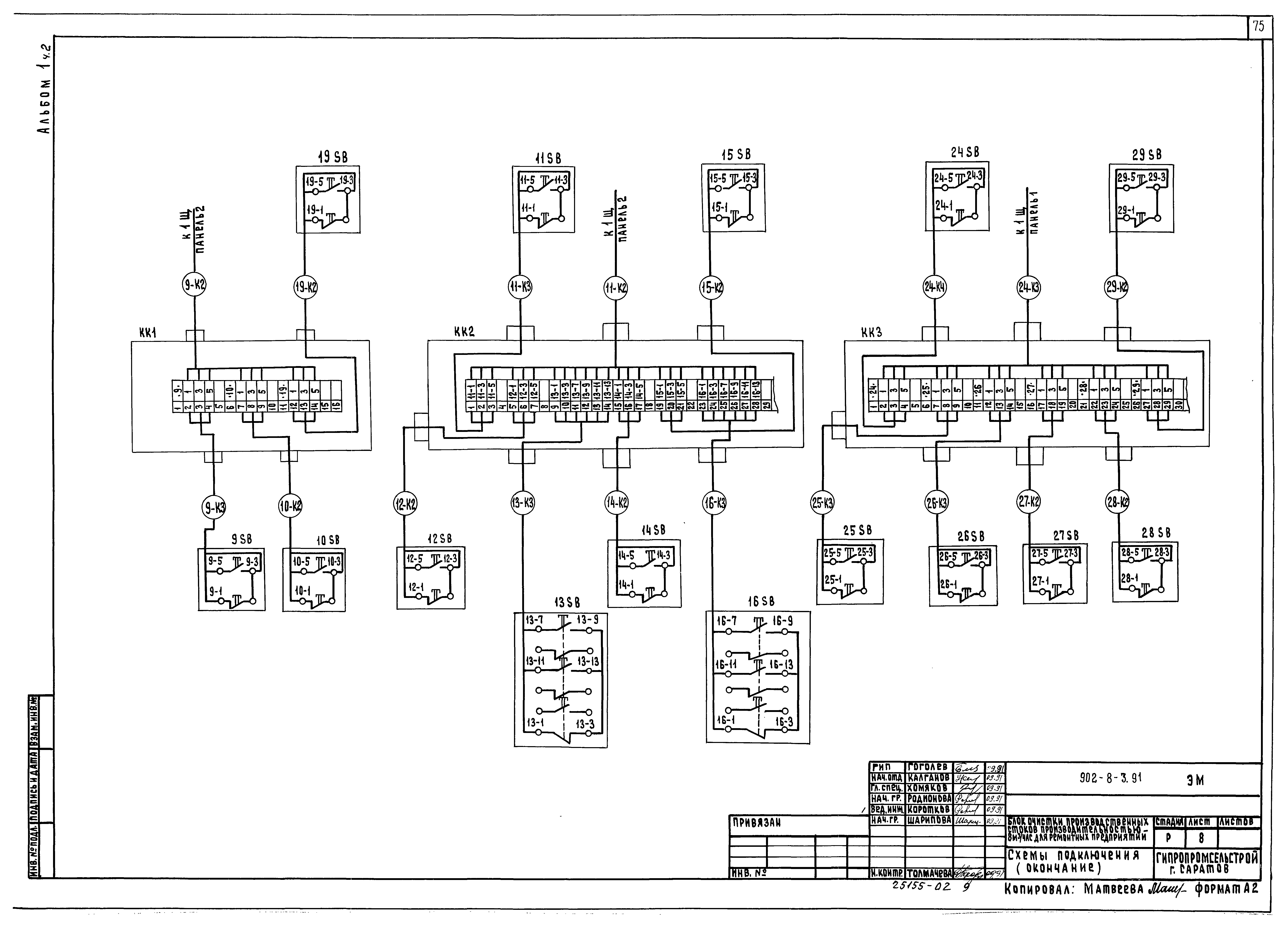
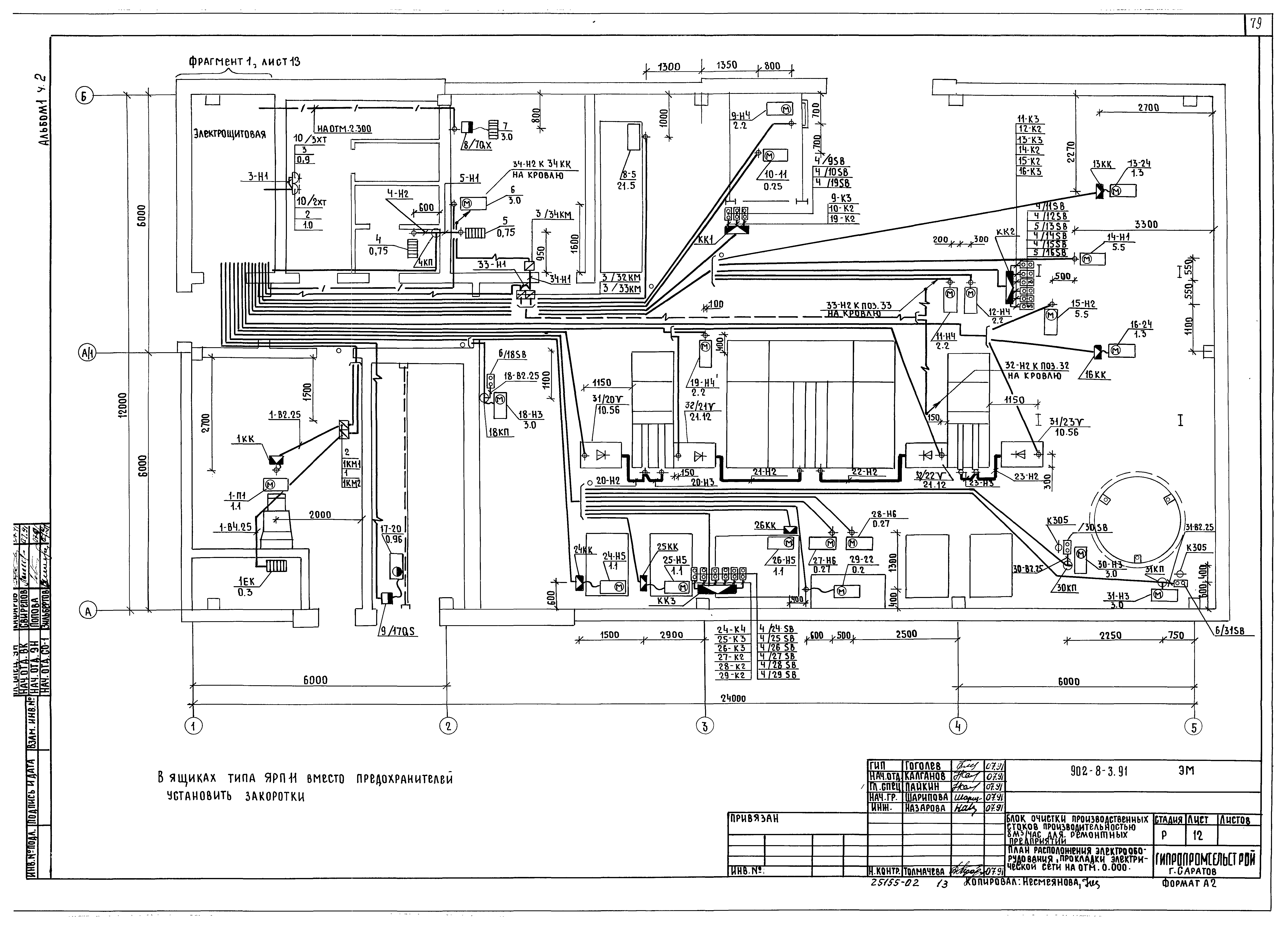
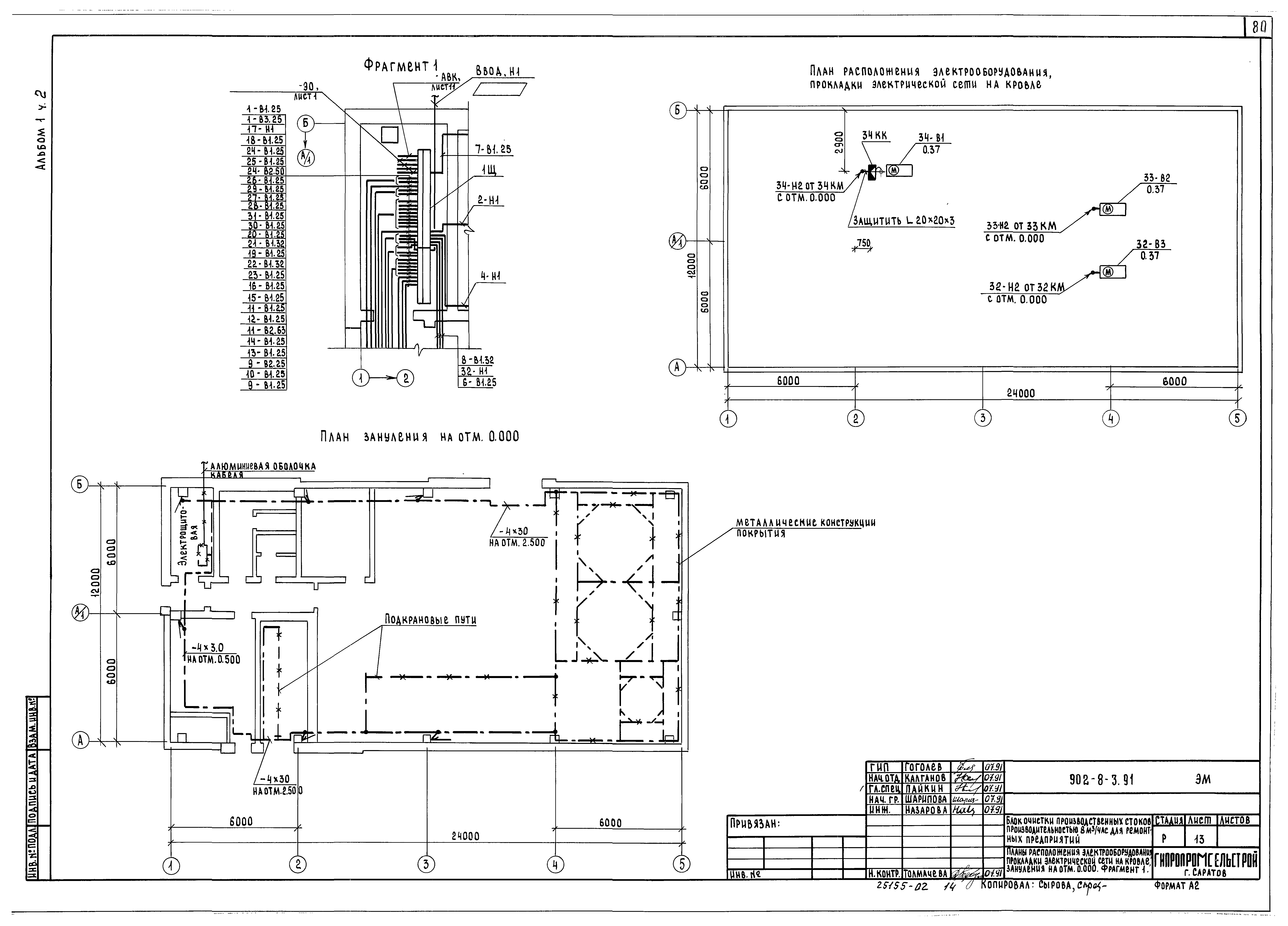
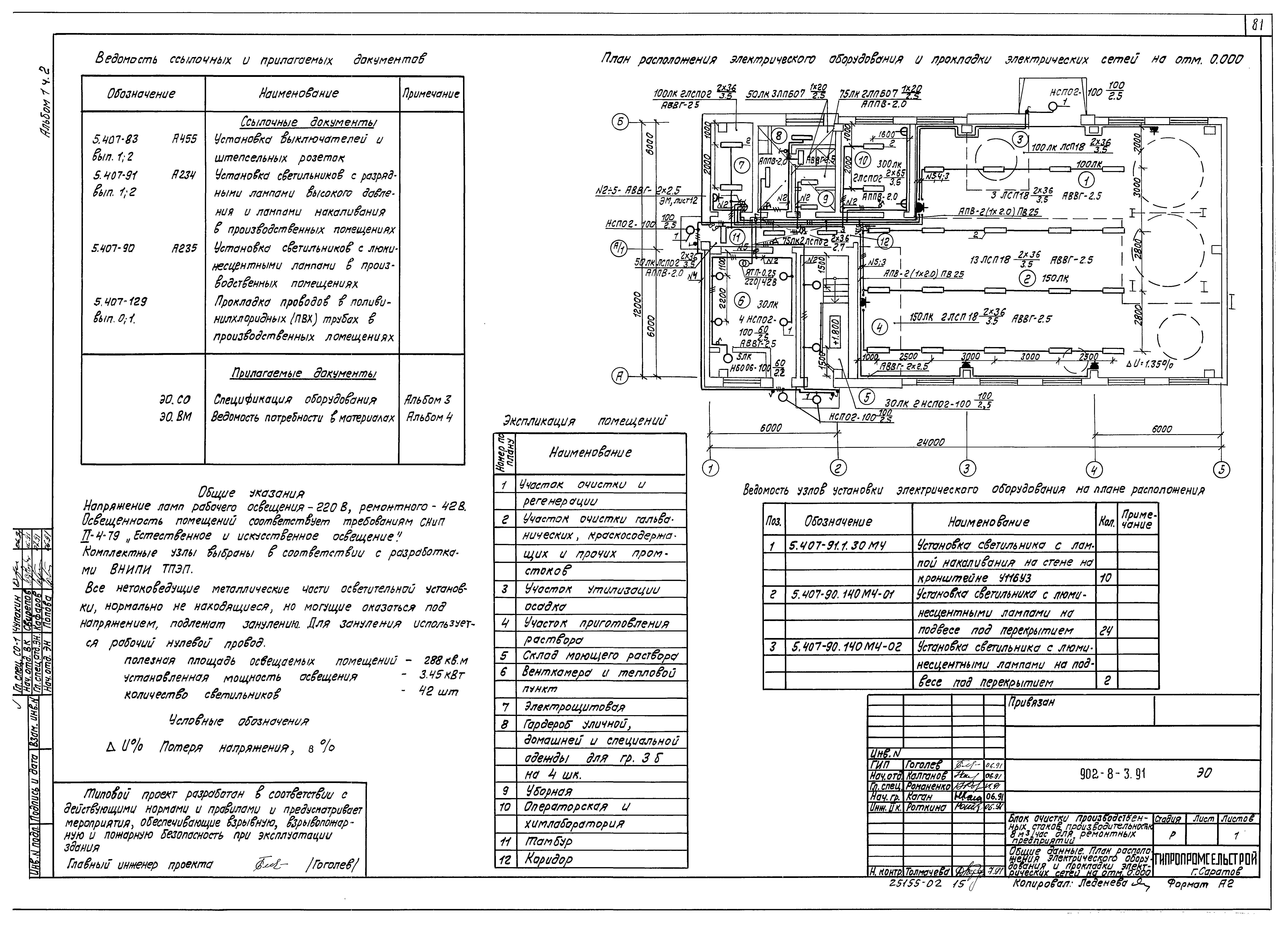
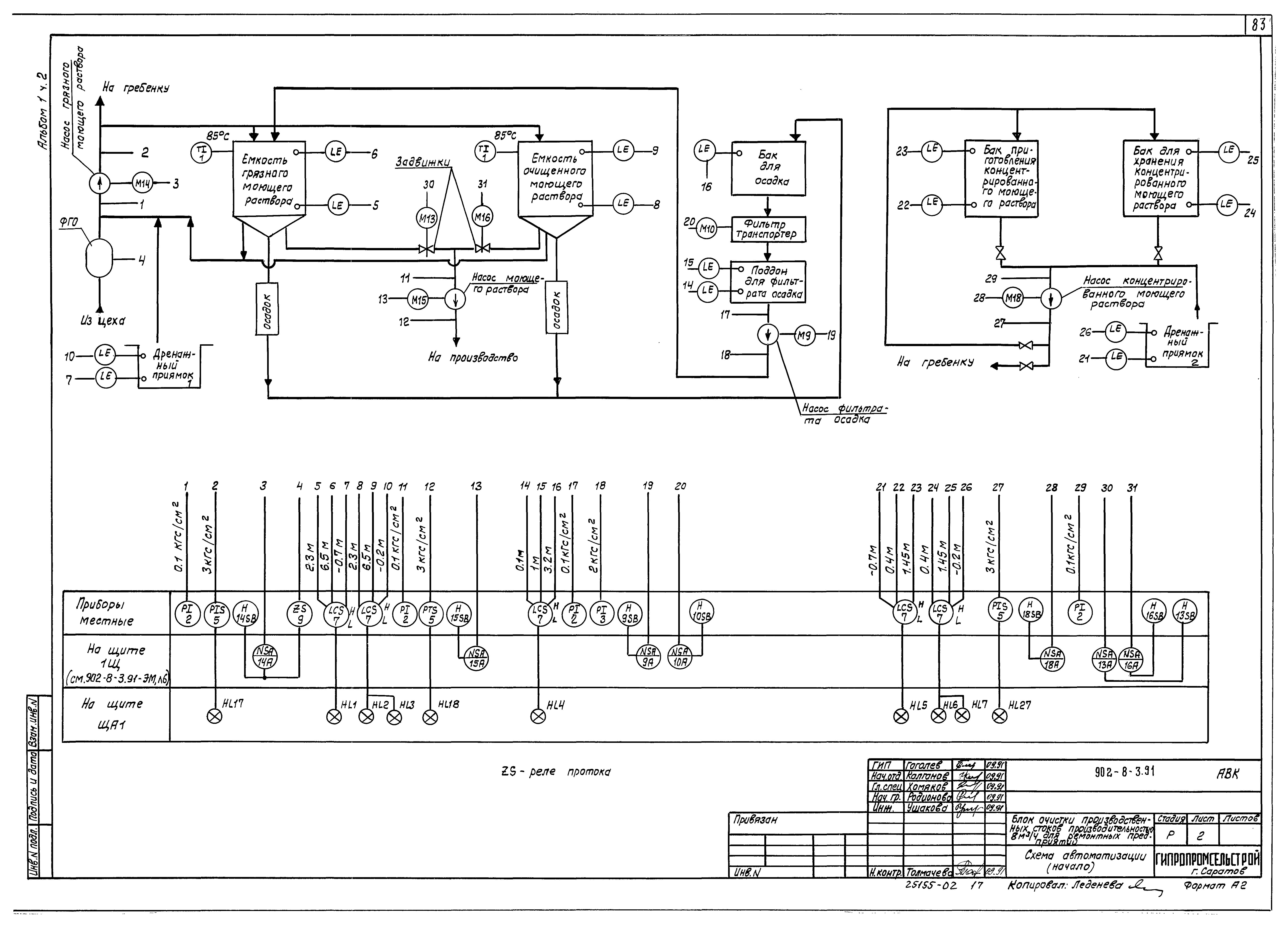
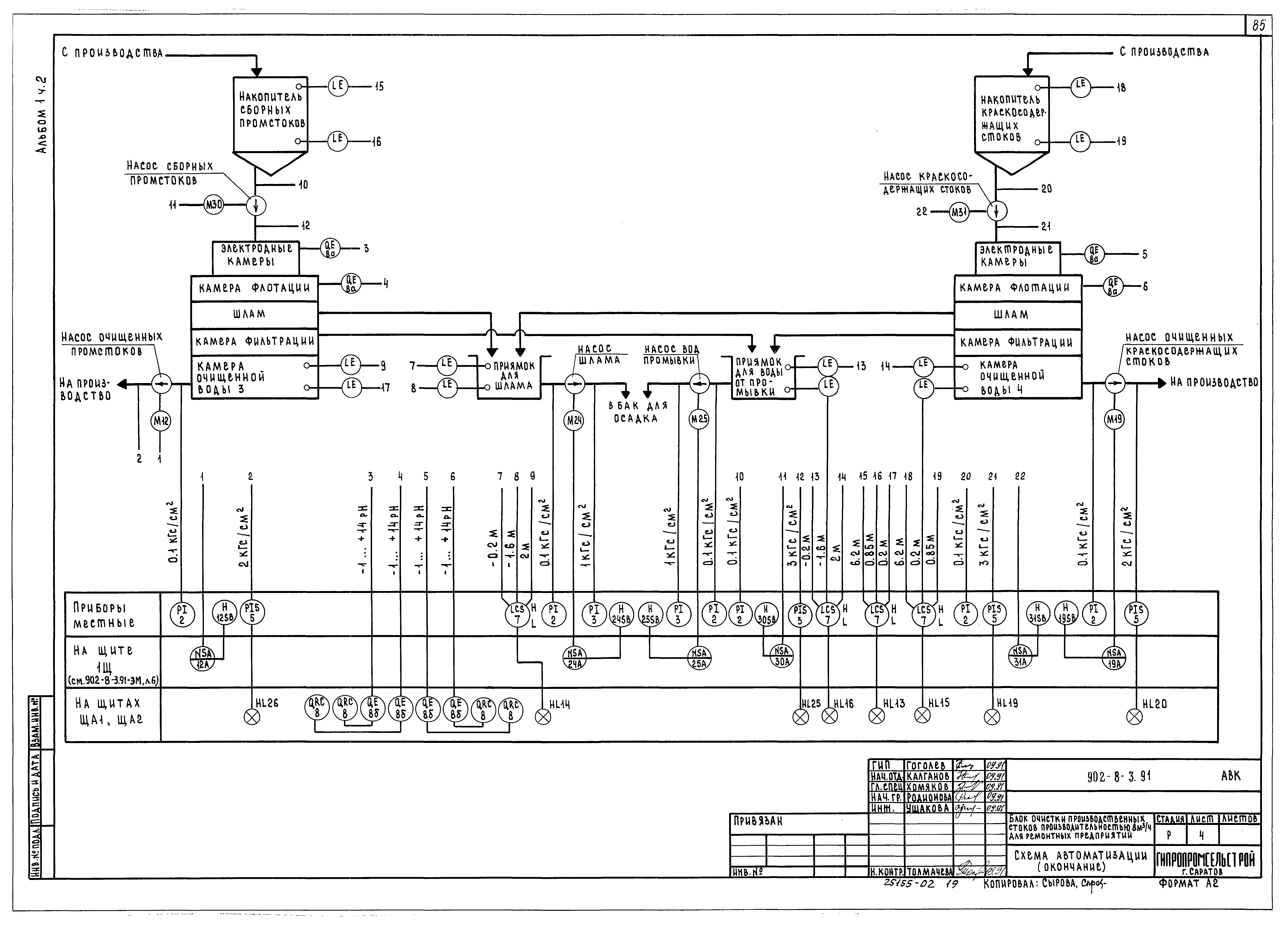
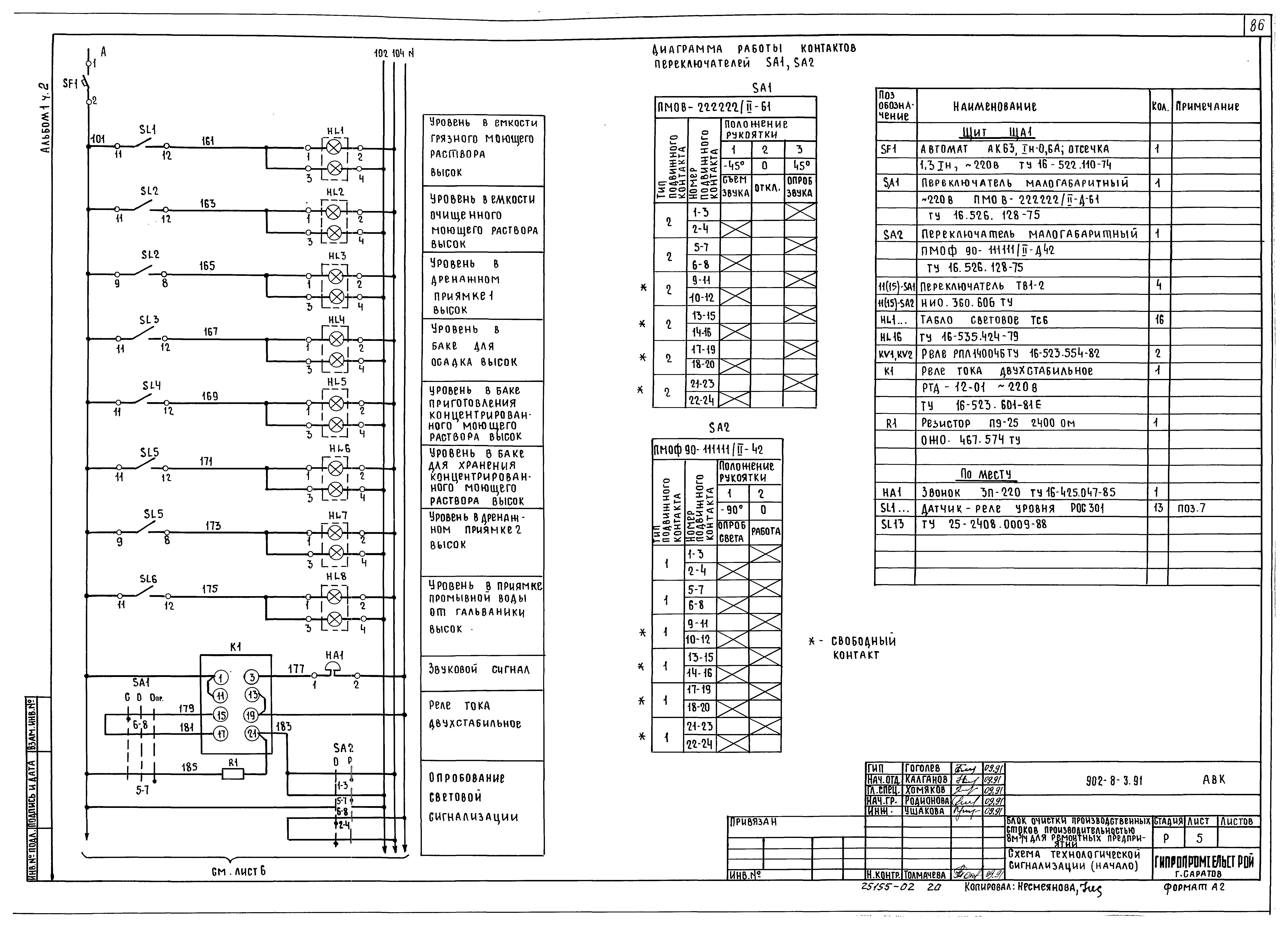
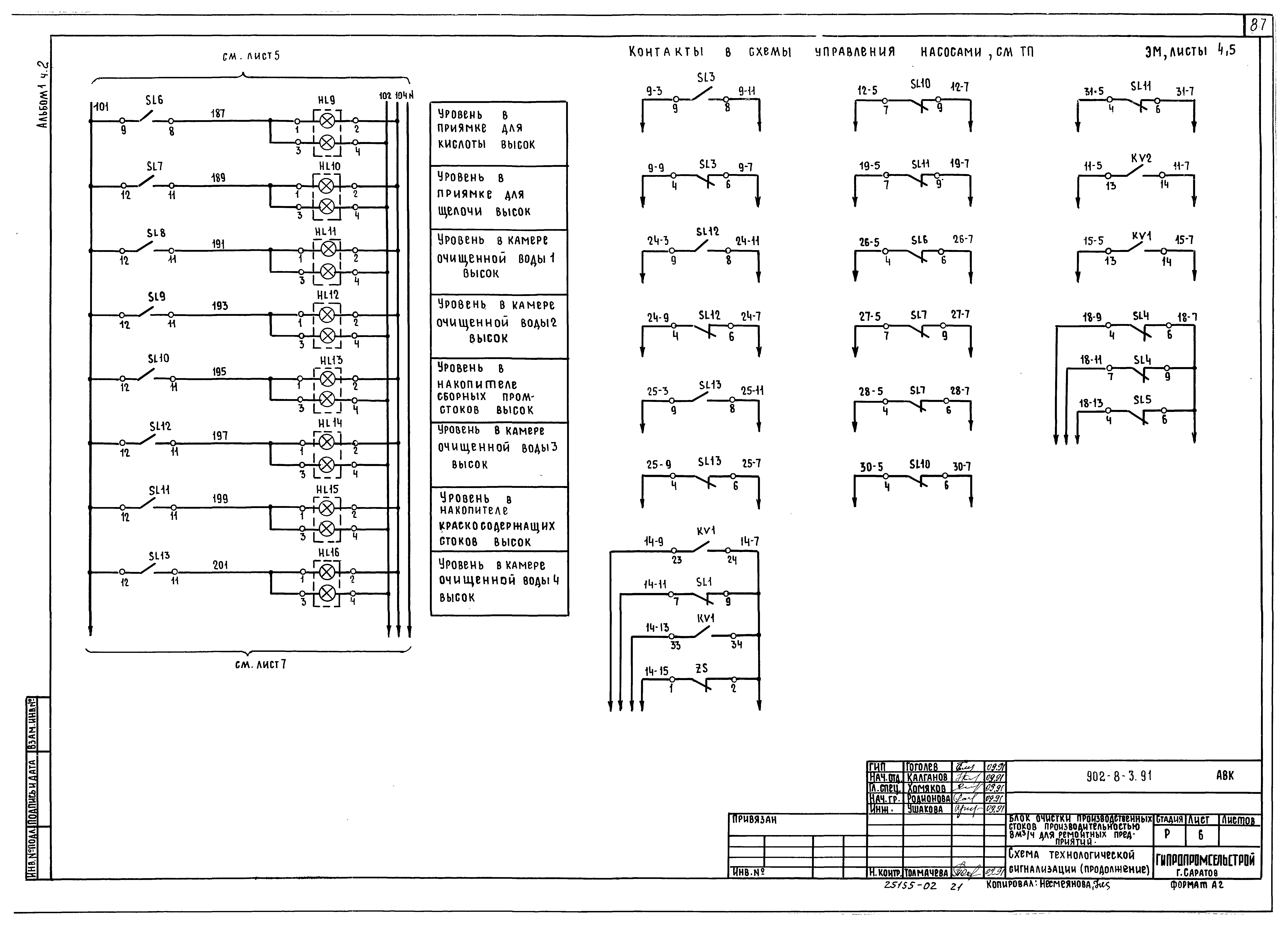
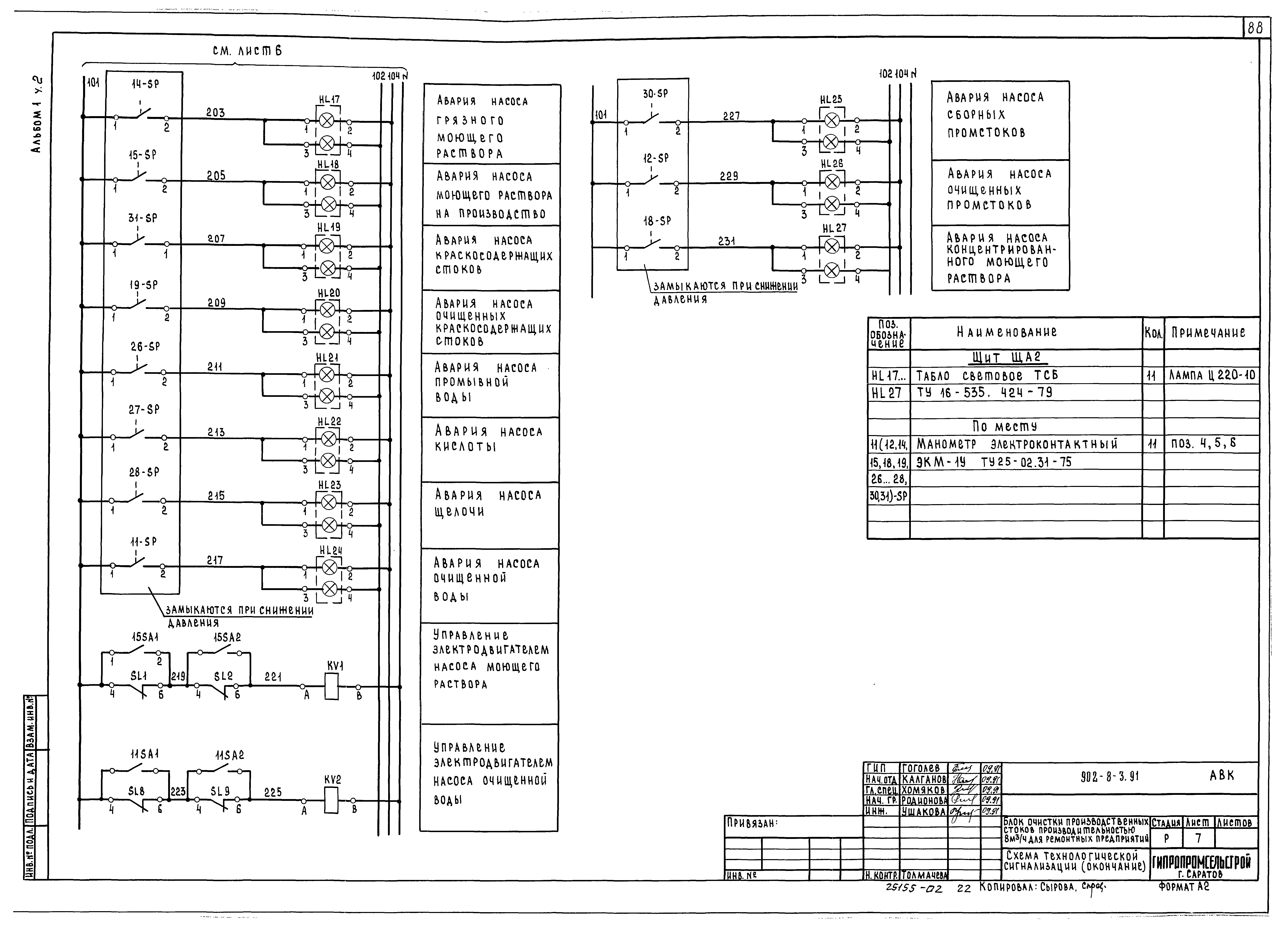
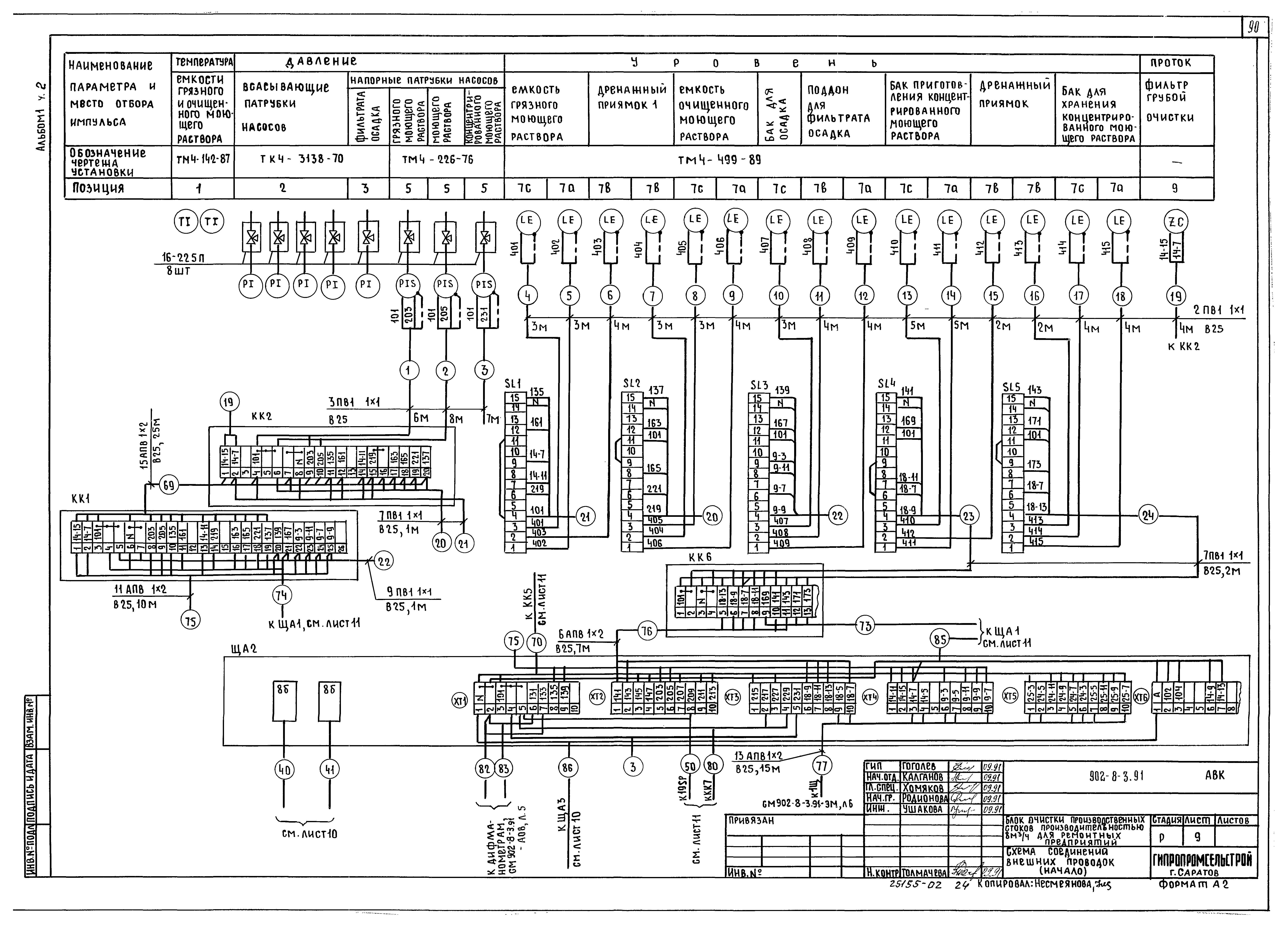
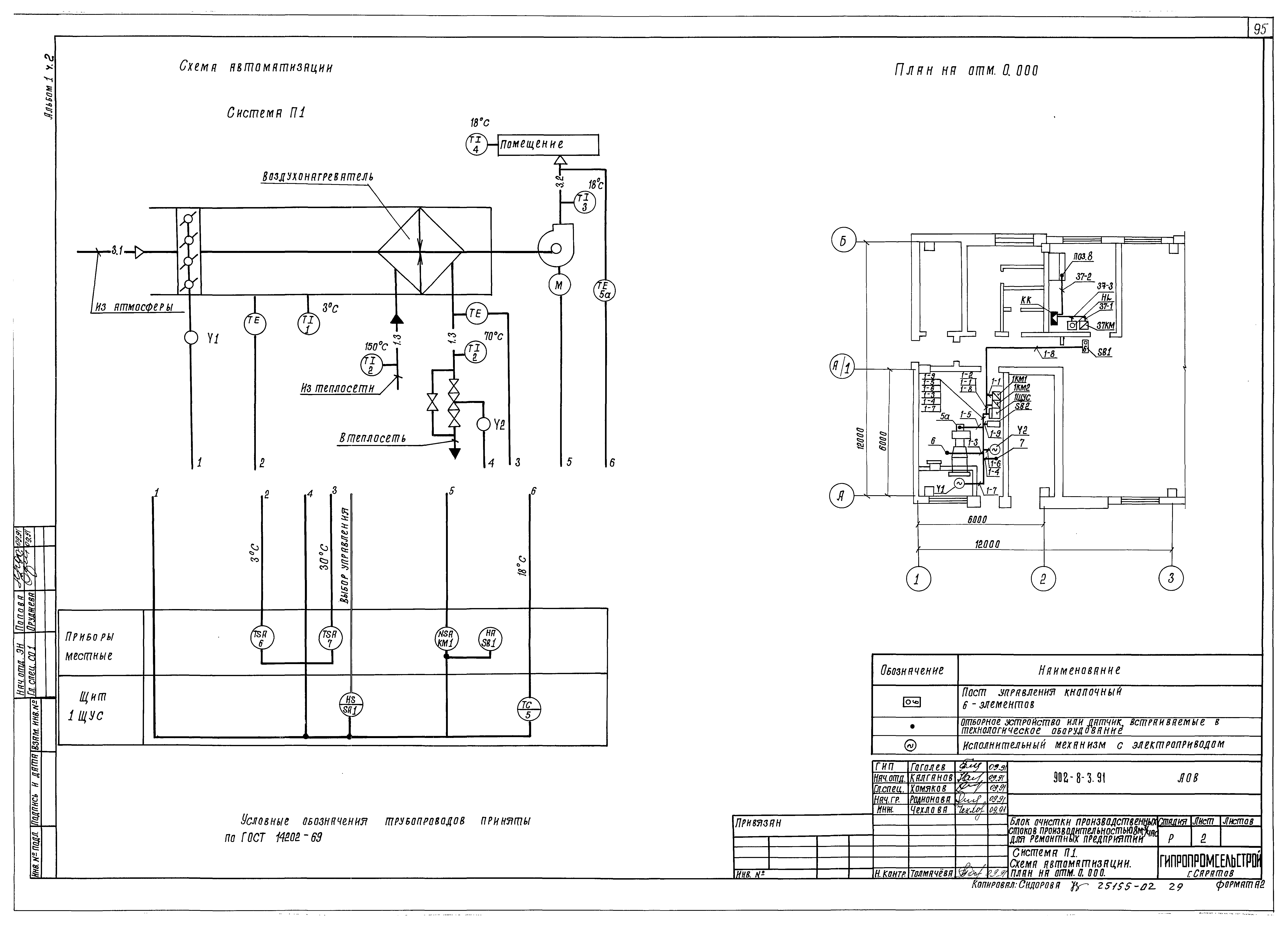
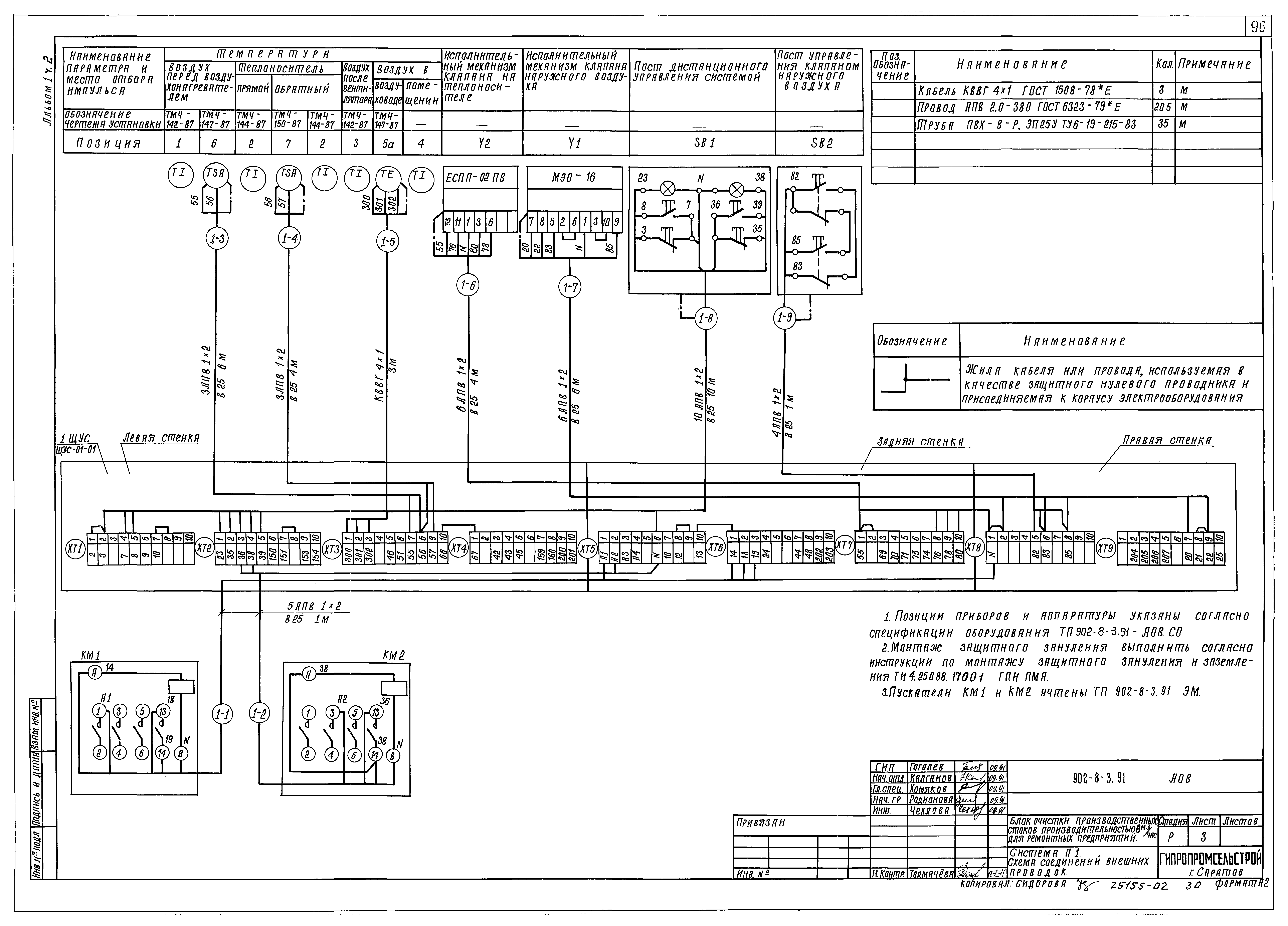
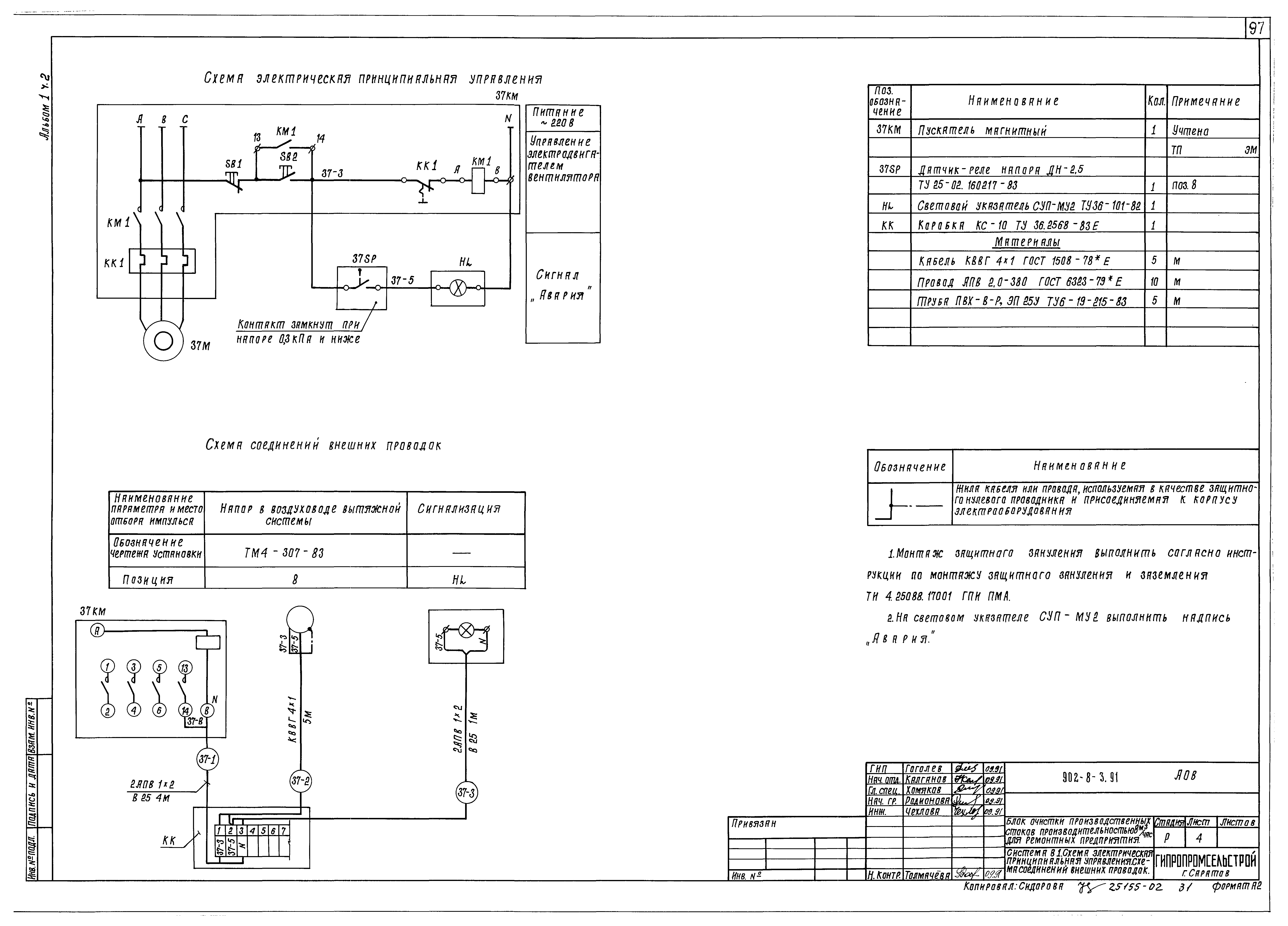
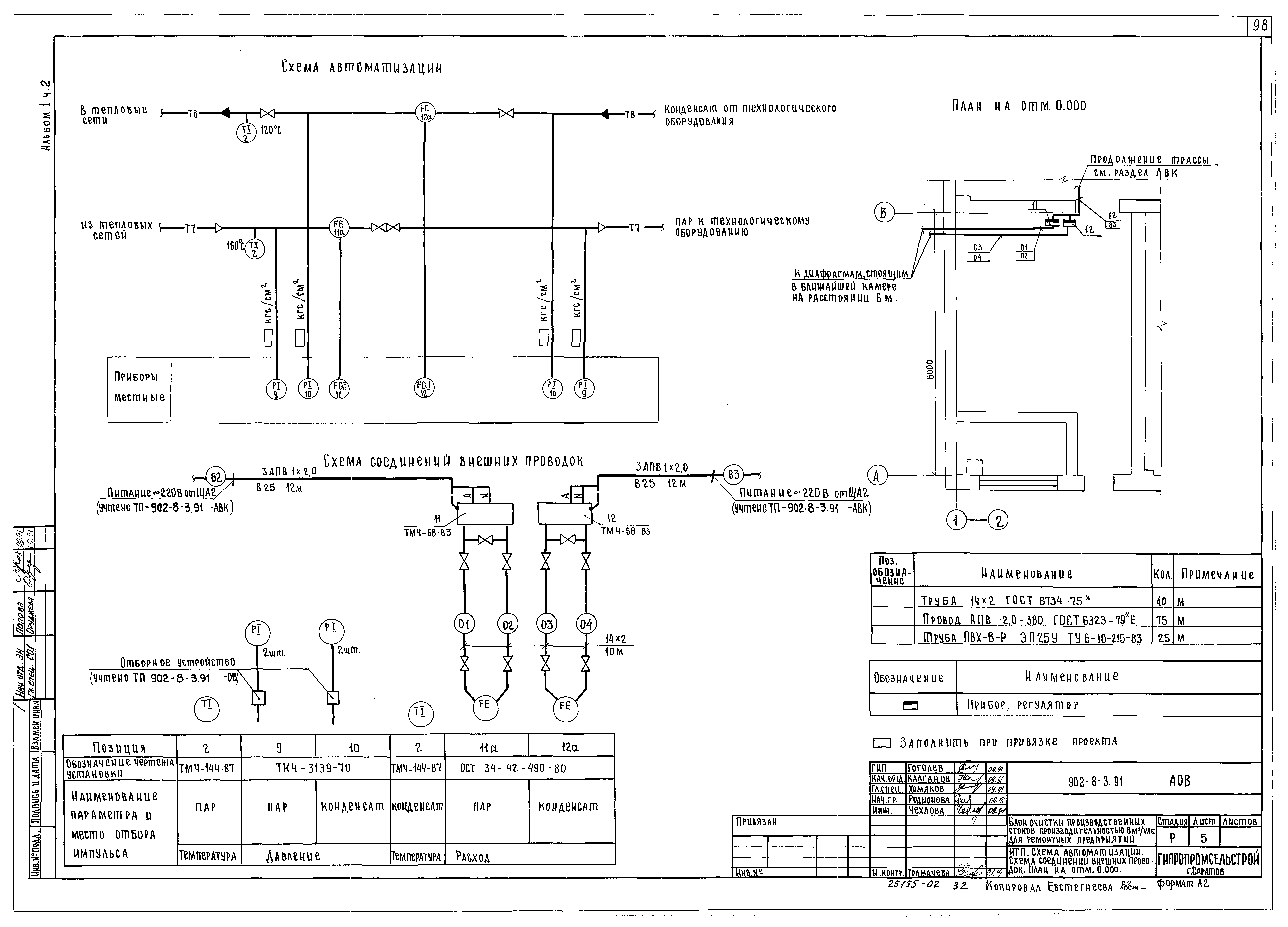
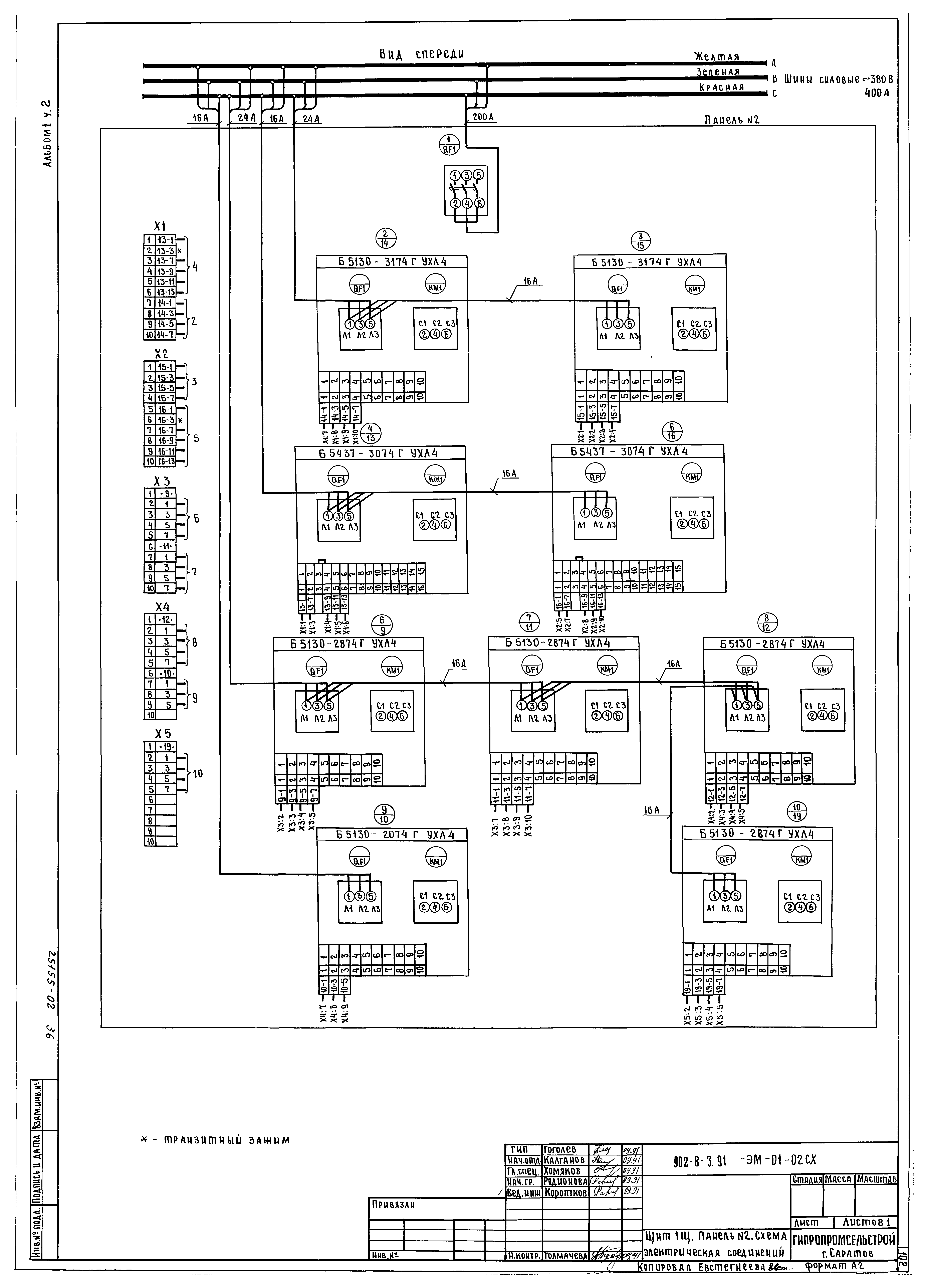
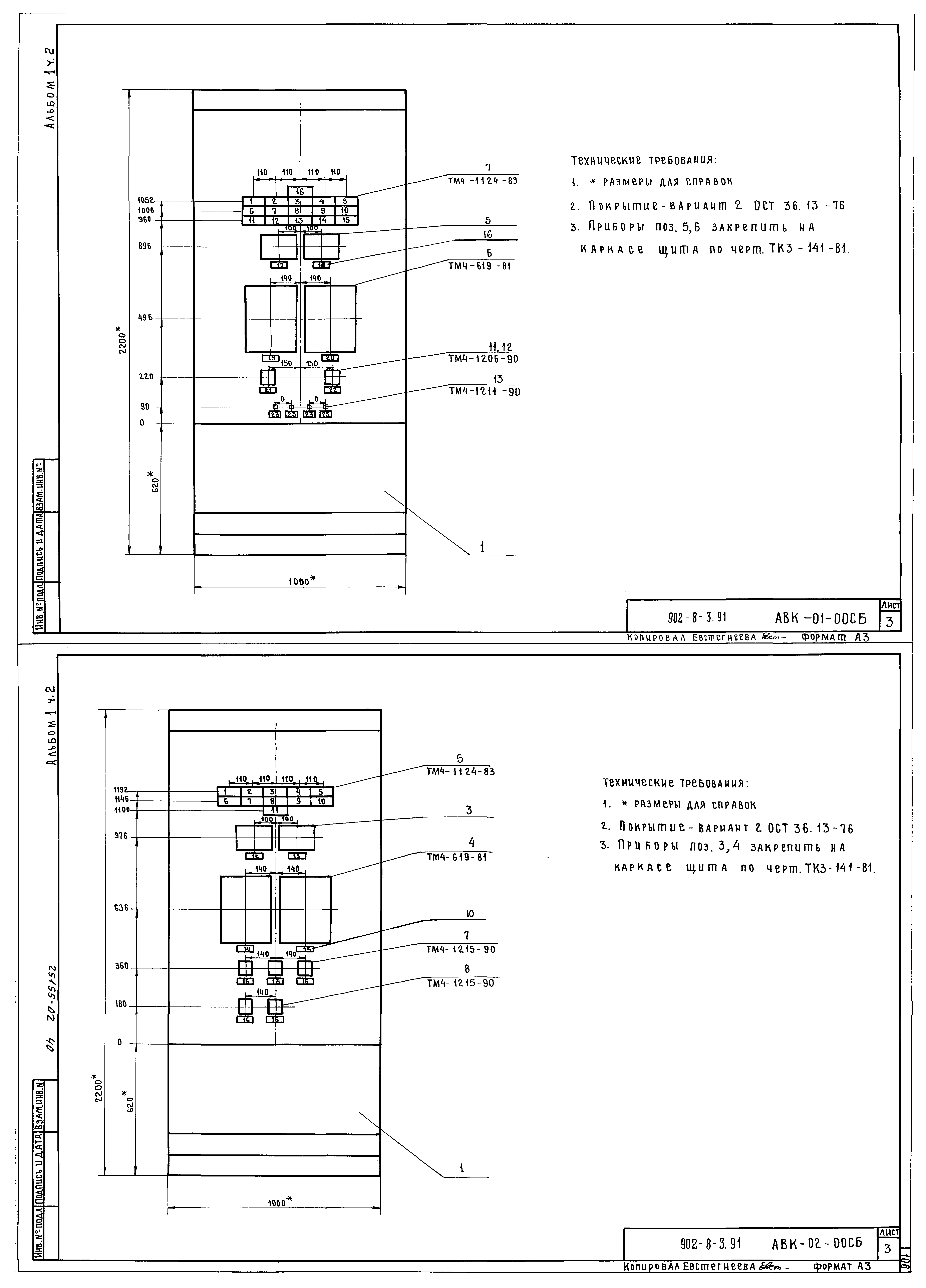
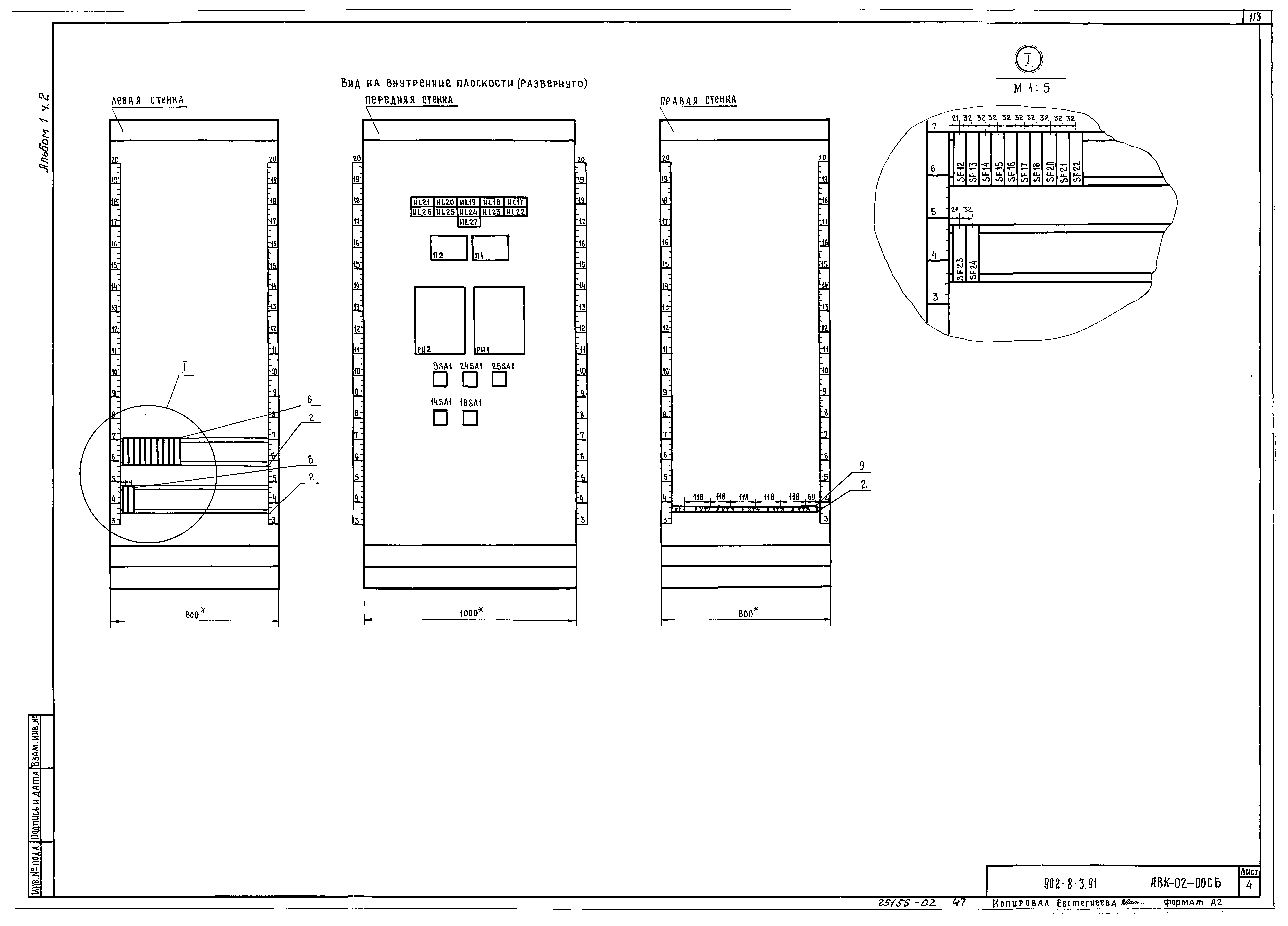
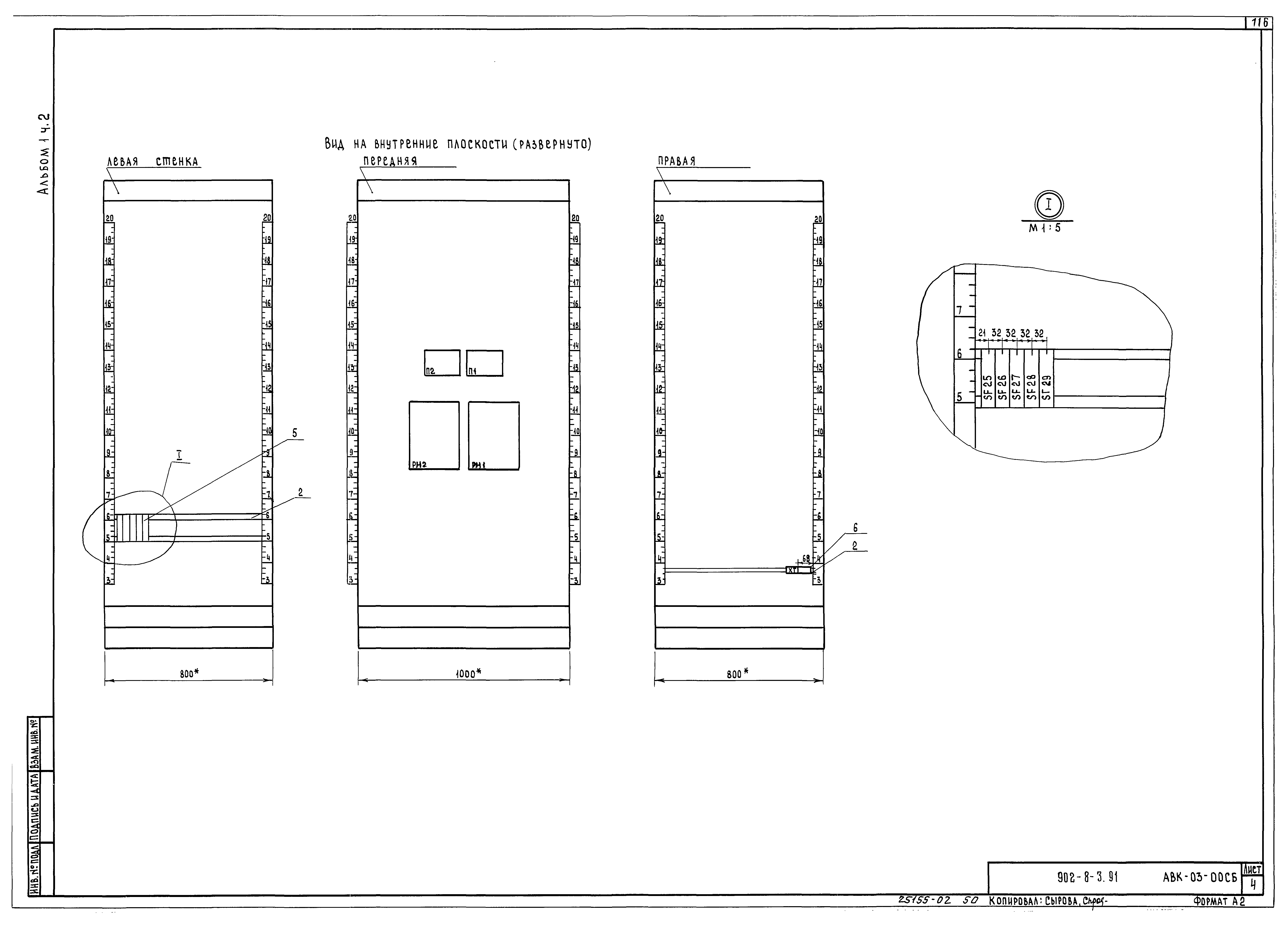
| Оглавление: | ТП 902-8.3.91-ЭМ-1 Общие данные (начало) ТП 902-8.3.91-ЭМ-2 Общие данные (окончание). Принципиальная схема распределительной сети (начало) ТП 902-8.3.91-ЭМ-3 Принципиальная схема распределительной сети (начало) ТП 902-8.3.91-ЭМ-4 Схемы электрические принципиальные управления (начало) ТП 902-8.3.91-ЭМ-5 Схемы электрические принципиальные управления (окончание) ТП 902-8.3.91-ЭМ-6 Схемы подключения (начало) ТП 902-8.3.91-ЭМ-7 Схемы подключения (продолжение) ТП 902-8.3.91-ЭМ-8 Схемы подключения (окончание) ТП 902-8.3.91-ЭМ-9 Кабельнотрубный журнал (начало) ТП 902-8.3.91-ЭМ-10 Кабельнотрубный журнал (продолжение) ТП 902-8.3.91-ЭМ-11 Кабельнотрубный журнал (окончание) ТП 902-8.3.91-ЭМ-12 План расположения электрооборудования, прокладки электрической сети на отм. 0.000 ТП 902-8.3.91-ЭМ-13 Планы расположения электрооборудования, прокладки электрической сети на кровле, зануления на отм. 0.000, фрагмент 1 ТП 902-8.3.91-ЭО Общие данные. План расположения электрического оборудования и прокладки электрических сетей на отм. 0.000 ТП 902-8.3.91-АВК-1 Общие данные ТП 902-8.3.91-АВК-2 Схема автоматизации (начало) ТП 902-8.3.91-АВК-3 Схема автоматизации (продолжение) ТП 902-8.3.91-АВК-4 Схема автоматизации (окончание) ТП 902-8.3.91-АВК-5 Схема технологической сигнализации (начало) ТП 902-8.3.91-АВК-6 Схема технологической сигнализации (продолжение) ТП 902-8.3.91-АВК-7 Схема технологической сигнализации (окончание) ТП 902-8.3.91-АВК-8 Схема питания ТП 902-8.3.91-АВК-9 Схема соединений внешних проводок (начало) ТП 902-8.3.91-АВК-10 Схема соединений внешних проводок (продолжение) ТП 902-8.3.91-АВК-11 Схема соединений внешних проводок (окончание) ТП 902-8.3.91-АВК-12 План расположения на отм. 0.000 ТП 902-8.3.91-АОВ-1 Общие данные ТП 902-8.3.91-АОВ-2 Система П1. Схема автоматизации. План на отм. 0.000 ТП 902-8.3.91-АОВ-3 Система П1. Схема соединений внешних проводок ТП 902-8.3.91-АОВ-4 Система В1. Схема соединений внешних проводок ТП 902-8.3.91-АОВ-5 ИТП. Схема автоматизации. Схема соединений внешних проводок. План на отм. 0.000 ТП 902-8.3.91-ЭМИ.ВБ Ведомость электромонтажных конструкций, подлежащих изготовлению в МЭЗ ТП 902-8.3.91-ЭМИ.ВА Ведомость изделий и материалов для изготовления электромонтажных конструкций в МЭЗ ТП 902-8.3.91-ЭМ-01-00 СБ Щит 1Щ. Чертеж общего вида ТП 902-8.3.91-ЭМ-01-00 Щит 1Щ. Перечень комплектных устройств ТП 902-8.3.91-ЭМ-01-01 СБ Щит 1Щ. Панель № 1. Чертеж общего вида ТП 902-8.3.91-ЭМ-01-02 СБ Щит 1Щ. Панель № 2. Чертеж общего вида ТП 902-8.3.91-ЭМ-01-02 СХ Щит 1 Щ. Панель № 2. Схема электрическая соединений ТП 902-8.3.91-ЭМ-01-01 СХ Щит 1 Щ. Панель № 1. Схема электрическая соединений ТП 902-8.3.91-ЭМ-01-01 Щит 1 Щ. Технические данные аппаратов ТП 902-8.3.91-ЭМ-01-02 Щит 1 Щ. Перечень надписей ТП 902-8.3.91-АВК-01-00 СБ Щит ЩА1. Общий вид ТП 902-8.3.91-АВК-01-002 Щит ЩА1. Таблица подключения ТП 902-8.3.91-АВК-01-001 Щит ЩА1. Таблица соединений ТП 902-8.3.91-АВК-02-001 Щит ЩА2. Таблица соединений ТП 902-8.3.91-АВК-02-002 Щит ЩА2. Таблица соединений ТП 902-8.3.91-АВК-02-00 СБ Щит ЩА2. Общий вид ТП 902-8.3.91-АВК-03-00 СБ Щит ЩА3. Общий вид ТП 902-8.3.91-АВК-03-002 Щит ЩА3. Таблица подключения ТП 902-8.3.91-АВК-03-001 Щит ЩА3. Таблица соединений |
| Разработан: | Гипропромсельстрой |
| Утверждён: | 13.11.1991 Главагропромнаучпроект Минсельхозпрода СССР (Glavagropromnauchproject, USSR Minselkhozprod 073-3/189) |


















































