Скачать Типовой проект 902-2-259 Альбом IV. Блок емкостей. Строительная часть. Монтажные узлы (из ТП 902-2-260)Дата актуализации: 01.01.2021
|
| Обозначение: | Типовой проект 902-2-259 |
| Обозначение англ: | 902-2-259 |
| Статус: | действует |
| Название рус.: | Альбом IV. Блок емкостей. Строительная часть. Монтажные узлы (из ТП 902-2-260) |
| Дата добавления в базу: | 01.09.2013 |
| Дата актуализации: | 01.01.2021 |
| Дата введения: | 29.12.1975 |
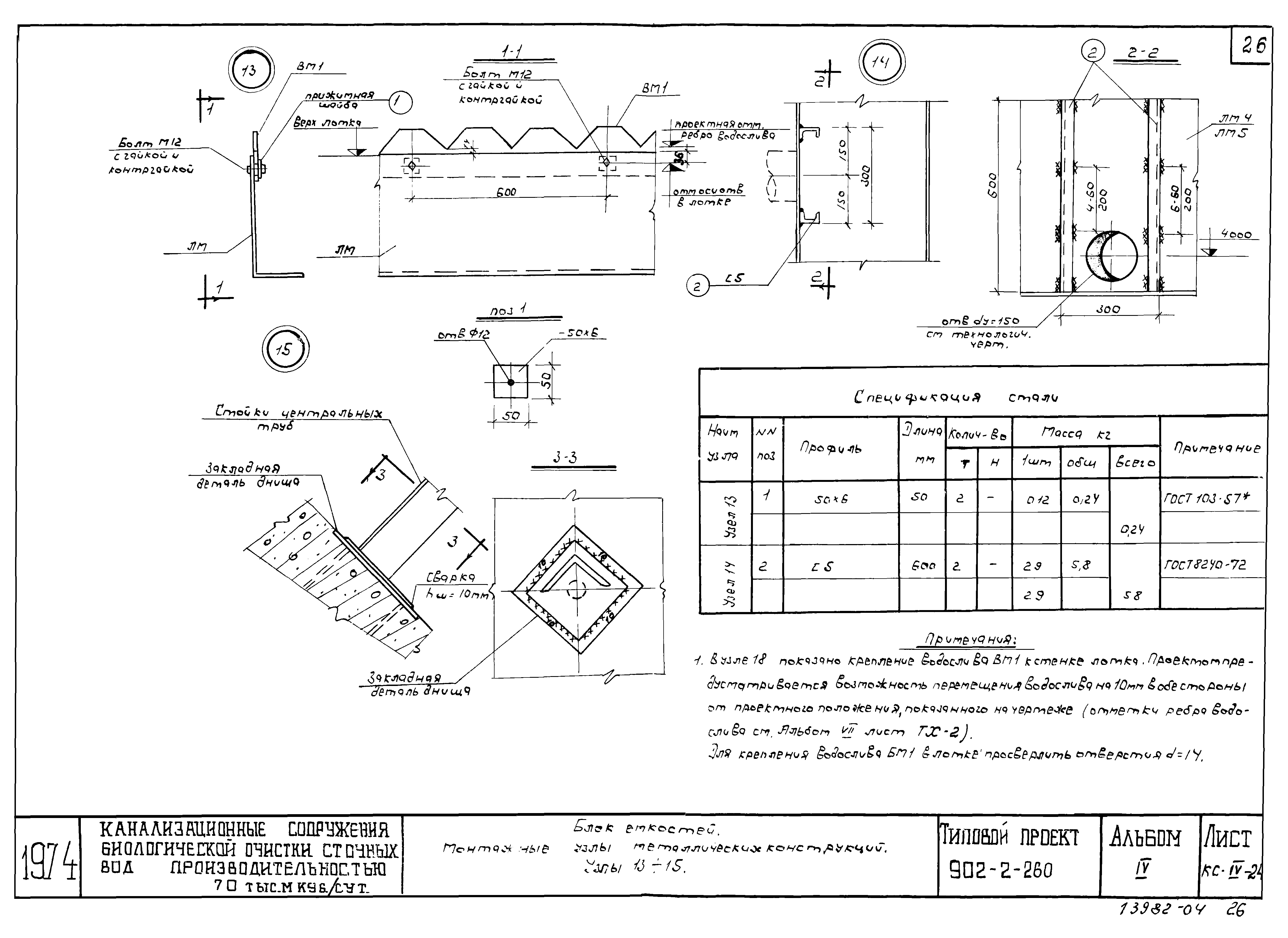
| Оглавление: | ТП 902-2-260-С-1 Содержание альбома ТП 902-2-260-КС-IV-1 Монтажные узлы стен. Узел 1 ТП 902-2-260-КС-IV-2 Монтажные узлы стен. Узел 2 ТП 902-2-260-КС-IV-3 Монтажные узлы стен. Узел 3 ТП 902-2-260-КС-IV-4 Монтажные узлы стен. Узел 4 ТП 902-2-260-КС-IV-5 Монтажные узлы стен. Узел 5 ТП 902-2-260-КС-IV-6 Монтажные узлы стен. Узел 6 ТП 902-2-260-КС-IV-7 Монтажные узлы стен. Узел 7 ТП 902-2-260-КС-IV-8 Монтажные узлы стен. Узел 8-12 ТП 902-2-260-КС-IV-9 Монтажные узлы стен. Узел 13-15 ТП 902-2-260-КС-IV-10 Монтажные узлы мостиков. Узел 1 ТП 902-2-260-КС-IV-11 Монтажные узлы мостиков. Узлы 2,3 ТП 902-2-260-КС-IV-12 Монтажные узлы мостиков. Узел 4 ТП 902-2-260-КС-IV-13 Монтажные узлы фильтросных коробов. Узлы 1-3. Опалубочный чертеж ТП 902-2-260-КС-IV-14 Монтажные узлы фильтросных коробов. Узлы 2;3. Армирование ТП 902-2-260-КС-IV-15 Монтажные узлы металлических конструкций. Узлы 1,2 ТП 902-2-260-КС-IV-16 Монтажные узлы металлических конструкций. Узлы 3,4 ТП 902-2-260-КС-IV-17 Монтажные узлы металлических конструкций. Узел 5 ТП 902-2-260-КС-IV-18 Монтажные узлы металлических конструкций. Узел 6 ТП 902-2-260-КС-IV-19 Монтажные узлы металлических конструкций. Узел 7 ТП 902-2-260-КС-IV-20 Монтажные узлы металлических конструкций. Узел 8 ТП 902-2-260-КС-IV-21 Монтажные узлы металлических конструкций. Узел 9 ТП 902-2-260-КС-IV-22 Монтажные узлы металлических конструкций. Узел 10 ТП 902-2-260-КС-IV-23 Монтажные узлы металлических конструкций. Узлы 11,12 ТП 902-2-260-КС-IV-24 Монтажные узлы металлических конструкций. Узлы 13-15 ТП 902-2-260-КС-IV-25 Монтажные узлы металлических конструкций. Узлы 16-18 |
| Разработан: | Гипрокоммунводоканал Минжилкомхоза РСФСР |
| Утверждён: | 20.06.1975 МЖКХ РСФСР (10-ТД) |



























