Скачать Типовой проект 902-2-259 Альбом XIII. Камеры, лотки. Технологическая строительная и электротехническая части (из ТП 902-2-260)Дата актуализации: 01.01.2021
|
| Обозначение: | Типовой проект 902-2-259 |
| Обозначение англ: | 902-2-259 |
| Статус: | действует |
| Название рус.: | Альбом XIII. Камеры, лотки. Технологическая строительная и электротехническая части (из ТП 902-2-260) |
| Дата добавления в базу: | 01.09.2013 |
| Дата актуализации: | 01.01.2021 |
| Дата введения: | 29.12.1975 |
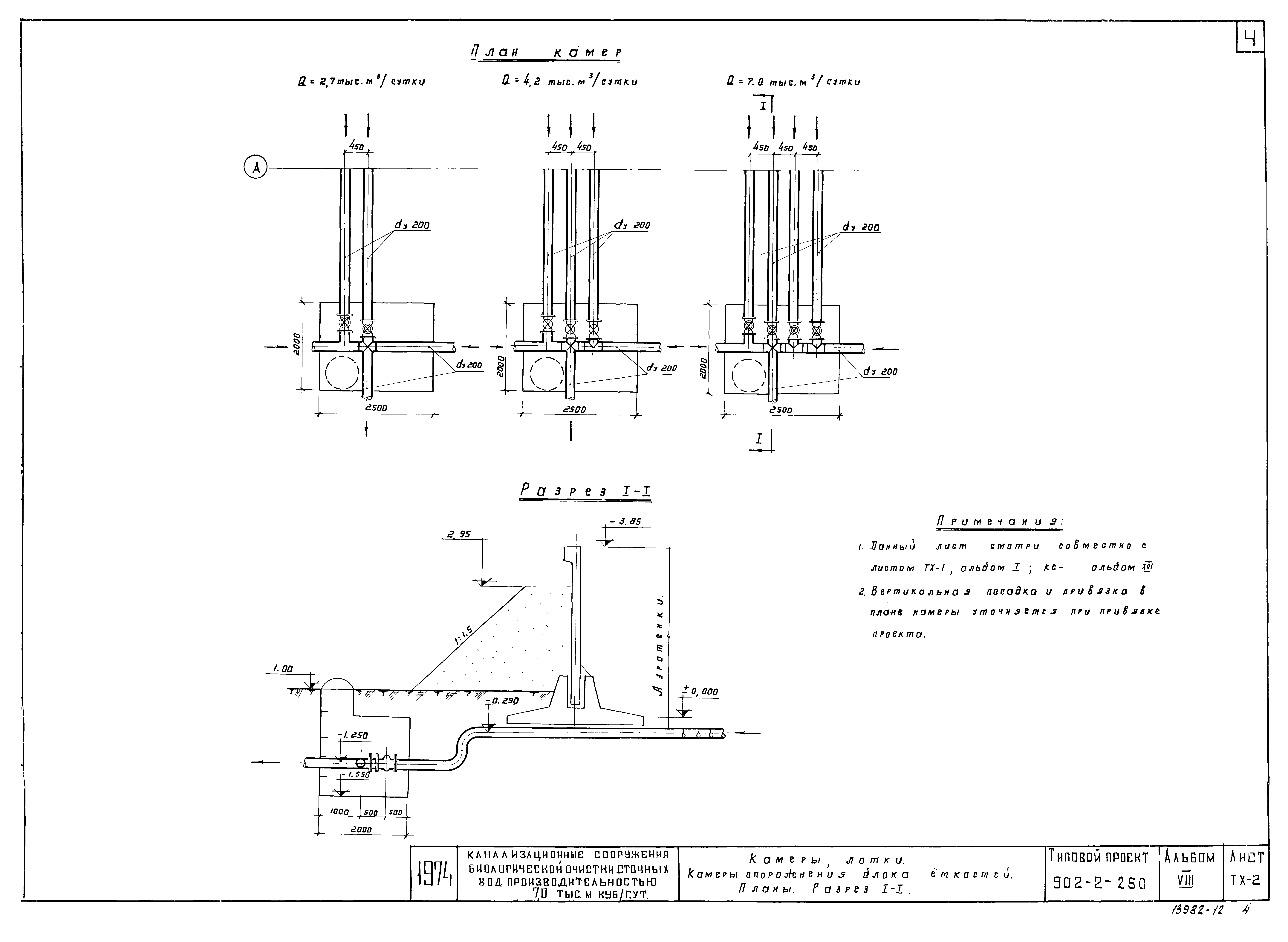
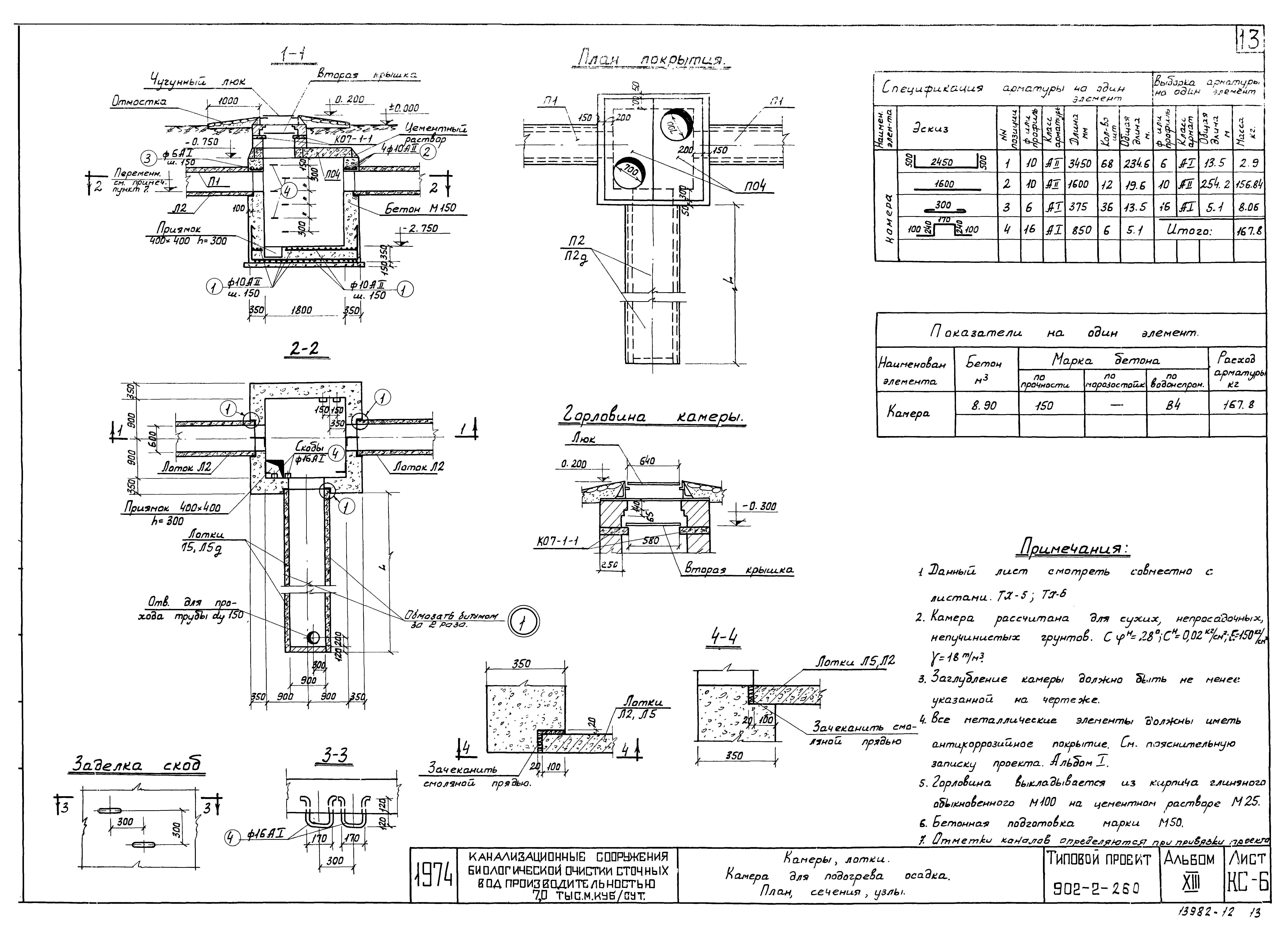
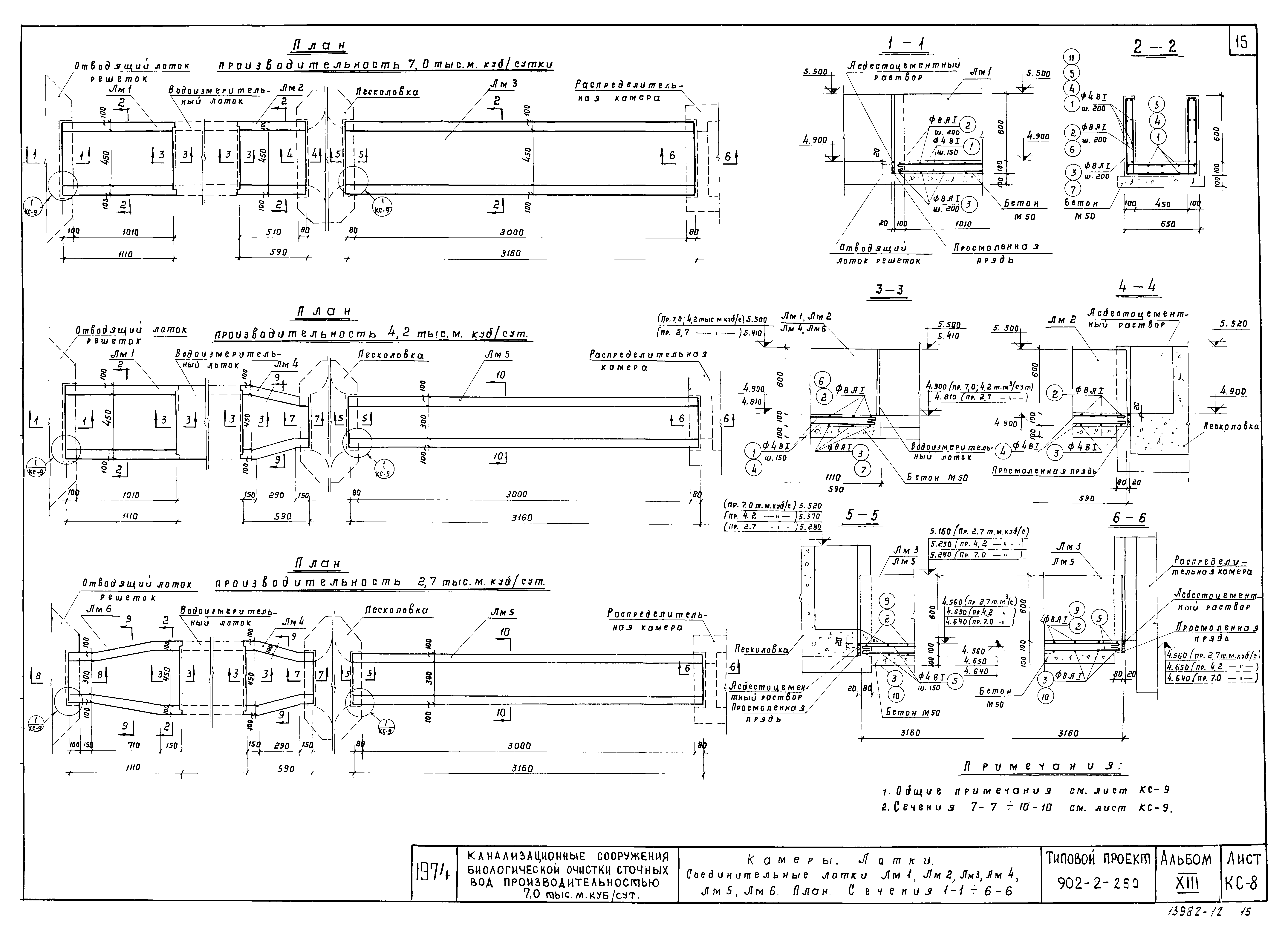
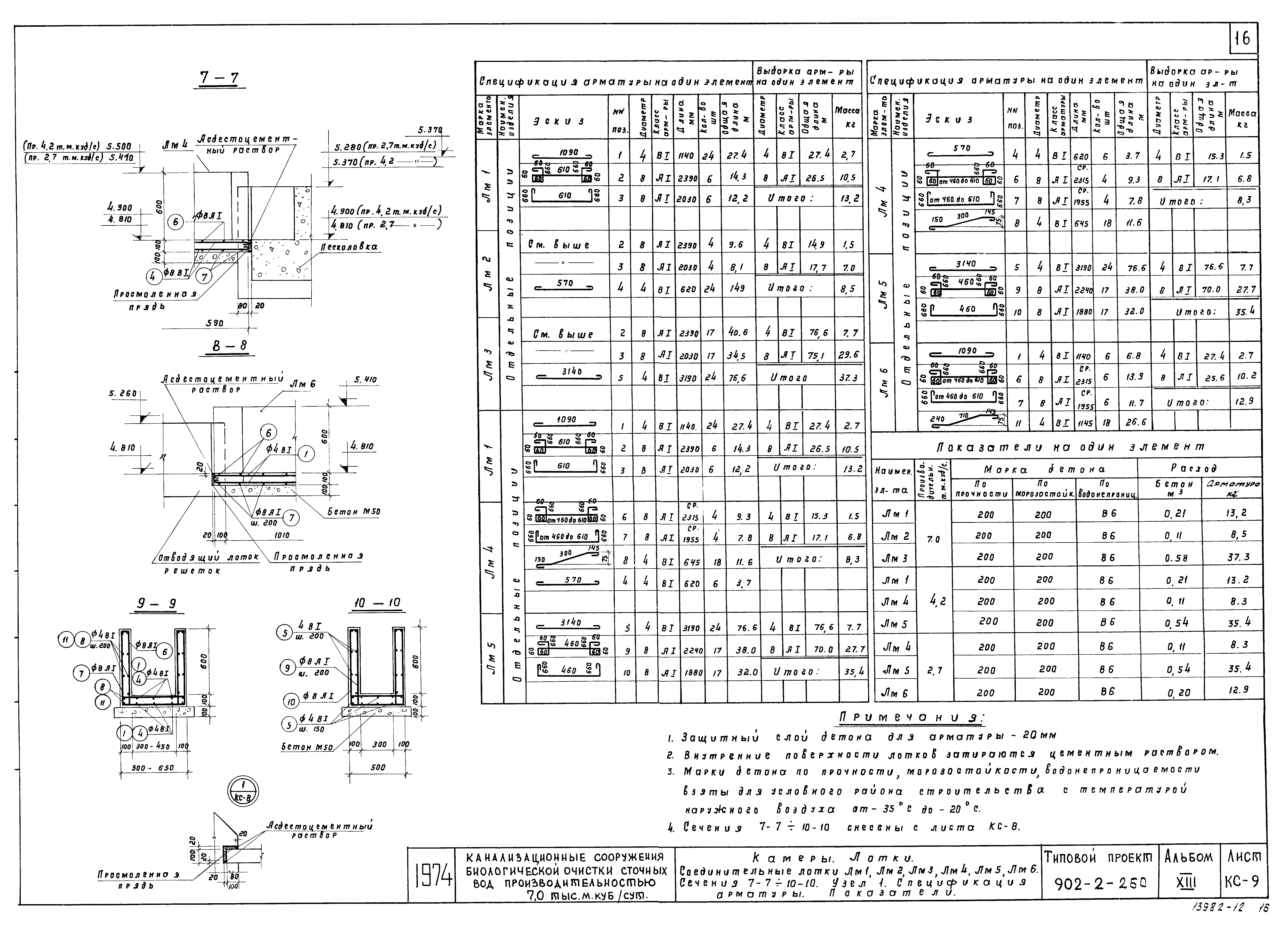
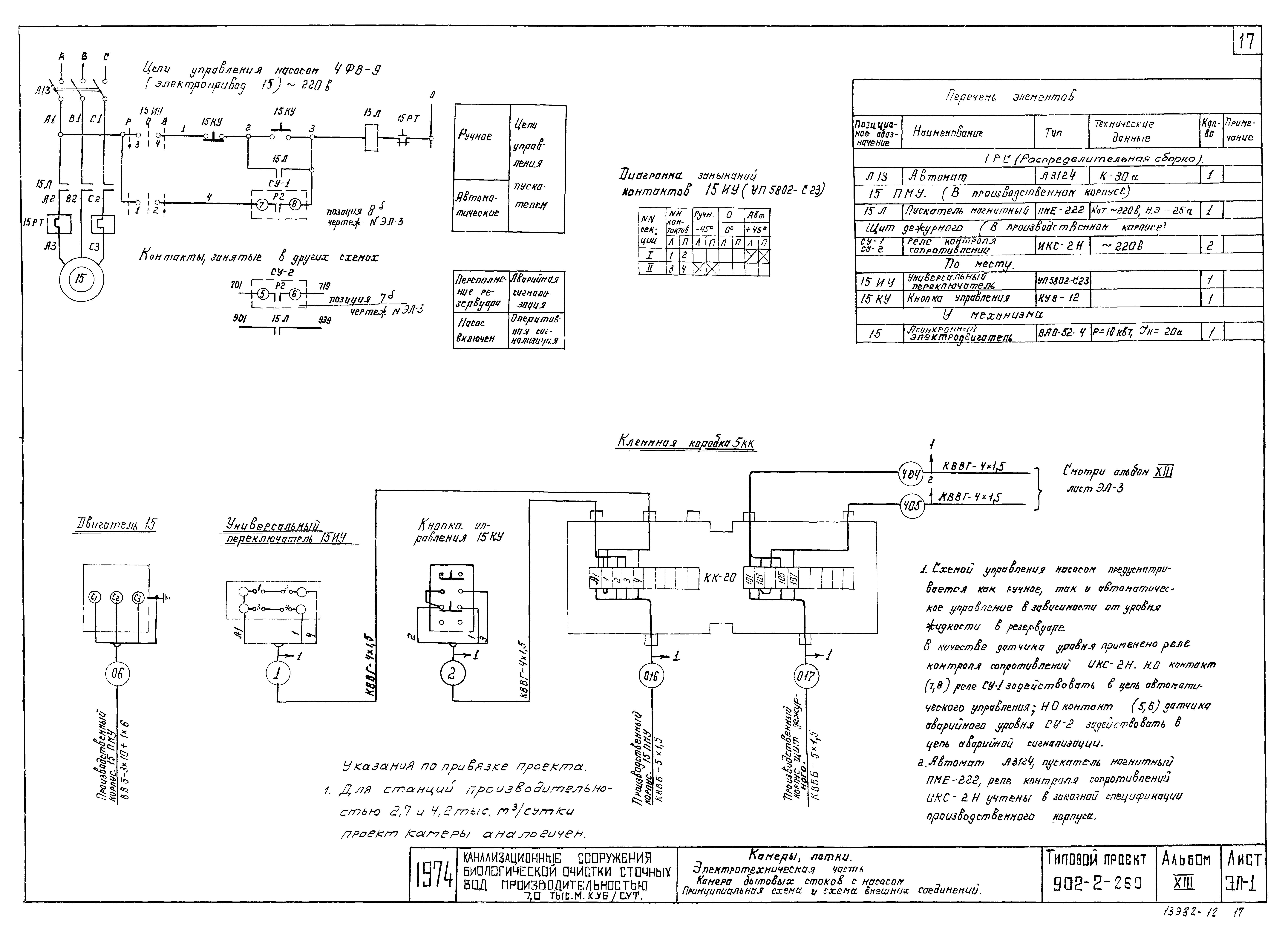
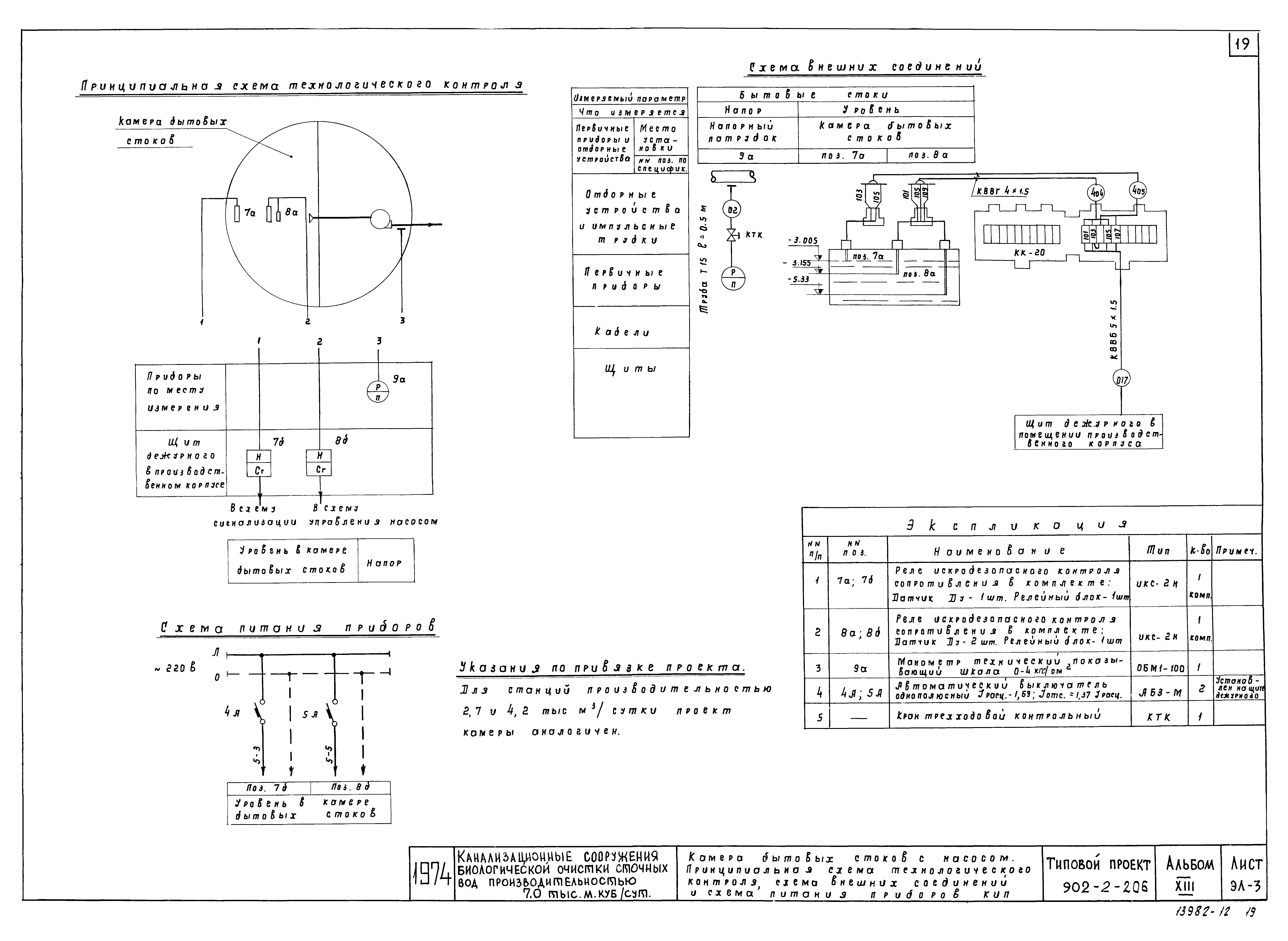
| Оглавление: | ТП 902-2-260-С-1 Камеры, лотки. Содержание альбома ТП 902-2-260-ТХ-1 Камеры, лотки. Распределительная камера первичных отстойников. План. Разрезы 1-1÷3-3. Спецификация ТП 902-2-260-ТХ-2 Камеры, лотки. Камеры опорожнения блока емкостей. Планы. Разрез 1-1 ТП 902-2-260-ТХ-3 Камеры, лотки. Камера бытовых стоков с насосом. План. Разрезы 1-1,2-2. Спецификация ТП 902-2-260-ТХ-4 Камеры, лотки. Установка для подогрева осадка. План. Сечения А-А; В-В. Узел "А". Спецификация ТП 902-2-260-ТХ-5 Камеры, лотки. Установка для подогрева осадка. Разрезы 1-1; 2-2. Схема подогрева осадка ТП 902-2-260-КС-1 Камеры, лотки. Распределительная камера первичных отстойников. Опалубочный чертеж. План. Сечения ТП 902-2-260-КС-2 Камеры, лотки. Распределительная камера первичных отстойников. План покрытия. Армирование. План. Сечения ТП 902-2-260-КС-3 Камеры, лотки. Распределительная камера первичных отстойников. Армирование. Спецификация арматуры ТП 902-2-260-КС-4 Камеры, лотки. Камера опорожнения. Блоки емкостей. Планы. Сечения. Выборки ТП 902-2-260-КС-5 Камеры, лотки. Камера бытовых стоков с насосом. План. Разрезы. Выборки ТП 902-2-260-КС-6 Камеры, лотки. Камера для подогрева осадка. План. Сечения. Узлы ТП 902-2-260-КС-7 Камеры, лотки. Камера для подогрева осадка. Выборки сборных элементов ТП 902-2-260-КС-8 Камеры, лотки. Соединительные лотки ЛМ1,ЛМ2,ЛМ3,ЛМ4,ЛМ5,ЛМ6. План. Сечения 1-1÷6-6 ТП 902-2-260-КС-9 Камеры, лотки. Соединительные лотки ЛМ1,ЛМ2,ЛМ3,ЛМ4,ЛМ5,ЛМ6. Сечения 7-7÷10-10. Узел 1. Спецификация арматуры. Показатели ТП 902-2-260-ЭЛ-1 Камеры, лотки. Камера бытовых стоков с насосом. Принципиальная схема и схема внешних соединений ТП 902-2-260-ЭЛ-2 Камеры, лотки. Камера бытовых стоков с насосом. Силовое электрооборудование ТП 902-2-260-ЭЛ-3 Камеры, лотки. Камера бытовых стоков с насосом. Принципиальная схема технического контроля. Схема внешних соединений и схема питания приборов КИП ТП 902-2-260-ЭЛ-4 Камеры, лотки. Камера бытовых стоков с насосом. Трасса кабельной трубной проводки |
| Разработан: | Гипрокоммунводоканал Минжилкомхоза РСФСР |
| Утверждён: | 20.06.1975 МЖКХ РСФСР (10-ТД) |




















