Скачать Типовой проект 902-2-404.86 Альбом IV. Силовое электрооборудование. Электрическое освещение. Автоматизация. Связь и сигнализация (из ТП 902-2-403.86)Дата актуализации: 01.01.2021
|
| Обозначение: | Типовой проект 902-2-404.86 |
| Обозначение англ: | 902-2-404.86 |
| Статус: | заменен |
| Название рус.: | Альбом IV. Силовое электрооборудование. Электрическое освещение. Автоматизация. Связь и сигнализация (из ТП 902-2-403.86) |
| Дата добавления в базу: | 01.09.2013 |
| Дата актуализации: | 01.01.2021 |
| Дата введения: | 27.03.1985 |
| Дата окончания срока действия: | 01.10.1987 |
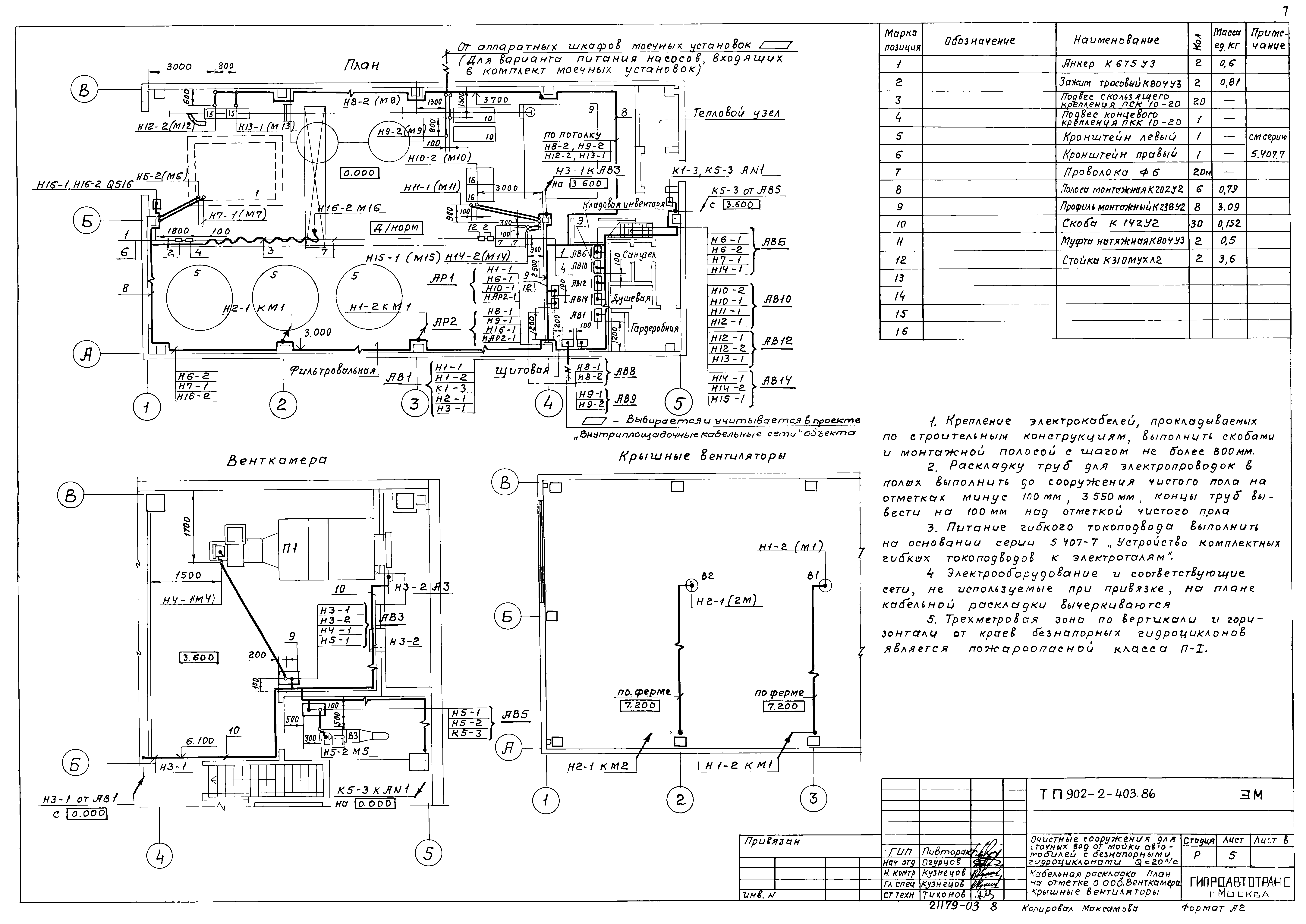
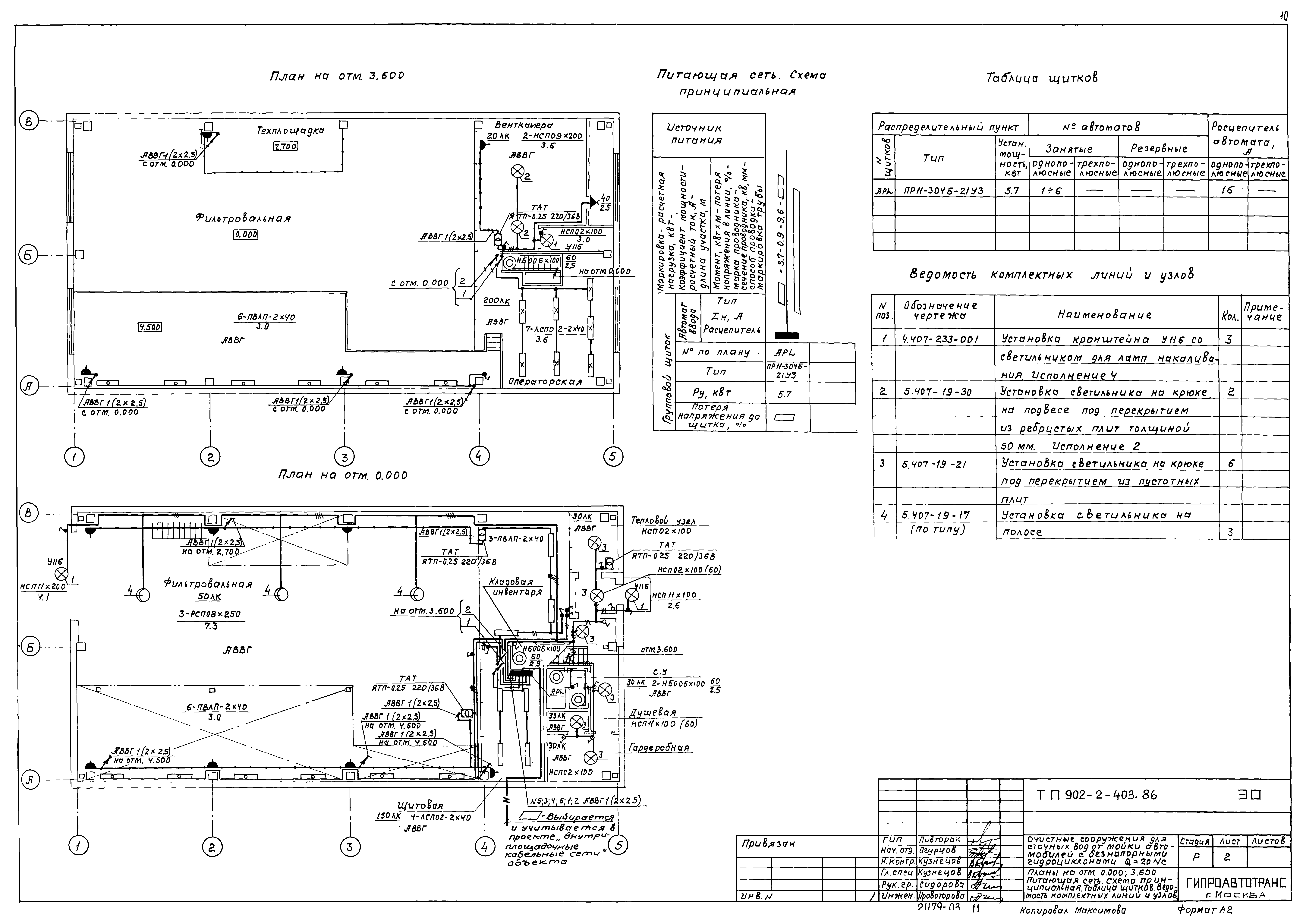
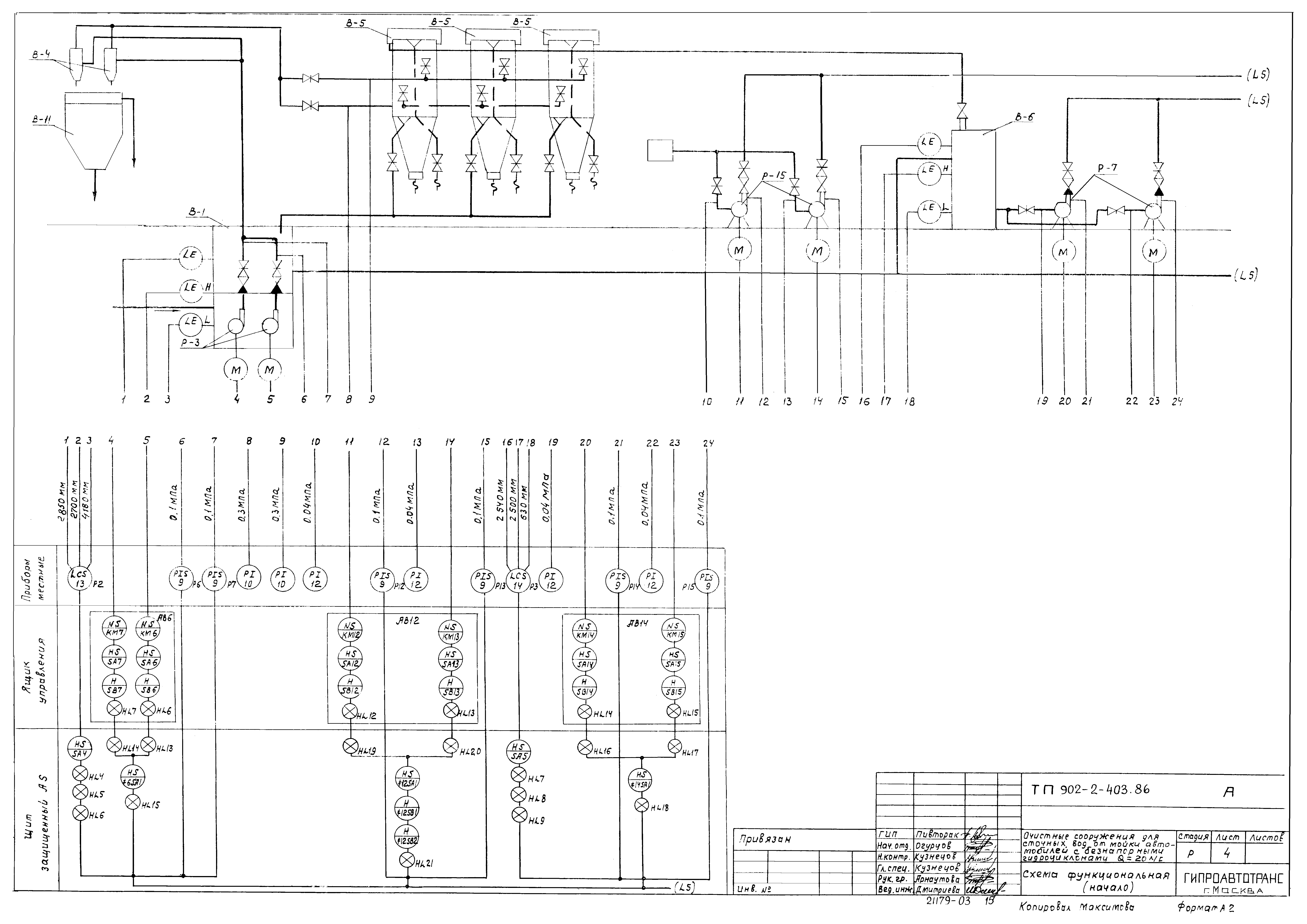
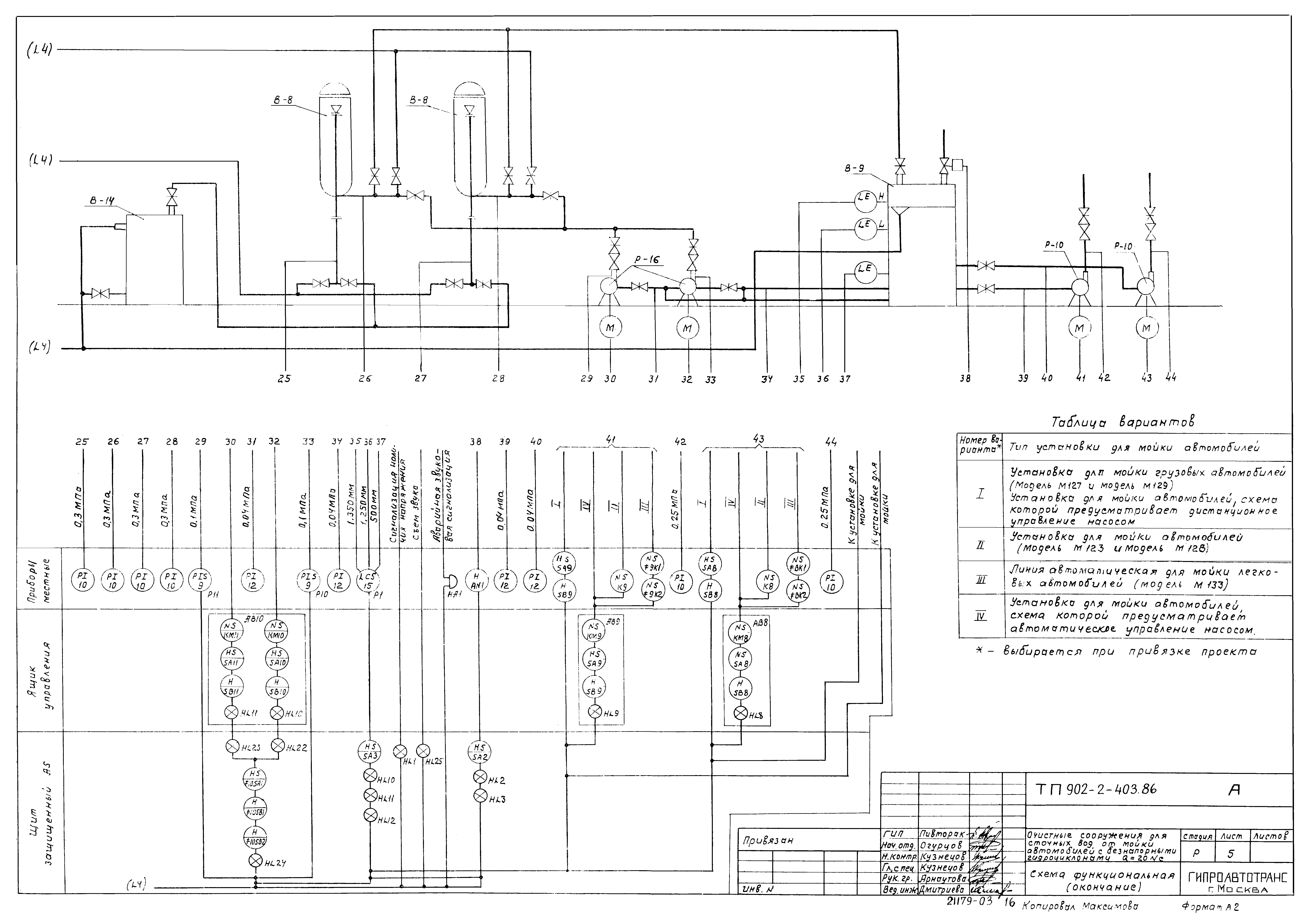
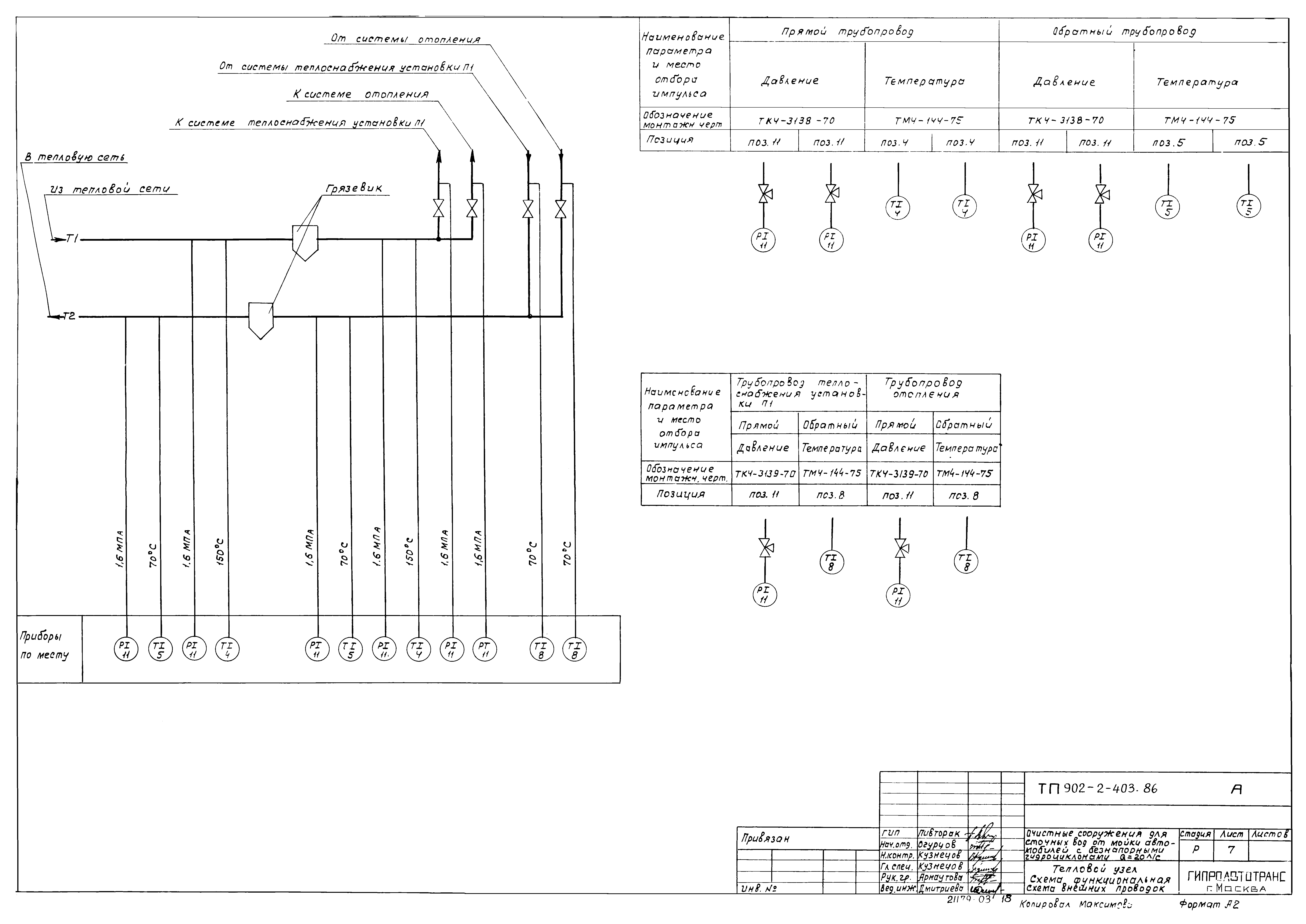
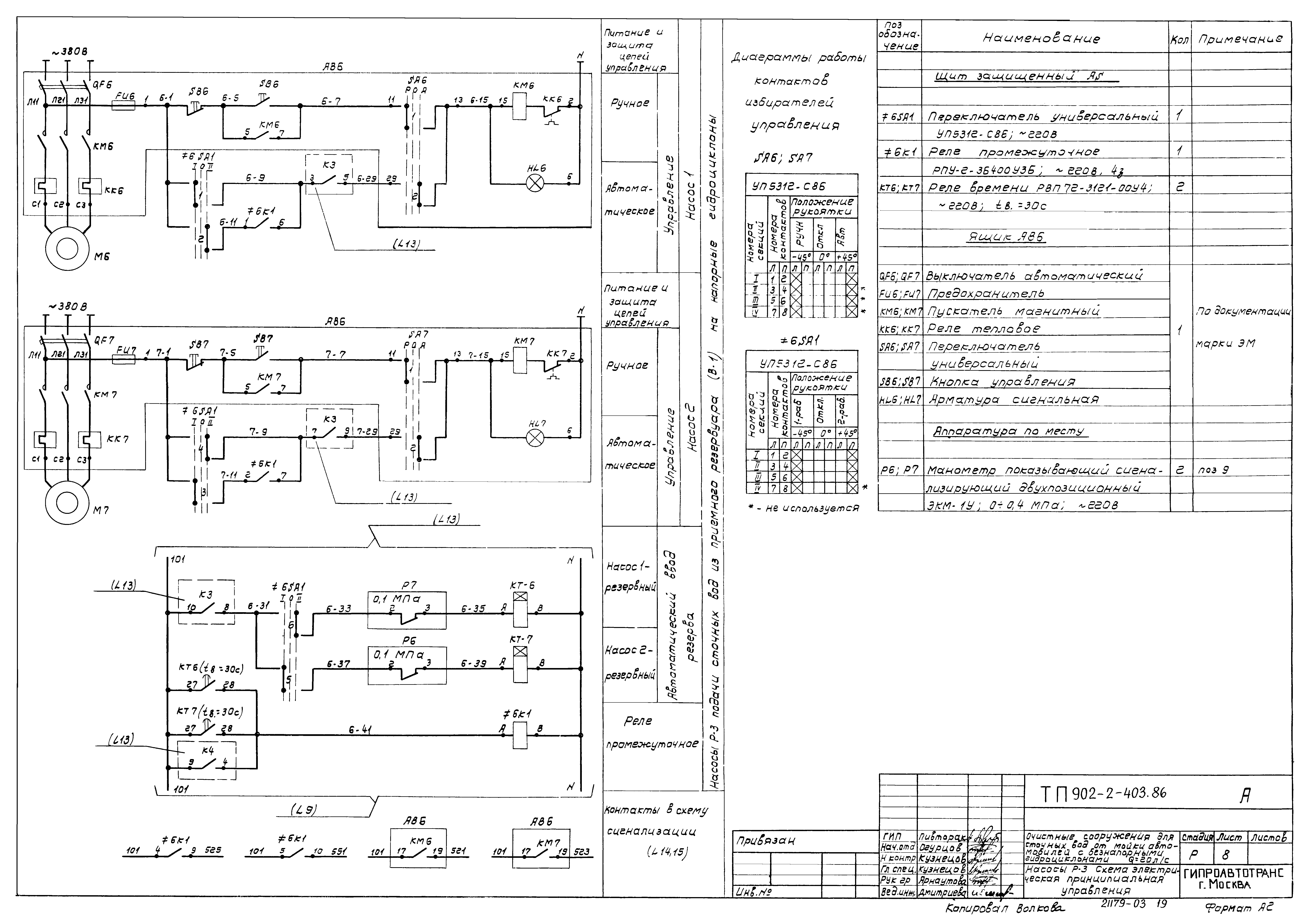
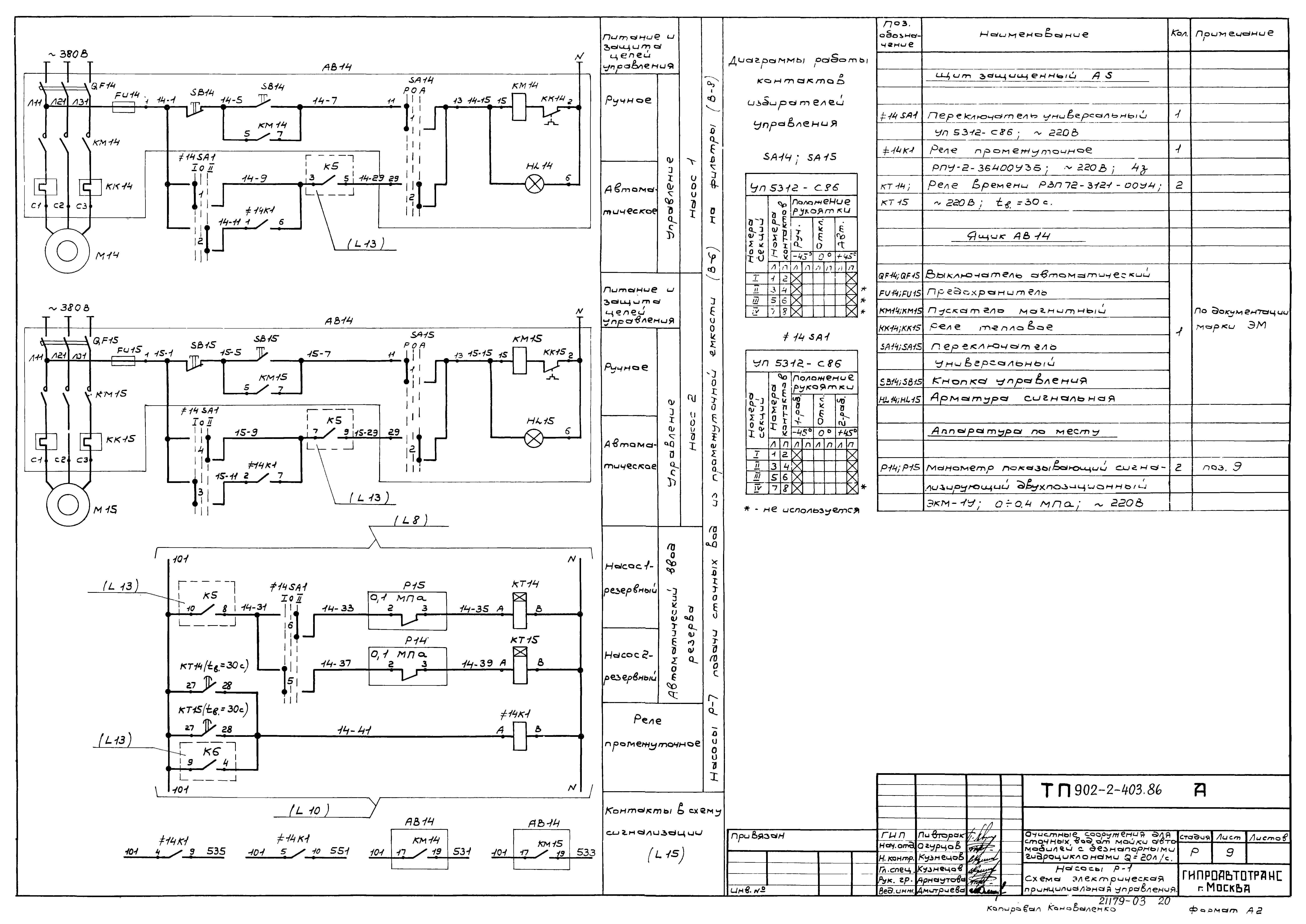
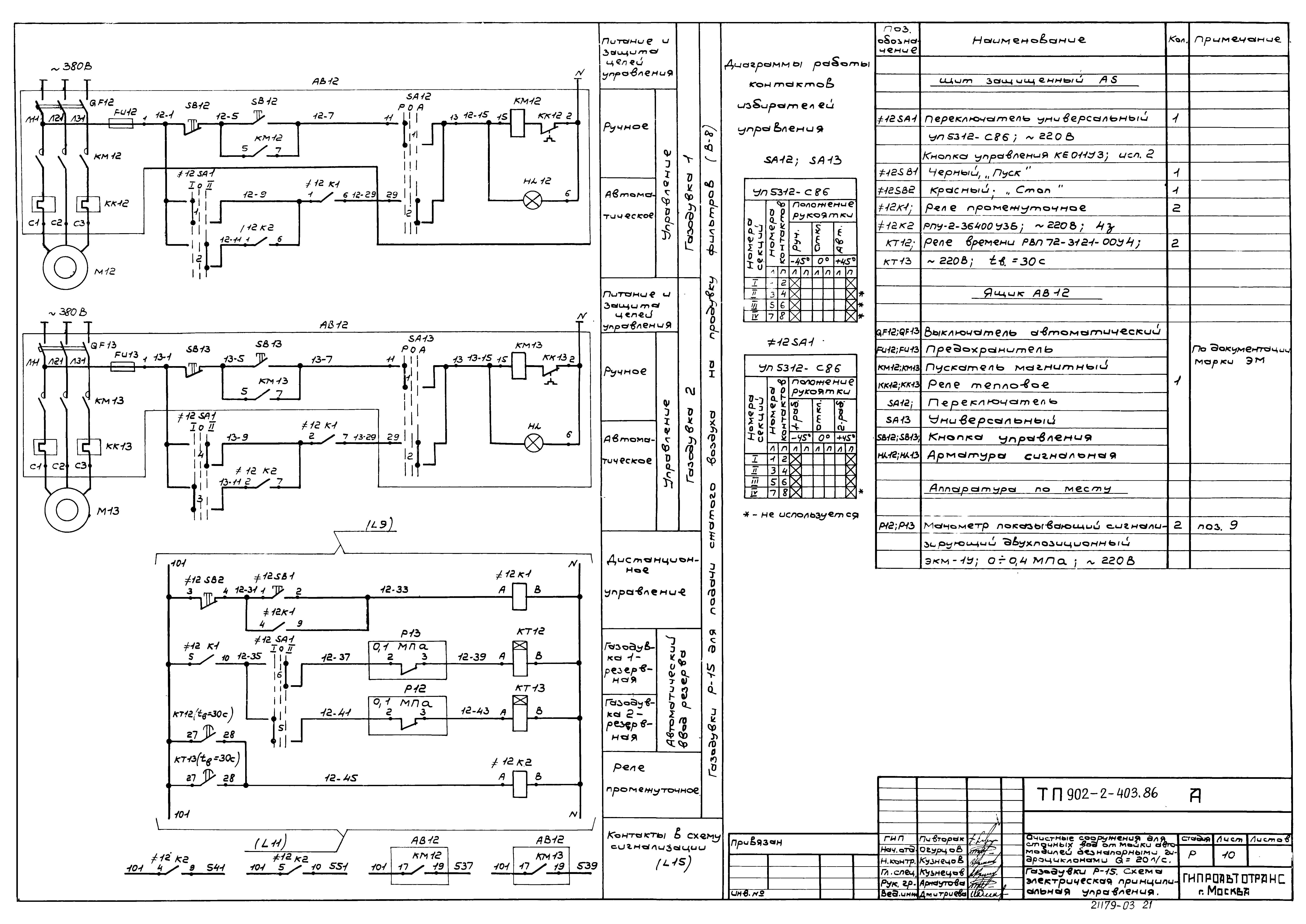
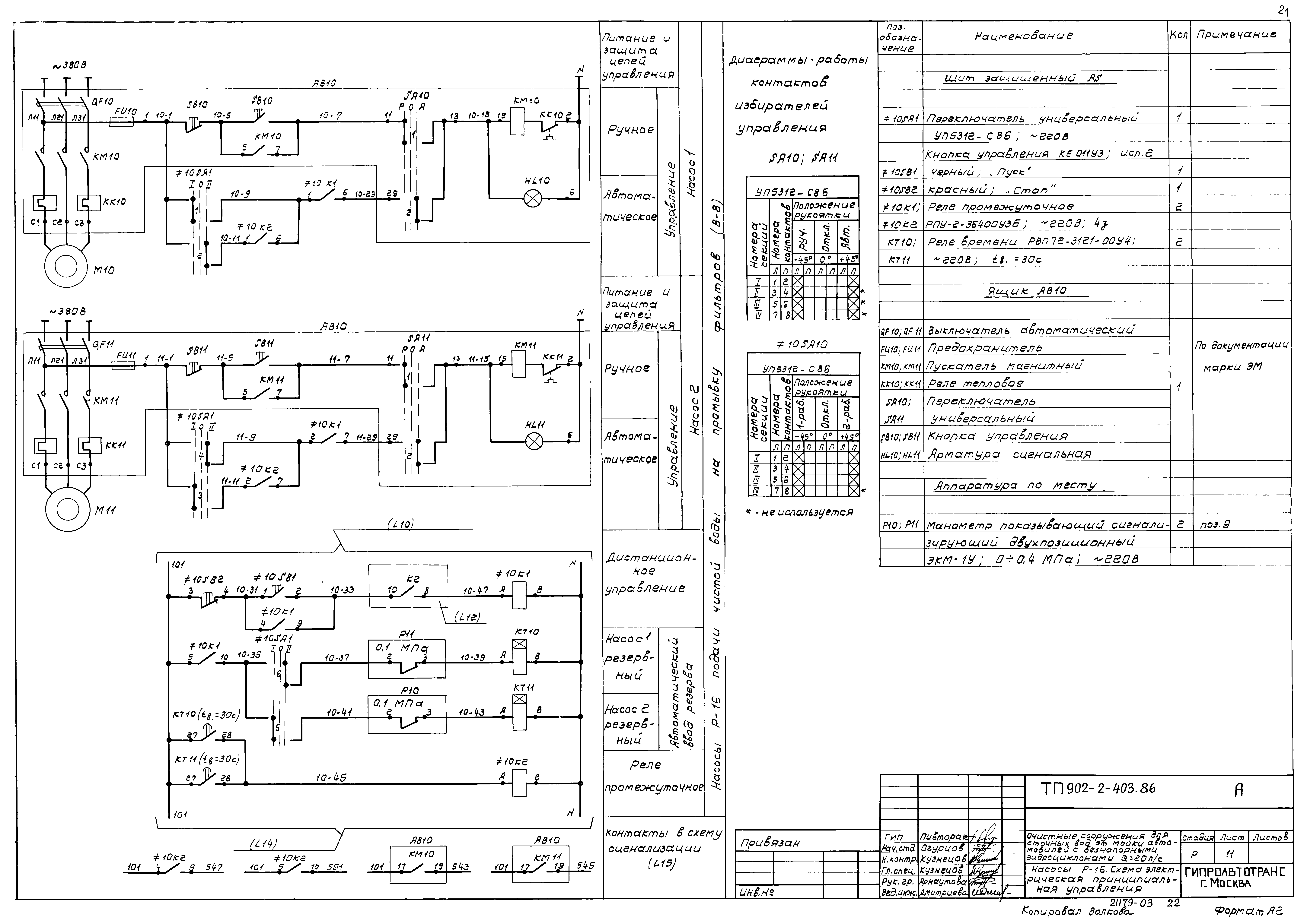
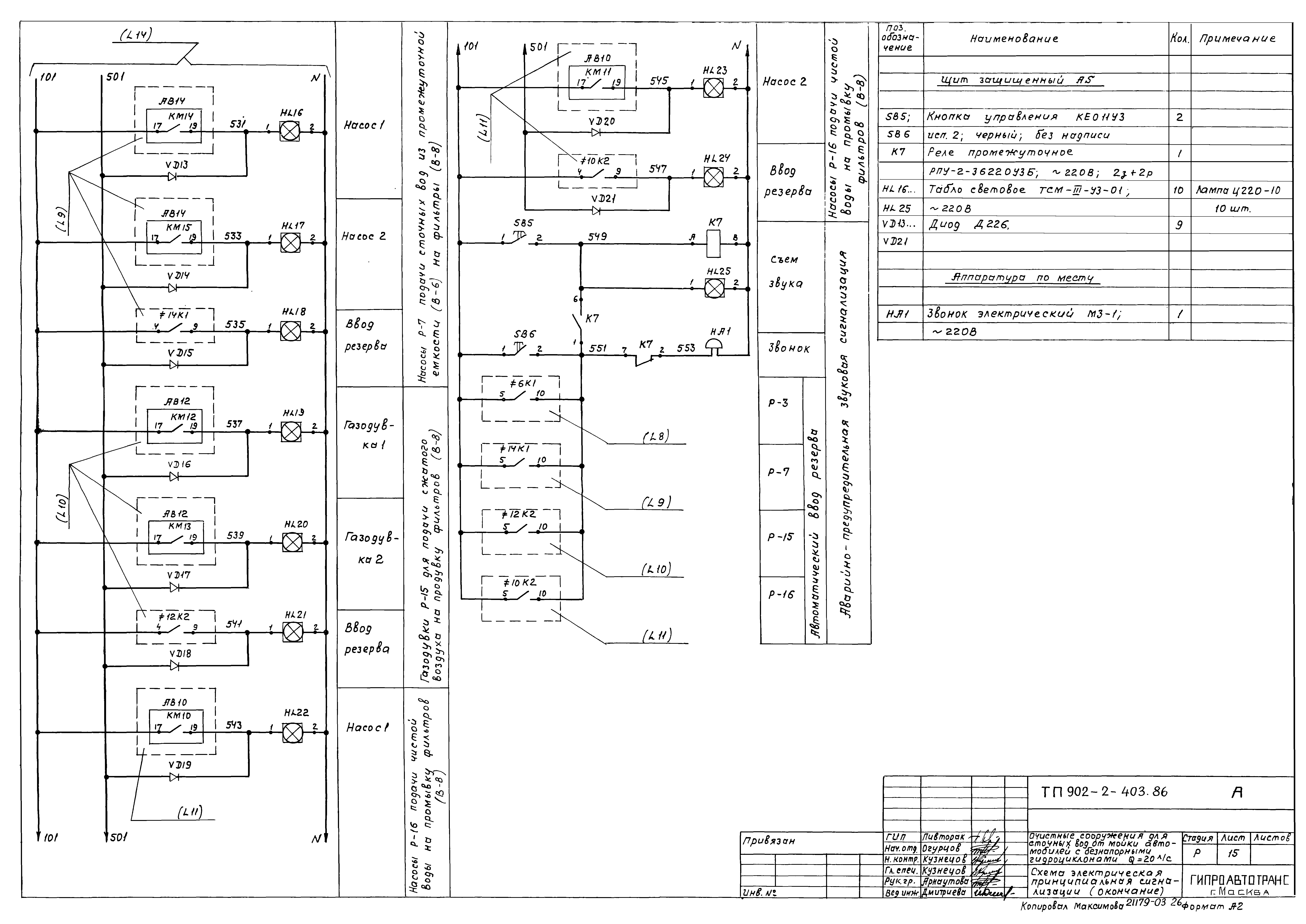
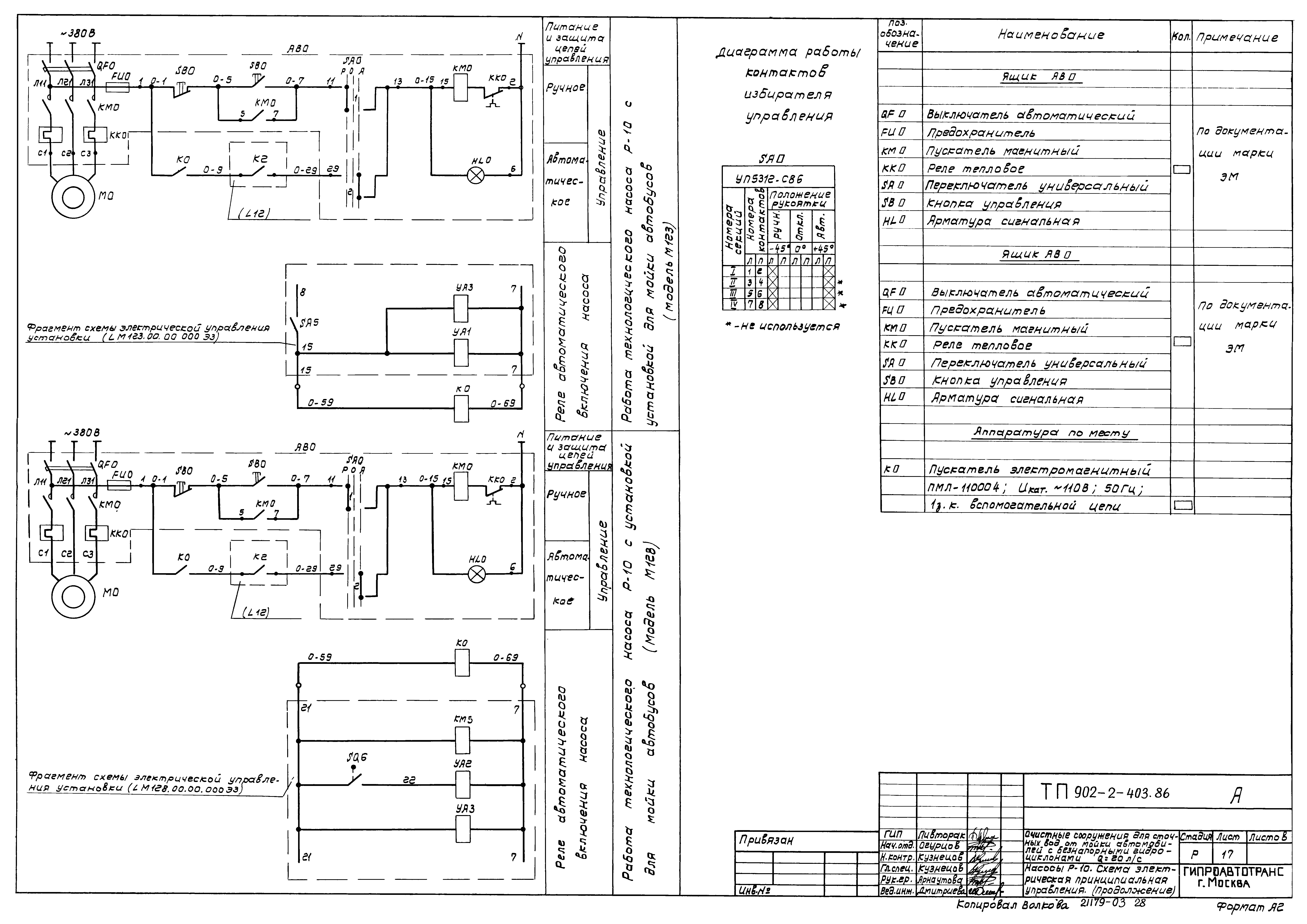
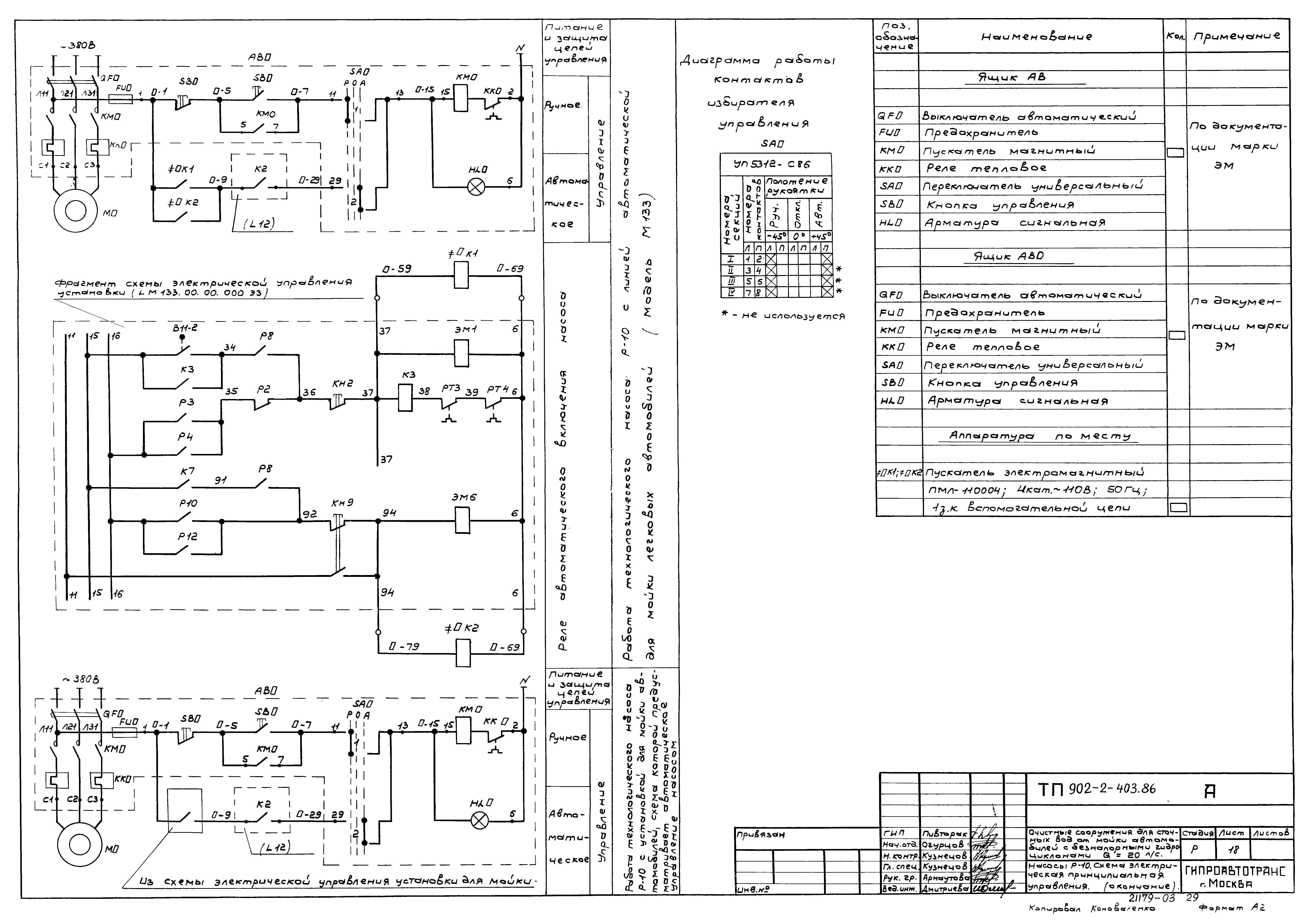
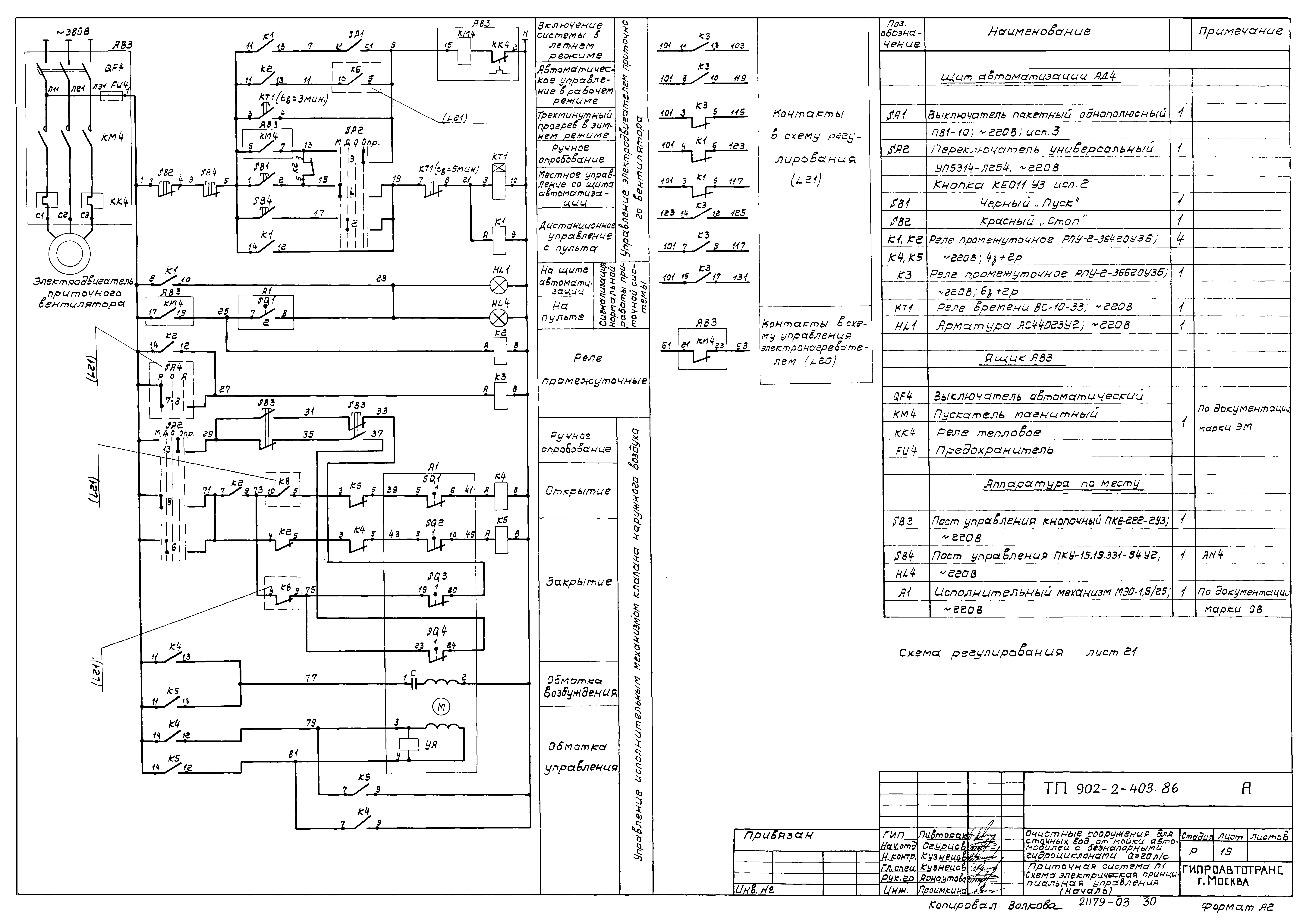
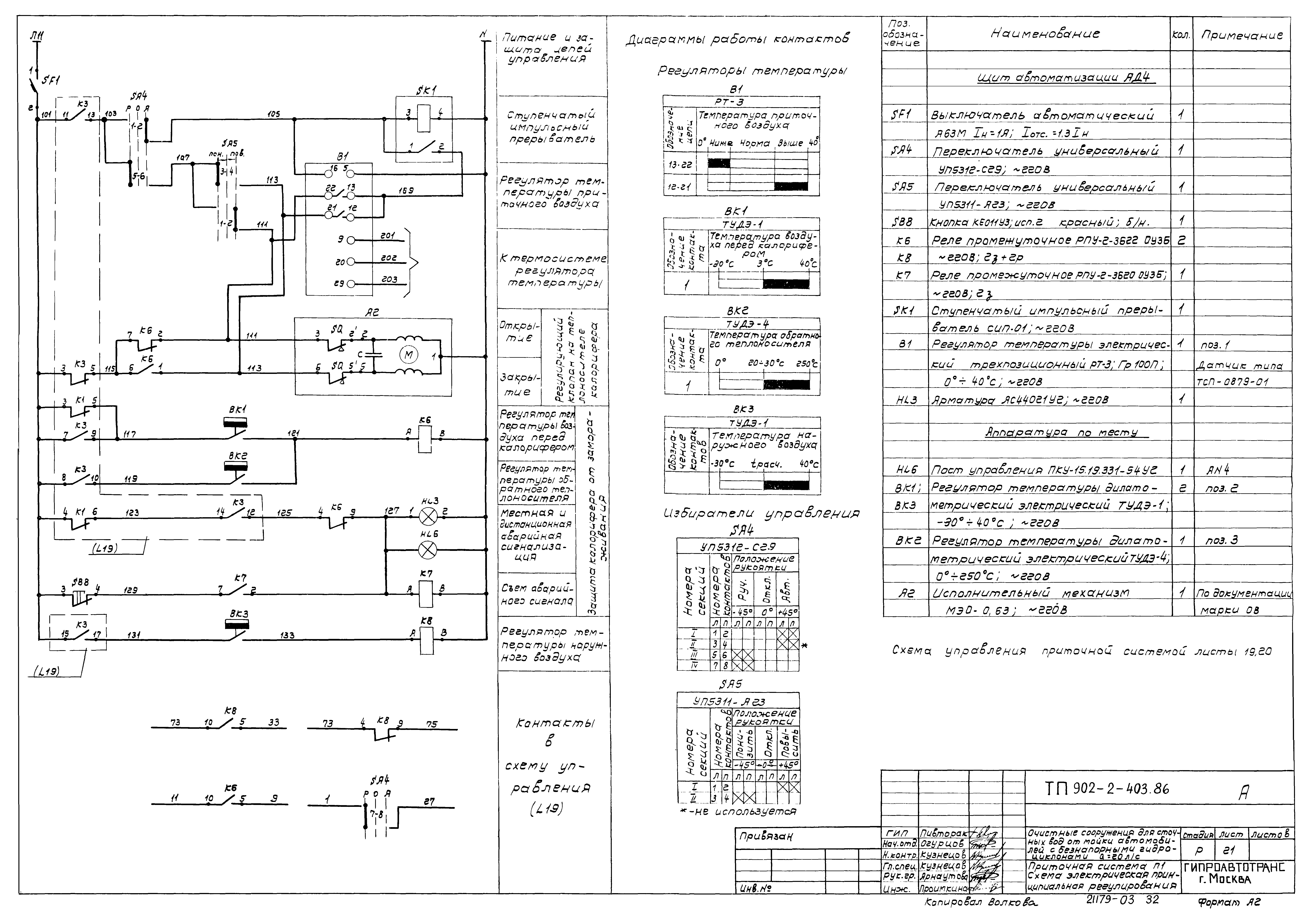
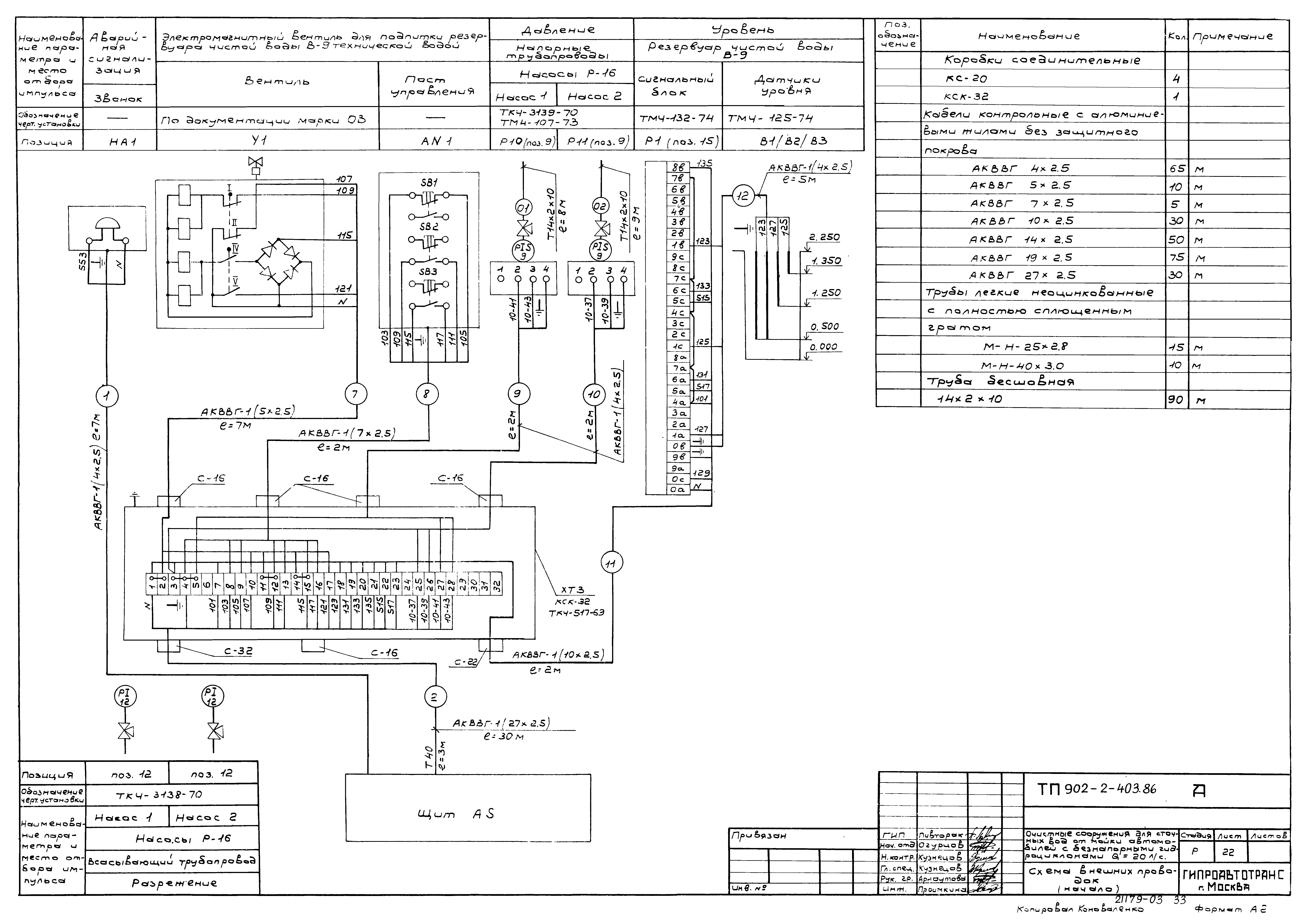
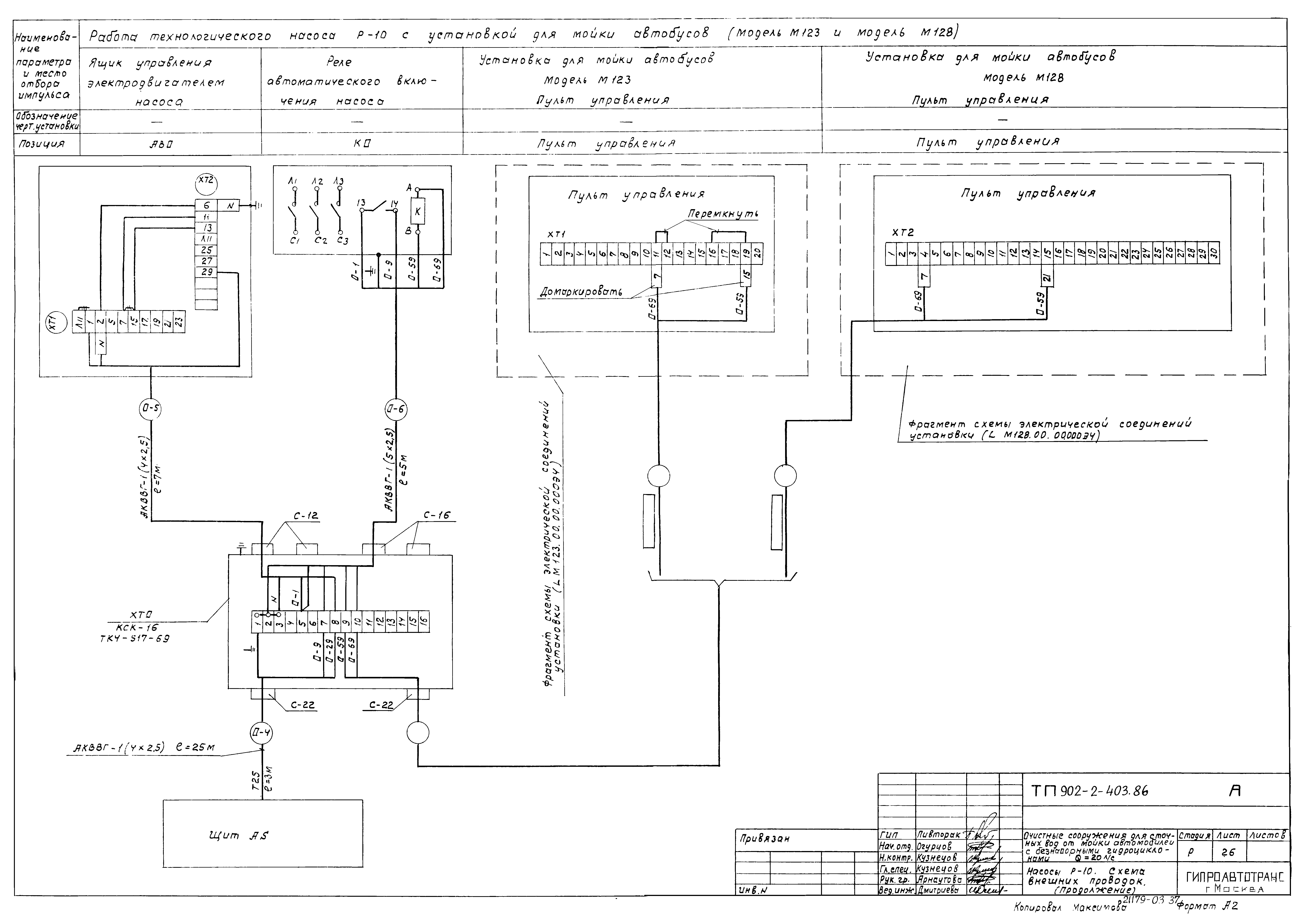
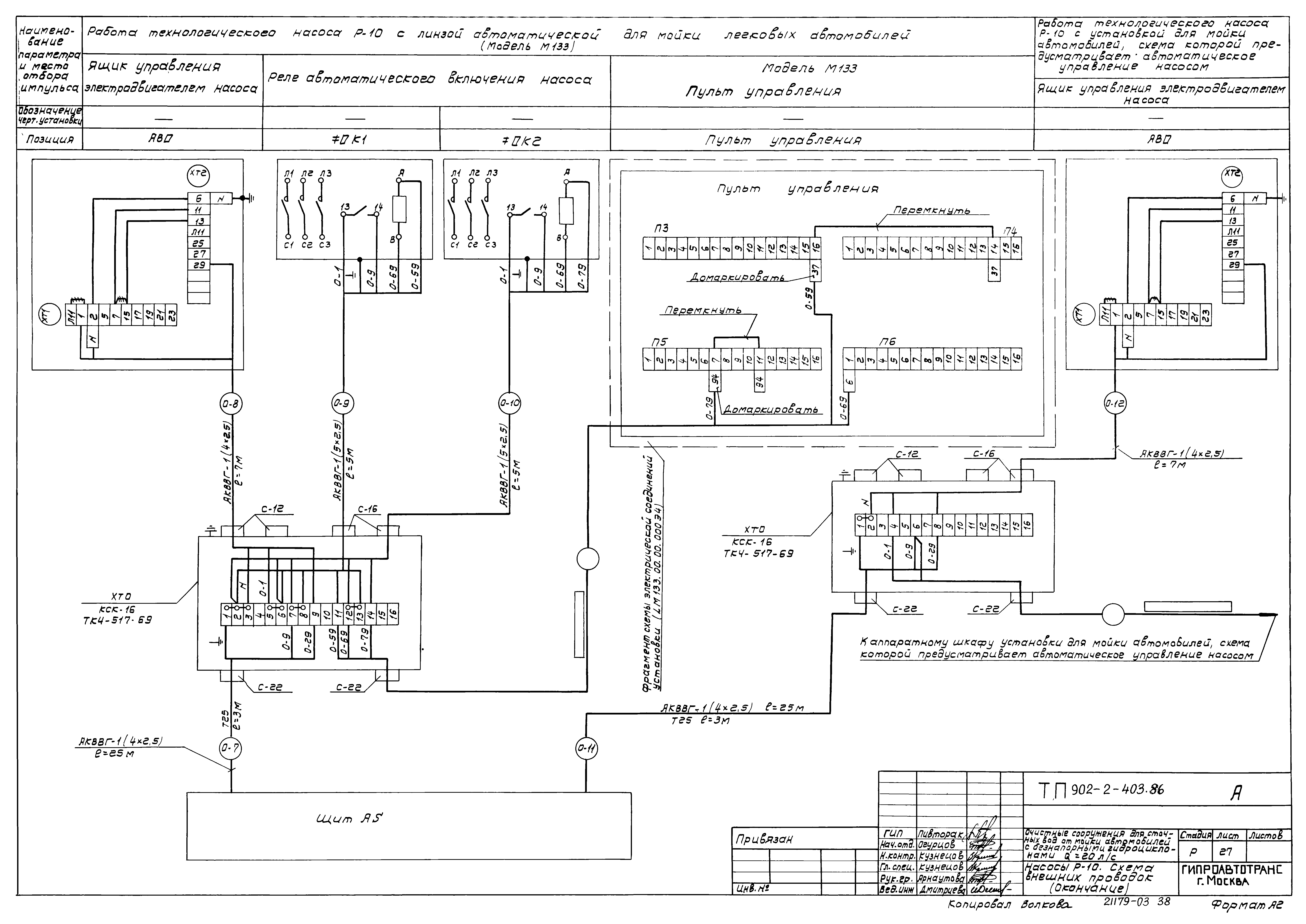
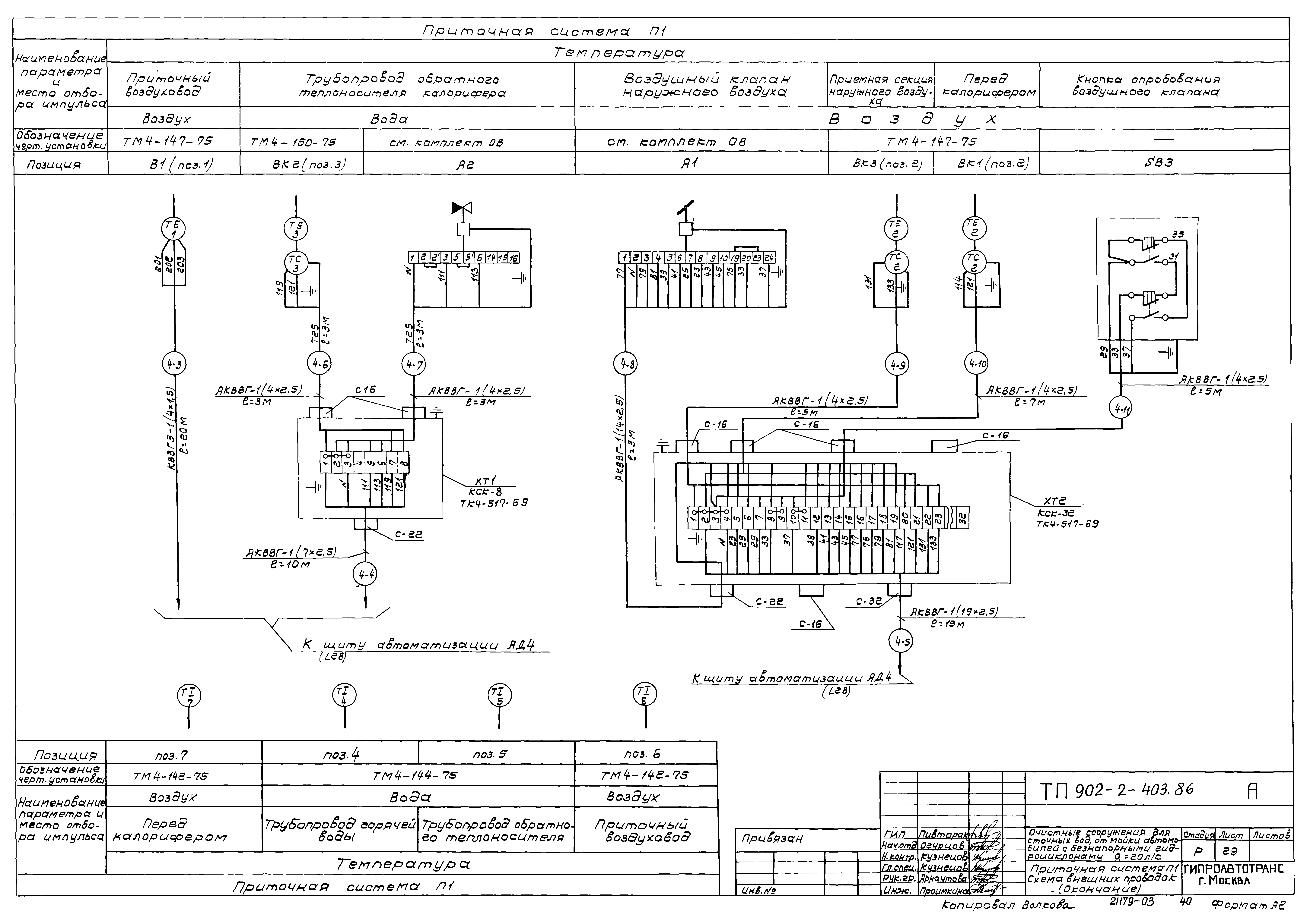
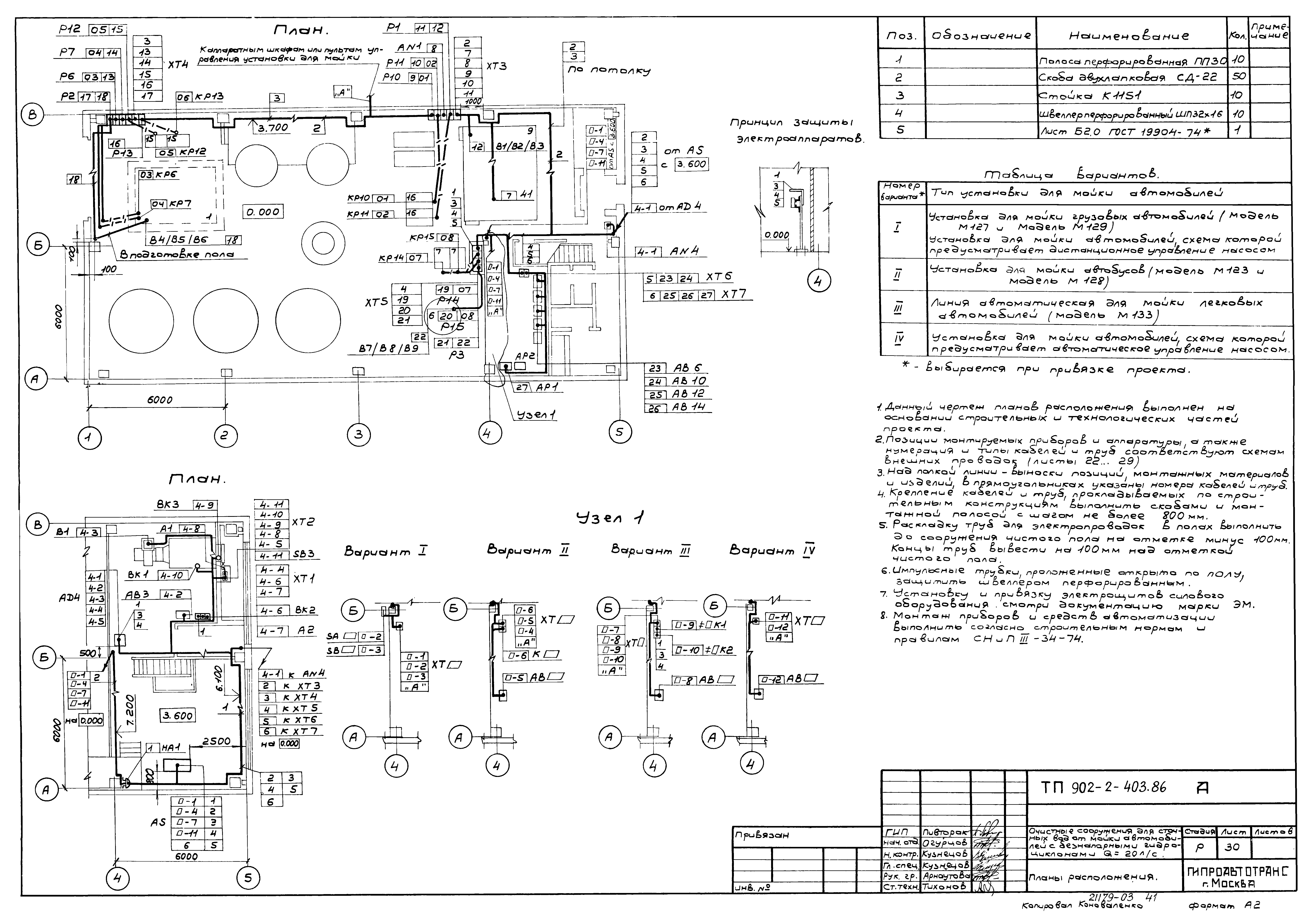
| Оглавление: | ТП 902-2-403.86 Титульный лист ТП 902-2-403.86 Содержание альбома ТП 902-2-403.86-ЭМ Силовое электрооборудование ЭМ ТП 902-2-403.86-ЭМ-1 Общие данные ТП 902-2-403.86-ЭМ-2 Распределительная сеть ~380/220 В. Шкафы АР1,АР2. Схема принципиальная однолинейная ТП 902-2-403.86-ЭМ-3 Вентиляторы М1(М2,М3,М5). Схема принципиальная управления. Схема подключения ТП 902-2-403.86-ЭМ-4 Кабельный журнал. Сводка кабелей и проводов, учтенных кабельным журналом ТП 902-2-403.86-ЭМ-5 Кабельная раскладка. План на отметке 0.000. Венткамера. Крышные вентиляторы ТП 902-2-403.86-ЭМ-6 Молниезащита ТП 902-2-403.86-ЭО Электрическое освещение ЭО ТП 902-2-403.86-ЭО-1 Общие данные ТП 902-2-403.86-ЭО-2 Планы на отм. 0.000;3.600. Питающая сеть. Схема принципиальная. Таблица щитков. Ведомость комплектных линий и узлов ТП 902-2-403.86-А Автоматизация А ТП 902-2-403.86-А-1 Общие данные (начало) ТП 902-2-403.86-А-2 Общие данные (продолжение) ТП 902-2-403.86-А-3 Общие данные (окончание) ТП 902-2-403.86-А-4 Схема функциональная (начало) ТП 902-2-403.86-А-5 Схема функциональная (продолжение) ТП 902-2-403.86-А-6 Приточная система П1. Схема функциональная ТП 902-2-403.86-А-7 Тепловой узел. Схема функциональная. Схема внешних проводок ТП 902-2-403.86-А-8 Насосы Р-3. Схема электрическая принципиальная управления ТП 902-2-403.86-А-9 Насосы Р-7. Схема электрическая принципиальная управления ТП 902-2-403.86-А-10 Газодувки Р-15. Схема электрическая принципиальная управления ТП 902-2-403.86-А-11 Газодувки Р-16. Схема электрическая принципиальная управления ТП 902-2-403.86-А-12 Схема электрическая принципиальная системы измерений (начало) ТП 902-2-403.86-А-13 Схема электрическая принципиальная системы измерений (окончание) ТП 902-2-403.86-А-14 Схема электрическая принципиальная сигнализации (начало) ТП 902-2-403.86-А-15 Схема электрическая принципиальная сигнализации (окончание) ТП 902-2-403.86-А-16 Насосы Р-10. Схема электрическая принципиальная управления (начало) ТП 902-2-403.86-А-17 Насосы Р-10. Схема электрическая принципиальная управления (продолжение) ТП 902-2-403.86-А-18 Насосы Р-10. Схема электрическая принципиальная управления (окончание) ТП 902-2-403.86-А-19 Приточная система П1. Схема электрическая принципиальная управления (начало) ТП 902-2-403.86-А-20 Приточная система П1. Схема электрическая принципиальная управления (окончание) ТП 902-2-403.86-А-21 Приточная система П1. Схема электрическая принципиальная регулирования ТП 902-2-403.86-А-22 Схема внешних проводок (начало) ТП 902-2-403.86-А-23 Схема внешних проводок (продолжение) ТП 902-2-403.86-А-24 Схема внешних проводок (окончание) ТП 902-2-403.86-А-25 Насосы Р10. Схема внешних проводок (начало) ТП 902-2-403.86-А-26 Насосы Р10. Схема внешних проводок (продолжение) ТП 902-2-403.86-А-27 Насосы Р10. Схема внешних проводок (окончание) ТП 902-2-403.86-А-28 Приточная система П1. Схема внешних проводок (начало) ТП 902-2-403.86-А-29 Приточная система П1. Схема внешних проводок (окончание) ТП 902-2-403.86-А-30 Планы расположения ТП 902-2-403.86-СС Связь и сигнализация СС ТП 902-2-403.86-СС-1 Общие данные. План на отм. 3.600. Фасад А-Б. Сети связи |
| Разработан: | Гипроавтотранс |
| Утверждён: | 27.03.1985 Минавтотранс РСФСР (Russian Federation Minavtotrans 55) |
| Чем заменён: |










































