Скачать Типовой проект 705-1-173.85 Альбом I. Пояснительная записка. Технология производства. Архитектурные решения. Конструкции железобетонные. Чертежи вентиляции. Электротехнические чертежи. Спецификации оборудованияДата актуализации: 01.01.2021
|
| Обозначение: | Типовой проект 705-1-173.85 |
| Обозначение англ: | 705-1-173.85 |
| Статус: | действует |
| Название рус.: | Альбом I. Пояснительная записка. Технология производства. Архитектурные решения. Конструкции железобетонные. Чертежи вентиляции. Электротехнические чертежи. Спецификации оборудования |
| Дата добавления в базу: | 01.09.2013 |
| Дата актуализации: | 01.01.2021 |
| Дата введения: | 26.12.1983 |
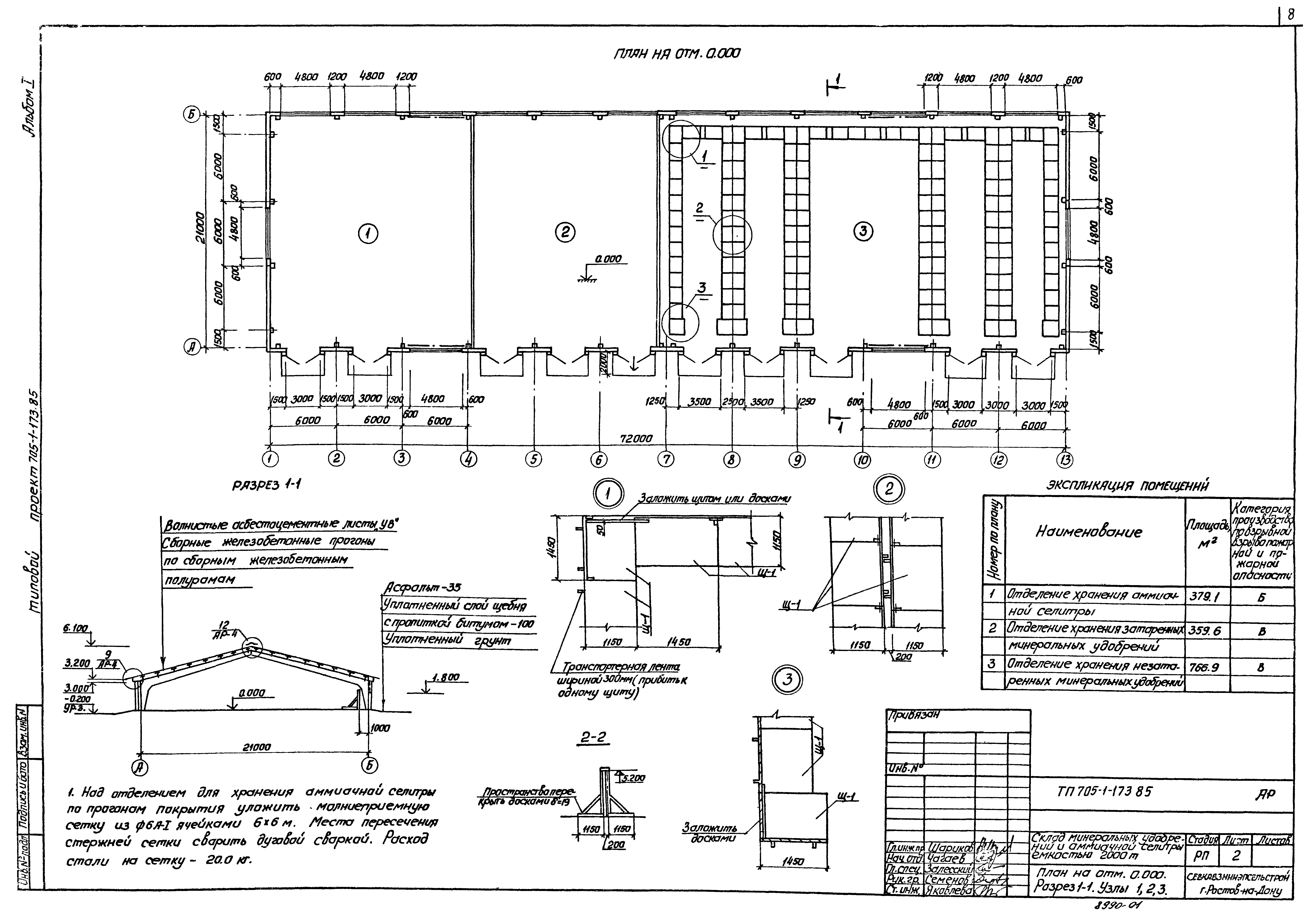
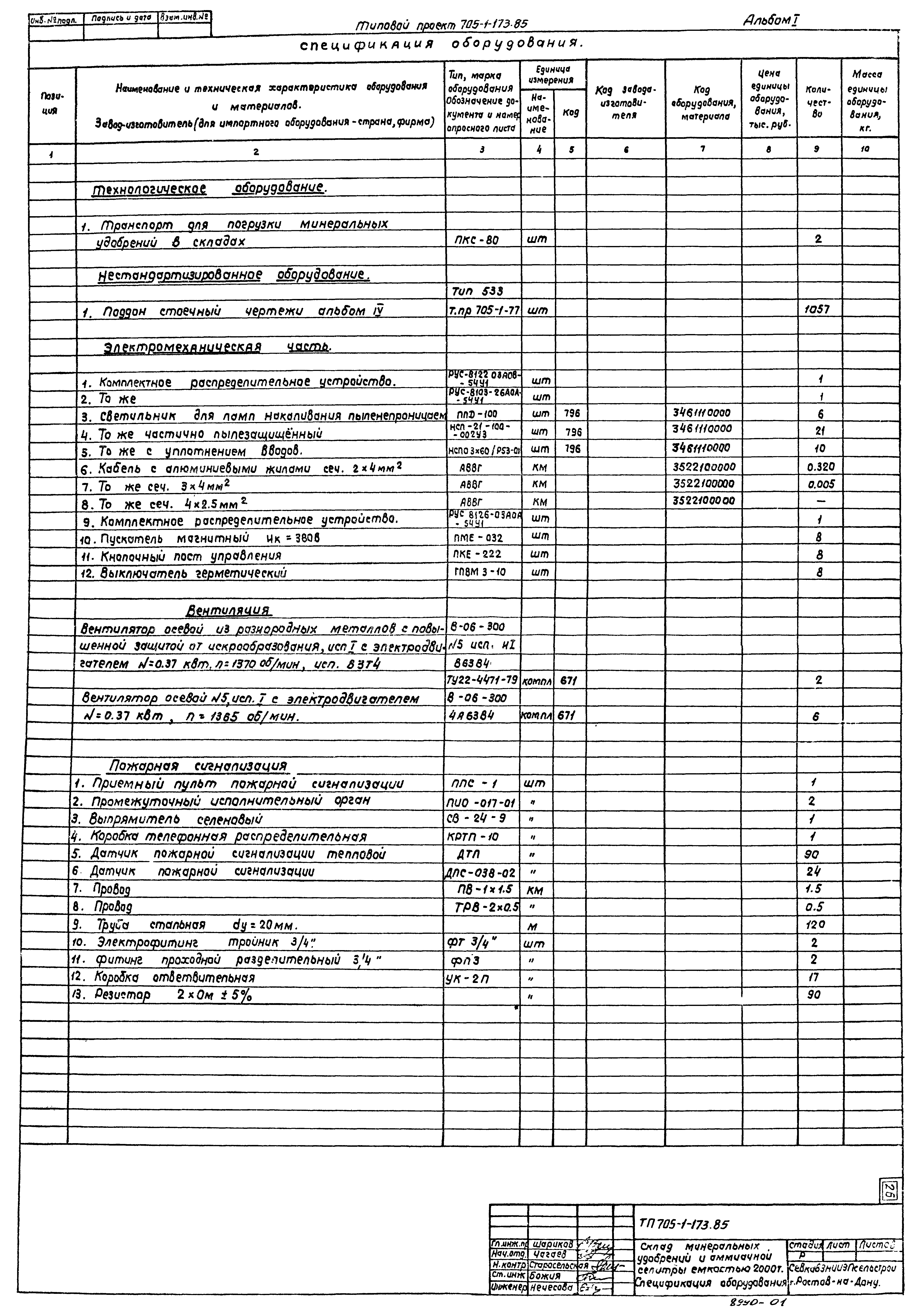
| Оглавление: | ТП 705-1-173.85 Ведомость чертежей альбома ТП 705-1-173.85-ПЗ Комплект ПЗ ТП 705-1-173.85-ПЗ-1 Пояснительная записка (начало) ТП 705-1-173.85-ПЗ-2 Пояснительная записка (продолжение) ТП 705-1-173.85-ПЗ-3 Пояснительная записка (окончание) ТП 705-1-173.85-ТХ Комплект ТХ ТП 705-1-173.85-ТХ-1 Расположение технологического оборудования. План. Разрезы ТП 705-1-173.85-АР Комплект АР ТП 705-1-173.85-АР-1 Общие данные ТП 705-1-173.85-АР-2 План на отм. 0.000. Разрез 1-1. Узлы 1,2,3 ТП 705-1-173.85-АР-3 Фасады 1-18,18-1,А-Б,Б-А. План кровли. План полов схема заполнения оконных проемов ТП 705-1-173.85-АР-4 Схема расположения ригелей стен. Узлы 4-12 ТП 705-1-173.85-КЖ Комплект КЖ ТП 705-1-173.85-КЖ-1 Общие данные ТП 705-1-173.85-КЖ-2 Схема расположения фундаментов и фундаментных балок ТП 705-1-173.85-КЖ-3 Схема расположения фундаментов. Фрагменты планов 1-6 ТП 705-1-173.85-КЖ-4 Схема расположения полурам колонн и прогонов. Схема расположения стоек перегородок ТП 705-1-173.85-КЖ-5 Схема расположения горизонтальных связей. Узлы 1-6 ТП 705-1-173.85-КЖ-6 Схема расположения стеновых панелей и перегородок ТП 705-1-173.85-ОВ Комплект ОВ ТП 705-1-173.85-ОВ-1 Общие данные ТП 705-1-173.85-ОВ-2 План на отм. 0.000. Разрез 1-1 ТП 705-1-173.85-ЭЛ Комплект ЭЛ ТП 705-1-173.85-ЭЛ-1 Общие данные ТП 705-1-173.85-ЭЛ-2 Электросиловое оборудование. Схема принципиальная распределительной сети. Кабельный журнал ТП 705-1-173.85-ЭЛ-3 Электросиловое оборудование. План сетей ТП 705-1-173.85-ЭЛ-4 Электроосвещение. План сетей ТП 705-1-173.85-ЭЛ-5 Молниезащита ТП 705-1-173.85-ЭЛ-6 Автоматическое отключение вентиляции при пожаре ТП 705-1-173.85-ПС Комплект ПС ТП 705-1-173.85-ПС-1 Размещение датчиков пожарной сигнализации ТП 705-1-173.85-ПС-2 Спецификации оборудования |
| Разработан: | ВНИПТИМЭСХ СевкавЗНИИЭПсельстрой ВНИПТИХИМ |
| Утверждён: | 09.11.1983 Министерство сельского хозяйства РСФСР (Russian Federation Ministry of Agriculture 1) |



























