Скачать Серия 1.463-10 Выпуск 1. Треугольные фермы пролетами 6, 9, 12 и 18 м для зданий с кровлей из асбестоцементных волнистых листов. Рабочие чертежиДата актуализации: 01.01.2021
|
| Обозначение: | Серия 1.463-10 |
| Обозначение англ: | Series 1.463-10 |
| Статус: | не действует |
| Название рус.: | Выпуск 1. Треугольные фермы пролетами 6, 9, 12 и 18 м для зданий с кровлей из асбестоцементных волнистых листов. Рабочие чертежи |
| Дата добавления в базу: | 01.09.2013 |
| Дата актуализации: | 01.01.2021 |
| Дата введения: | 01.10.1975 |
| Дата окончания срока действия: | 01.07.1982 |
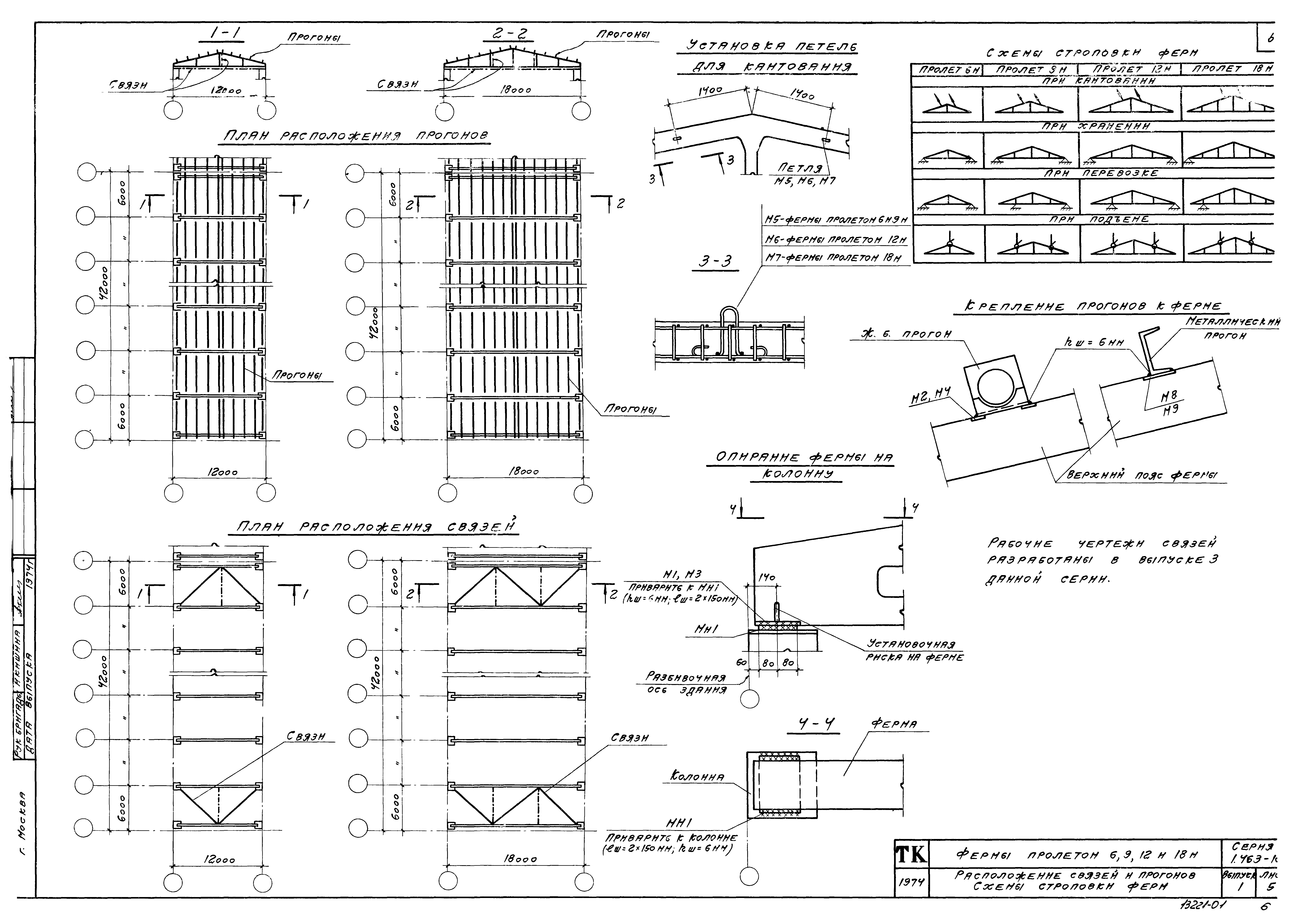
| Оглавление: | 1.463-10 Содержание альбома 1.463-10 Пояснительная записка 1.463-10 Ключ для подбора марок ферм и схемы подвесного транспорта 1.463-10 Расположение связей и прогонов. Схемы строповки ферм 1.463-10 Примеры разбивки закладных изделий для крепления связей и путей подвесного транспорта 1.463-10 Схемы испытаний ферм пролетами 6 и 9 м 1.463-10 Схемы испытаний ферм пролетами 12 и 18 м 1.463-10 Опалубочный чертеж ферм ФТ6-1, ФТ6-2, ФТ6-3, ФТ6-4 1.463-10 Арматурный чертеж ферм ФТ6-1, ФТ6-2, ФТ6-3, ФТ6-4 1.463-10 Арматурные узлы А, Б, В, Г 1.463-10 Опалубочный чертеж ферм ФТ9-1, ФТ9-2, ФТ9-3, ФТ9-4 1.463-10 Выборка стали на ферму 1.463-10 Арматурный чертеж ферм ФТ9-1АIII, ФТ9-2АIII, ФТ9-3АIII, ФТ9-4АIII 1.463-10 Арматурный чертеж ферм ФТ9-1, ФТ9-2, ФТ9-3, ФТ9-4 1.463-10 Арматурные узлы А, Б, В, Г, Д, Е 1.463-10 Опалубочный чертеж ферм ФТ12-1, ФТ12-2, ФТ12-3, ФТ12-4, ФТ12-5 1.463-10 Выборка стали на ферму 1.463-10 Арматурный чертеж ферм ФТ12-1, ФТ12-2, ФТ12-3, ФТ12-4, ФТ12-5 1.463-10 Арматурные узлы А, Б, В, Г, Д 1.463-10 Опалубочный чертеж ферм ФТ18-1, ФТ18-2, ФТ18-3, ФТ18-4, ФТ18-5, ФТ18-6 1.463-10 Выборка стали на ферму 1.463-10 Арматурный чертеж ферм ФТ18-1, ФТ18-2, ФТ18-3 1.463-10 Арматурный чертеж ферм ФТ18-4, ФТ18-5, ФТ18-6 1.463-10 Арматурные узлы А, Б, В, Г, Д |
| Разработан: | НИИЖБ ГПИ Промстройпроект |
| Утверждён: | 16.04.1975 Госстрой СССР (Государственный комитет Совета Министров СССР по делам строительства) (USSR Gosstroy 56) |
| Чем заменён: |
|



























