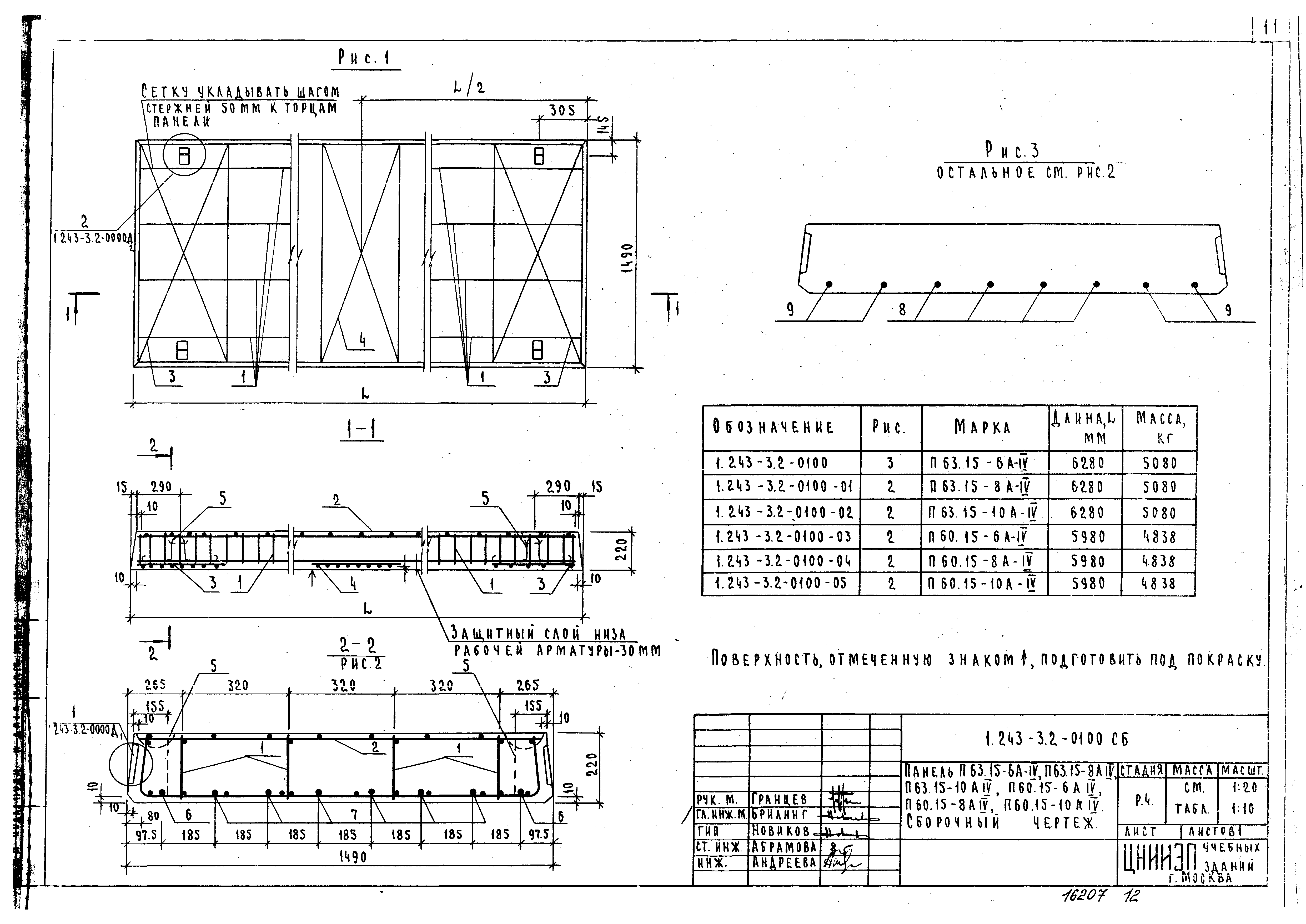
Скачать Серия 1.243-3 Выпуск 2. Предварительно напряженные беспустотные панели длиной 628 и 598 см, шириной 99, 119 и 149 см, армированные стержнями из стали класса А-IV. Метод натяжения - электротермическийДата актуализации: 01.01.2021 Серия 1.243-3
Выпуск 2. Предварительно напряженные беспустотные панели длиной 628 и 598 см, шириной 99, 119 и 149 см, армированные стержнями из стали класса А-IV. Метод натяжения - электротермический| Обозначение: | Серия 1.243-3 | | Обозначение англ: | Series 1.243-3 | | Статус: | не действует | | Название рус.: | Выпуск 2. Предварительно напряженные беспустотные панели длиной 628 и 598 см, шириной 99, 119 и 149 см, армированные стержнями из стали класса А-IV. Метод натяжения - электротермический | | Дата добавления в базу: | 01.09.2013 | | Дата актуализации: | 01.01.2021 | | Дата введения: | 01.03.1980 | | Дата окончания срока действия: | 01.05.1999 | | Разработан: | НИИЖБ Госстроя СССР ЦНИИЭП учебных зданий Госгражданстроя
| | Утверждён: | 14.01.1980 Государственный комитет по гражданскому строительству и архитектуре при Госстрое СССР (15)
|
                    
|