Скачать Типовой проект 902-2-298 Альбом I. Общая пояснительная записка. Технологические чертежи. Архитектурно-строительные решения. Отопление и вентиляция. Электротехнические чертежиДата актуализации: 01.01.2021
|
| Обозначение: | Типовой проект 902-2-298 |
| Обозначение англ: | 902-2-298 |
| Статус: | действует |
| Название рус.: | Альбом I. Общая пояснительная записка. Технологические чертежи. Архитектурно-строительные решения. Отопление и вентиляция. Электротехнические чертежи |
| Дата добавления в базу: | 01.09.2013 |
| Дата актуализации: | 01.01.2021 |
| Дата введения: | 25.02.1978 |
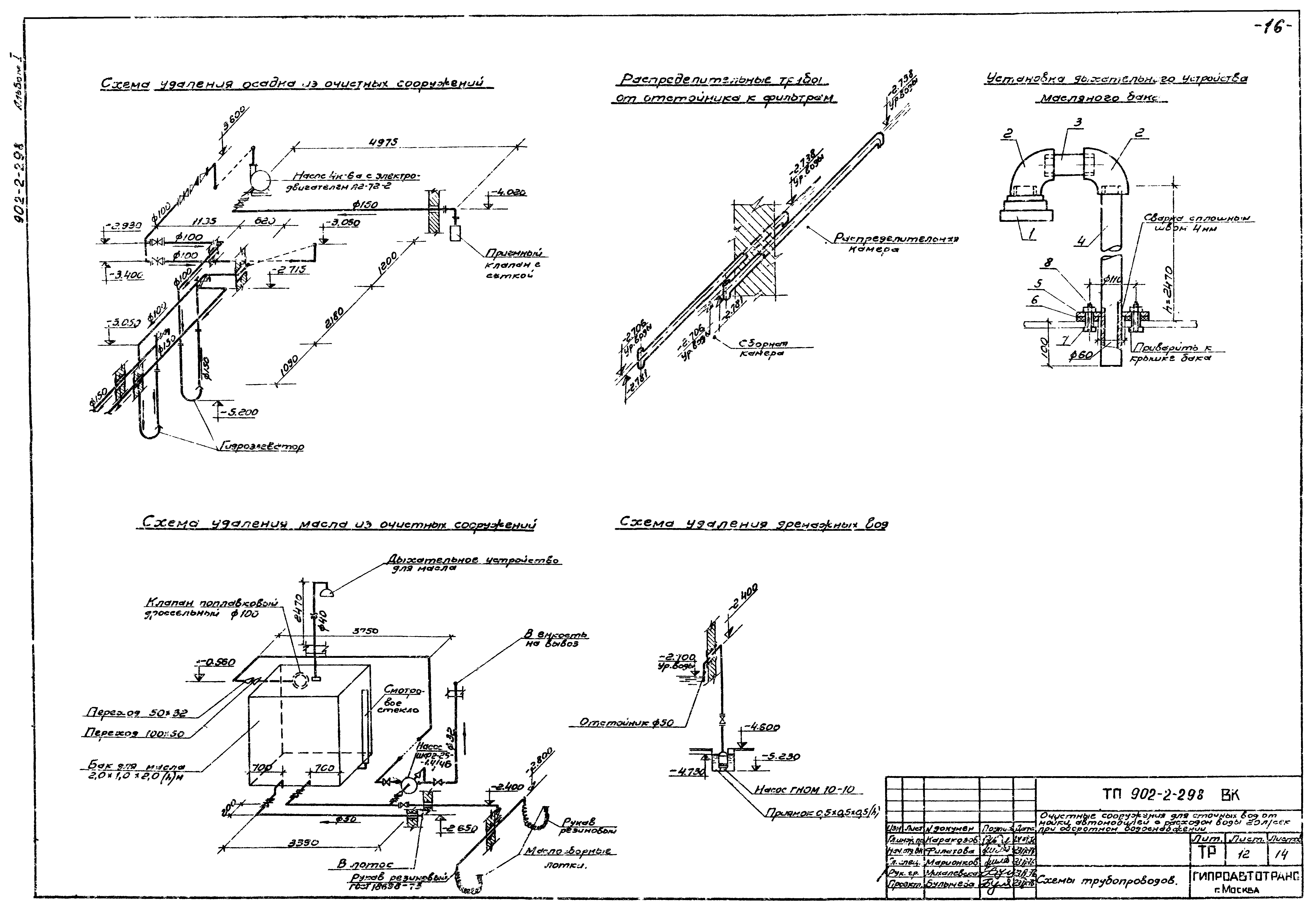
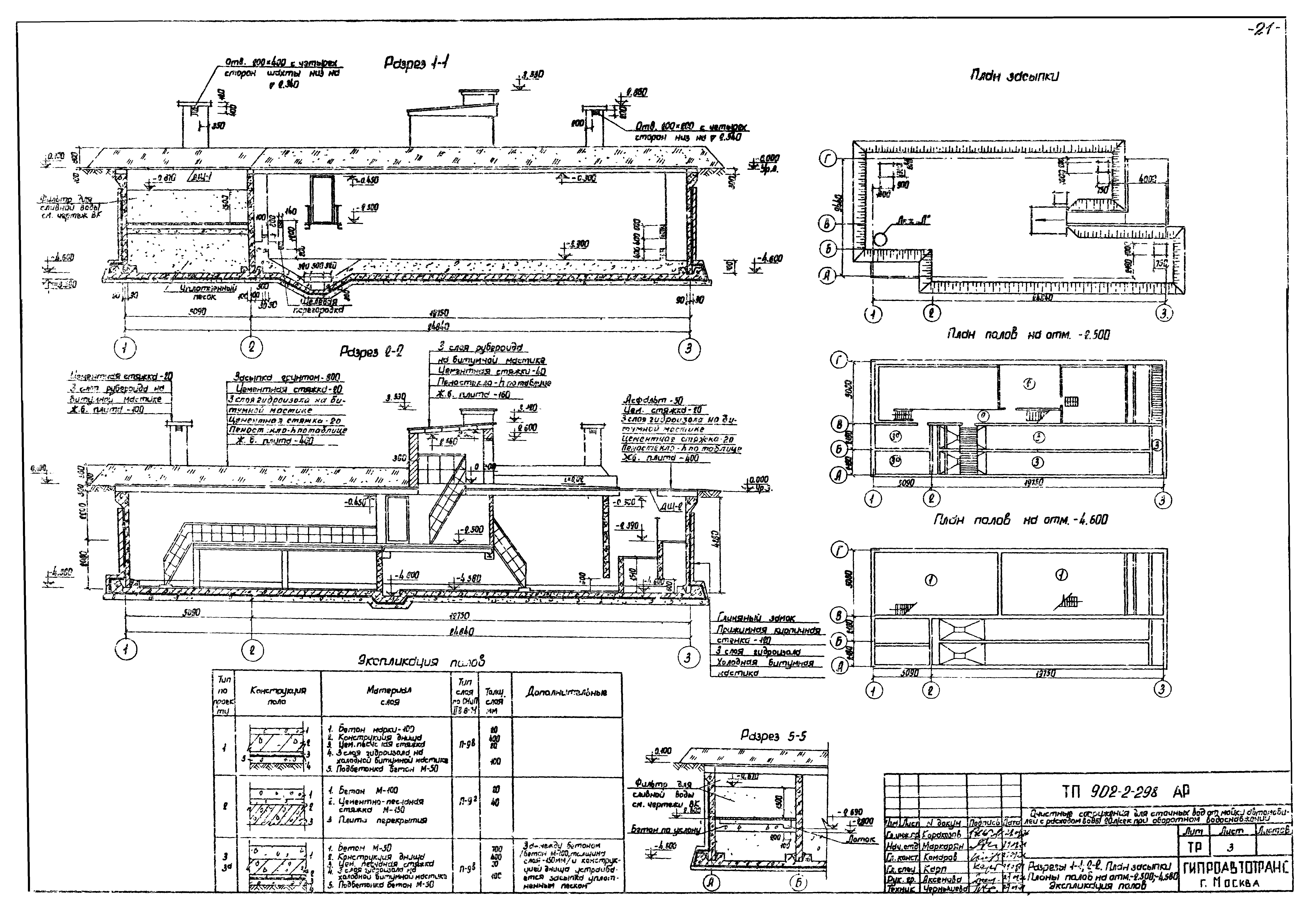
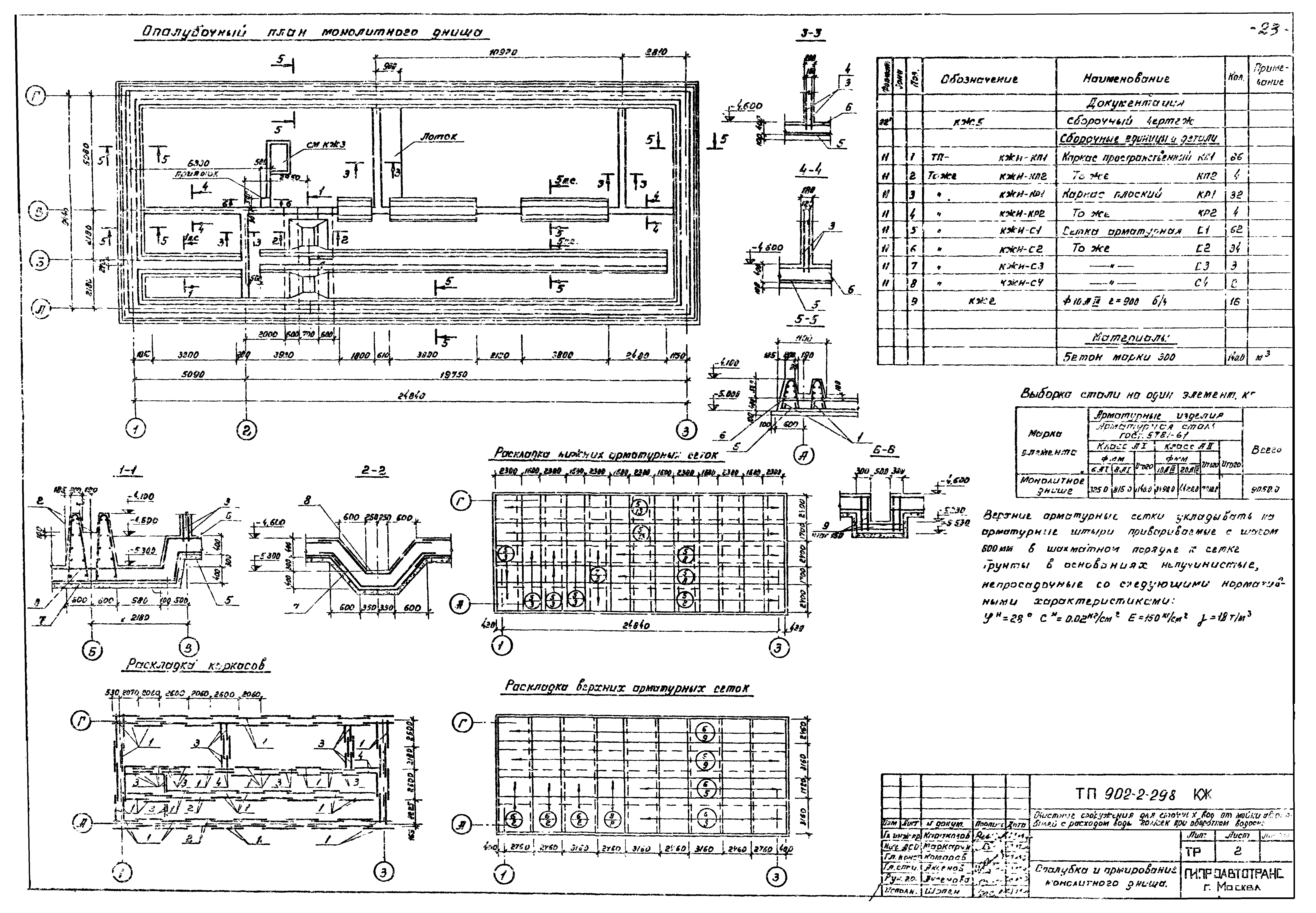
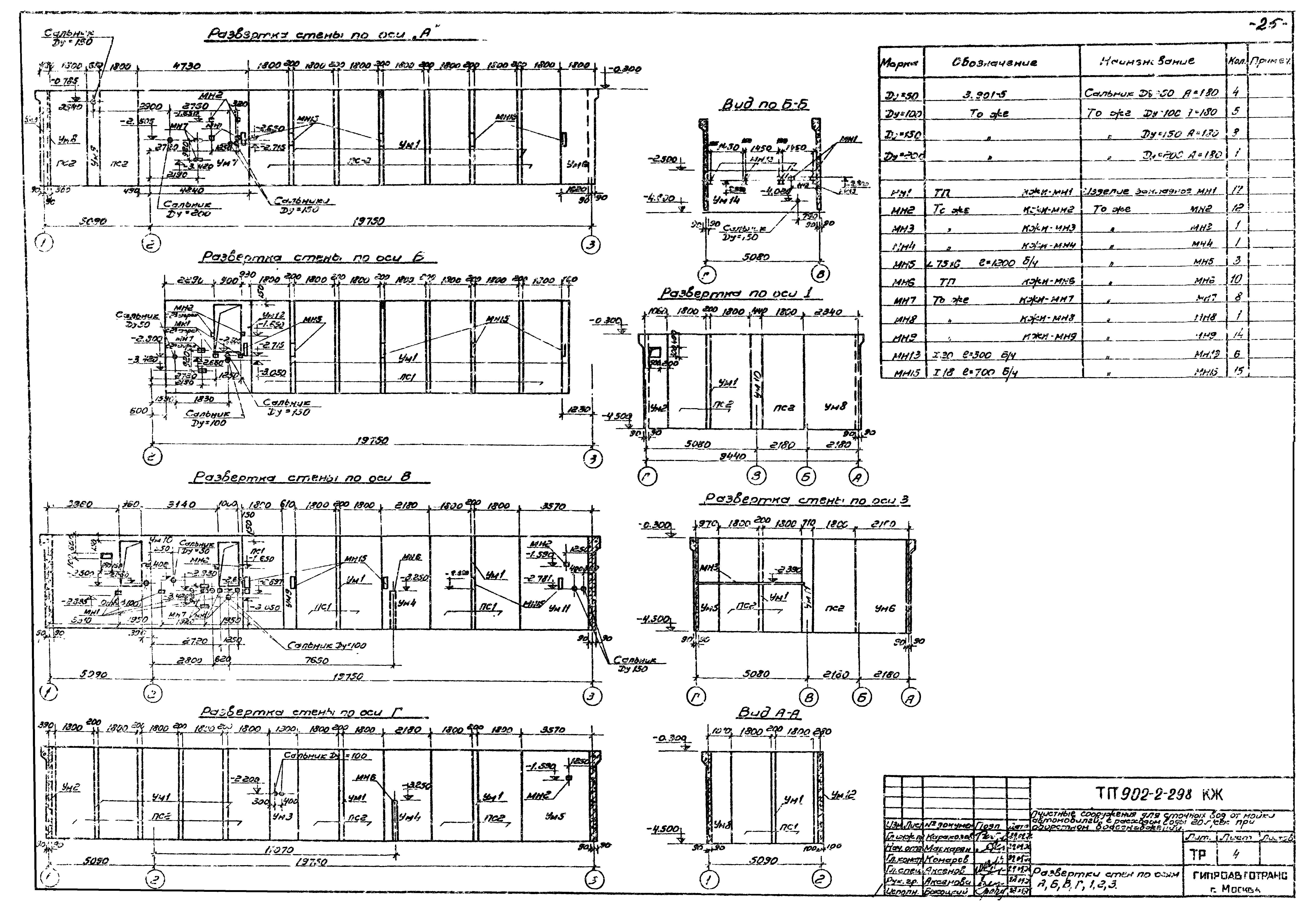
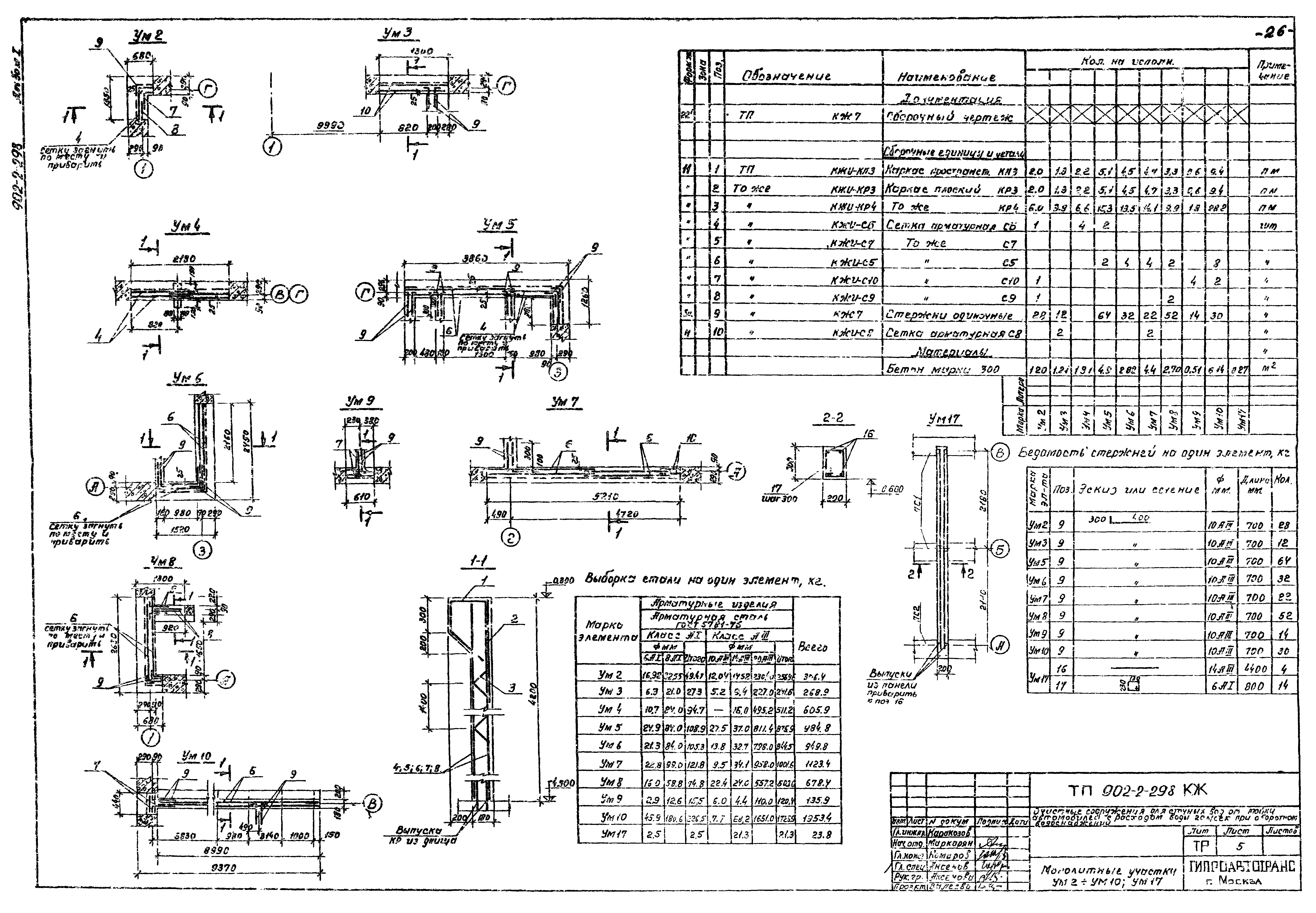
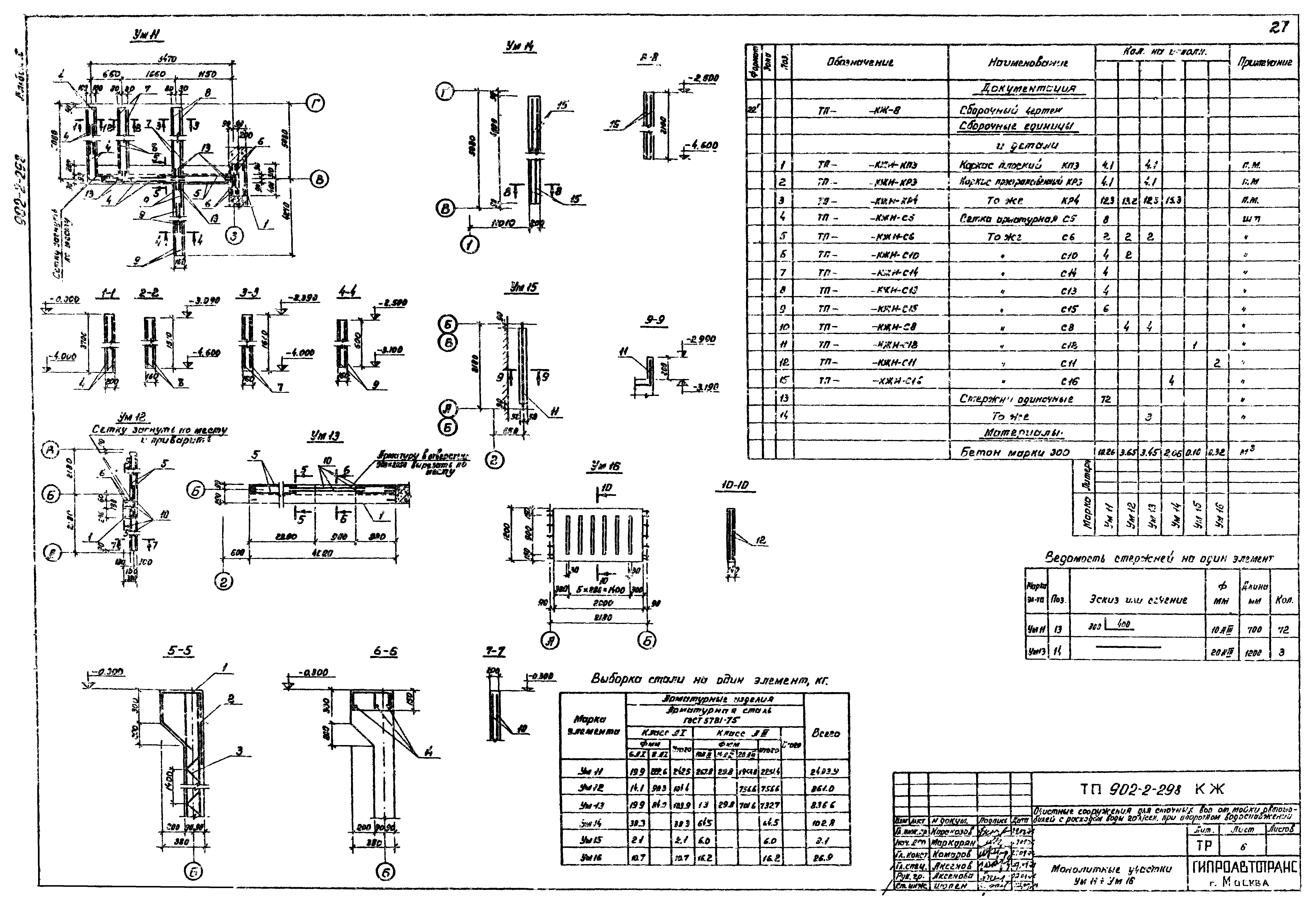
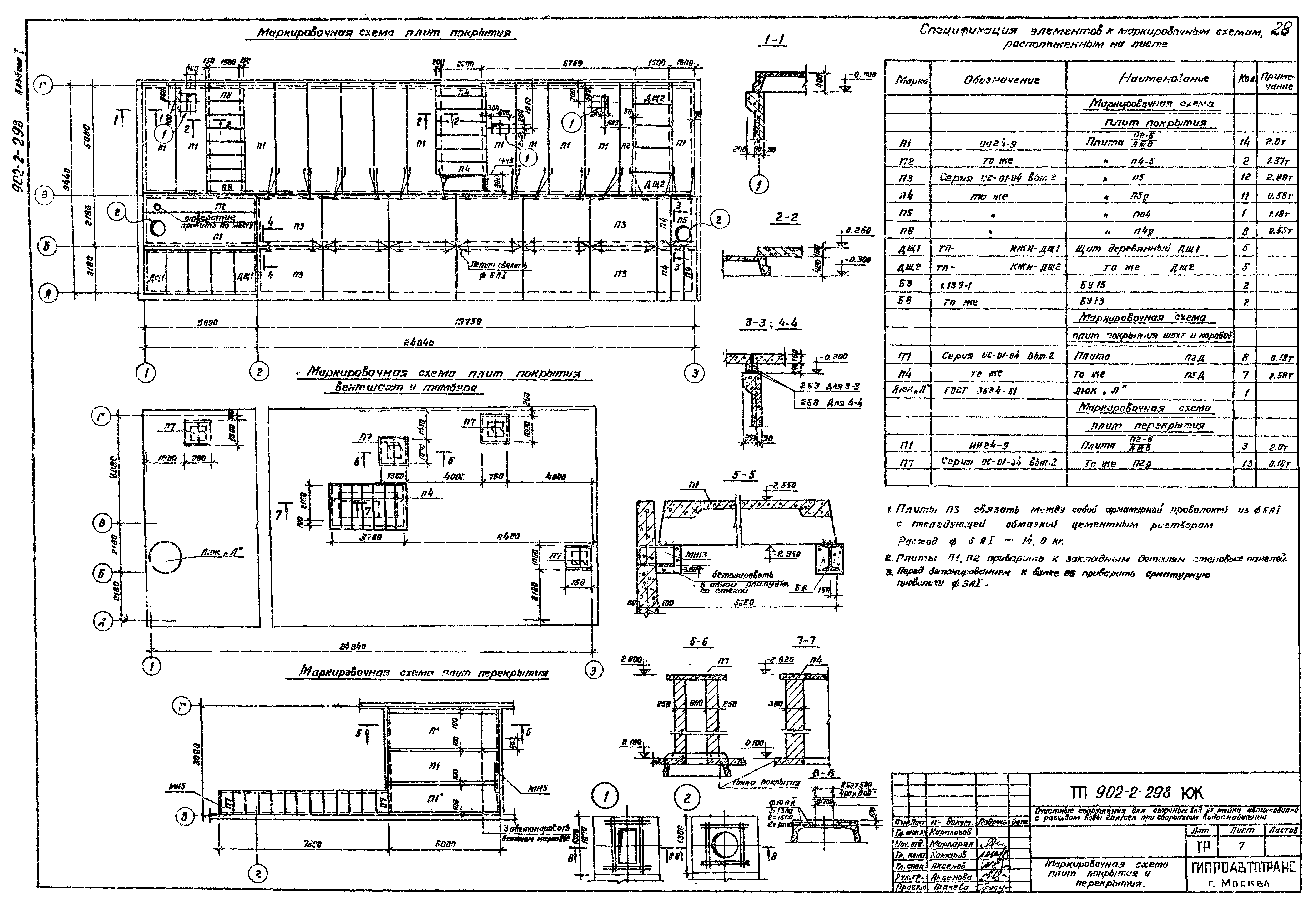
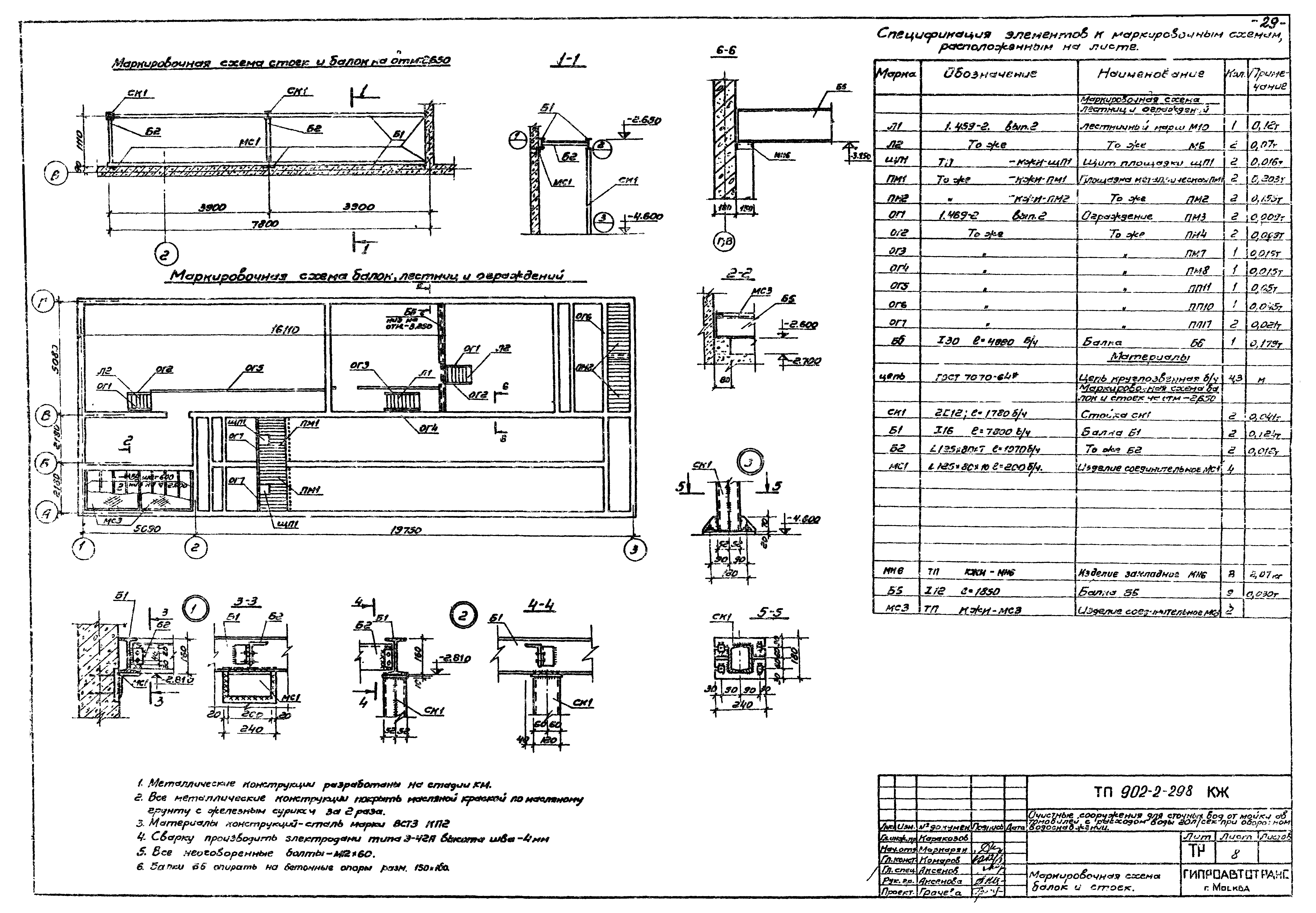
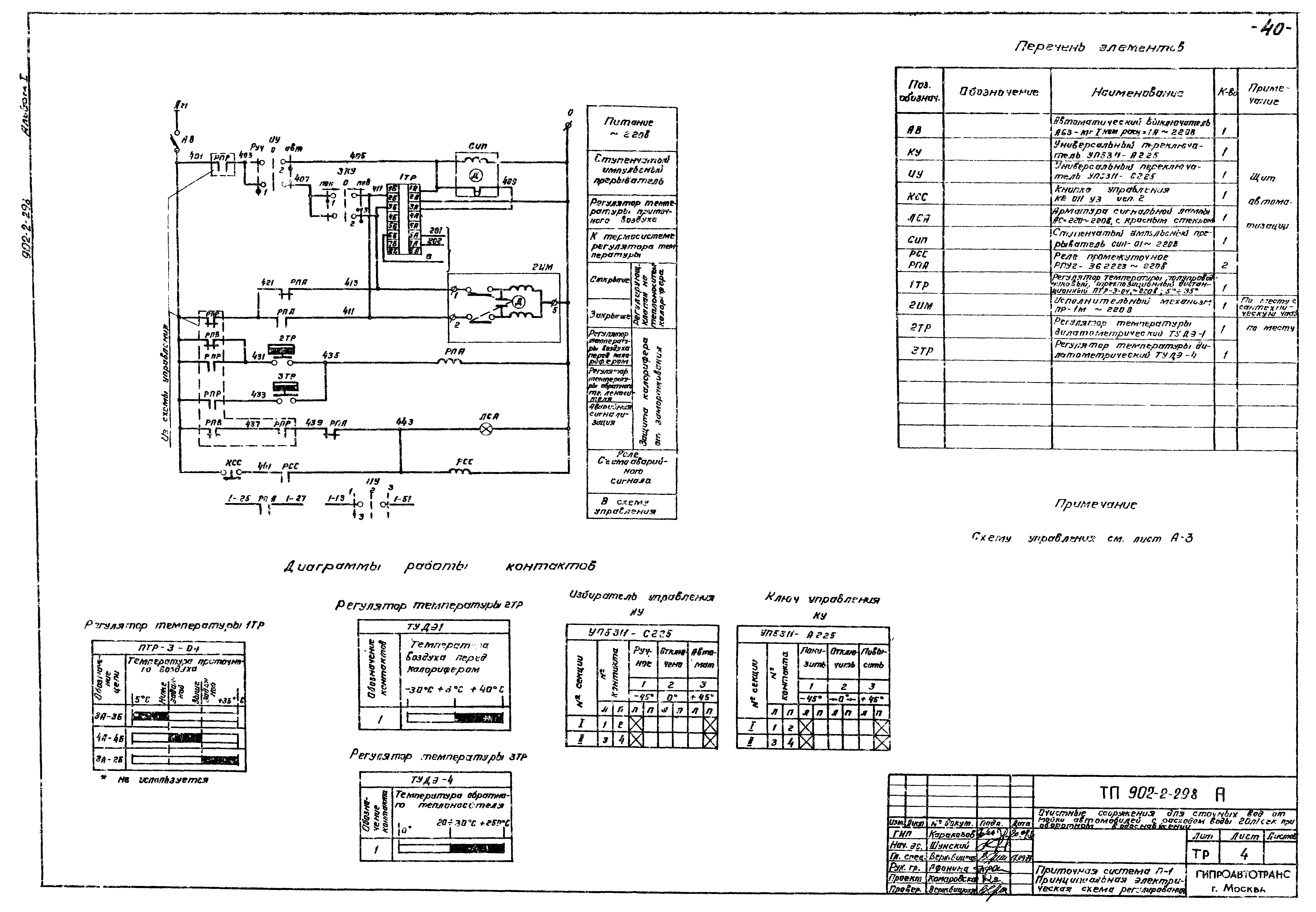
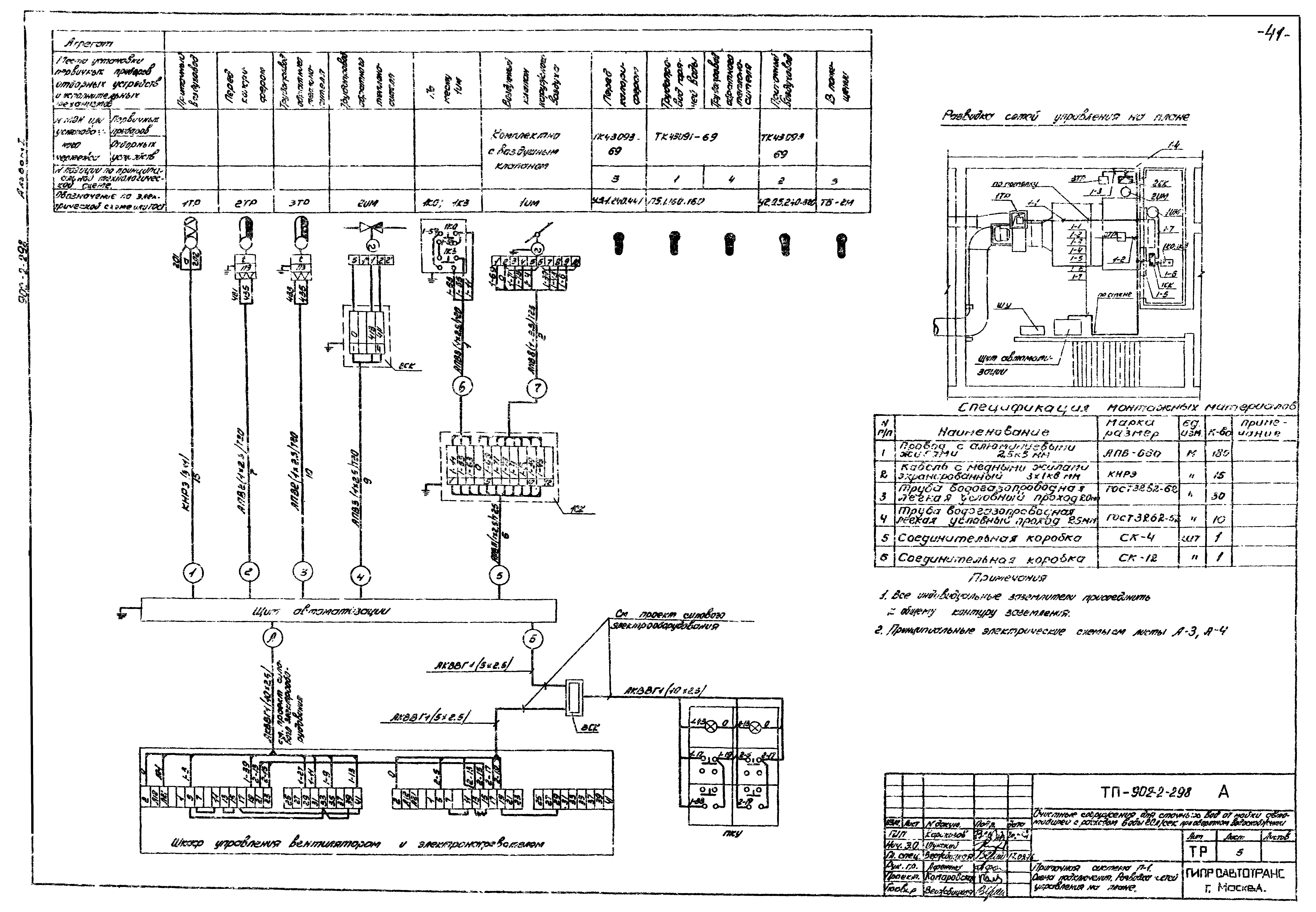
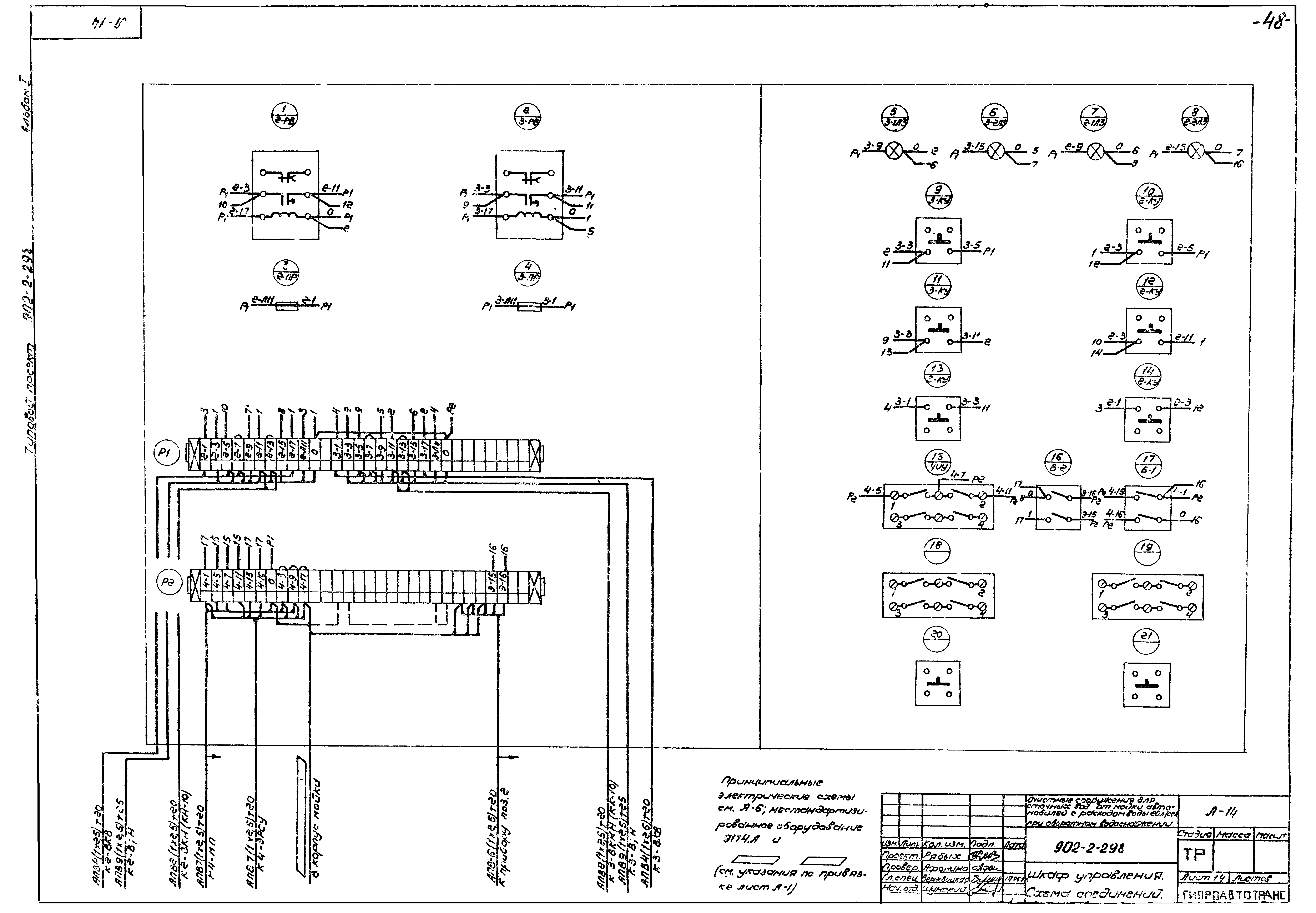
| Оглавление: | ТП 902-2-298 Содержание альбома ТП 902-2-298 Общая пояснительная записка (начало) ТП 902-2-298 Общая пояснительная записка (окончание) ТП 902-2-298-ВК Технологическая часть ТП 902-2-298-ВК-1 Общие данные. Пояснительная записка (начало) ТП 902-2-298-ВК-2 Общие данные. Пояснительная записка (продолжение) ТП 902-2-298-ВК-3 Общие данные. Пояснительная записка (продолжение) ТП 902-2-298-ВК-4 Общие данные. Пояснительная записка (продолжение) ТП 902-2-298-ВК-5 Общие данные. Пояснительная записка (продолжение) ТП 902-2-298-ВК-6 Общие данные. Пояснительная записка (продолжение) ТП 902-2-298-ВК-7 Общие данные. Пояснительная записка (продолжение) ТП 902-2-298-ВК-8 Общие данные. Пояснительная записка (окончание) ТП 902-2-298-ВК-9 План на отм. -2.500 ТП 902-2-298-ВК-10 Разрезы 1-1,4-4,5-5 ТП 902-2-298-ВК-11 Разрезы 2-2,3-3 ТП 902-2-298-ВК-12 Схемы трубопроводов ТП 902-2-298-ВК-13 Сводная спецификация (начало) ТП 902-2-298-ВК-14 Сводная спецификация (окончание) ТП 902-2-298-АР,КЖ Архитектурно-строительные решения ТП 902-2-298-АР-1 Общие данные ТП 902-2-298-АР-2 Планы на отм. 0.280;-2.500;-4.580. Разрезы 3-3,4-4. Узлы ТП 902-2-298-АР-3 Разрезы 1-1,2-2. План засыпки. Планы полов на отм. -2.500,-4.580. Экспликация полов ТП 902-2-298-КЖ-1 Общие данные ТП 902-2-298-КЖ-2 Опалубка и армирование монолитного днища ТП 902-2-298-КЖ-3 Маркировочная схема стеновых панелей, монолитных участков. Разрезы 1-1÷5-5 ТП 902-2-298-КЖ-4 Развертки стен по осям А,Б,В,Г,1,2,3 ТП 902-2-298-КЖ-5 Монолитные участки УМ2-УМ10,УМ17 ТП 902-2-298-КЖ-6 Монолитные участки УМ11-УМ16 ТП 902-2-298-КЖ-7 Маркировочная схема плит покрытия и перекрытия ТП 902-2-298-КЖ-8 Маркировочная схема стоек и балок ТП 902-2-298-ОВ Отопление и вентиляция ТП 902-2-298-ОВ-1 Общие данные. Характеристика отопительно-вентиляционных систем ТП 902-2-298-ОВ-2 Вентиляция, отопление, теплоснабжение. План. Разрез 1-1. Схемы ТП 902-2-298-ОВ-3 Установка системы П1. План. Разрез 1-1. Спецификация ТП 902-2-298-ЭО Электрооборудование ТП 902-2-298-ЭО-1 Электроосвещение ТП 902-2-298-ЭМ Электросиловое оборудование ТП 902-2-298-ЭМ-1 Общие данные ТП 902-2-298-ЭМ-2 Силовое электрооборудование. План. Принципиальная однолинейная схема ТП 902-2-298-ЭМ-3 Масляный насос (электропривод № 1). Схемы управления ТП 902-2-298-ЭМ-4 Лицевая сторона поста управления ПКУ (для заказа) ТП 902-2-298-А Автоматика ТП 902-2-298-А-1 Общие данные ТП 902-2-298-А-2 Приточная схема П-1. Принципиальная технологическая схема ТП 902-2-298-А-3 Приточная схема П-1. Принципиальная электрическая схема управления ТП 902-2-298-А-4 Приточная схема П-1. Принципиальная электрическая схема регулирования ТП 902-2-298-А-5 Приточная схема П-1. Схема подключения. Разводка сетей управления на плане ТП 902-2-298-А-6 Дренажный насос (электропривод № 4). Схемы управления ТП 902-2-298-А-7 Схема контроля уровня воды в водозаборной камере ТП 902-2-298-А-8 Шкаф управления. Схема соединений ТП 902-2-298-А-9 Приточная система П-1. Щит автоматизации. Общий вид ТП 902-2-298-А-10 Приточная система П-1. Щит автоматизации. Схема соединений ТП 902-2-298-А-11 Шкаф управления. Общий вид ТП 902-2-298-А-12 Шкаф управления. Спецификация ТП 902-2-298-А-13 Шкаф управления. Перечень надписей ТП 902-2-298-А-14 Шкаф управления. Схема соединений |
| Разработан: | Гипроавтотранс |
| Утверждён: | 13.06.1977 Минавтотранс РСФСР (Russian Federation Minavtotrans 122) |

















































