Скачать Типовой проект 902-2-311 Альбом II. Технологическая часть. Нестандартизированное оборудованиеДата актуализации: 01.01.2021
|
| Обозначение: | Типовой проект 902-2-311 |
| Обозначение англ: | 902-2-311 |
| Статус: | действует |
| Название рус.: | Альбом II. Технологическая часть. Нестандартизированное оборудование |
| Дата добавления в базу: | 01.09.2013 |
| Дата актуализации: | 01.01.2021 |
| Дата введения: | 13.12.1977 |
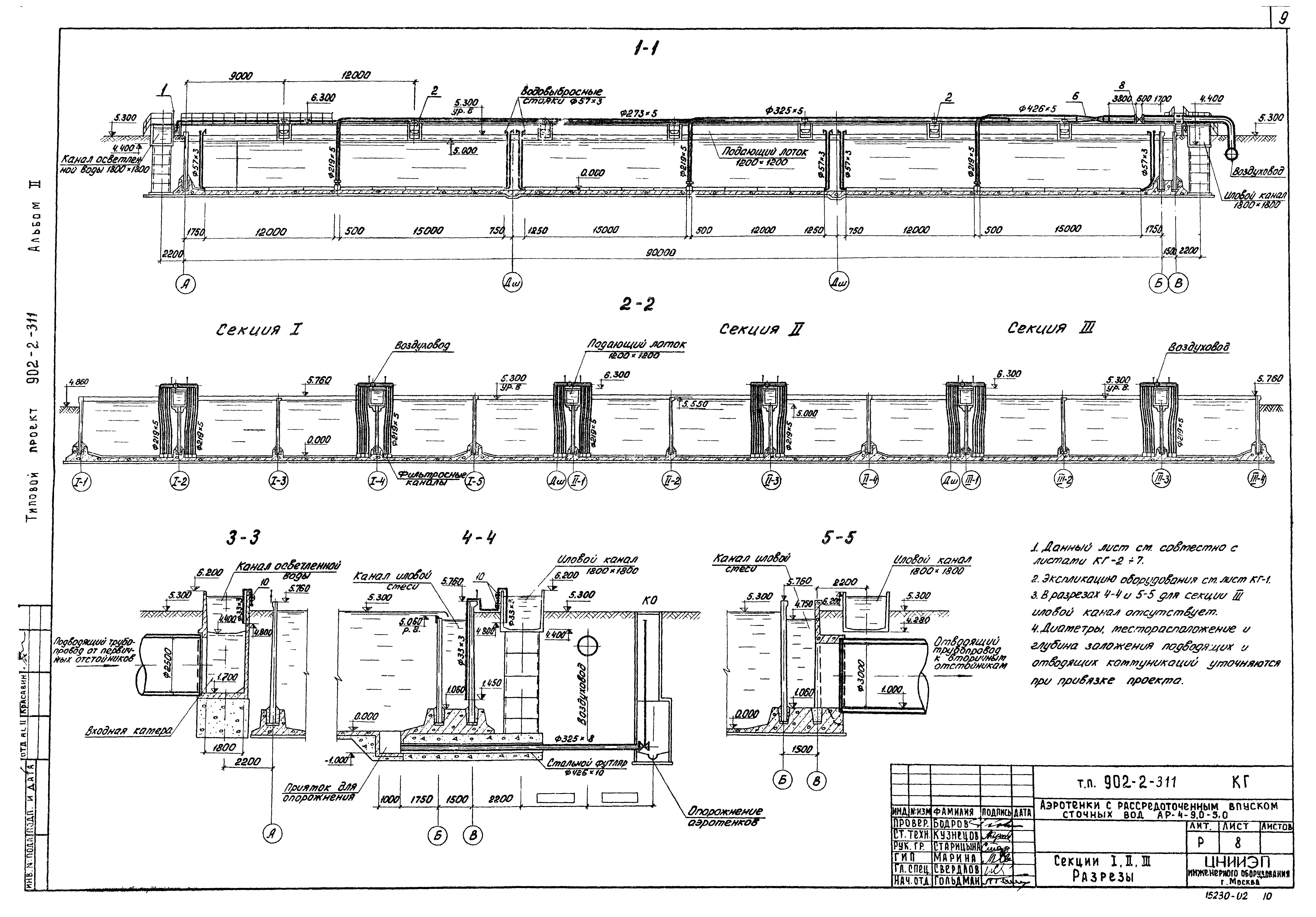
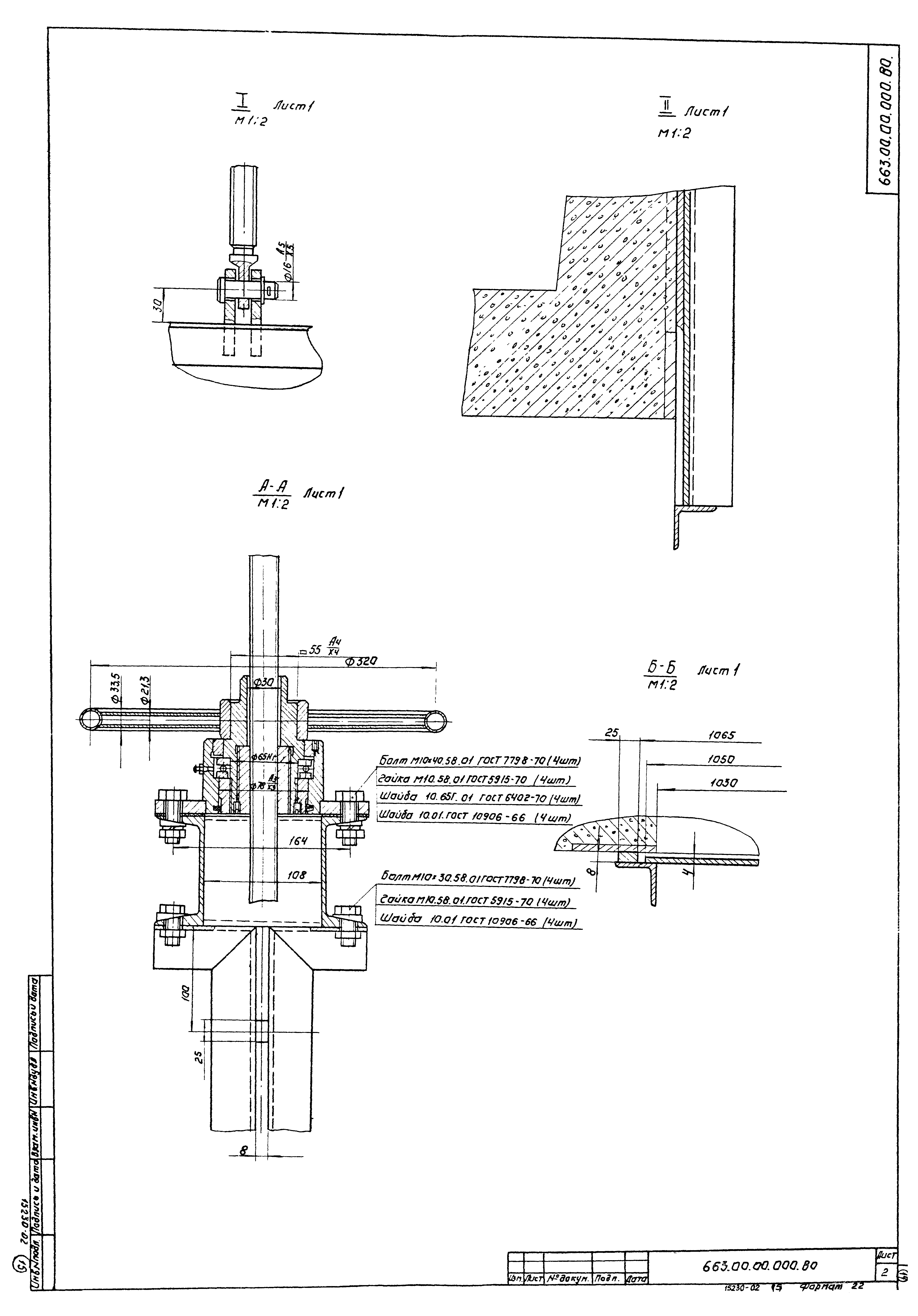
| Оглавление: | ТП 902-2-311-КГ Технологические чертежи ТП 902-2-311-КГ-1 Заглавный лист ТП 902-2-311-КГ-2 Секция 1. План по верху ТП 902-2-311-КГ-3 Секция 1. План по днищу ТП 902-2-311-КГ-4 Секция 2. План по верху ТП 902-2-311-КГ-5 Секция 2. План по днищу ТП 902-2-311-КГ-6 Секция 3. План по верху ТП 902-2-311-КГ-7 Секция 3. План по днищу ТП 902-2-311-КГ-8 Секции 1,2,3. Разрезы ТП 902-2-311-КГ-9 Схема воздуховодов ТП 902-2-311-КГ-10 Детали воздуховодов ТП 902-2-311-КГ-11 Ведомости материалов ТП 902-2-311 Нестандартизированное оборудование ТП 902-2-311 663.00.00.000 ВО Лист 1 Затвор щитовой с подвижным водосливом. Чертеж общего вида ТП 902-2-311 663.00.00.000 ВО Лист 2 Затвор щитовой с подвижным водосливом. Чертеж общего вида |
| Разработан: | ЦНИИЭП |
| Утверждён: | 22.07.1974 Госгражданстрой (Gosgrazhdanstroy 164) |















