Скачать Типовой проект 902-2-311 Альбом III. Строительная часть. Секции I, II и IIIДата актуализации: 01.01.2021
|
| Обозначение: | Типовой проект 902-2-311 |
| Обозначение англ: | 902-2-311 |
| Статус: | действует |
| Название рус.: | Альбом III. Строительная часть. Секции I, II и III |
| Дата добавления в базу: | 01.09.2013 |
| Дата актуализации: | 01.01.2021 |
| Дата введения: | 13.12.1977 |
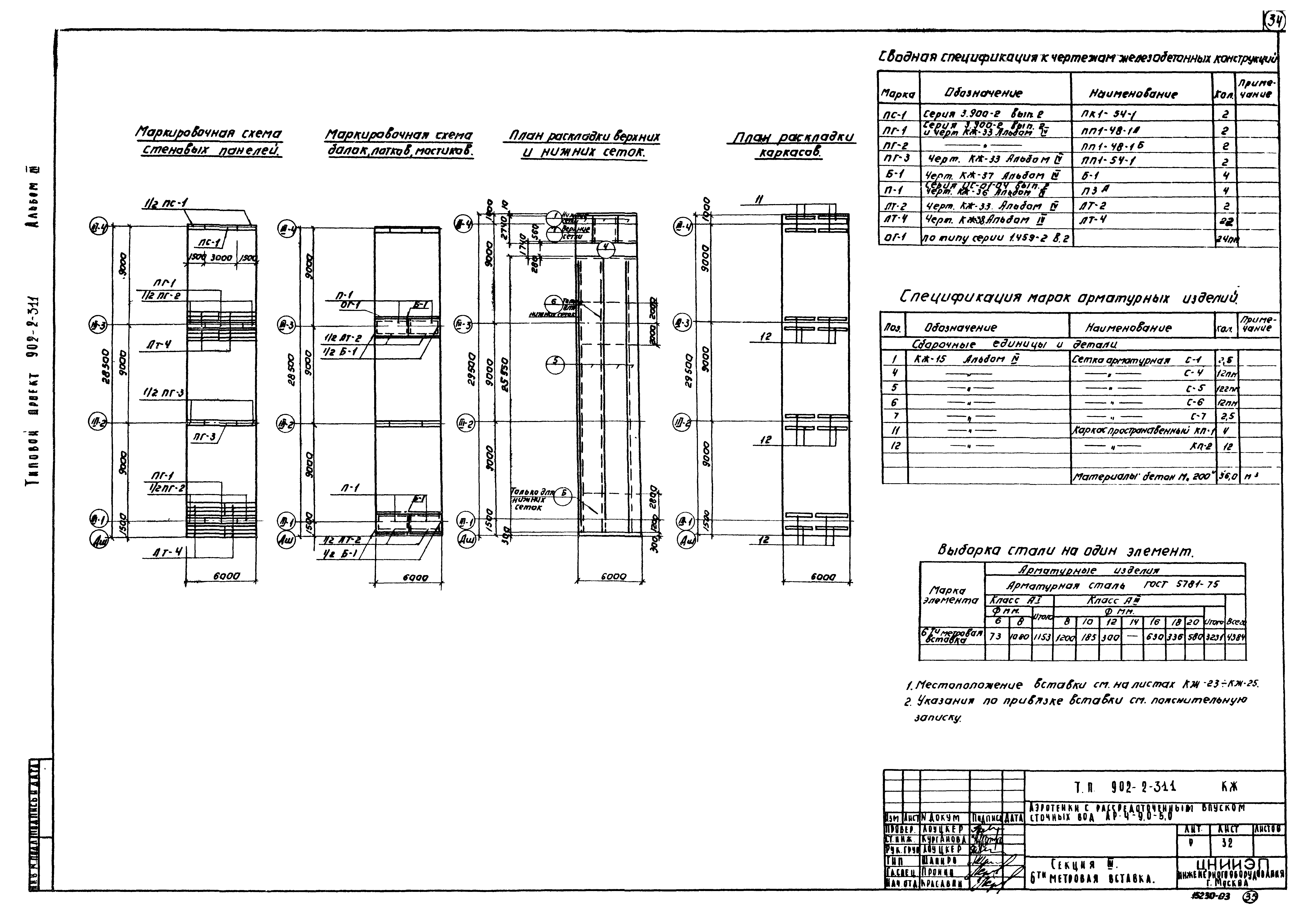
| Оглавление: | ТП 902-2-311-КЖ-1 Общие данные ТП 902-2-311-КЖ-2 Секция 1. Маркировочная схема стеновых панелей и фильтросных лотков ТП 902-2-311-КЖ-3 Секция 1. Маркировочная схема лотков и балок ТП 902-2-311-КЖ-4 Секция 1. План мостиков ТП 902-2-311-КЖ-5 Секция 1,2,3. Разрезы ТП 902-2-311-КЖ-6 Секция 1. Сводная спецификация железобетонных и стальных изделий ТП 902-2-311-КЖ-7 Секция 1. Днище. Опалубочный чертеж. План. Разрезы ТП 902-2-311-КЖ-8 Секция 1. Днище. Армирование. План раскладки нижних сеток ТП 902-2-311-КЖ-9 Секция 1. Днище. Армирование. План раскладки верхних сеток ТП 902-2-311-КЖ-10 Секция 1. Днище. Армирование. План раскладки каркасов. Разрезы 1-1÷3-3 ТП 902-2-311-КЖ-11 Секция 1. Днище. Армирование. Спецификации ТП 902-2-311-КЖ-12 Секция 1. 6ти метровая вставка ТП 902-2-311-КЖ-13 Секция 2. Маркировочная схема стеновых панелей и фильтросных лотков ТП 902-2-311-КЖ-14 Секция 2. Маркировочная схема лотков и балок ТП 902-2-311-КЖ-15 Секция 2. План мостиков ТП 902-2-311-КЖ-16 Секция 2. Сводная спецификация железобетонных и стальных изделий ТП 902-2-311-КЖ-17 Секция 2. Днище. Опалубочный чертеж. План. Разрезы ТП 902-2-311-КЖ-18 Секция 2. Днище. Армирование. План раскладки нижних сеток ТП 902-2-311-КЖ-19 Секция 2. Днище. Армирование. План раскладки верхних сеток ТП 902-2-311-КЖ-20 Секция 2. Днище. Армирование. План раскладки каркасов. Разрезы 1-1;2-2 ТП 902-2-311-КЖ-21 Секция 2. Днище. Армирование. Спецификации ТП 902-2-311-КЖ-22 Секция 2. 6ти метровая вставка ТП 902-2-311-КЖ-23 Секция 3. Маркировочная схема стеновых панелей и фильтросных лотков ТП 902-2-311-КЖ-24 Секция 3. Маркировочная схема лотков и балок ТП 902-2-311-КЖ-25 Секция 3. План мостиков ТП 902-2-311-КЖ-26 Секция 3. Сводная спецификация железобетонных и стальных изделий ТП 902-2-311-КЖ-27 Секция 3. Днище. Опалубочный чертеж. План. Разрезы ТП 902-2-311-КЖ-28 Секция 3. Днище. Армирование. План раскладки нижних сеток ТП 902-2-311-КЖ-29 Секция 3. Днище. Армирование. План раскладки верхних сеток ТП 902-2-311-КЖ-30 Секция 3. Днище. Армирование. План раскладки каркасов. Разрезы 1-1;2-2 ТП 902-2-311-КЖ-31 Секция 3. Днище. Армирование. Спецификации ТП 902-2-311-КЖ-32 Секция 3. 6ти метровая вставка |
| Разработан: | ЦНИИЭП |
| Утверждён: | 22.07.1974 Госгражданстрой (Gosgrazhdanstroy 164) |



































