Скачать Серия 2.179-КР-1 Выпуск 5. Виброизоляция транспортеровДата актуализации: 01.01.2021
|
| Обозначение: | Серия 2.179-КР-1 |
| Обозначение англ: | Series 2.179-КР-1 |
| Статус: | не действует |
| Название рус.: | Выпуск 5. Виброизоляция транспортеров |
| Дата добавления в базу: | 01.09.2013 |
| Дата актуализации: | 01.01.2021 |
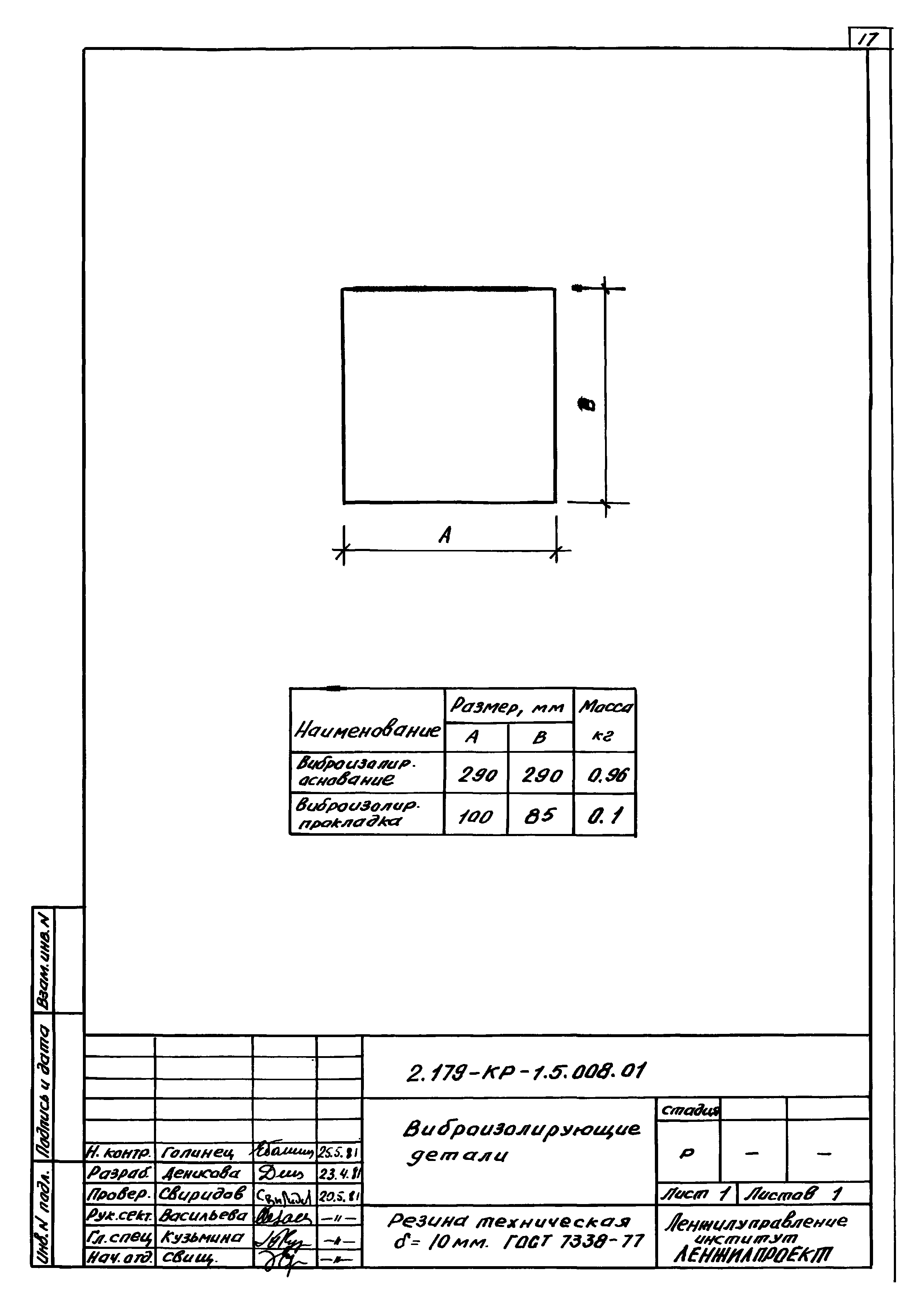
| Оглавление: | 2.179-КР-1 Состав серии 2.179-КР-1.5.001 Содержание 2.179-КР-1.5.002 Пояснительная записка 2.179-КР-1.5.003 Виброизоляция транспортера ТГ-1м путем установки его опор на "плавающие" фундаменты 2.179-КР-1.5.004 Железобетонная плита под опору транспортера ТГ-1м 2.179-КР-1.5.005 Упругое основание под опору транспортера ТГ-1м 2.179-КР-1.5.006 СБ Конструкция металлической опоры 2.179-КР-1.5.006.01 Опорная плита 2.179-КР-1.5.006.02 Косынка 2.179-КР-1.5.006.03 Горизонтальная связь 2.179-КР-1.5.006.04 Стойка 2.179-КР-1.5.007 Виброизоляция транспортера ТГ-1м путем установки его на виброопоры 2.179-КР-1.5.008 СБ Узел. Виброизоляция опоры транспортера 2.179-КР-1.5.008.01 Виброизолирующие детали 2.179-КР-1.5.009 СБ Узел виброизоляции опоры транспортера 2.179-КР-1.5.009.01 Амортизатор 2.179-КР-1.5.010 Виброизоляция транспортера ТГ-1м при установке его в оконном проеме 2.179-КР-1.5.011 Мероприятия по виброизоляции установки для разгрузки картофеля 2.179-КР-1.5.012 Виброизоляция емкости для взвешивания картофеля и лотка |
| Разработан: | ЛенжилНИИпроект |
| Утверждён: | 28.05.1981 ЛенжилНИИпроект (12) |





















