Скачать Серия ИИС20-9 Альбом 1. Общестроительные чертежиДата актуализации: 01.01.2021
|
| Обозначение: | Серия ИИС20-9 |
| Обозначение англ: | Series ИИС20-9 |
| Статус: | не действует |
| Название рус.: | Альбом 1. Общестроительные чертежи |
| Дата добавления в базу: | 01.09.2013 |
| Дата актуализации: | 01.01.2021 |
| Дата введения: | 01.05.1971 |
| Дата окончания срока действия: | 01.06.1990 |
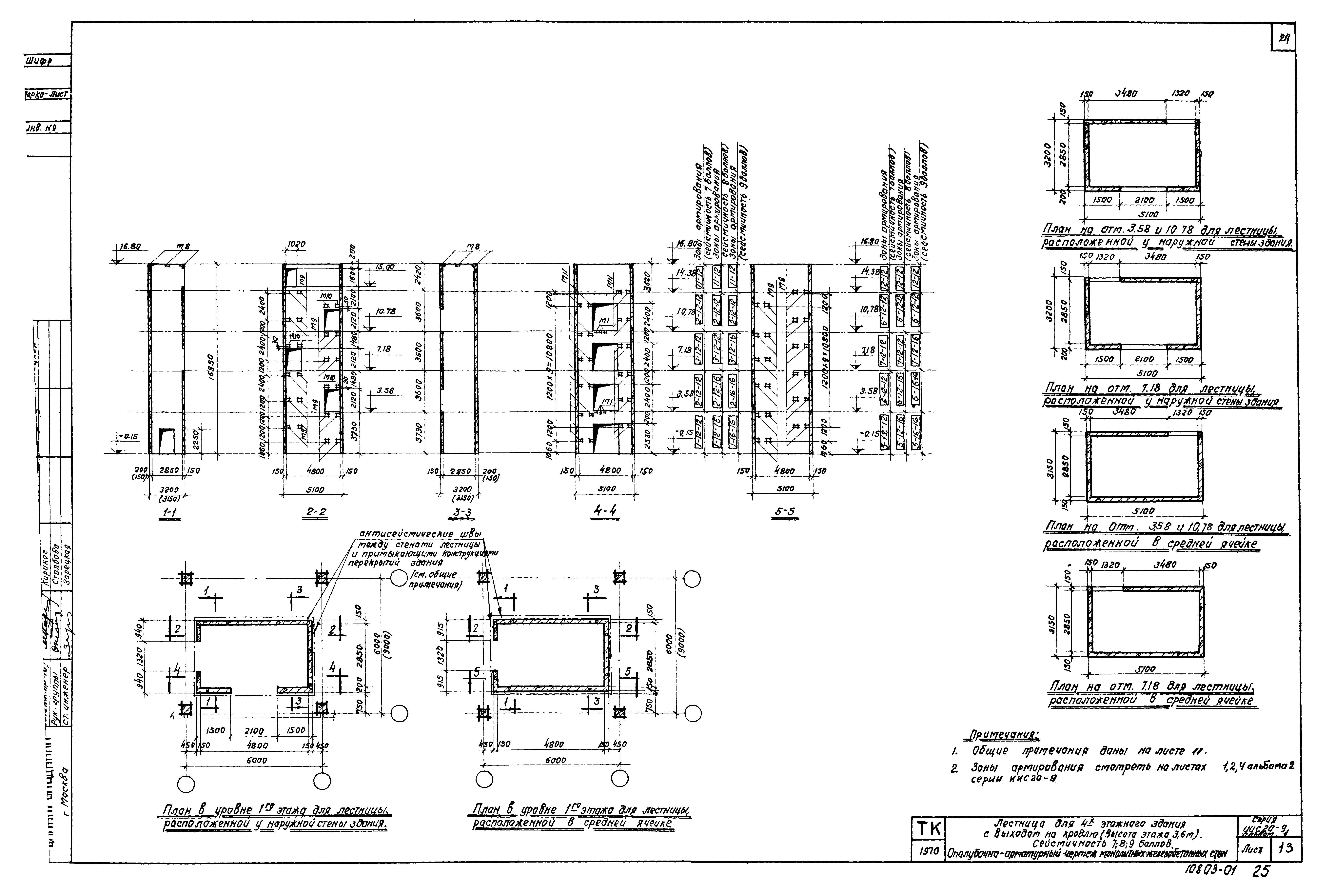
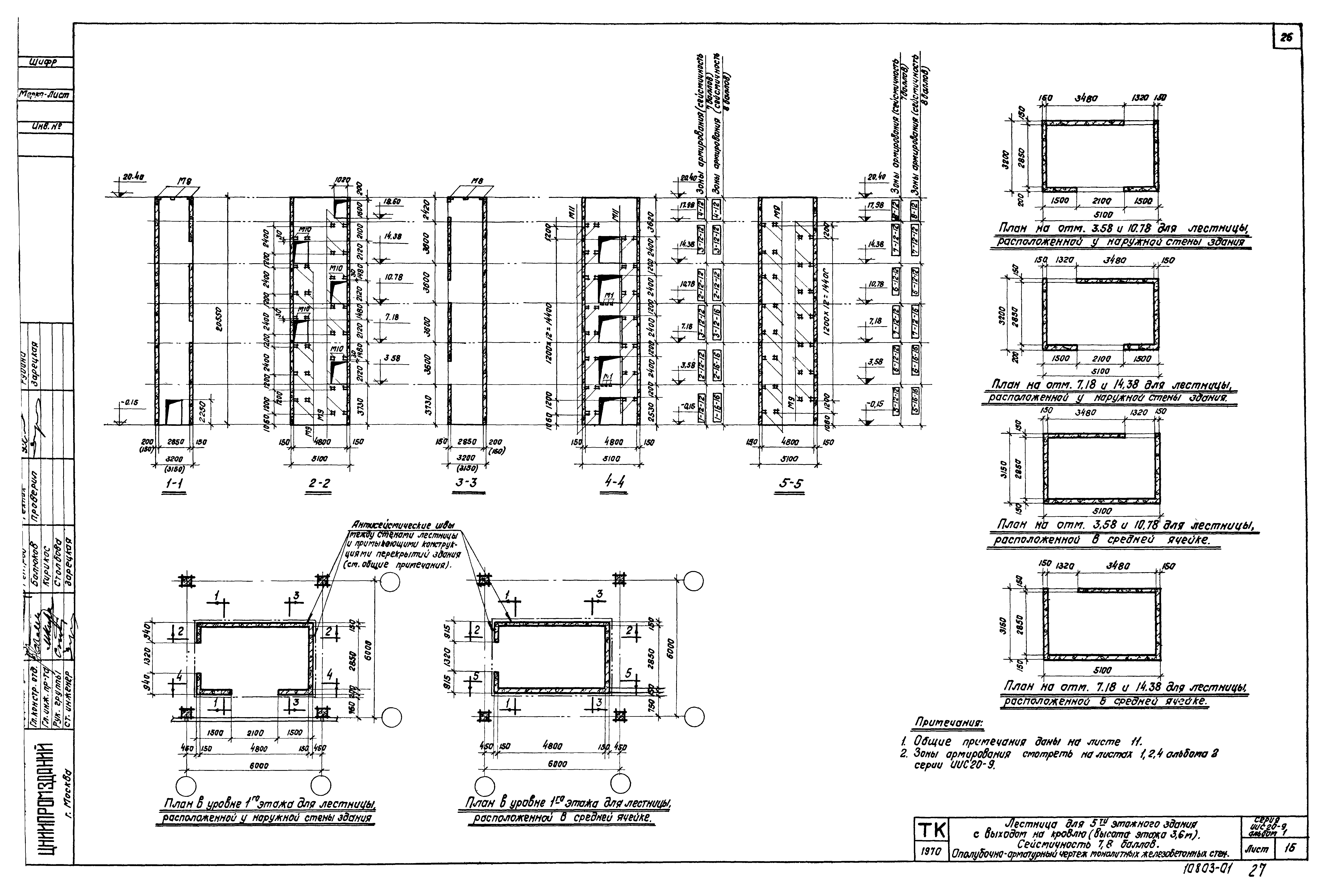
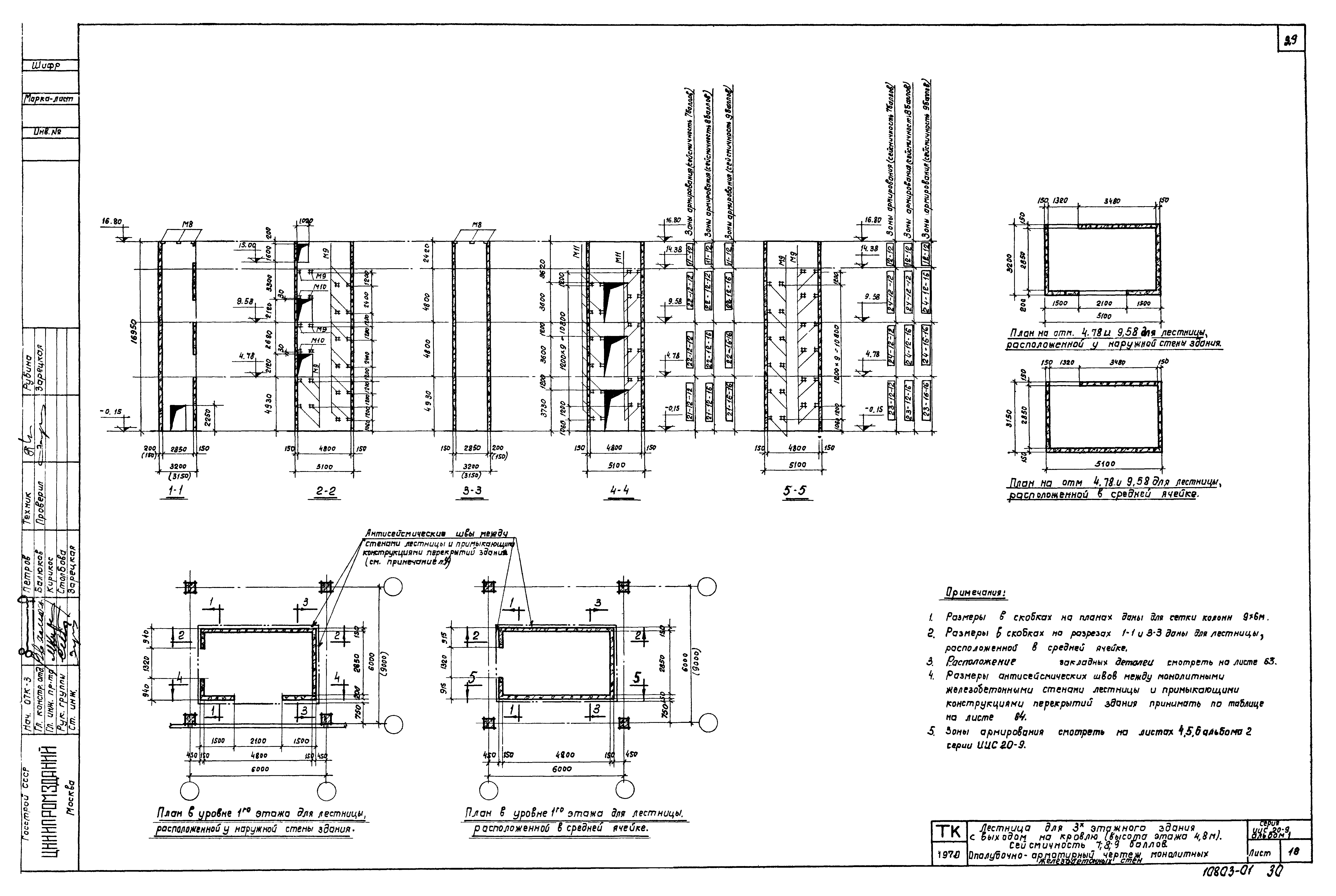
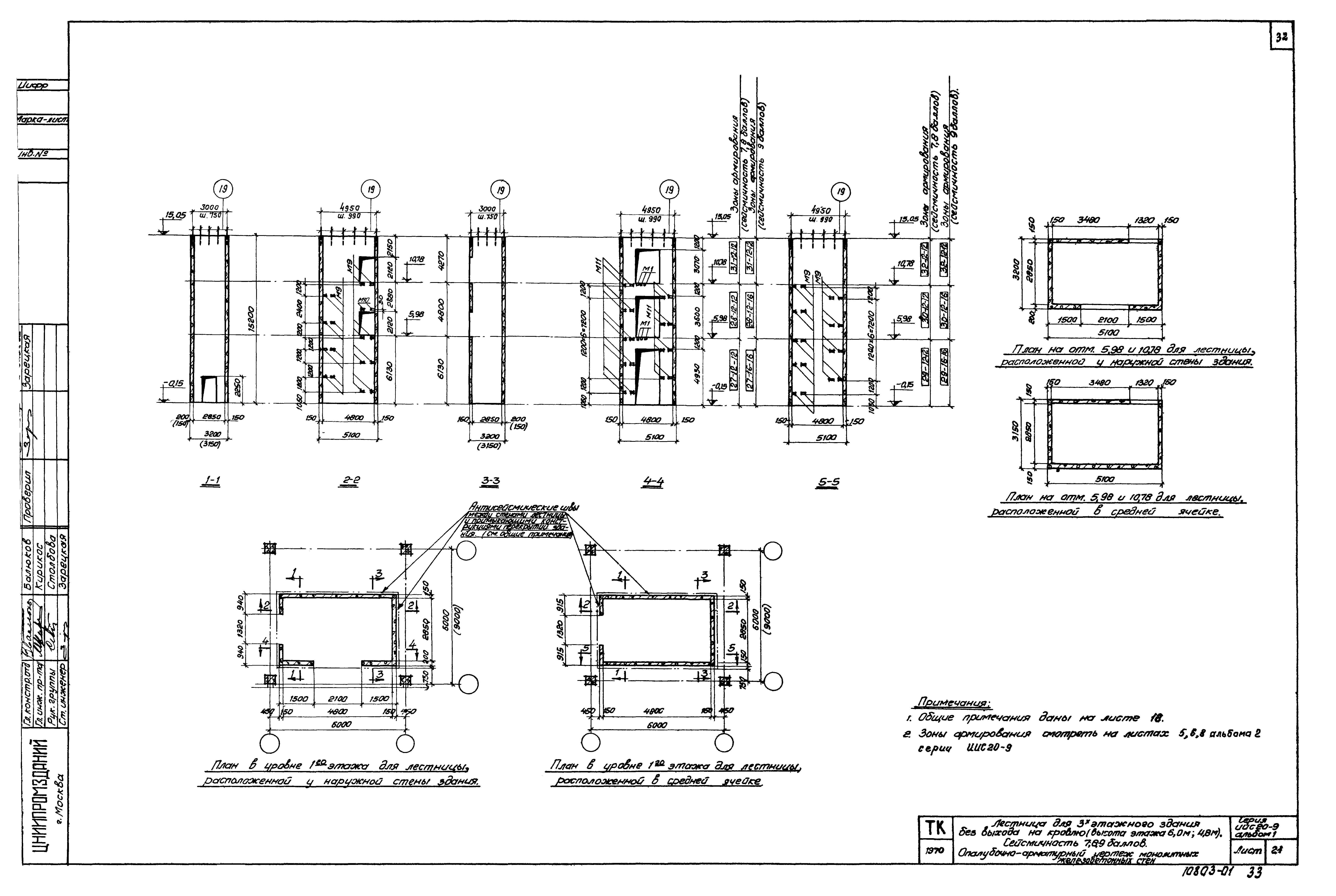
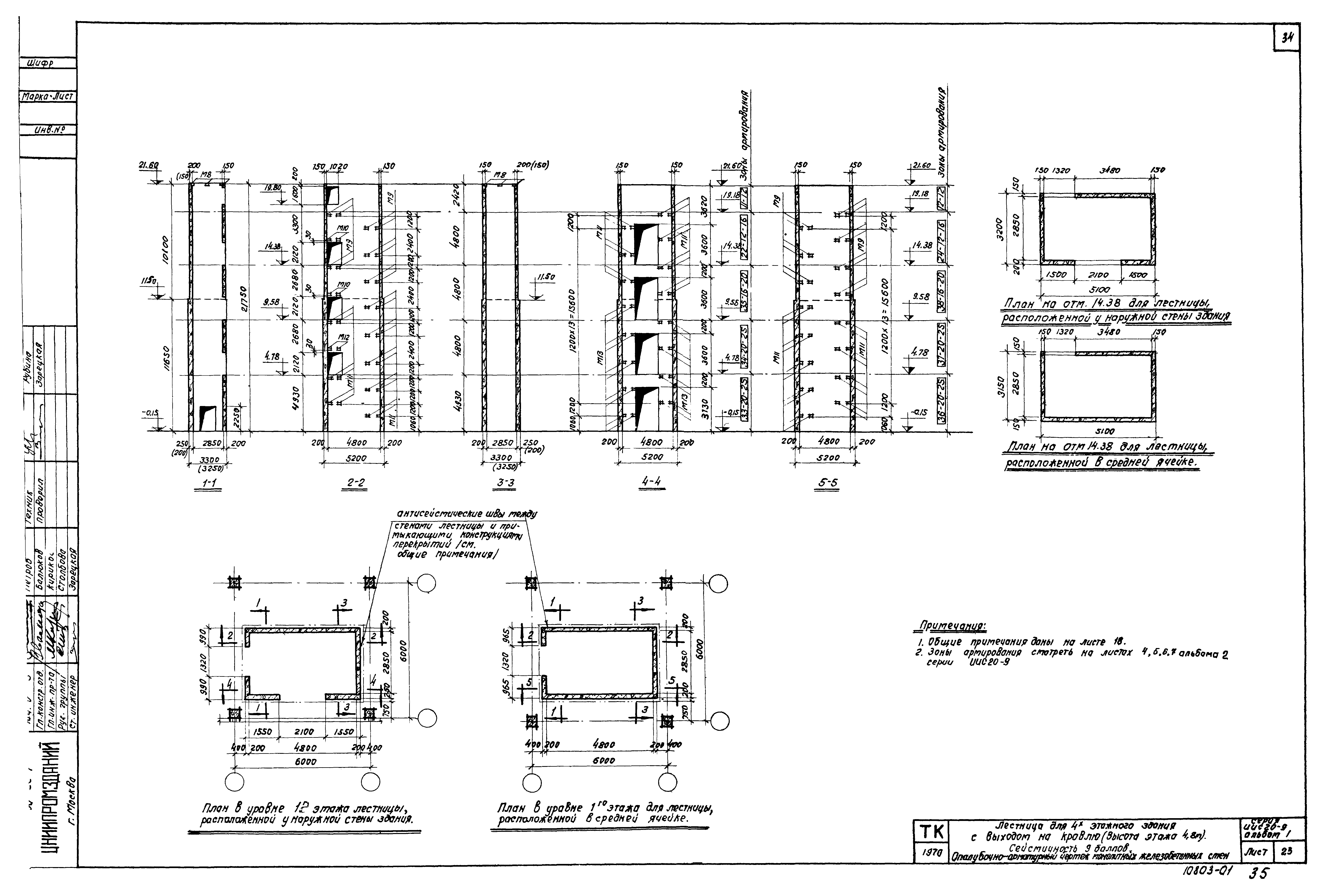
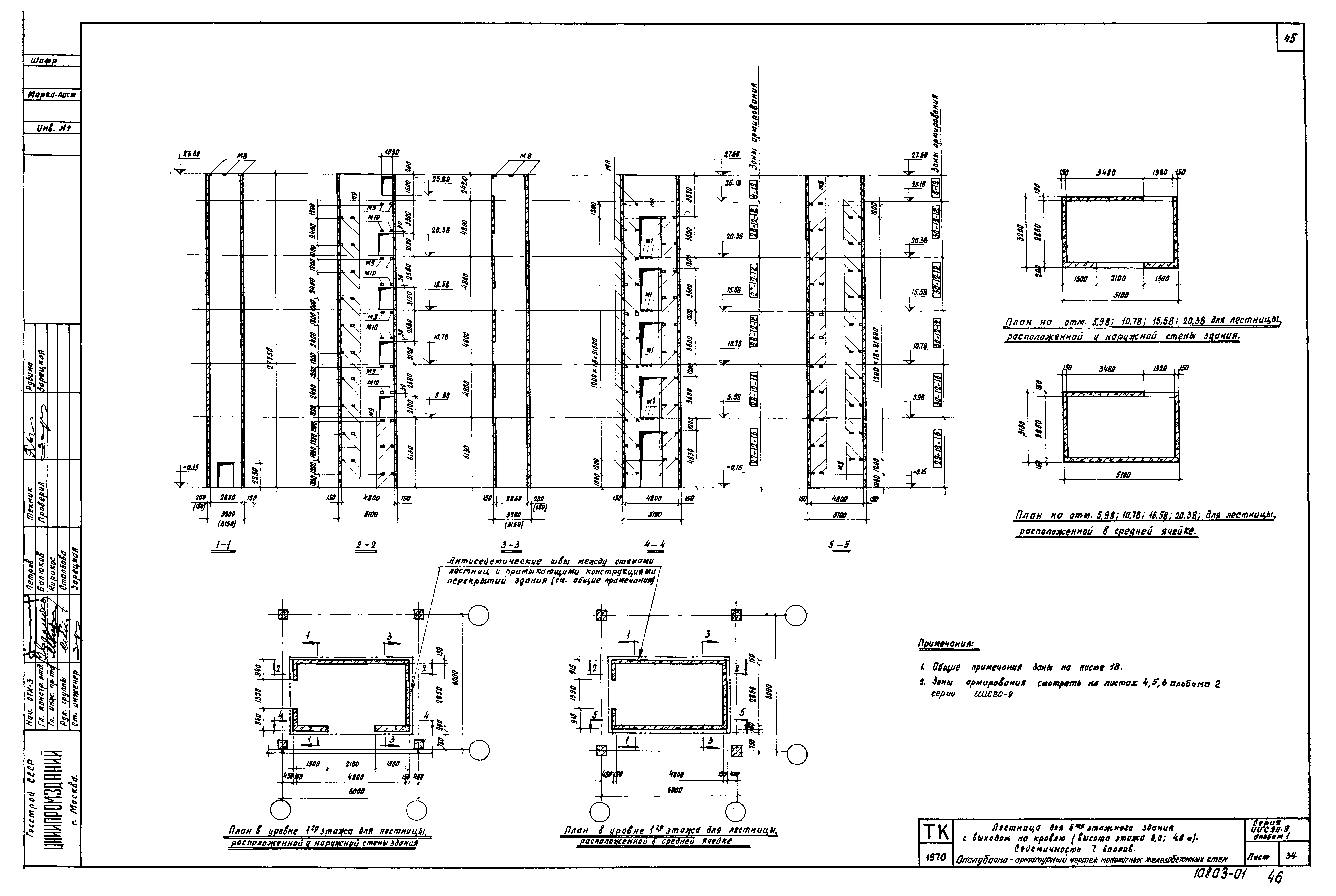
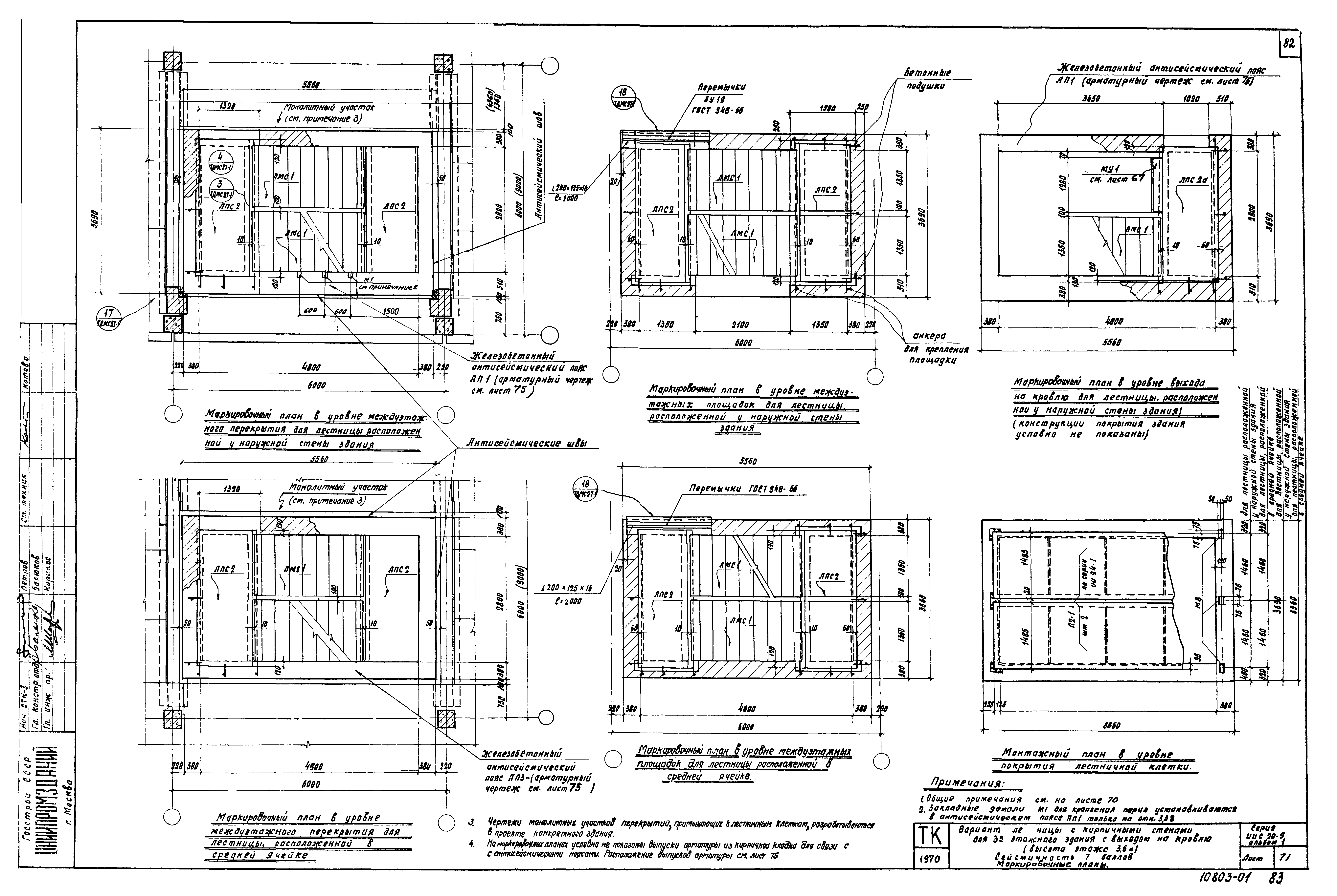
| Оглавление: | ИИС20-9 Пояснительная записка ИИС20-9 Рабочие чертежи ИИС20-9 Примеры размещения лестничных клеток в здании ИИС20-9 Схемы разрезов лестниц. Выбор материала для стен лестничных клеток в зависимости от высоты здания и сейсмичности ИИС20-9 Лестница со стенами из монолитного железобетона, расположенная у наружных стен и в средней ячейке. Планы ИИС20-9 Лестница со стенами из монолитного железобетона с выходом и без выхода на кровлю. Разрезы для зданий с высотой этажей 4,8 и 6,0;4,8 м ИИС20-9 Лестница со стенами из монолитного железобетона без выхода на кровлю. Разрезы для зданий с высотой этажей 6,0 И 7,2;6,0 м ИИС20-9 Лестница с кирпичными стенами с выходом и без выхода на кровлю. Планы и разрезы. Высота этажей 3,6 и 4,8 м ИИС20-9 Фрагменты фасадов (лестничные клетки с монолитными железобетонными стенами) ИИС20-9 Фрагменты фасадов (лестничные клетки с монолитными железобетонными и кирпичными стенами) ИИС20-9 Маркировка перил в лестничных клетках с монолитными железобетонными и кирпичными стенами ИИС20-9 Лестница для 3-х этажного здания с выходом на кровлю (высота этажа 3,6 м). Сейсмичность 7,8,9 баллов. Опалубочно-арматурный чертеж монолитных железобетонных стен ИИС20-9 Лестница для 3-х этажного здания без выхода на кровлю (высота этажа 3,6 м). Сейсмичность 7,8,9 баллов. Опалубочно-арматурный чертеж монолитных железобетонных стен ИИС20-9 Лестница для 4-х этажного здания с выходом на кровлю (высота этажа 3,6 м). Сейсмичность 7,8,9 баллов. Опалубочно-арматурный чертеж монолитных железобетонных стен ИИС20-9 Лестница для 4-х этажного здания без выхода на кровлю (высота этажа 3,6 м). Сейсмичность 7,8,9 баллов. Опалубочно-арматурный чертеж монолитных железобетонных стен ИИС20-9 Лестница для 5-ти этажного здания с выходом на кровлю (высота этажа 3,6 м). Сейсмичность 7,8 баллов. Опалубочно-арматурный чертеж монолитных железобетонных стен ИИС20-9 Лестница для 5-ти этажного здания с выходом на кровлю (высота этажа 3,6 м). Сейсмичность 9 баллов. Опалубочно-арматурный чертеж монолитных железобетонных стен ИИС20-9 Лестница для 5-ти этажного здания без выхода на кровлю (высота этажа 3,6 м). Сейсмичность 7,8,9 баллов. Опалубочно-арматурный чертеж монолитных железобетонных стен ИИС20-9 Лестница для 3-х этажного здания с выходом на кровлю (высота этажа 4,8 м). Сейсмичность 7,8,9 баллов. Опалубочно-арматурный чертеж монолитных железобетонных стен ИИС20-9 Лестница для 3-х этажного здания без выхода на кровлю (высота этажа 4,8 м). Сейсмичность 7,8,9 баллов. Опалубочно-арматурный чертеж монолитных железобетонных стен ИИС20-9 Лестница для 3-х этажного здания с выходом на кровлю (высота этажа 6,0;4,8 м). Сейсмичность 7,8,9 баллов. Опалубочно-арматурный чертеж монолитных железобетонных стен ИИС20-9 Лестница для 3-х этажного здания без выхода на кровлю (высота этажа 6,0;4,8 м). Сейсмичность 7,8,9 баллов. Опалубочно-арматурный чертеж монолитных железобетонных стен ИИС20-9 Лестница для 4-х этажного здания с выходом на кровлю (высота этажа 4,8 м). Сейсмичность 7,8 баллов. Опалубочно-арматурный чертеж монолитных железобетонных стен ИИС20-9 Лестница для 4-х этажного здания с выходом на кровлю (высота этажа 4,8 м). Сейсмичность 9 баллов. Опалубочно-арматурный чертеж монолитных железобетонных стен ИИС20-9 Лестница для 4-х этажного здания без выхода на кровлю (высота этажа 4,8 м). Сейсмичность 7,8,9 баллов. Опалубочно-арматурный чертеж монолитных железобетонных стен ИИС20-9 Лестница для 4-х этажного здания с выходом на кровлю (высота этажа 6,0;4,8 м). Сейсмичность 7,8 баллов. Опалубочно-арматурный чертеж монолитных железобетонных стен ИИС20-9 Лестница для 4-х этажного здания с выходом на кровлю (высота этажа 6,0;4,8 м). Сейсмичность 9 баллов. Опалубочно-арматурный чертеж монолитных железобетонных стен ИИС20-9 Лестница для 4-х этажного здания без выхода на кровлю (высота этажа 6,0;4,8 м). Сейсмичность 7,8 баллов. Опалубочно-арматурный чертеж монолитных железобетонных стен ИИС20-9 Лестница для 4-х этажного здания без выхода на кровлю (высота этажа 6,0;4,8 м). Сейсмичность 9 баллов. Опалубочно-арматурный чертеж монолитных железобетонных стен ИИС20-9 Лестница для 5-ти этажного здания с выходом на кровлю (высота этажа 4,8 м). Сейсмичность 7 баллов. Опалубочно-арматурный чертеж монолитных железобетонных стен ИИС20-9 Лестница для 5-ти этажного здания с выходом на кровлю (высота этажа 4,8 м). Сейсмичность 8 баллов. Опалубочно-арматурный чертеж монолитных железобетонных стен ИИС20-9 Лестница для 5-ти этажного здания с выходом на кровлю (высота этажа 4,8 м). Сейсмичность 9 баллов. Опалубочно-арматурный чертеж монолитных железобетонных стен ИИС20-9 Лестница для 5-ти этажного здания без выхода на кровлю (высота этажа 4,8 м). Сейсмичность 7,8 баллов. Опалубочно-арматурный чертеж монолитных железобетонных стен ИИС20-9 Лестница для 5-ти этажного здания без выхода на кровлю (высота этажа 4,8 м). Сейсмичность 9 баллов. Опалубочно-арматурный чертеж монолитных железобетонных стен ИИС20-9 Лестница для 5-ти этажного здания с выходом на кровлю (высота этажа 6,0;4,8 м). Сейсмичность 7 баллов. Опалубочно-арматурный чертеж монолитных железобетонных стен ИИС20-9 Лестница для 5-ти этажного здания с выходом на кровлю (высота этажа 6,0;4,8 м). Сейсмичность 8 баллов. Опалубочно-арматурный чертеж монолитных железобетонных стен ИИС20-9 Лестница для 5-ти этажного здания с выходом на кровлю (высота этажа 6,0;4,8 м). Сейсмичность 9 баллов. Опалубочно-арматурный чертеж монолитных железобетонных стен ИИС20-9 Лестница для 5-ти этажного здания без выхода на кровлю (высота этажа 6,0;4,8 м). Сейсмичность 7,8 баллов. Опалубочно-арматурный чертеж монолитных железобетонных стен ИИС20-9 Лестница для 5-ти этажного здания без выхода на кровлю (высота этажа 6,0;4,8 м). Сейсмичность 9 баллов. Опалубочно-арматурный чертеж монолитных железобетонных стен ИИС20-9 Лестница для 3-х этажного здания с выходом на кровлю (высота этажа 6,0 м). Сейсмичность 7,8 баллов. Опалубочно-арматурный чертеж монолитных железобетонных стен ИИС20-9 Лестница для 3-х этажного здания с выходом на кровлю (высота этажа 6,0 м). Сейсмичность 9 баллов. Опалубочно-арматурный чертеж монолитных железобетонных стен ИИС20-9 Лестница для 3-х этажного здания без выхода на кровлю (высота этажа 6,0 м). Сейсмичность 7,8,9 баллов. Опалубочно-арматурный чертеж монолитных железобетонных стен ИИС20-9 Лестница для 3-х этажного здания с выходом на кровлю (высота этажа 7,2;6,0 м). Сейсмичность 7,8 баллов. Опалубочно-арматурный чертеж монолитных железобетонных стен ИИС20-9 Лестница для 3-х этажного здания с выходом на кровлю (высота этажа 7,2;6,0 м). Сейсмичность 9 баллов. Опалубочно-арматурный чертеж монолитных железобетонных стен ИИС20-9 Лестница для 3-х этажного здания без выхода на кровлю (высота этажа 7,2;6,0 м). Сейсмичность 7,8,9 баллов. Опалубочно-арматурный чертеж монолитных железобетонных стен ИИС20-9 Лестница для 4-х этажного здания с выходом на кровлю (высота этажа 6,0 м). Сейсмичность 7 баллов. Опалубочно-арматурный чертеж монолитных железобетонных стен ИИС20-9 Лестница для 4-х этажного здания с выходом на кровлю (высота этажа 6,0 м). Сейсмичность 8 баллов. Опалубочно-арматурный чертеж монолитных железобетонных стен ИИС20-9 Лестница для 4-х этажного здания с выходом на кровлю (высота этажа 6,0 м). Сейсмичность 9 баллов. Опалубочно-арматурный чертеж монолитных железобетонных стен ИИС20-9 Лестница для 4-х этажного здания без выхода на кровлю (высота этажа 6,0 м). Сейсмичность 7,8 баллов. Опалубочно-арматурный чертеж монолитных железобетонных стен ИИС20-9 Лестница для 4-х этажного здания без выхода на кровлю (высота этажа 6,0 м). Сейсмичность 9 баллов. Опалубочно-арматурный чертеж монолитных железобетонных стен ИИС20-9 Лестница для 4-х этажного здания с выходом на кровлю (высота этажа 7,2;6,0 м). Сейсмичность 7 баллов. Опалубочно-арматурный чертеж монолитных железобетонных стен ИИС20-9 Лестница для 4-х этажного здания с выходом на кровлю (высота этажа 7,2;6,0 м). Сейсмичность 8 баллов. Опалубочно-арматурный чертеж монолитных железобетонных стен ИИС20-9 Лестница для 4-х этажного здания с выходом на кровлю (высота этажа 7,2;6,0 м). Сейсмичность 9 баллов. Опалубочно-арматурный чертеж монолитных железобетонных стен ИИС20-9 Лестница для 4-х этажного здания без выхода на кровлю (высота этажа 7,2;6,0 м). Сейсмичность 7,8 баллов. Опалубочно-арматурный чертеж монолитных железобетонных стен ИИС20-9 Лестница для 4-х этажного здания без выхода на кровлю (высота этажа 7,2;6,0 м). Сейсмичность 9 баллов. Опалубочно-арматурный чертеж монолитных железобетонных стен ИИС20-9 Лестница для 5-ти этажного здания с выходом на кровлю (высота этажа 6,0 м). Сейсмичность 7 баллов. Опалубочно-арматурный чертеж монолитных железобетонных стен ИИС20-9 Лестница для 5-ти этажного здания с выходом на кровлю (высота этажа 6,0 м). Сейсмичность 8 баллов. Опалубочно-арматурный чертеж монолитных железобетонных стен ИИС20-9 Лестница для 5-ти этажного здания без выхода на кровлю (высота этажа 6,0 м). Сейсмичность 7 баллов. Опалубочно-арматурный чертеж монолитных железобетонных стен ИИС20-9 Лестница для 5-ти этажного здания без выхода на кровлю (высота этажа 6,0 м). Сейсмичность 8 баллов. Опалубочно-арматурный чертеж монолитных железобетонных стен ИИС20-9 Лестница для 5-ти этажного здания с выходом на кровлю (высота этажа 7,2;6,0 м). Сейсмичность 7 баллов. Опалубочно-арматурный чертеж монолитных железобетонных стен ИИС20-9 Лестница для 5-ти этажного здания с выходом на кровлю (высота этажа 7,2;6,0 м). Сейсмичность 8 баллов. Опалубочно-арматурный чертеж монолитных железобетонных стен ИИС20-9 Лестница для 5-ти этажного здания без выхода на кровлю (высота этажа 7,2;6,0 м). Сейсмичность 7 баллов. Опалубочно-арматурный чертеж монолитных железобетонных стен ИИС20-9 Лестница для 5-ти этажного здания без выхода на кровлю (высота этажа 7,2;6,0 м). Сейсмичность 8 баллов. Опалубочно-арматурный чертеж монолитных железобетонных стен ИИС20-9 Расположение закладных деталей в монолитных железобетонных стенах лестниц. Опалубочный чертеж ИИС20-9 Таблица размеров антисейсмических швов между монолитными железобетонными стенами лестниц и примыкающими конструкциями перекрытий зданий ИИС20-9 Маркировочные схемы сборных железобетонных и стальных элементов для лестницы 5-ти этажного здания при высоте этажа 6,0 м. Маркировочные планы 1-1÷2-2, разрез 3-3 ИИС20-9 Маркировочные схемы сборных железобетонных и стальных элементов для лестницы 5-ти этажного здания при высоте этажа 6,0 м. Маркировочные планы 4-4÷7-7, разрезы 8-8;9-9 ИИС20-9 Монолитный участок МУ1, примыкающий к лестничной площадке на верхних этажах и при выходе на кровлю. Монолитный участок МУ2 покрытия лестничной клетки в месте примыкания к наружной стене ИИС20-9 Варианты покрытий лестничных клеток в виде монолитных железобетонных плит ИИС20-9 Усилия от лестничных клеток с монолитными железобетонными стенами на фундаменты ИИС20-9 Вариант лестницы с кирпичными стенами для 3-х этажного здания с выходом на кровлю (высота этажа 3,6 м). Сейсмичность 7 баллов. Маркировочные планы и разрезы ИИС20-9 Вариант лестницы с кирпичными стенами для 3-х этажного здания с выходом на кровлю (высота этажа 3,6 м). Сейсмичность 7 баллов. Маркировочные планы ИИС20-9 Вариант лестницы с кирпичными стенами для 3-х этажного здания без выхода на кровлю (высота этажа 3,6 м). Сейсмичность 7 баллов. Маркировочные планы, разрезы ИИС20-9 Вариант лестницы с кирпичными стенами для 3-х этажного здания без выхода на кровлю (высота этажа 4,8 м). Сейсмичность 7 баллов. Маркировочные планы и разрезы ИИС20-9 Вариант лестницы с кирпичными стенами для 3-х этажного здания (высота этажа 3,6 и 4,8 м). Сейсмичность 7 баллов. Армирование кирпичных стен ИИС20-9 Вариант лестницы с кирпичными стенами для 3-х этажного здания (высота этажа 3,6; 4,8 м). Сейсмичность 7 баллов. Армирование антисейсмических поясов АП1-АП4 ИИС20-9 Усилия от лестничных клеток с кирпичными стенами на фундаменты ИИС20-9 Маркировочные схемы и ключи для подбора рабочих марок ригелей в ячейках с лестничными клетками, имеющими кирпичные стены (здания с перекрытиями типа 1) ИИС20-9 Ригели каркаса здания, расположенные у лестничных клеток с кирпичными стенами. Схемы ригелей с маркировкой закладных деталей (планы) ИИС20-9 Ригели каркаса здания, расположенные у лестничных клеток с кирпичными стенами. Схемы ригелей с маркировкой сеток в полках (планы) |
| Разработан: | ЦНИИпромзданий НИИЖБ ЦНИИСК АСиА СССР |
| Утверждён: | 18.12.1970 Госстрой СССР (Государственный комитет Совета Министров СССР по делам строительства) (USSR Gosstroy 161) |
























































































