Скачать Серия ПК-01-76 Выпуск 4. Рабочие чертежи ферм пролетом 30 м из линейных элементов с натяжением арматуры нижнего пояса на бетонДата актуализации: 01.01.2021
|
| Обозначение: | Серия ПК-01-76 |
| Обозначение англ: | Series ПК-01-76 |
| Статус: | не действует |
| Название рус.: | Выпуск 4. Рабочие чертежи ферм пролетом 30 м из линейных элементов с натяжением арматуры нижнего пояса на бетон |
| Дата добавления в базу: | 01.09.2013 |
| Дата актуализации: | 01.01.2021 |
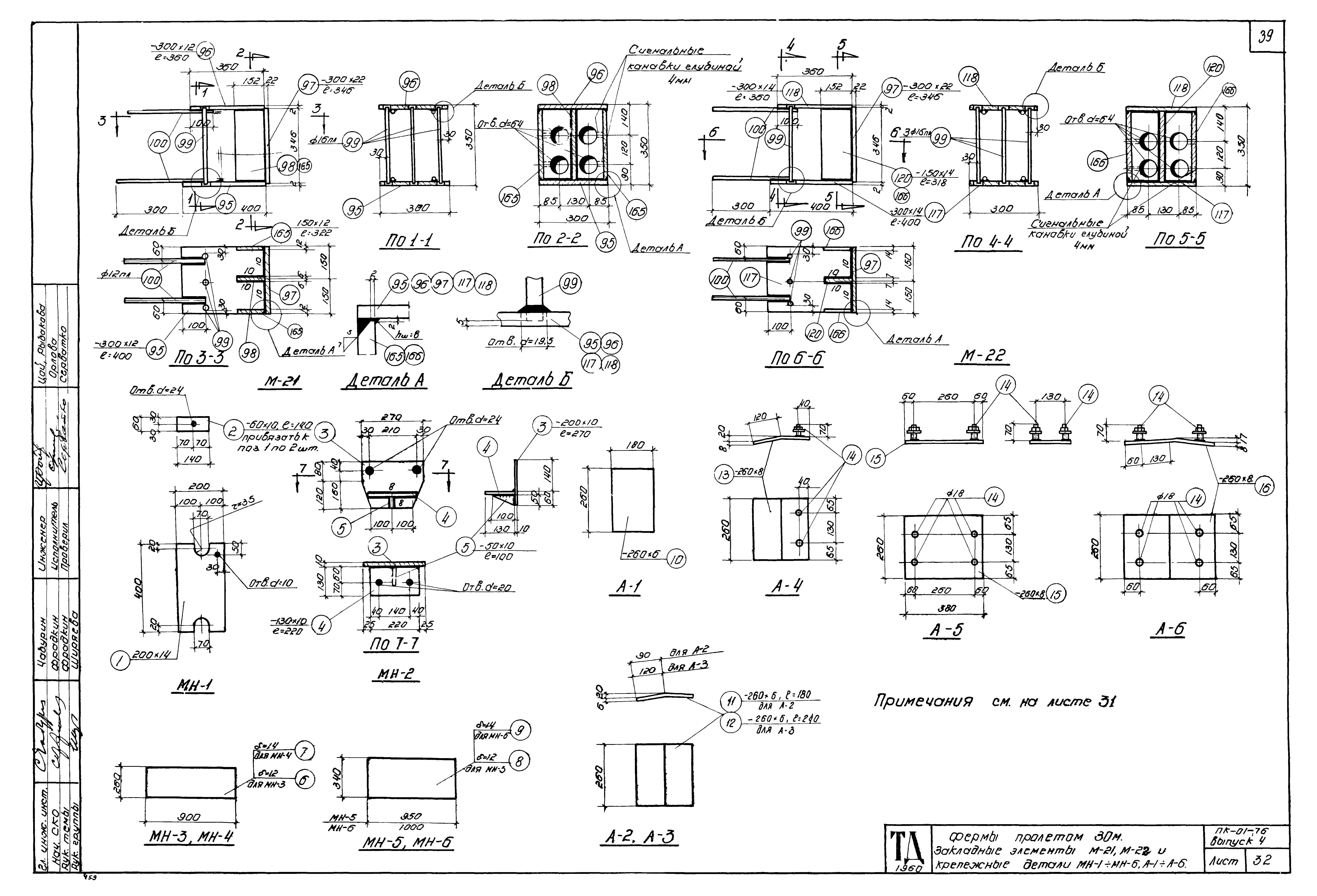
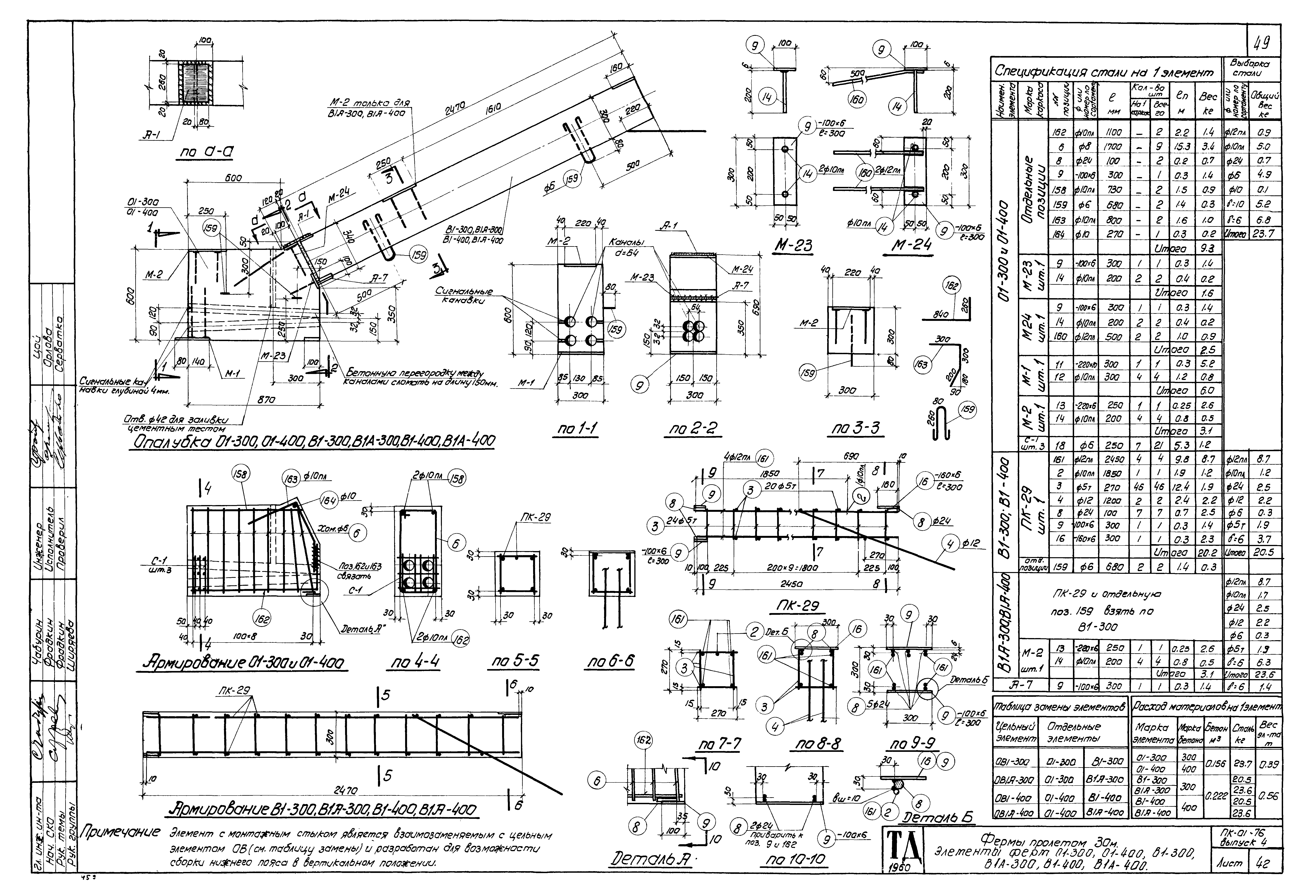
| Оглавление: | ПК-01-76 Содержание ПК-01-76 Пояснительная записка ПК-01-76 Чертежи ПК-01-76 Фермы пролетом 30 м. Сортамент и расход материалов на фермы с напрягаемой пучковой арматурой. Схемы строповки ПК-01-76 Фермы пролетом 30 м. Сортамент и расход материалов на фермы с напрягаемой стержневой арматурой ПК-01-76 Фермы пролетом 30 м с напрягаемой пучковой арматурой. Общий вид и выборка стали ПК-01-76 Фермы пролетом 30 м с напрягаемой стержневой арматурой из стали марки 30ХГ2С. Общий вид и выборка стали ПК-01-76 Фермы пролетом 30 м с напрягаемой стержневой арматурой из стали марки 25Г2С. Общий вид и выборка стали ПК-01-76 Фермы пролетом 30 м из полуферм с напрягаемой пучковой арматурой. Общий вид и выборка стали ПК-01-76 Фермы пролетом 30 м из полуферм с напрягаемой стержневой арматурой из стали марки 30ХГ2С. Общий вид и выборка стали ПК-01-76 Фермы пролетом 30 м из полуферм с напрягаемой стержневой арматурой из стали марки 25Г2С. Общий вид и выборка стали ПК-01-76 Полуфермы для ферм пролетом 30 м с напрягаемой пучковой арматурой. Общий вид полуферм и расход материалов ПК-01-76 Полуфермы для ферм пролетом 30 м с напрягаемой стержневой арматурой. Общий вид полуферм и расход материалов ПК-01-76 Фермы пролетом 30 м. Сборочная схема ферм Ф1-30-1,Ф1-30-1А,Ф1-30-2,Ф1-30-2А,Ф1-30-3,Ф1-30-3А,Ф3-30-1,Ф3-30-1А,Ф3-30-2,Ф3-30-2А,Ф3-30-3,Ф3-30-3А. Расход материалов по элементам на 1 ферму ПК-01-76 Фермы пролетом 30 м. Сборочная схема ферм Ф1-30-4,Ф1-30-4А,Ф1-30-5,Ф1-30-5А,Ф3-30-4,Ф3-30-4А,Ф3-30-5,Ф3-30-5А. Расход материалов по элементам на 1 ферму ПК-01-76 Фермы пролетом 30 м. Сборочная схема полуферм П1-30-1,П1-30-1А,П1-30-2,П4-30-2А,П1-30-3,П1-30-3А,П2-30-1,П2-30-1А,П2-30-2,П2-30-2А,П2-30-3,П2-30-3А. Расход материалов по элементам на 1 полуферму ПК-01-76 Фермы пролетом 30 м. Сборочная схема полуферм П1-30-1,П1-30-1А,П1-30-4,П1-30-4А,П1-30-5,П1-30-5А,П2-30-4,П2-30-4А,П2-30-5,П2-30-5А. Расход материалов по элементам на 1 полуферму ПК-01-76 Фермы пролетом 30 м. Узлы 1,2,3,4,5,6,7 ПК-01-76 Фермы пролетом 30 м. Узлы 8,9,10,11,12 ПК-01-76 Фермы пролетом 30 м. Элементы ферм ОВ-1-300,ОВ1А-300,ОВ1-400,ОВ1А-400 ПК-01-76 Фермы пролетом 30 м. Элементы ферм В2,В2А,В4 и В4А ПК-01-76 Фермы пролетом 30 м. Элементы ферм В3,В3А,В3-С,В3А-С ПК-01-76 Фермы пролетом 30 м. Элементы ферм В5,В7,В5А,В7А,В5-С,В7-С,В5А-С,В7А-С ПК-01-76 Фермы пролетом 30 м. Элементы ферм В6,В6А,В8 и В8А ПК-01-76 Фермы пролетом 30 м. Элементы ферм В9,В9А,Р1-Р8,С1,С2,С3 ПК-01-76 Фермы пролетом 30 м. Элементы ферм В10,В10А,В10-С и В10А-С ПК-01-76 Фермы пролетом 30 м. Элементы ферм Н1,Н4,Н7 и Н9 ПК-01-76 Фермы пролетом 30 м. Элементы ферм Н2,Н5,Н8 и Н10 ПК-01-76 Фермы пролетом 30 м. Элементы ферм Н3-300,Н3-400,Н6-300,Н6-400,Н11,Н12,Н13 ПК-01-76 Фермы пролетом 30 м. Каркасы ПК-1÷ПК-8 ПК-01-76 Фермы пролетом 30 м. Каркасы ПК-1÷ПК-21 и ПК-23. Сетки С-6,С-7,С-8,С-9 ПК-01-76 Фермы пролетом 30 м. Каркасы ПК-22,ПК-24÷ПК-27,К-1÷К-8. Сетки С-1÷С-5 ПК-01-76 Фермы пролетом 30 м. Закладные детали М1-М11 ПК-01-76 Фермы пролетом 30 м. Закладные детали М12-М20. Шайба Ш-1,Ш-2,Ш-3,Ш-4,Ш-5 ПК-01-76 Фермы пролетом 30 м. Закладные детали М-21,М-22 и крепежные детали МН-1÷МН-6,А-1÷А-6 ПК-01-76 Фермы пролетом 30 м. Спецификация стали на элементы ОВ1-300,ОВ1А-300,ОВ1-400,ОВ1А-400,В2,В2А,В4,В4А,В6 и В6А ПК-01-76 Фермы пролетом 30 м. Спецификация стали на элементы В8,В8А,В9,В9А,В3,В-3А,В3-С и В3В-С ПК-01-76 Фермы пролетом 30 м. Спецификация стали на элементы В5,В5А,В5-С,В5А-С,В7,В7А,В7-С,В7А-С ПК-01-76 Фермы пролетом 30 м. Спецификация стали на элементы В10,В10А,В10-С,В10А-С,Н1,Н2,Н4 ПК-01-76 Фермы пролетом 30 м. Спецификация стали на элементы Н3-300,Н3-400,Н5,Н6-300,Н6-400,Н7-Н12 ПК-01-76 Фермы пролетом 30 м. Спецификация стали на элементы Н13,Р1-Р8,С1,С2,С3 и на крепежные детали. Заказ марок М ПК-01-76 Фермы пролетом 30 м. Опорные столбики ОП1,ОП2,ОП3. Дополнительная маркировка ферм ПК-01-76 Фермы пролетом 30 м для покрытий с фонарем, схемы расположения стыковых накладок. Расход материалов на 1 ферму ПК-01-76 Фермы пролетом 30 м для покрытий с фонарем, собираемые из полуферм. Схема расположения стыковых накладок. Расход материалов на 1 ферму ПК-01-76 Фермы пролетом 30 м. Элементы ферм 01-300,01-400,В1-300,В1А-300,В1-400,В1А-400 ПК-01-76 Фермы пролетом 30 м. Пучки арматурные П-1,П-2. Общие виды ПК-01-76 Фермы пролетом 30 м. Пучки арматурные П-3,П-4,П-5. Общие виды ПК-01-76 Фермы пролетом 30 м. Пучки арматурные П-6,П-7. Общие виды ПК-01-76 Фермы пролетом 30 м. Пучки арматурные П-8,П-9,П-10. Общие виды ПК-01-76 Фермы пролетом 30 м. Пучки арматурные П-1÷П-10. Детали ПК-01-76 Фермы пролетом 30 м. Стержни Г-1,Г-2,Г-3. Общие виды ПК-01-76 Фермы пролетом 30 м. Стержни Г-4,Г-5,Г-6. Общие виды ПК-01-76 Фермы пролетом 30 м. Стержни С-1,С-2,С-3. Общие виды ПК-01-76 Фермы пролетом 30 м. Стержни С-4,С-5,С-6. Общие виды ПК-01-76 Фермы пролетом 30 м. Стержни Г-1÷Г-6,С-1÷С-6. Детали ПК-01-76 Фермы пролетом 30 м. Данные для армирования нижнего пояса пучками с анкерными колодками и пробками ПК-01-76 Фермы пролетом 30 м. Пучки арматурные с анкерными колодками и пробками ПН1-ПН1-ПН-5 ПК-01-76 Фермы пролетом 30 м. Пучки арматурные с анкерными колодками и пробками ПН6-ПН10 |
| Разработан: | Проектный институт № 1 Министерства строительства РСФСР |
| Утверждён: | 26.01.1961 Госстрой СССР (Государственный комитет Совета Министров СССР по делам строительства) (USSR Gosstroy 42) |
































































