Скачать Типовой проект 705-1-200.86 Альбом I. Пояснительная записка. Технология производства. Архитектурно-строительные решения. Конструкции железобетонные. Силовое электрооборудование. Связь и сигнализацияДата актуализации: 01.01.2021
|
| Обозначение: | Типовой проект 705-1-200.86 |
| Обозначение англ: | 705-1-200.86 |
| Статус: | не определен законодательством |
| Название рус.: | Альбом I. Пояснительная записка. Технология производства. Архитектурно-строительные решения. Конструкции железобетонные. Силовое электрооборудование. Связь и сигнализация |
| Дата добавления в базу: | 01.09.2013 |
| Дата актуализации: | 01.01.2021 |
| Дата введения: | 16.04.1986 |
| Дата окончания срока действия: | 30.06.2003 |
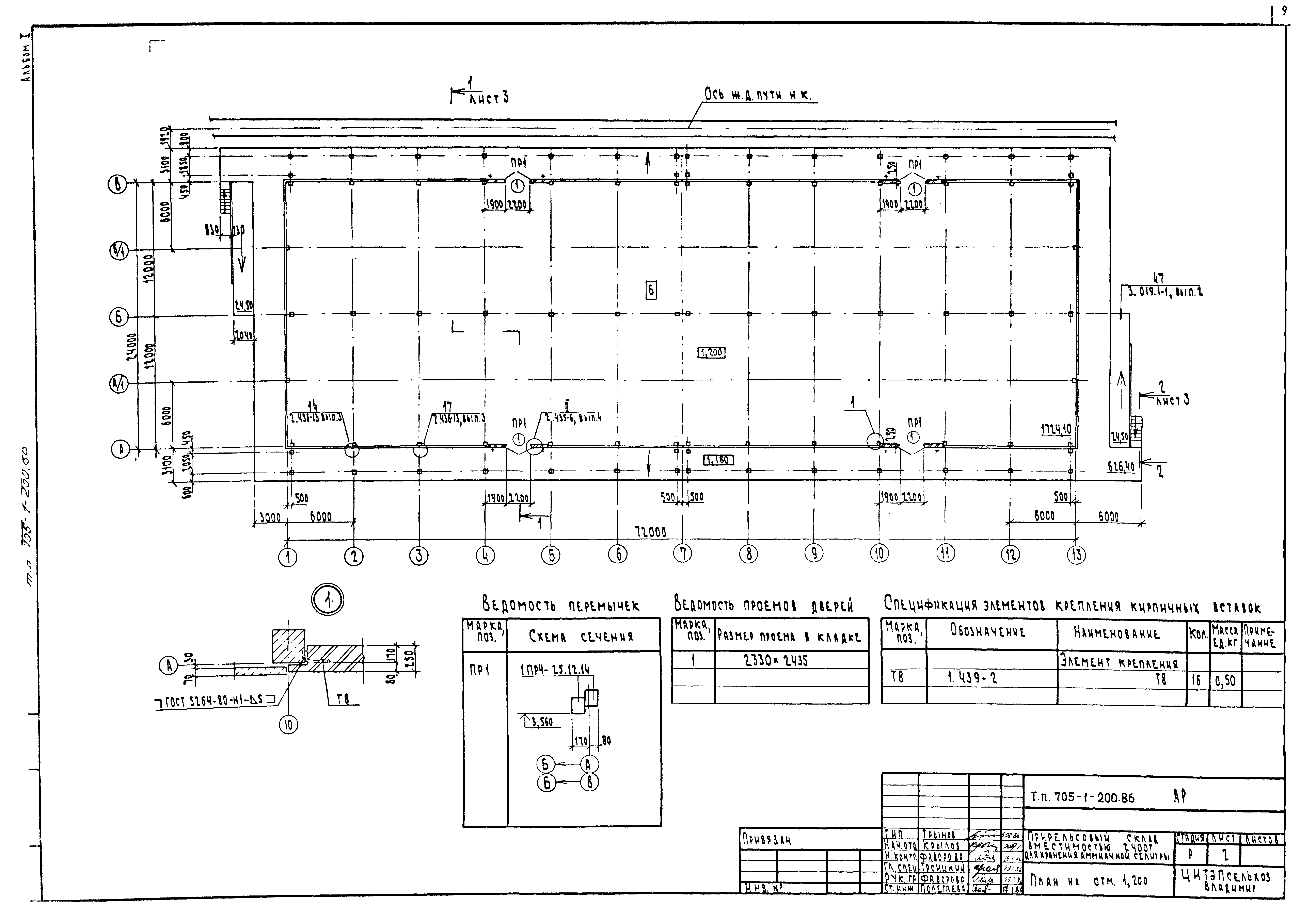
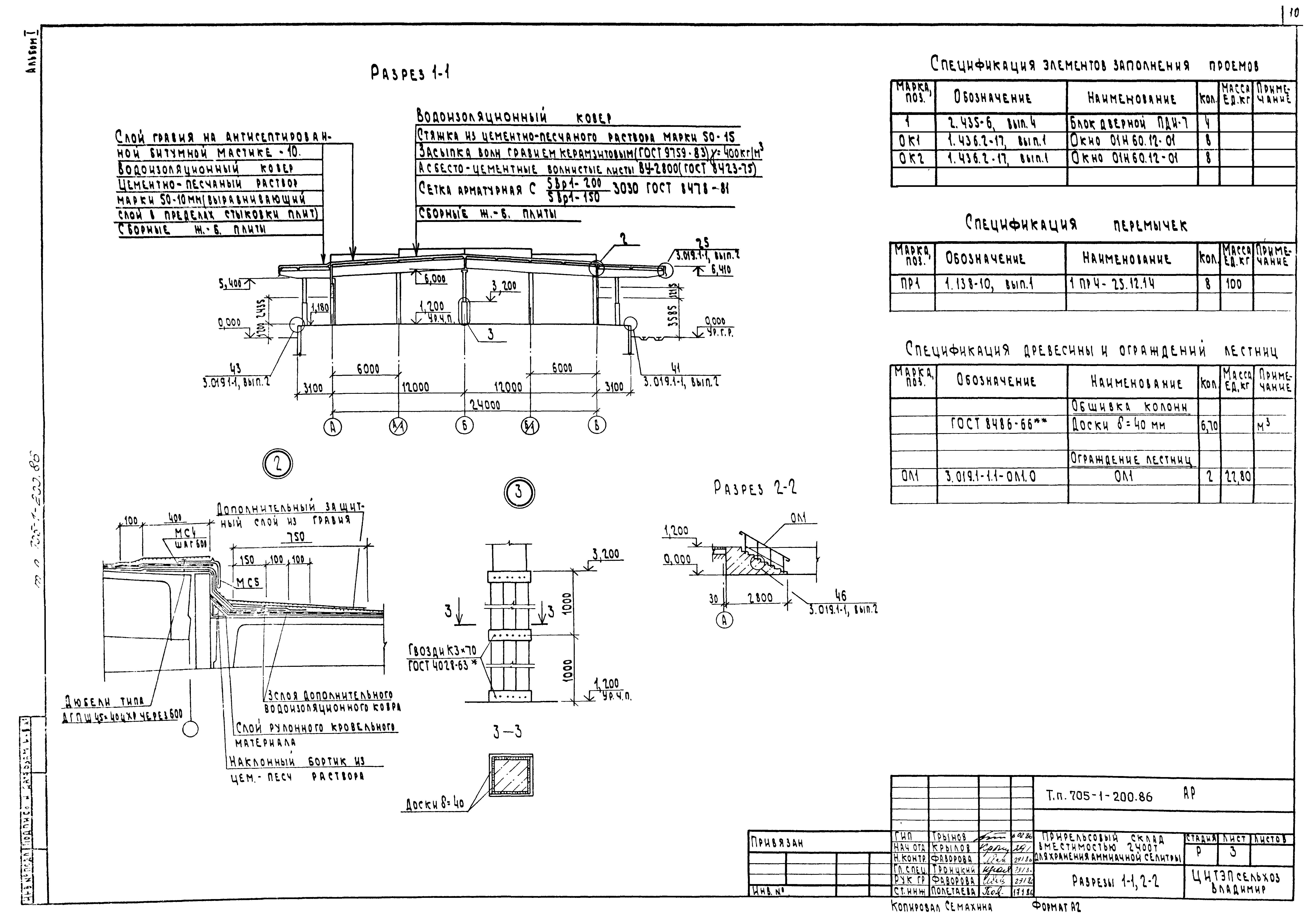
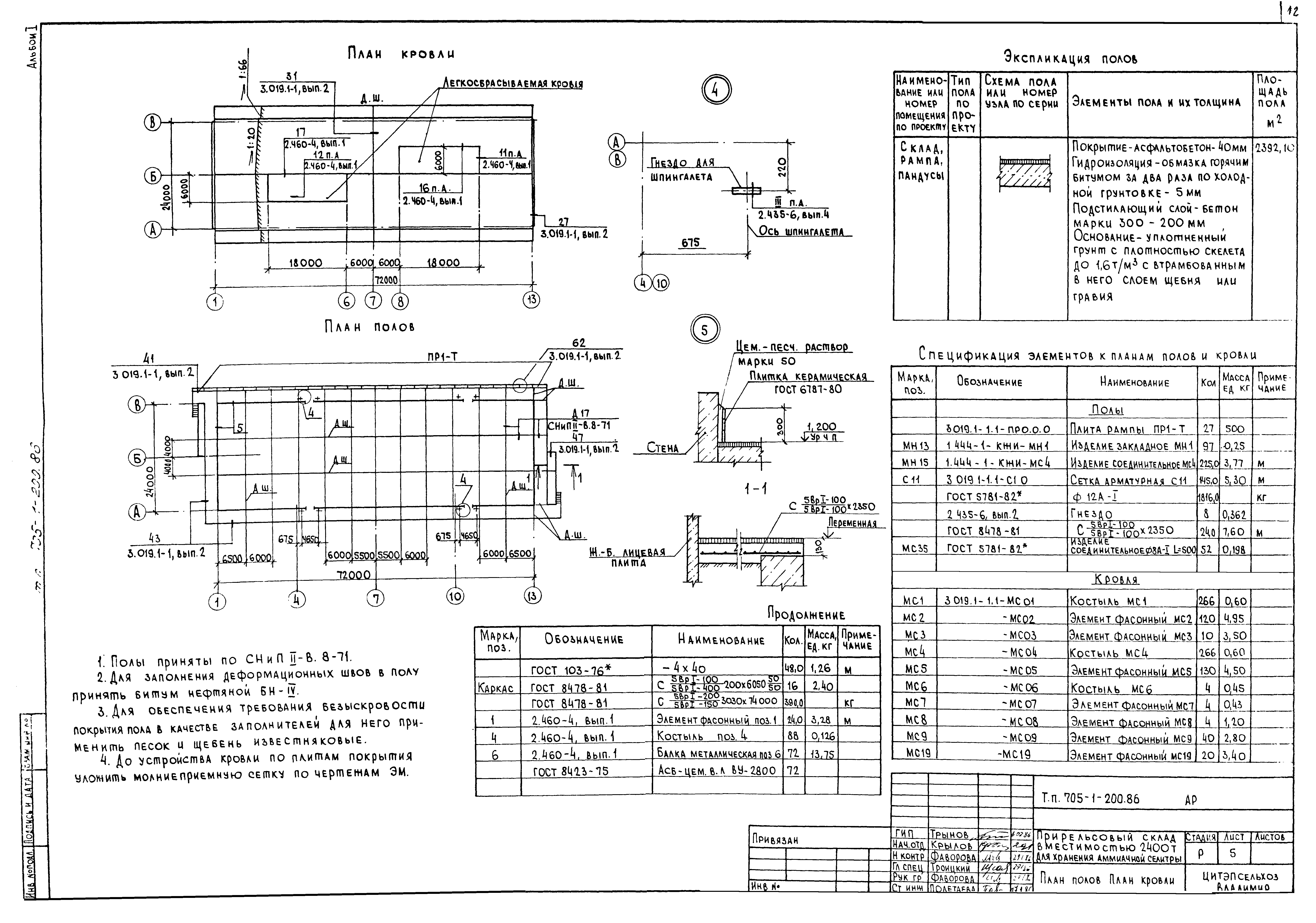
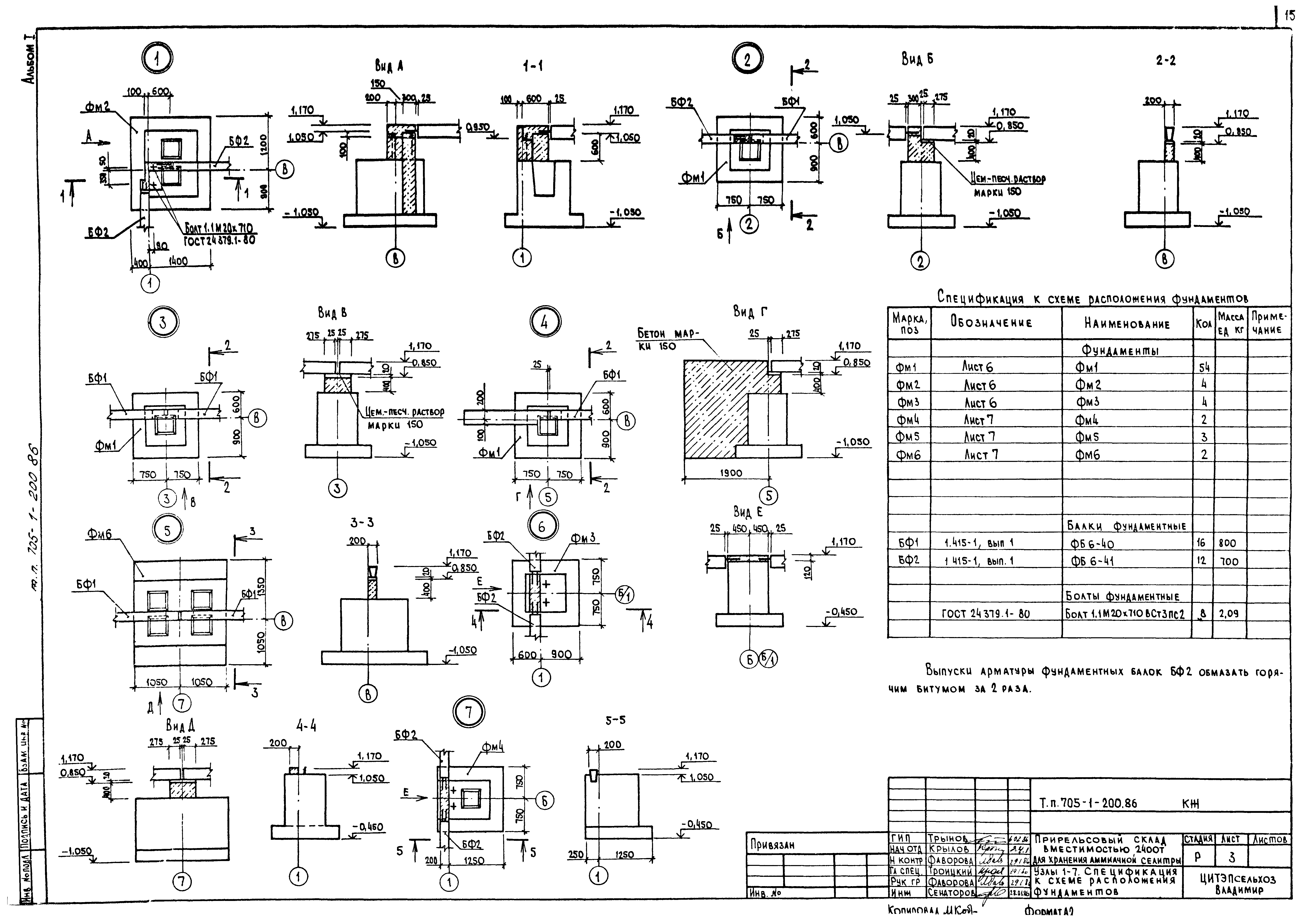
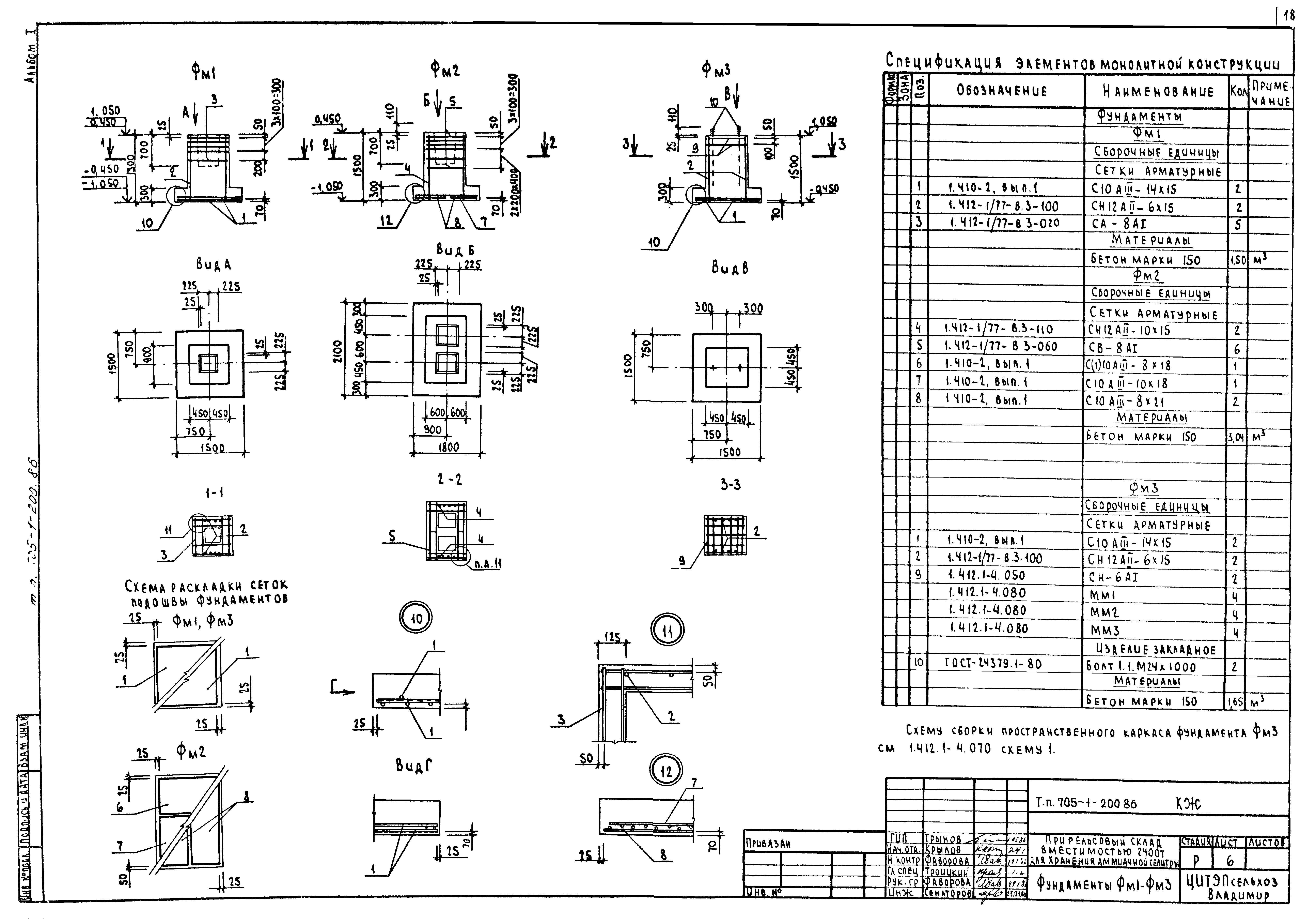
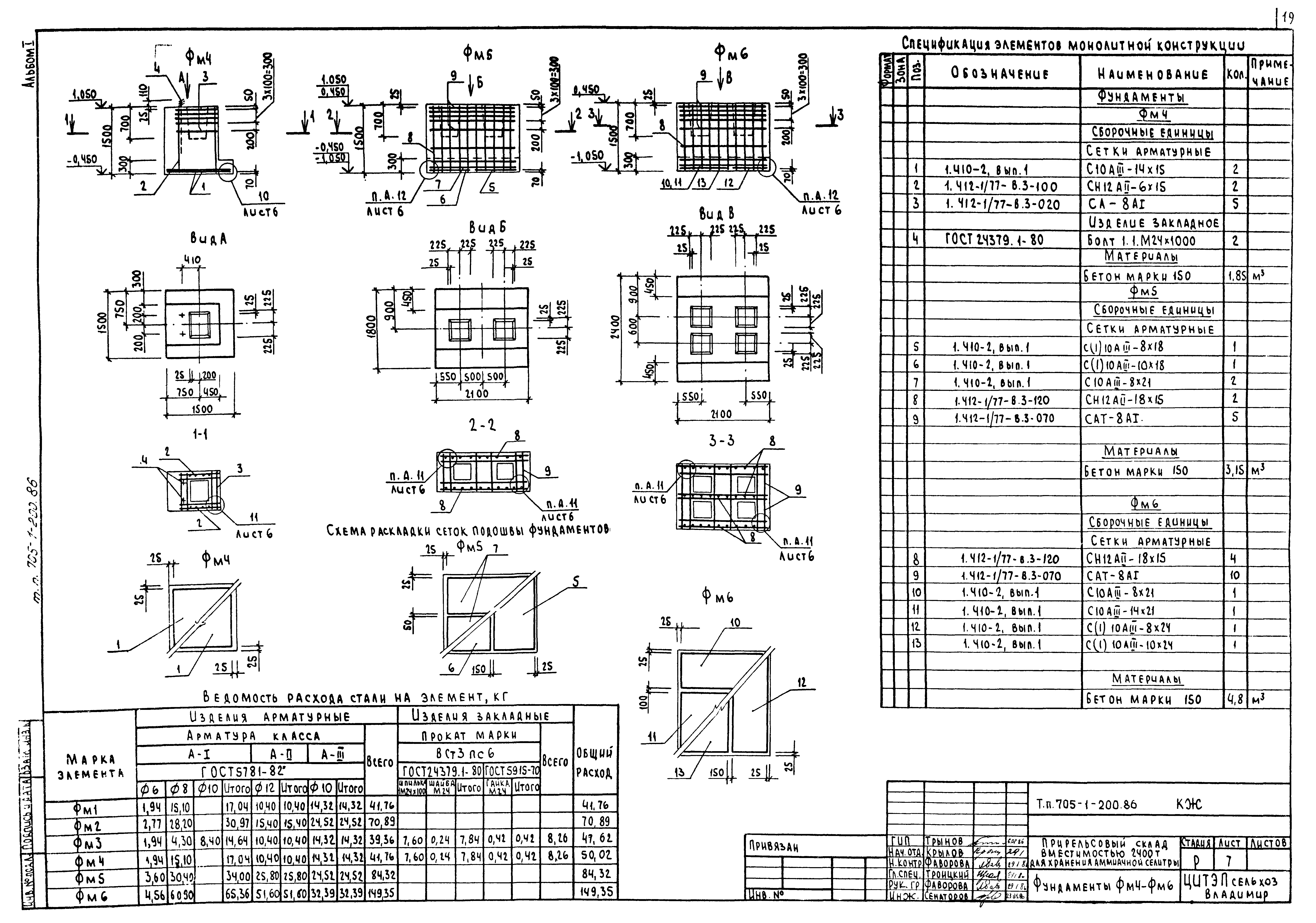
| Оглавление: | ТП 705-1-200.86 Содержание альбома ТП 705-1-200.86-ПЗ-1 Пояснительная записка ТП 705-1-200.86-ПЗ-2 Пояснительная записка ТП 705-1-200.86-ПЗ-3 Пояснительная записка ТП 705-1-200.86-ПЗ-4 Пояснительная записка ТП 705-1-200.86-ТХ-1 Общие данные. План на отм. 1.200. Разрез 1-1 ТП 705-1-200.86-АР-1 Общие данные ТП 705-1-200.86-АР-2 План на отм. 1.200 ТП 705-1-200.86-АР-3 Разрезы 1-1,2-2 ТП 705-1-200.86-АР-4 Фасады 1-13,13-1,В-А ТП 705-1-200.86-АР-5 План полов. План кровли ТП 705-1-200.86-КЖ-1 Общие данные ТП 705-1-200.86-КЖ-2 Схема расположения фундаментов ТП 705-1-200.86-КЖ-3 Узлы 1-7. Спецификация к схеме расположения фундаментов ТП 705-1-200.86-КЖ-4 Схема расположения фундаментов и лицевых плит рампы ТП 705-1-200.86-КЖ-5 Виды А-Г. Узел 9 ТП 705-1-200.86-КЖ-6 Фундаменты ФМ1-ФМ3 ТП 705-1-200.86-КЖ-7 Фундаменты ФМ4-ФМ6 ТП 705-1-200.86-КЖ-8 Схема расположения колонн и балок ТП 705-1-200.86-КЖ-9 Сечения 1-1÷4-4 ТП 705-1-200.86-КЖ-10 Схема расположения плит покрытия. Сечения 5-5÷7-7. Узлы 13-14 ТП 705-1-200.86-КЖ-11 Схема расположения панелей стен по осям А,В,1 и 13 ТП 705-1-200.86-ЭМ-1 Общие данные ТП 705-1-200.86-ЭМ-2 Электрическое освещение. План на отм. 0.000 ТП 705-1-200.86-ЭМ-3 Молниезащита ТП 705-1-200.86-ЭМ.ВИ Ведомость изделий мастерских электромонтажных заготовок МЭЗ ТП 705-1-200.86-ЭМ.ВИМ Ведомость изделий и материалов для изготовления изделий МЭЗ ТП 705-1-200.86-ЭМ.ВР Ведомость объемов строительных и монтажных работ по чертежам ТП 705-1-200.86-СС-1 Общие данные. План на отм. 1.200 |
| Разработан: | ЦИТЭПсельхозпром |
| Утверждён: | 12.12.1985 Минсельхоз СССР (USSR Minselkhoz 110-ЭГ) |





























