Скачать Типовой проект 705-1-206.86 Альбом III. Конструкции металлическиеДата актуализации: 01.01.2021
|
| Обозначение: | Типовой проект 705-1-206.86 |
| Обозначение англ: | 705-1-206.86 |
| Статус: | действует |
| Название рус.: | Альбом III. Конструкции металлические |
| Дата добавления в базу: | 01.09.2013 |
| Дата актуализации: | 01.01.2021 |
| Дата введения: | 14.08.1985 |
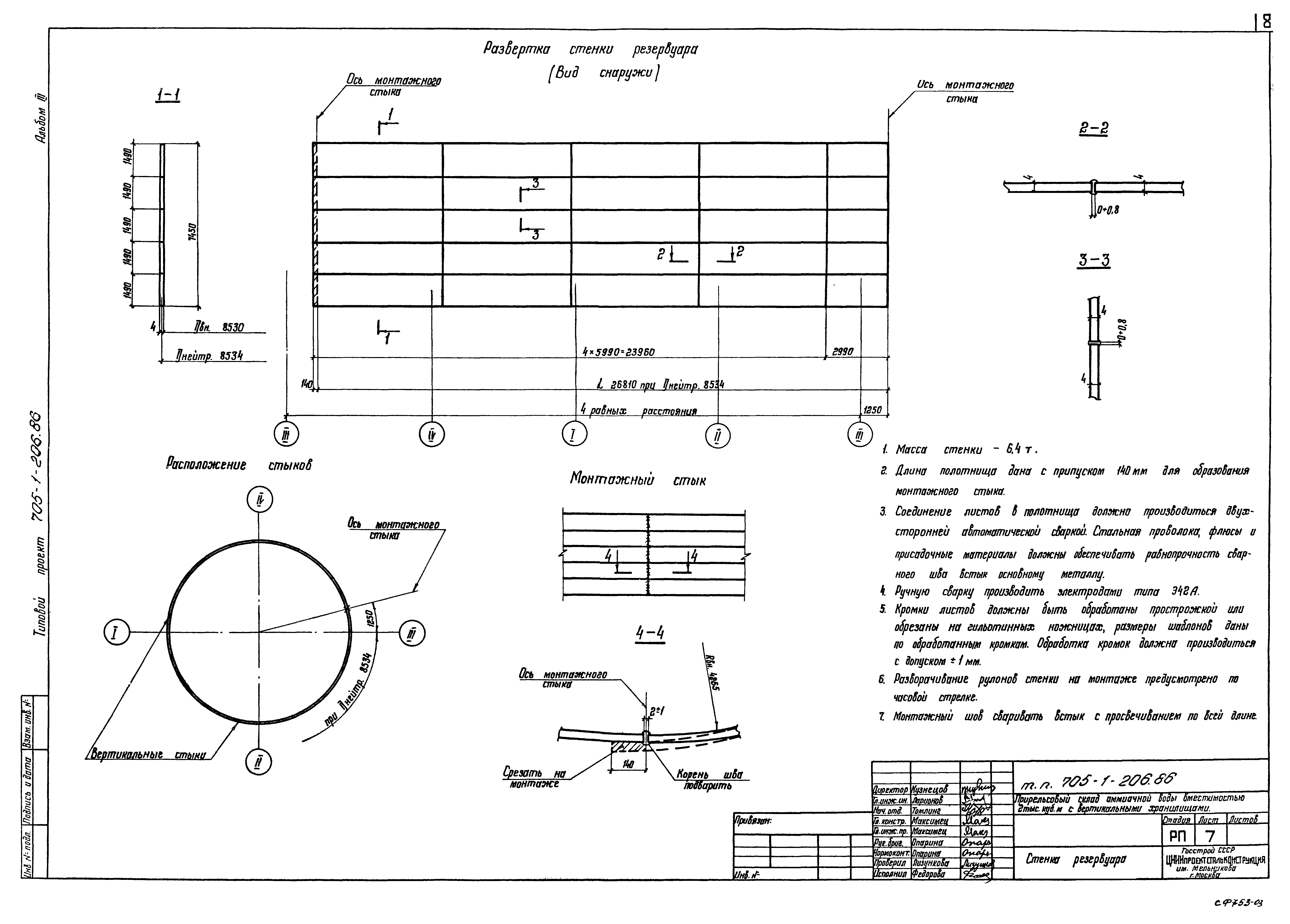
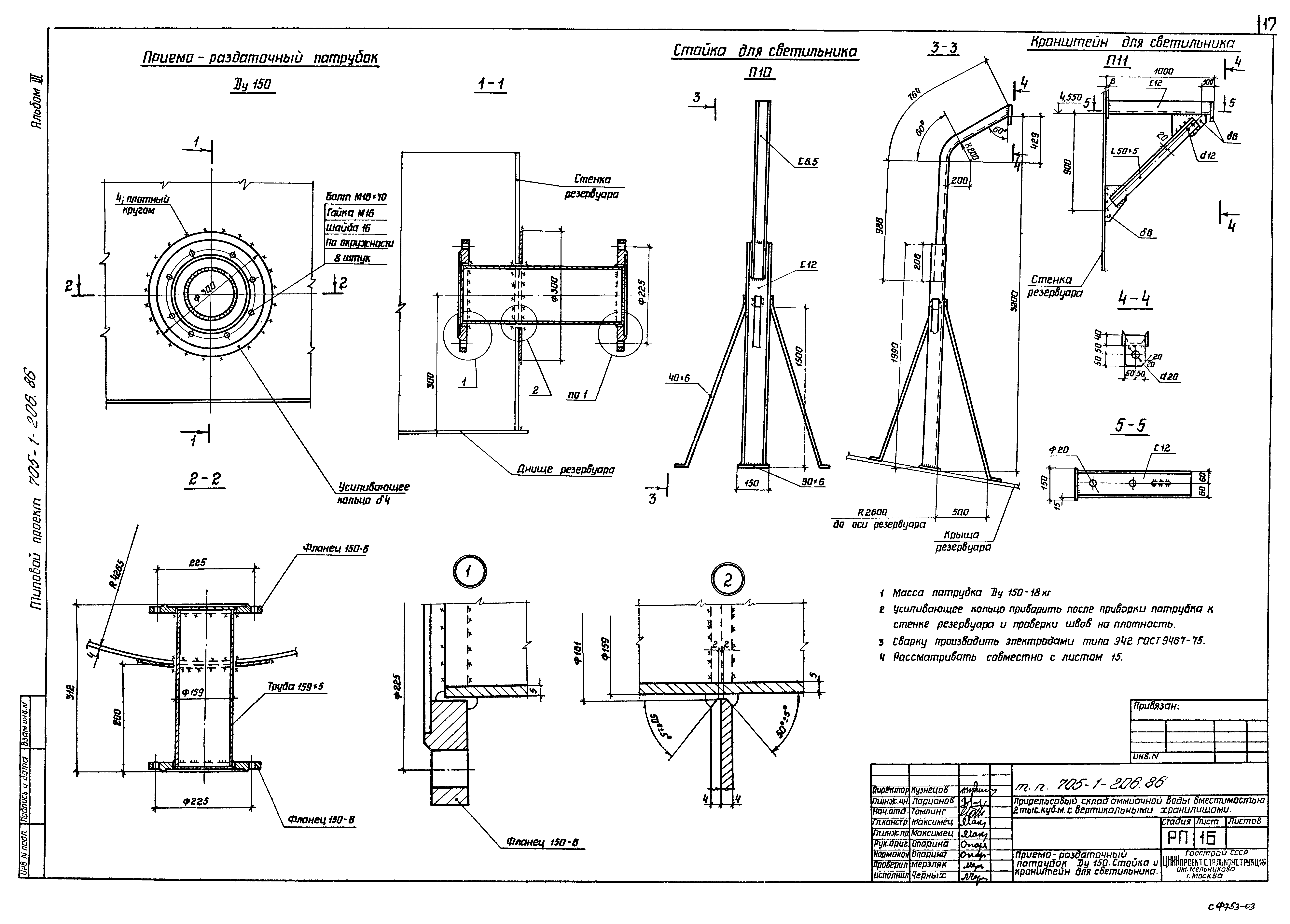
| Оглавление: | ТП 705-1-206.86-1 Общие данные ТП 705-1-206.86-2 Техническая спецификация металла (начало) ТП 705-1-206.86-3 Техническая спецификация металла (окончание) ТП 705-1-206.86-4 Ведомость металлоконструкций по видам профилей ТП 705-1-206.86-5 Схема расположения резервуаров на складе ТП 705-1-206.86-6 Общий вид резервуара объемом 400 куб. м ТП 705-1-206.86-7 Стенка резервуара ТП 705-1-206.86-8 Днище резервуара ТП 705-1-206.86-9 Крыша резервуара ТП 705-1-206.86-10 Шахтная лестница. Общий вид ТП 705-1-206.86-11 Шахтная лестница. Разрезы ТП 705-1-206.86-12 Шахтная лестница. Лестничные марши ТП 705-1-206.86-13 Площадки ТП 705-1-206.86-14 Переходный мостик и ограждения на крыше ТП 705-1-206.86-15 Схема расположения патрубков, люков ТП 705-1-206.86-16 Приемо-раздаточный патрубок Ду150. Стойка и кронштейн для светильника ТП 705-1-206.86-17 Люк-лаз в 1 поясе стенки Ду500 и патрубки на крыше ТП 705-1-206.86-18 Световой люк. Штуцер отбора проб ТП 705-1-206.86-19 Штуцер для указателя уровня. Спускной-очистной патрубок ТП 705-1-206.86-20 Молниезащита ТП 705-1-206.86-21 Нагрузки на фундамент и анкерные болты |
| Разработан: | ЦНИИпроектстальконструкция Гипронефтеспецмонтаж Минмонтажспецстроя СССР (Giproneftespetsmontazh, Minmontazhspetsstroy (USSR) ) Чирчикский филиал ГИАП |
| Утверждён: | 07.02.1984 Минсельхоз СССР (USSR Minselkhoz 6-ЭГ) |























