Скачать Серия 1.459-2 Выпуск 2. Лестницы, переходные площадки и ограждения из холодногнутых профилей с настилом и ступенями из рифленой стали. Чертежи КМДДата актуализации: 01.01.2021
|
| Обозначение: | Серия 1.459-2 |
| Обозначение англ: | Series 1.459-2 |
| Статус: | не действует |
| Название рус.: | Выпуск 2. Лестницы, переходные площадки и ограждения из холодногнутых профилей с настилом и ступенями из рифленой стали. Чертежи КМД |
| Дата добавления в базу: | 01.09.2013 |
| Дата актуализации: | 01.01.2021 |
| Дата введения: | 01.04.1974 |
| Дата окончания срока действия: | 01.12.1984 |
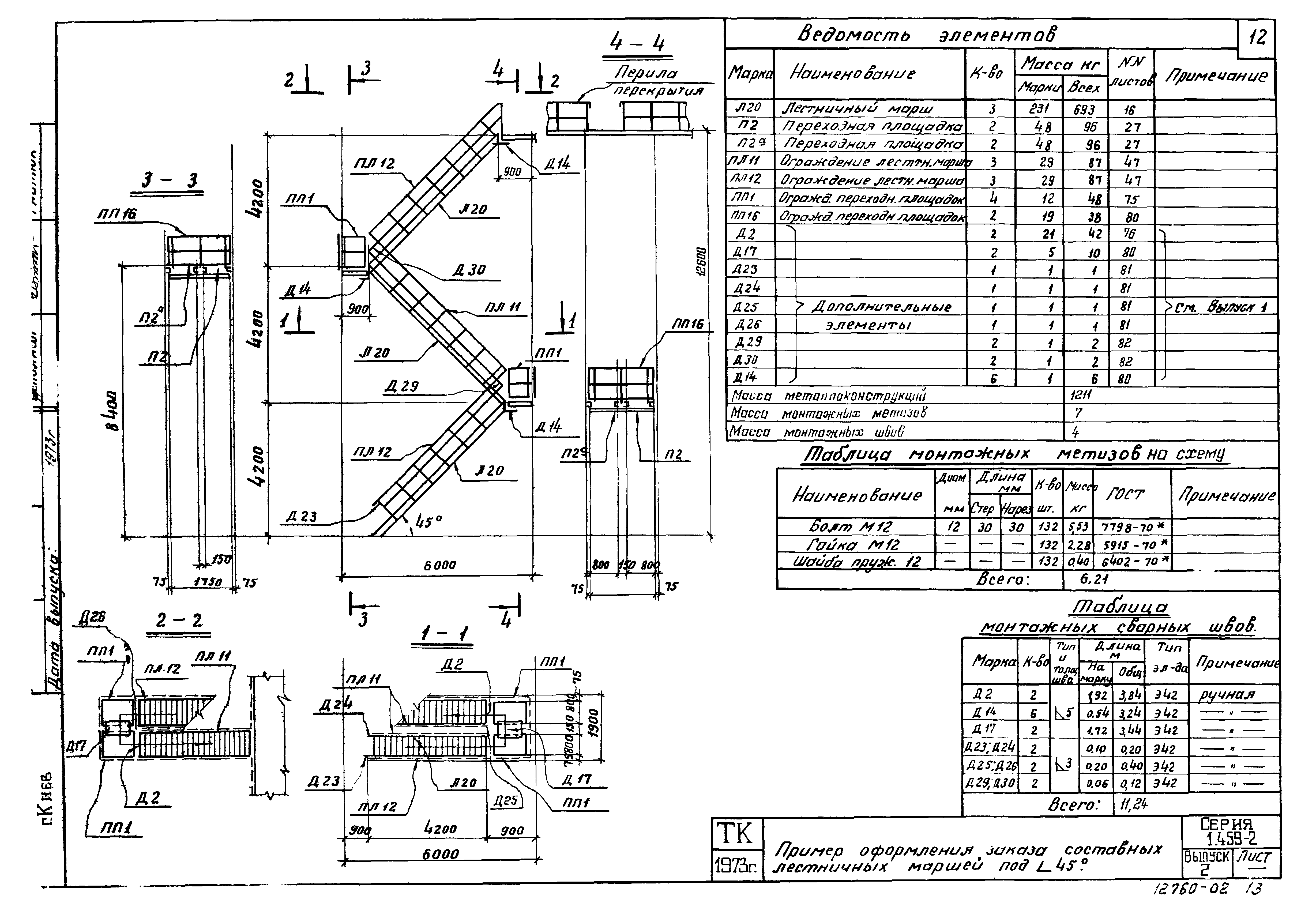
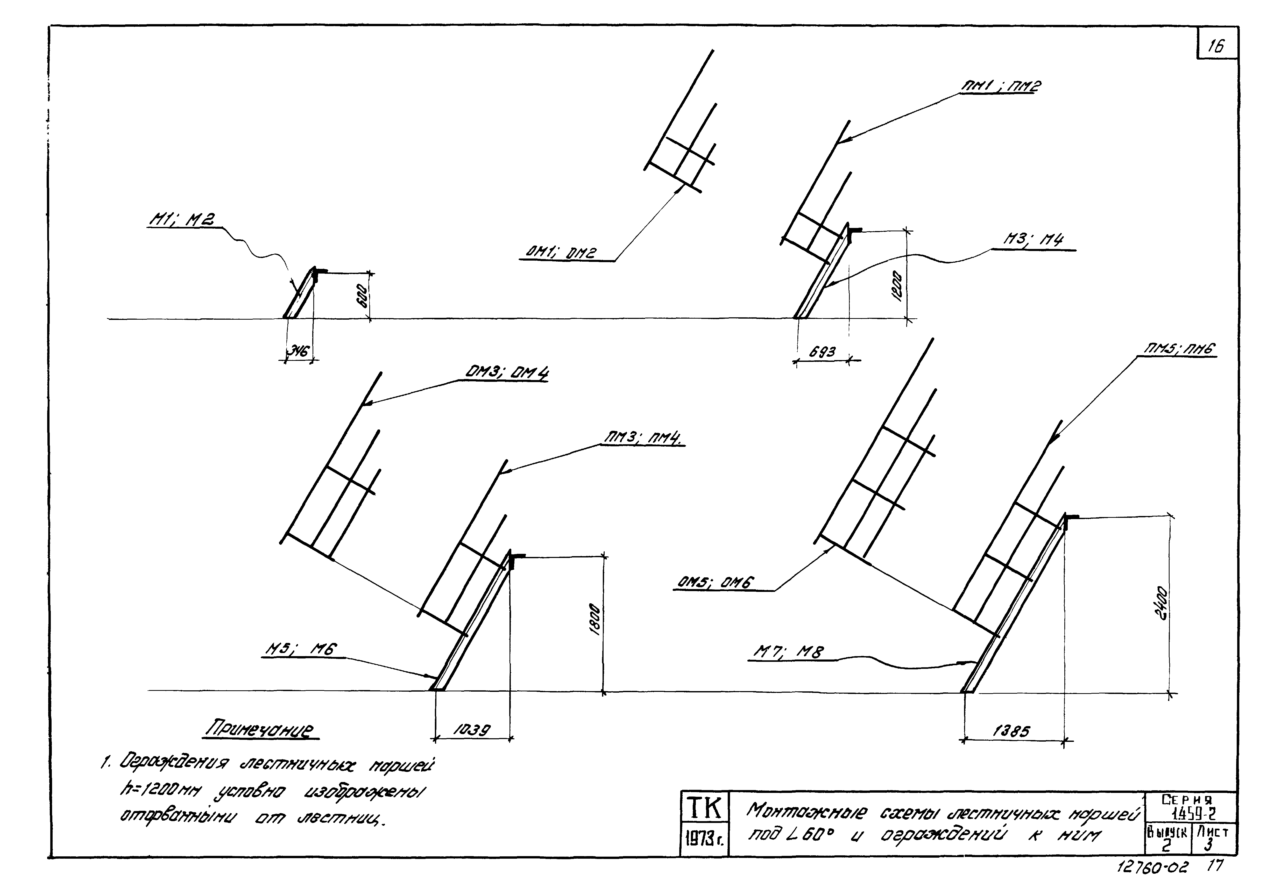
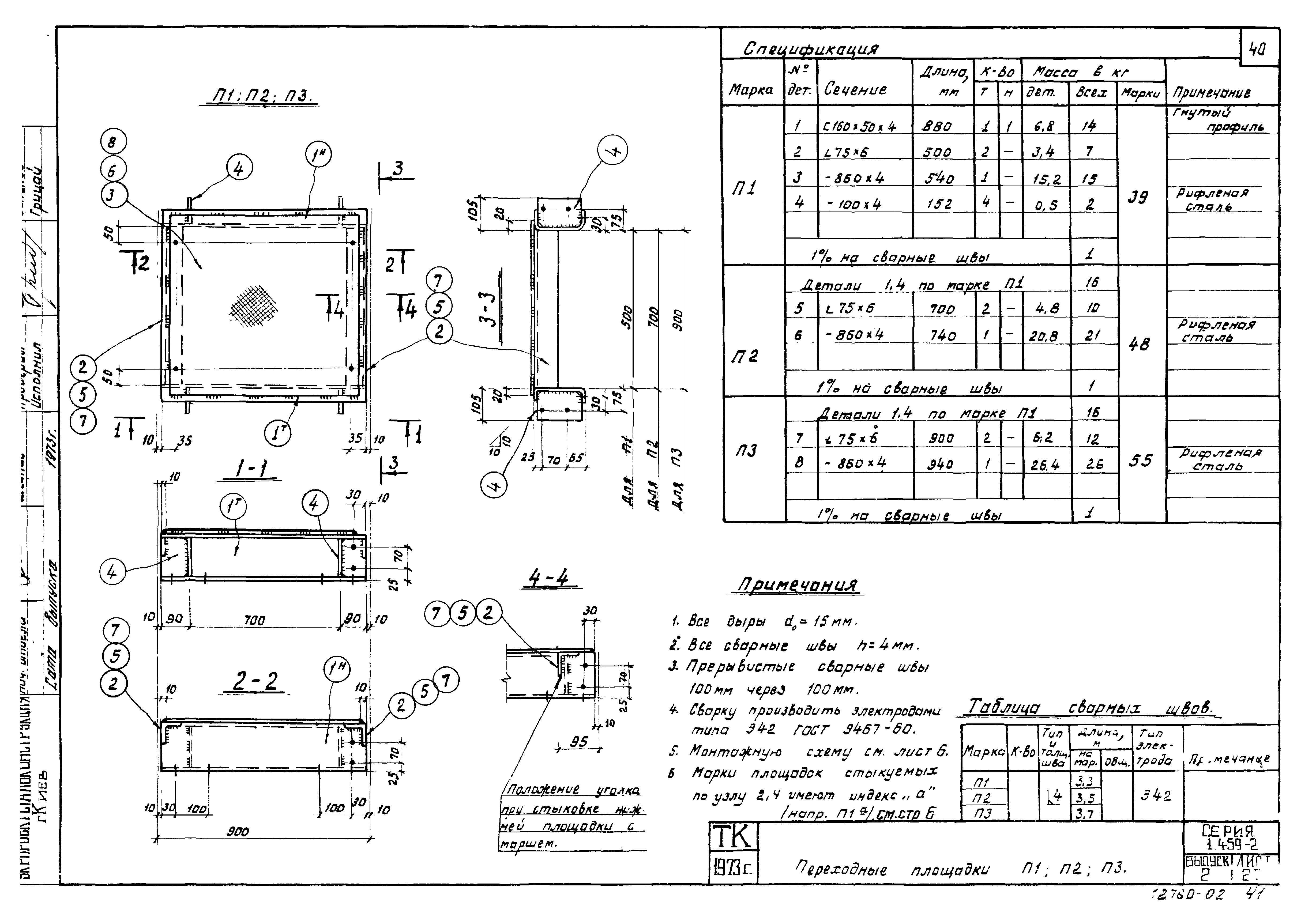
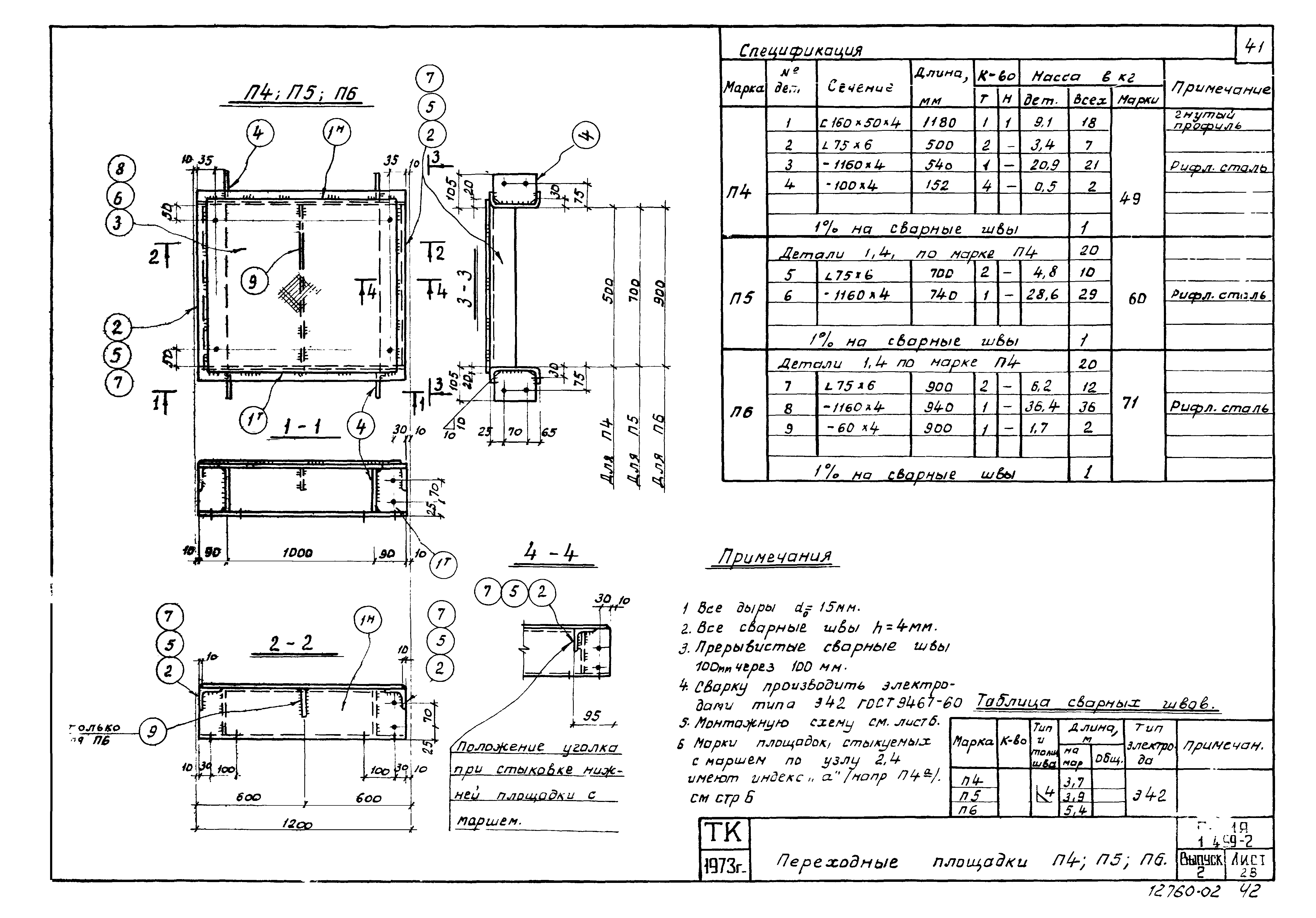
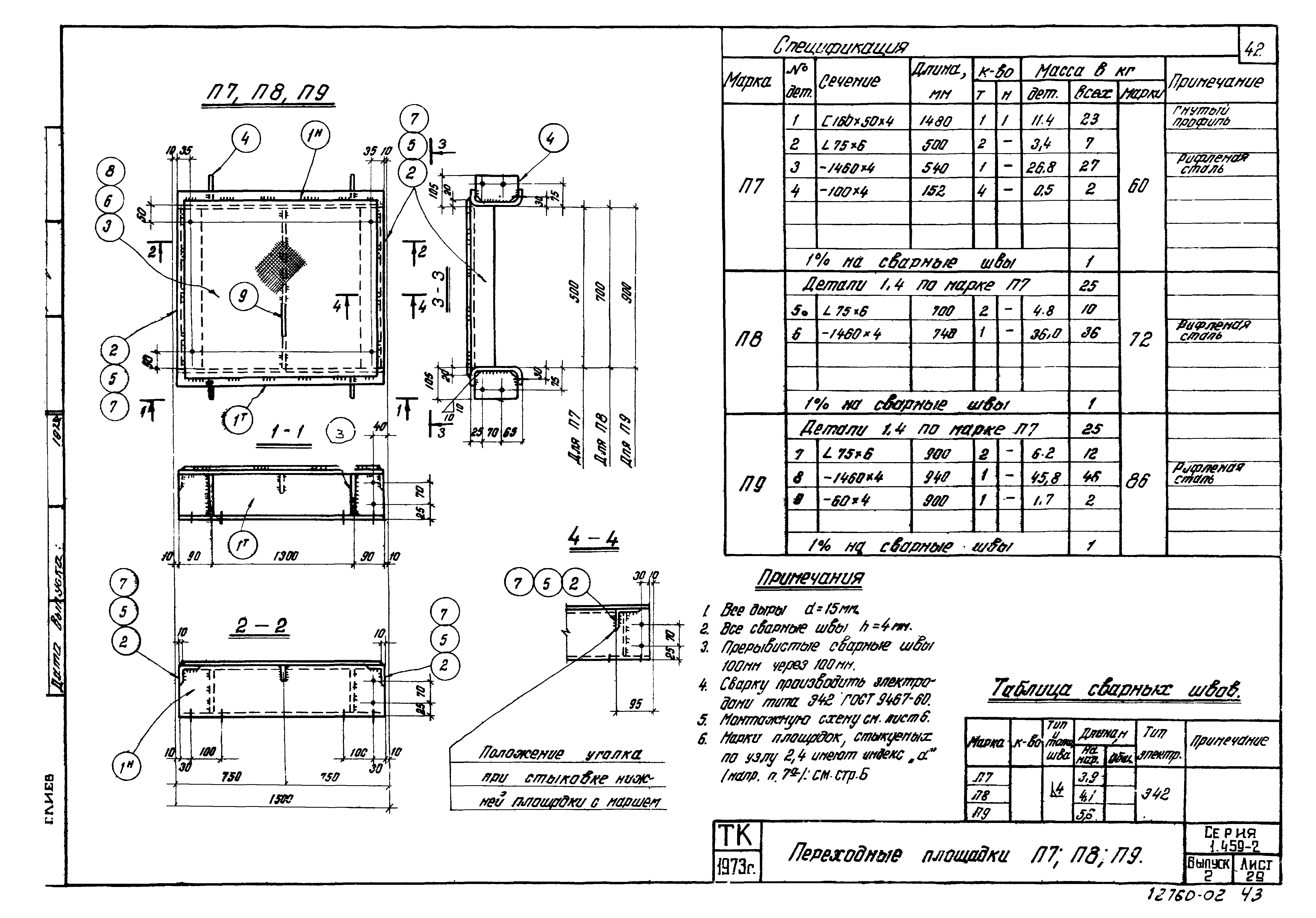
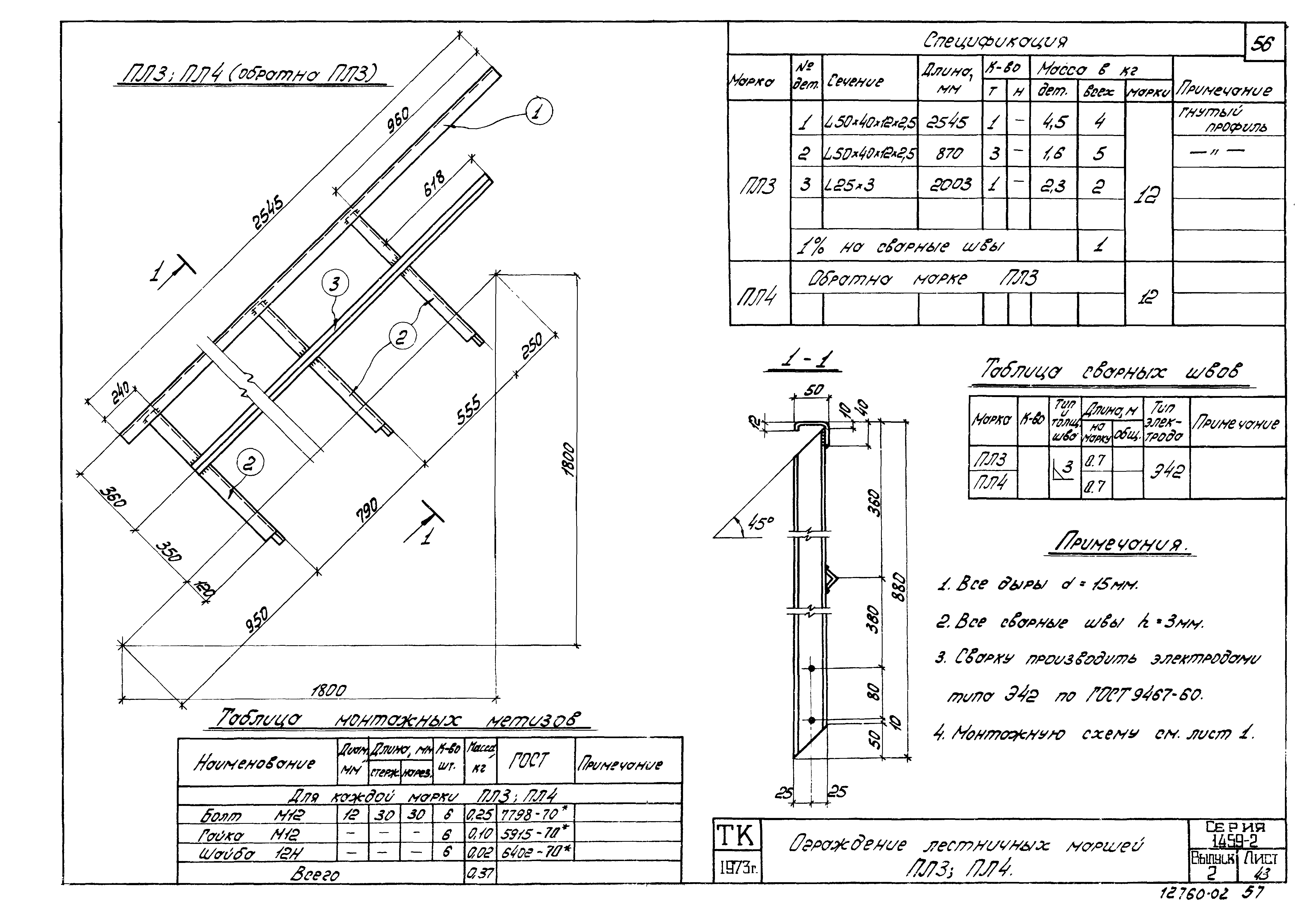
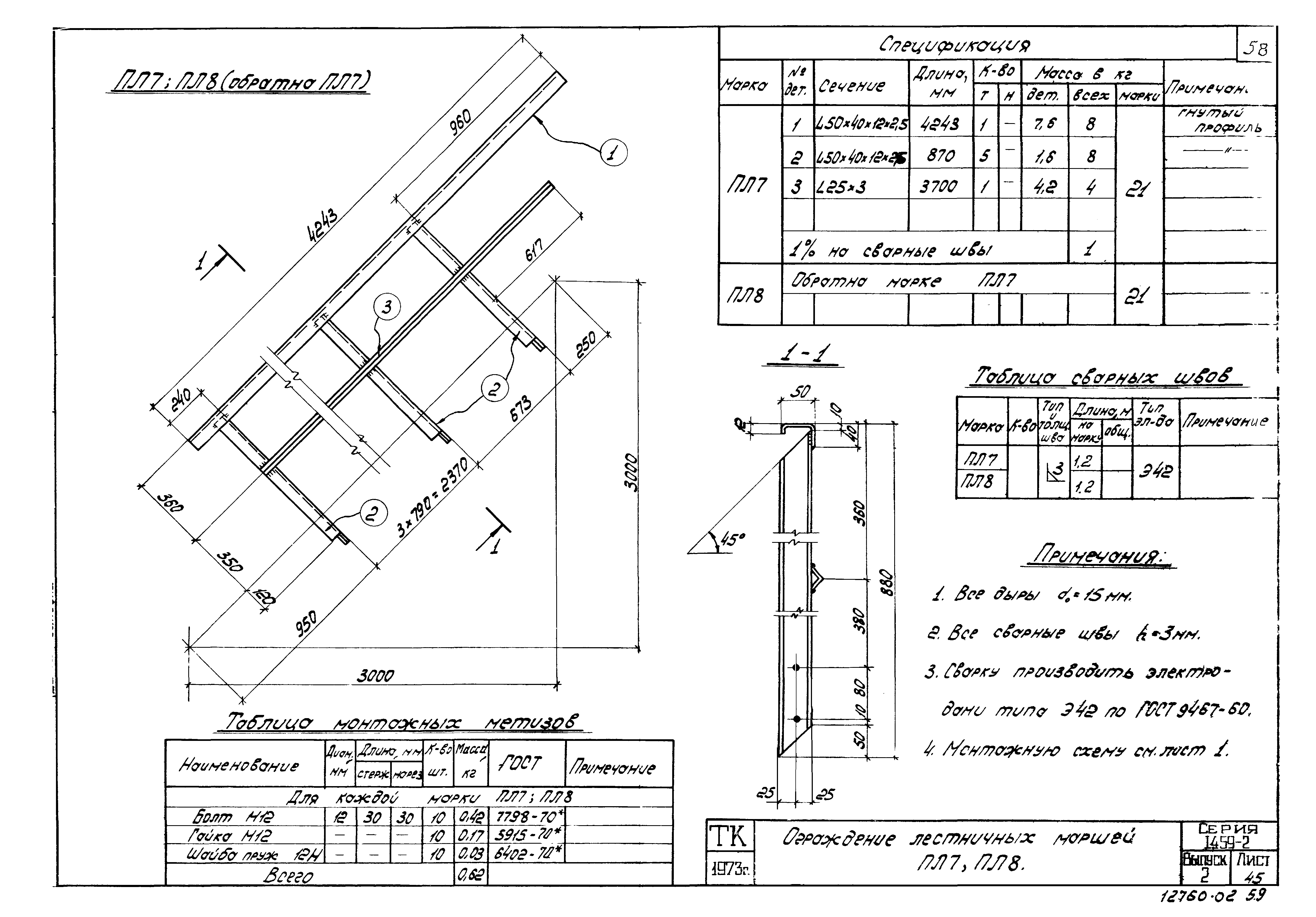
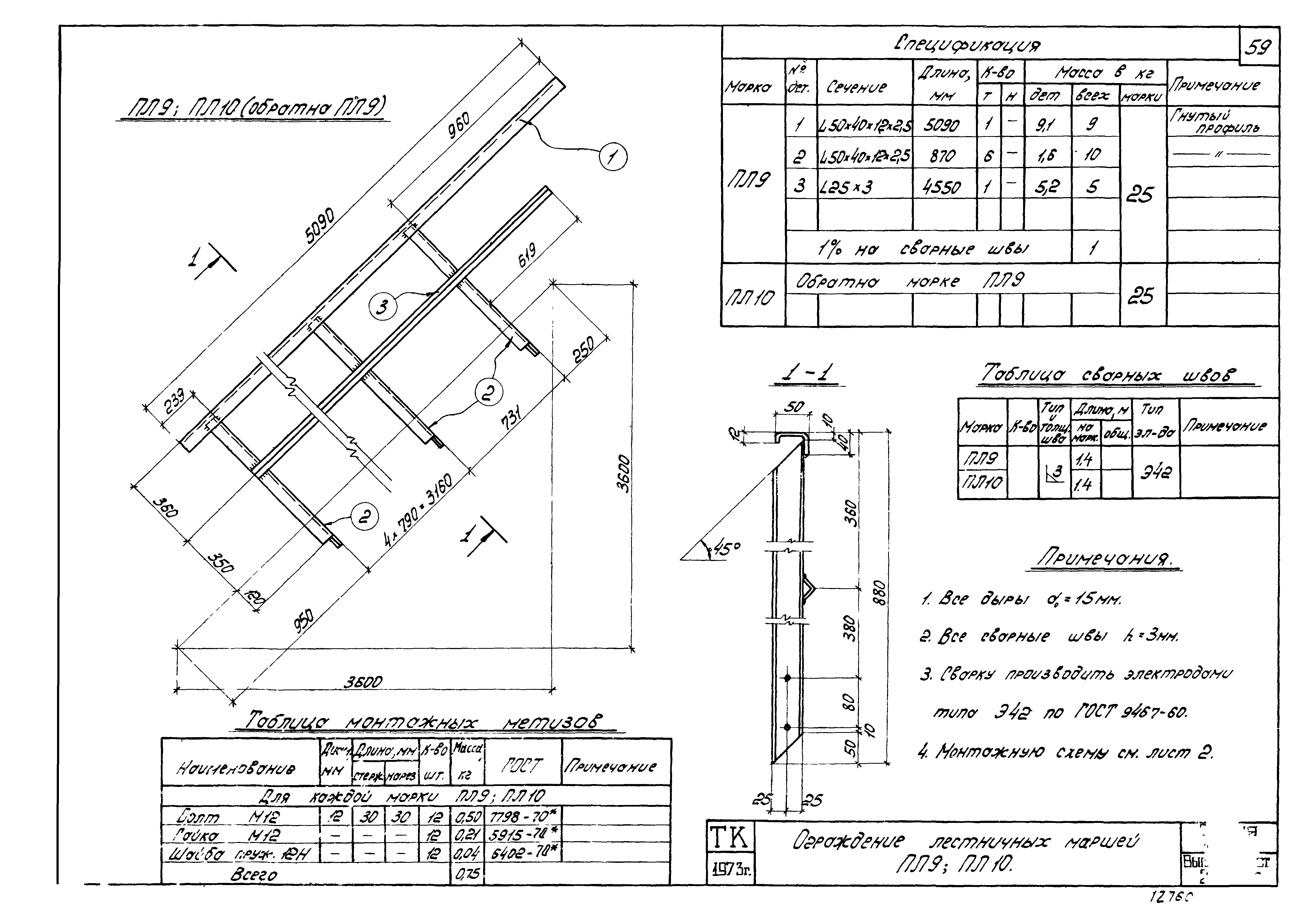
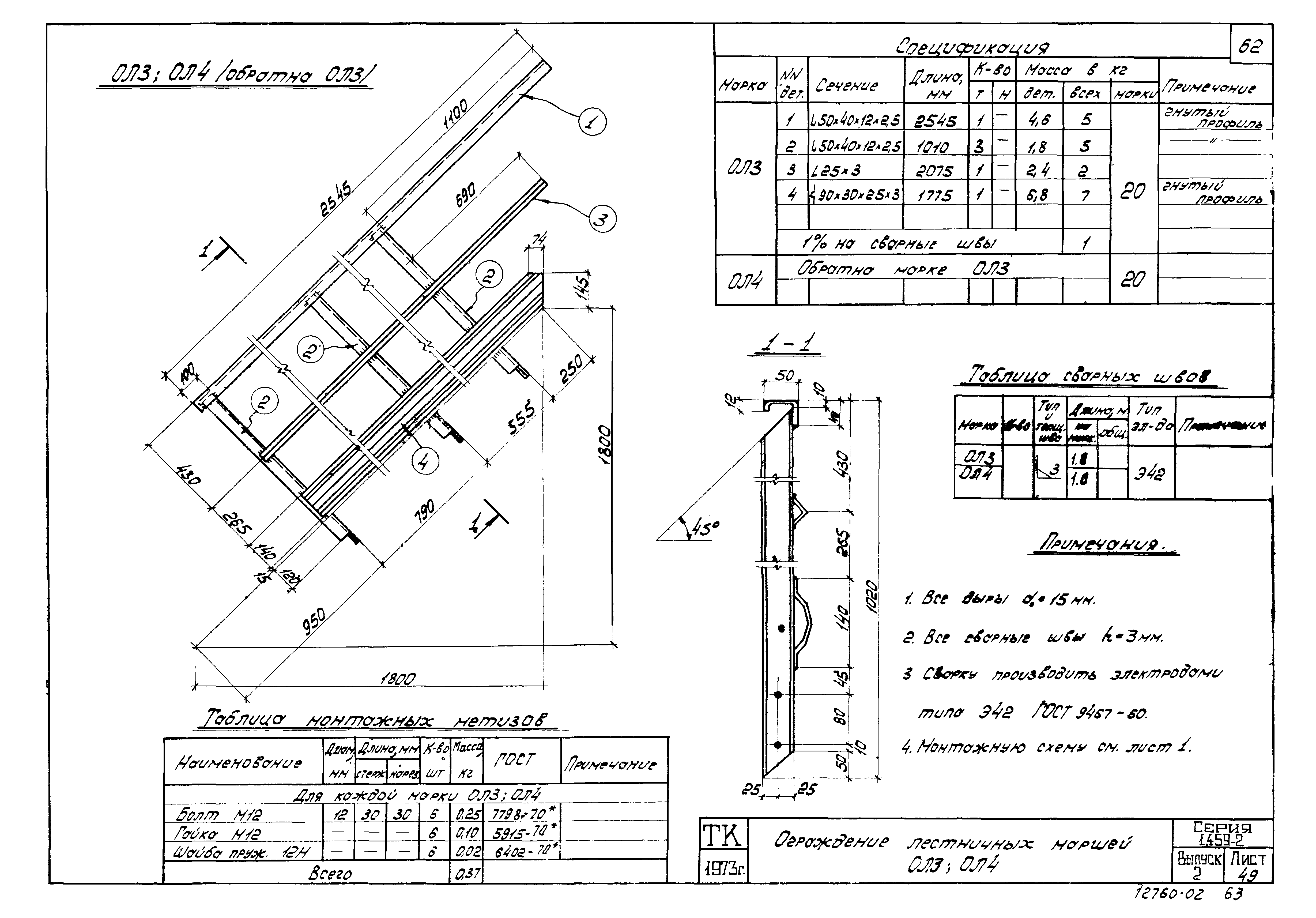
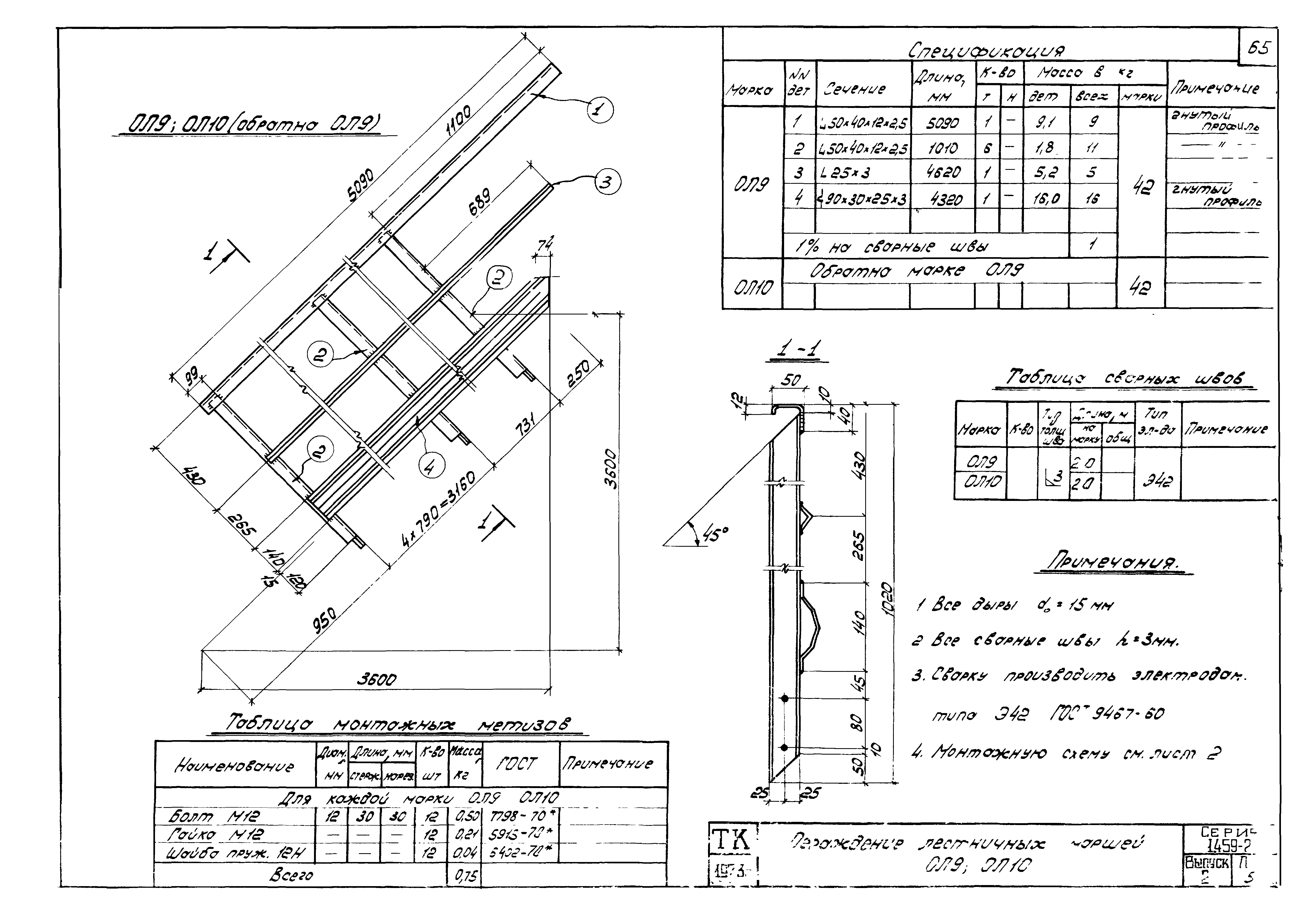
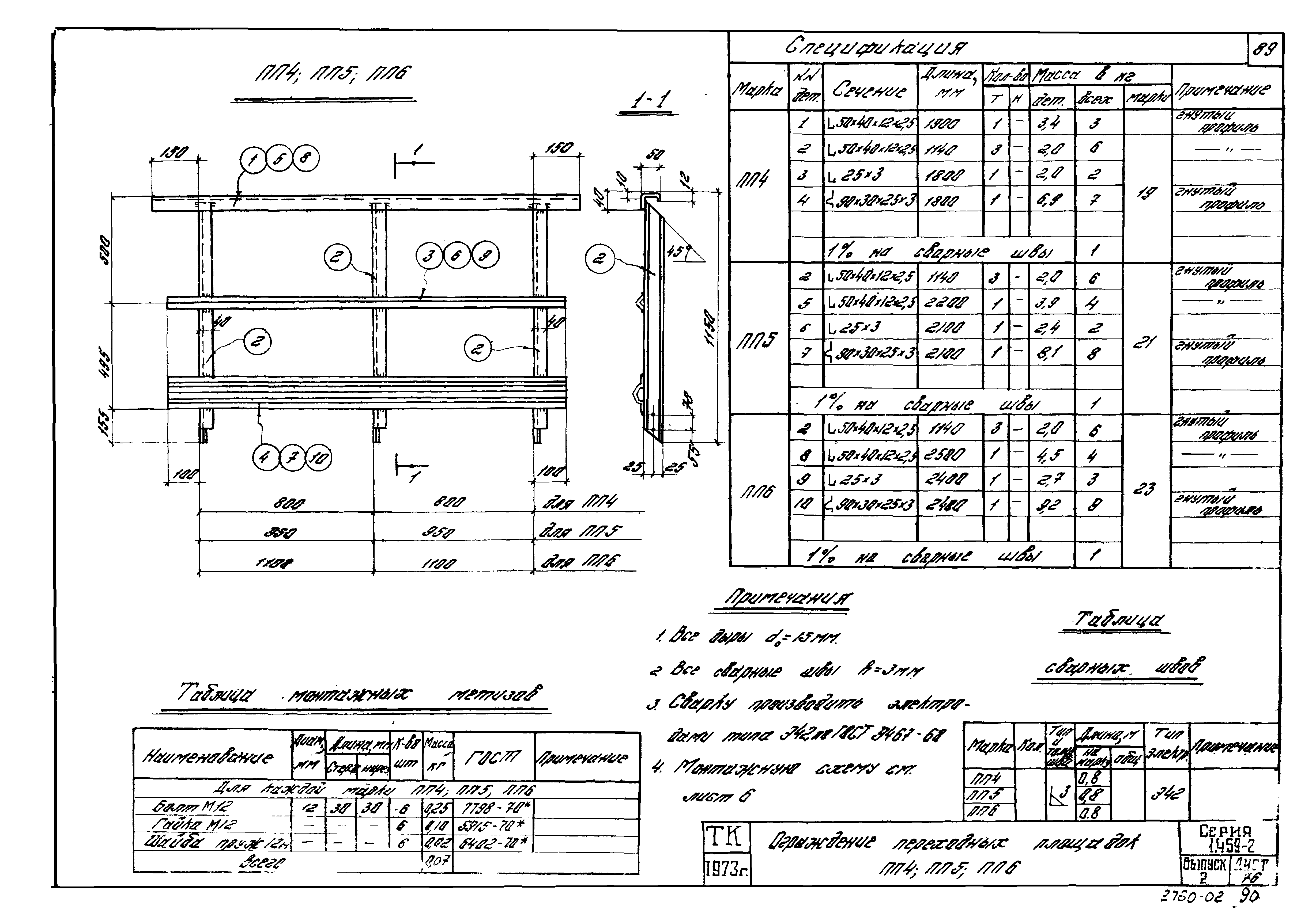
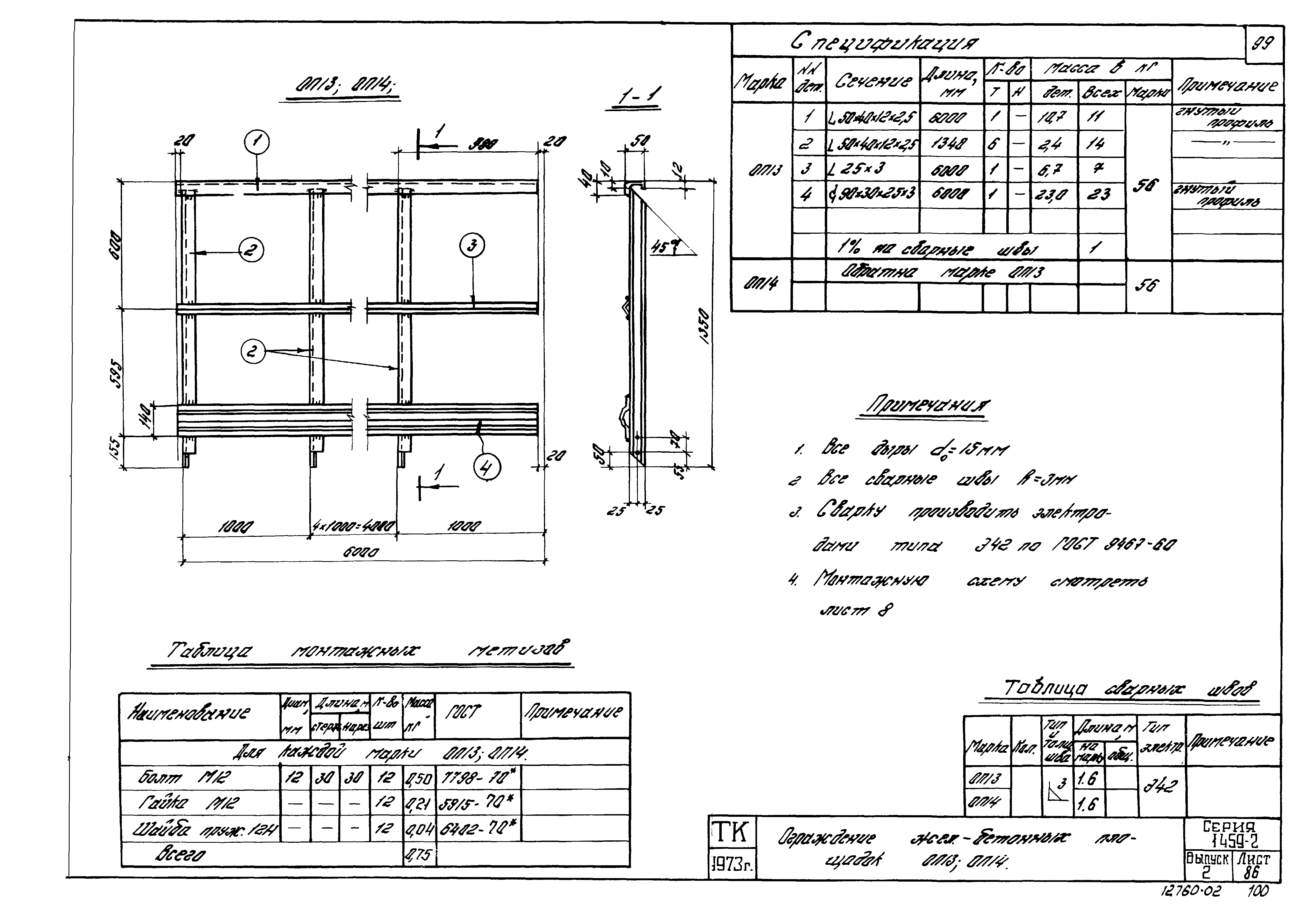
| Оглавление: | 1.459-2 Титульный лист 1.459-2 Содержание выпуска 1.459-2 Пояснительная записка 1.459-2 Пример оформления заказа составных лестничных маршей под 45° 1.459-2 Пример оформления заказа составных лестничных маршей под 60° 1.459-2 Монтажные схемы лестничных маршей под 45° и ограждений к ним 1.459-2 Монтажные схемы лестничных маршей под 60° и ограждений к ним 1.459-2 Монтажные схемы переходных площадок и ограждений к ним 1.459-2 Монтажные схемы переходных площадок и ограждений к ним, и ограждений по торцам переходных площадок 1.459-2 Монтажные схемы стремянок и ограждений к ним 1.459-2 Лестничные марши Л1,Л2,Л3 1.459-2 Лестничные марши Л4,Л5,Л6 1.459-2 Лестничные марши Л7,Л8,Л9 1.459-2 Лестничные марши Л10,Л11,Л12 1.459-2 Лестничные марши Л13,Л14,Л15 1.459-2 Лестничные марши Л16,Л17,Л18 1.459-2 Лестничные марши Л19,Л20,Л21 1.459-2 Лестничные марши М1,М2 1.459-2 Лестничные марши М3,М4 1.459-2 Лестничные марши М5,М6 1.459-2 Лестничные марши М7,М8 1.459-2 Лестничные марши М9,М10 1.459-2 Лестничные марши М11,М12 1.459-2 Лестничные марши М13,М14 1.459-2 Лестничные марши М15,М16 1.459-2 Лестничные марши М17,М18 1.459-2 Лестничные марши М19,М20 1.459-2 Переходные площадки П1;П2;П3 1.459-2 Переходные площадки П4;П5;П6 1.459-2 Переходные площадки П7;П8;П9 1.459-2 Переходные площадки П10;П11;П12 1.459-2 Переходные площадки П13;П14;П15 1.459-2 Переходные площадки П16;П17;П18 1.459-2 Переходные площадки П19;П20;П21 1.459-2 Переходные площадки П22;П23;П24 1.459-2 Переходные площадки П25;П26;П27 1.459-2 Переходные площадки П28;П29;П30 1.459-2 Переходные площадки П31;П32;П33 1.459-2 Переходные площадки П34;П35;П36 1.459-2 Переходные площадки П37;П38;П39 1.459-2 Переходные площадки П40;П41;П42 1.459-2 Переходные площадки П43;П44 1.459-2 Ограждение лестничных маршей ПЛ1,ПЛ2 1.459-2 Ограждение лестничных маршей ПЛ3,ПЛ4 1.459-2 Ограждение лестничных маршей ПЛ5,ПЛ6 1.459-2 Ограждение лестничных маршей ПЛ7,ПЛ8 1.459-2 Ограждение лестничных маршей ПЛ9,ПЛ10 1.459-2 Ограждение лестничных маршей ПЛ11,ПЛ12 1.459-2 Ограждение лестничных маршей ОЛ1,ОЛ2 1.459-2 Ограждение лестничных маршей ОЛ3,ОЛ4 1.459-2 Ограждение лестничных маршей ОЛ5,ОЛ6 1.459-2 Ограждение лестничных маршей ОЛ7,ОЛ8 1.459-2 Ограждение лестничных маршей ОЛ9,ОЛ10 1.459-2 Ограждение лестничных маршей ОЛ11,ОЛ12 1.459-2 Ограждение лестничных маршей ПМ1,ПМ2 1.459-2 Ограждение лестничных маршей ПМ3,ПМ4 1.459-2 Ограждение лестничных маршей ПМ5,ПМ6 1.459-2 Ограждение лестничных маршей ПМ7,ПМ8 1.459-2 Ограждение лестничных маршей ПМ9,ПМ10 1.459-2 Ограждение лестничных маршей ПМ11,ПМ12 1.459-2 Ограждение лестничных маршей ПМ13,ПМ14 1.459-2 Ограждение лестничных маршей ПМ15,ПМ16 1.459-2 Ограждение лестничных маршей ПМ17,ПМ18 1.459-2 Ограждение лестничных маршей ПМ19,ПМ20 1.459-2 Ограждение лестничных маршей ПМ21,ПМ22 1.459-2 Ограждение лестничных маршей ПМ23,ПМ24 1.459-2 Ограждение лестничных маршей ОМ1,ОМ2 1.459-2 Ограждение лестничных маршей ОМ3,ОМ4 1.459-2 Ограждение лестничных маршей ОМ5,ОМ6 1.459-2 Ограждение лестничных маршей ОМ7,ОМ8 1.459-2 Ограждение лестничных маршей ОМ9,ОМ10 1.459-2 Ограждение лестничных маршей ОМ11,ОМ12 1.459-2 Ограждение лестничных маршей ОМ13,ОМ14 1.459-2 Ограждение лестничных маршей ОМ15,ОМ16 1.459-2 Ограждение лестничных маршей ОМ17,ОМ18 1.459-2 Ограждение переходных площадок ПП1,ПП2,ПП3 1.459-2 Ограждение переходных площадок ПП4,ПП5,ПП6 1.459-2 Ограждение переходных площадок ПП7,ПП8,ПП9 1.459-2 Ограждение переходных площадок ПП10,ПП11,ПП12 1.459-2 Ограждение переходных площадок ПП13,ПП14 1.459-2 Ограждение переходных площадок ПП15,ПП16,ПП17 1.459-2 Ограждение переходных площадок ПП18,ПП19 1.459-2 Ограждение переходных площадок ОП1,ОП2,ОП3 1.459-2 Ограждение переходных площадок ОП4,ОП5,ОП6 1.459-2 Ограждение переходных площадок ОП7,ОП8,ОП9 1.459-2 Ограждение переходных площадок ОП10,ОП11,ОП12 1.459-2 Ограждение переходных площадок ОП13,ОП14 1.459-2 Ограждение переходных площадок ОП15,ОП16,ОП17 1.459-2 Ограждение переходных площадок ОП18,ОП19 1.459-2 Ограждение стремянок СК1,СК2,СК3,СК4 1.459-2 Ограждение стремянок СК5,СК6,СК7,СК8 |
| Разработан: | ЦНИИпроектстальконструкция Укрпроектстальконструкция |
| Утверждён: | 10.01.1974 Госстрой СССР (Государственный комитет Совета Министров СССР по делам строительства) (USSR Gosstroy 2) |
| Чем заменён: |








































































































