Скачать Типовой проект 902-2-343 Альбом I. Технологическая частьДата актуализации: 01.01.2021
|
| Обозначение: | Типовой проект 902-2-343 |
| Обозначение англ: | 902-2-343 |
| Статус: | не определен законодательством |
| Название рус.: | Альбом I. Технологическая часть |
| Дата добавления в базу: | 01.09.2013 |
| Дата актуализации: | 01.01.2021 |
| Дата введения: | 01.03.1981 |
| Дата окончания срока действия: | 30.06.2003 |
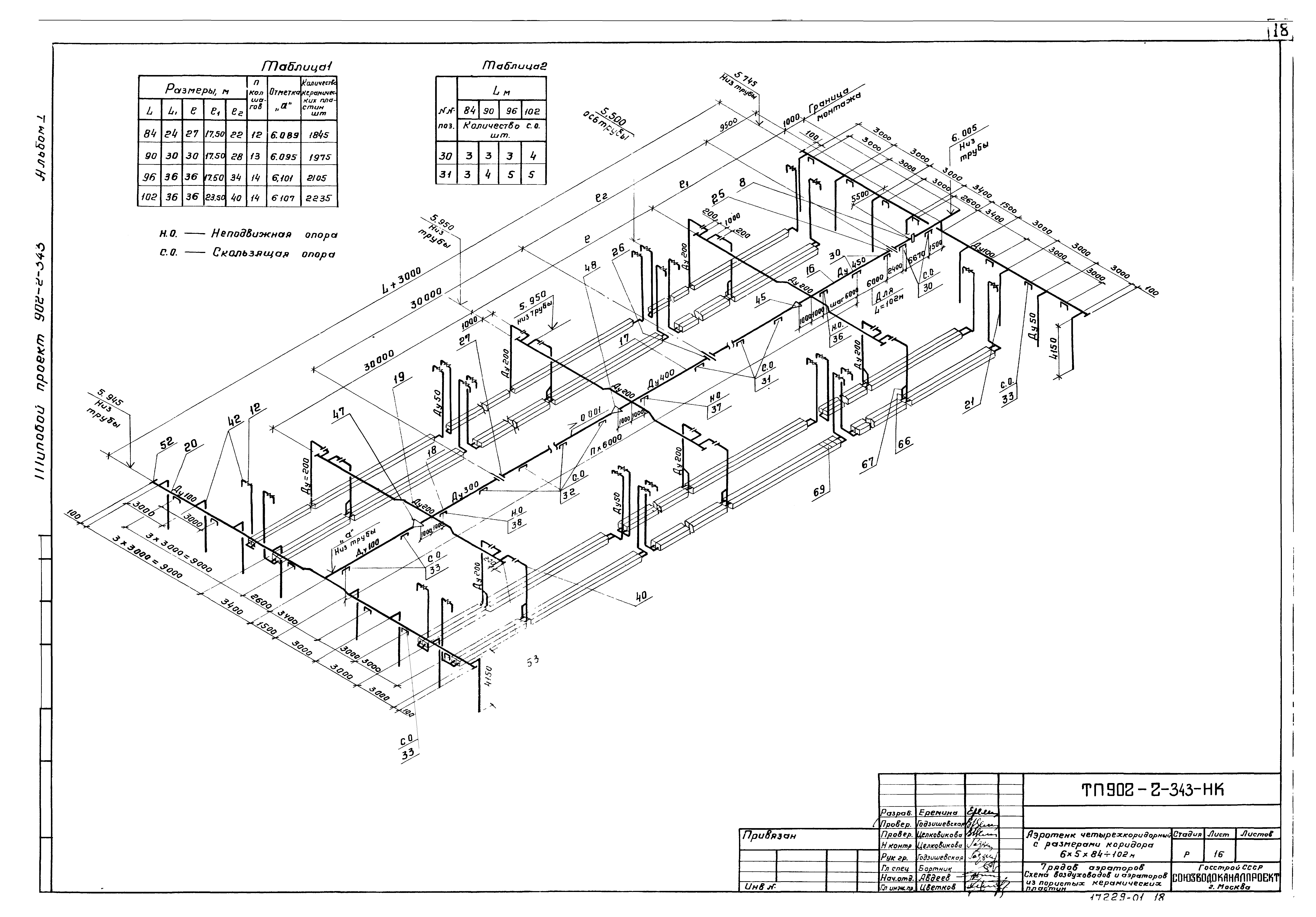
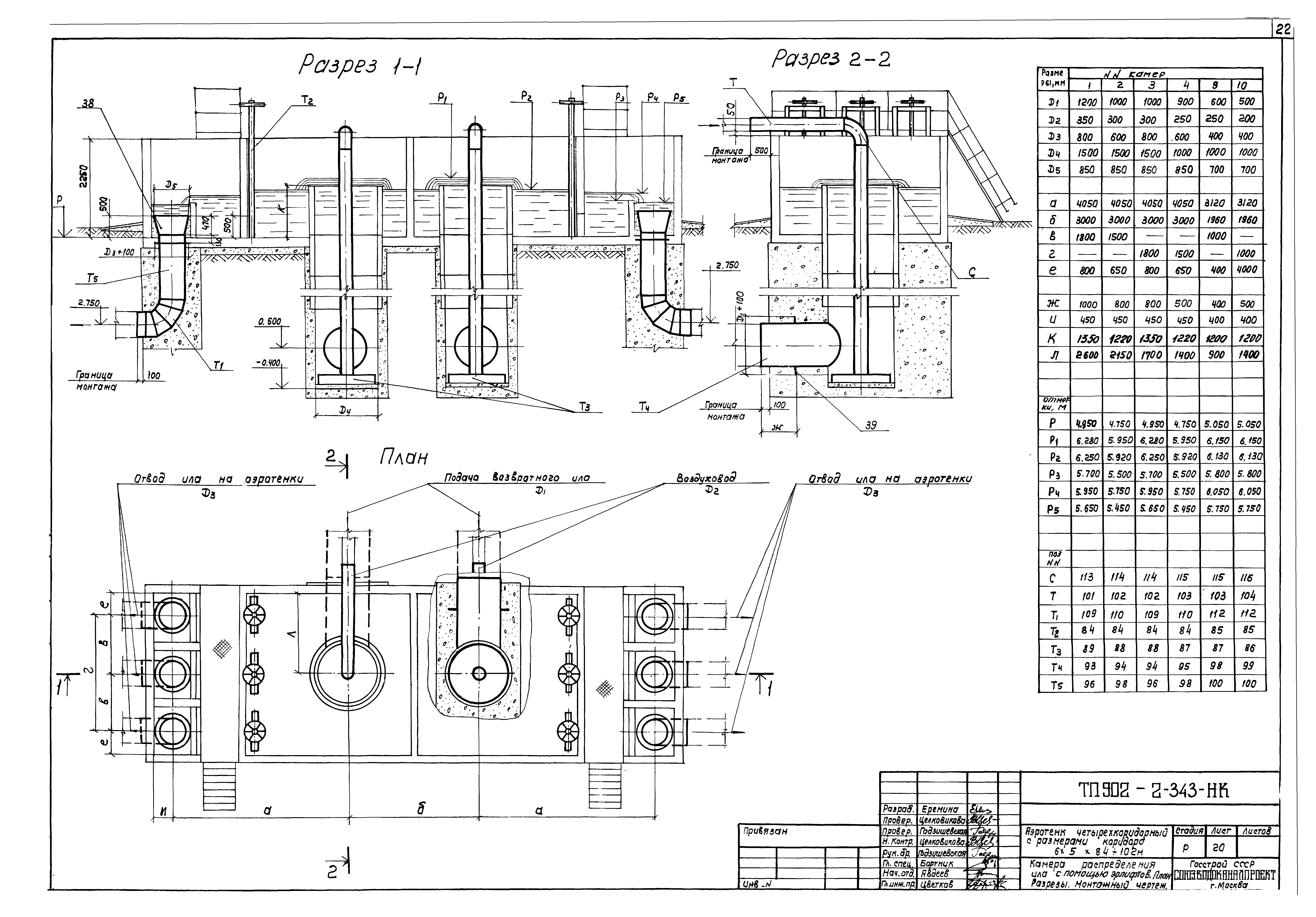
| Оглавление: | ТП 902-2-343-НК-1 Общие данные (начало) ТП 902-2-343-НК-2 Общие данные (продолжение) ТП 902-2-343-НК-3 Общие данные (продолжение) ТП 902-2-343-НК-4 Общие данные (продолжение) ТП 902-2-343-НК-5 Общие данные (продолжение) ТП 902-2-343-НК-6 Общие данные (продолжение) ТП 902-2-343-НК-7 Общие данные (продолжение) ТП 902-2-343-НК-8 Общие данные (продолжение) ТП 902-2-343-НК-9 Общие данные (продолжение) ТП 902-2-343-НК-10 Общие данные (продолжение) ТП 902-2-343-НК-11 Общие данные (окончание) ТП 902-2-343-НК-12 Схемы компоновки аэротенка ТП 902-2-343-НК-13 План одной секции аэротенка. Разрезы. Монтажный чертеж ТП 902-2-343-НК-14 Разрезы. Монтажный чертеж ТП 902-2-343-НК-15 Разрезы. Узлы. Монтажный чертеж ТП 902-2-343-НК-16 7 рядов аэраторов. Схема воздуховодов и аэраторов с пористыми керамическими пластинами ТП 902-2-343-НК-17 14 рядов аэраторов. Схема воздуховодов и аэраторов с пористыми керамическими пластинами ТП 902-2-343-НК-18 7 рядов аэраторов. Схема воздуховодов и аэраторов с пористыми керамическими трубами ТП 902-2-343-НК-19 14 рядов аэраторов. Схема воздуховодов и аэраторов с пористыми керамическими трубами ТП 902-2-343-НК-20 Камера распределения ила с помощью эрлифтов. План, разрезы. Монтажный чертеж ТП 902-2-343-НК-21 Камера распределения ила с помощью насосов. План, разрезы. Монтажный чертеж ТП 902-2-343-НК-22 Отопление шкафов КИП с сжатым воздухом. План. Схема трубопроводов |
| Разработан: | Союзводоканалниипроект |
| Утверждён: | 27.10.1980 СоюзводоканалНИИпроект (SoyuzvodokanalNIIproject 73) |
























