Скачать Типовой проект 902-2-397.86 Альбом IV. Конструкции железобетонные. Общие чертежи (из ТП 902-2-394.86)Дата актуализации: 01.01.2021
|
| Обозначение: | Типовой проект 902-2-397.86 |
| Обозначение англ: | 902-2-397.86 |
| Статус: | не определен законодательством |
| Название рус.: | Альбом IV. Конструкции железобетонные. Общие чертежи (из ТП 902-2-394.86) |
| Дата добавления в базу: | 01.09.2013 |
| Дата актуализации: | 01.01.2021 |
| Дата введения: | 09.01.1986 |
| Дата окончания срока действия: | 30.06.2003 |
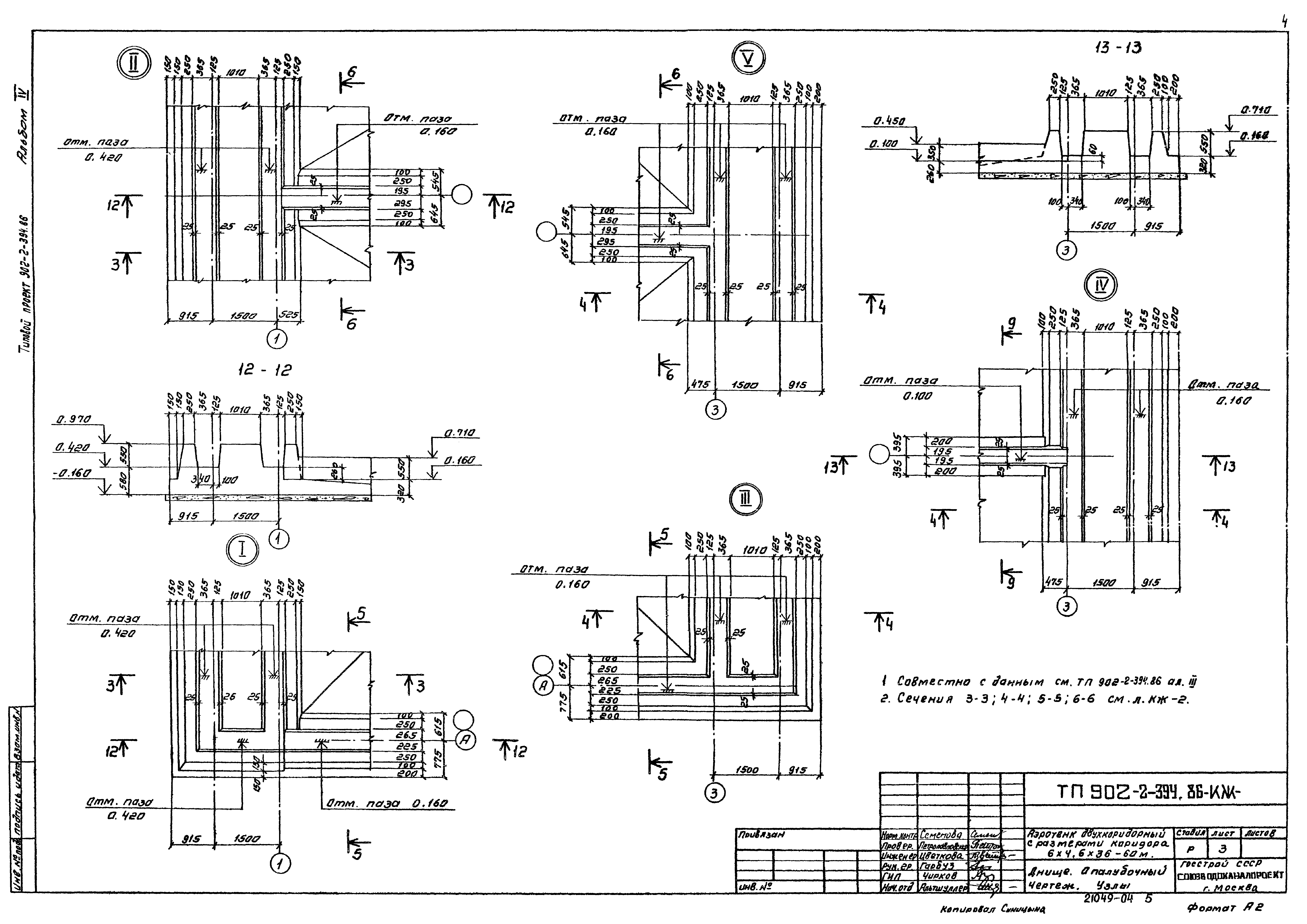
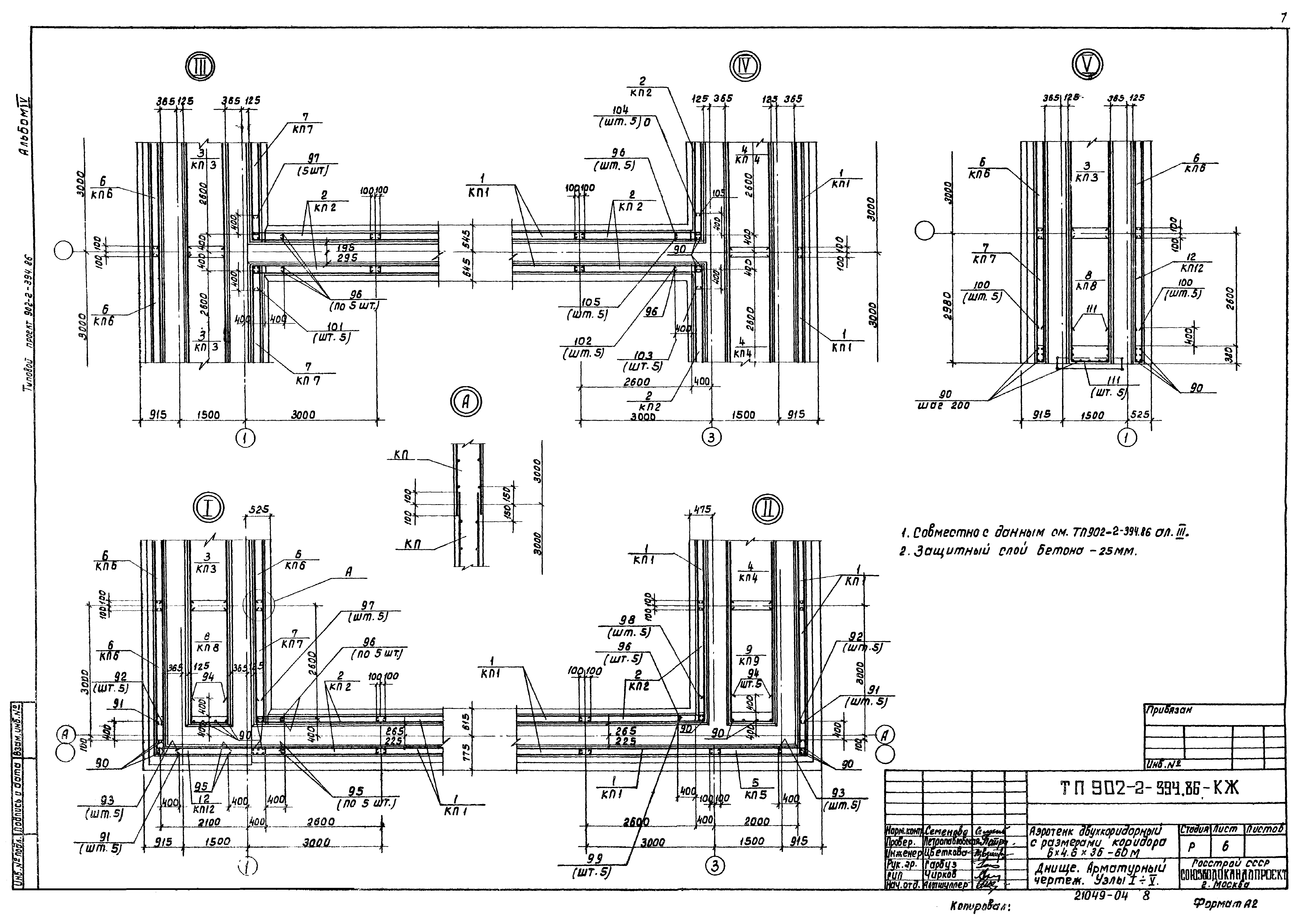
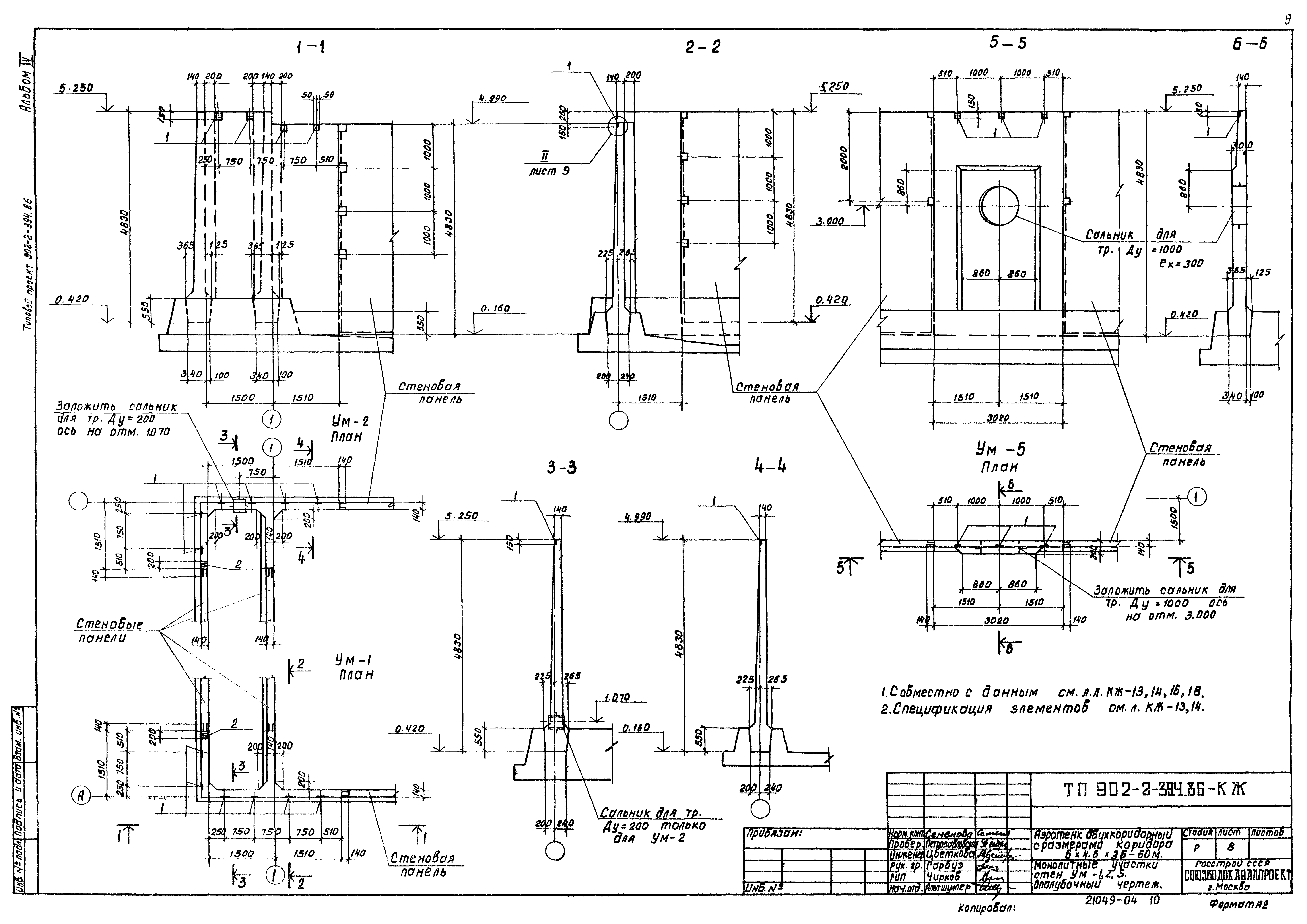
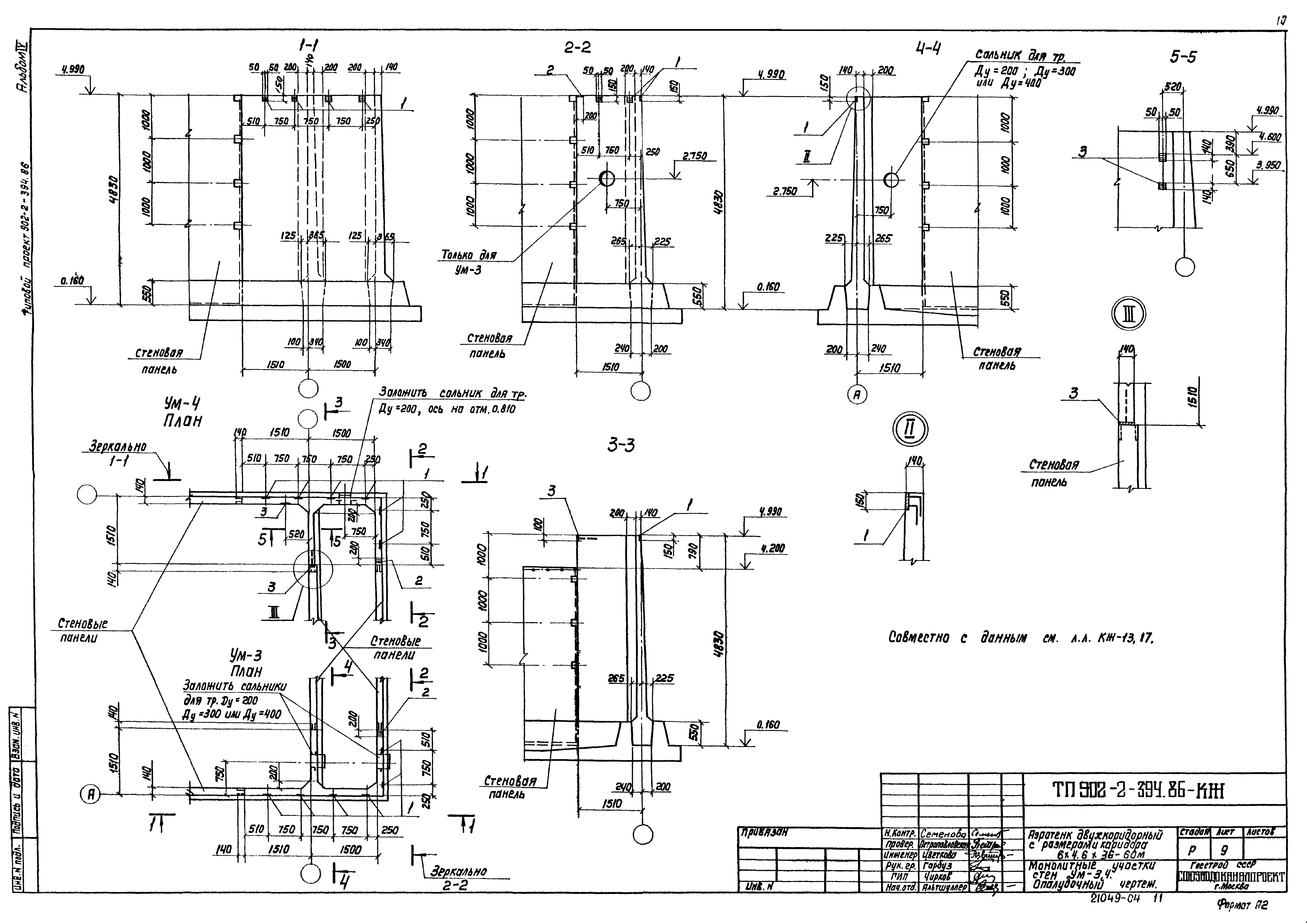
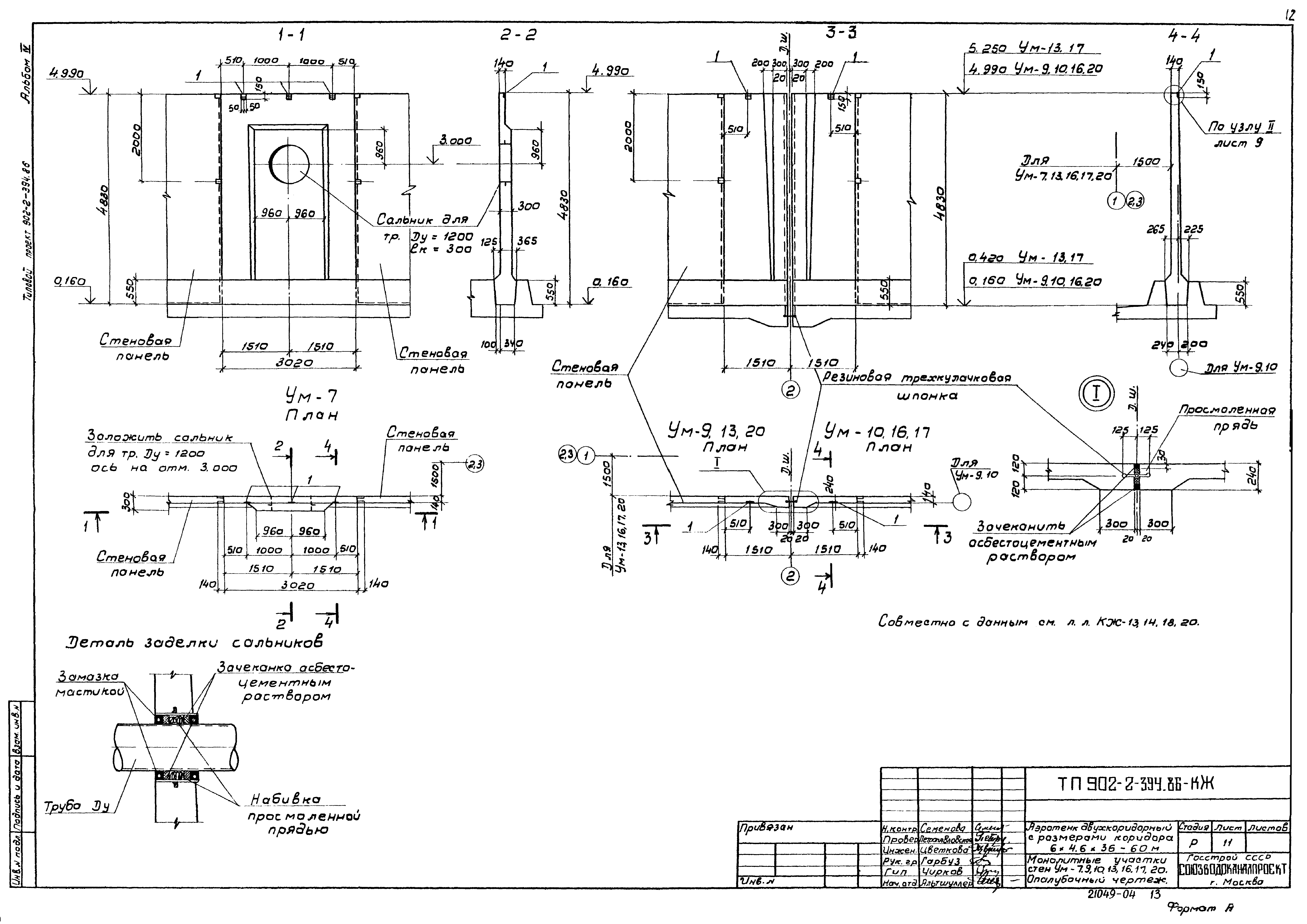
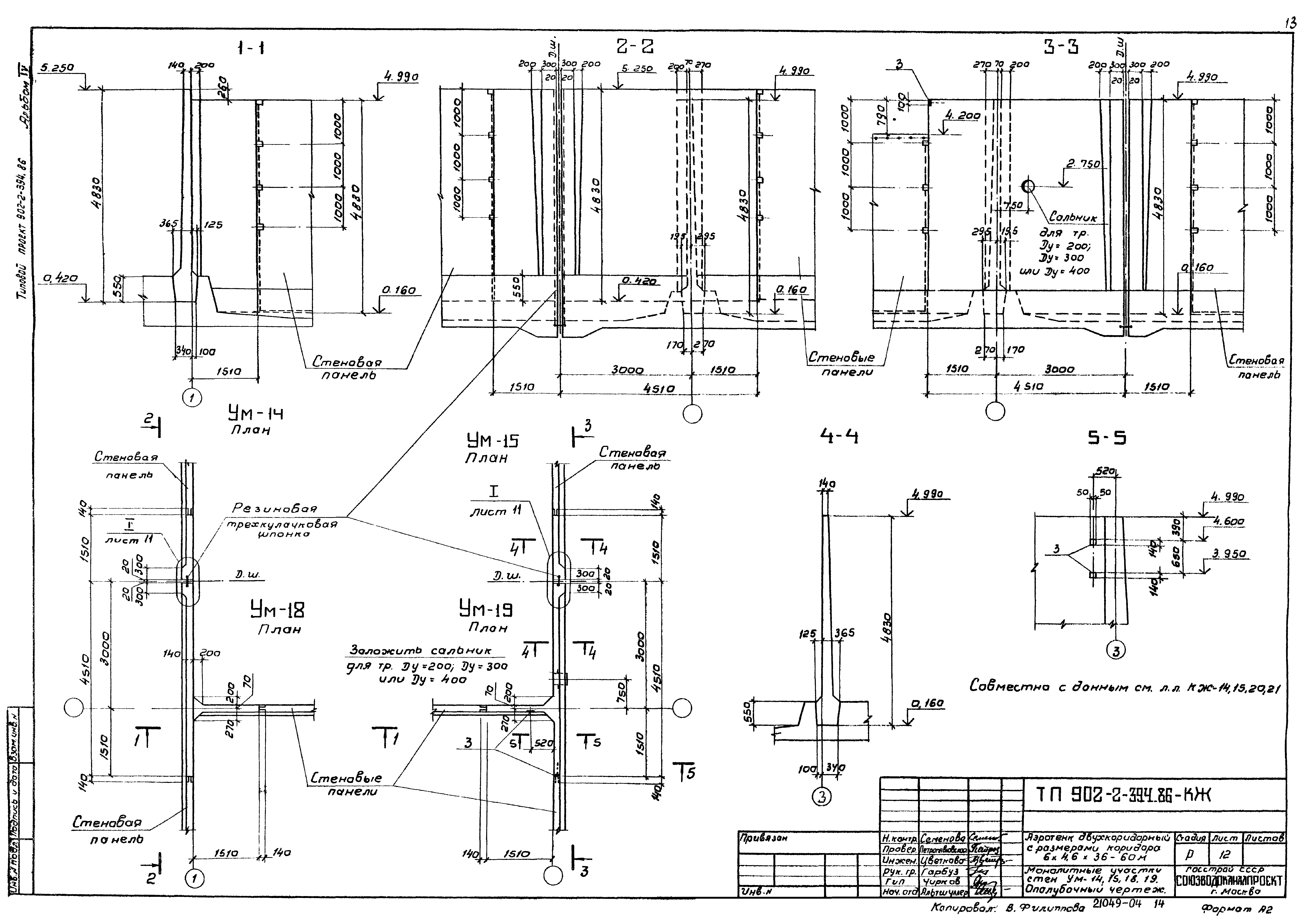
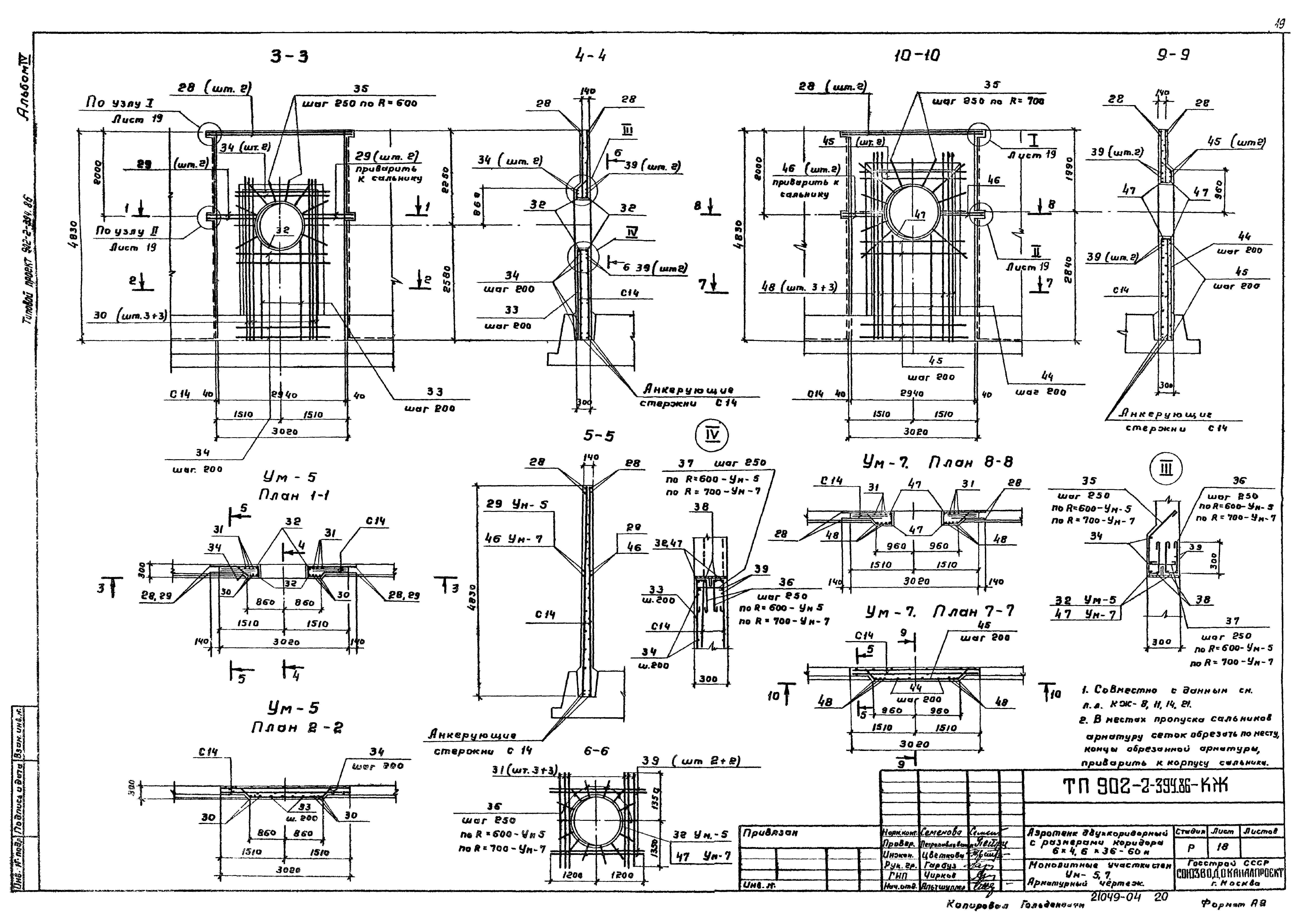
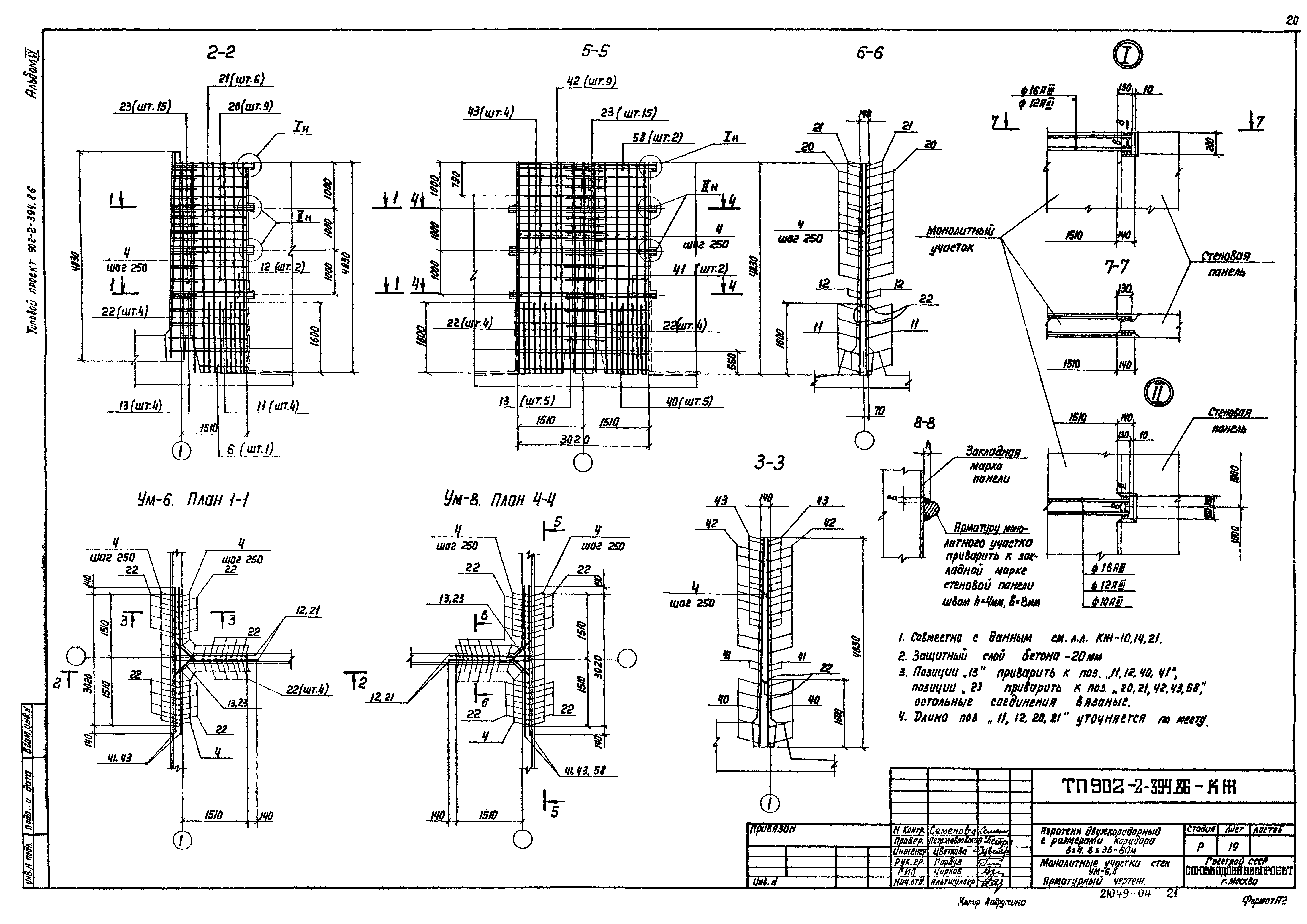
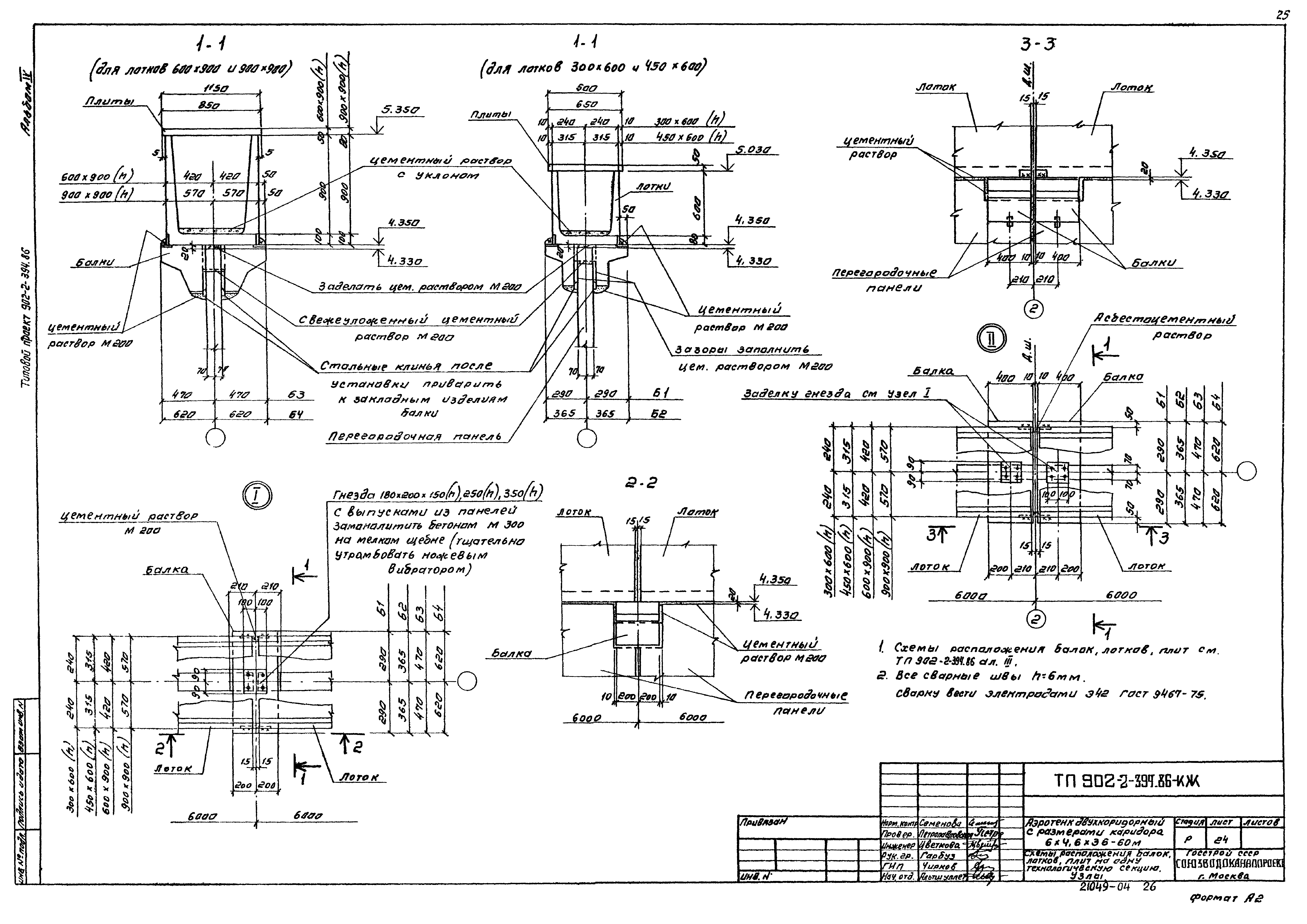
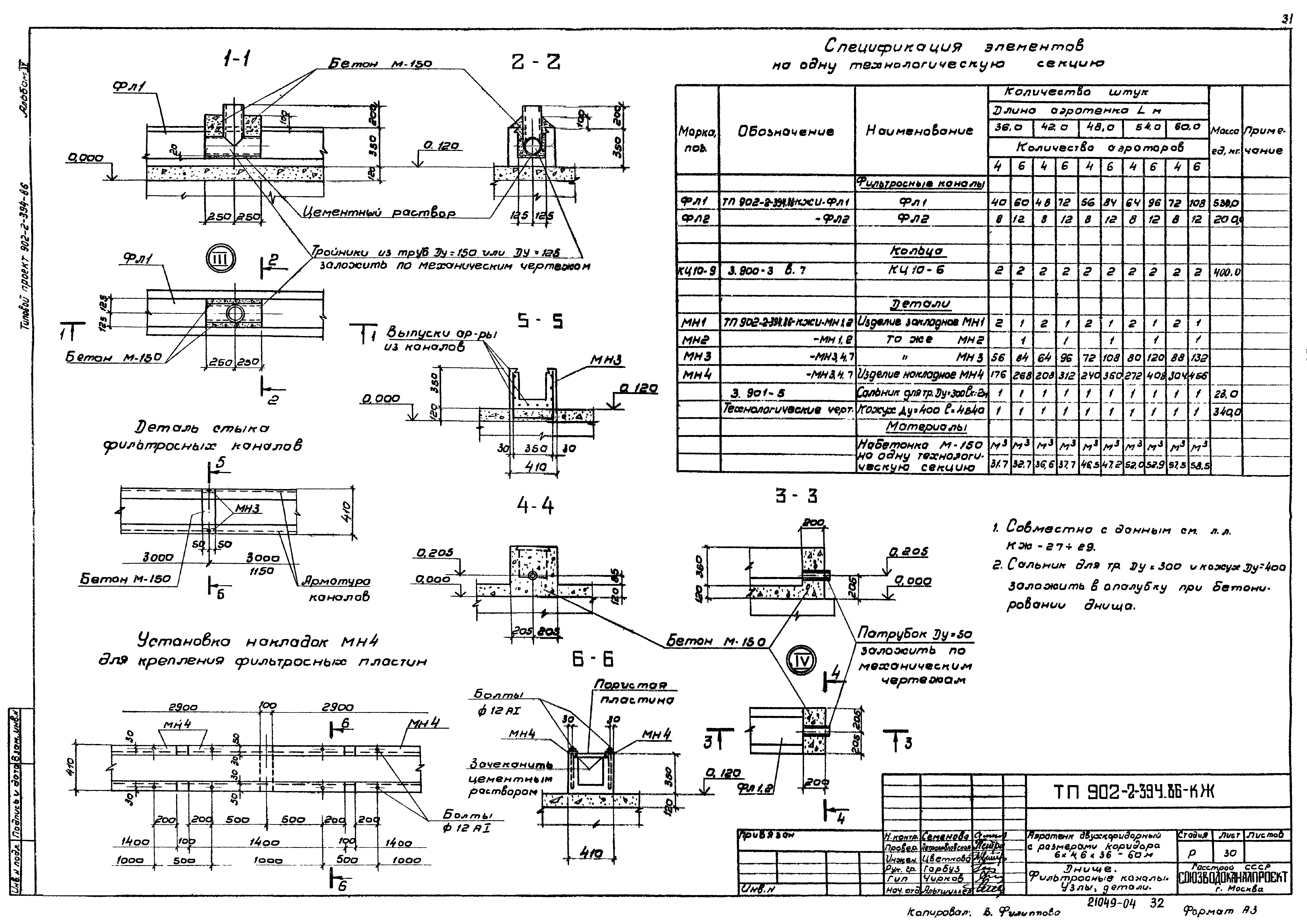
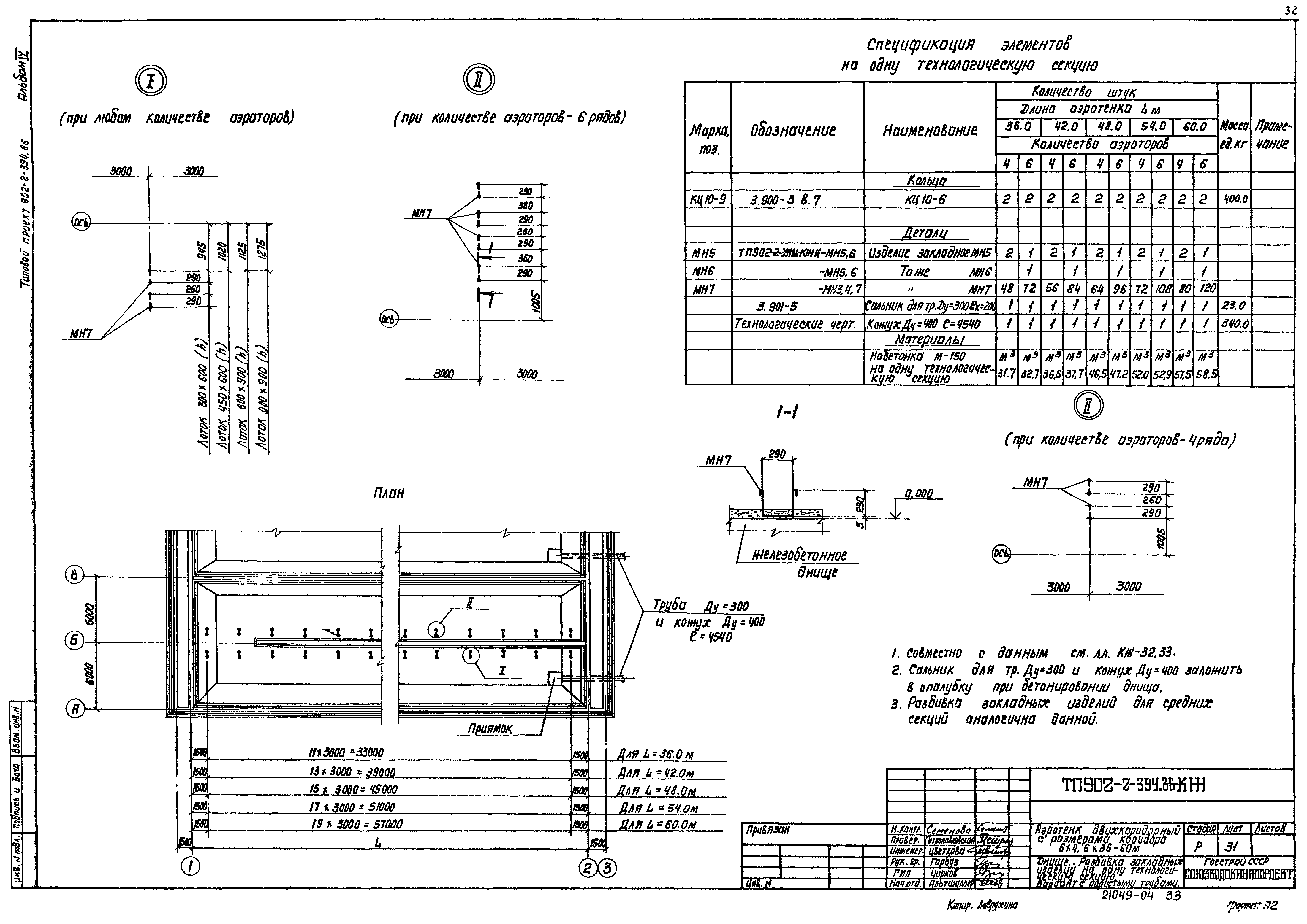
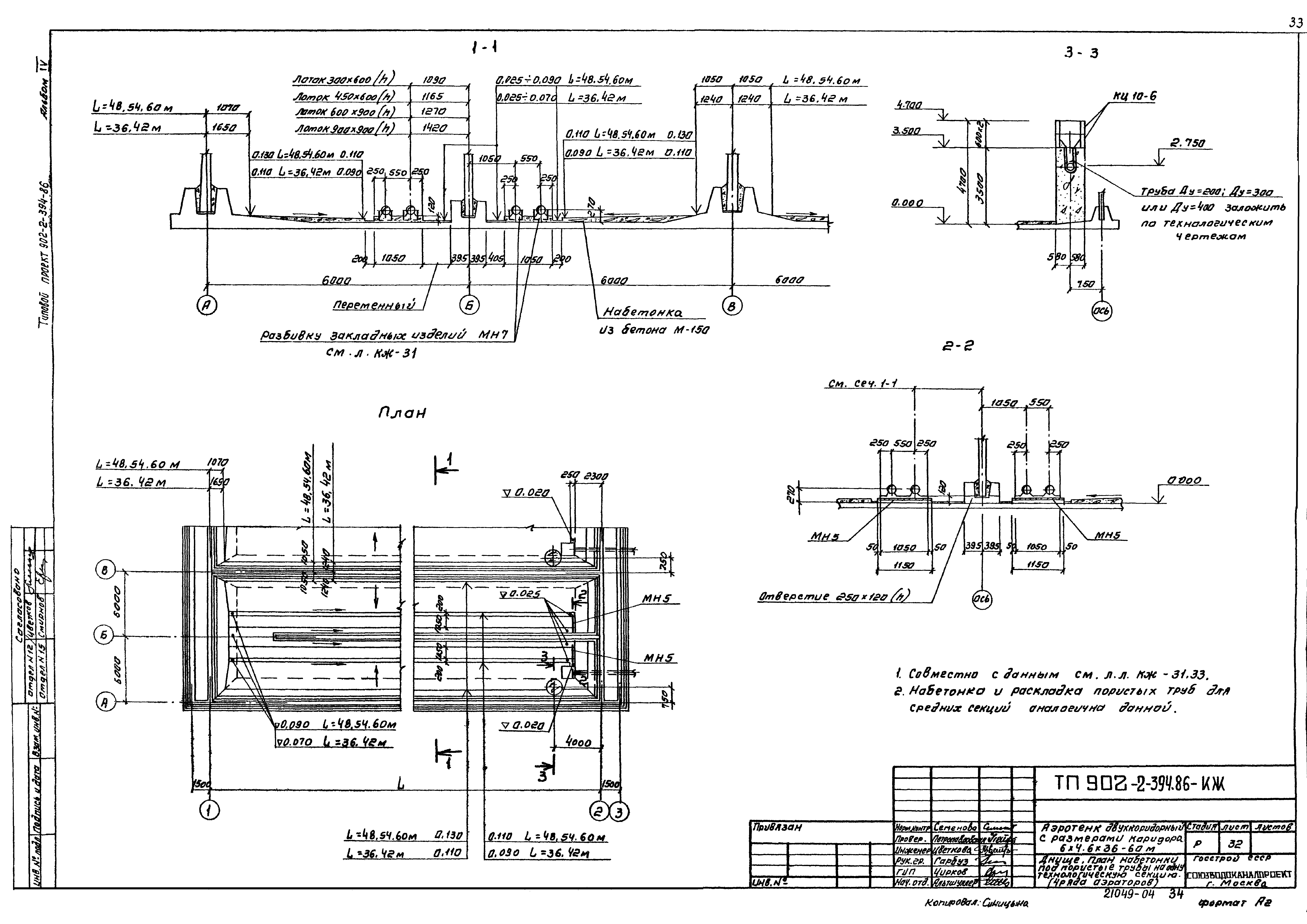
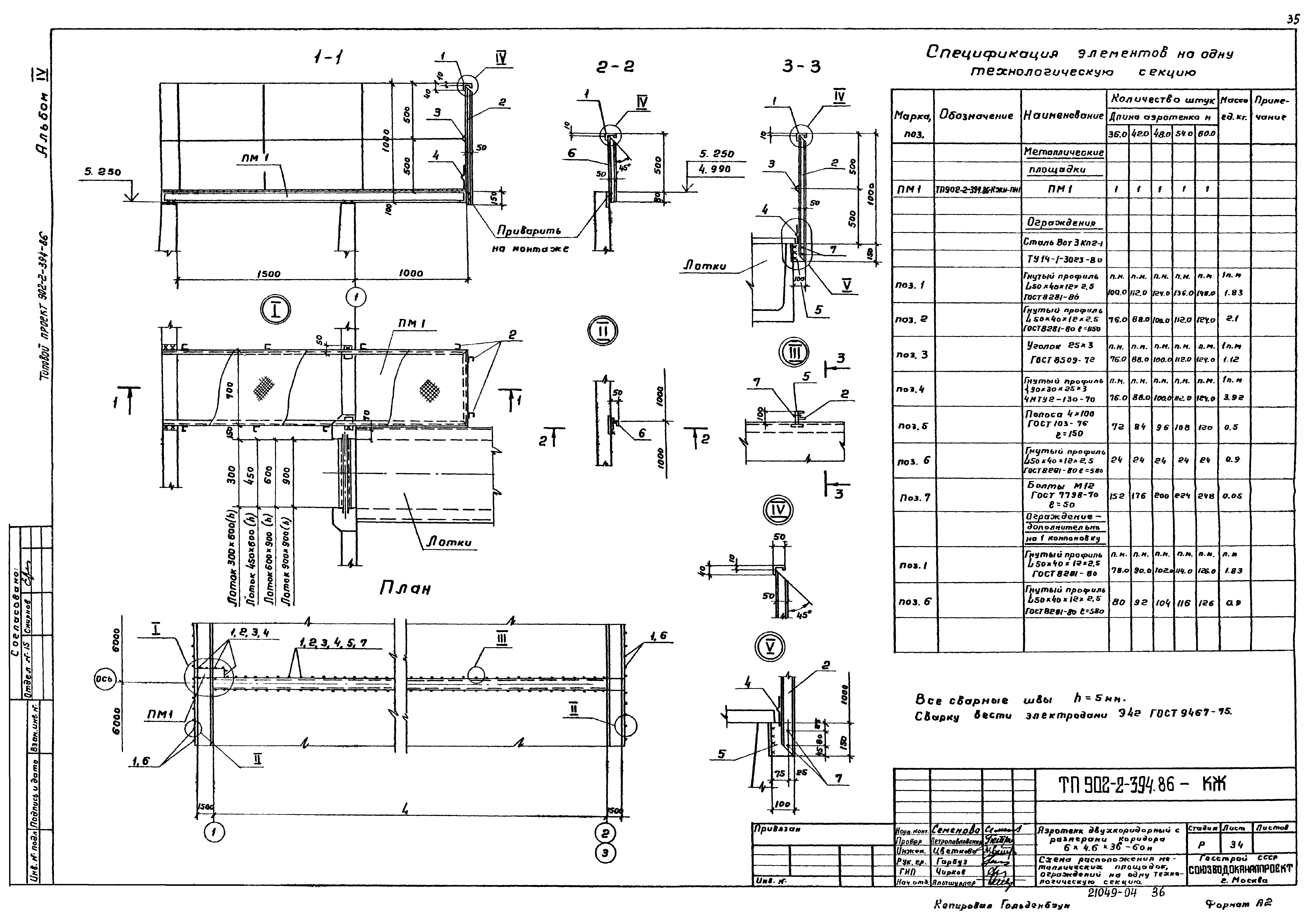
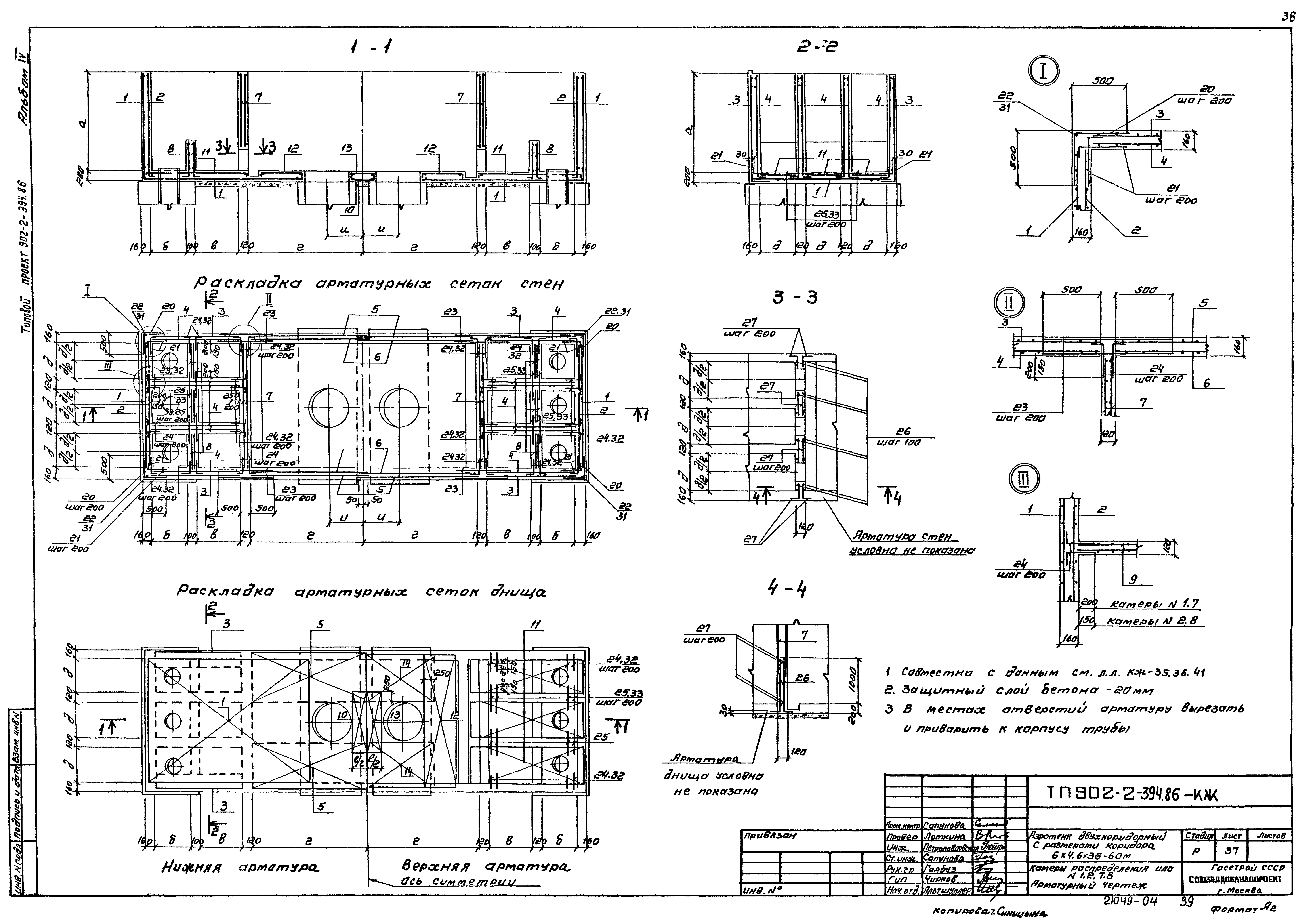
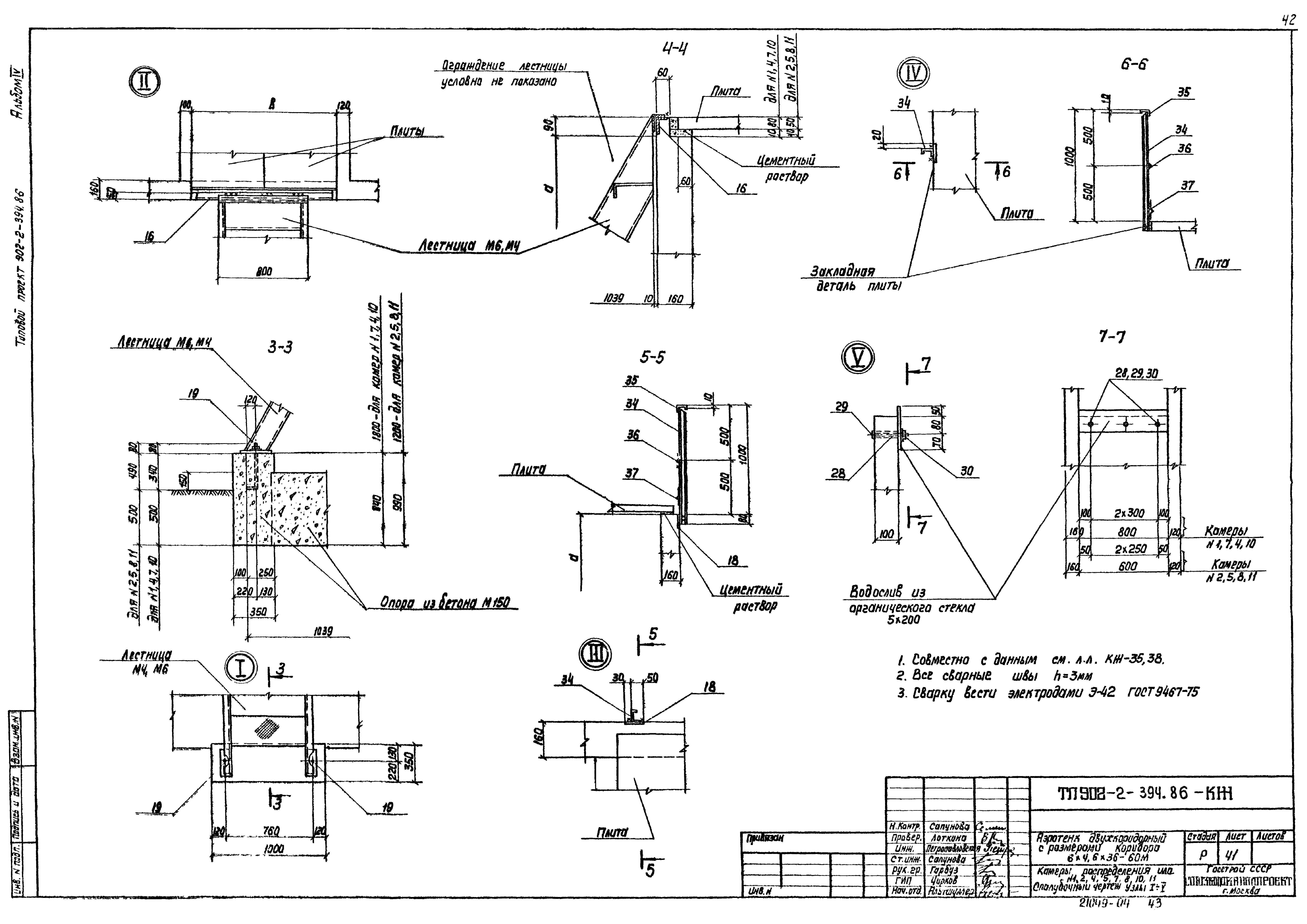
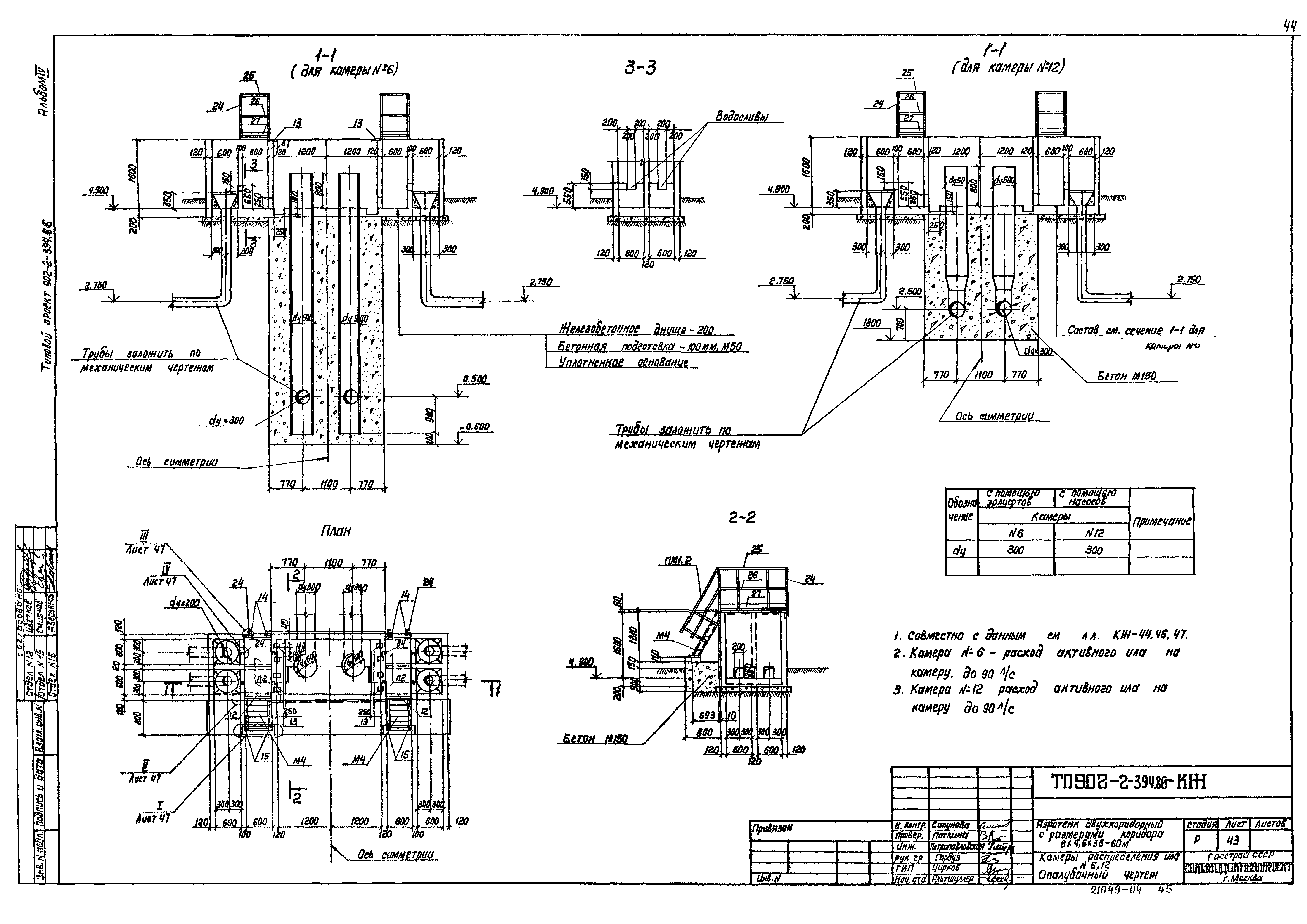
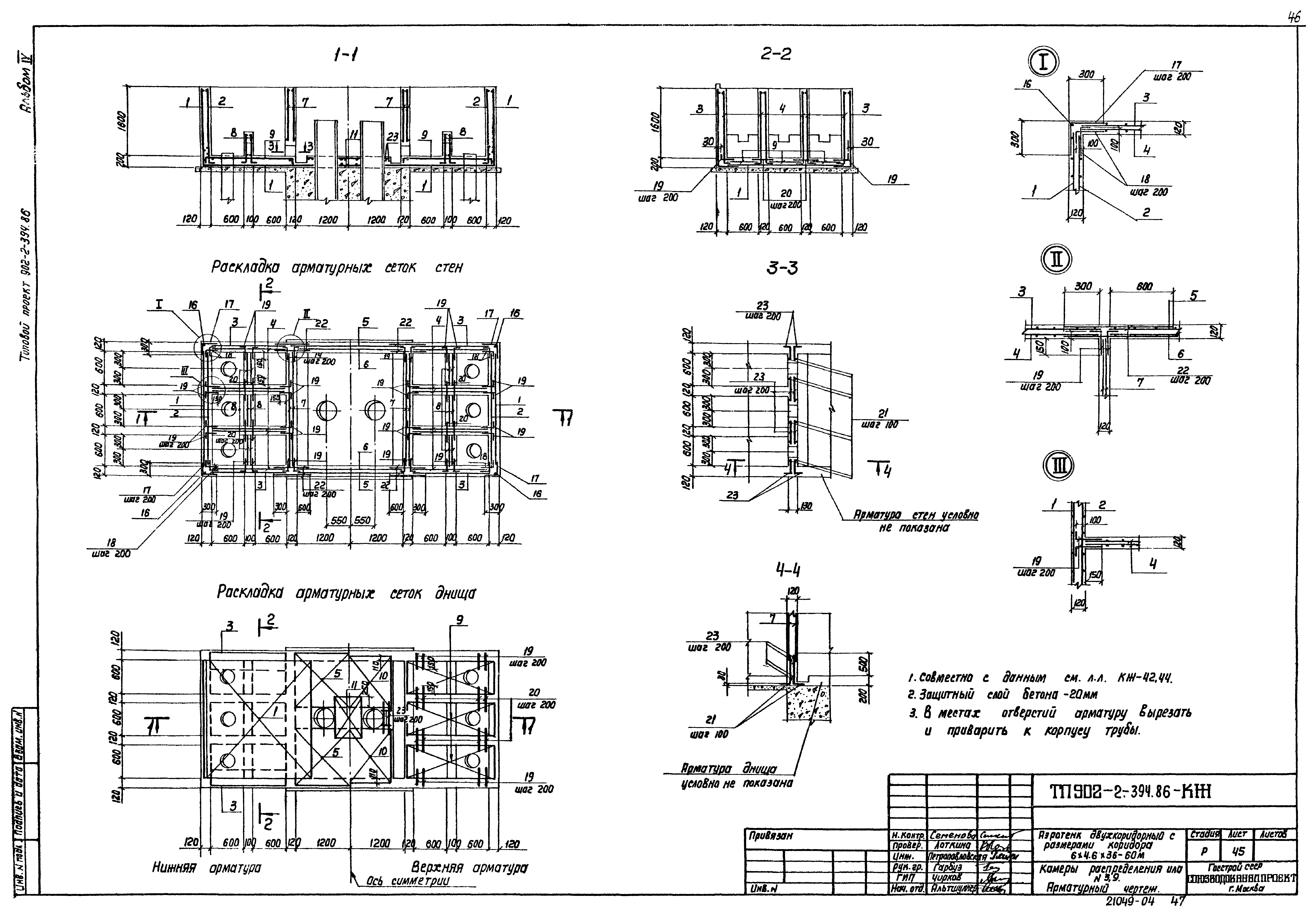
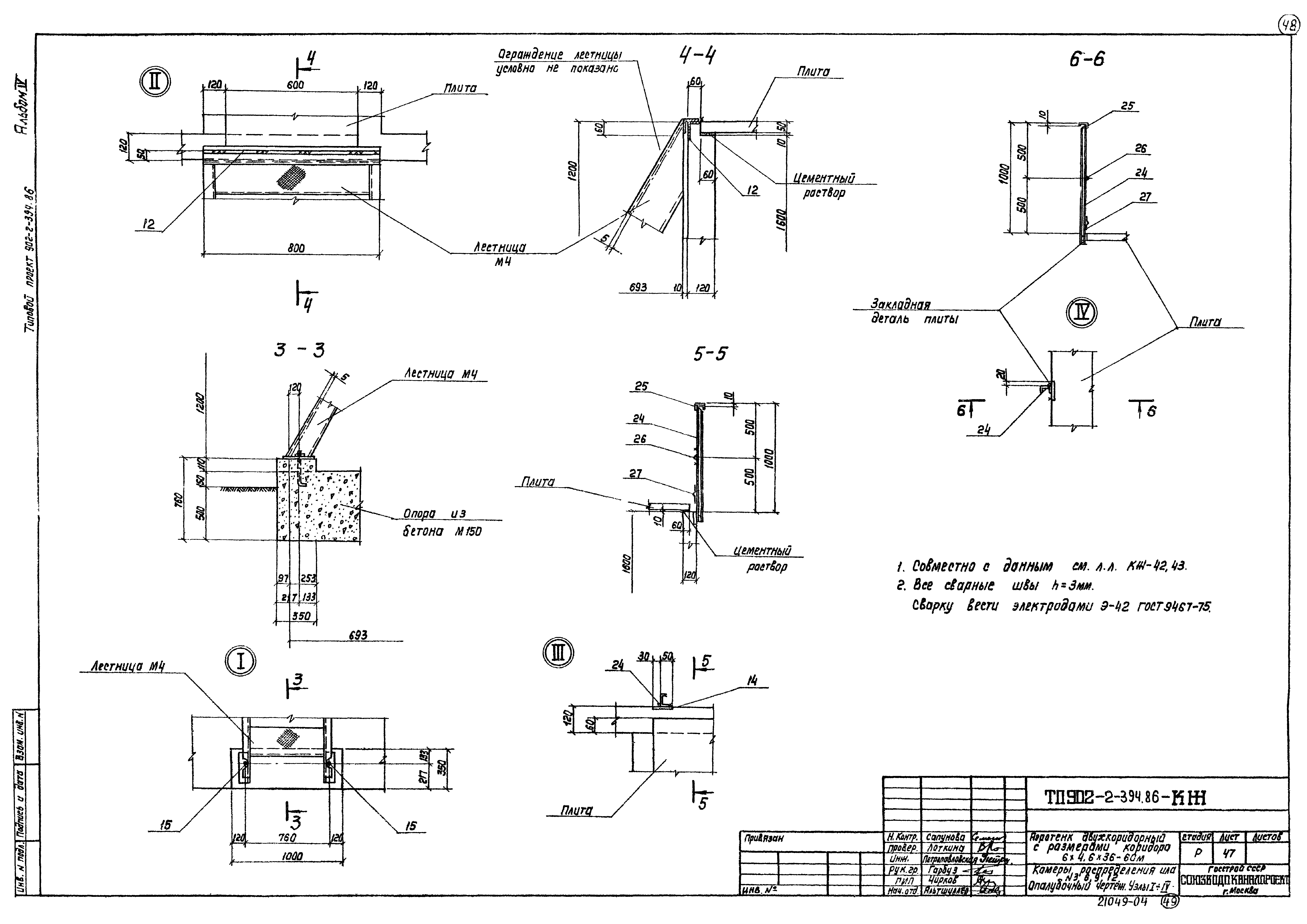
| Оглавление: | ТП 902-2-394.86-КЖ-1 Содержание альбома ТП 902-2-394.86-КЖ-2 Днище. Опалубочный чертеж. Сечения ТП 902-2-394.86-КЖ-3 Днище. Опалубочный чертеж. Узлы ТП 902-2-394.86-КЖ-4 Днище. Арматурный чертеж. Сечения 1-1÷4-4 ТП 902-2-394.86-КЖ-5 Днище. Арматурный чертеж. Сечения 5-5÷8-8 ТП 902-2-394.86-КЖ-6 Днище. Арматурный чертеж. Узлы 1-5 ТП 902-2-394.86-КЖ-7 Днище. Арматурный чертеж. Узлы 6-8. Ведомость деталей ТП 902-2-394.86-КЖ-8 Монолитные участки стен УМ-1,2,5. Опалубочный чертеж ТП 902-2-394.86-КЖ-9 Монолитные участки стен УМ-3,4. Опалубочный чертеж ТП 902-2-394.86-КЖ-10 Монолитные участки стен УМ-6,8,11,12. Опалубочный чертеж ТП 902-2-394.86-КЖ-11 Монолитные участки стен УМ-7,9,10,13,16,17,20. Опалубочный чертеж ТП 902-2-394.86-КЖ-12 Монолитные участки стен УМ-14,15,18,19. Опалубочный чертеж ТП 902-2-394.86-КЖ-13 Спецификация монолитных участков стен УМ-1,2,3,4,9,10,13,16,17,20 ТП 902-2-394.86-КЖ-14 Спецификация монолитных участков стен УМ-5,6,7,8,11,12,14,15 ТП 902-2-394.86-КЖ-15 Спецификация монолитных участков стен УМ-18,19,21,22,23,24 ТП 902-2-394.86-КЖ-16 Монолитные участки стен УМ-1,2. Арматурный чертеж ТП 902-2-394.86-КЖ-17 Монолитные участки стен УМ-3,4. Арматурный чертеж ТП 902-2-394.86-КЖ-18 Монолитные участки стен УМ-5,7. Арматурный чертеж ТП 902-2-394.86-КЖ-19 Монолитные участки стен УМ-6,8. Арматурный чертеж ТП 902-2-394.86-КЖ-20 Монолитные участки стен УМ-9,10,11,12,13,14,15,16,17,18,20. Арматурный чертеж ТП 902-2-394.86-КЖ-21 Монолитный участок стен УМ-19. Ведомости деталей и расхода стали ТП 902-2-394.86-КЖ-22 Монолитные участки стен УМ-21,22,23,24. Арматурно-опалубочный чертеж ТП 902-2-394.86-КЖ-23 Схема расположения элементов стен. Узлы ТП 902-2-394.86-КЖ-24 Схемы расположения балок, лотков, плит на одну технологическую секцию. Узлы ТП 902-2-394.86-КЖ-25 Схема расположения балок, лотков, плит на одну технологическую секцию. Скользящие и неподвижные опоры ТП 902-2-394.86-КЖ-26 Конструкции водослива ТП 902-2-394.86-КЖ-27 Днище. Разбивка закладных изделий на одну технологическую секцию. Вариант с фильтросными каналами ТП 902-2-394.86-КЖ-28 Днище. План набетонки и фильтросных каналов на одну технологическую секцию (4 ряда аэраторов) ТП 902-2-394.86-КЖ-29 Днище. План набетонки и фильтросных каналов на одну технологическую секцию (6 рядов аэраторов) ТП 902-2-394.86-КЖ-30 Днище. Фильтросные каналы. Узлы, детали ТП 902-2-394.86-КЖ-31 Днище. Разбивка закладных изделий на одну технологическую секцию. Вариант с пористыми трубами ТП 902-2-394.86-КЖ-32 Днище. План набетонки под пористые трубы на одну технологическую секцию (4 ряда аэраторов) ТП 902-2-394.86-КЖ-33 Днище. План набетонки под пористые трубы на одну технологическую секцию (6 рядов аэраторов) ТП 902-2-394.86-КЖ-34 Схема расположения металлических площадок, ограждений на одну технологическую секцию ТП 902-2-394.86-КЖ-35 Камеры распределения ила № 1,2,7,8. Опалубочный чертеж ТП 902-2-394.86-КЖ-36 Камеры распределения ила № 1,2,7,8. Спецификации ТП 902-2-394.86-КЖ-37 Камеры распределения ила № 1,2,7,8. Арматурный чертеж ТП 902-2-394.86-КЖ-38 Камеры распределения ила № 4,5,10,11. Опалубочный чертеж ТП 902-2-394.86-КЖ-39 Камеры распределения ила № 4,5,10,11. Спецификации ТП 902-2-394.86-КЖ-40 Камеры распределения ила № 4,5,10,11. Арматурный чертеж ТП 902-2-394.86-КЖ-41 Камеры распределения ила № 1,2,4,5,7,8,10,11. Опалубочный чертеж. Узлы 1-5 ТП 902-2-394.86-КЖ-42 Камеры распределения ила № 3,9. Опалубочный чертеж ТП 902-2-394.86-КЖ-43 Камеры распределения ила № 6,12. Опалубочный чертеж ТП 902-2-394.86-КЖ-44 Камеры распределения ила № 3,6,9,12. Спецификации ТП 902-2-394.86-КЖ-45 Камеры распределения ила № 3,9. Арматурный чертеж ТП 902-2-394.86-КЖ-46 Камеры распределения ила № 6,12. Арматурный чертеж ТП 902-2-394.86-КЖ-47 Камеры распределения ила № 3,6,9,12. Опалубочный чертеж. Узлы 1-4 |
| Разработан: | Союзводоканалниипроект |
| Утверждён: | 20.09.1984 СоюзводоканалНИИпроект (SoyuzvodokanalNIIproject 46) |
| Заменяет собой: |
|

















































