Скачать Типовой проект 903-1-214.84 Альбом VIII. Контроль и регулированиеДата актуализации: 01.01.2021
|
| Обозначение: | Типовой проект 903-1-214.84 |
| Обозначение англ: | 903-1-214.84 |
| Статус: | не действует |
| Название рус.: | Альбом VIII. Контроль и регулирование |
| Дата добавления в базу: | 01.09.2013 |
| Дата актуализации: | 01.01.2021 |
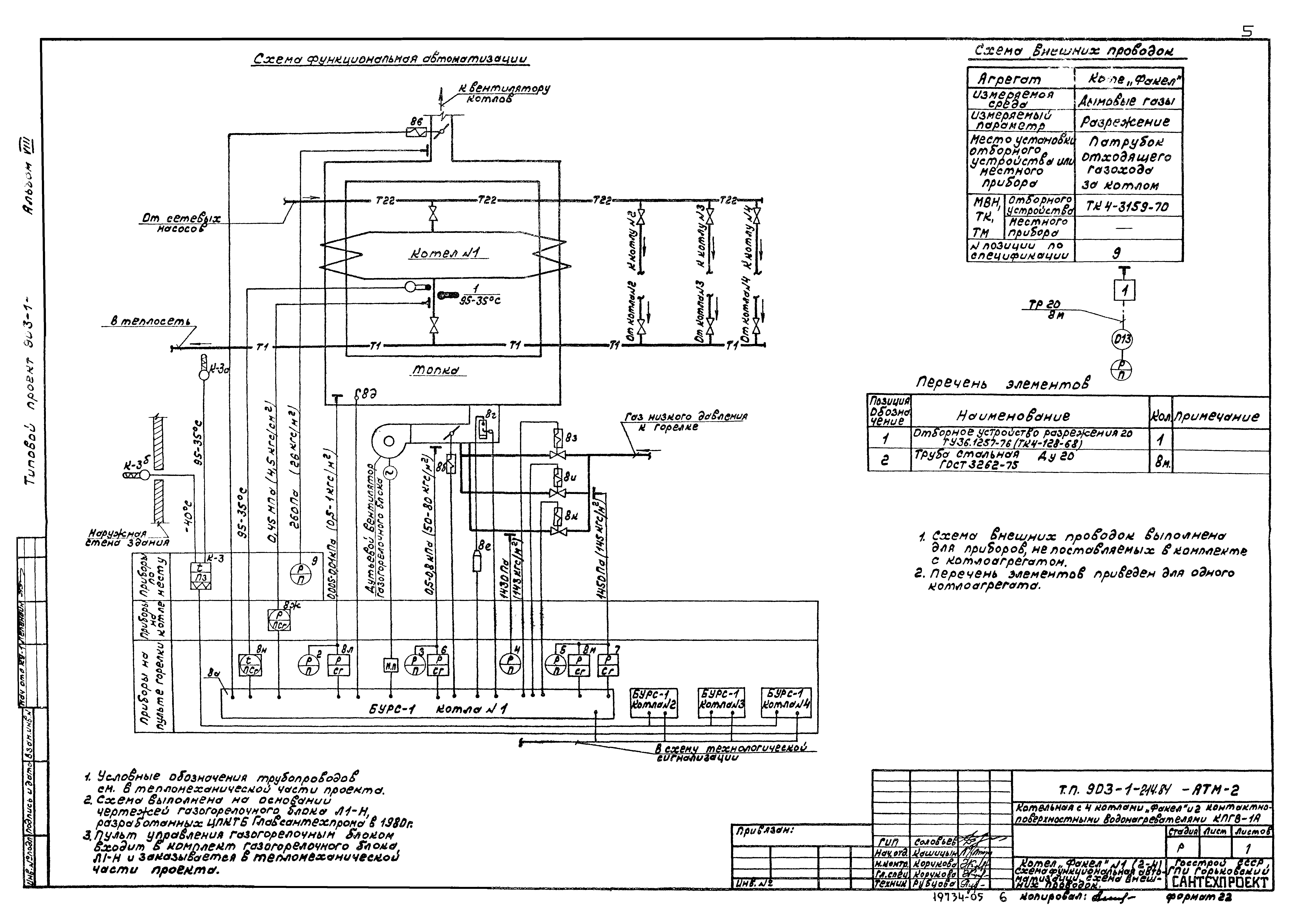
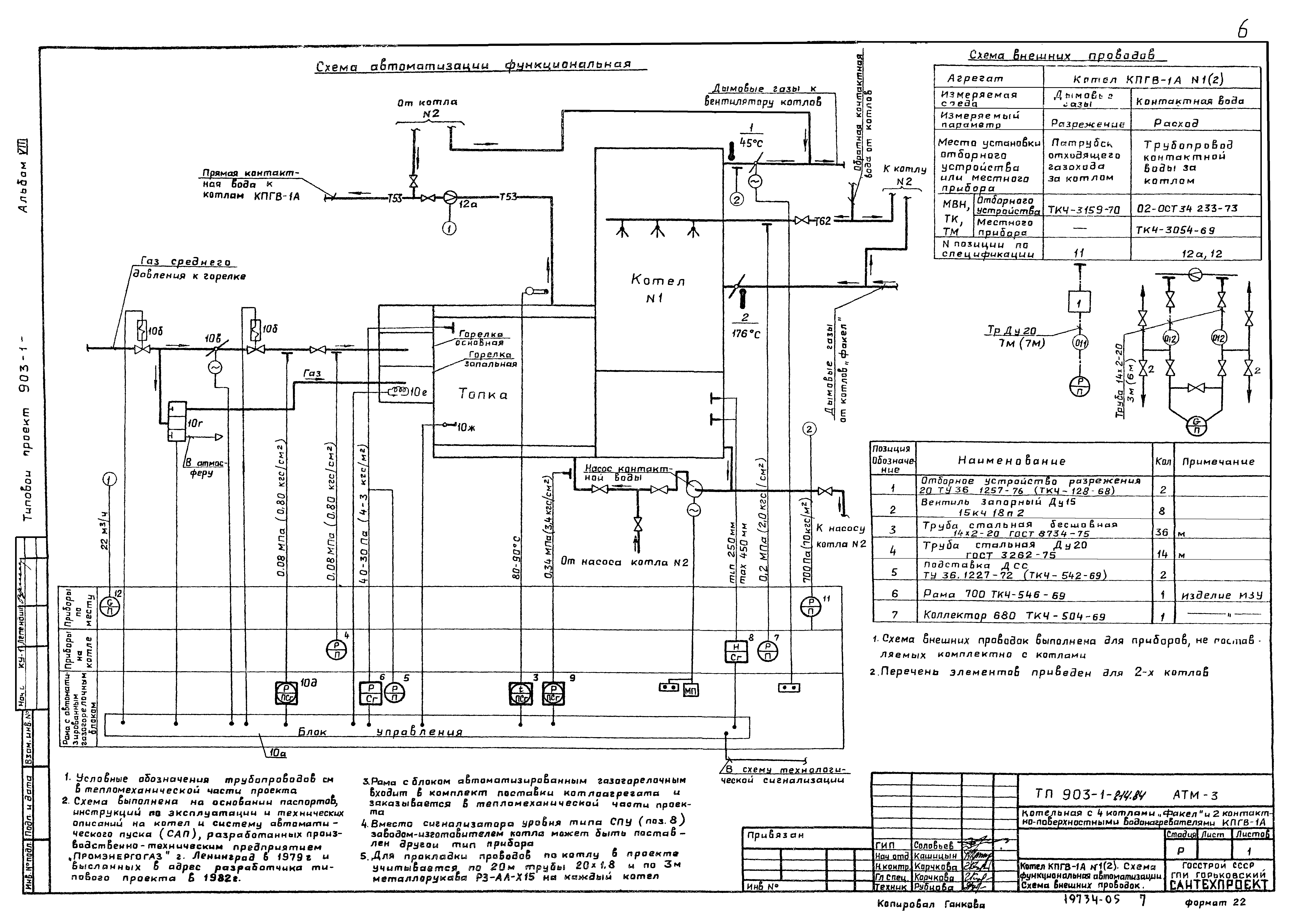
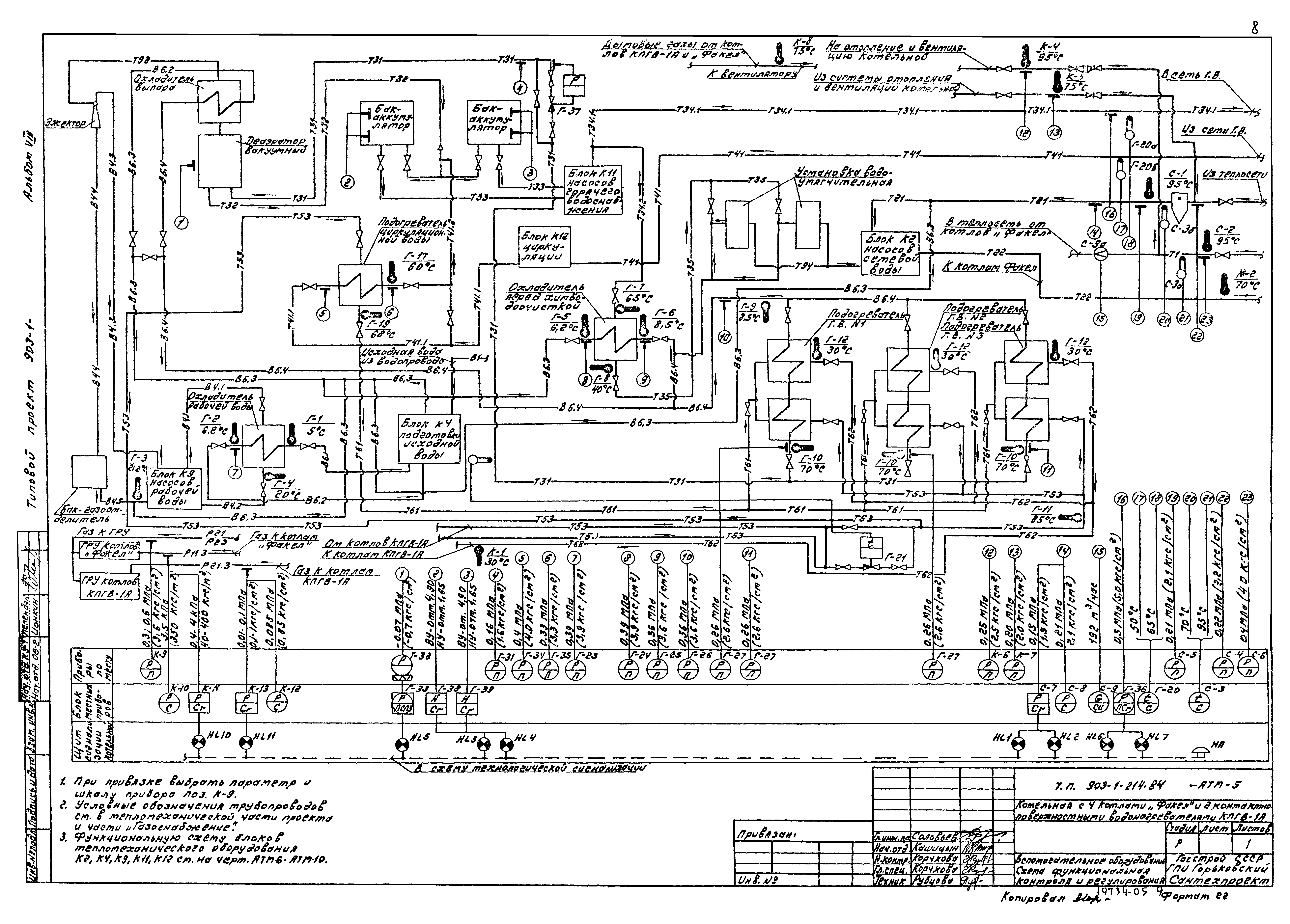
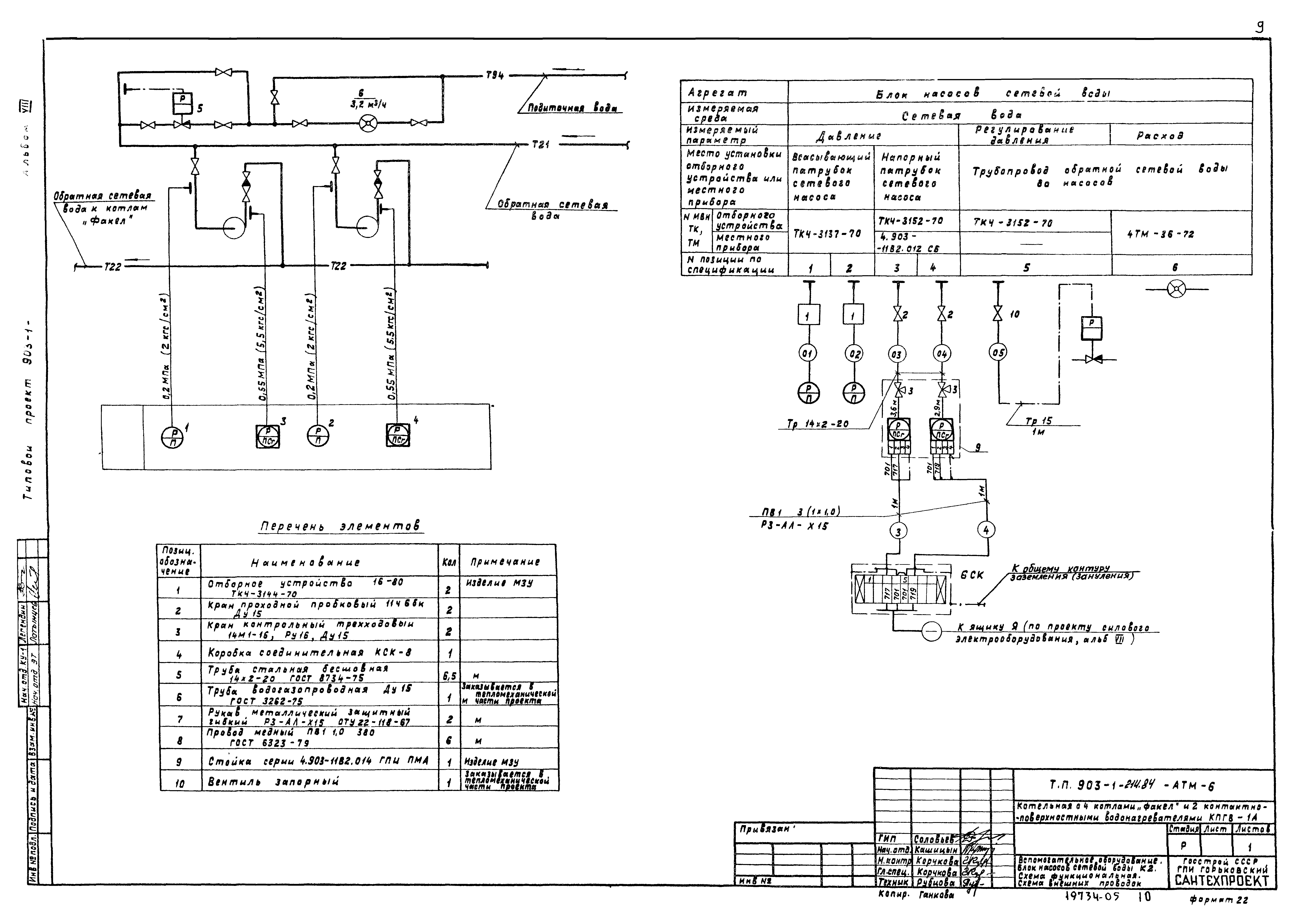
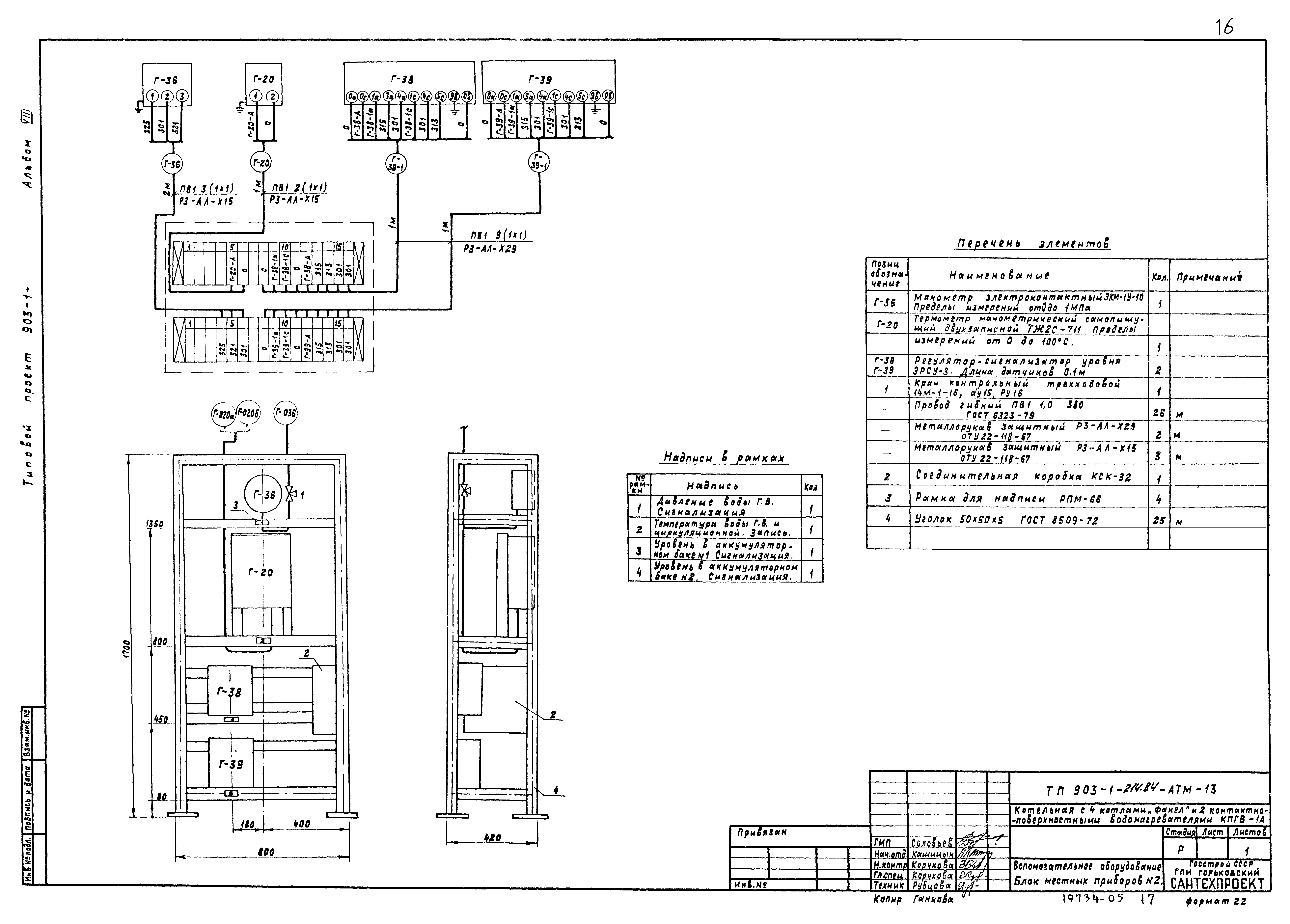
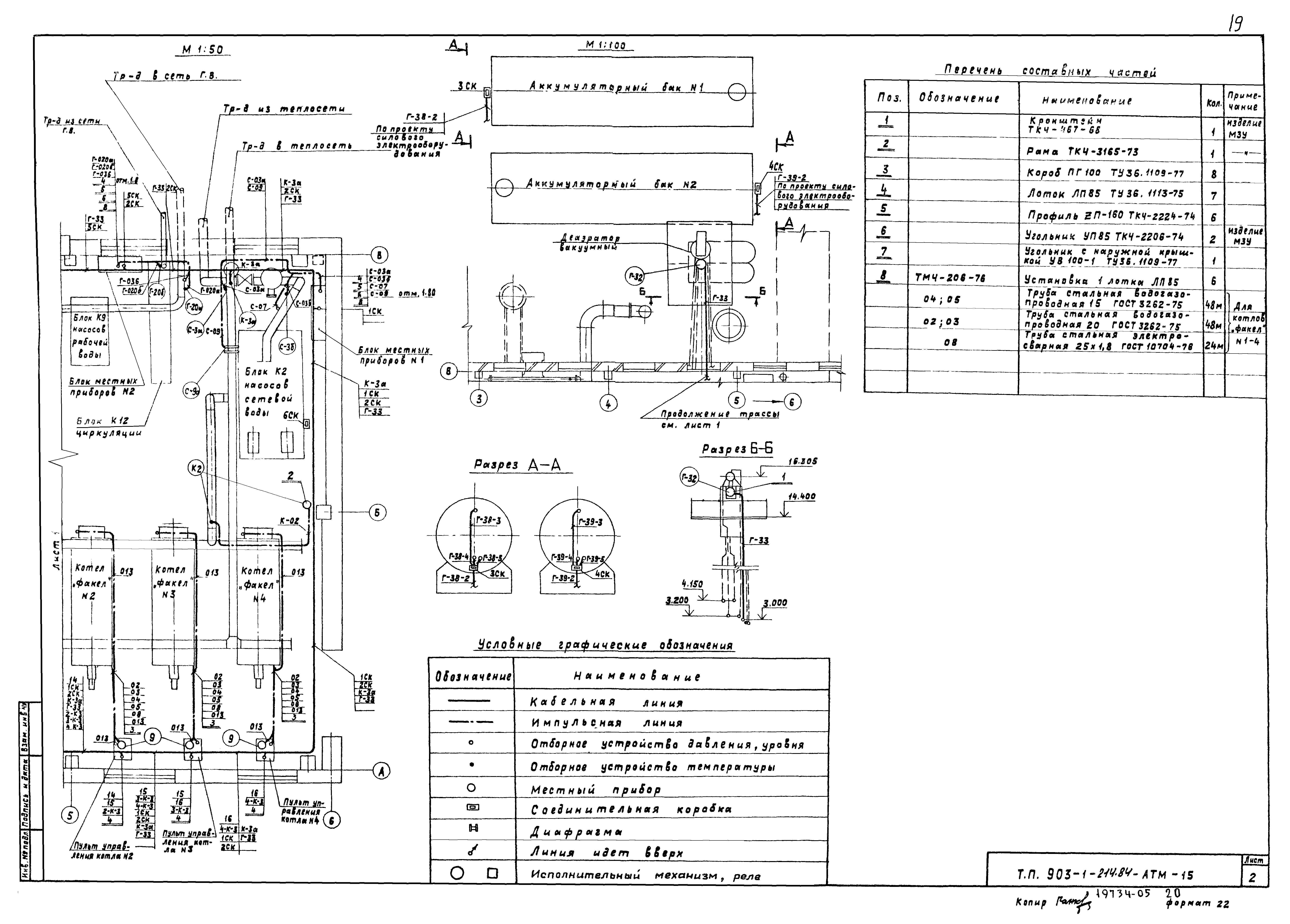
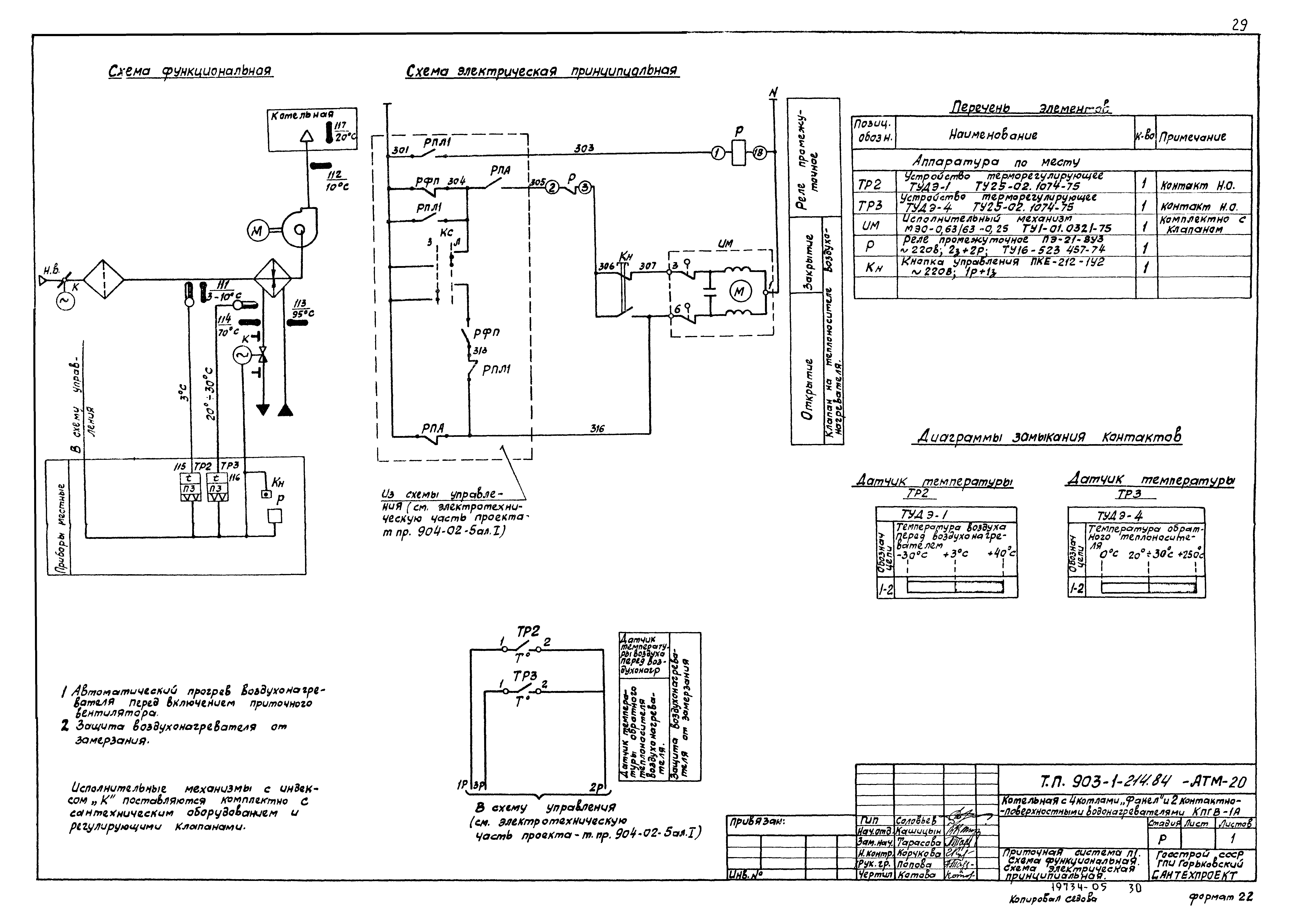
| Оглавление: | ТП 903-1-214.84 Титульный лист ТП 903-1-214.84-АТМ-1 Общие данные ТП 903-1-214.84-АТМ-2 Котел "Факел" № 1(2-4). Схема функциональная автоматизации. Схема внешних проводок ТП 903-1-214.84-АТМ-3 Котел КПГВ-1А № 1(2). Схема функциональная автоматизации. Схема внешних проводок ТП 903-1-214.84-АТМ-4 ГРУ котлов "Факел" и КПГВ-1А. Схема функциональная контроля и регулирования ТП 903-1-214.84-АТМ-5 Вспомогательное оборудование. Схема функциональная контроля и регулирования ТП 903-1-214.84-АТМ-6 Вспомогательное оборудование. Блок насосов сетевой воды К2. Схема функциональная. Схема внешних проводок ТП 903-1-214.84-АТМ-7 Вспомогательное оборудование. Блок подготовки исходной воды К4. Схема функциональная. Схема внешних проводок ТП 903-1-214.84-АТМ-8 Вспомогательное оборудование. Блок циркуляции К12. Схема функциональная. Схема внешних проводок ТП 903-1-214.84-АТМ-9 Вспомогательное оборудование. Блок насосов горячего водоснабжения К11. Схема функциональная. Схема внешних проводок ТП 903-1-214.84-АТМ-10 Вспомогательное оборудование. Блок насосов рабочей воды К9. Схема функциональная. Схема внешних проводок ТП 903-1-214.84-АТМ-11 Вспомогательное оборудование. Схема внешних проводок ТП 903-1-214.84-АТМ-12 Вспомогательное оборудование. Блок местных приборов № 1 ТП 903-1-214.84-АТМ-13 Вспомогательное оборудование. Блок местных приборов № 2 ТП 903-1-214.84-АТМ-14 Вспомогательное оборудование. Блок местных приборов № 3 ТП 903-1-214.84-АТМ-15 Вспомогательное оборудование. План расположения ТП 903-1-214.84-АТМ-16 Вспомогательное оборудование. Схема электрическая принципиальная питания приборов ТП 903-1-214.84-АТМ-17 Вспомогательное оборудование. Схема электрическая принципиальная технологической сигнализации ТП 903-1-214.84-АТМ-18 Вспомогательное оборудование. Перечень технической документации для здания заводу-изготовителю щитов ТП 903-1-214.84-АТМ-19 Вспомогательное оборудование. Щит сигнализации. Общий вид ТП 903-1-214.84-АТМ-20 Приточная система П1. Схема функциональная. Схема электрическая принципиальная ТП 903-1-214.84-АТМ-21 Приточная система П1. Схема внешних проводок |
| Разработан: | ГПИ Горьковский Сантехпроект |
| Утверждён: | 03.02.1984 Главпромстройпроект Госстроя СССР (4) |































