Скачать Типовой проект 902-2-379.83 Альбом II. Архитектурно-строительная частьДата актуализации: 01.01.2021
|
| Обозначение: | Типовой проект 902-2-379.83 |
| Обозначение англ: | 902-2-379.83 |
| Статус: | не действует |
| Название рус.: | Альбом II. Архитектурно-строительная часть |
| Дата добавления в базу: | 01.09.2013 |
| Дата актуализации: | 01.01.2021 |
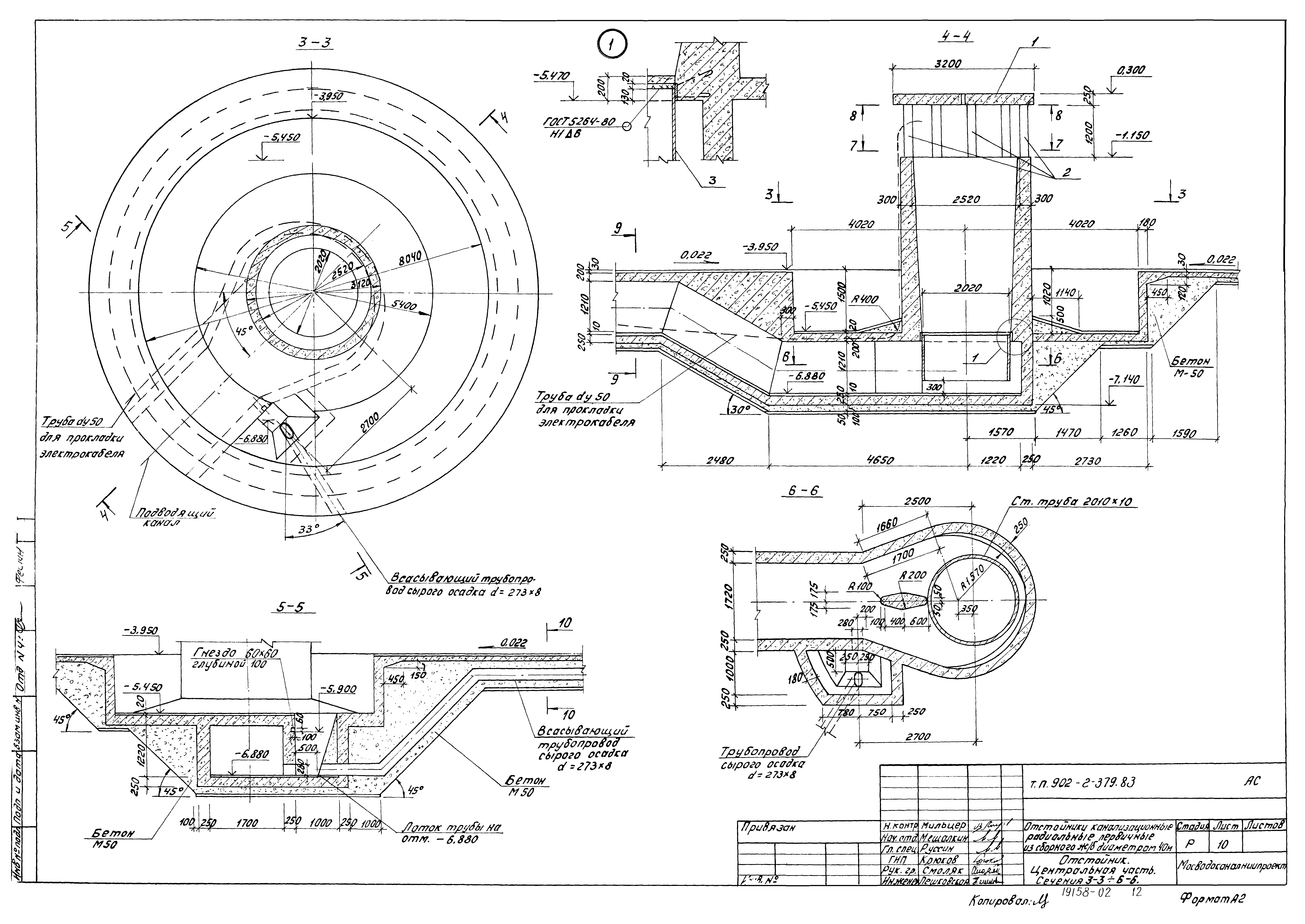
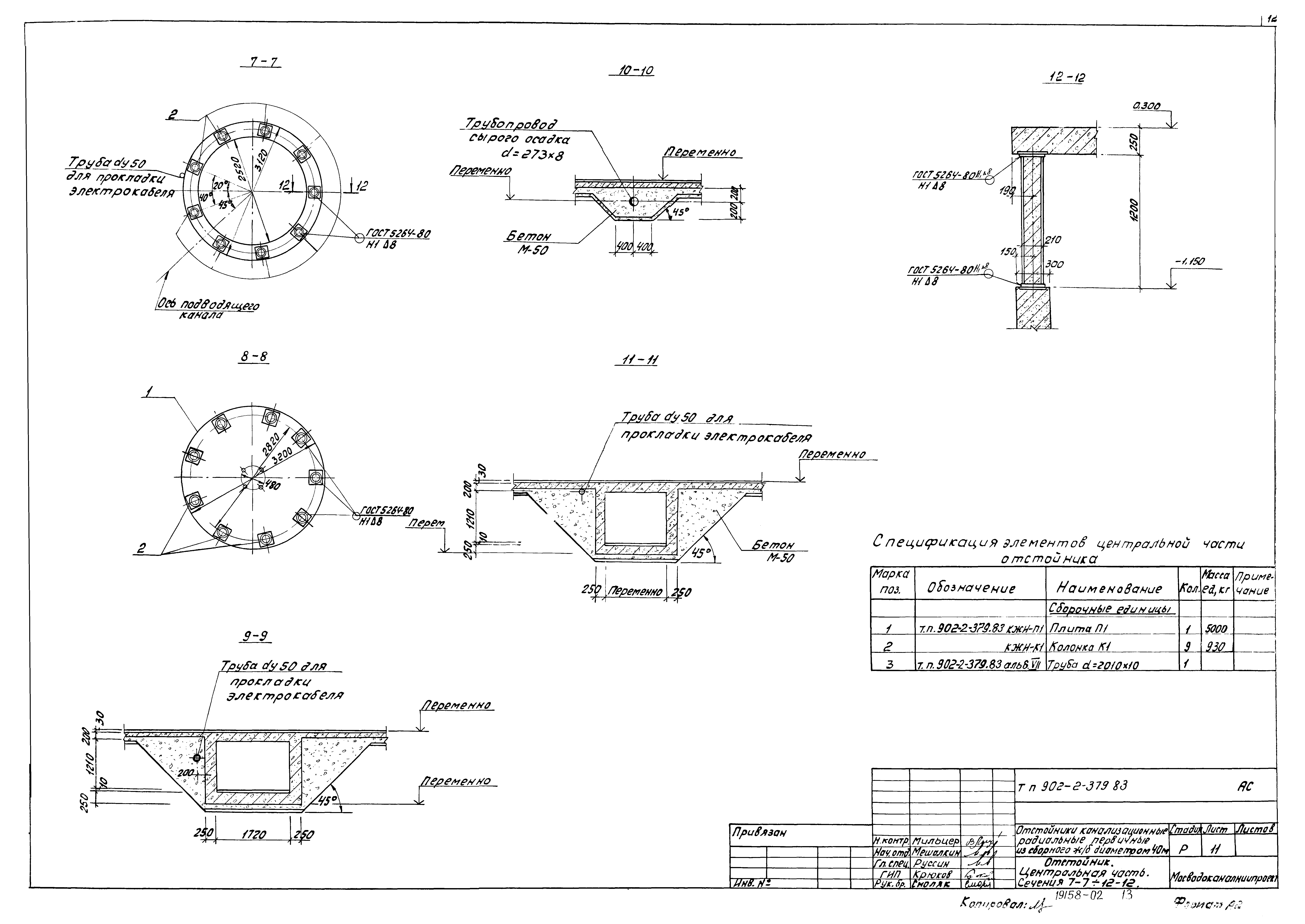
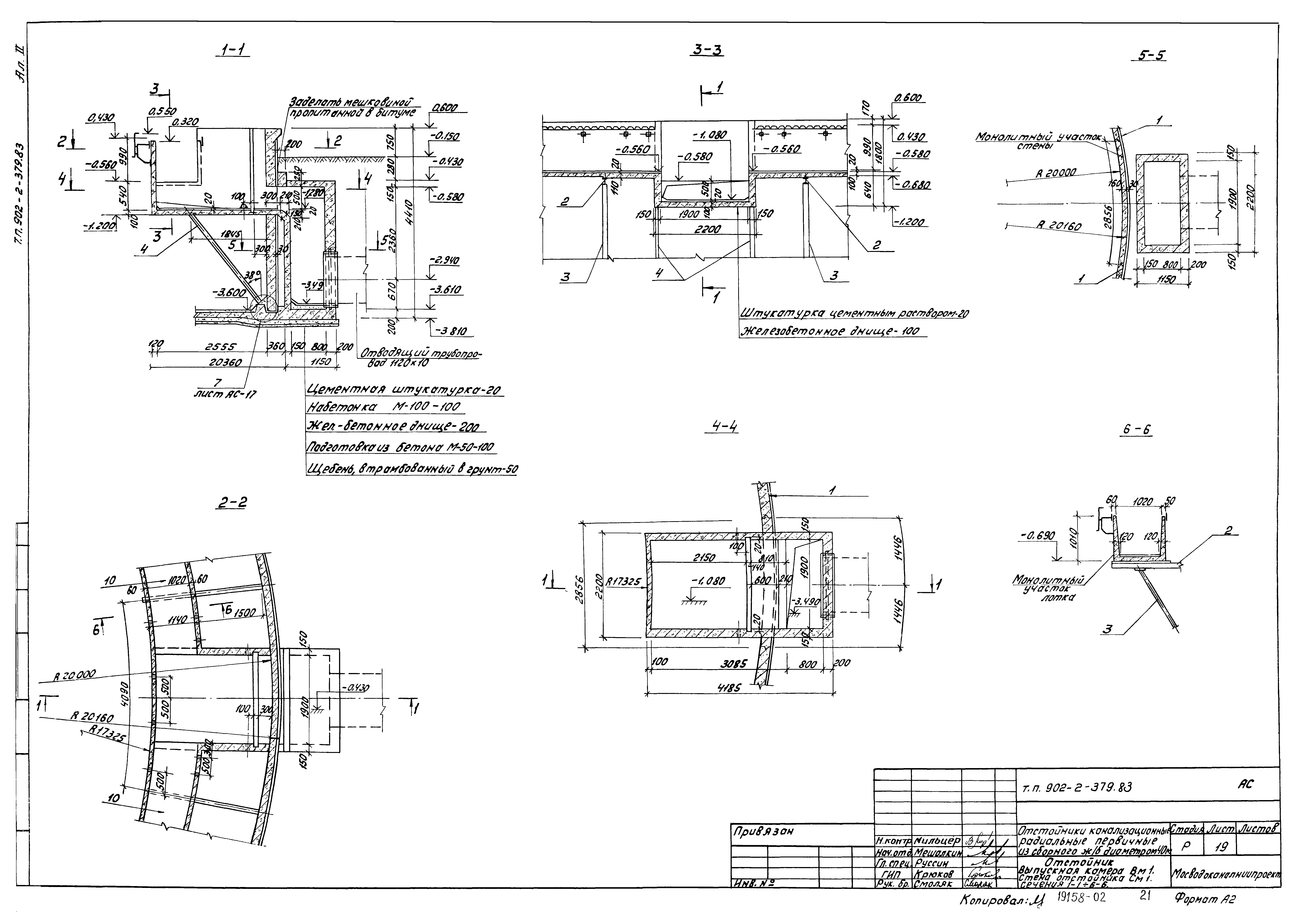
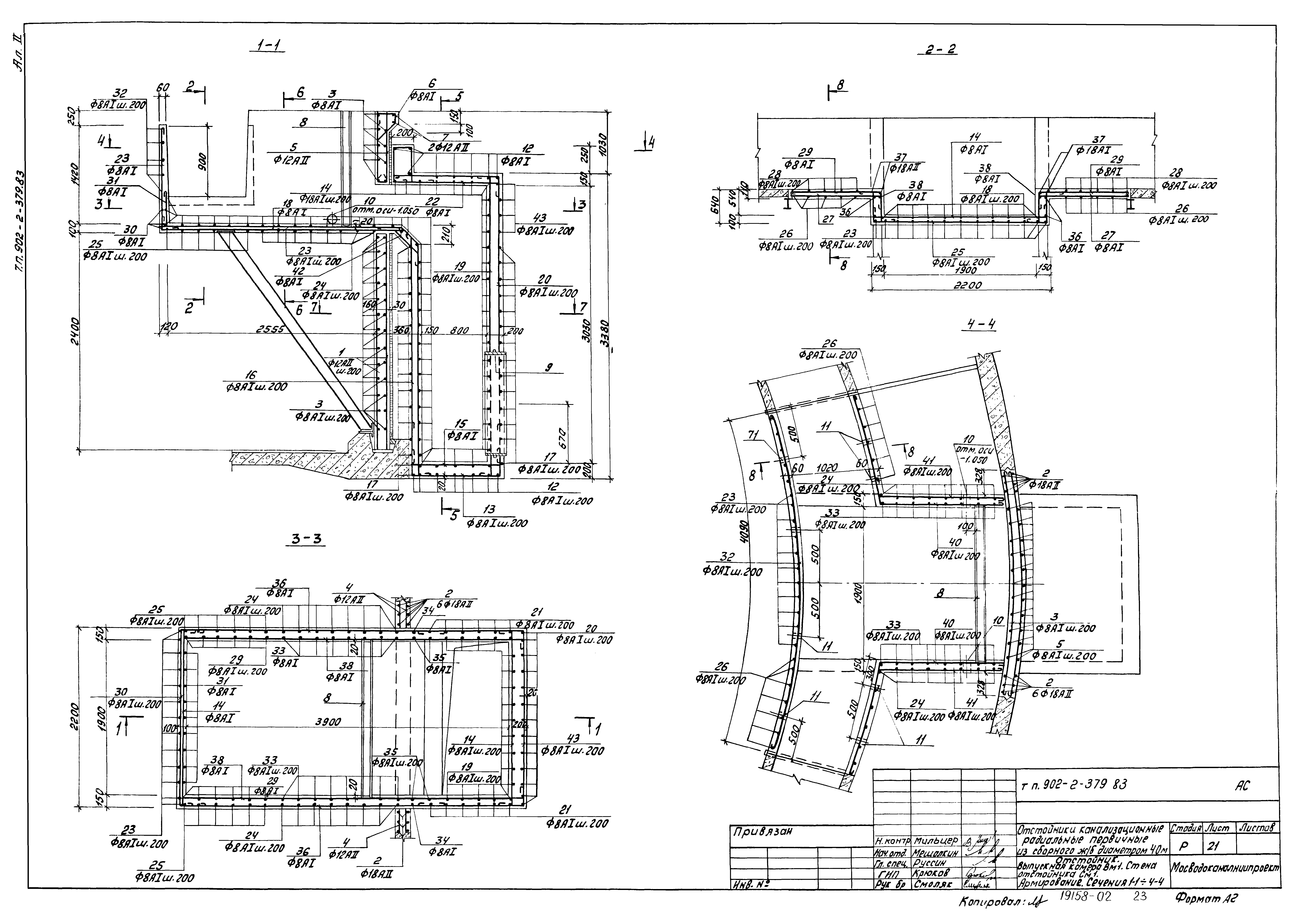
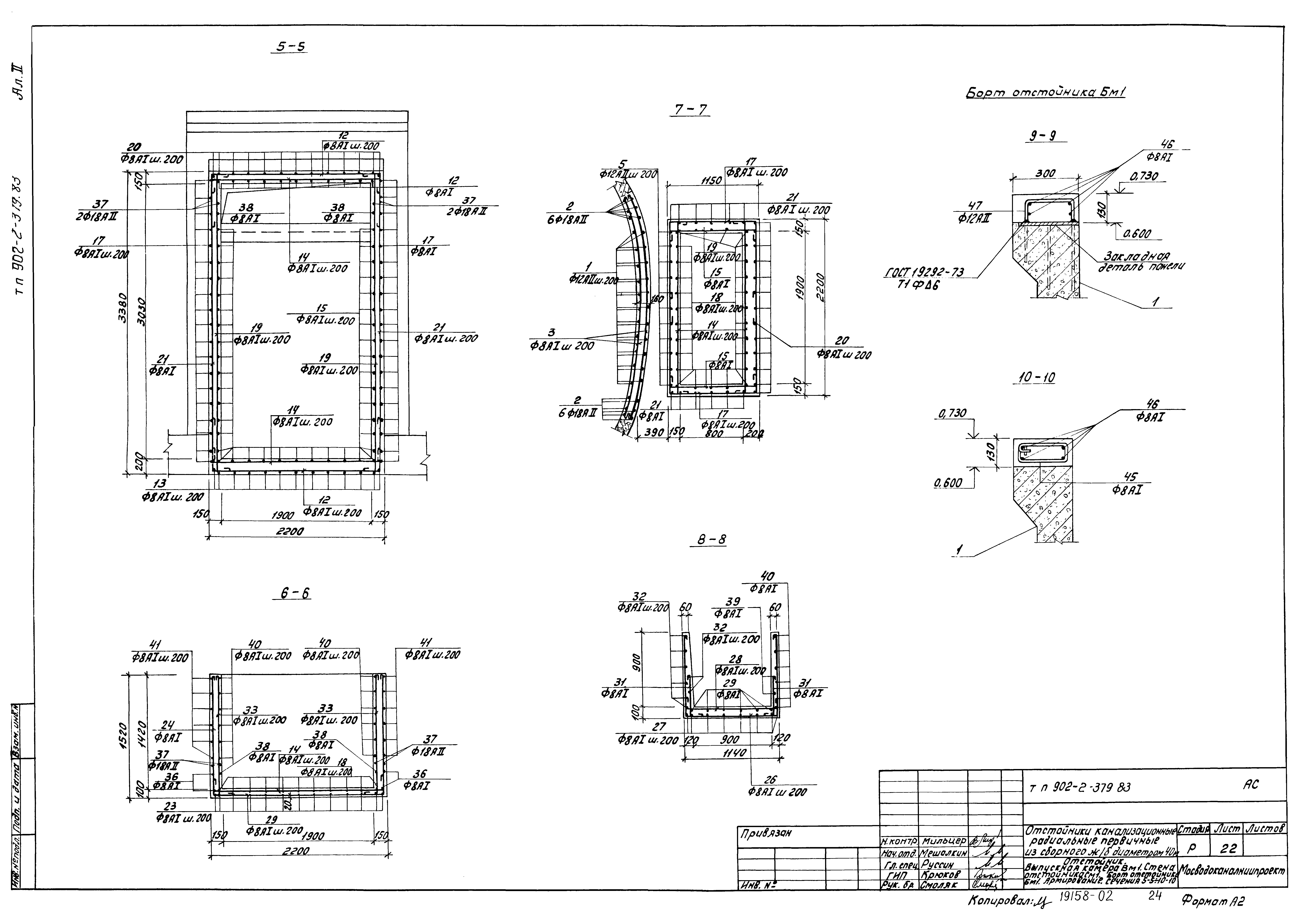
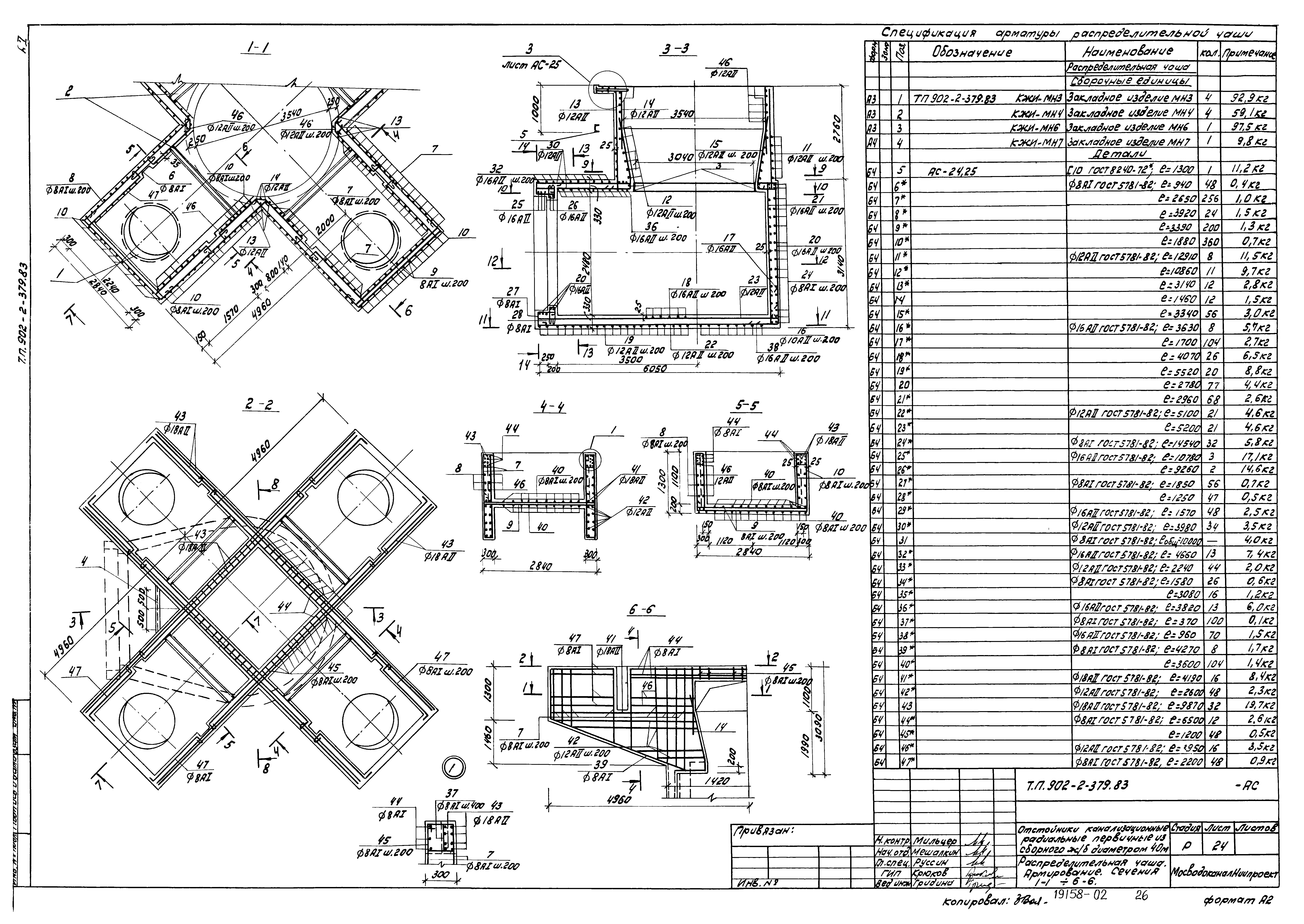
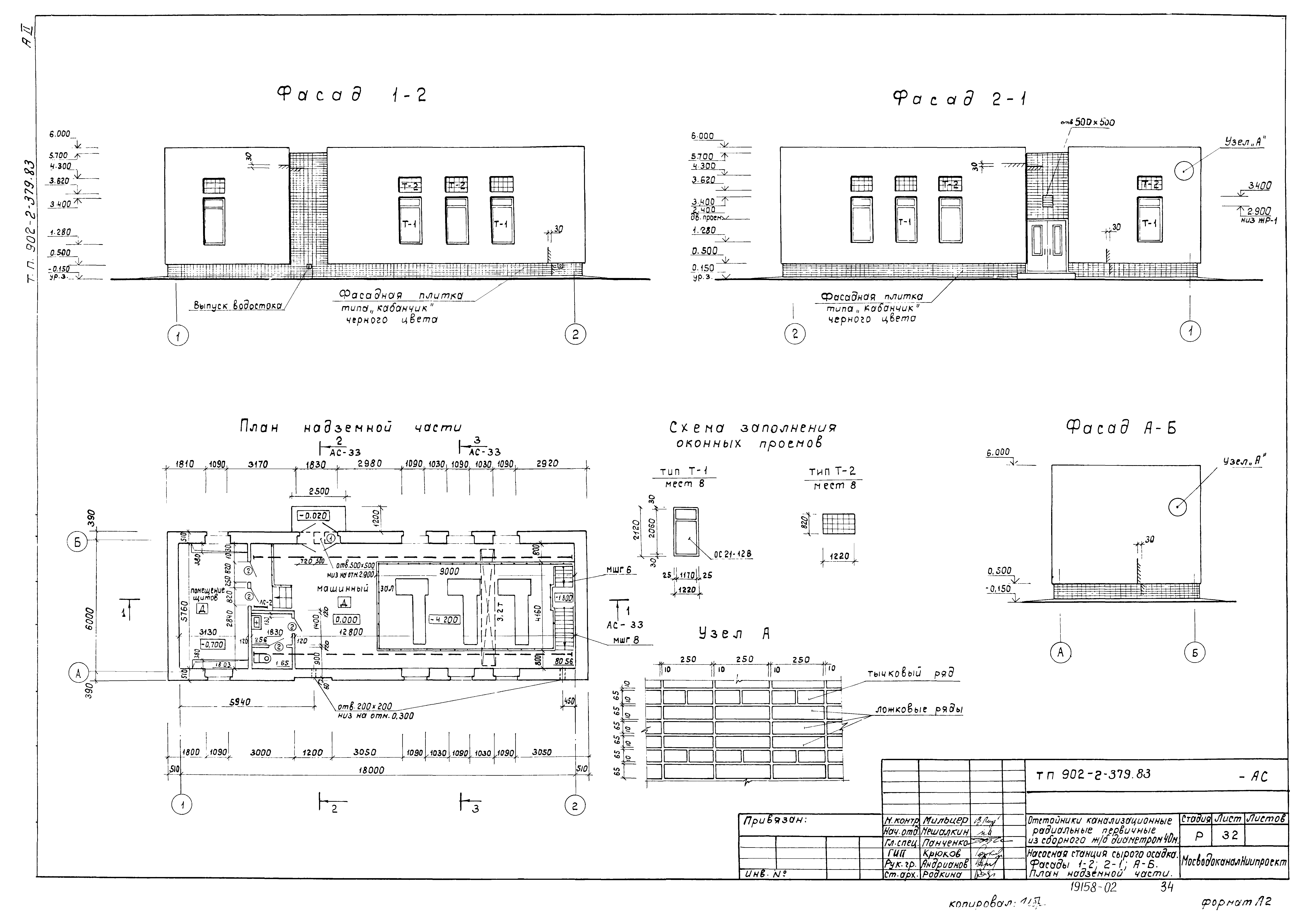
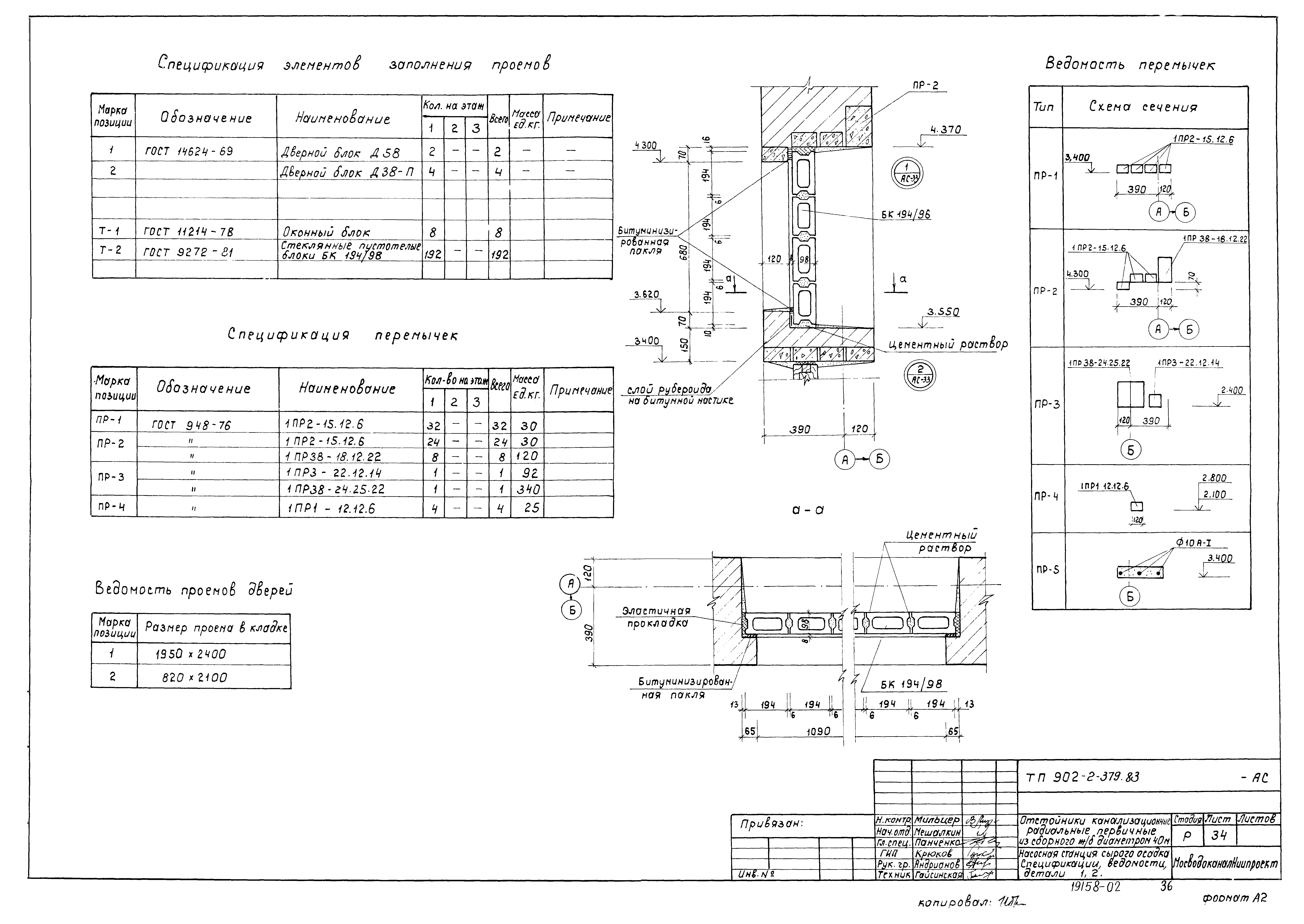
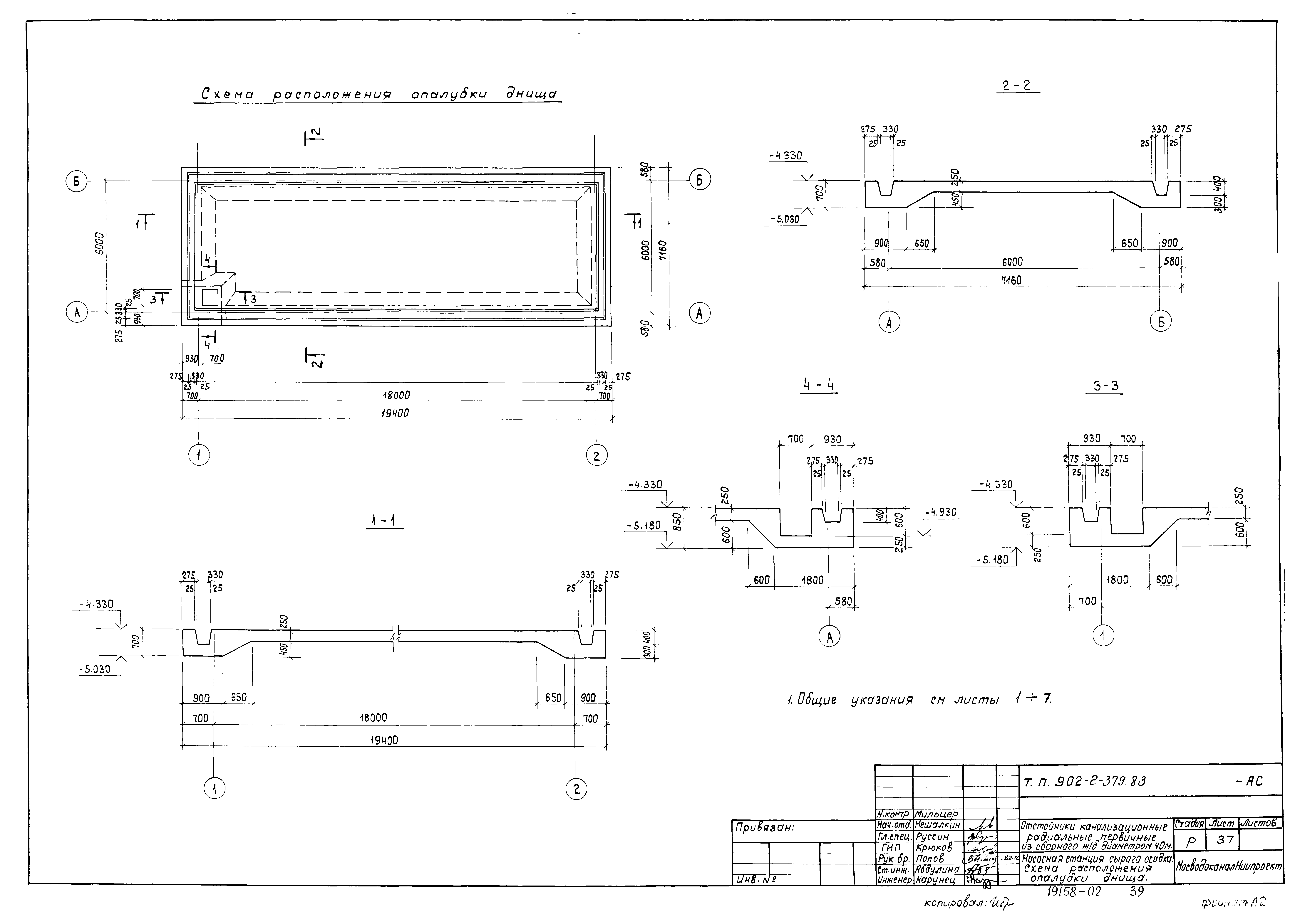
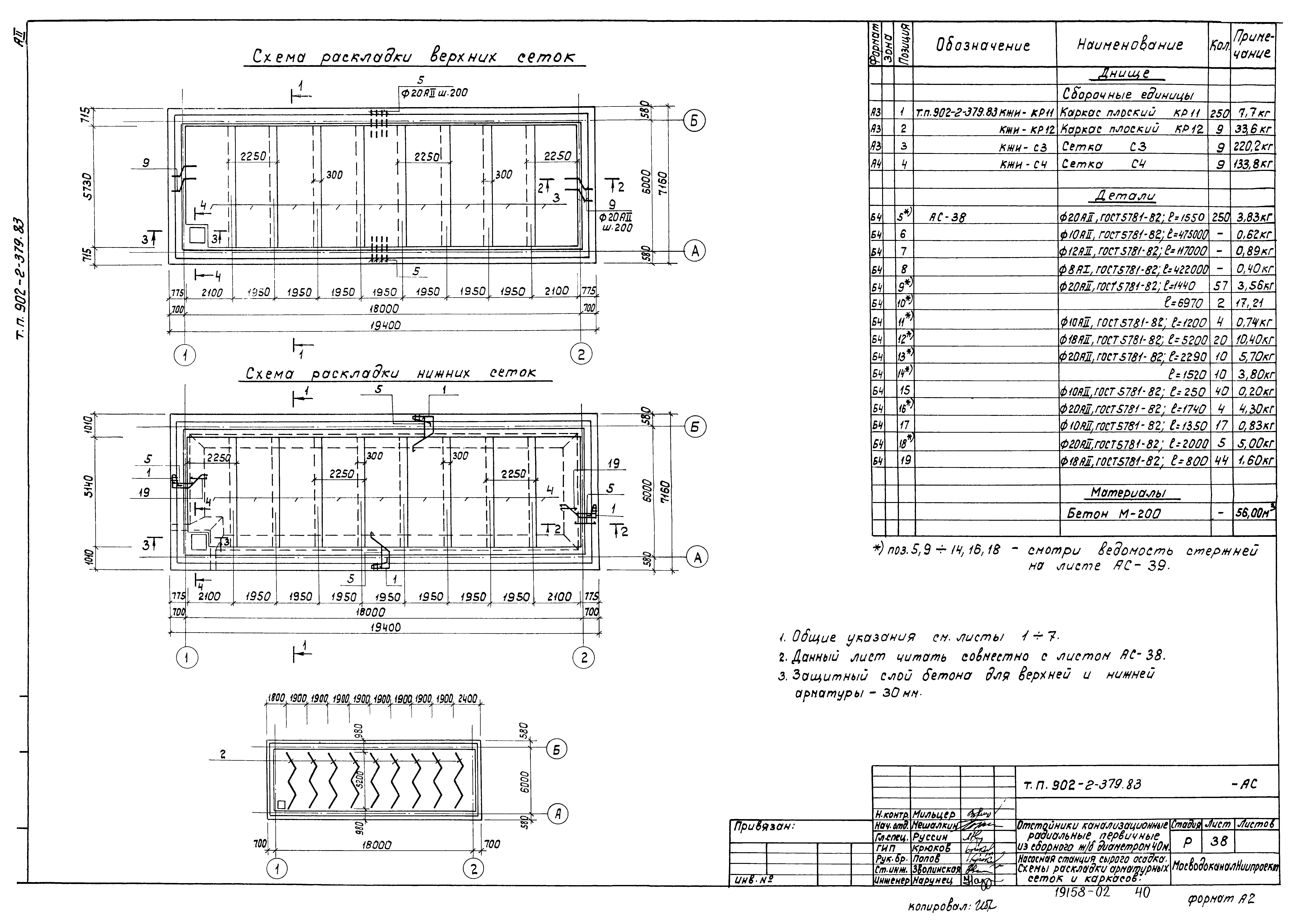
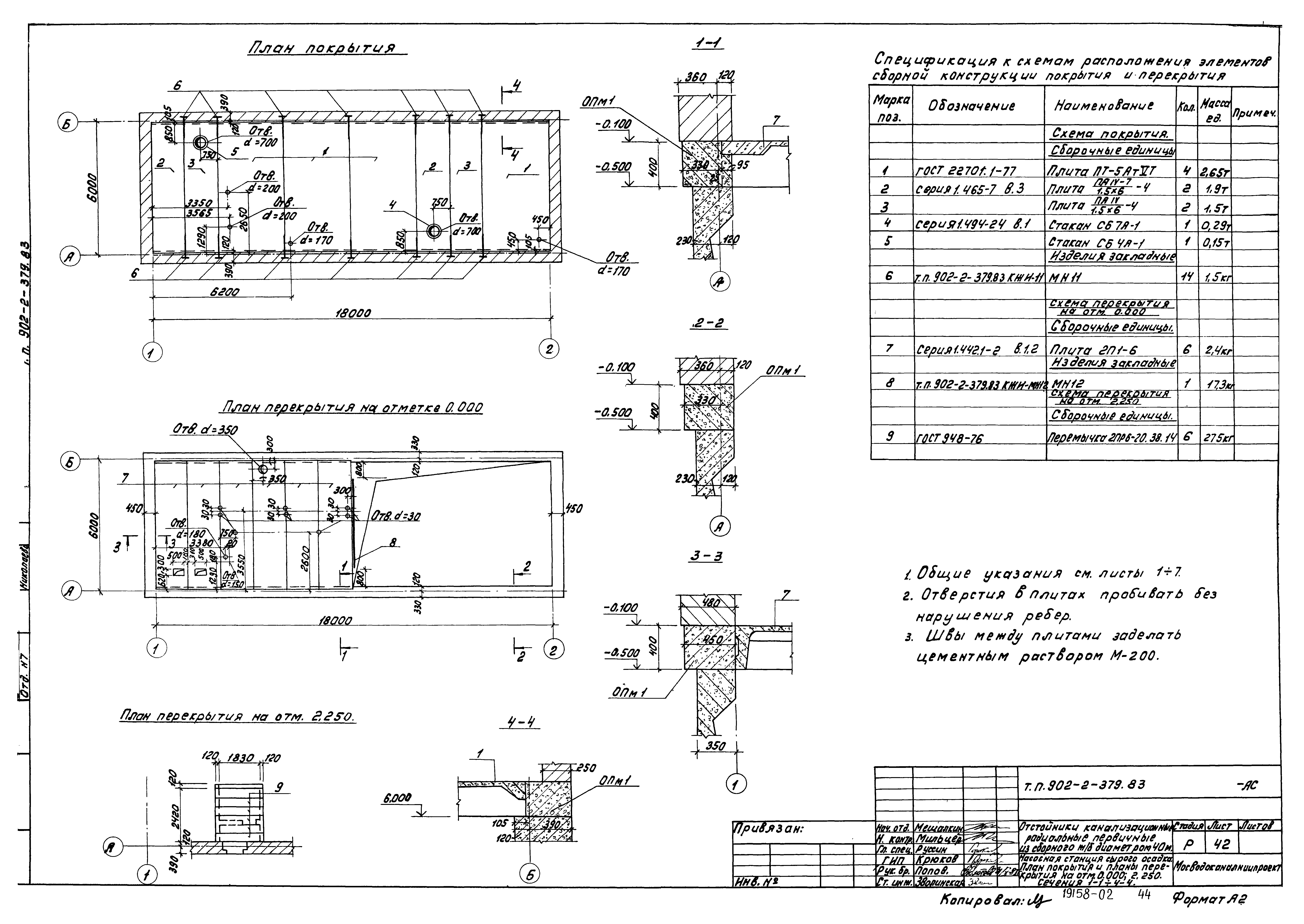
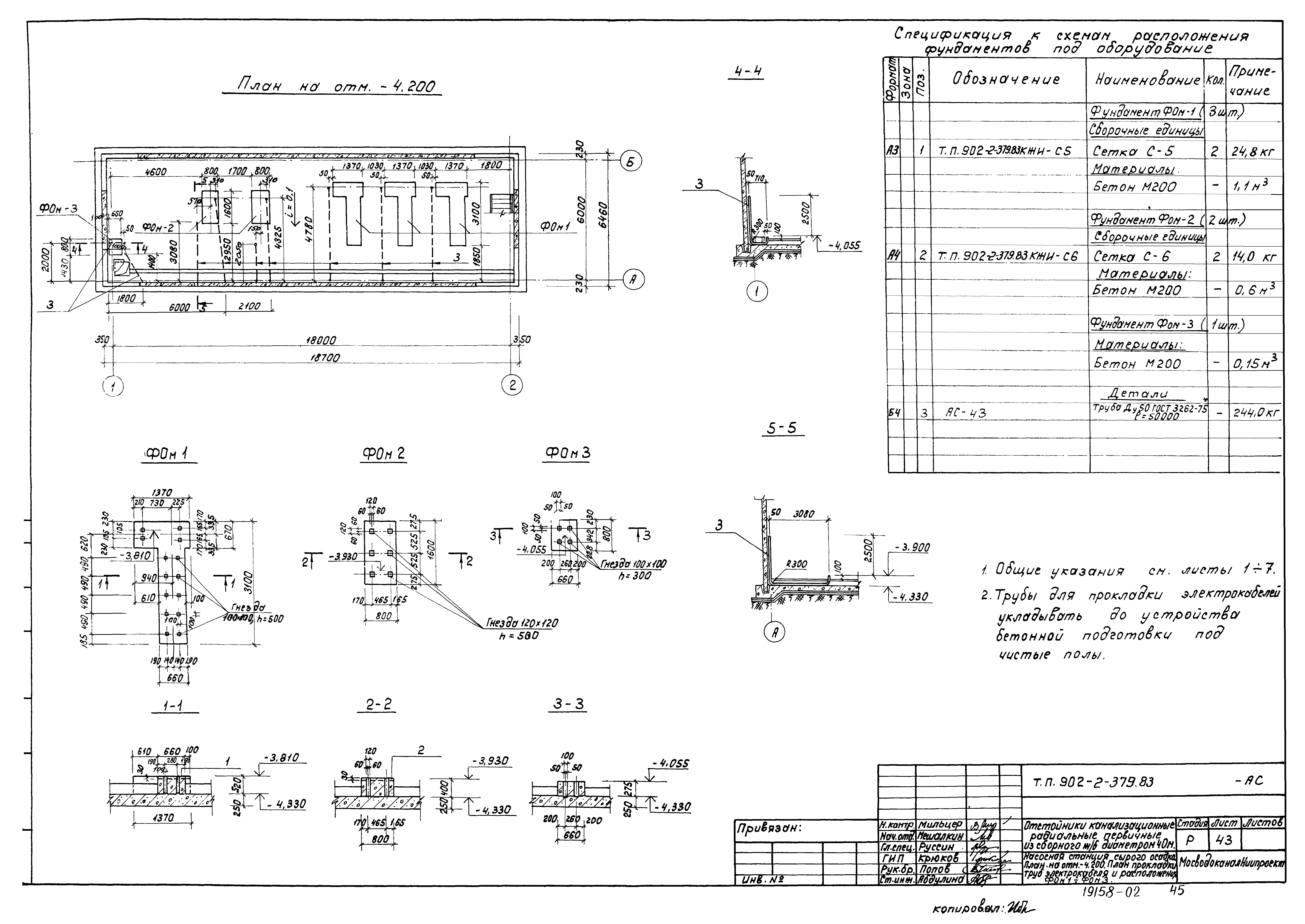
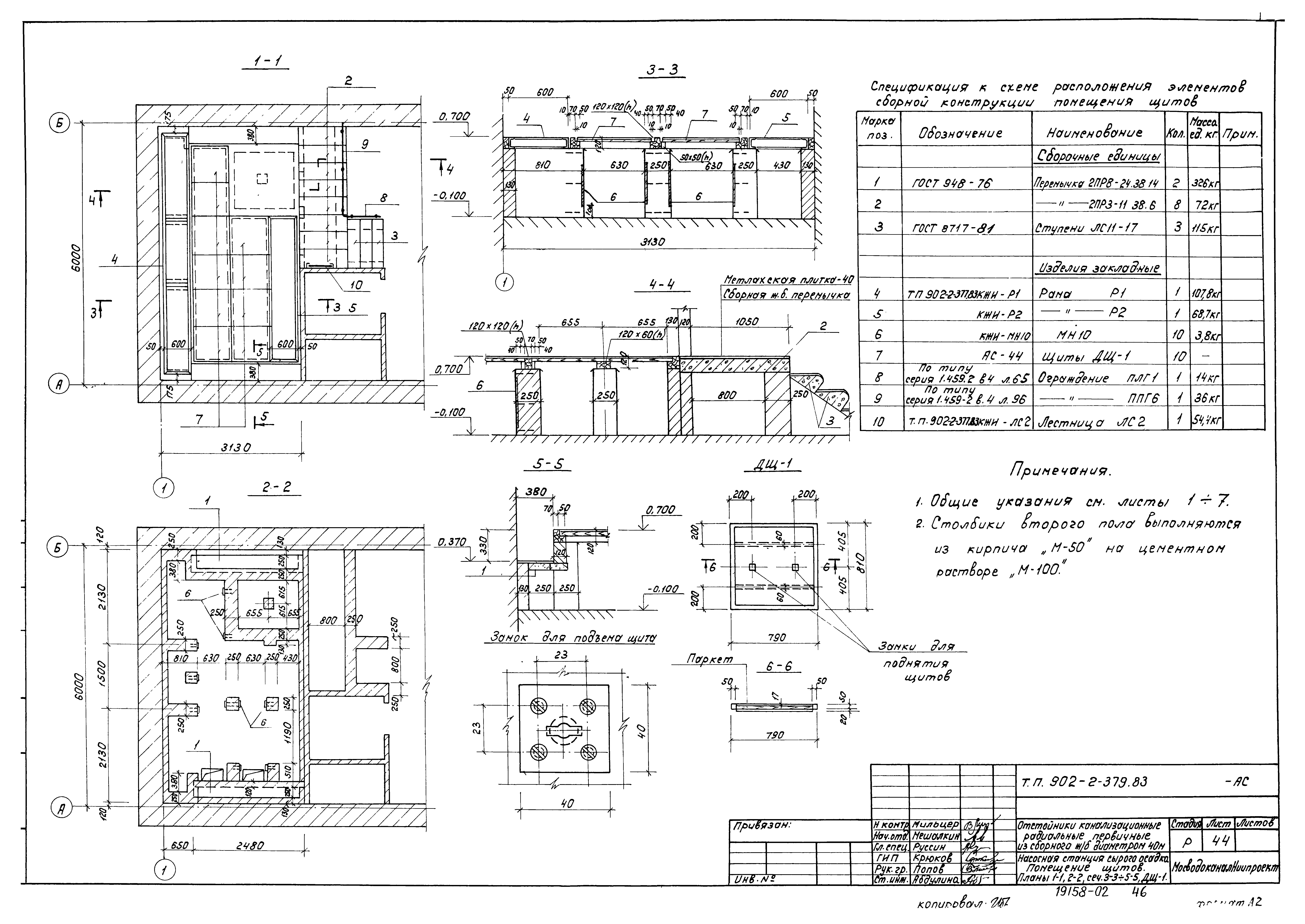
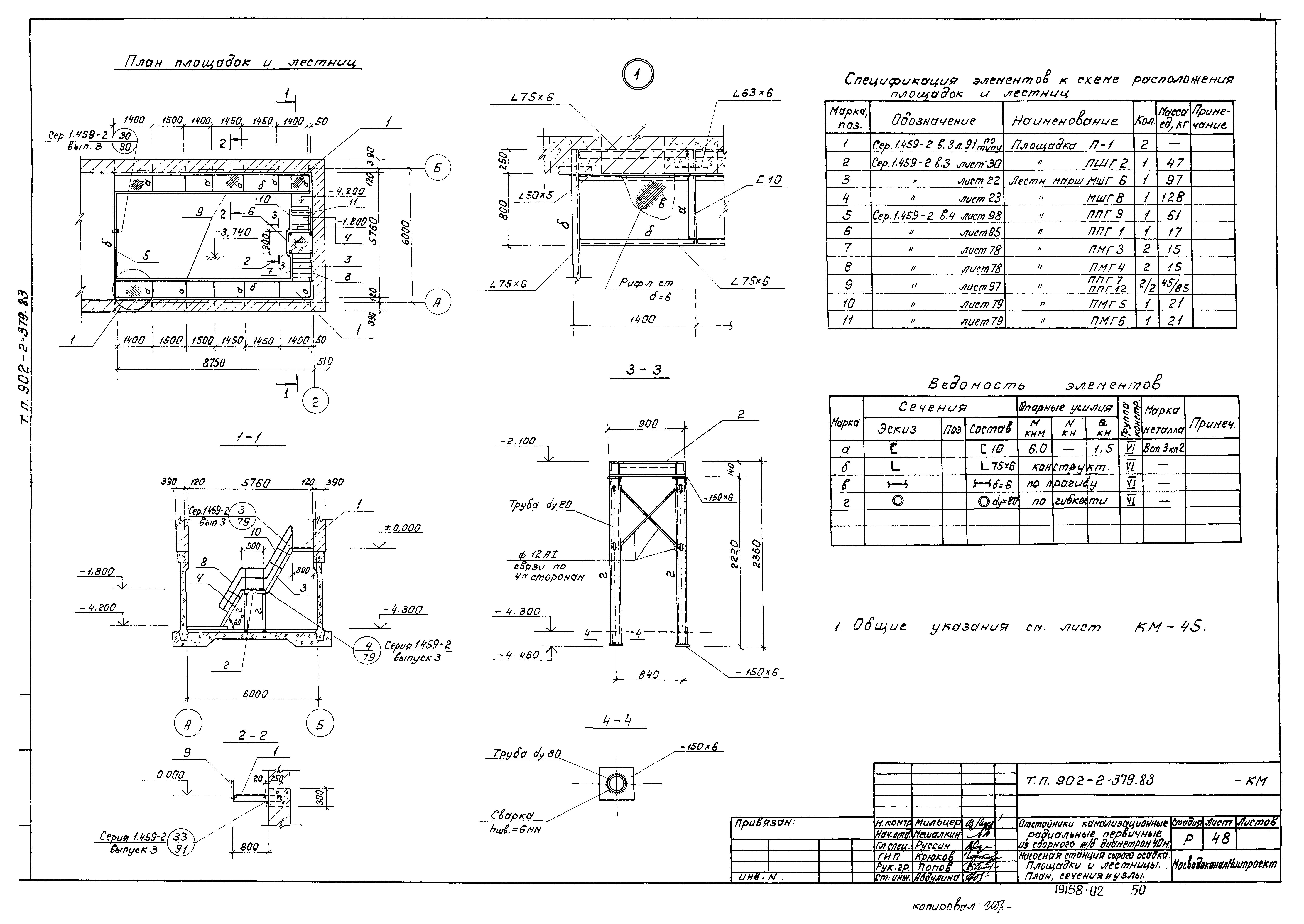
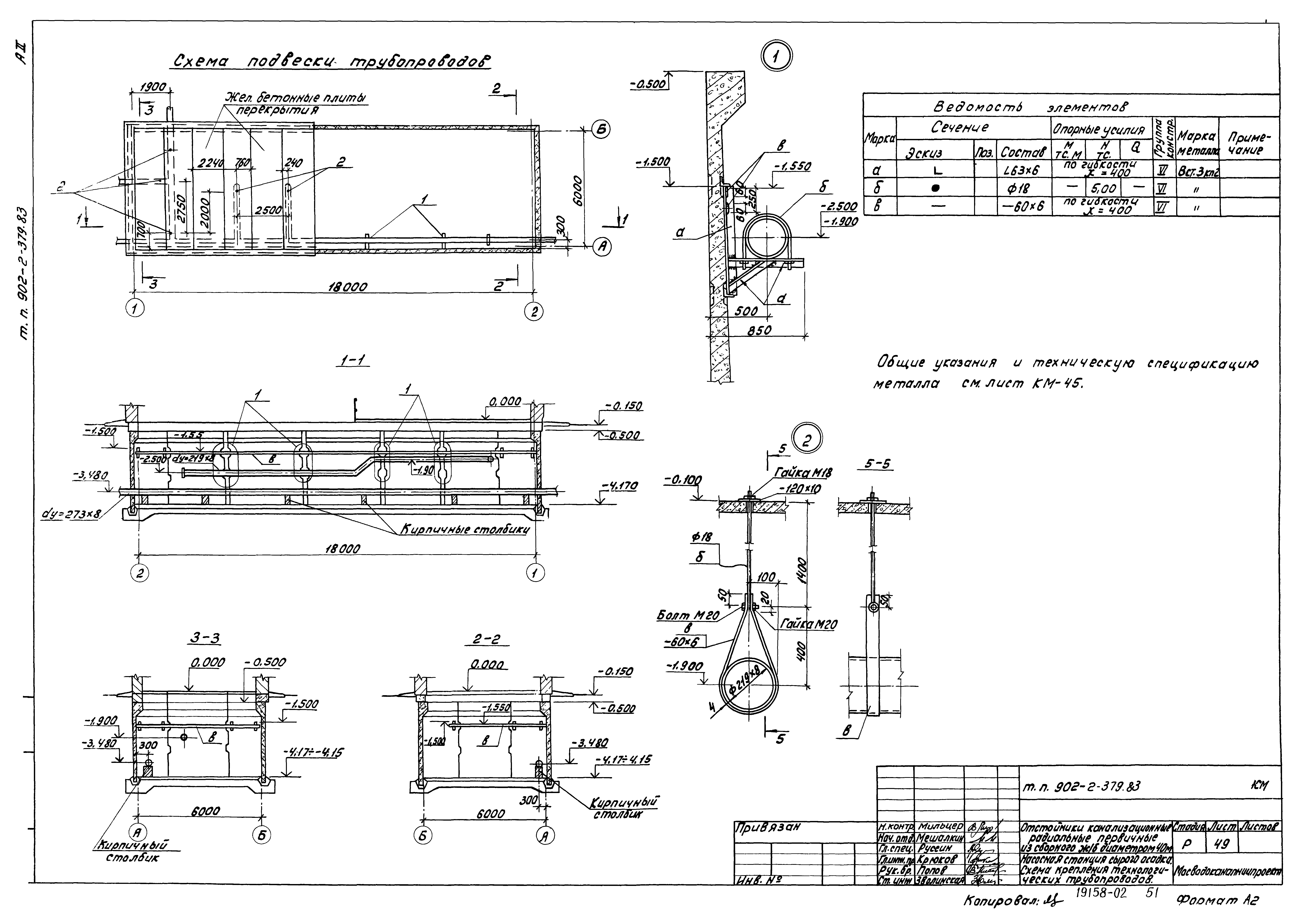
| Оглавление: | ТП 902-2-379.83-1 Общие данные (начало) ТП 902-2-379.83-2-6 Общие данные (продолжение) ТП 902-2-379.83-7 Общие данные (окончание) ТП 902-2-379.83-АС-8 План группы отстойников и коммуникаций ТП 902-2-379.83-АС-9 Отстойник. План 1-1. Разрез 2-2 ТП 902-2-379.83-АС-10 Отстойник. Центральная часть. Сечения 3-3÷6-6 ТП 902-2-379.83-АС-11 Отстойник. Центральная часть. Сечения 7-7÷12-12 ТП 902-2-379.83-АС-12 Отстойник. Спецификация арматуры на днище и центральную часть ТП 902-2-379.83-АС-13 Отстойник. Днище. Опалубочный чертеж и армирование. Узел 1. Сечения ТП 902-2-379.83-АС-14 Отстойник. Центральная часть. Армирование. Планы 2-2 и 5-5. Сечения 1-1,3-3,4-4 ТП 902-2-379.83-АС-15 Отстойник. Центральная часть. Армирование. Планы 6-6 и 9-9. Сечения 7-7,8-8,10-10÷12-12 ТП 902-2-379.83-АС-16 Отстойник. Схема расположения стеновых панелей. Узлы 1-2. Сечение 1-1 ТП 902-2-379.83-АС-17 Отстойник. Узлы 4-7. Деталь набивки кольцевой арматуры ТП 902-2-379.83-АС-18 Отстойник. Схема расположения лотков. Узел 8. Сечения 1-1÷5-5 ТП 902-2-379.83-АС-19 Отстойник. Выпускная камера ВМ1. Стена отстойника СМ1. Сечения 1-1÷6-6 ТП 902-2-379.83-АС-20 Отстойник. Выпускная камера ВМ1. Стена отстойника СМ1. Борт отстойника БМ1. Спецификация арматуры ТП 902-2-379.83-АС-21 Отстойник. Выпускная камера ВМ1. Стена отстойника СМ1. Армирование. Сечения 1-1÷4-4 ТП 902-2-379.83-АС-22 Отстойник. Выпускная камера ВМ1. Стена отстойника СМ1. Борт отстойника БМ1. Армирование. Сечения 5-5÷10-10 ТП 902-2-379.83-АС-23 Распределительная чаша. Планы 1-1,2-2,5-5. Сечения 3-3,4-4,6-6÷8-8 ТП 902-2-379.83-АС-24 Распределительная чаша. Армирование. Сечения 1-1÷6-6 ТП 902-2-379.83-АС-25 Распределительная чаша. Армирование. Сечения 7-7÷14-14 ТП 902-2-379.83-АС-26 Жиросборники Ж1,Ж2. Планы, сечения ТП 902-2-379.83-АС-27 Жиросборники Ж1,Ж2. Армирование. Сечение 1-1. План 2-2. План днища ТП 902-2-379.83-АС-28 Камеры ОП1 и ОП2. Планы. Сечения ТП 902-2-379.83-АС-29 Камера ОП1. Армирование. Планы. Сечения ТП 902-2-379.83-АС-30 Камера ОП2. Армирование. Планы. Сечения ТП 902-2-379.83-АС-31 Насосная станция сырого осадка. Общие данные ТП 902-2-379.83-АС-32 Насосная станция сырого осадка. Фасады 1-2,2-1,А-Б. План надземной части ТП 902-2-379.83-АС-33 Насосная станция сырого осадка. Разрезы 1-1÷3-3 ТП 902-2-379.83-АС-34 Насосная станция сырого осадка. Спецификации, ведомости, детали 1,2 ТП 902-2-379.83-АС-35 Насосная станция сырого осадка. Схема расположения стеновых панелей. Сечения 1-1÷5-5 ТП 902-2-379.83-АС-36 Насосная станция сырого осадка. Схема расположения стеновых панелей. Узлы 1-7 ТП 902-2-379.83-АС-37 Насосная станция сырого осадка. Схема расположения опалубки днища ТП 902-2-379.83-АС-38 Насосная станция сырого осадка. Схемы раскладки арматурных сеток и каркасов ТП 902-2-379.83-АС-39 Насосная станция сырого осадка. Армирование днища. Сечения 1-1÷4-4. Узел 1 ТП 902-2-379.83-АС-40 Насосная станция сырого осадка. Монолитные участки УМ1-УМ3. Армирование. План. Сечения ТП 902-2-379.83-АС-41 Насосная станция сырого осадка. Обвязочный пояс ОПМ1 ТП 902-2-379.83-АС-42 Насосная станция сырого осадка. План покрытия и планы перекрытия на отм. 0.000,2.250. Сечения 1-1÷4-4 ТП 902-2-379.83-АС-43 Насосная станция сырого осадка. План на отм. -4.200. План прокладки труб электрокабеля и расположения ФОМ1-ФОМ3 ТП 902-2-379.83-АС-44 Насосная станция сырого осадка. Помещение щитов. Планы 1-1,2-2. Сечения 3-3÷5-5. ДЩ-1 ТП 902-2-379.83-КМ-45 Насосная станция сырого осадка. Общие данные ТП 902-2-379.83-КМ-46 Насосная станция сырого осадка. Схема расположения путей подвесного транспорта на отм. 4.300. Узлы ТП 902-2-379.83-КМ-47 Насосная станция сырого осадка. Схема монорельса на отм. -0.780 ТП 902-2-379.83-КМ-48 Насосная станция сырого осадка. Площадки и лестницы. План, сечения и узлы ТП 902-2-379.83-КМ-49 Насосная станция сырого осадка. Схема крепления технологических трубопроводов ТП 902-2-379.83-КМ-50 Техническая спецификация металла ТП 902-2-379.83-КМ-51 Ведомость конструкции по видам профилей |
| Разработан: | МосводоканалНИИпроект |
| Утверждён: | 10.08.1983 МосводоканалНИИпроект (193) |




















































