Скачать Типовой проект 902-2-379.83 Альбом VI. Часть 1. Нестандартизированное оборудование. ИлоскребДата актуализации: 01.01.2021
|
| Обозначение: | Типовой проект 902-2-379.83 |
| Обозначение англ: | 902-2-379.83 |
| Статус: | не действует |
| Название рус.: | Альбом VI. Часть 1. Нестандартизированное оборудование. Илоскреб |
| Дата добавления в базу: | 01.09.2013 |
| Дата актуализации: | 01.01.2021 |
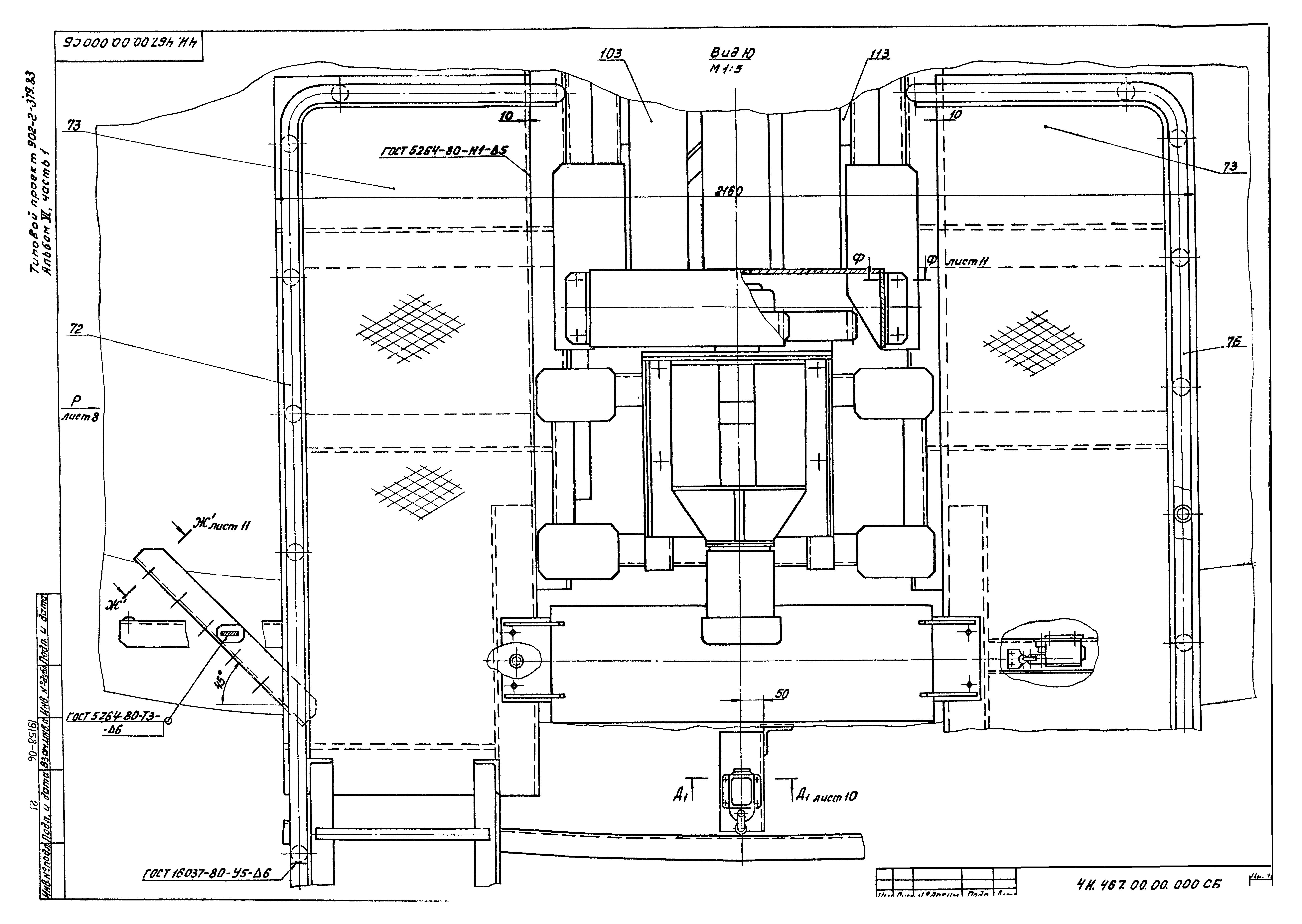
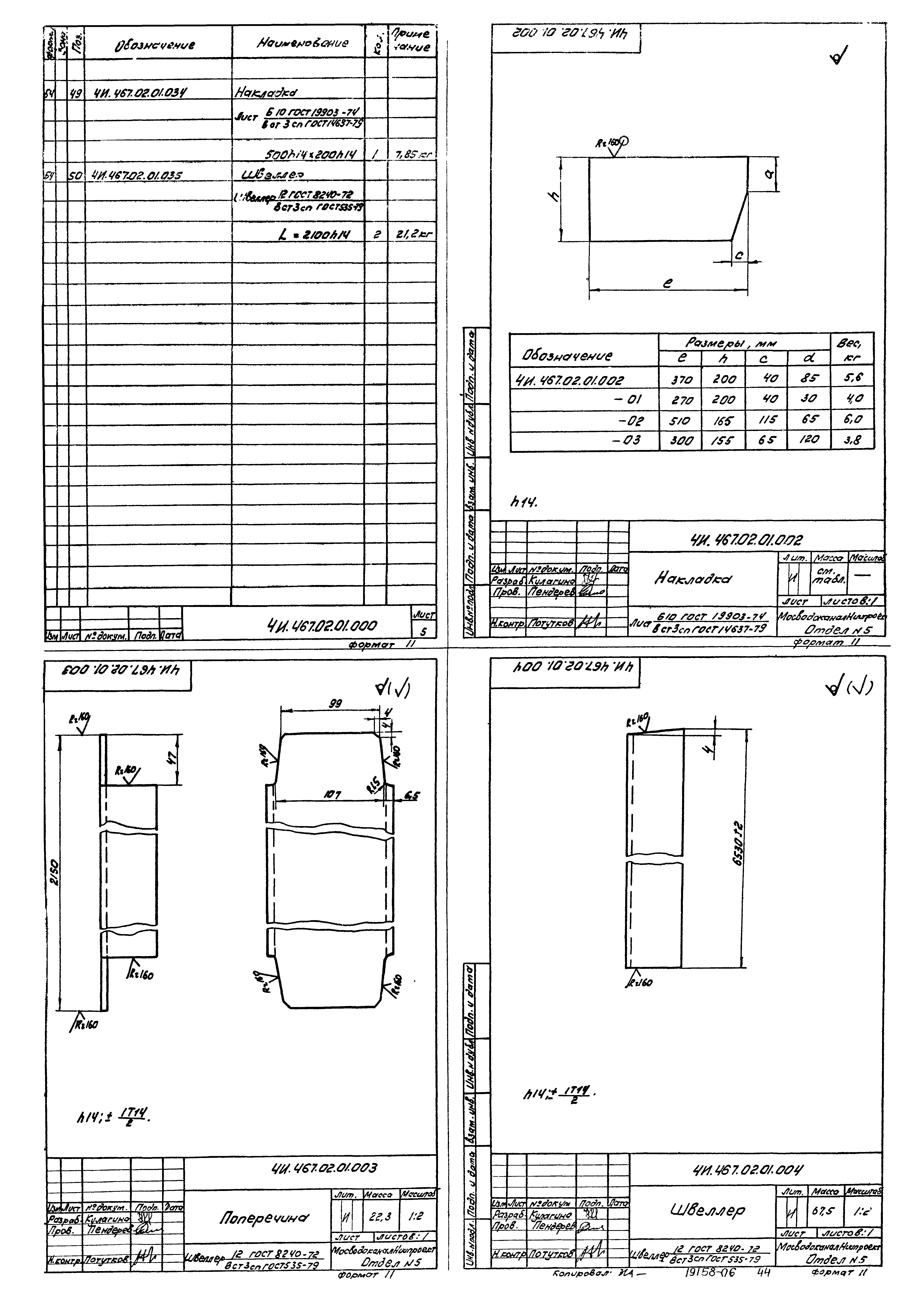
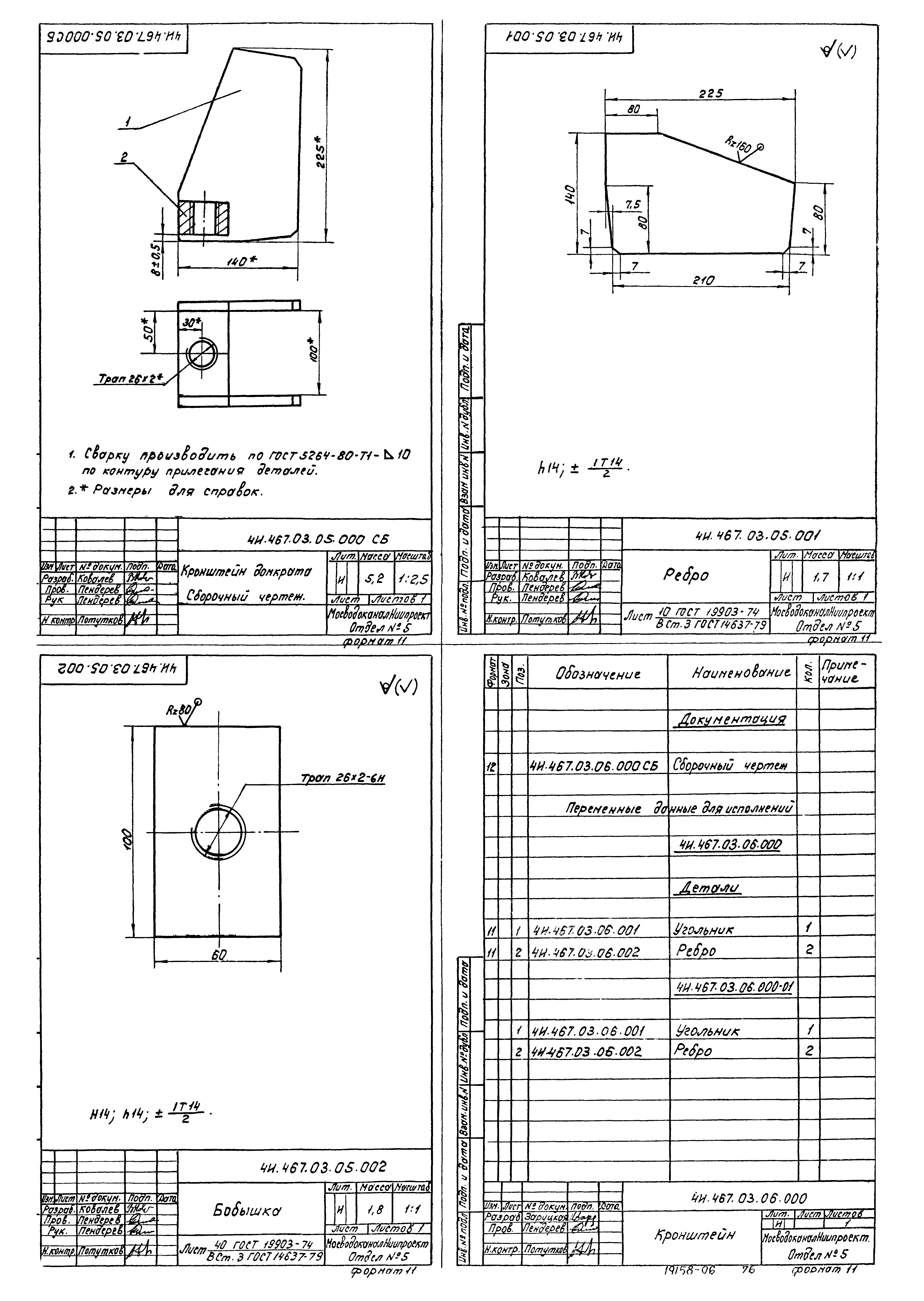
| Оглавление: | Часть 1 ТП 902-2-379.83 Титульный лист ТП 902-2-379.83 Содержание альбома ТП 902-2-379.83 4И.467.00.00.000 ТУ Илоскреб ИПР-40. Технические условия ТП 902-2-379.83 4И.467.00.00.000 ВП Илоскреб ИПР-40. Ведомость покупных изделий ТП 902-2-379.83 4И.467.00.00.000 СБ Илоскреб ИПР-40. Лист 1 ТП 902-2-379.83 4И.467.00.00.000 СБ Илоскреб ИПР-40. Лист 2 ТП 902-2-379.83 4И.467.00.00.000 СБ Илоскреб ИПР-40. Лист 3 ТП 902-2-379.83 4И.467.00.00.000 СБ Илоскреб ИПР-40. Лист 4 ТП 902-2-379.83 4И.467.00.00.000 СБ Илоскреб ИПР-40. Лист 5 ТП 902-2-379.83 4И.467.00.00.000 СБ Илоскреб ИПР-40. Лист 6 ТП 902-2-379.83 4И.467.00.00.000 СБ Илоскреб ИПР-40. Лист 7 ТП 902-2-379.83 4И.467.00.00.000 СБ Илоскреб ИПР-40. Лист 8 ТП 902-2-379.83 4И.467.00.00.000 СБ Илоскреб ИПР-40. Лист 9 ТП 902-2-379.83 4И.467.00.00.000 СБ Илоскреб ИПР-40. Лист 10 ТП 902-2-379.83 4И.467.00.00.000 СБ Илоскреб ИПР-40. Лист 11 ТП 902-2-379.83 4И.467.00.00.000 Илоскреб ИПР-40. Спецификация. Лист 1-4 ТП 902-2-379.83 4И.467.00.00.000 Илоскреб ИПР-40. Спецификация. Лист 5-8 ТП 902-2-379.83 4И.467.01.00.000 СБ Ферма моста. Лист 1 ТП 902-2-379.83 4И.467.01.00.000 СБ Ферма моста. Лист 2 ТП 902-2-379.83 4И.467.01.00.000 СБ Ферма моста. Лист 3 ТП 902-2-379.83 4И.467.01.00.000 СБ Ферма моста. Лист 4 ТП 902-2-379.83 4И.467.01.00.000 Ферма моста. Спецификация. Лист 1-4 ТП 902-2-379.83 4И.467.01.00.000 Ферма моста. Спецификация. Лист 5-8 ТП 902-2-379.83 4И.467.01.01.000 СБ Кронштейн ТП 902-2-379.83 4И.467.01.02.000 СБ Кронштейн ТП 902-2-379.83 4И.467.01.01.000 Кронштейн. Спецификация ТП 902-2-379.83 4И.467.01.02.000 Кронштейн. Спецификация ТП 902-2-379.83 4И.467.01.02.001 Угольник ТП 902-2-379.83 4И.467.01.02.002 Ребро ТП 902-2-379.83 4И.467.01.00.001 Кронштейн ТП 902-2-379.83 4И.467.01.00.002 Угольник нижний ТП 902-2-379.83 4И.467.01.00.003 Накладка ТП 902-2-379.83 4И.467.01.00.004 Накладка ТП 902-2-379.83 4И.467.01.00.005 Угольник ТП 902-2-379.83 4И.467.01.00.006 Поперечина ТП 902-2-379.83 4И.467.01.00.007 Стойка ТП 902-2-379.83 4И.467.01.00.008 Ребро опорное ТП 902-2-379.83 4И.467.01.00.009 Угольник нижний ТП 902-2-379.83 4И.467.01.00.011 Угольник ТП 902-2-379.83 4И.467.01.00.012 Поручень ТП 902-2-379.83 4И.467.01.00.013 Балка ТП 902-2-379.83 4И.467.01.00.014 Поперечина ТП 902-2-379.83 4И.467.01.00.015 Крюк ТП 902-2-379.83 4И.467.01.00.016 Ребро ТП 902-2-379.83 4И.467.01.00.017 Накладка ТП 902-2-379.83 4И.467.01.00.018 Лист средний ТП 902-2-379.83 4И.467.01.00.019 Угольник ТП 902-2-379.83 4И.467.01.00.021 Угольник обрамляющий ТП 902-2-379.83 4И.467.01.00.022 Поддон ТП 902-2-379.83 4И.467.01.00.023 Угольник внутренний ТП 902-2-379.83 4И.467.02.01.001 Швеллер ТП 902-2-379.83 4И.467.02.00.000 Крыло скребковое. Спецификация. Лист 1-2 ТП 902-2-379.83 4И.467.02.00.000 СБ Крыло скребковое ТП 902-2-379.83 4И.467.02.01.000 Ферма крыла скребкового. Спецификация. Лист 1-4 ТП 902-2-379.83 4И.467.02.01.000 Ферма крыла скребкового. Спецификация. Лист 5 ТП 902-2-379.83 4И.467.02.01.002 Накладка ТП 902-2-379.83 4И.467.02.01.003 Поперечина ТП 902-2-379.83 4И.467.02.01.004 Швеллер ТП 902-2-379.83 4И.467.02.01.000 СБ Ферма крыла скребкового. Лист 1 ТП 902-2-379.83 4И.467.02.01.000 СБ Ферма крыла скребкового. Лист 2 ТП 902-2-379.83 4И.467.02.01.000 СБ Ферма крыла скребкового. Лист 3 ТП 902-2-379.83 4И.467.02.01.000 СБ Ферма крыла скребкового. Лист 4 ТП 902-2-379.83 4И.467.02.01.000 СБ Ферма крыла скребкового. Лист 5 ТП 902-2-379.83 4И.467.02.01.005 Ребро ТП 902-2-379.83 4И.467.02.01.006 Поперечина ТП 902-2-379.83 4И.467.02.01.007 Накладка ТП 902-2-379.83 4И.467.02.01.008 Ребро ТП 902-2-379.83 4И.467.02.01.009 Накладка ТП 902-2-379.83 4И.467.02.01.011 Ребро ТП 902-2-379.83 4И.467.02.01.012 Ушко ТП 902-2-379.83 4И.467.02.01.013 Ребро ТП 902-2-379.83 4И.467.02.01.014 Ребро ТП 902-2-379.83 4И.467.02.01.015 Накладка ТП 902-2-379.83 4И.467.02.01.016 Ребро ТП 902-2-379.83 4И.467.02.01.017 Ребро ТП 902-2-379.83 4И.467.02.02.000 Скребок. Спецификация. Лист 1-3 ТП 902-2-379.83 4И.467.02.03.000 Скребок. Спецификация. Лист 1 ТП 902-2-379.83 4И.467.02.03.000 Скребок. Спецификация. Лист 2-5 ТП 902-2-379.83 4И.467.02.02.000 СБ Скребок ТП 902-2-379.83 4И.467.02.03.000 СБ Скребок ТП 902-2-379.83 4И.467.02.02.002 Ребро ТП 902-2-379.83 4И.467.03.00.000 Платформа. Спецификация. Лист 1-2 ТП 902-2-379.83 4И.467.03.00.000 Платформа. Спецификация. Лист 3 ТП 902-2-379.83 4И.467.03.00.001 Винт нажимной ТП 902-2-379.83 4И.467.03.00.002 Пластина ТП 902-2-379.83 4И.467.03.00.003 Ось ТП 902-2-379.83 4И.467.03.00.000 СБ Платформа. Лист 1 ТП 902-2-379.83 4И.467.03.00.000 СБ Платформа. Лист 2 ТП 902-2-379.83 4И.467.03.00.000 СБ Платформа. Лист 3 ТП 902-2-379.83 4И.467.03.01.000 СБ Металлоконструкция платформы. Лист 1 ТП 902-2-379.83 4И.467.03.01.000 СБ Металлоконструкция платформы. Лист 2 ТП 902-2-379.83 4И.467.03.01.000 Металлоконструкция платформы. Спецификация ТП 902-2-379.83 4И.467.03.01.100 Луч. Спецификация ТП 902-2-379.83 4И.467.03.01.100 СБ Луч ТП 902-2-379.83 4И.467.03.01.101 Накладка ТП 902-2-379.83 4И.467.03.01.102 Ребро ТП 902-2-379.83 4И.467.03.01.103 Балка ТП 902-2-379.83 4И.467.03.01.104 Поперечина ТП 902-2-379.83 4И.467.03.01.105 Поперечина ТП 902-2-379.83 4И.467.03.01.106 Упор ТП 902-2-379.83 4И.467.03.01.200 СБ Основание. Лист 1 ТП 902-2-379.83 4И.467.03.01.200 СБ Основание. Лист 2 ТП 902-2-379.83 4И.467.03.01.200 Основание. Спецификация. Лист 1-2 ТП 902-2-379.83 4И.467.03.01.201 Ребро ТП 902-2-379.83 4И.467.03.01.202 Ребро ТП 902-2-379.83 4И.467.03.01.203 Ребро ТП 902-2-379.83 4И.467.03.01.204 Лист ТП 902-2-379.83 4И.467.03.01.205 Балка ТП 902-2-379.83 4И.467.03.02.206 Поперечина ТП 902-2-379.83 4И.467.03.02.207 Поперечина ТП 902-2-379.83 4И.467.03.02.000 СБ Тележка балансирная ТП 902-2-379.83 4И.467.03.02.100 СБ Обойма ТП 902-2-379.83 4И.467.03.02.000 Тележка балансирная. Спецификация ТП 902-2-379.83 4И.467.03.02.100 Обойма. Спецификация ТП 902-2-379.83 4И.467.03.02.101 Накладка ТП 902-2-379.83 4И.467.03.02.102 Ребро ТП 902-2-379.83 4И.467.03.02.103 Щека ТП 902-2-379.83 4И.467.03.03.000 Стакан. Спецификация ТП 902-2-379.83 4И.467.03.03.001 Труба ТП 902-2-379.83 4И.467.03.03.000 СБ Стакан ТП 902-2-379.83 4И.467.03.03.002 Ребро ТП 902-2-379.83 4И.467.03.03.003 Ребро ТП 902-2-379.83 4И.467.03.04.000 СБ Ролик ТП 902-2-379.83 4И.467.03.04.000 Ролик. Спецификация ТП 902-2-379.83 4И.467.03.04.001 Обод ролика ТП 902-2-379.83 4И.467.03.04.002 Прокладка ТП 902-2-379.83 4И.467.03.05.000 Кронштейн домкрата. Спецификация ТП 902-2-379.83 4И.467.03.05.000 СБ Кронштейн домкрата ТП 902-2-379.83 4И.467.03.05.001 Ребро ТП 902-2-379.83 4И.467.03.05.002 Бобышка ТП 902-2-379.83 4И.467.03.06.000 Кронштейн. Спецификация ТП 902-2-379.83 4И.467.03.06.000 СБ Кронштейн ТП 902-2-379.83 4И.467.03.06.001 Угольник ТП 902-2-379.83 4И.467.03.06.002 Ребро ТП 902-2-379.83 4И.467.03.07.000 СБ Поперечина ТП 902-2-379.83 4И.467.03.07.000 Поперечина. Спецификация ТП 902-2-379.83 4И.467.03.00.005 Ось ТП 902-2-379.83 4И.467.03.00.006 Втулка дистанционная ТП 902-2-379.83 4И.467.03.00.007 Винт упорный ТП 902-2-379.83 4И.467.03.00.008 Угольник |
| Разработан: | МосводоканалНИИпроект |
| Утверждён: | 10.08.1983 МосводоканалНИИпроект (193) |















































































