Скачать Типовой проект 902-2-379.83 Альбом VI. Часть 2. Нестандартизированное оборудование. ИлоскребДата актуализации: 01.01.2021
|
| Обозначение: | Типовой проект 902-2-379.83 |
| Обозначение англ: | 902-2-379.83 |
| Статус: | не действует |
| Название рус.: | Альбом VI. Часть 2. Нестандартизированное оборудование. Илоскреб |
| Дата добавления в базу: | 01.09.2013 |
| Дата актуализации: | 01.01.2021 |
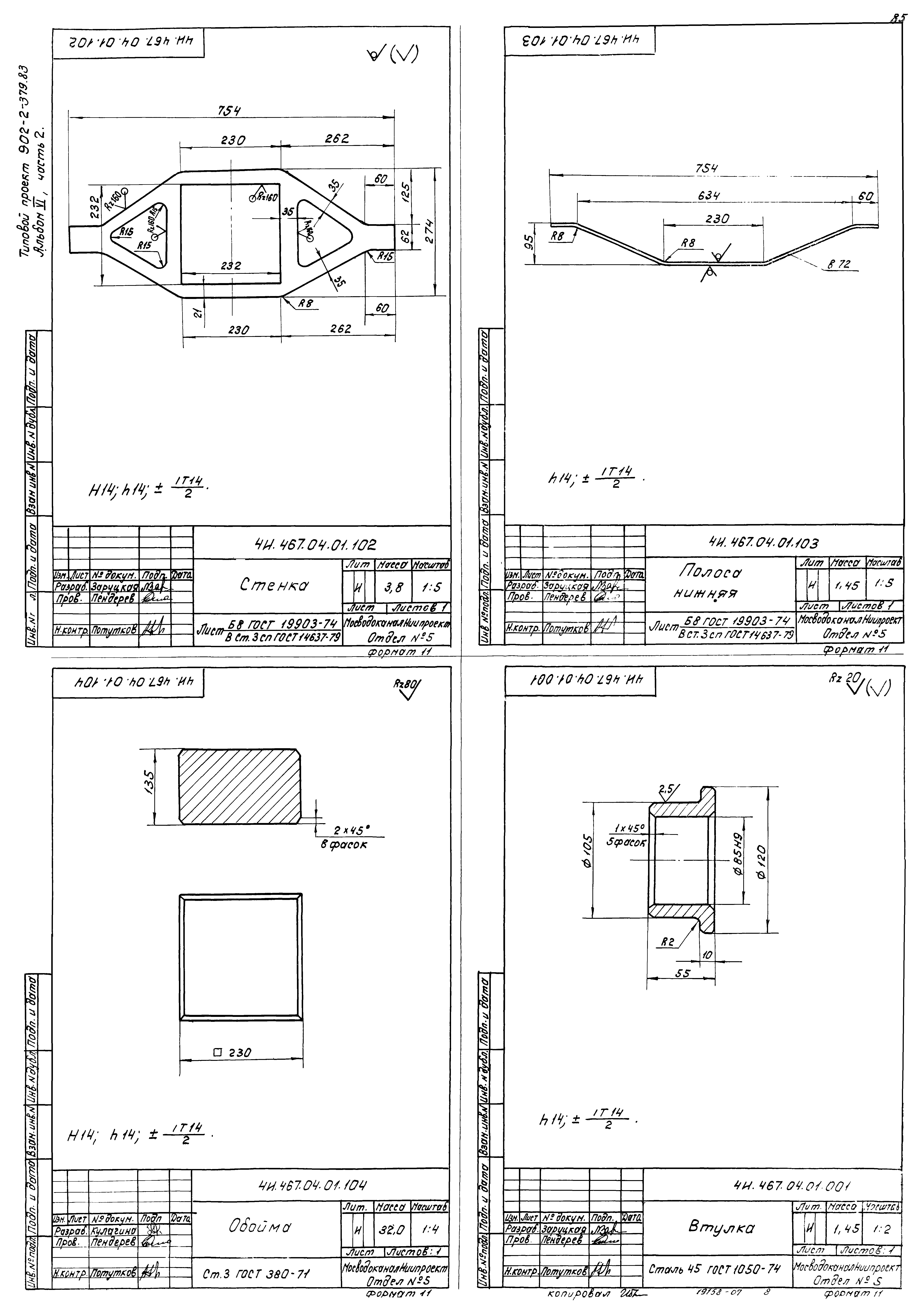
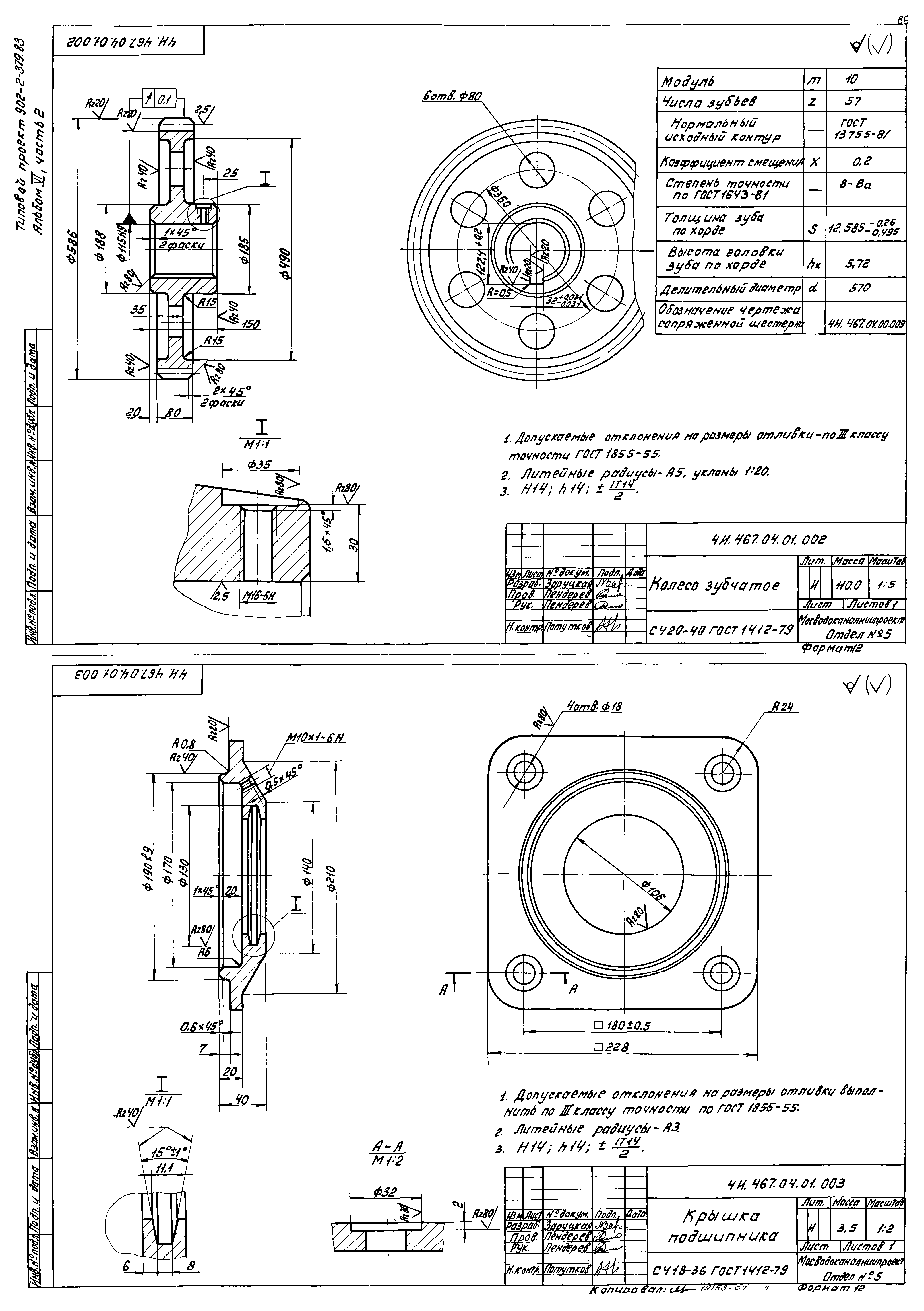
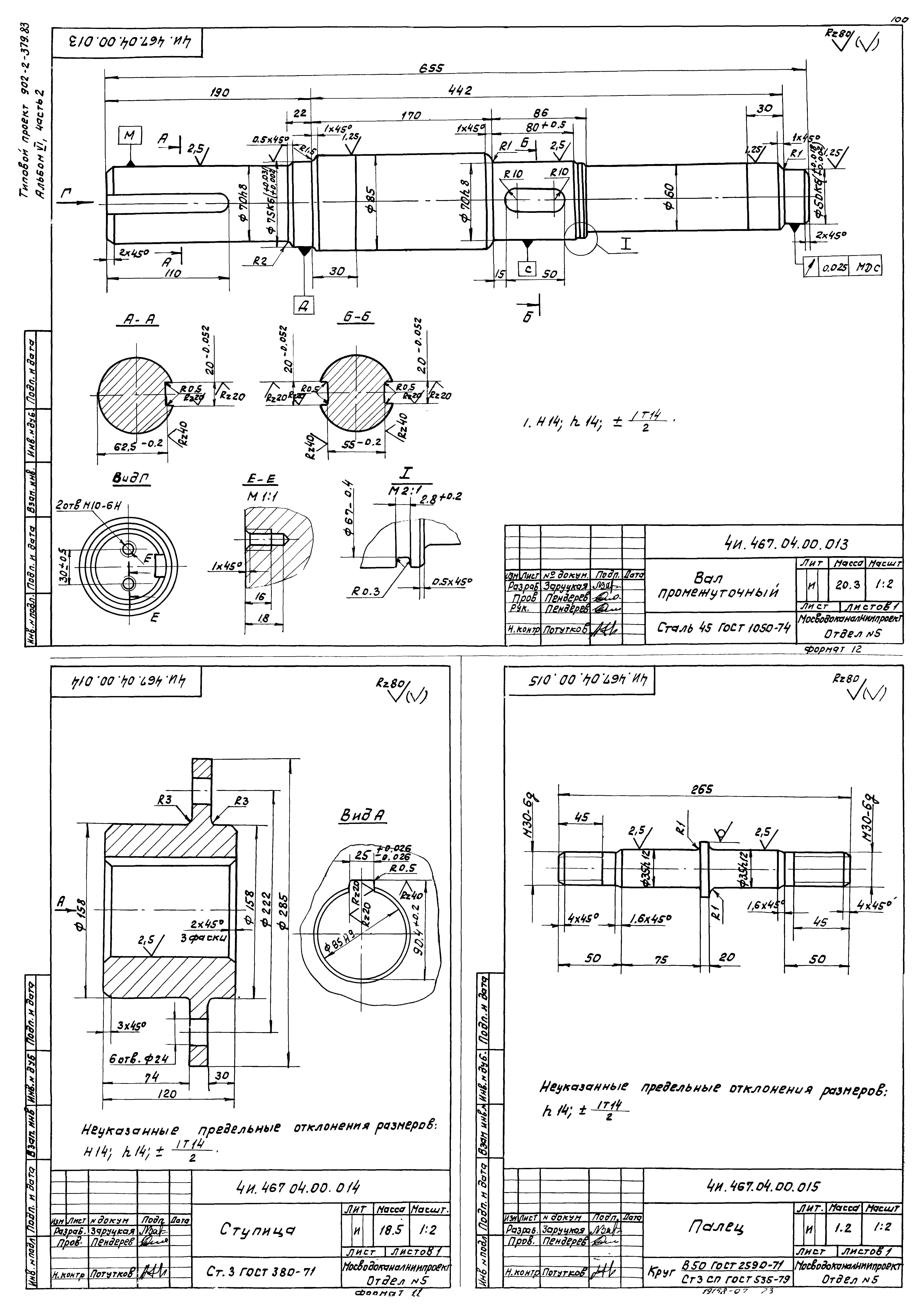
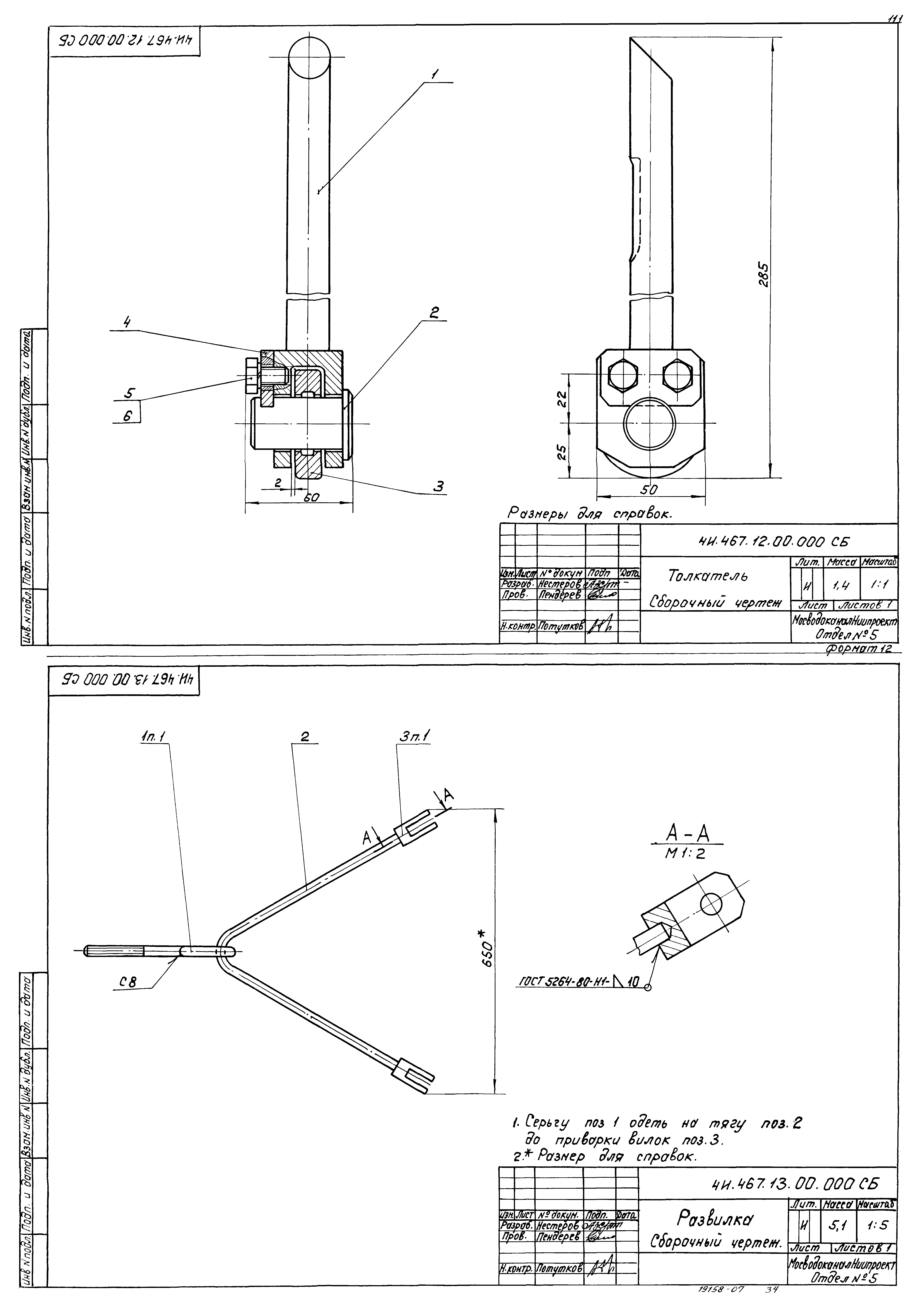
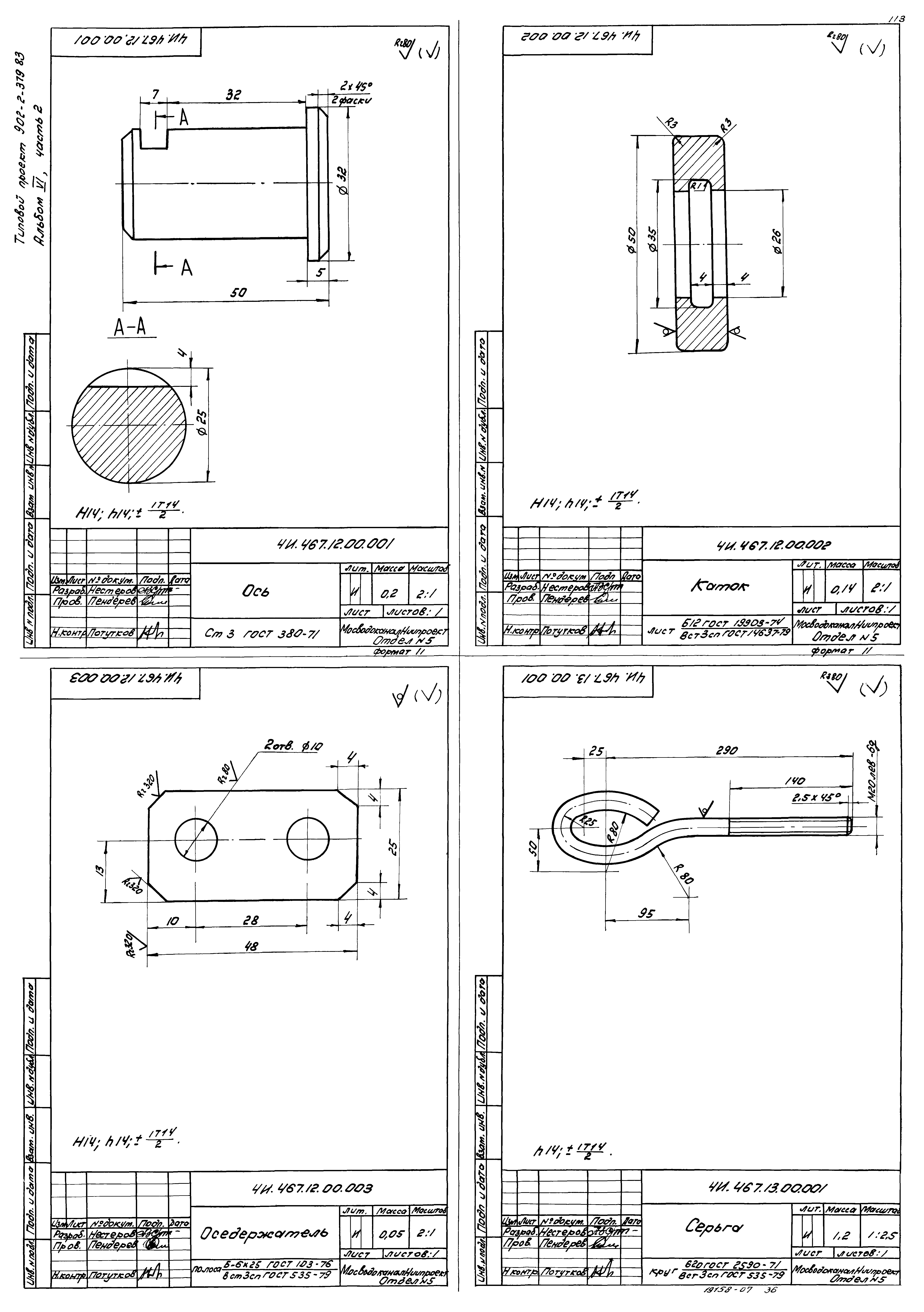
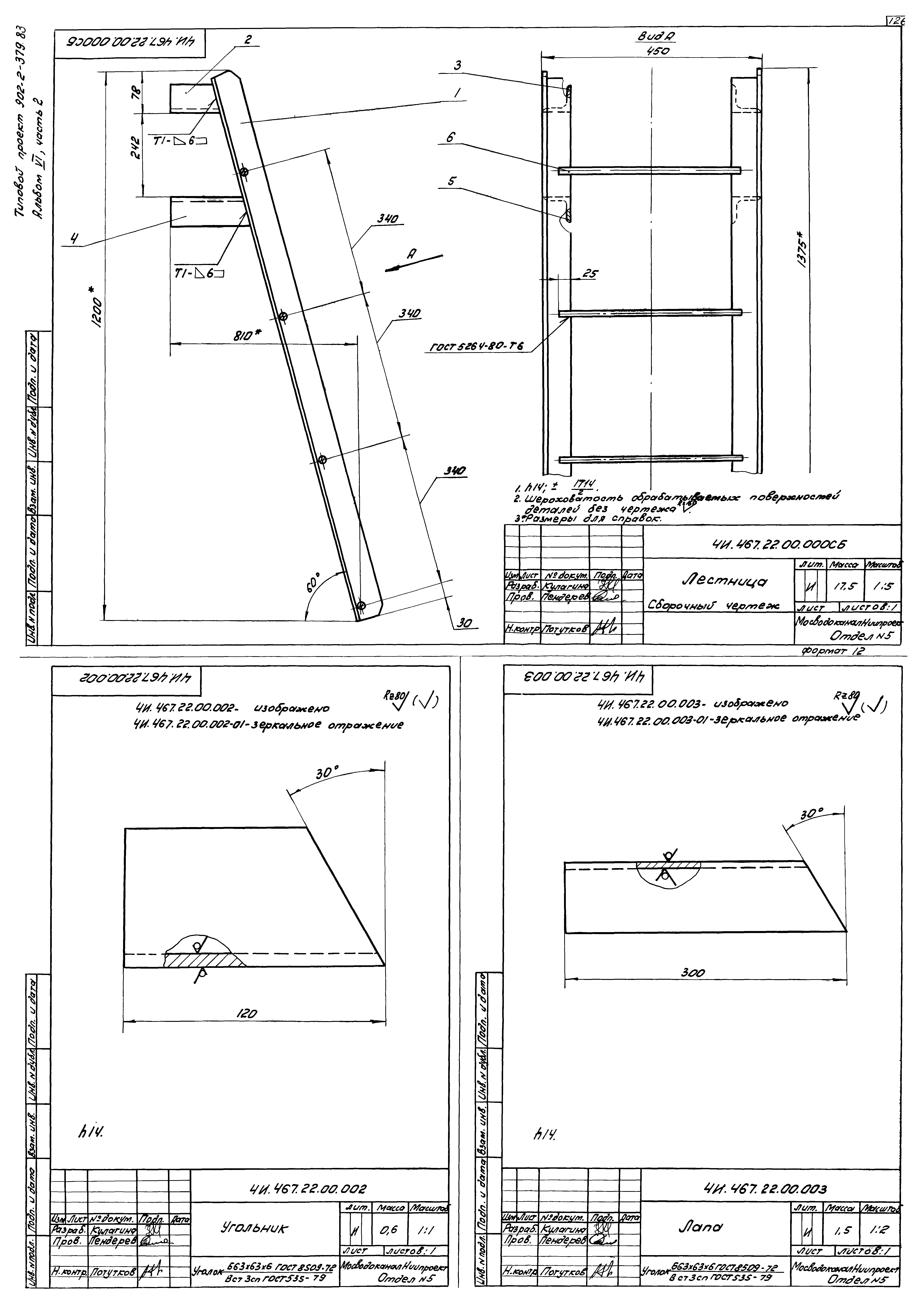
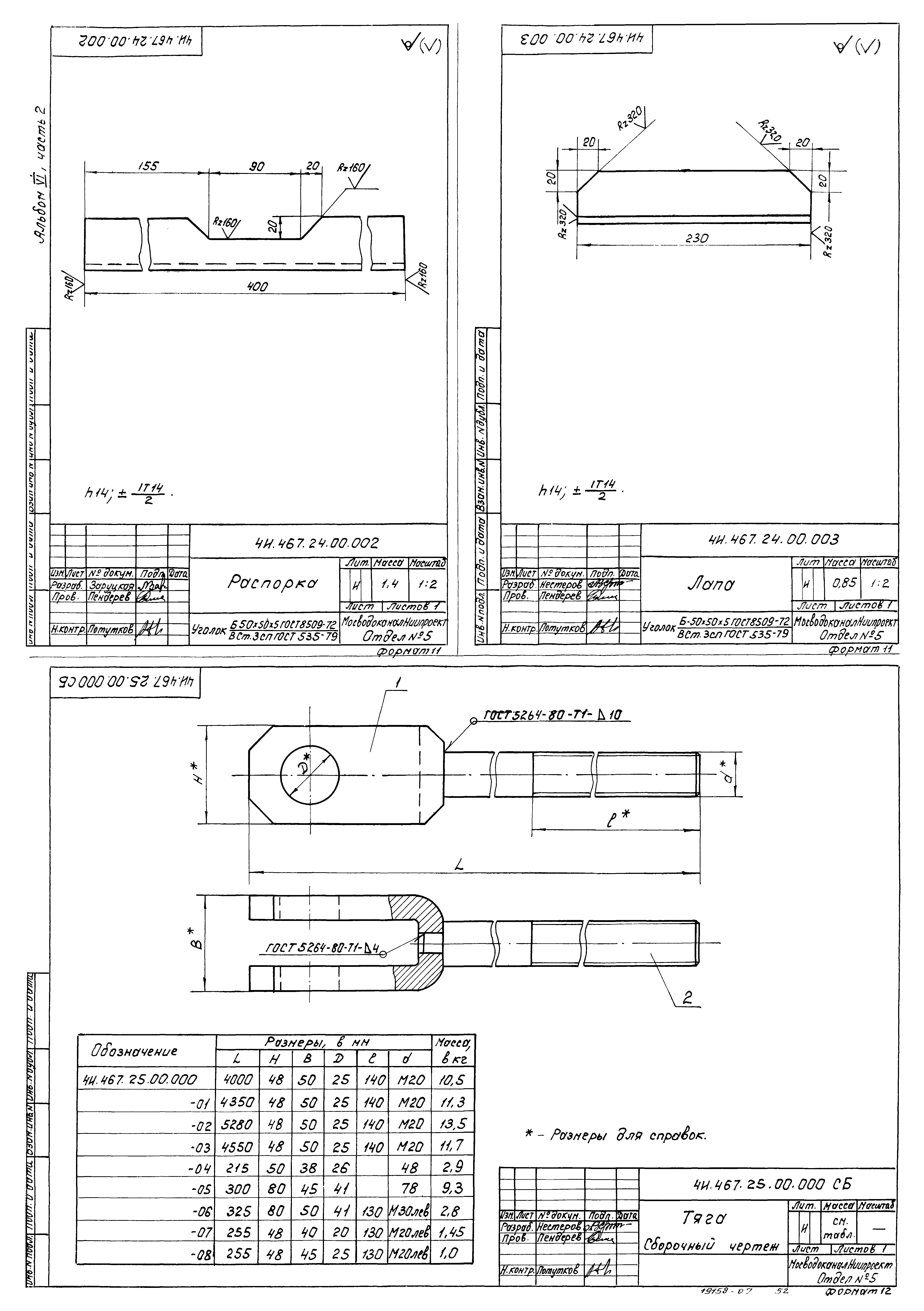
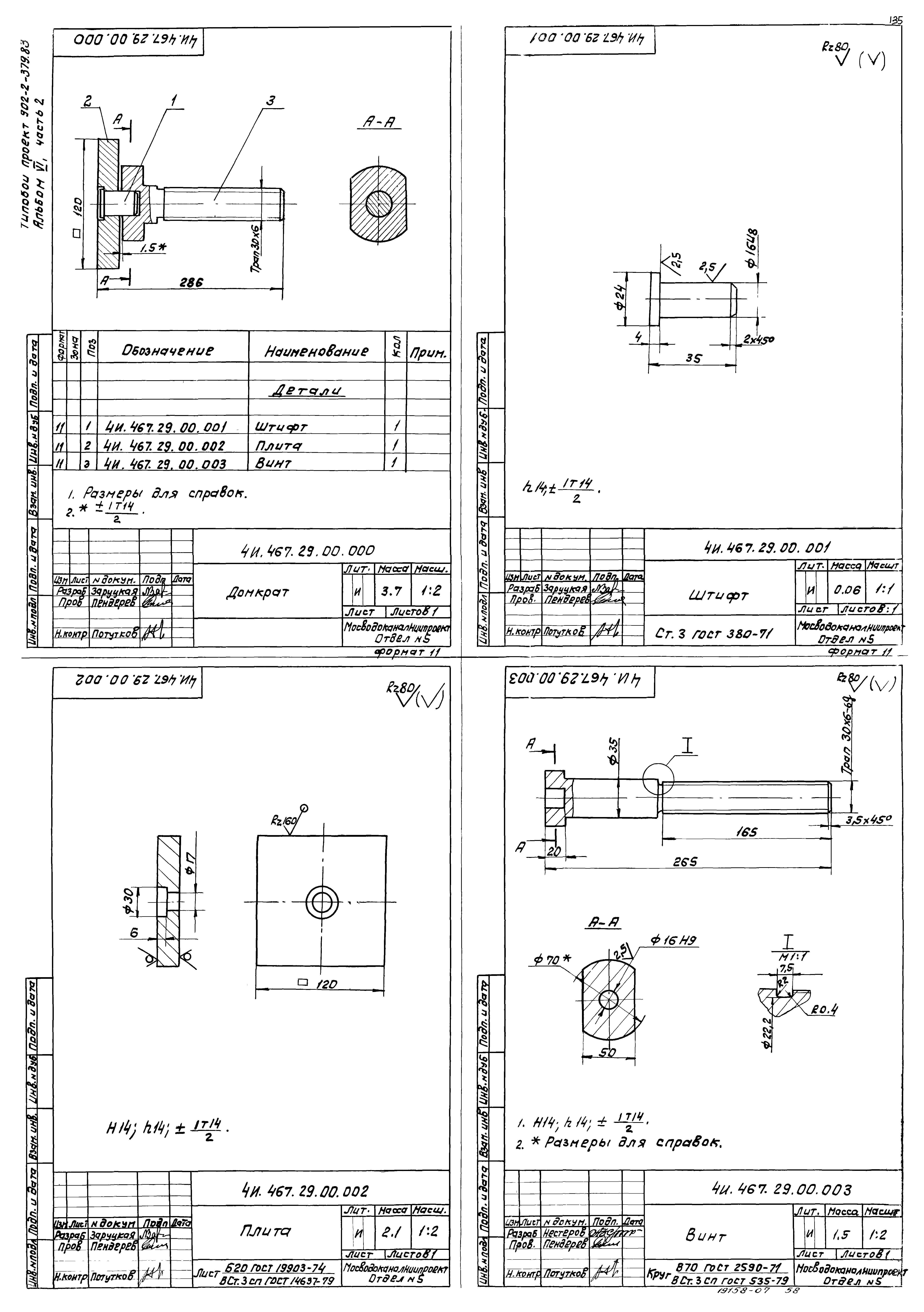
| Оглавление: | Часть 2 ТП 902-2-379.83 4И.467.04.00.000 СБ Привод. Лист 1 ТП 902-2-379.83 4И.467.04.00.000 СБ Привод. Лист 2 ТП 902-2-379.83 4И.467.04.00.000 СБ Привод. Лист 3 ТП 902-2-379.83 4И.467.04.00.000 Привод. Спецификация ТП 902-2-379.83 4И.467.04.01.000 Вал в сборе. Спецификация ТП 902-2-379.83 4И.467.04.01.100 Траверса. Спецификация ТП 902-2-379.83 4И.467.04.01.101 Полоса верхняя ТП 902-2-379.83 4И.467.04.01.000 СБ Вал в сборе ТП 902-2-379.83 4И.467.04.01.100 СБ Траверса ТП 902-2-379.83 4И.467.04.01.102 Стенка ТП 902-2-379.83 4И.467.04.01.103 Полоса нижняя ТП 902-2-379.83 4И.467.04.01.104 Обойма ТП 902-2-379.83 4И.467.04.01.001 Втулка ТП 902-2-379.83 4И.467.04.01.002 Колесо зубчатое ТП 902-2-379.83 4И.467.04.01.003 Крышка подшипника ТП 902-2-379.83 4И.467.04.01.004 Вал ТП 902-2-379.83 4И.467.04.01.005 Колесо дистанционное ТП 902-2-379.83 4И.467.04.01.006 Прокладка ТП 902-2-379.83 4И.467.04.01.007 Колесо уплотнительное ТП 902-2-379.83 4И.467.04.01.008 Полукольцо ТП 902-2-379.83 4И.467.04.01.009 Крышка подшипника ТП 902-2-379.83 4И.467.04.01.011 Крышка подшипника ТП 902-2-379.83 4И.467.04.02.000 Рама. Спецификация ТП 902-2-379.83 4И.467.04.02.000 СБ Рама. Лист 1 ТП 902-2-379.83 4И.467.04.02.000 СБ Рама. Лист 2 ТП 902-2-379.83 4И.467.04.02.000 СБ Рама. Лист 3 ТП 902-2-379.83 4И.467.04.02.001 Накладка ТП 902-2-379.83 4И.467.04.02.002 Швеллер ТП 902-2-379.83 4И.467.04.02.003 Ребро ТП 902-2-379.83 4И.467.04.02.004 Лапа ТП 902-2-379.83 4И.467.04.03.000 СБ Кронштейн ТП 902-2-379.83 4И.467.04.03.000 Кронштейн. Спецификация ТП 902-2-379.83 4И.467.04.03.001 Фланец ТП 902-2-379.83 4И.467.04.03.002 Ребро ТП 902-2-379.83 4И.467.04.03.003 Основание ТП 902-2-379.83 4И.467.04.00.001 Шестерня сменная ТП 902-2-379.83 4И.467.04.00.002 Шестерня сменная ТП 902-2-379.83 4И.467.04.00.003 Шестерня сменная ТП 902-2-379.83 4И.467.04.00.004 Колесо зубчатое сменное ТП 902-2-379.83 4И.467.04.00.005 Колесо зубчатое сменное ТП 902-2-379.83 4И.467.04.00.006 Колесо зубчатое сменное ТП 902-2-379.83 4И.467.04.00.007 Втулка дистанционная ТП 902-2-379.83 4И.467.04.00.008 Прокладка ТП 902-2-379.83 4И.467.04.00.009 Шестерня ТП 902-2-379.83 4И.467.04.00.011 Стакан ТП 902-2-379.83 4И.467.04.00.012 Стакан ТП 902-2-379.83 4И.467.04.00.013 Вал промежуточный ТП 902-2-379.83 4И.467.04.00.014 Ступица ТП 902-2-379.83 4И.467.04.00.015 Палец ТП 902-2-379.83 4И.467.04.00.016 Шайба глухая ТП 902-2-379.83 4И.467.04.00.017 Шайба стопорная ТП 902-2-379.83 4И.467.05.00.000 Кожух. Спецификация ТП 902-2-379.83 4И.467.05.00.001 Ребро ТП 902-2-379.83 4И.467.05.00.000 СБ Кожух ТП 902-2-379.83 4И.467.05.00.002 Боковина ТП 902-2-379.83 4И.467.05.00.003 Стенка ТП 902-2-379.83 4И.467.06.00.000 СБ Труба для кабеля ТП 902-2-379.83 4И.467.06.00.000 Труба для кабеля. Спецификация ТП 902-2-379.83 4И.467.06.00.001 Труба ТП 902-2-379.83 4И.467.06.00.002 Кольцо ТП 902-2-379.83 4И.467.07.00.000 Стойка. Спецификация ТП 902-2-379.83 4И.467.07.00.000 СБ Стойка ТП 902-2-379.83 4И.467.08.00.000 СБ Опора центральная ТП 902-2-379.83 4И.467.08.00.000 Опора центральная ТП 902-2-379.83 4И.467.08.00.001 Фланец ТП 902-2-379.83 4И.467.08.00.002 Ребро ТП 902-2-379.83 4И.467.09.00.000 Опора радиальная. Спецификация ТП 902-2-379.83 4И.467.09.00.000 СБ Опора радиальная ТП 902-2-379.83 4И.467.09.00.001 Крышка подшипника ТП 902-2-379.83 4И.467.09.00.002 Обойма ТП 902-2-379.83 4И.467.09.00.003 Крышка подшипника ТП 902-2-379.83 4И.467.09.00.004 Прокладка ТП 902-2-379.83 4И.467.10.00.000 Скребок центральный. Спецификация ТП 902-2-379.83 4И.467.10.00.000 СБ Скребок центральный ТП 902-2-379.83 4И.467.10.00.001 Лист ТП 902-2-379.83 4И.467.10.00.002 Ребро ТП 902-2-379.83 4И.467.11.00.000 Пуль рельсовый. Спецификация ТП 902-2-379.83 4И.467.11.00.000 СБ Пуль рельсовый ТП 902-2-379.83 4И.467.11.00.001 Головка ТП 902-2-379.83 4И.467.11.00.002 Кольцо ТП 902-2-379.83 4И.467.11.00.003 Основание ТП 902-2-379.83 4И.467.12.00.000 Толкатель. Спецификация ТП 902-2-379.83 4И.467.12.00.000 СБ Толкатель ТП 902-2-379.83 4И.467.13.00.000 СБ Развилка ТП 902-2-379.83 4И.467.13.00.000 Развилка. Спецификация ТП 902-2-379.83 4И.467.12.01.000 Шток. Спецификация ТП 902-2-379.83 4И.467.12.01.001 Стержень ТП 902-2-379.83 4И.467.12.01.002 Вилка ТП 902-2-379.83 4И.467.12.00.001 Ось ТП 902-2-379.83 4И.467.12.00.002 Каток ТП 902-2-379.83 4И.467.12.00.003 Оседержатель ТП 902-2-379.83 4И.467.13.00.001 Серьга ТП 902-2-379.83 4И.467.13.00.002 Тяга ТП 902-2-379.83 4И.467.13.00.003 Вилка ТП 902-2-379.83 4И.467.14.00.000 СБ Стойка ТП 902-2-379.83 4И.467.14.00.000 Стойка. Спецификация ТП 902-2-379.83 4И.467.14.01.000 Козырек ТП 902-2-379.83 4И.467.14.01.001 Обечайка коническая ТП 902-2-379.83 4И.467.14.00.001 Труба ТП 902-2-379.83 4И.467.14.01.002 Обечайка цилиндрическая ТП 902-2-379.83 4И.467.14.00.002 Палец ТП 902-2-379.83 4И.467.15.00.000 Секция цилиндра направляющего. Спецификация ТП 902-2-379.83 4И.467.15.00.000 СБ Секция цилиндра направляющего ТП 902-2-379.83 4И.467.15.00.001 Ребро ТП 902-2-379.83 4И.467.15.00.002 Обечайка ТП 902-2-379.83 4И.467.15.00.003 Окантовка ТП 902-2-379.83 4И.467.15.00.004 Угольник ТП 902-2-379.83 4И.467.16.00.000 СБ Скребок ТП 902-2-379.83 4И.467.16.00.000 Скребок. Спецификация ТП 902-2-379.83 4И.467.16.00.001 Угольник ТП 902-2-379.83 4И.467.16.00.002 Накладка ТП 902-2-379.83 4И.467.16.00.003 Планка ТП 902-2-379.83 4И.467.16.00.004 Щетка ТП 902-2-379.83 4И.467.17.00.000 СБ Стержень ТП 902-2-379.83 4И.467.17.00.000 Стержень. Спецификация ТП 902-2-379.83 4И.467.18.00.000 Плита анкерная. Спецификация ТП 902-2-379.83 4И.467.18.00.000 СБ Плита анкерная ТП 902-2-379.83 4И.467.18.00.001 Стержень ТП 902-2-379.83 4И.467.18.00.002 Пластина ТП 902-2-379.83 4И.467.19.00.000 СБ Кожух для сменных шестерен ТП 902-2-379.83 4И.467.19.00.000 Кожух для сменных шестерен. Спецификация ТП 902-2-379.83 4И.467.20.00.000 Узел крепления. Спецификация ТП 902-2-379.83 4И.467.19.00.001 Лист ТП 902-2-379.83 4И.467.19.00.002 Кожух ТП 902-2-379.83 4И.467.20.00.000 СБ Узел крепления ТП 902-2-379.83 4И.467.20.00.001 Ребро среднее ТП 902-2-379.83 4И.467.20.00.002 Ребро боковое ТП 902-2-379.83 4И.467.20.00.003 Распорка ТП 902-2-379.83 4И.467.21.00.000 Узел крепления. Спецификация ТП 902-2-379.83 4И.467.21.00.000 СБ Узел крепления ТП 902-2-379.83 4И.467.21.00.001 Ребро ТП 902-2-379.83 4И.467.21.00.002 Ребро ТП 902-2-379.83 4И.467.22.00.000 Лестница. Спецификация ТП 902-2-379.83 4И.467.22.00.001 Стойка ТП 902-2-379.83 4И.467.22.00.000 СБ Лестница ТП 902-2-379.83 4И.467.22.00.002 Угольник ТП 902-2-379.83 4И.467.22.00.003 Лапа ТП 902-2-379.83 4И.467.23.00.000 СБ Расчалка ТП 902-2-379.83 4И.467.23.00.000 Расчалка. Спецификация ТП 902-2-379.83 4И.467.23.00.001 Серьга ТП 902-2-379.83 4И.467.24.00.000 СБ Стойка ТП 902-2-379.83 4И.467.24.00.000 Стойка. Спецификация ТП 902-2-379.83 4И.467.24.00.001 Пластина ТП 902-2-379.83 4И.467.24.00.002 Распорка ТП 902-2-379.83 4И.467.24.00.003 Лапа ТП 902-2-379.83 4И.467.25.00.000 СБ Тяга ТП 902-2-379.83 4И.467.25.00.000 Тяга. Спецификация ТП 902-2-379.83 4И.467.26.00.001 Винт ТП 902-2-379.83 4И.467.25.00.001 Вилка ТП 902-2-379.83 4И.467.25.00.002 Пруток ТП 902-2-379.83 4И.467.26.00.000 СБ Винт опорный ТП 902-2-379.83 4И.467.26.00.000 Винт опорный. Спецификация ТП 902-2-379.83 4И.467.26.00.002 Шайба ТП 902-2-379.83 4И.467.27.00.000 Узел крепления. Спецификация ТП 902-2-379.83 4И.467.27.00.000 СБ Узел крепления ТП 902-2-379.83 4И.467.27.00.001 Ребро ТП 902-2-379.83 4И.467.27.00.002 Ребро ТП 902-2-379.83 4И.467.27.00.003 Пластина ТП 902-2-379.83 4И.467.28.00.000 Штанга ТП 902-2-379.83 4И.467.28.00.001 Винт ТП 902-2-379.83 4И.467.28.00.002 Планка ТП 902-2-379.83 4И.467.29.00.000 Домкрат ТП 902-2-379.83 4И.467.29.00.001 Штифт ТП 902-2-379.83 4И.467.29.00.002 Плита ТП 902-2-379.83 4И.467.29.00.003 Винт ТП 902-2-379.83 4И.467.30.00.000 СБ Кронштейн ТП 902-2-379.83 4И.467.30.00.000 Кронштейн. Спецификация ТП 902-2-379.83 4И.467.30.00.001 Швеллер ТП 902-2-379.83 4И.467.30.00.002 Угольник ТП 902-2-379.83 4И.467.31.00.000 Кронштейн. Спецификация ТП 902-2-379.83 4И.467.31.00.000 СБ Кронштейн ТП 902-2-379.83 4И.467.31.00.001 Анкер ТП 902-2-379.83 4И.467.32.00.000 СБ Плита ТП 902-2-379.83 4И.467.32.00.000 Плита. Спецификация ТП 902-2-379.83 4И.467.00.00.001 Кольцо ТП 902-2-379.83 4И.467.00.00.002 Прижим ТП 902-2-379.83 4И.467.00.00.003 Гайка ТП 902-2-379.83 4И.467.00.00.004 Тяга ТП 902-2-379.83 4И.467.00.00.005 Муфта ТП 902-2-379.83 4И.467.00.00.006 Плита ТП 902-2-379.83 4И.467.00.00.007 Планка ТП 902-2-379.83 4И.467.00.00.008 Ось ТП 902-2-379.83 4И.467.00.00.009 Рычаг ТП 902-2-379.83 4И.467.00.00.011 Валик ТП 902-2-379.83 4И.467.00.00.012 Накладка ТП 902-2-379.83 4И.467.00.00.013 Наконечник ТП 902-2-379.83 4И.467.00.00.014 Стойка ТП 902-2-379.83 4И.467.00.00.015 Шайба сферическая ТП 902-2-379.83 4И.467.00.00.016 Шпилька анкерная ТП 902-2-379.83 4И.467.00.00.017 Стойка ТП 902-2-379.83 4И.467.00.00.018 Шайба сферическая верхняя ТП 902-2-379.83 4И.467.00.00.019 Шайба сферическая нижняя |
| Разработан: | МосводоканалНИИпроект |
| Утверждён: | 10.08.1983 МосводоканалНИИпроект (193) |

































































