Скачать Типовой проект 902-2-379.83 Альбом VII. Нестандартизированное оборудование. Затворы щитовые, установка сигнализатора уровня осадка и фасонные частиДата актуализации: 01.01.2021
|
| Обозначение: | Типовой проект 902-2-379.83 |
| Обозначение англ: | 902-2-379.83 |
| Статус: | не действует |
| Название рус.: | Альбом VII. Нестандартизированное оборудование. Затворы щитовые, установка сигнализатора уровня осадка и фасонные части |
| Дата добавления в базу: | 01.09.2013 |
| Дата актуализации: | 01.01.2021 |
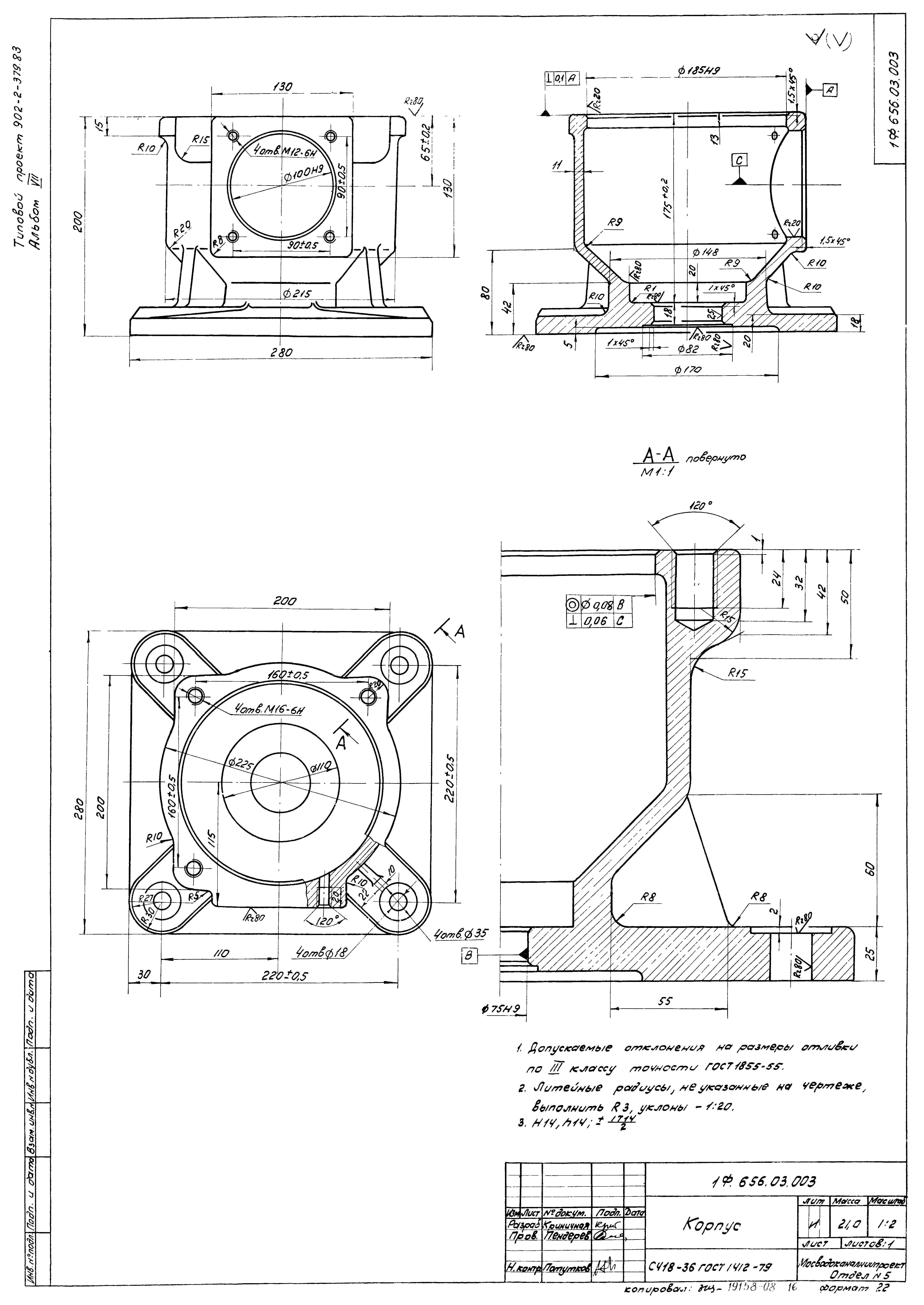
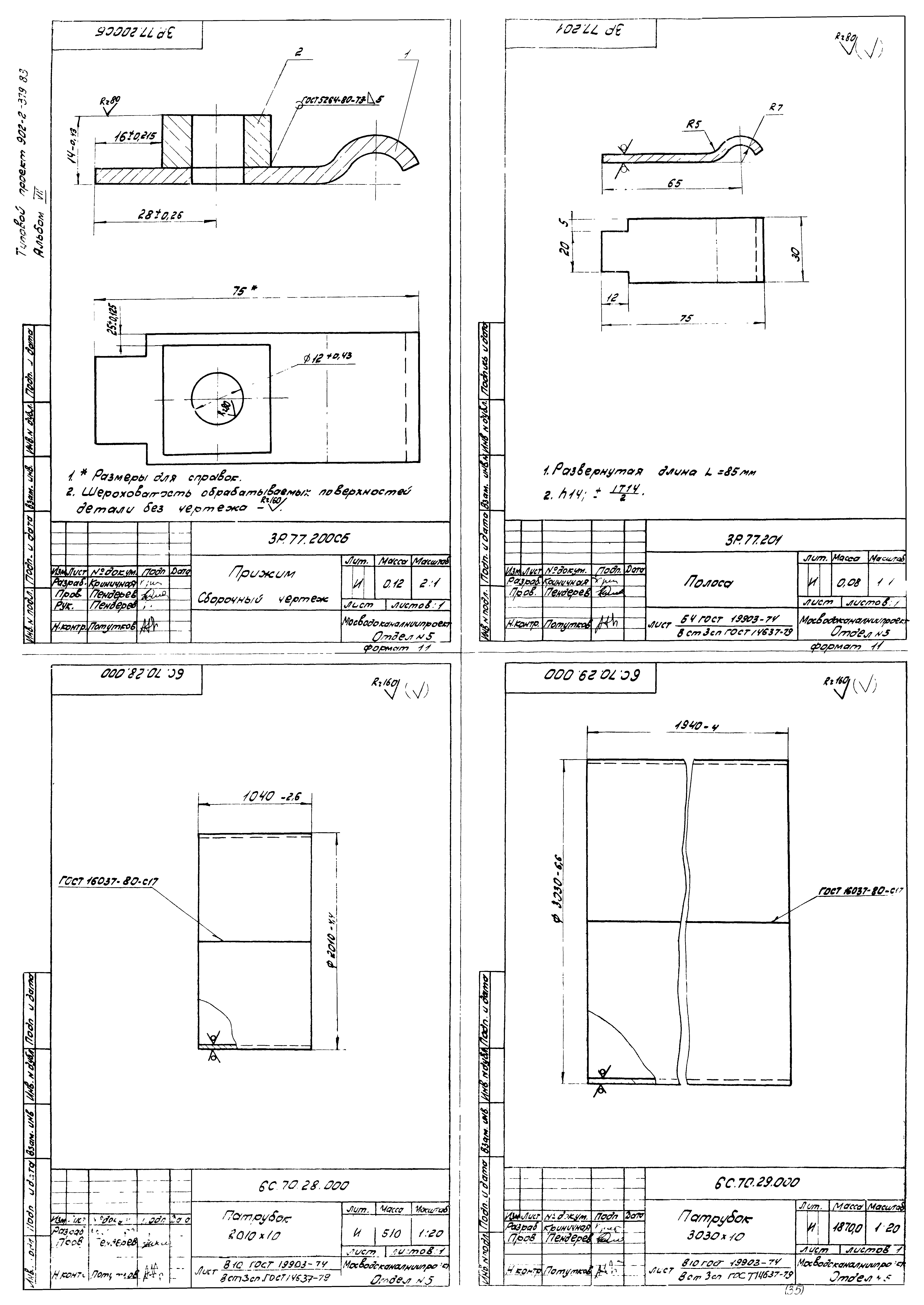
| Оглавление: | ТП 902-2-379.83 Титульный лист ТП 902-2-379.83 Содержание альбома ТП 902-2-379.83 1Ф.656.00.000 ВП Затвор плоский поверхностный 2200х1000. Ведомость покупных изделий ТП 902-2-379.83 1Ф.656.00.000 Затвор плоский поверхностный 2200х1000. Спецификация. Лист 1-2 ТП 902-2-379.83 1Ф.656.00.000 СБ Затвор плоский поверхностный 2200х1000. Лист 1 ТП 902-2-379.83 1Ф.656.00.000 СБ Затвор плоский поверхностный 2200х1000. Лист 2 ТП 902-2-379.83 1Ф.656.01.000 СБ Щит ТП 902-2-379.83 1Ф.656.01.000 Щит. Спецификация ТП 902-2-379.83 1Ф.656.01.100 Каркас. Спецификация ТП 902-2-379.83 1Ф.656.01.100 СБ Каркас ТП 902-2-379.83 1Ф.656.01.101 Ригель ТП 902-2-379.83 1Ф.656.01.102 Ребро ТП 902-2-379.83 1Ф.656.01.103 Ушко ТП 902-2-379.83 1Ф.656.01.104 Упор ТП 902-2-379.83 1Ф.656.01.001 Уплотнение ТП 902-2-379.83 1Ф.656.01.002 Накладка ТП 902-2-379.83 1Ф.656.02.000 Рама затвора. Спецификация. Лист 1-2 ТП 902-2-379.83 1Ф.656.02.000 СБ Рама затвора ТП 902-2-379.83 1Ф.656.02.100 СБ Рама верхняя ТП 902-2-379.83 1Ф.656.02.100 Рама верхняя. Спецификация ТП 902-2-379.83 1Ф.656.02.101 Ребро ТП 902-2-379.83 1Ф.656.02.001 Кронштейн ТП 902-2-379.83 1Ф.656.02.002 Кронштейн ТП 902-2-379.83 1Ф.656.02.003 Направляющая ТП 902-2-379.83 1Ф.656.02.004 Полоса анкерная ТП 902-2-379.83 1Ф.656.02.005 Проставка ТП 902-2-379.83 1Ф.656.02.006 Поперечина ТП 902-2-379.83 1Ф.656.02.007 Уплотнение ТП 902-2-379.83 1Ф.656.03.001 Втулка ТП 902-2-379.83 1Ф.656.03.000 СБ Головка штанговая ТП 902-2-379.83 1Ф.656.03.000 Головка штанговая. Спецификация. Лист 1-2 ТП 902-2-379.83 1Ф.656.03.002 Крышка ТП 902-2-379.83 1Ф.656.03.003 Корпус ТП 902-2-379.83 1Ф.656.03.004 Кронштейн ТП 902-2-379.83 1Ф.656.03.005 Вал ТП 902-2-379.83 1Ф.656.03.006 Шестерня коническая z=14, m=6 ТП 902-2-379.83 1Ф.656.03.007 Кольцо сферическое нижнее ТП 902-2-379.83 1Ф.656.03.008 Гайка ТП 902-2-379.83 1Ф.656.03.009 Колесо коническая z=28, m=6 ТП 902-2-379.83 1Ф.656.03.011 Кольцо сферическое верхнее ТП 902-2-379.83 1Ф.656.03.012 Планка стопорная ТП 902-2-379.83 1Ф.656.04.000 Маховик. Спецификация ТП 902-2-379.83 1Ф.656.04.000 СБ Маховик ТП 902-2-379.83 1Ф.656.04.001 Маховик ТП 902-2-379.83 1Ф.656.04.002 Ручка ТП 902-2-379.83 1Ф.656.05.000 Колпак. Спецификация ТП 902-2-379.83 1Ф.656.05.000 СБ Колпак ТП 902-2-379.83 1Ф.656.05.001 Фланец ТП 902-2-379.83 1Ф.656.00.001 Штанга винтовая ТП 902-2-379.83 1Ф.656.00.002 Ограждение ТП 902-2-379.83 1Ф.656.00.003 Прокладка ТП 902-2-379.83 1Ф.657.00.000 СБ Затвор донного выпуска ТП 902-2-379.83 1Ф.656.00.004 Палец ТП 902-2-379.83 1Ф.657.00.000 Затвор донного выпуска. Спецификация ТП 902-2-379.83 1Ф.657.01.000 СБ Рама затвора ТП 902-2-379.83 1Ф.657.01.000 Рама затвора. Спецификация ТП 902-2-379.83 1Ф.657.01.100 Обрамление. Спецификация ТП 902-2-379.83 1Ф.657.01.100 СБ Обрамление ТП 902-2-379.83 1Ф.657.01.101 Пластина ТП 902-2-379.83 1Ф.657.01.001 Направляющая ТП 902-2-379.83 1Ф.657.01.002 Проставка ТП 902-2-379.83 1Ф.657.02.000 Щиток. Спецификация ТП 902-2-379.83 1Ф.657.02.000 СБ Щиток ТП 902-2-379.83 1Ф.657.02.001 Ручка ТП 902-2-379.83 1Ф.657.01.002 Клин ТП 902-2-379.83 1Ф.657.00.001 Скоба ТП 902-2-379.83 9А.470.00.000 СБ Пробоотборник ТП 902-2-379.83 9А.470.00.000 Пробоотборник. Спецификация ТП 902-2-379.83 9А.470.01.000 Корпус. Спецификация. Лист 1-2 ТП 902-2-379.83 9А.470.01.001 Лист ТП 902-2-379.83 9А.470.01.000 СБ Корпус ТП 902-2-379.83 9А.470.01.002 Патрубок ТП 902-2-379.83 9А.470.01.003 Лист ТП 902-2-379.83 9А.470.01.004 Лист ТП 902-2-379.83 9А.470.02.000 Крышка откидная. Спецификация ТП 902-2-379.83 9А.470.02.000 СБ Крышка откидная ТП 902-2-379.83 9А.470.02.100 Петля. Спецификация ТП 902-2-379.83 9А.470.02.100 СБ Петля ТП 902-2-379.83 9А.470.02.101 Петля ТП 902-2-379.83 9А.470.02.102 Петля ТП 902-2-379.83 3Р.77.000 СБ Установка сигнализатора уровня осадка с фотосопротивлением ТП 902-2-379.83 9А.470.01.001 Ручка ТП 902-2-379.83 3Р.77.000 Установка сигнализатора уровня осадка с фотосопротивлением. Спецификация ТП 902-2-379.83 3Р.77.100 Скоба закладная. Спецификация ТП 902-2-379.83 3Р.77.100 СБ Скоба закладная ТП 902-2-379.83 3Р.77.101 Упор ТП 902-2-379.83 3Р.77.102 Шпилька ТП 902-2-379.83 3Р.77.103 Скоба ТП 902-2-379.83 3Р.77.200 Прижим. Спецификация ТП 902-2-379.83 3Р.77.200 СБ Прижим ТП 902-2-379.83 6С.70.28.000 Патрубок 2010х10 ТП 902-2-379.83 6С.70.29.000 Патрубок 3030х10 ТП 902-2-379.83 3Р.77.201 Полоса |
| Разработан: | МосводоканалНИИпроект |
| Утверждён: | 10.08.1983 МосводоканалНИИпроект (193) |



































