Скачать Типовой проект 902-2-363.83 Альбом II. Архитектурно-строительная частьДата актуализации: 01.01.2021
|
| Обозначение: | Типовой проект 902-2-363.83 |
| Обозначение англ: | 902-2-363.83 |
| Статус: | не действует |
| Название рус.: | Альбом II. Архитектурно-строительная часть |
| Дата добавления в базу: | 01.09.2013 |
| Дата актуализации: | 01.01.2021 |
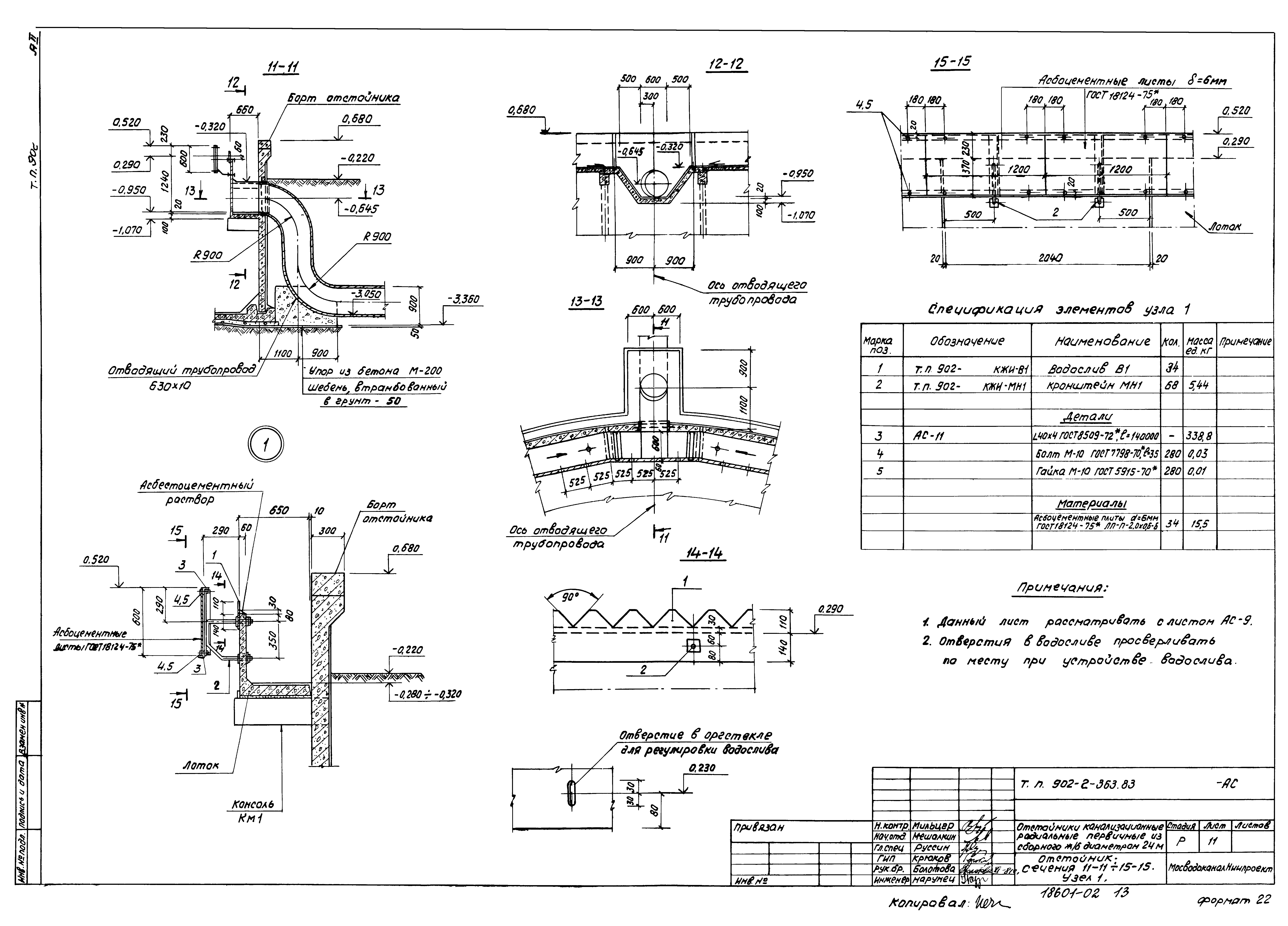
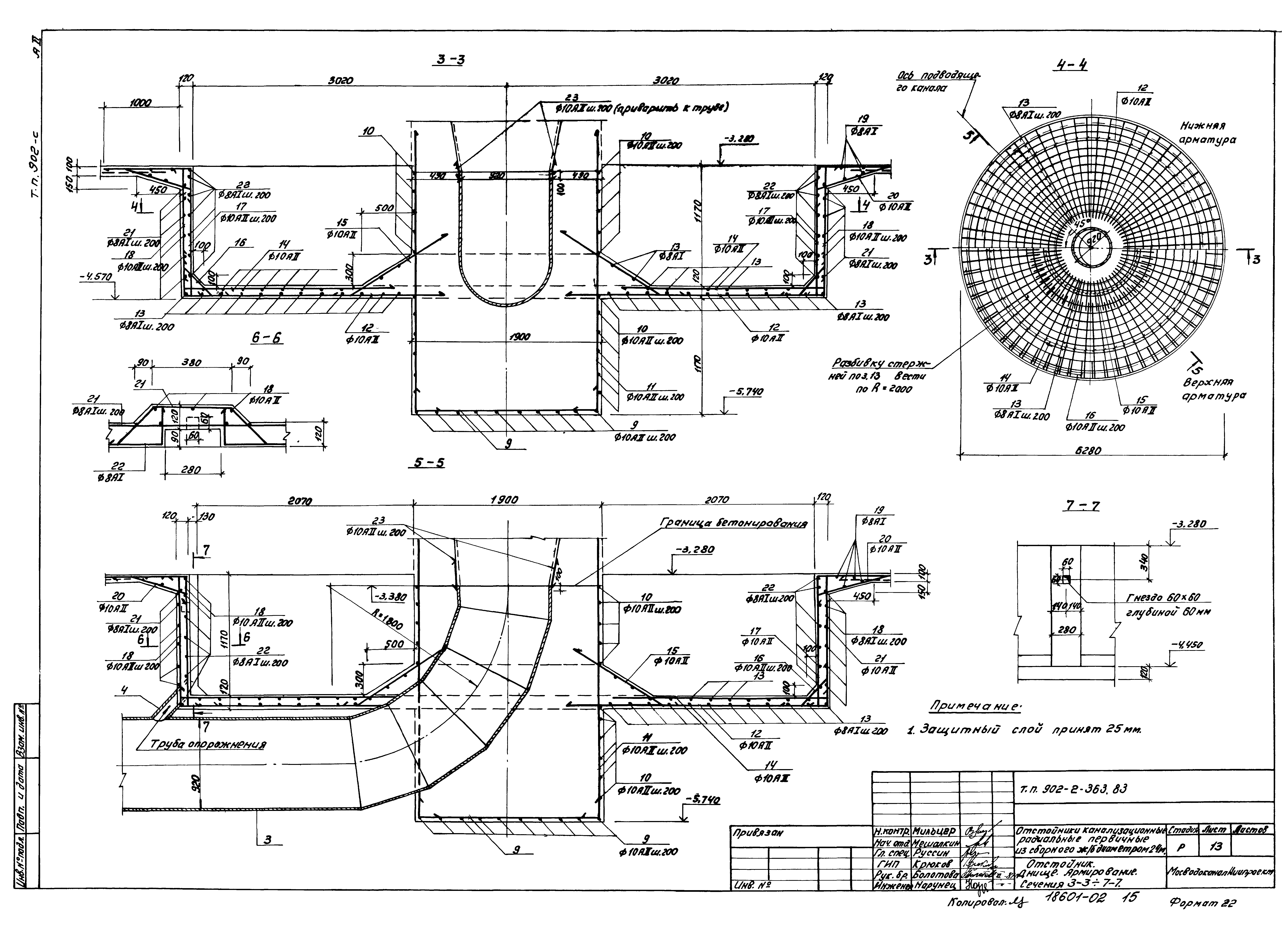
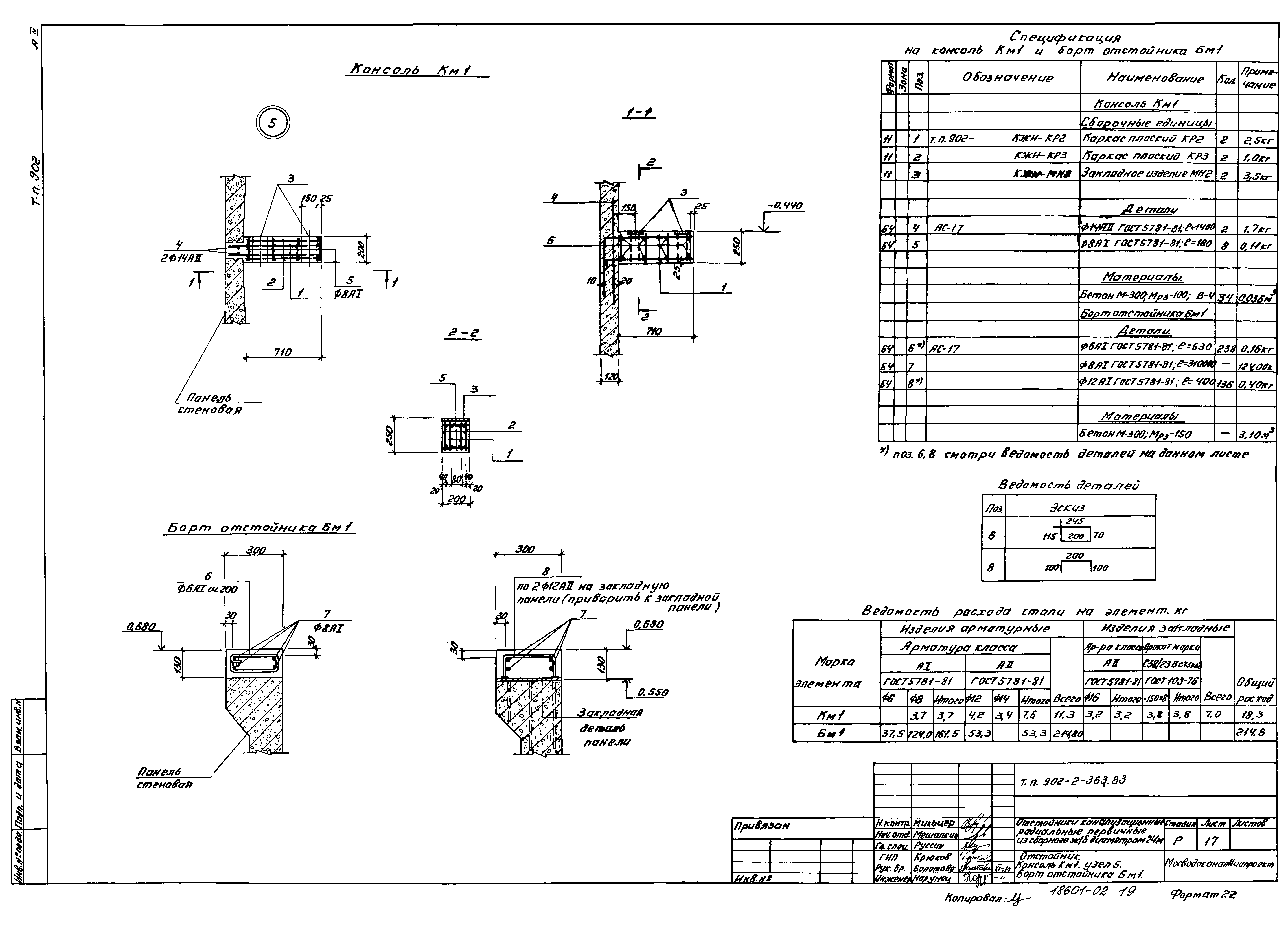
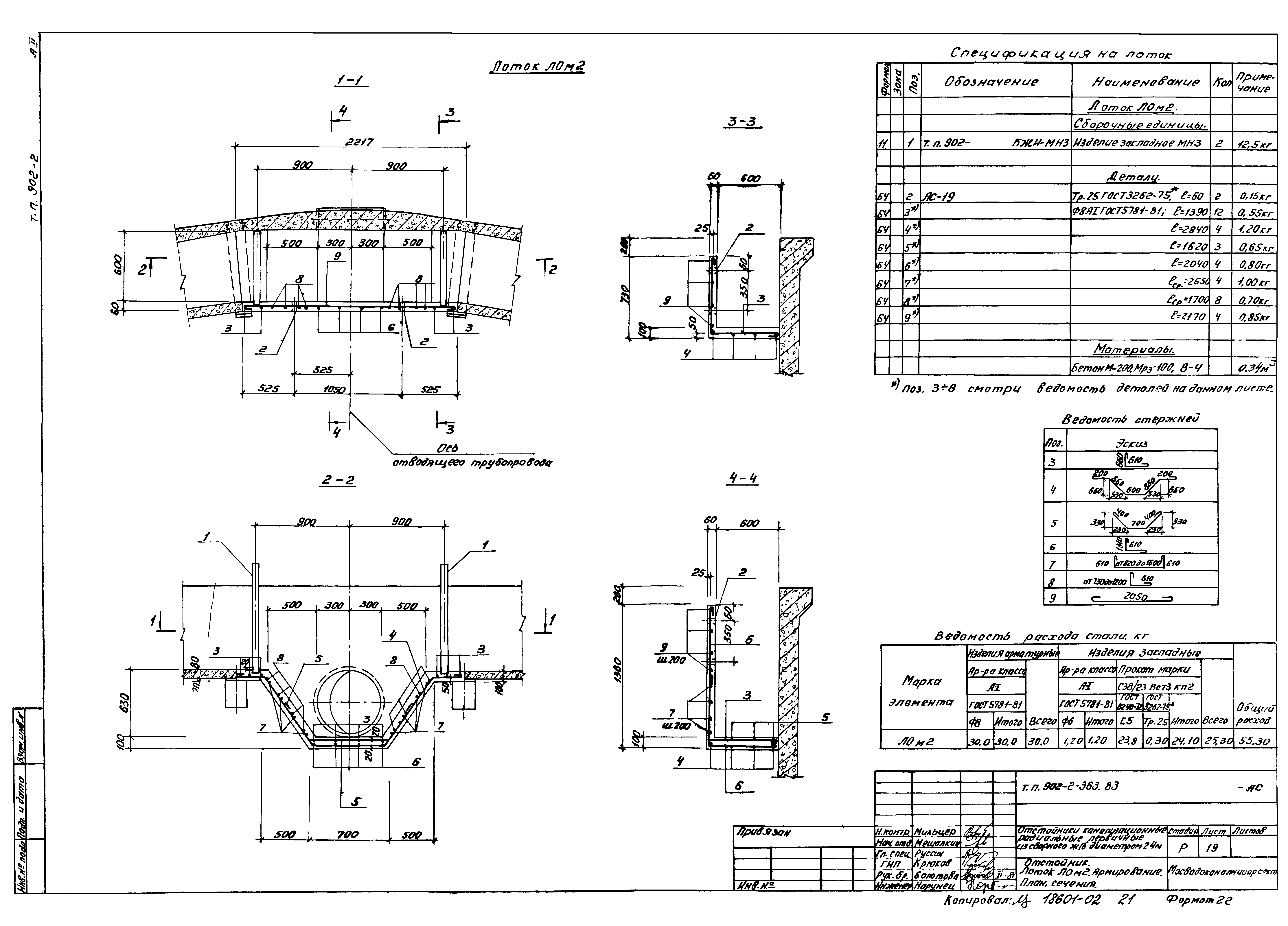
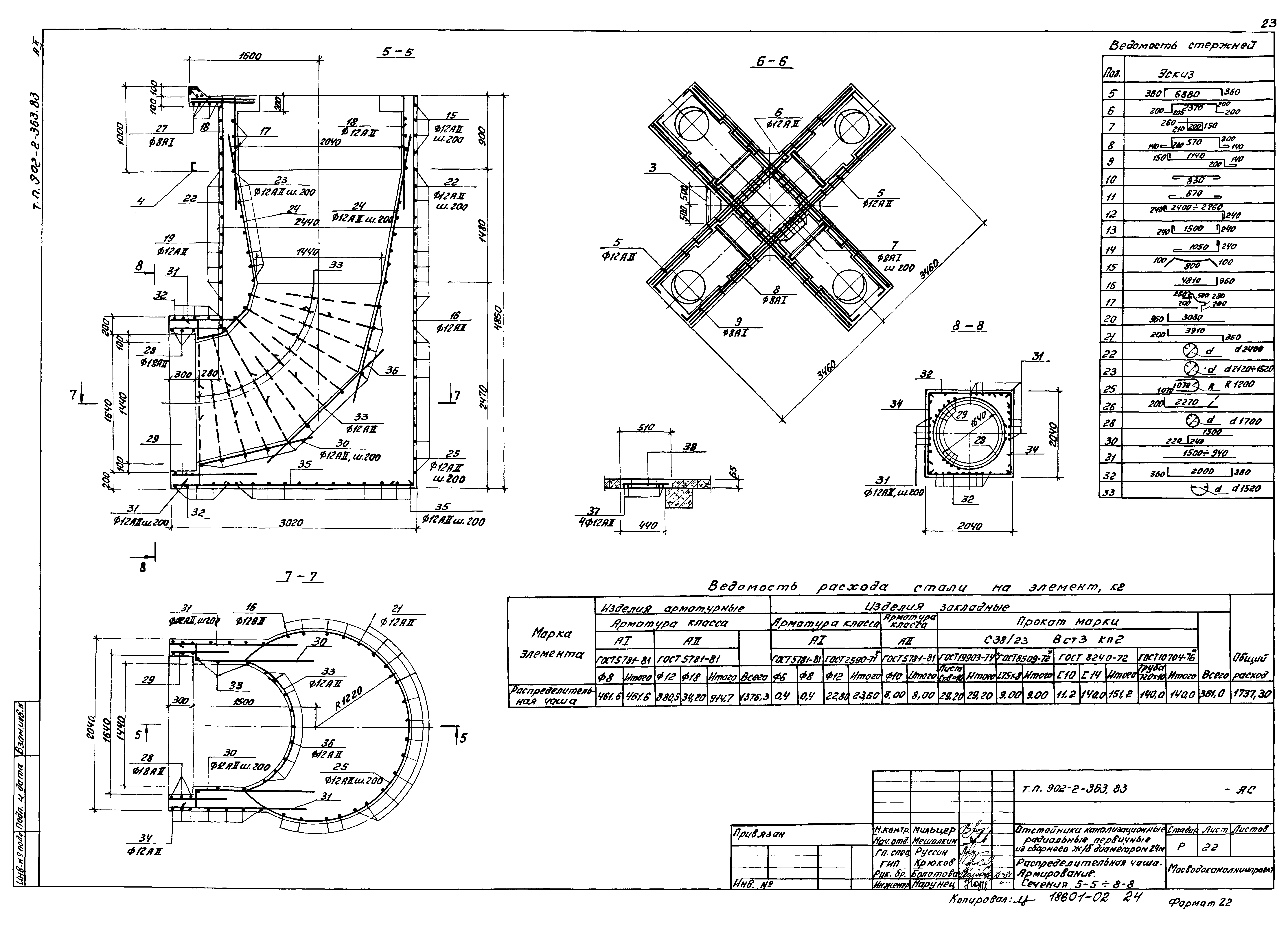
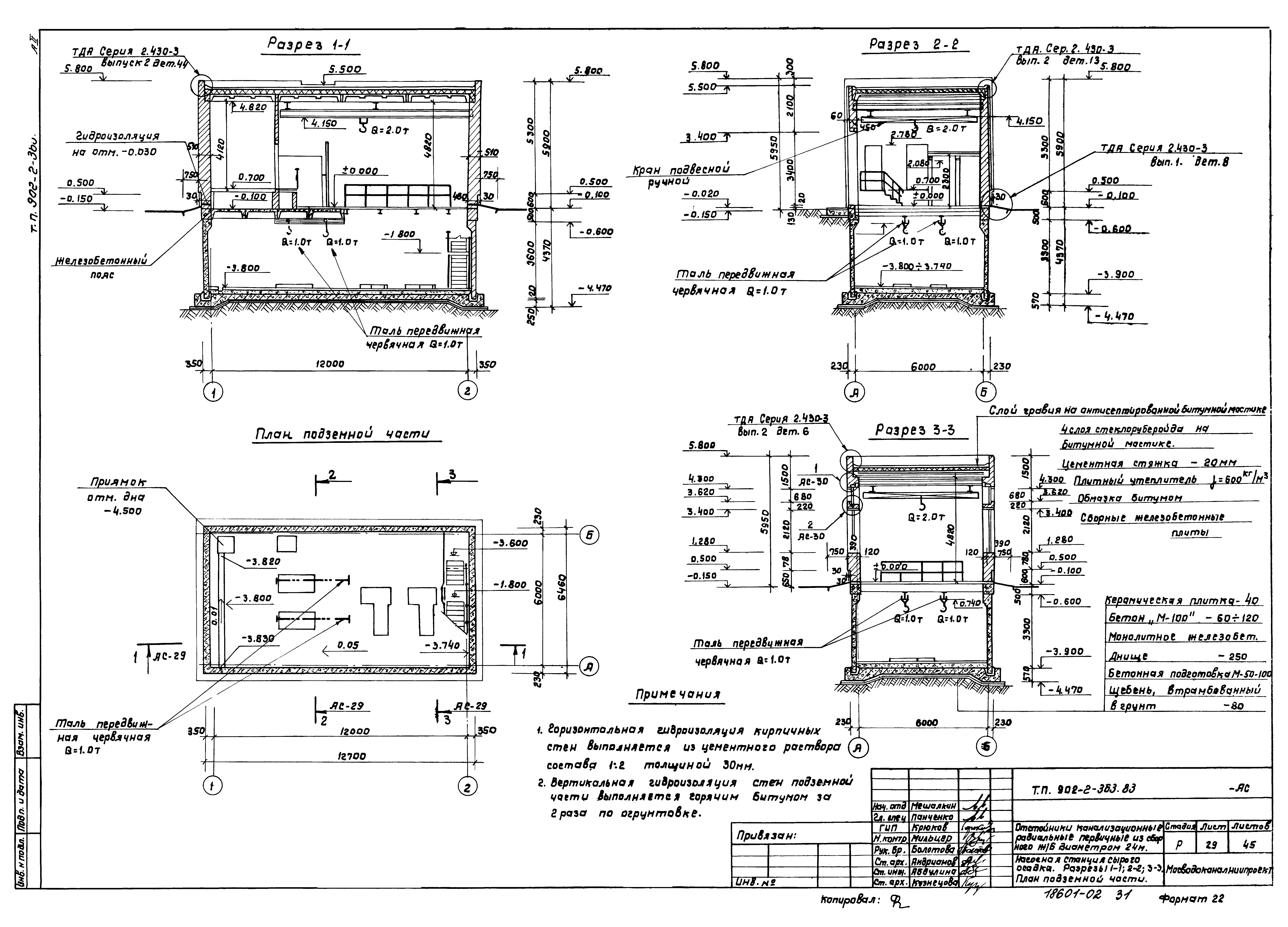
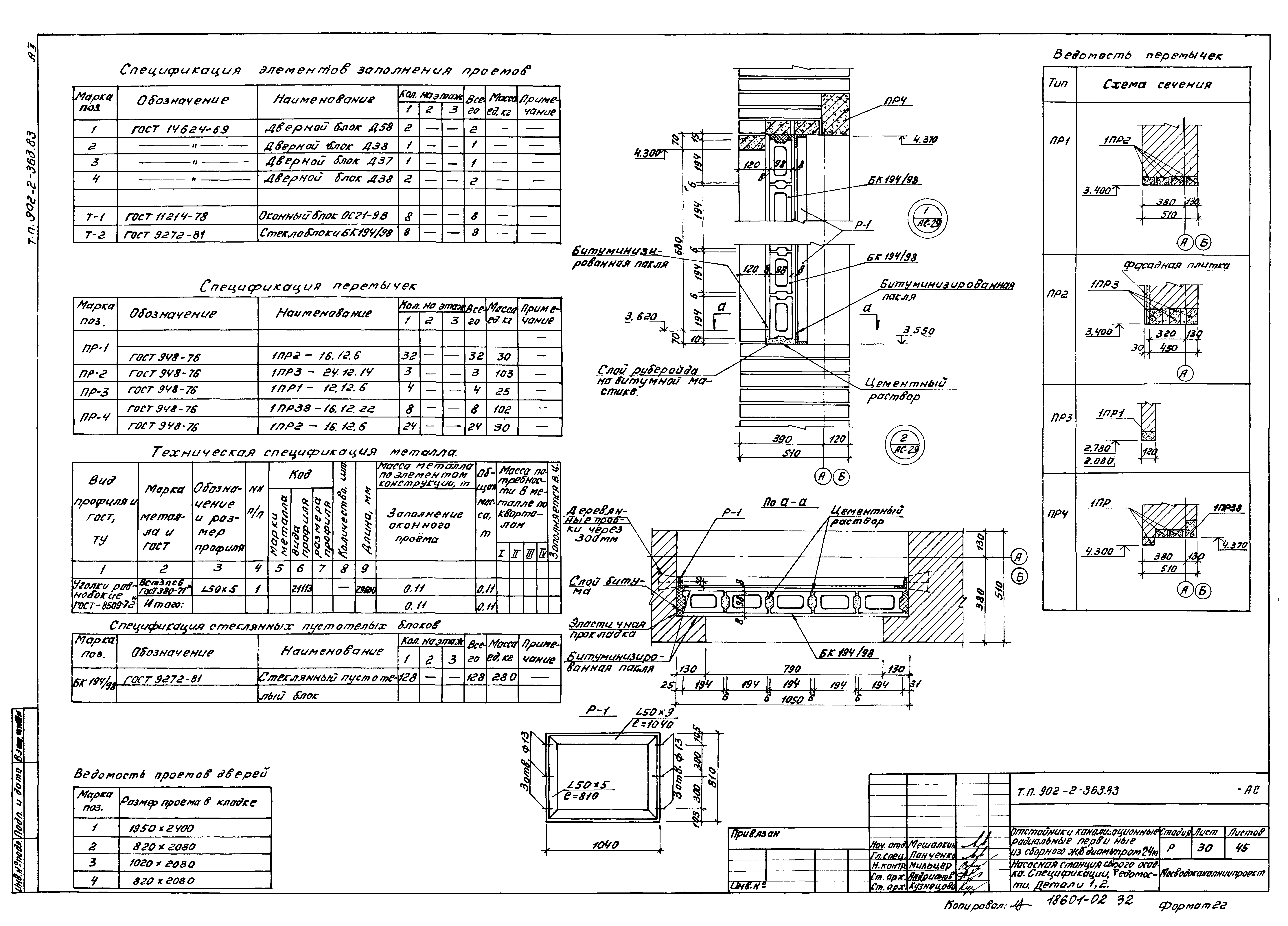
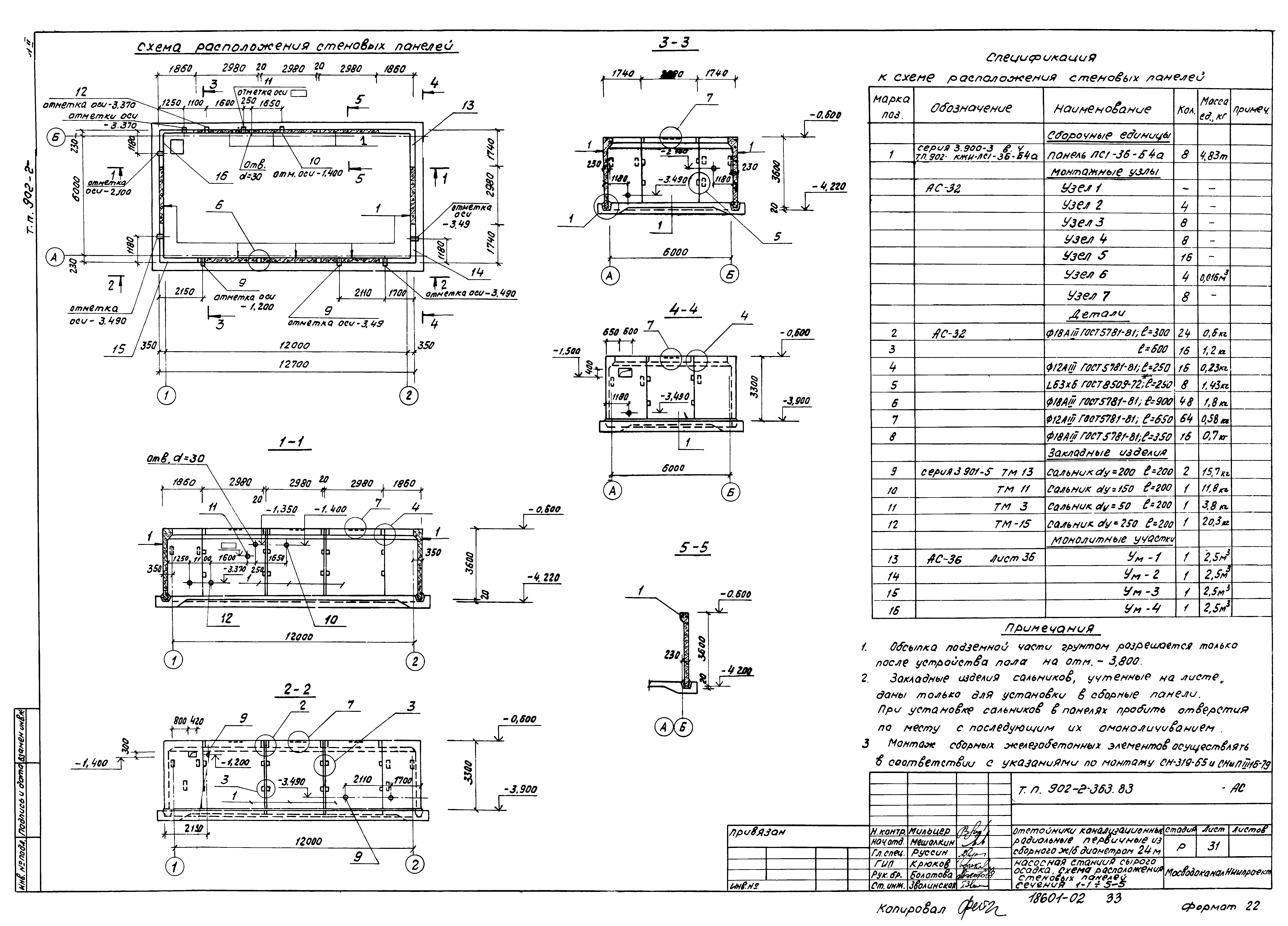
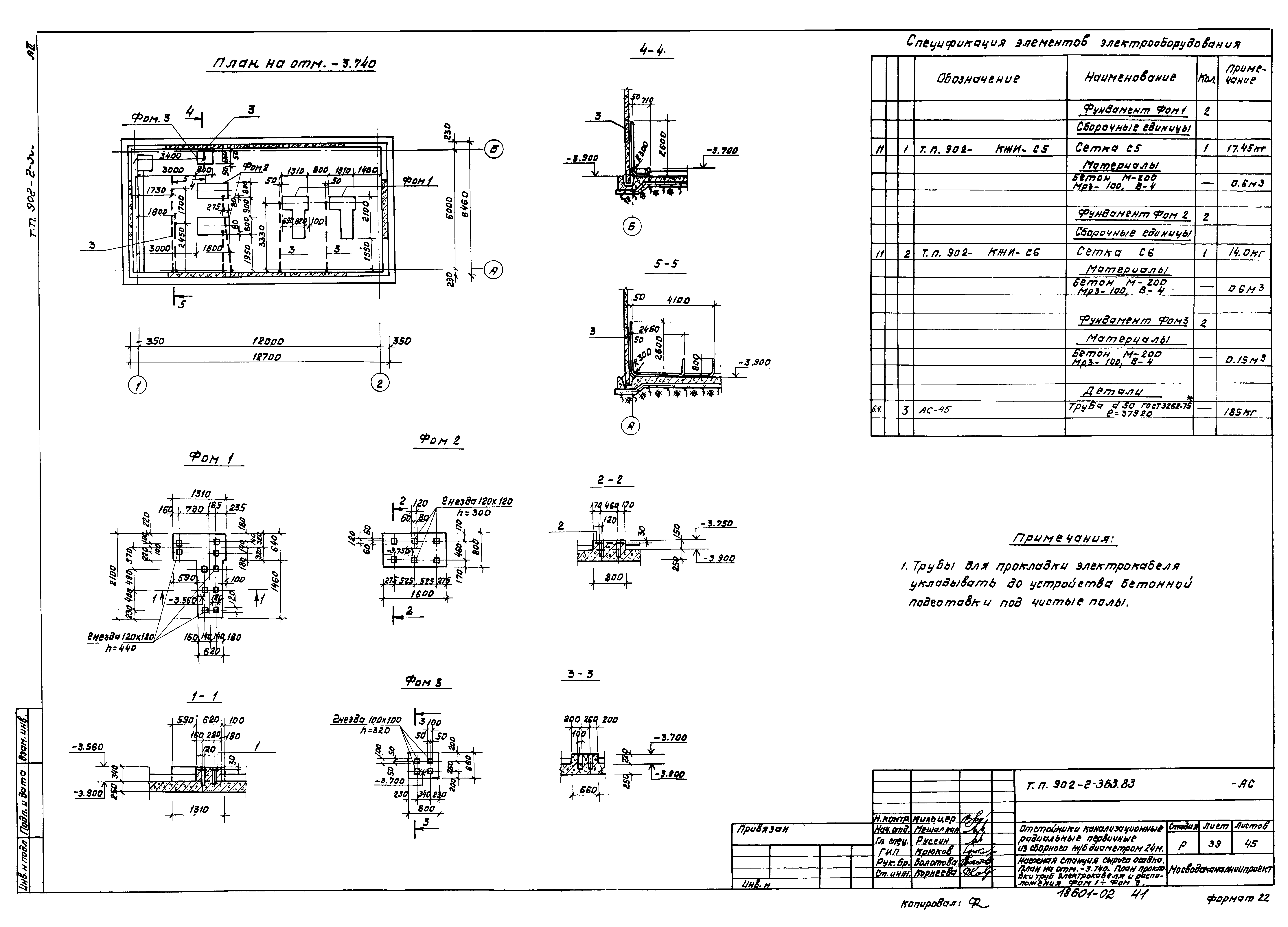
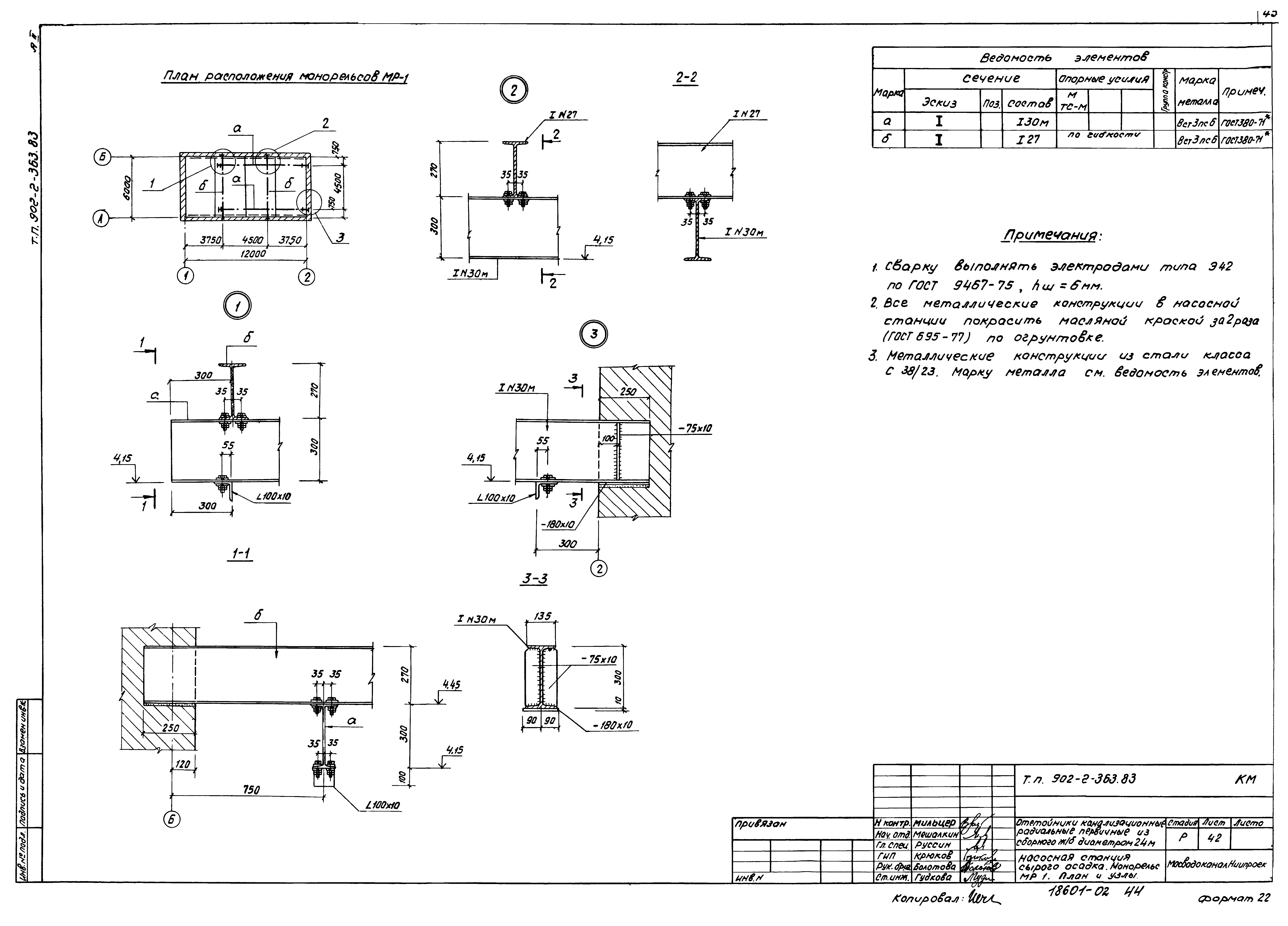
| Оглавление: | ТП 902-2-363-83-1 Общие данные (начало) ТП 902-2-363-83-2-6 Общие данные (продолжение) ТП 902-2-363-83-7 Общие данные (окончание) ТП 902-2-363-83-8 План группы отстойников и коммуникаций ТП 902-2-363-83-9 Отстойник. План 1-1, сечения 2-2,3-3,4-4 ТП 902-2-363-83-10 Отстойник. Сечения 5-5÷10-10 ТП 902-2-363-83-11 Отстойник. Сечения 11-11÷15-15. Узел 1 ТП 902-2-363-83-12 Отстойник. Днище. Армирование. Планы. Сечения 1-1,2-2 ТП 902-2-363-83-13 Отстойник. Днище. Армирование. Сечения 3-3÷7-7 ТП 902-2-363-83-14 Отстойник. Днище. Армирование. Сечения 8-8÷11-11 ТП 902-2-363-83-15 Отстойник. Схема расположения стеновых панелей. Узлы 1,2. Сечение 1-1 ТП 902-2-363-83-16 Отстойник. Узлы 3,4. Деталь навивки кольцевой арматуры ТП 902-2-363-83-17 Отстойник. Консоль КМ1. Узел 5. Борт БМ1 ТП 902-2-363-83-18 Отстойник. Схема расположения лотков. Узлы 6,7. Сечения ТП 902-2-363-83-19 Отстойник. Лоток ЛОМ2. Армирование. План. Сечения ТП 902-2-363-83-20 Распределительная чаша. Планы 1-1,2-2,5-5. Сечения 3-3,4-4,6-6 ТП 902-2-363-83-21 Распределительная чаша. Армирование. Планы 1-1,4-4. Сечения 2-2,3-3 ТП 902-2-363-83-22 Распределительная чаша. Армирование. Сечения 5-5÷8-8 ТП 902-2-363-83-23 Жиросборник Ж-1. План 2-2. Сечение 1-1. План днища ТП 902-2-363-83-24 Камеры ОП1,ОП2. Планы, сечения ТП 902-2-363-83-25 Камера ОП1. Армирование. План 1-1. План перекрытия. Сечения 2-2÷4-4 ТП 902-2-363-83-26 Камера ОП2. Армирование. План 1-1. План перекрытия. Сечения 2-2÷4-4 ТП 902-2-363-83-27 Насосная станция сырого осадка. Общие данные ТП 902-2-363-83-28 Насосная станция сырого осадка. Фасады 1-2,2-1,А-Б. План надземной части. Деталь А ТП 902-2-363-83-29 Насосная станция сырого осадка. Разрезы 1-1,2-2,3-3. План подземной части ТП 902-2-363-83-30 Насосная станция сырого осадка. Спецификации, ведомости. Детали 1,2 ТП 902-2-363-83-31 Насосная станция сырого осадка. Схема расположения стеновых панелей. Сечения 1-1÷5-5 ТП 902-2-363-83-32 Насосная станция сырого осадка. Схема расположения стеновых панелей. Узлы 1-7 ТП 902-2-363-83-33 Насосная станция сырого осадка. Днище. Опалубочный чертеж. План и сечения ТП 902-2-363-83-34 Насосная станция сырого осадка. Днище. Армирование. Планы. Сечение 1-1. Узлы ТП 902-2-363-83-35 Насосная станция сырого осадка. Днище. Армирование. Сечения 2-2÷4-4. Узел 1 ТП 902-2-363-83-36 Насосная станция сырого осадка. Монолитные участки УМ-1÷УМ-4. Армирование. План. Сечения ТП 902-2-363-83-37 Насосная станция сырого осадка. Обвязочный пояс ОПМ1. Армирование. План. Сечения 1-1÷5-5 ТП 902-2-363-83-38 Насосная станция сырого осадка. План покрытия и планы перекрытия на отм. 0.000,2.250 ТП 902-2-363-83-39 Насосная станция сырого осадка. План на отм. -3.740. План прокладки труб электрокабеля и расположения ФОМ1-ФОМ3 ТП 902-2-363-83-40 Насосная станция сырого осадка. Помещение щитов. Планы 1-1,2-2. Сечения 3-3÷5-5 ТП 902-2-363-83-41 Насосная станция сырого осадка. Общие данные ТП 902-2-363-83-42 Насосная станция сырого осадка. Монорельс МР1. План и узлы ТП 902-2-363-83-43 Насосная станция сырого осадка. Монорельс МР2. План, сечение и узлы ТП 902-2-363-83-44 Насосная станция сырого осадка. Площадки и лестницы. План, сечения, узлы ТП 902-2-363-83-45 Насосная станция сырого осадка. Подвеска и крепление технологических трубопроводов. План, сечения, узлы |
| Разработан: | МосводоканалНИИпроект |
| Утверждён: | 17.11.1982 МосводоканалНИИпроект (192) |















































