Скачать Типовой проект 902-2-363.83 Альбом IV. Электротехническая частьДата актуализации: 01.01.2021
|
| Обозначение: | Типовой проект 902-2-363.83 |
| Обозначение англ: | 902-2-363.83 |
| Статус: | не действует |
| Название рус.: | Альбом IV. Электротехническая часть |
| Дата добавления в базу: | 01.09.2013 |
| Дата актуализации: | 01.01.2021 |
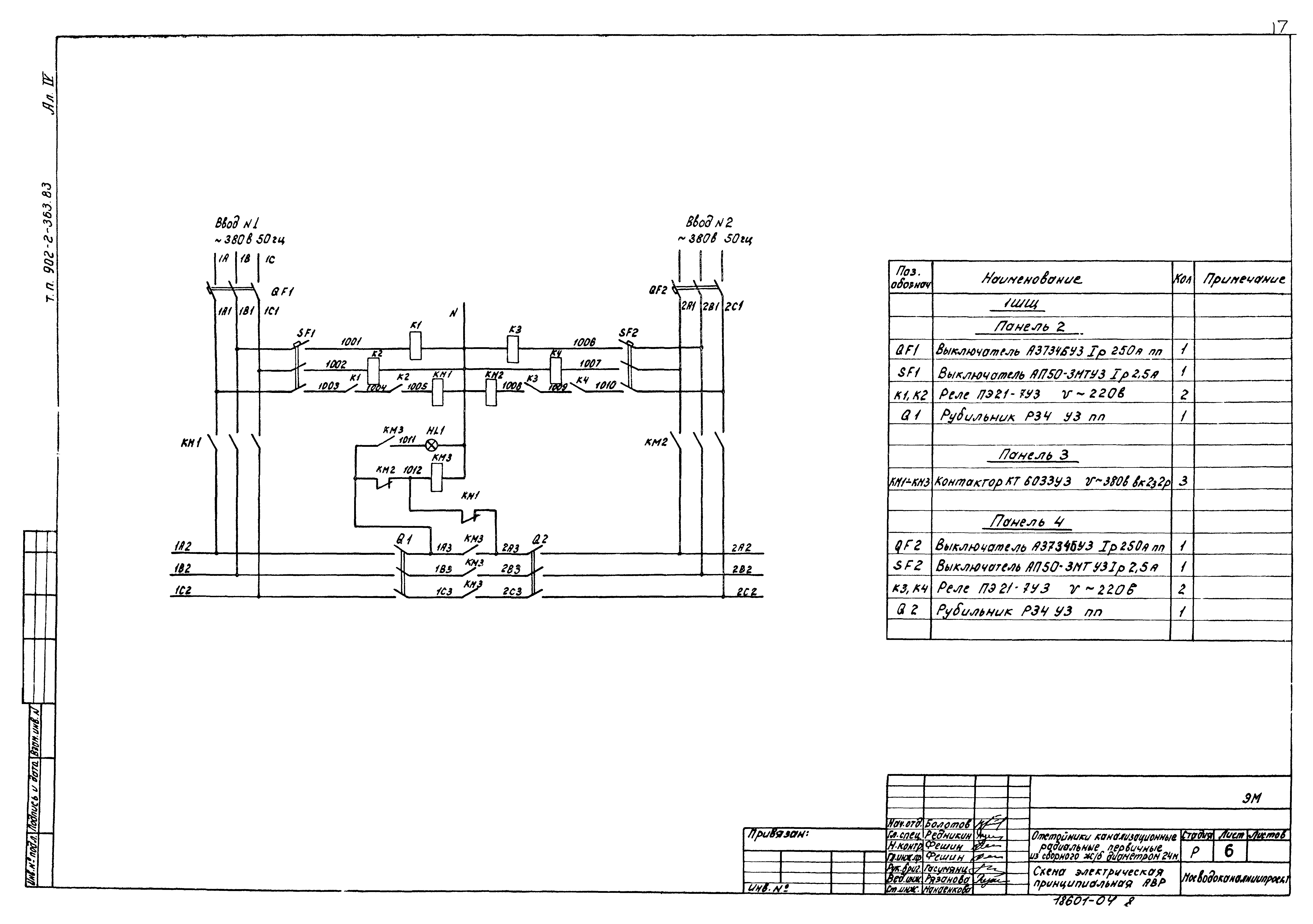
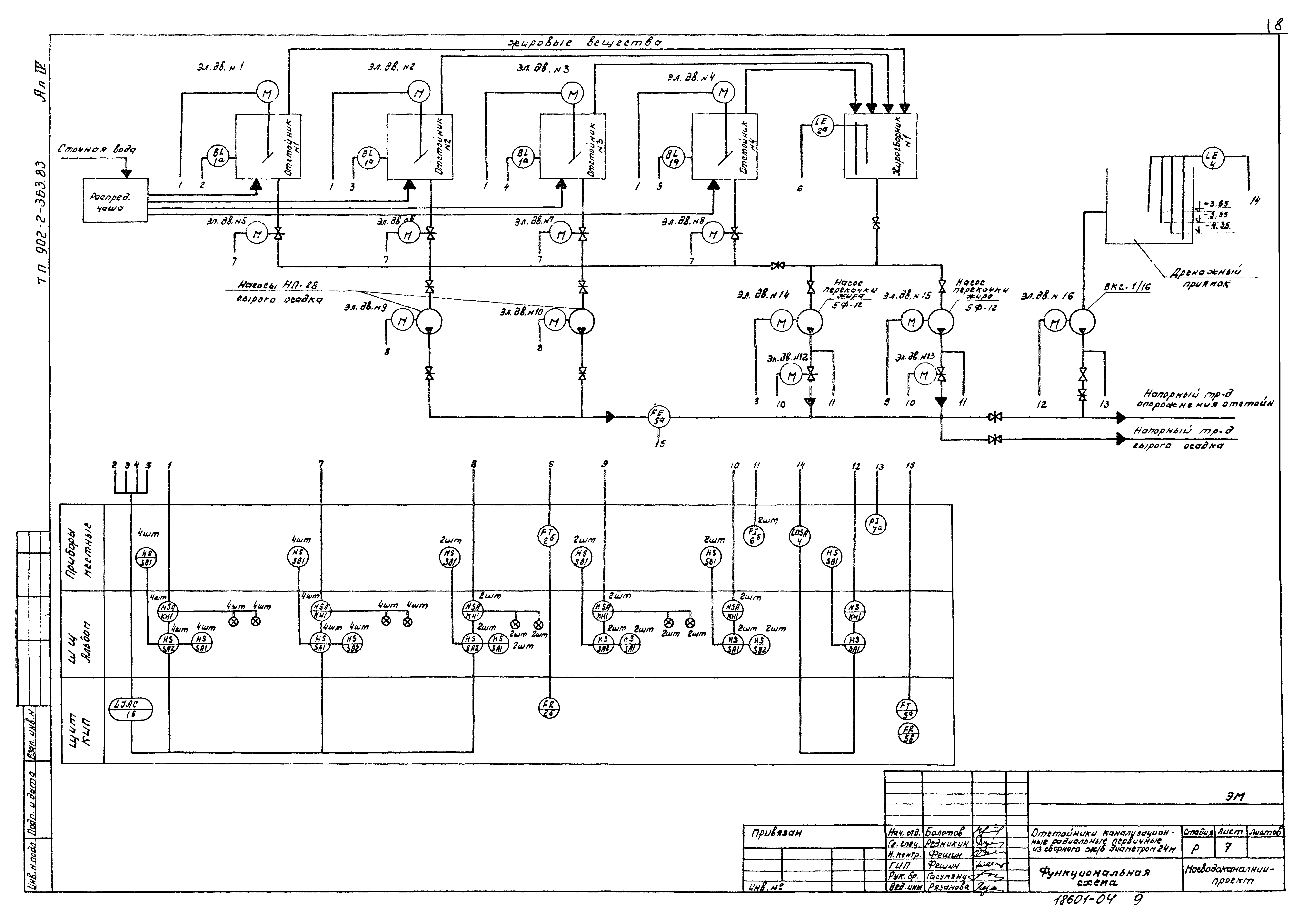
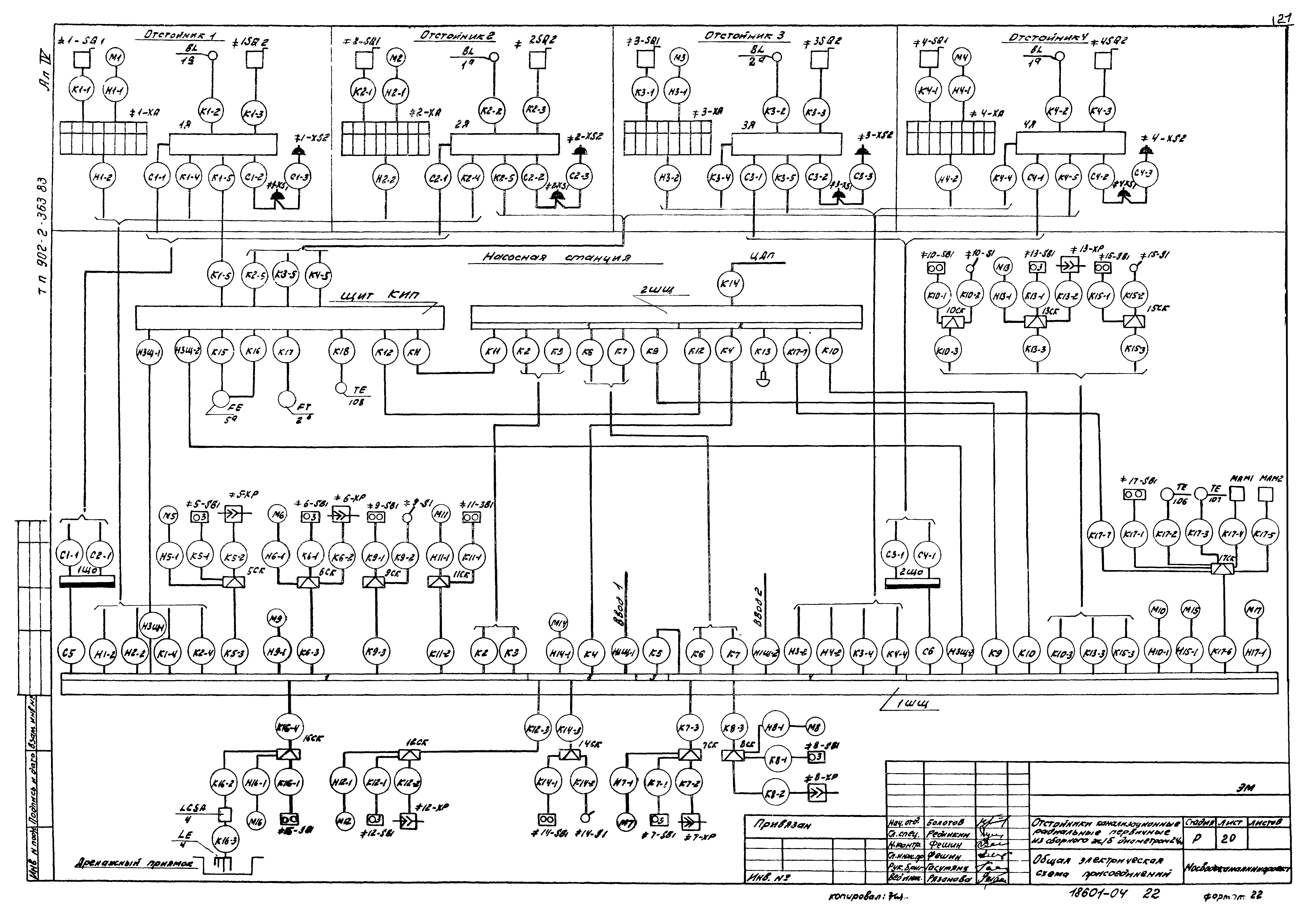
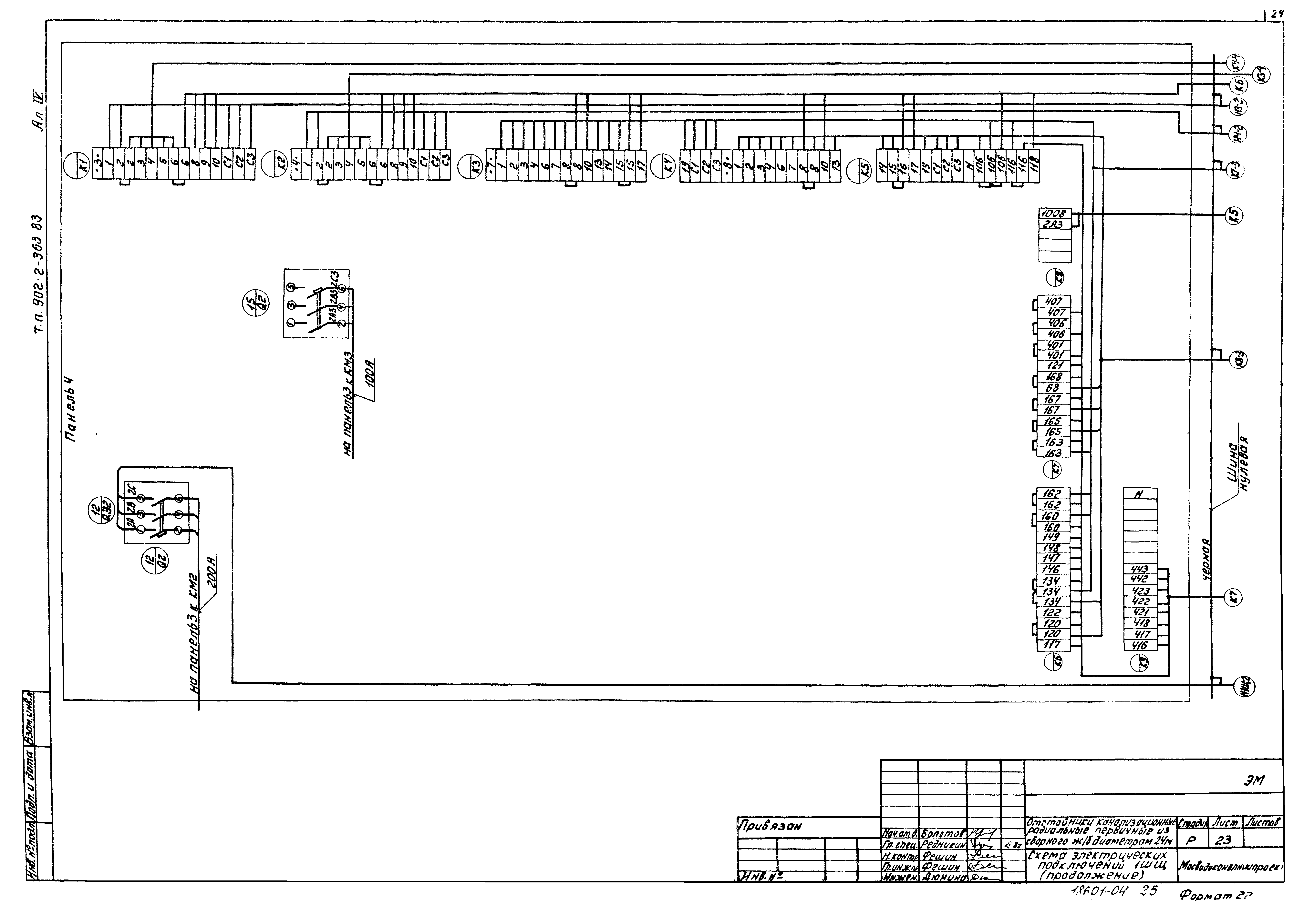
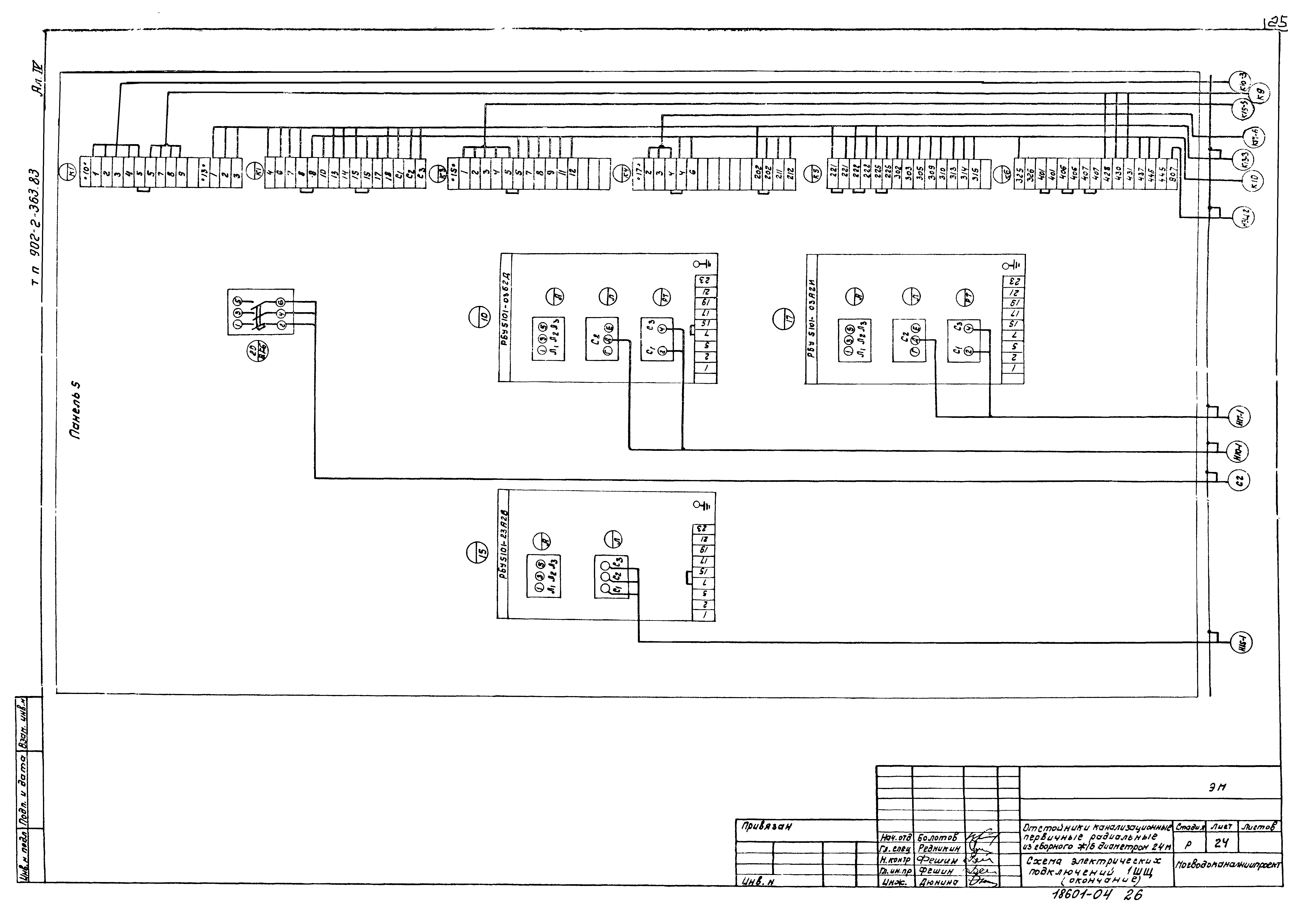
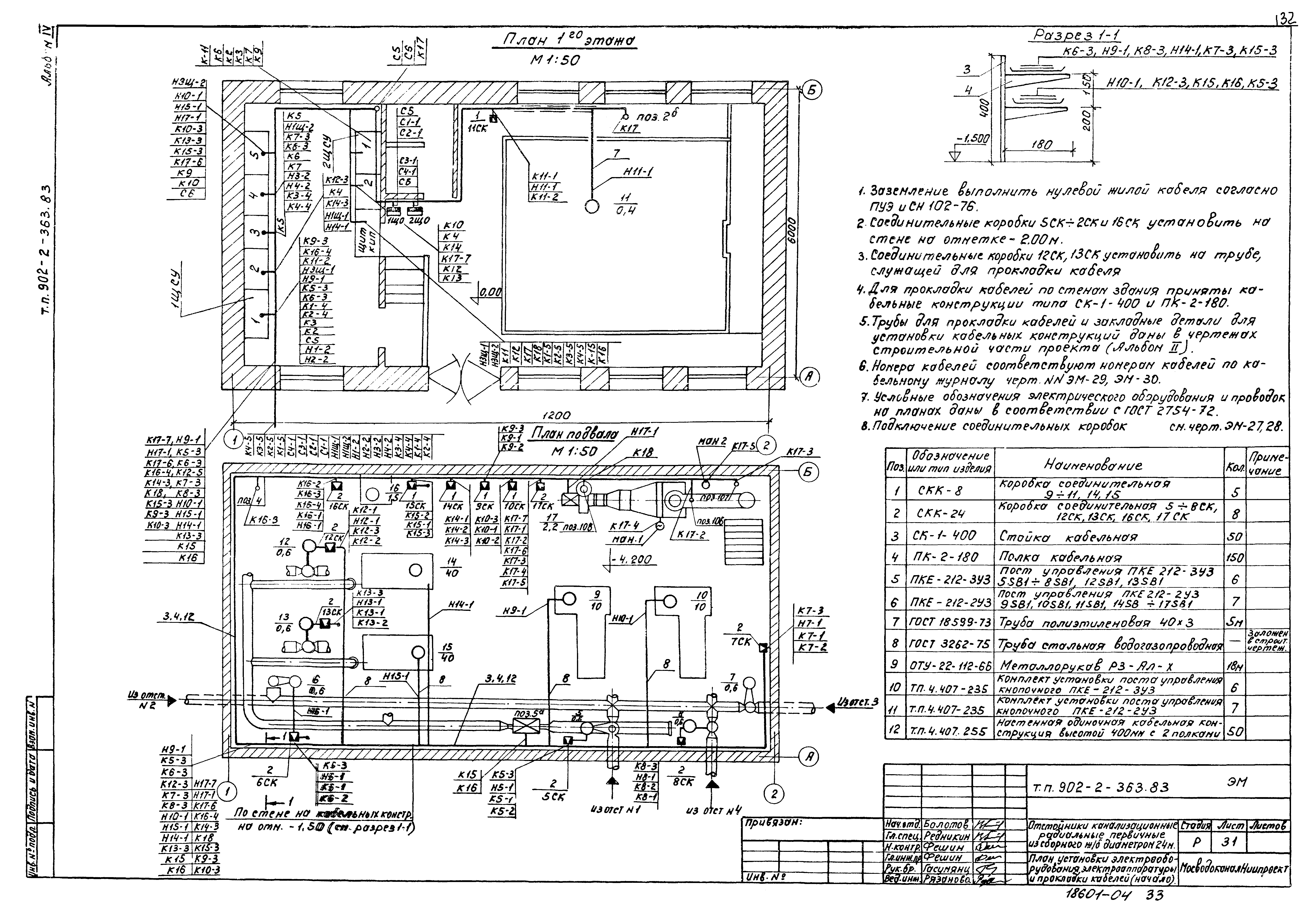
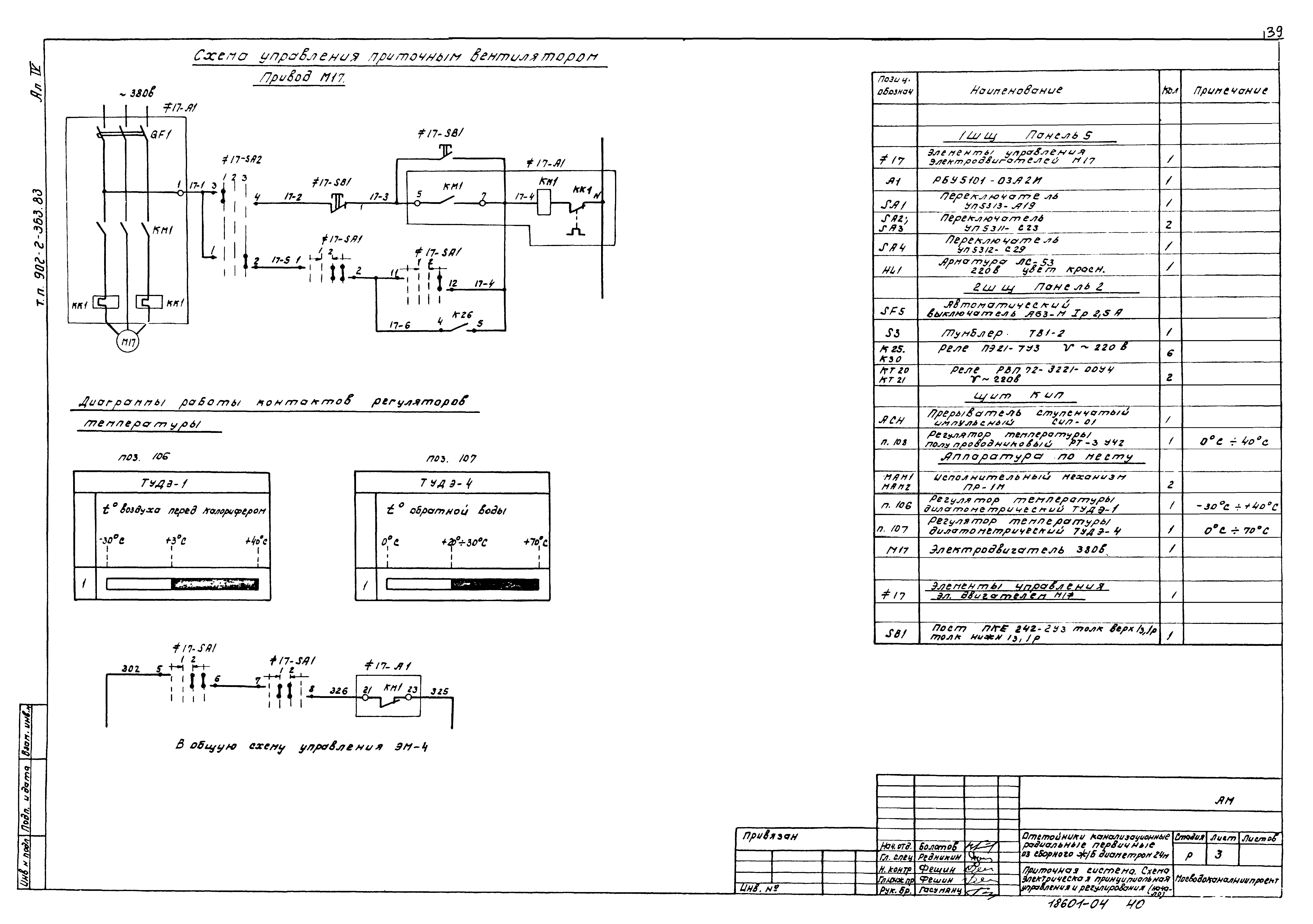
| Оглавление: | ТП 902-2-363-83-ЭМ-1 Общие данные (начало) ТП 902-2-363-83-ЭМ-2 Общие данные (продолжение) ТП 902-2-363-83-ЭМ-3 Общие данные (окончание) ТП 902-2-363-83-ЭМ-4 Схема электрическая принципиальная распределительной сети 380/220 В (начало) ТП 902-2-363-83-ЭМ-5 Схема электрическая принципиальная распределительной сети 380/220 В (окончание) ТП 902-2-363-83-ЭМ-6 Схема электрическая принципиальная АВР ТП 902-2-363-83-ЭМ-7 Схема функциональная ТП 902-2-363-83-ЭМ-8 Откачка осадка из отстойников. Диаграмма работы механизмов и настройки программных реле времени ТП 902-2-363-83-ЭМ-9 Откачка осадка из отстойников. Схема электрическая принципиальная (начало) ТП 902-2-363-83-ЭМ-10 Откачка осадка из отстойников. Схема электрическая принципиальная (окончание) ТП 902-2-363-83-ЭМ-11 Откачка осадка из отстойников. Схема электрическая принципиальная управления илоскребами (М1-М4) ТП 902-2-363-83-ЭМ-12 Откачка осадка из отстойников. Схема электрическая принципиальная управления задвижками выпуска осадка ТП 902-2-363-83-ЭМ-13 Откачка осадка из отстойников. Схема электрическая принципиальная управления насосами ТП 902-2-363-83-ЭМ-14 Перекачка жира из жиросборника. Схема электрическая принципиальная ТП 902-2-363-83-ЭМ-15 Перекачка жира из жиросборника. Схема электрическая принципиальная управления насосами ТП 902-2-363-83-ЭМ-16 Перекачка жира из жиросборника. Схема электрическая принципиальная управления задвижками ТП 902-2-363-83-ЭМ-17 Перекачка жира из жиросборника. Схема электрическая принципиальная управления дренажным насосом и вытяжным вентилятором ТП 902-2-363-83-ЭМ-18 Схема электрическая принципиальная аварийной сигнализации (начало) ТП 902-2-363-83-ЭМ-19 Схема электрическая принципиальная аварийной сигнализации (окончание) ТП 902-2-363-83-ЭМ-20 Общая электрическая схема присоединений ТП 902-2-363-83-ЭМ-21 Схема электрических подключений 1ШЩ (начало) ТП 902-2-363-83-ЭМ-22 Схема электрических подключений 1ШЩ (продолжение) ТП 902-2-363-83-ЭМ-23 Схема электрических подключений 1ШЩ (продолжение) ТП 902-2-363-83-ЭМ-24 Схема электрических подключений 1ШЩ (окончание) ТП 902-2-363-83-ЭМ-25 Схема электрических подключений 2ШЩ ТП 902-2-363-83-ЭМ-26 Схема электрических подключений щита КИП и ящиков 1Я-4Я ТП 902-2-363-83-ЭМ-27 Схема электрических подключений аппаратуры, расположенной по месту (начало) ТП 902-2-363-83-ЭМ-28 Схема электрических подключений аппаратуры, расположенной по месту (окончание) ТП 902-2-363-83-ЭМ-29 Кабельный журнал (начало) ТП 902-2-363-83-ЭМ-30 Кабельный журнал (окончание) ТП 902-2-363-83-ЭМ-31 План установки электрооборудования электроаппаратуры и прокладки кабелей (начало) ТП 902-2-363-83-ЭМ-32 План установки электрооборудования электроаппаратуры и прокладки кабелей (окончание) ТП 902-2-363-83-ЭМ-33 План насосной с нанесением сети освещения ТП 902-2-363-83-ЭМ-34 Ведомость электрического оборудования кабельных изделий и материалов, поставляемых заказчиком. Ведомость объемов электромонтажных работ (начало) ТП 902-2-363-83-ЭМ-35 Ведомость электрического оборудования кабельных изделий и материалов, поставляемых заказчиком. Ведомость объемов электромонтажных работ (окончание) ТП 902-2-363-83-АМ-1 Схема питания. Схема электрическая принципиальная измерения расходов и уровней ТП 902-2-363-83-АМ-2 Приточная система. Функциональная схема ТП 902-2-363-83-АМ-3 Приточная система. Схема электрическая принципиальная управления и регулирования (начало) ТП 902-2-363-83-АМ-4 Приточная система. Схема электрическая принципиальная управления и регулирования (окончание) ТП 902-2-363-83-АМ-5 Схема электрических подключений аппаратуры техконтроля |
| Разработан: | МосводоканалНИИпроект |
| Утверждён: | 17.11.1982 МосводоканалНИИпроект (192) |










































