Скачать Типовой проект 902-2-350 Альбом II. Конструкции железобетонныеДата актуализации: 01.01.2021
|
| Обозначение: | Типовой проект 902-2-350 |
| Обозначение англ: | 902-2-350 |
| Статус: | не определен законодательством |
| Название рус.: | Альбом II. Конструкции железобетонные |
| Дата добавления в базу: | 01.09.2013 |
| Дата актуализации: | 01.01.2021 |
| Дата введения: | 01.11.1982 |
| Дата окончания срока действия: | 30.06.2003 |
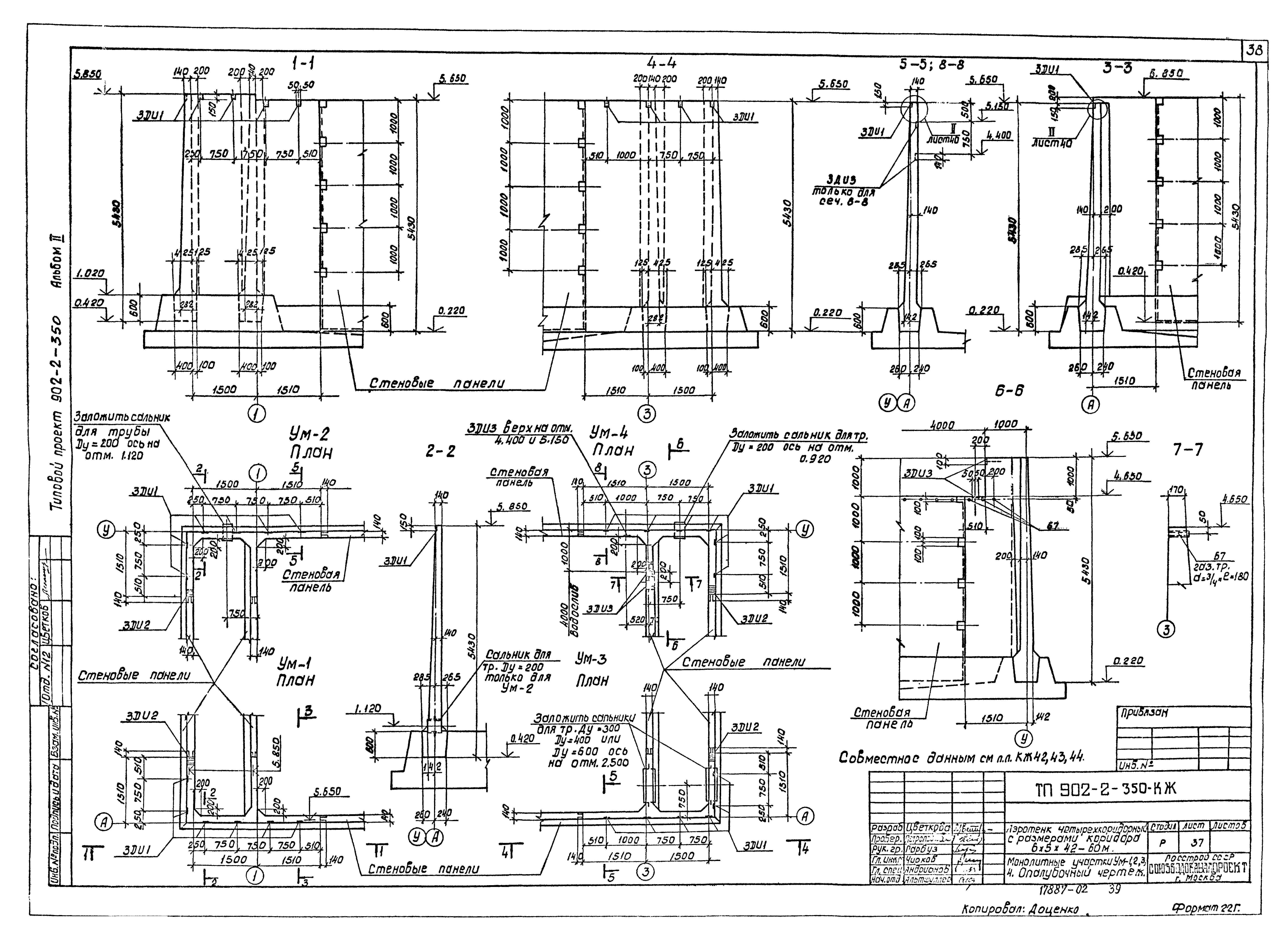
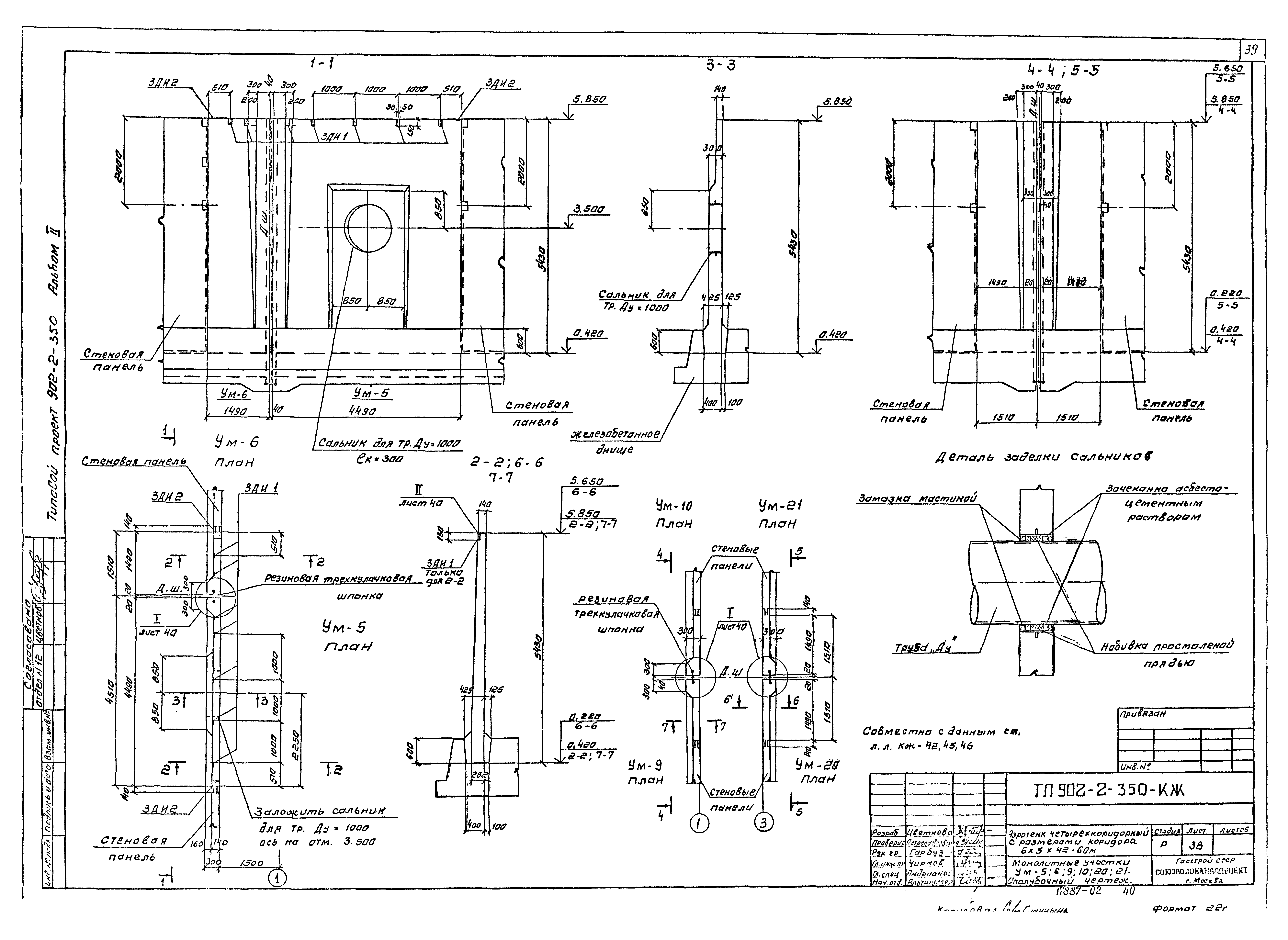
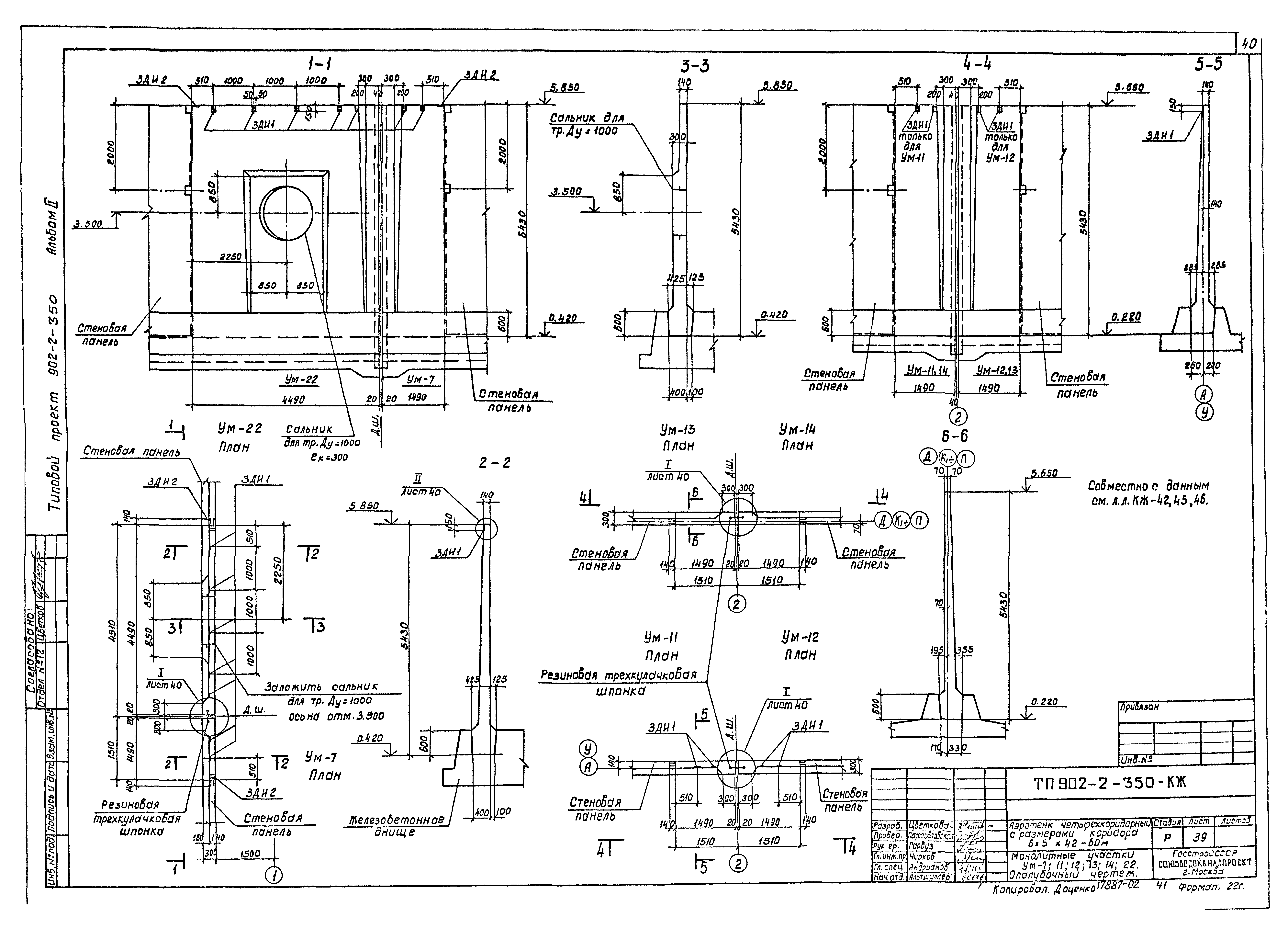
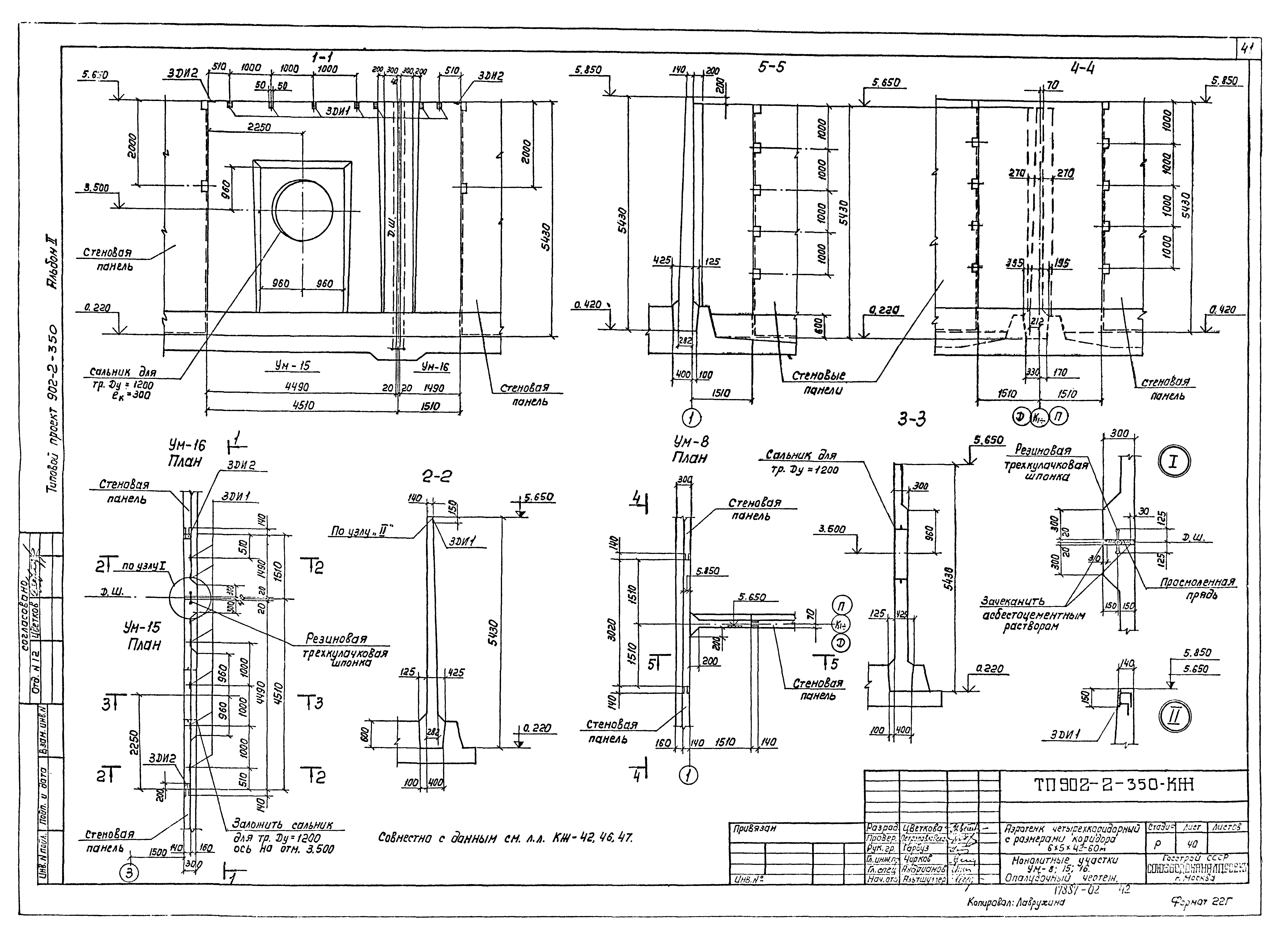
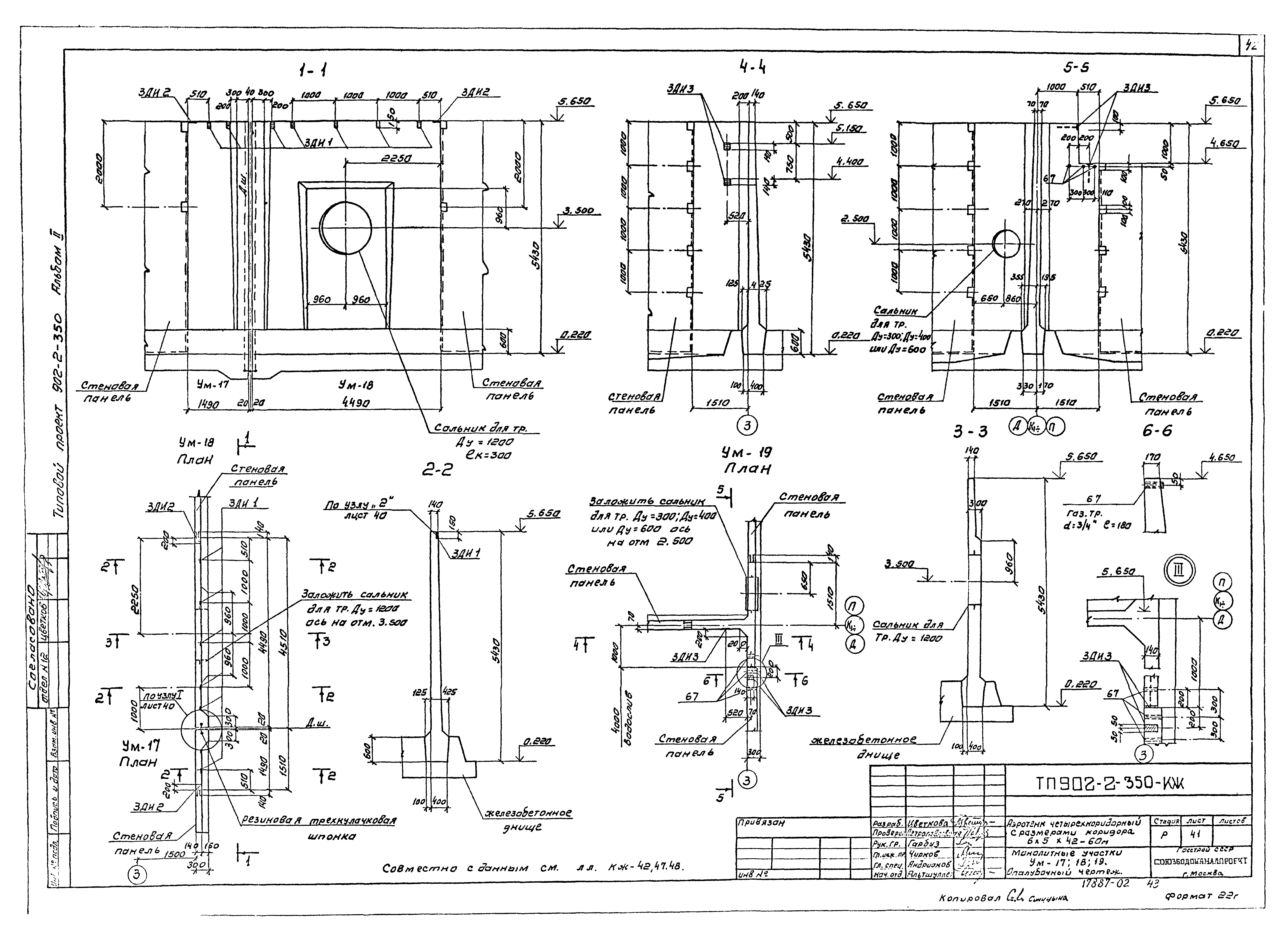
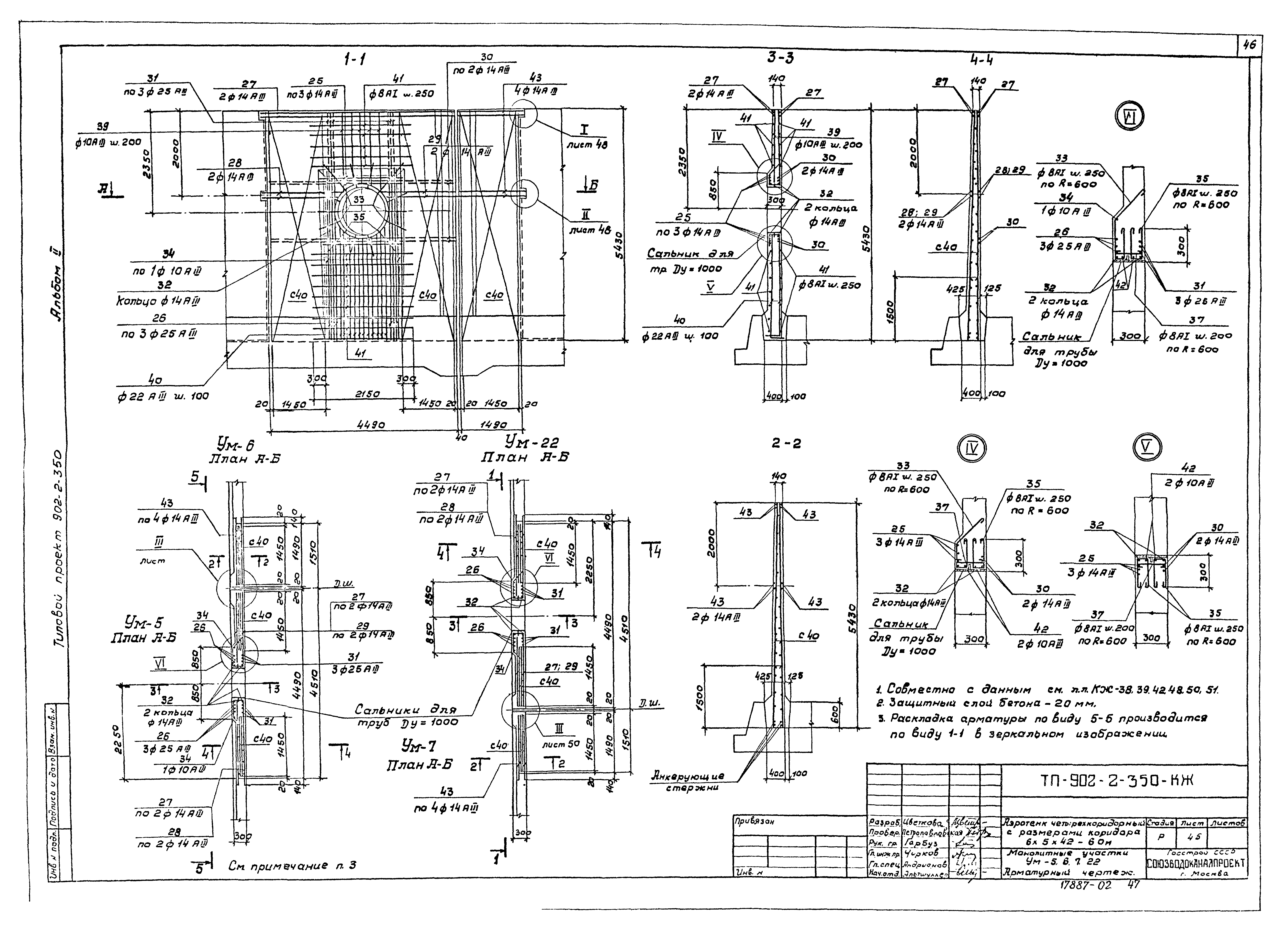
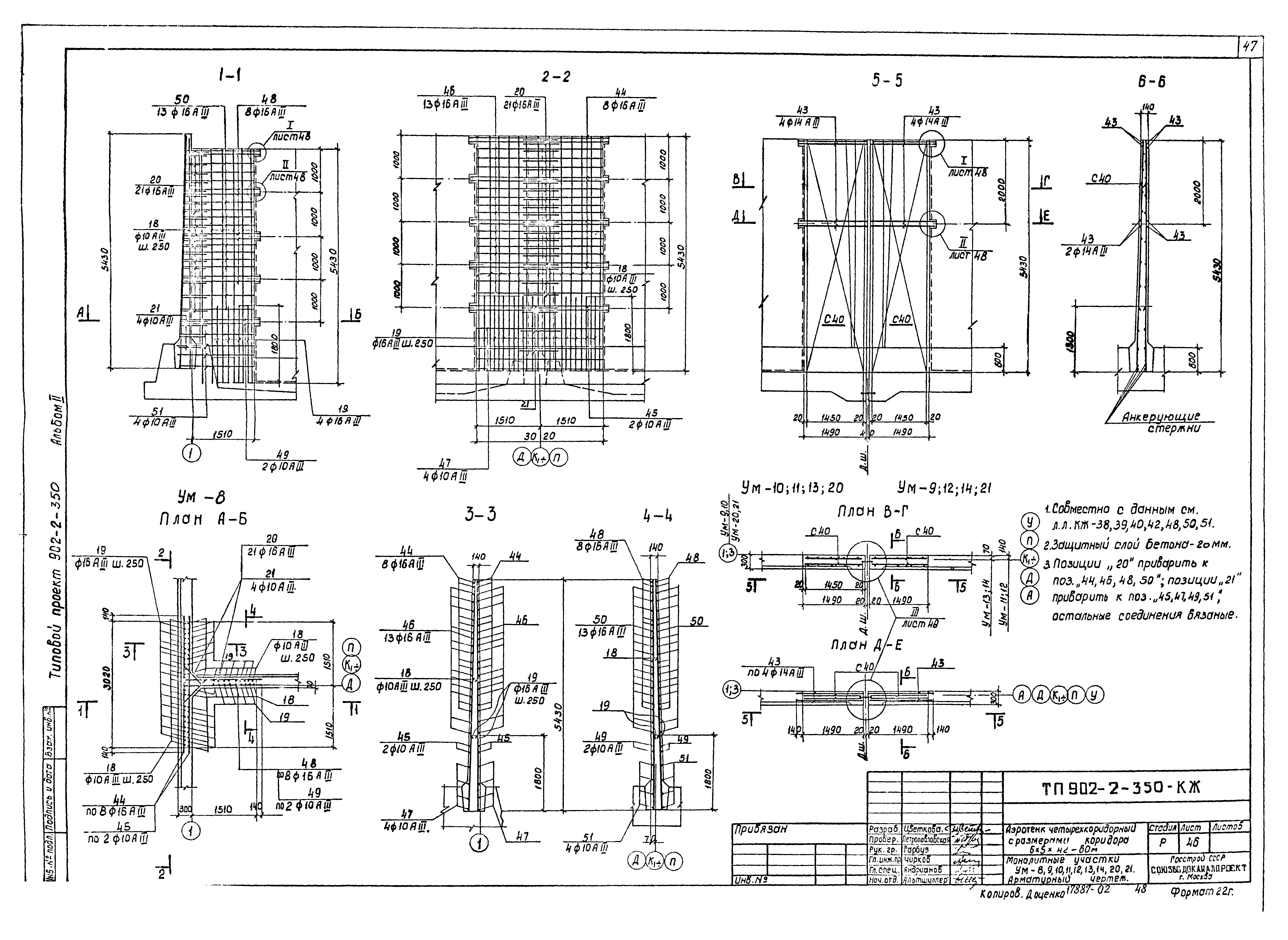
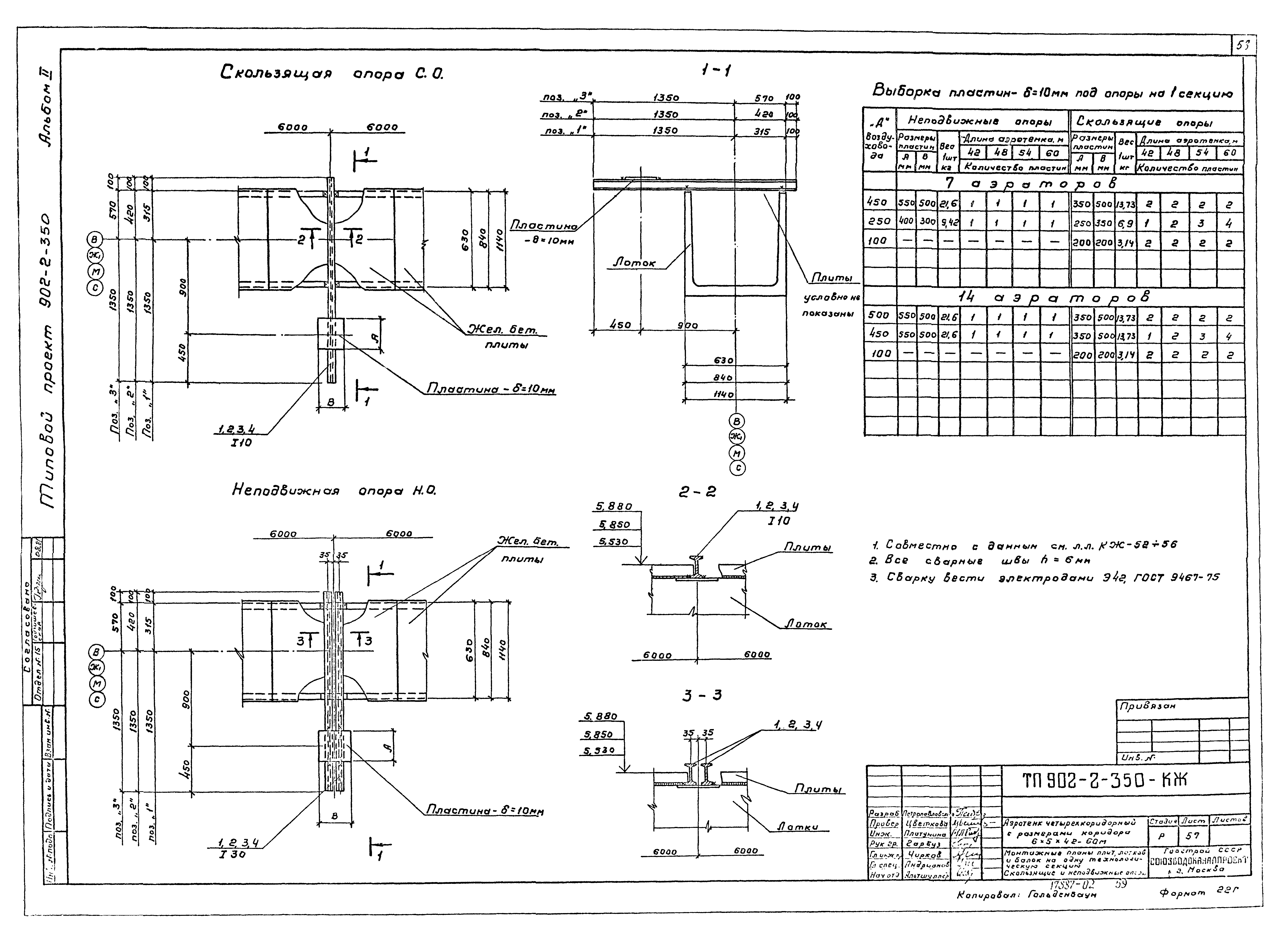
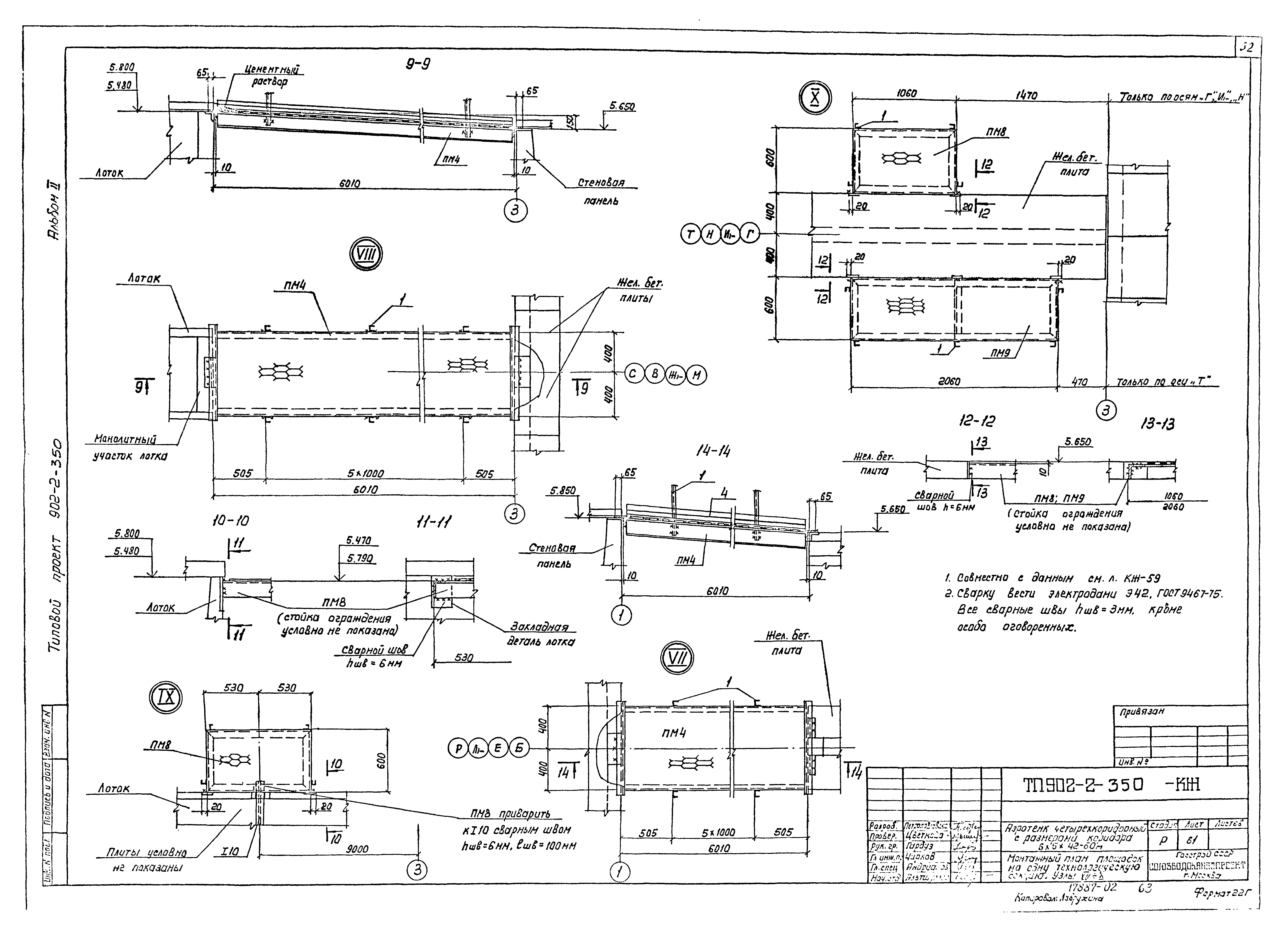
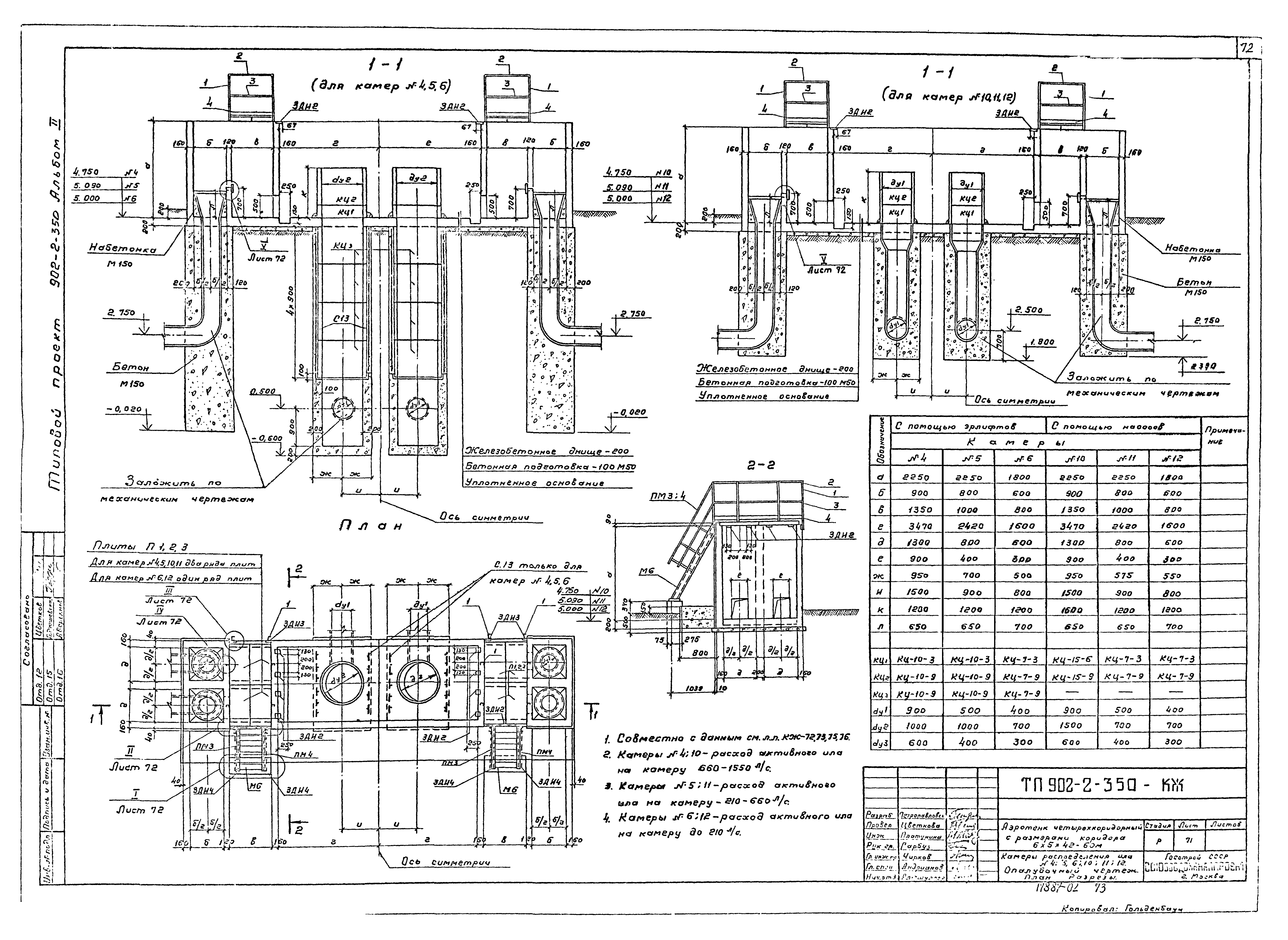
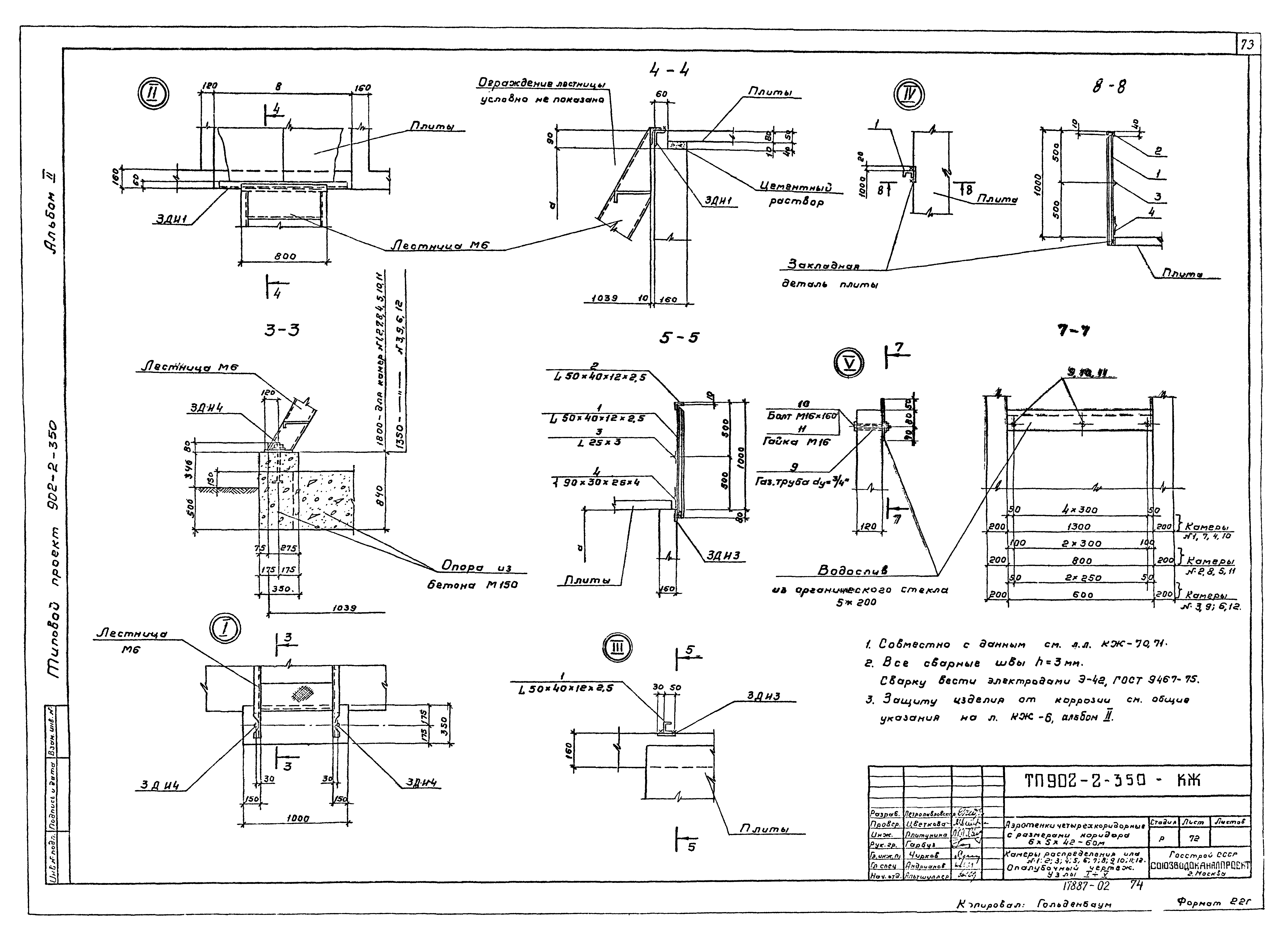
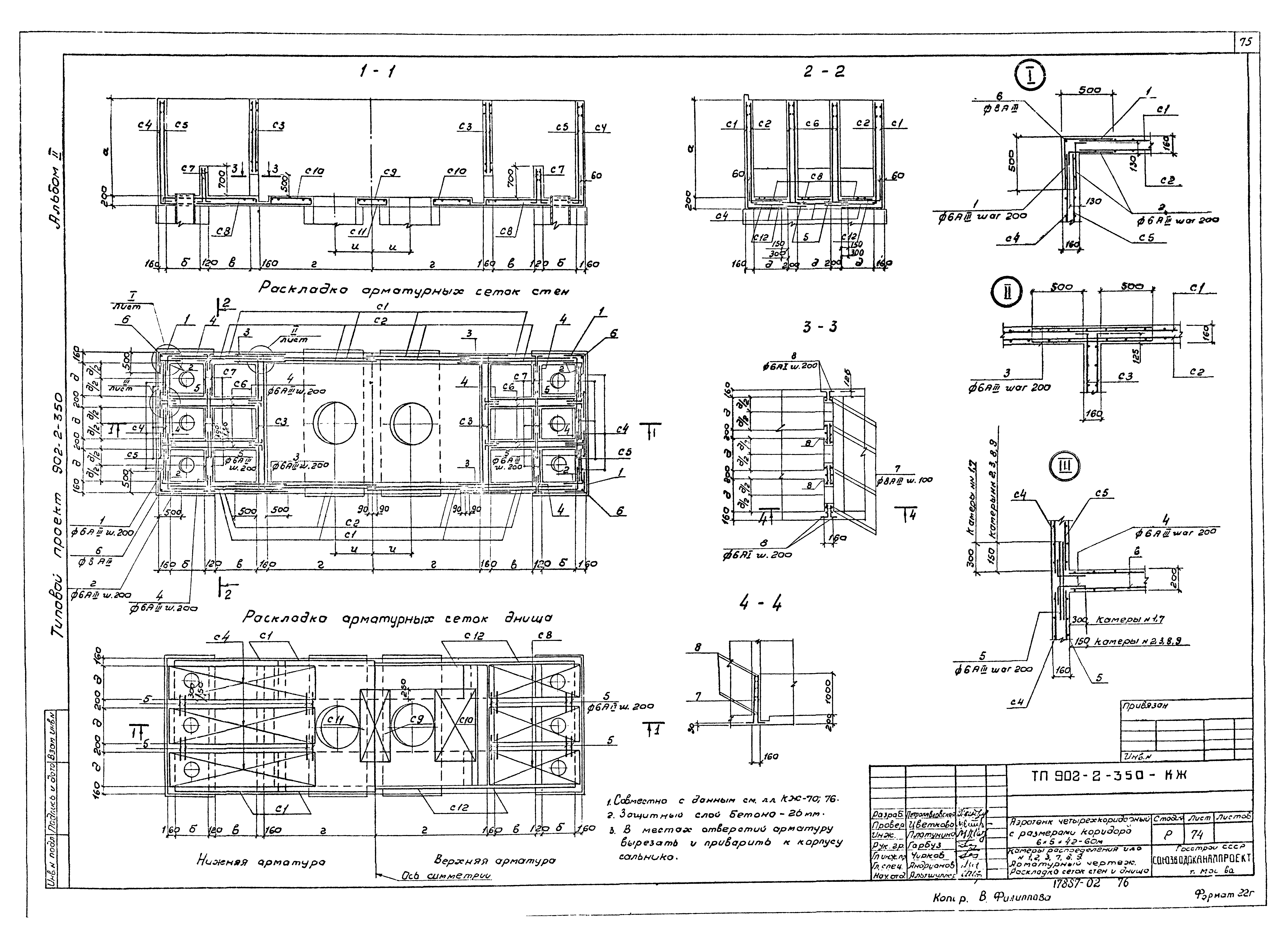
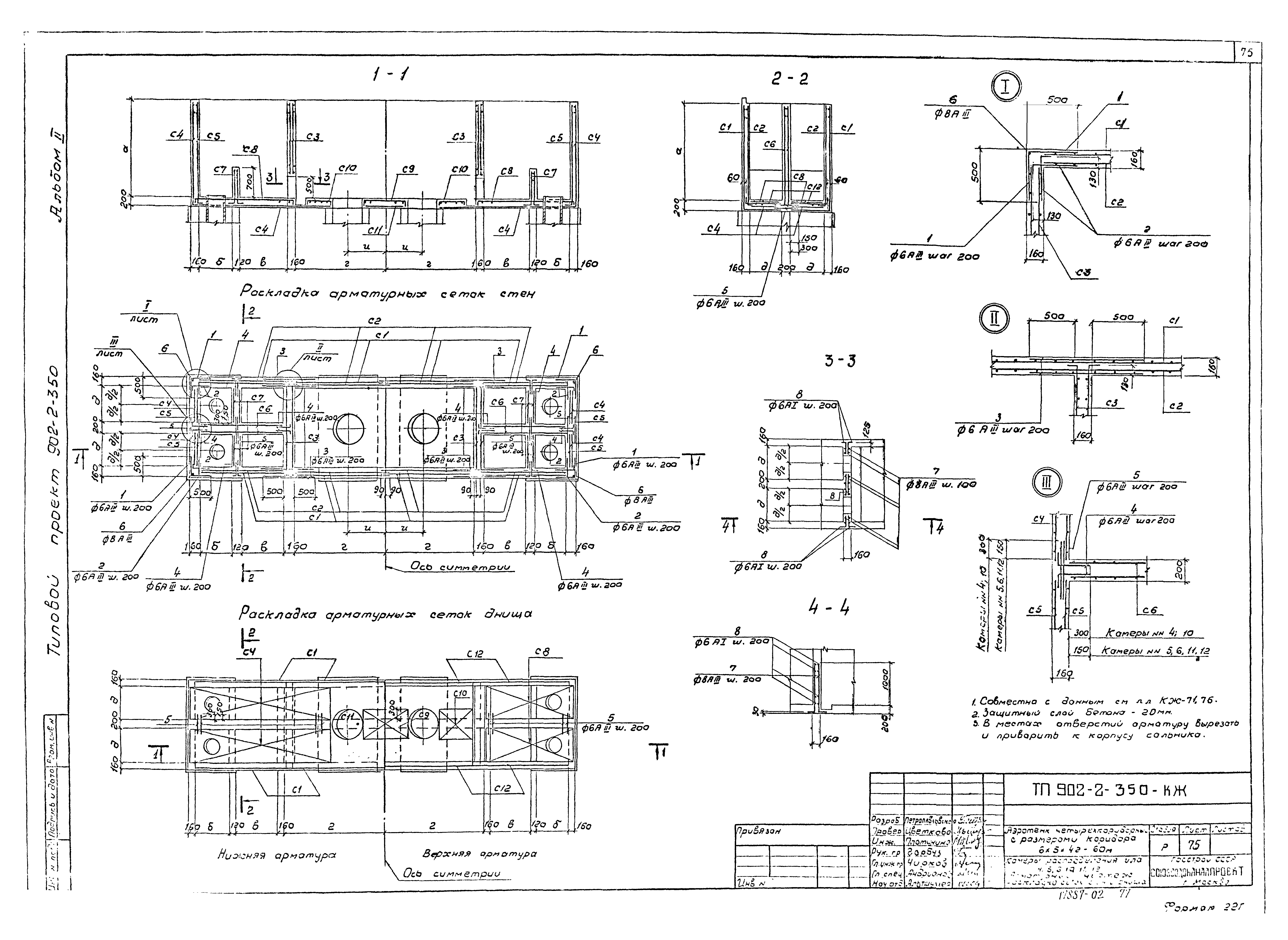
| Оглавление: | ТП 902-2-350-КЖ-1 Общие данные (начало) ТП 902-2-350-КЖ-2-8 Общие данные (продолжение) ТП 902-2-350-КЖ-9 Общие данные (окончание) ТП 902-2-350-КЖ-10 Компоновочный чертеж на 4 и 7 секций ТП 902-2-350-КЖ-11 Компоновочный чертеж на 5 и 6 секций ТП 902-2-350-КЖ-12 План, узлы ТП 902-2-350-КЖ-13 Разрезы ТП 902-2-350-КЖ-14 Секция "А". Днище. Опалубочный чертеж. План, разрезы ТП 902-2-350-КЖ-15 Секция "Б". Днище. Опалубочный чертеж. План, разрезы ТП 902-2-350-КЖ-16 Секция "В". Днище. Опалубочный чертеж. План, разрезы ТП 902-2-350-КЖ-17 Секции "А,Б,В". Днище. Опалубочный чертеж. Сечения ТП 902-2-350-КЖ-18 Секции "А,Б,В". Днище. Опалубочный чертеж. Узлы ТП 902-2-350-КЖ-19 Секция "А". Днище. Арматурный чертеж. Раскладка нижней арматуры ТП 902-2-350-КЖ-20 Секция "А". Днище. Арматурный чертеж. Раскладка верхней арматуры ТП 902-2-350-КЖ-21 Секция "А". Днище. Ведомость одиночных стержней ТП 902-2-350-КЖ-22 Секция "А". Днище. Арматурный чертеж. Раскладка нижней арматуры ТП 902-2-350-КЖ-23 Секция "Б". Днище. Арматурный чертеж. Раскладка верхней арматуры ТП 902-2-350-КЖ-24 Секция "Б". Днище. Ведомость одиночных стержней ТП 902-2-350-КЖ-25 Секция "Б". Днище. Арматурный чертеж. Раскладка нижней арматуры ТП 902-2-350-КЖ-26 Секция "В". Днище. Арматурный чертеж. Раскладка верхней арматуры ТП 902-2-350-КЖ-27 Секция "В". Днище. Ведомость одиночных стержней ТП 902-2-350-КЖ-28 Секция "В". Днище. Арматурный чертеж. Раскладка нижней арматуры ТП 902-2-350-КЖ-29 Секция "А,Б,В". Днище. Арматурный чертеж. Сечения 7-7÷11-11. Выборки стали ТП 902-2-350-КЖ-30 Секция "А". Монтажный чертеж стен. План ТП 902-2-350-КЖ-31 Секция "Б". Монтажный чертеж стен. План ТП 902-2-350-КЖ-32 Секция "В". Монтажный чертеж стен. План ТП 902-2-350-КЖ-33 Монтажный чертеж стен. Виды 1-1÷4-4 ТП 902-2-350-КЖ-34 Монтажный чертеж стен. Виды 5-5÷9-9 ТП 902-2-350-КЖ-35 Монтажный чертеж стен. Виды 10-10÷17-17 ТП 902-2-350-КЖ-36 Монтажный чертеж стен. Узлы ТП 902-2-350-КЖ-37 Монолитные участки УМ-1,2,3,4. Опалубочный чертеж ТП 902-2-350-КЖ-38 Монолитные участки УМ-5,6,9,10,20,21. Опалубочный чертеж ТП 902-2-350-КЖ-39 Монолитные участки УМ-7,11,12,13,14,22. Опалубочный чертеж ТП 902-2-350-КЖ-40 Монолитные участки УМ-8,15,16. Опалубочный чертеж ТП 902-2-350-КЖ-41 Монолитные участки УМ-17,18,19. Опалубочный чертеж ТП 902-2-350-КЖ-42 Монолитные участки стен. Спецификация элементов монолитной конструкции ТП 902-2-350-КЖ-43 Монолитные участки УМ-1,2. Арматурный чертеж ТП 902-2-350-КЖ-44 Монолитные участки УМ-3,4. Арматурный чертеж ТП 902-2-350-КЖ-45 Монолитные участки УМ-5,6,7,22. Арматурный чертеж ТП 902-2-350-КЖ-46 Монолитные участки УМ-8,9,10,11,12,13,14,20,21. Арматурный чертеж ТП 902-2-350-КЖ-47 Монолитные участки УМ-15,16,17,18. Арматурный чертеж ТП 902-2-350-КЖ-48 Монолитный участок УМ-19. Узлы. Арматурный чертеж ТП 902-2-350-КЖ-49 Монолитные участки УМ-23,24,25. Арматурно-опалубочный чертеж ТП 902-2-350-КЖ-50 Монолитные участки УМ-1-14,16,17,20,21,22. Спецификация арматуры ТП 902-2-350-КЖ-51 Монолитные участки УМ-15,18,19,23-25. Спецификация и выборка арматуры ТП 902-2-350-КЖ-52 Монтажные планы плит, лотков и балок на одну технологическую секцию (L аэротенка-42 м) ТП 902-2-350-КЖ-53 Монтажные планы плит, лотков и балок на одну технологическую секцию (L аэротенка-48 м) ТП 902-2-350-КЖ-54 Монтажные планы плит, лотков и балок на одну технологическую секцию (L аэротенка-54 м) ТП 902-2-350-КЖ-55 Монтажные планы плит, лотков и балок на одну технологическую секцию (L аэротенка-60 м) ТП 902-2-350-КЖ-56 Монтажные планы плит, лотков и балок на одну технологическую секцию. Узлы 1-4 ТП 902-2-350-КЖ-57 Монтажные планы плит, лотков и балок на одну технологическую секцию. Скользящие и неподвижные опоры ТП 902-2-350-КЖ-58 Монолитные участки УМ-26,27,28 ТП 902-2-350-КЖ-59 Монтажный план площадок на одну технологическую секцию ТП 902-2-350-КЖ-60 Монтажный план площадок на одну технологическую секцию. Узлы 1-6 ТП 902-2-350-КЖ-61 Монтажный план площадок на одну технологическую секцию 7-10 ТП 902-2-350-КЖ-62 Конструкция водослива ТП 902-2-350-КЖ-63 Днище. Разбивка закладных деталей в набетонке на одну технологическую секцию. Вариант с фильтросными каналами ТП 902-2-350-КЖ-64 Днище. План набетонки и фильтросных каналов на одну технологическую секцию (7 рядов аэраторов) ТП 902-2-350-КЖ-65 Днище. План набетонки и фильтросных каналов на одну технологическую секцию (14 рядов аэраторов) ТП 902-2-350-КЖ-66 Днище. Фильтросные каналы. Узлы, детали ТП 902-2-350-КЖ-67 Днище. Разбивка закладных деталей в набетонке на одну технологическую секцию. Вариант с пористыми трубами ТП 902-2-350-КЖ-68 Днище. План набетонки под пористые трубы на одну технологическую секцию (7 рядов аэраторов) ТП 902-2-350-КЖ-69 Днище. План набетонки под пористые трубы на одну технологическую секцию (14 рядов аэраторов) ТП 902-2-350-КЖ-70 Камеры распределения ила № 1,2,3,7,8,9. Опалубочный чертеж. План. Разрезы ТП 902-2-350-КЖ-71 Камеры распределения ила № 4,5,6,10,11,12. Опалубочный чертеж. План. Разрезы ТП 902-2-350-КЖ-72 Камеры распределения ила № 1,2,3,4,5,6,7,8,9,10,11,12. Опалубочный чертеж. Узлы 1-5 ТП 902-2-350-КЖ-73 Камеры распределения ила № 1,2,3,4,5,6,7,8,9,10,11,12. Общие данные ТП 902-2-350-КЖ-74 Камеры распределения ила № 1,2,3,7,8,9. Арматурный чертеж. Раскладка сеток стен и днища ТП 902-2-350-КЖ-75 Камеры распределения ила № 4,5,6,10,11,12. Арматурный чертеж. Раскладка сеток стен и днища ТП 902-2-350-КЖ-76 Камеры распределения ила № 1,2,3,4,5,6,7,8,9,10,11,12. Спецификация стержней. Выборка стали ТП 902-2-350-КЖ-77 Посты гидрогеологических наблюдений за движением уровня грунтовых вод |
| Разработан: | Союзводоканалниипроект |
| Утверждён: | 03.11.1981 СоюзводоканалНИИпроект (SoyuzvodokanalNIIproject 46) |















































































