Скачать Типовой проект 902-2-154 Альбом II. Блок аэротенков и отстойников. Типы А6-560, А6-800, А6-1100. Сборный вариантДата актуализации: 01.01.2021
|
| Обозначение: | Типовой проект 902-2-154 |
| Обозначение англ: | 902-2-154 |
| Статус: | заменен |
| Название рус.: | Альбом II. Блок аэротенков и отстойников. Типы А6-560, А6-800, А6-1100. Сборный вариант |
| Дата добавления в базу: | 01.09.2013 |
| Дата актуализации: | 01.01.2021 |
| Дата введения: | 30.10.1972 |
| Дата окончания срока действия: | 01.08.1982 |
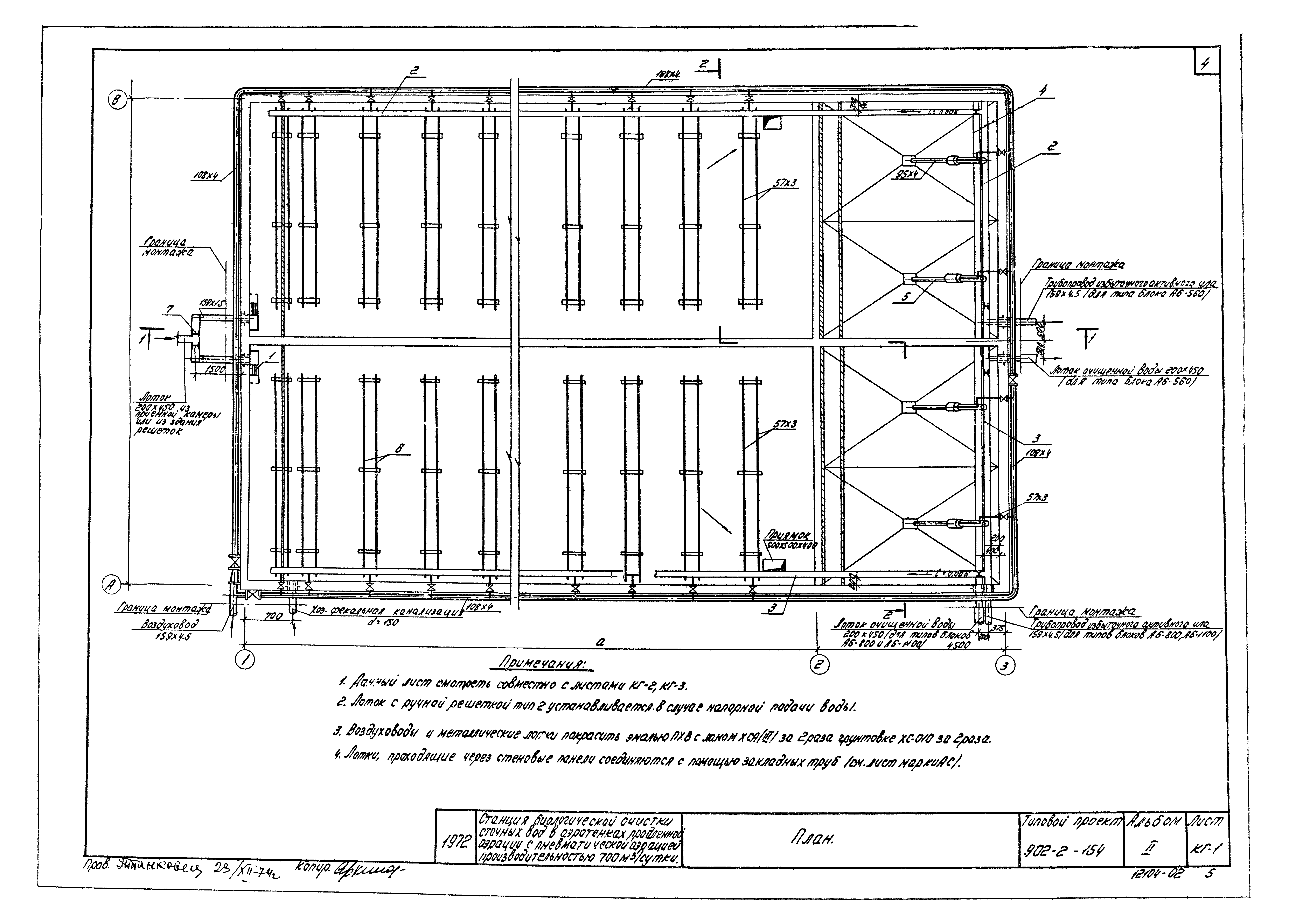
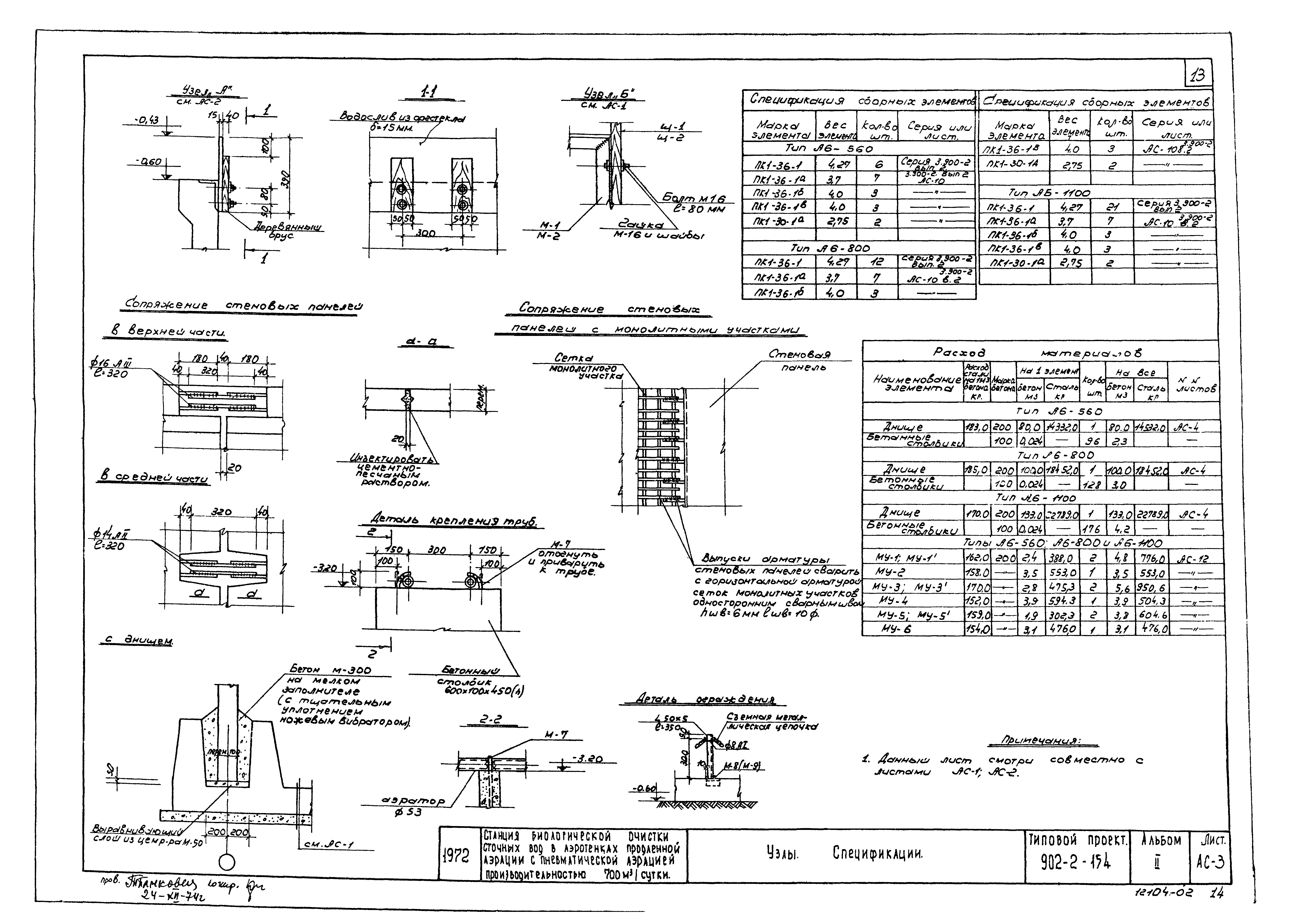
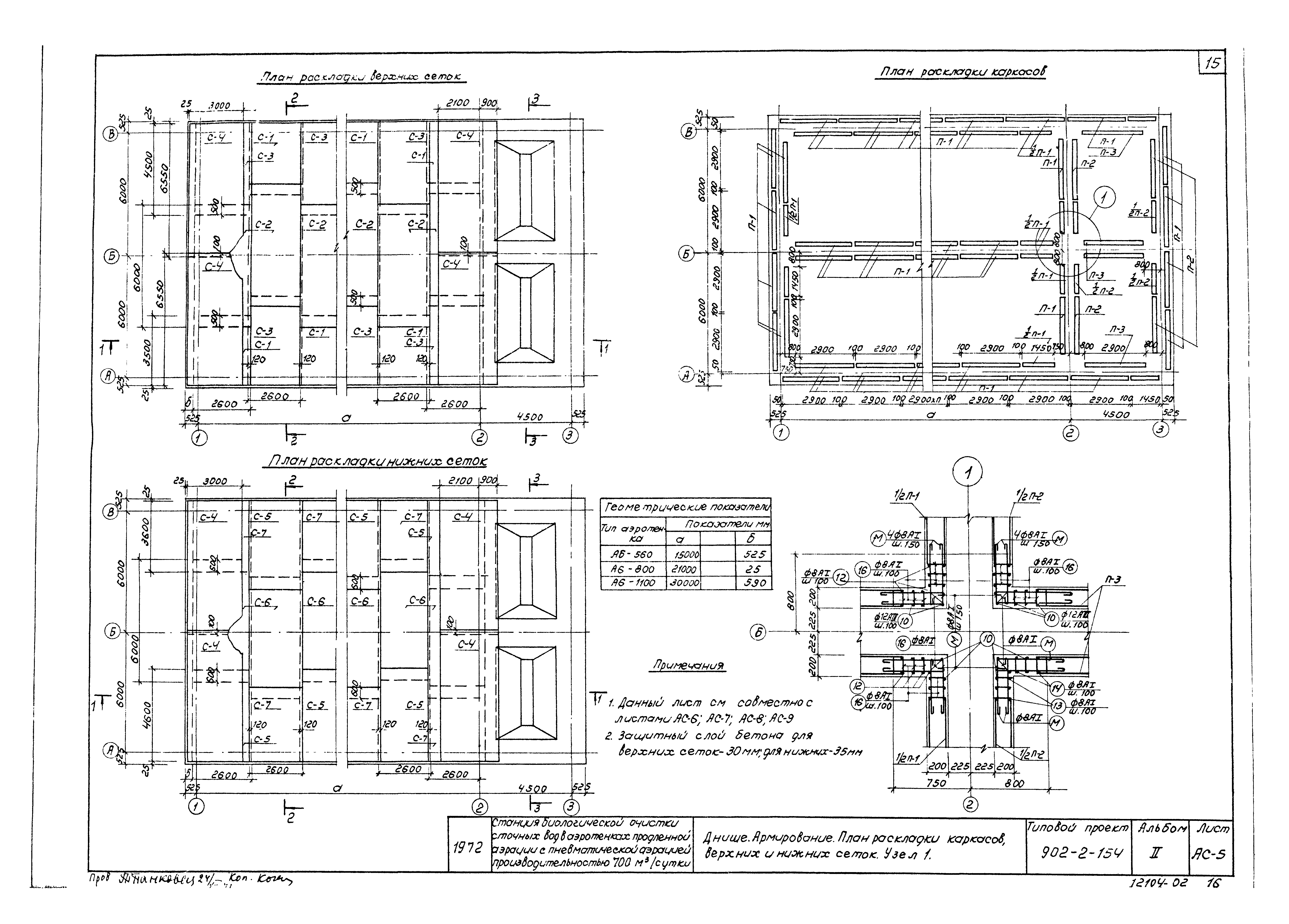
| Оглавление: | ТП 902-2-154 Содержание альбома ТП 902-2-154 Технологические чертежи ТП 902-2-154 Перечень чертежей. Пояснительная записка ТП 902-2-154-КГ-1 План ТП 902-2-154-КГ-2 Разрезы 1-1;2-2 ТП 902-2-154-КГ-3 Схема воздуховодов. Детали ТП 902-2-154-КГ-4 Спецификация ТП 902-2-154 Строительные чертежи ТП 902-2-154 Перечень чертежей. Пояснительная записка ТП 902-2-154 Пояснительная записка ТП 902-2-154 Заглавный лист ТП 902-2-154-АС-1 План раскладки стеновых панелей. Разрезы ТП 902-2-154-АС-2 Монолитные участки стен МУ-1-МУ-6. Разрезы. Сечения. План закладных деталей. Выборки ТП 902-2-154-АС-3 Узлы. Спецификации ТП 902-2-154-АС-4 Опалубочный план днища. Разрезы. Сечения ТП 902-2-154-АС-5 Днище. Армирование. План раскладки каркасов, верхних и нижних сеток. Узел 1 ТП 902-2-154-АС-6 Днище. Армирование. Разрезы ТП 902-2-154-АС-7 Монолитное железобетонное днище. Спецификация А6=560 ТП 902-2-154-АС-8 Монолитное железобетонное днище. Спецификация А6=800 ТП 902-2-154-АС-9 Монолитное железобетонное днище. Спецификация А6=1100 ТП 902-2-154-АС-10 Монолитные участки стен. Армирование ТП 902-2-154-АС-11 Закладные детали М-1÷М-10. Сечения. Спецификация ТП 902-2-154-АС-12 План раскладки щитов перекрытия. Щиты Щ-1,Щ-2,Щ-3 ТП 902-2-154-АС-13 Панели стеновые ПК1-36-1а,ПК1-36-1б,ПК1-36-в,ПК1-301А. Сечения ТП 902-2-154-АС-14 Панели стеновые ПК1-36-1а,ПК1-36-1б,ПК1-36-в,ПК1-301А. Армирование |
| Разработан: | ЦНИИЭП |
| Утверждён: | 30.10.1972 Госгражданстрой (Gosgrazhdanstroy 212) |
| Чем заменён: |

























