Скачать Типовой проект 902-2-436.87 Альбом IV. Силовое электрооборудование. Электрическое освещение. Автоматизация. Связь и сигнализацияДата актуализации: 01.01.2021
|
| Обозначение: | Типовой проект 902-2-436.87 |
| Обозначение англ: | 902-2-436.87 |
| Статус: | заменен |
| Название рус.: | Альбом IV. Силовое электрооборудование. Электрическое освещение. Автоматизация. Связь и сигнализация |
| Дата добавления в базу: | 01.09.2013 |
| Дата актуализации: | 01.01.2021 |
| Дата введения: | 01.10.1987 |
| Дата окончания срока действия: | 01.06.1993 |
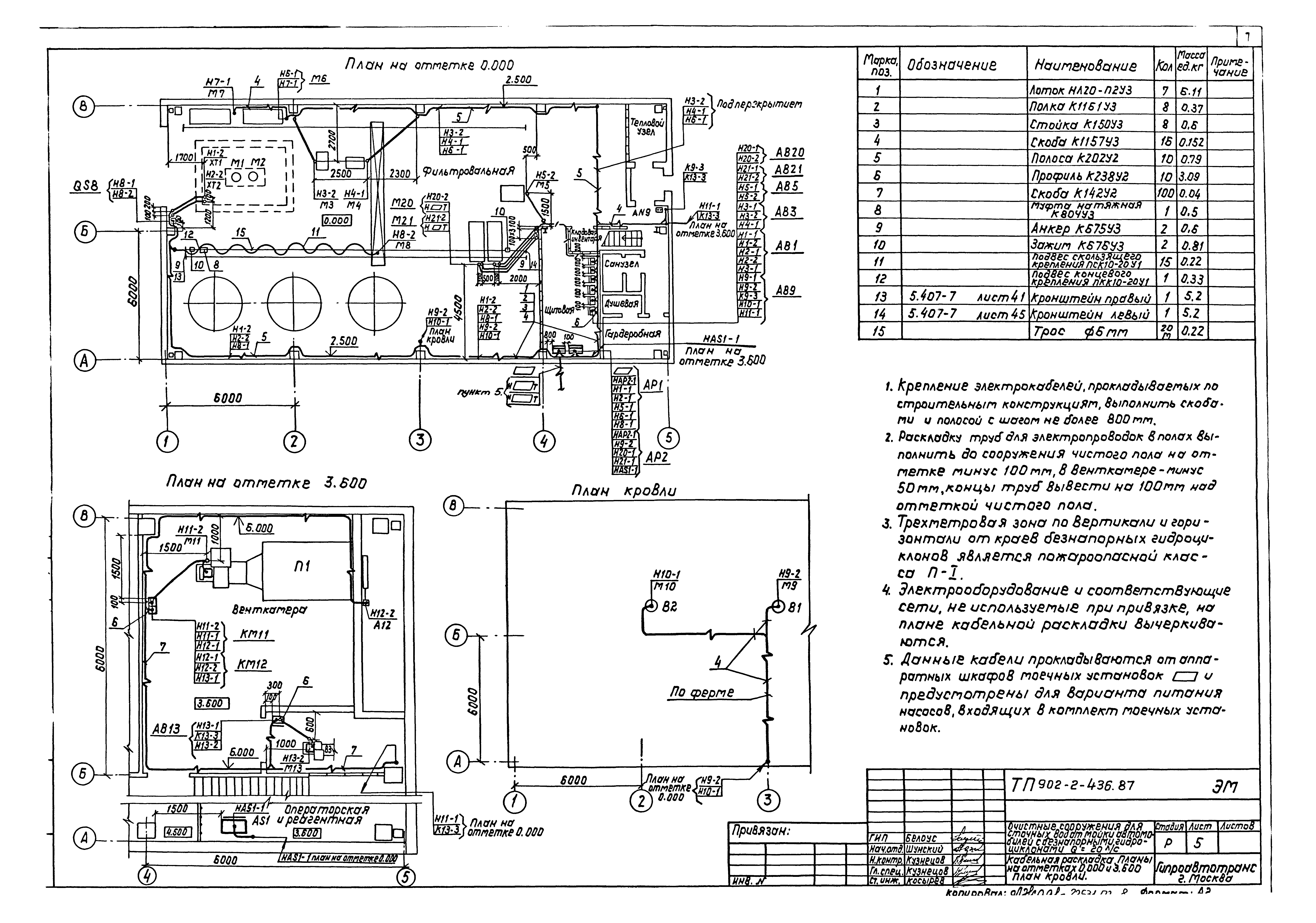
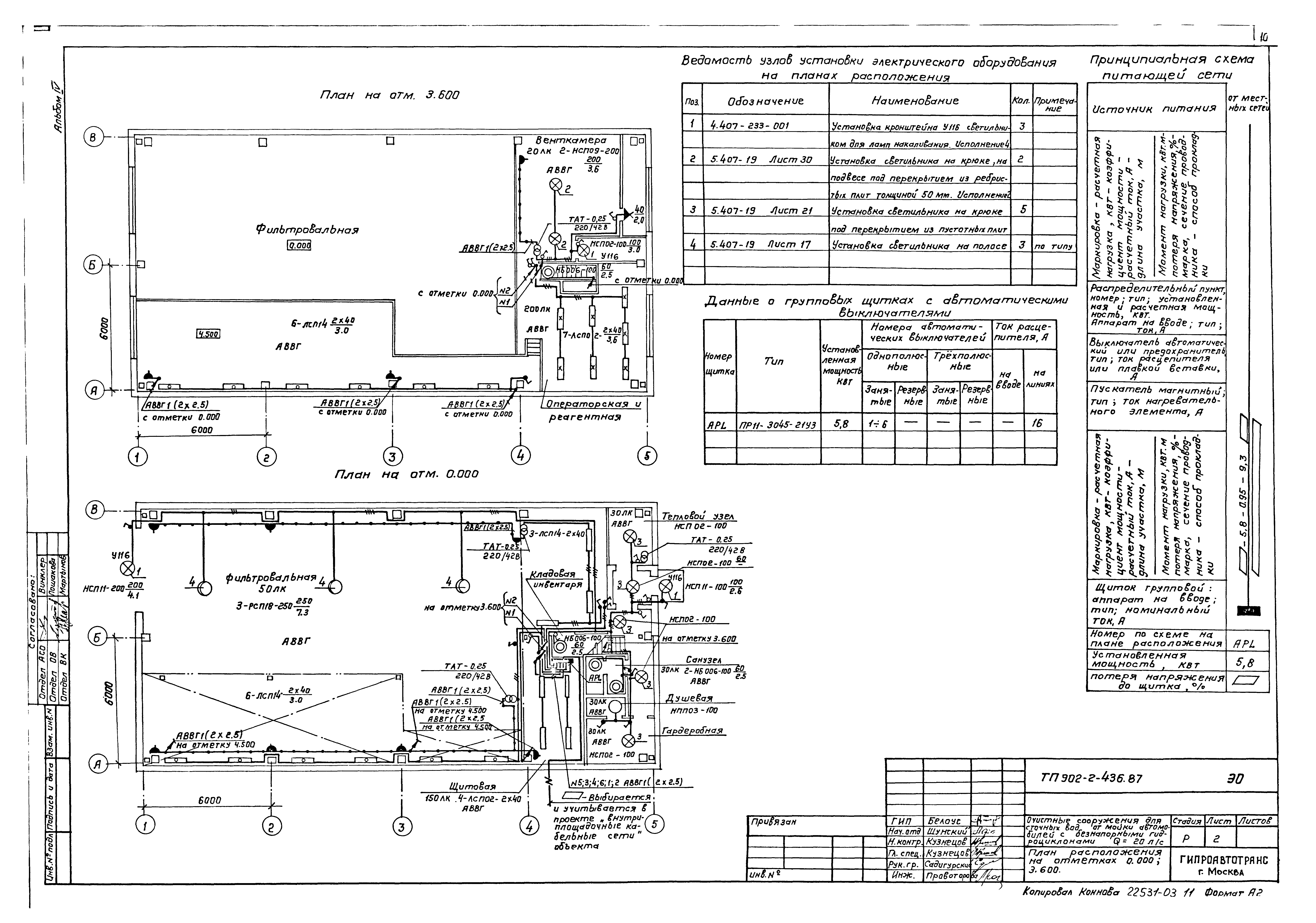
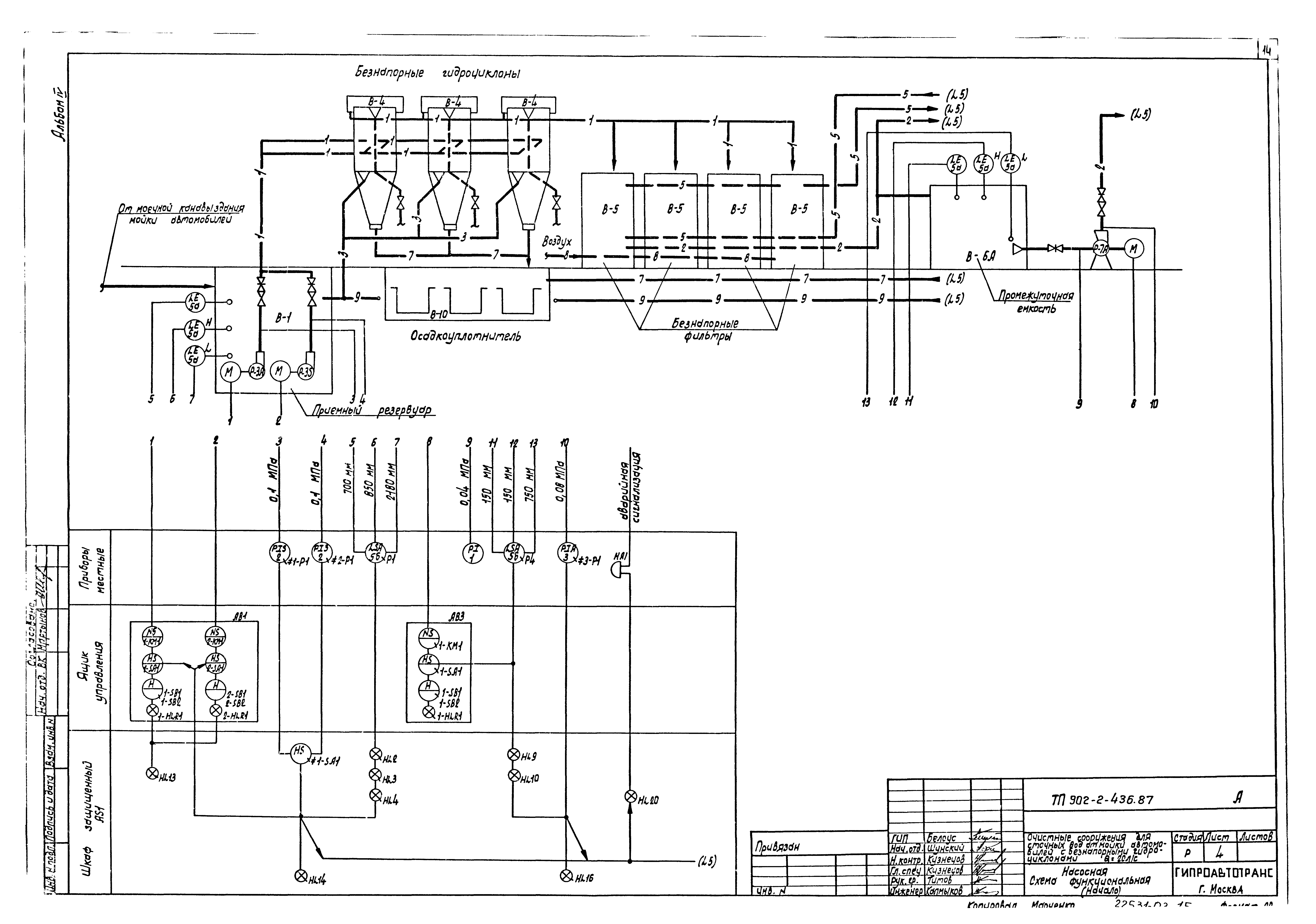
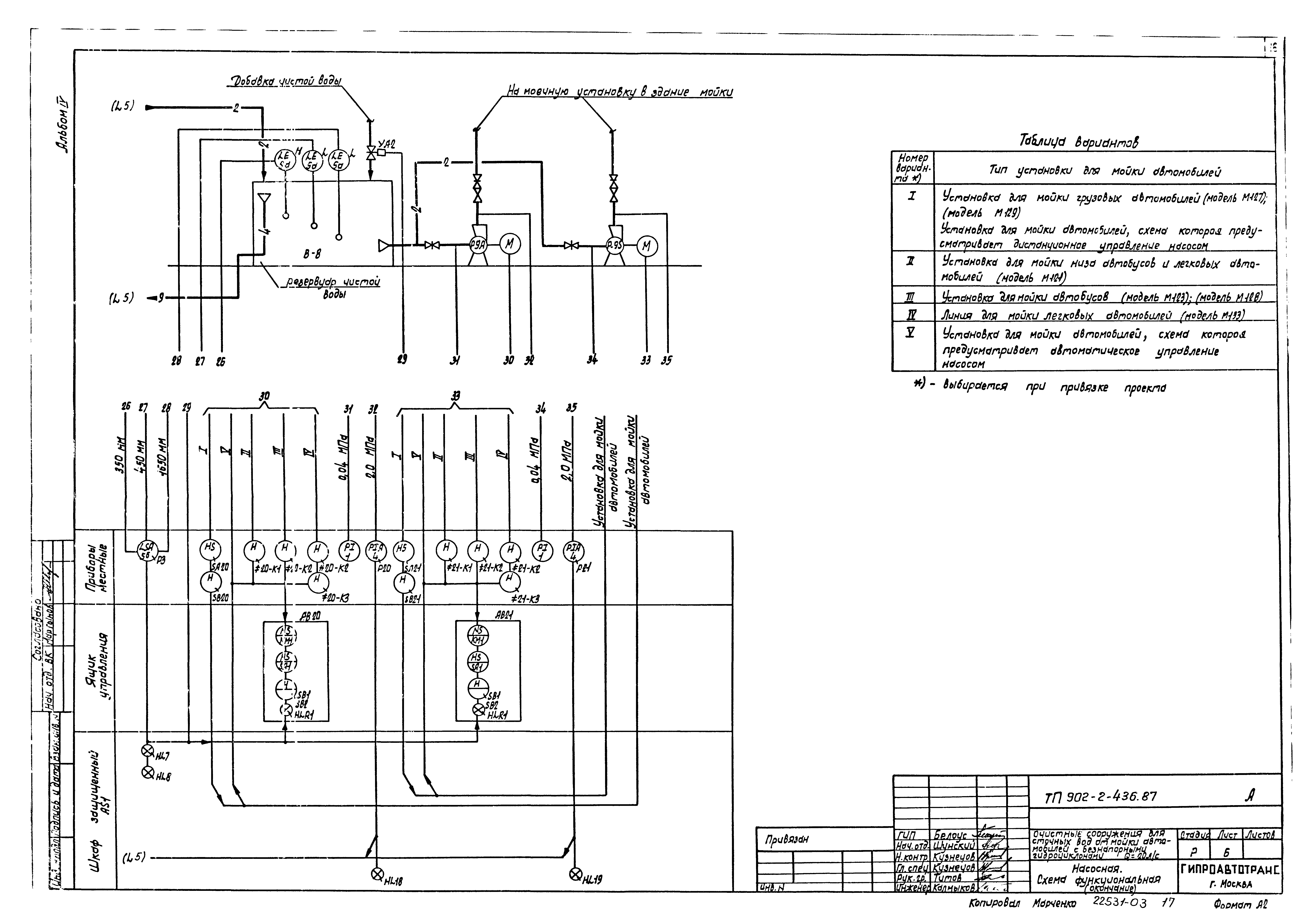
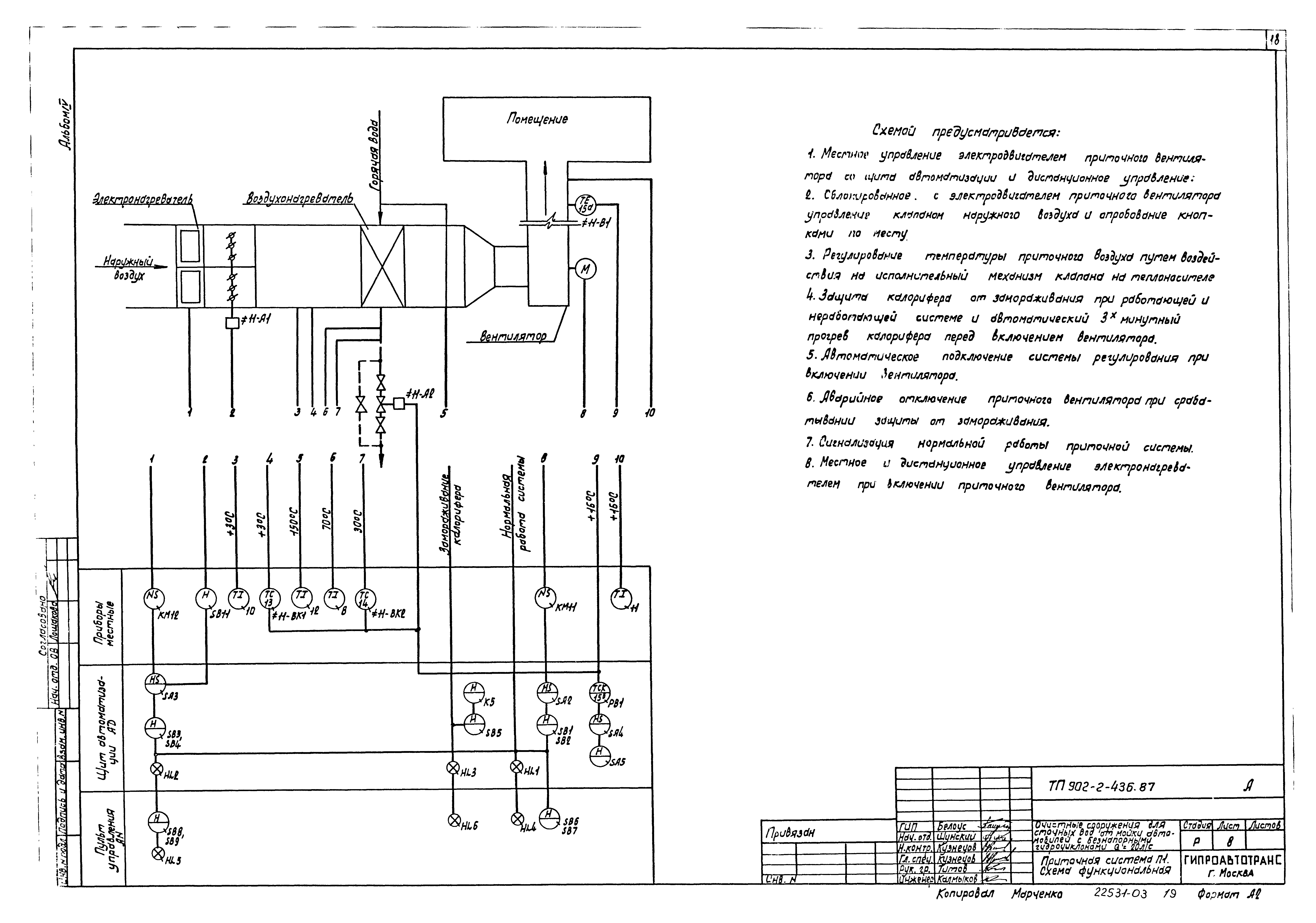
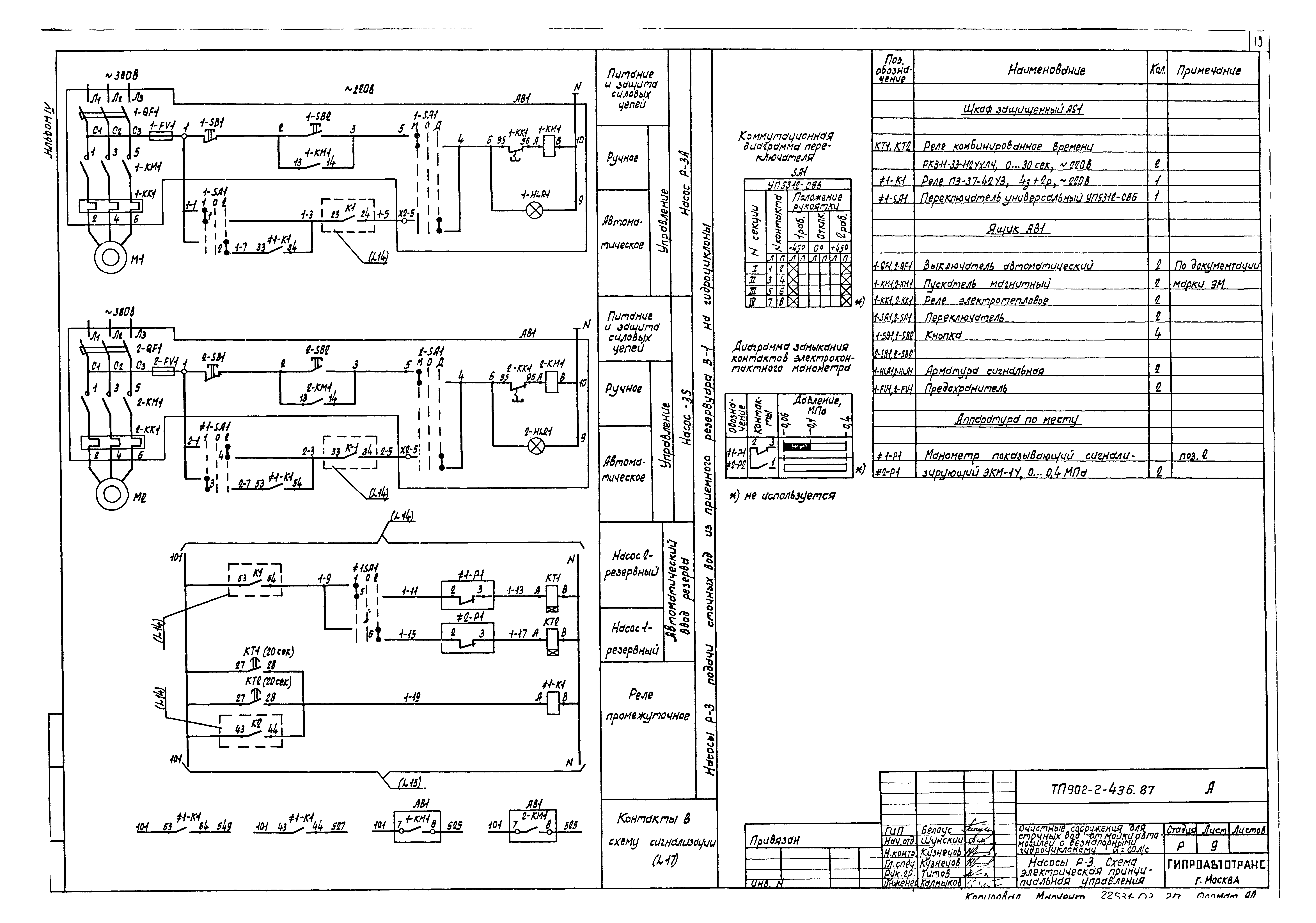
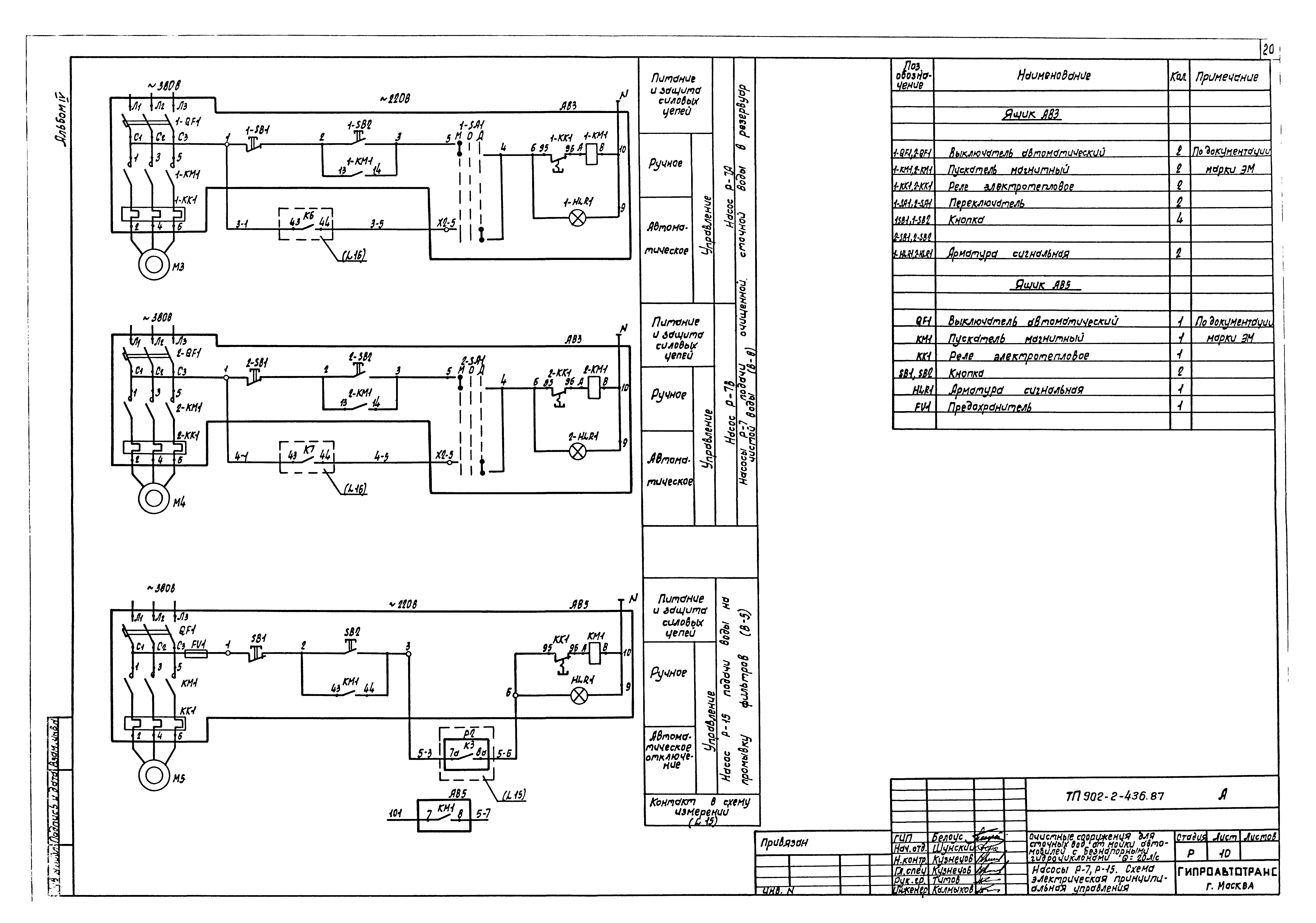
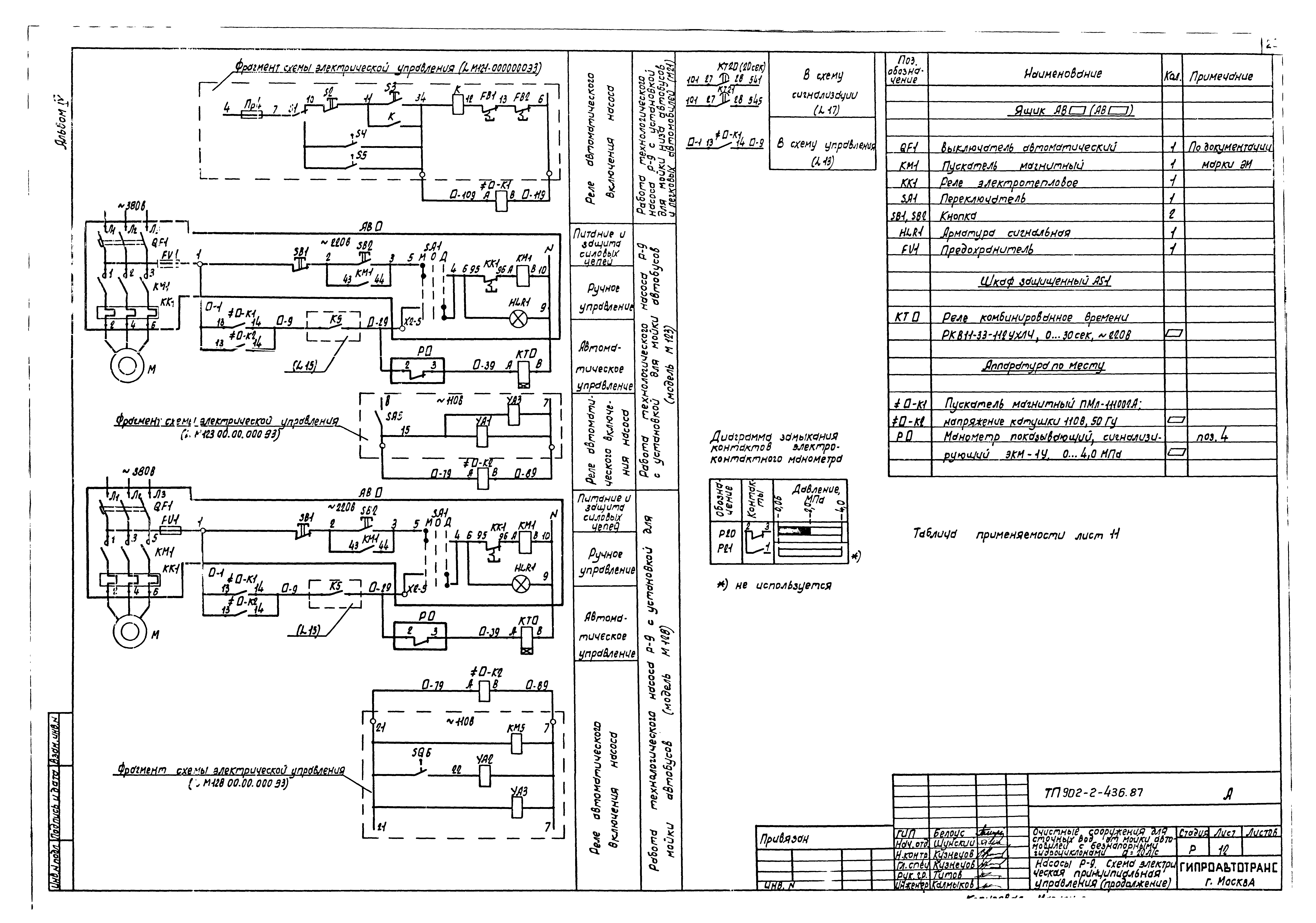
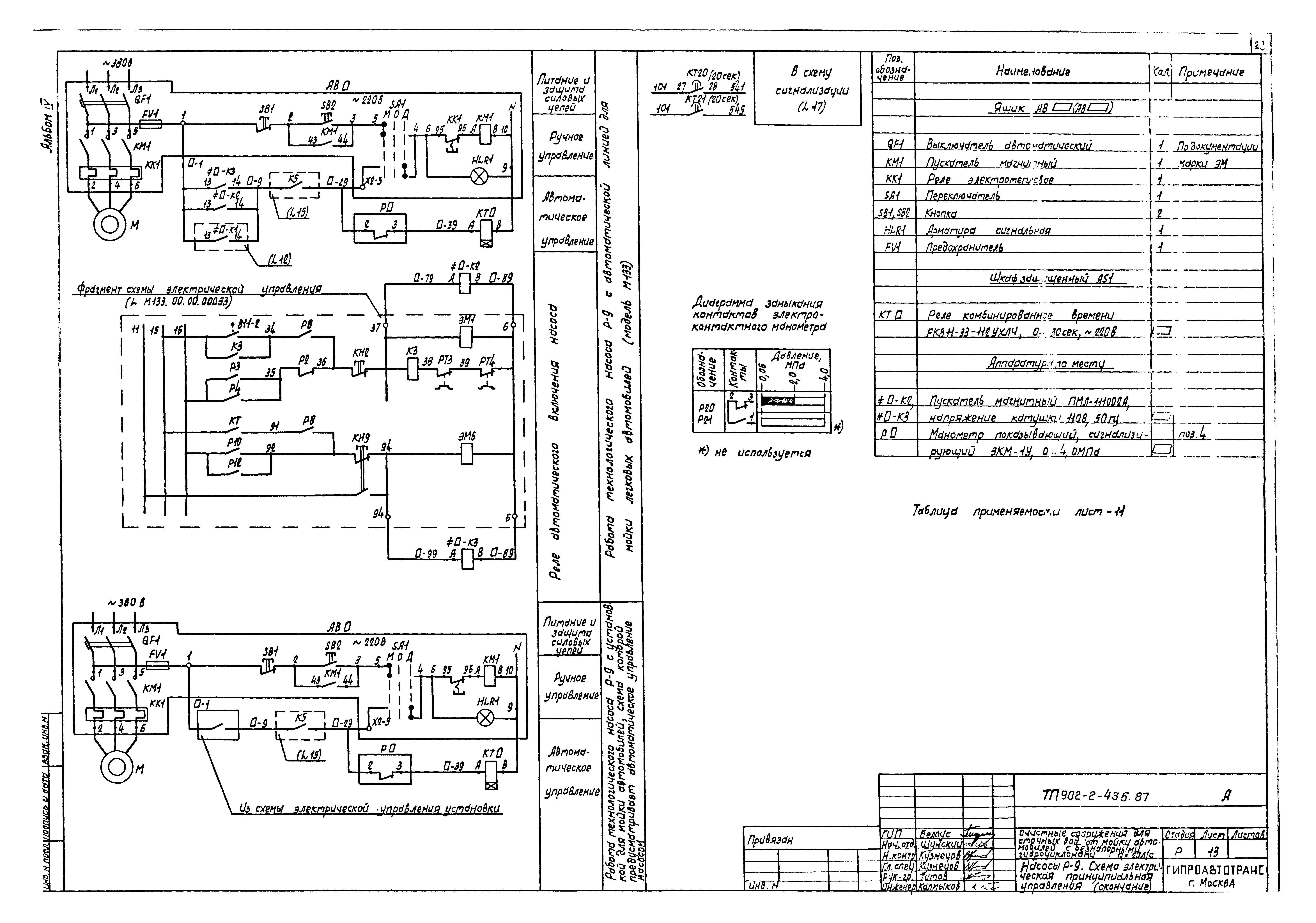
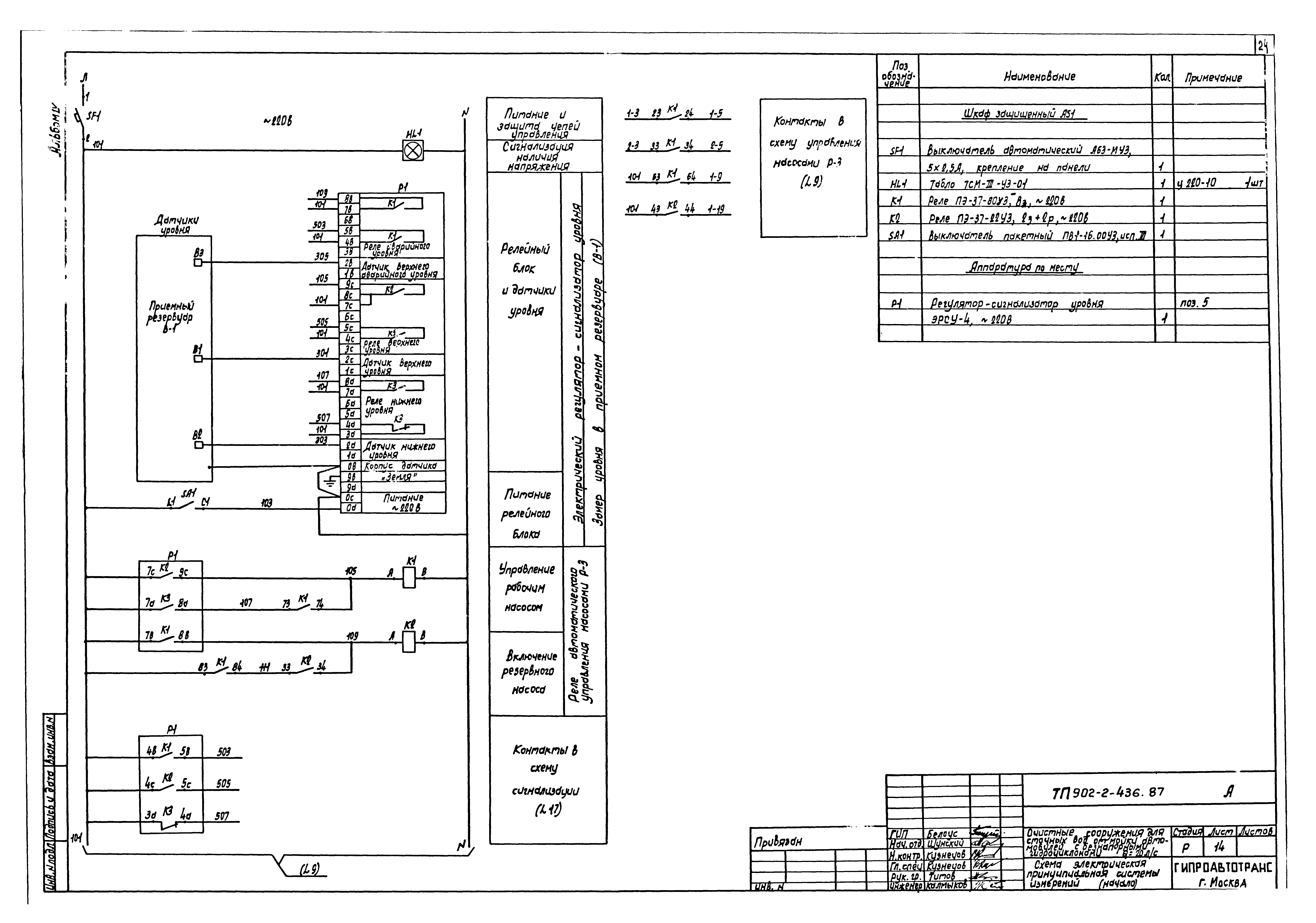
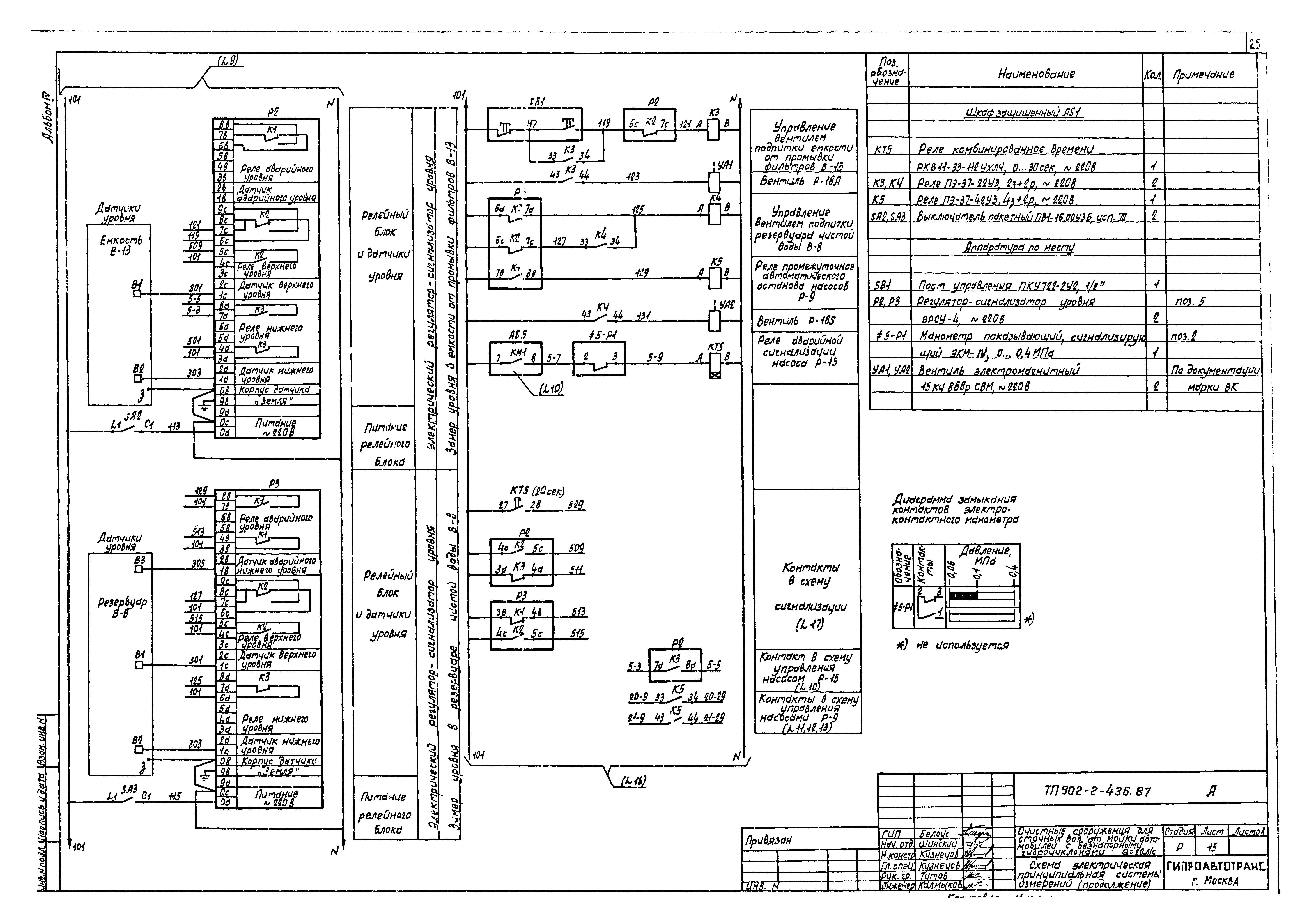
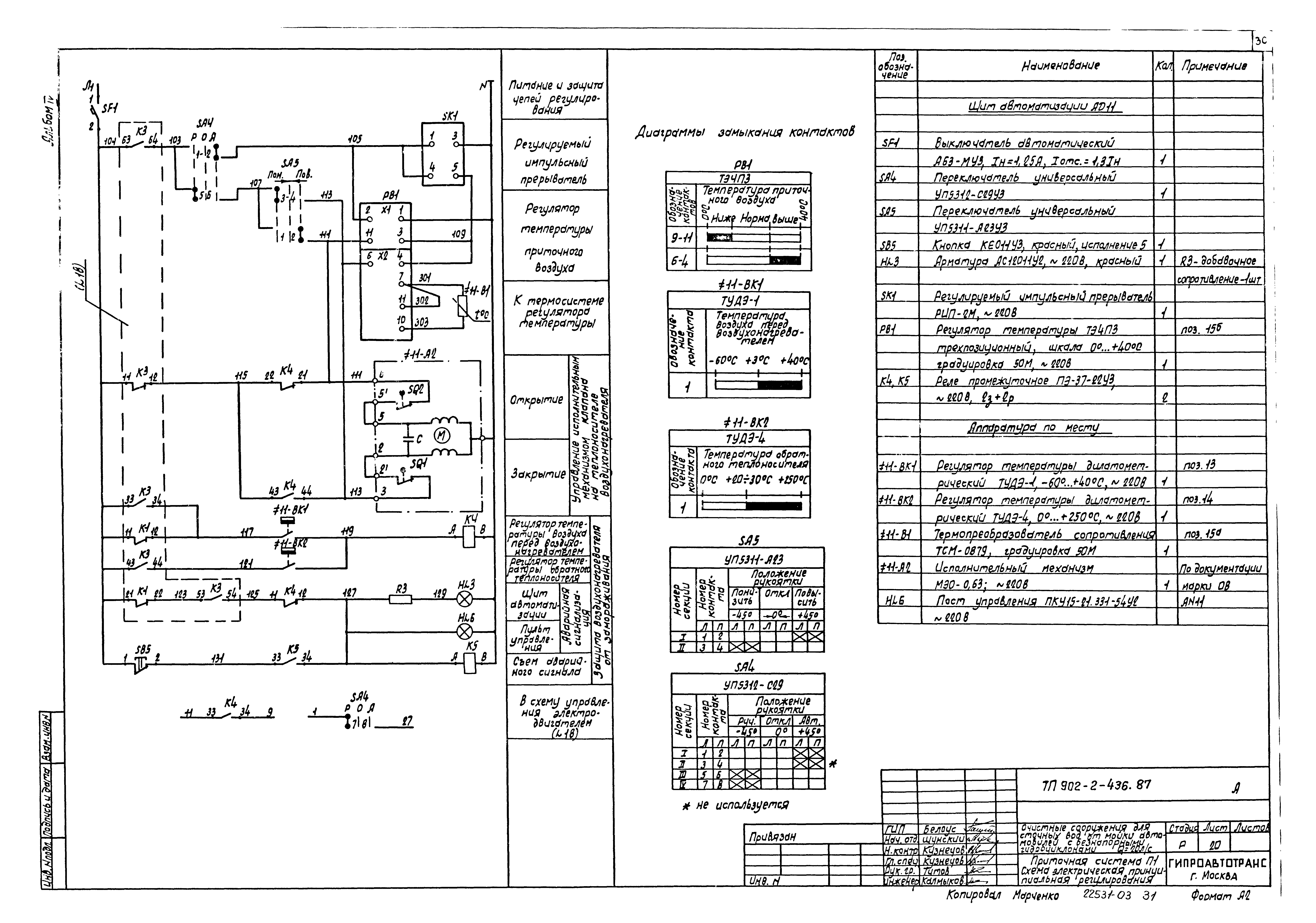
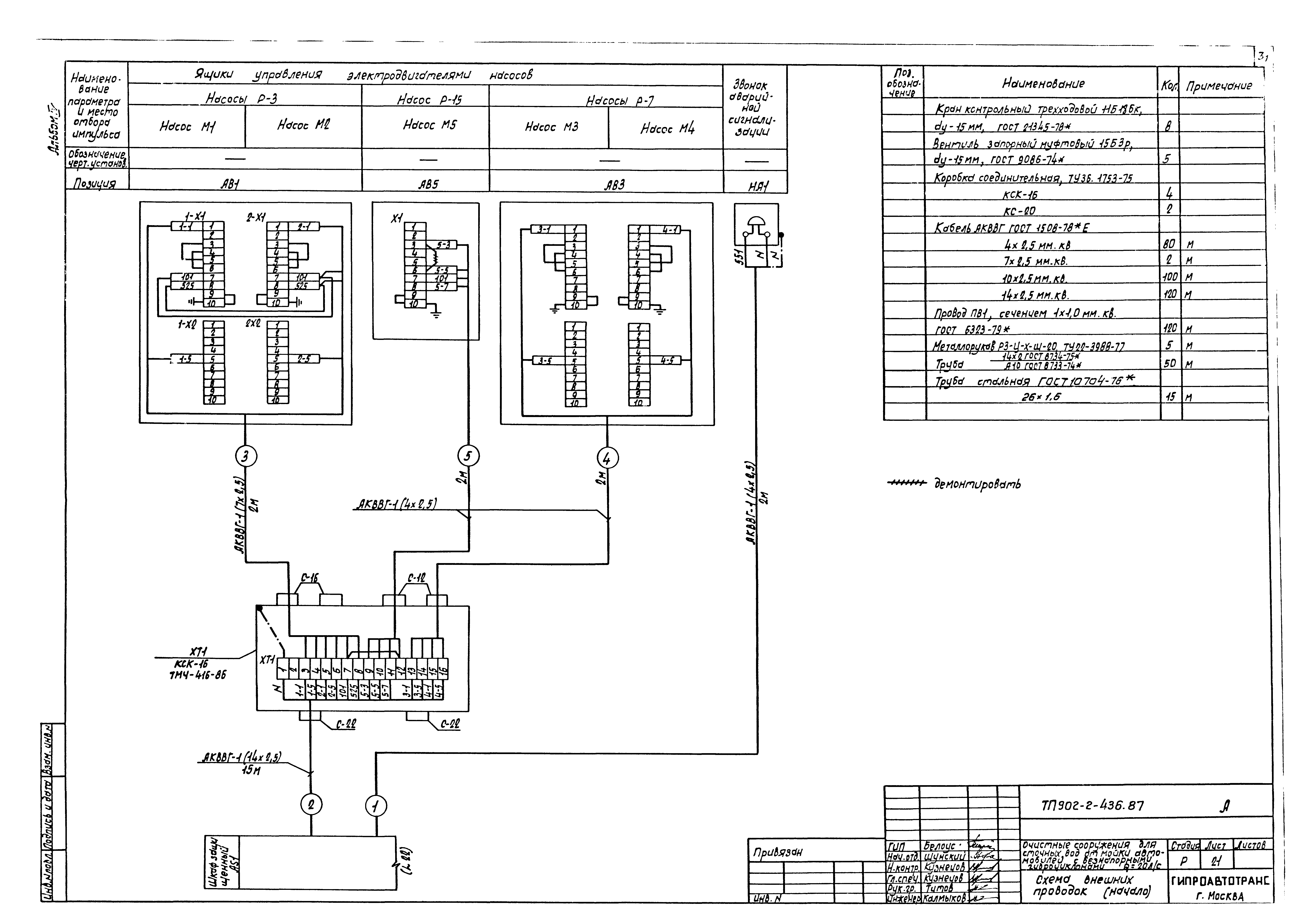
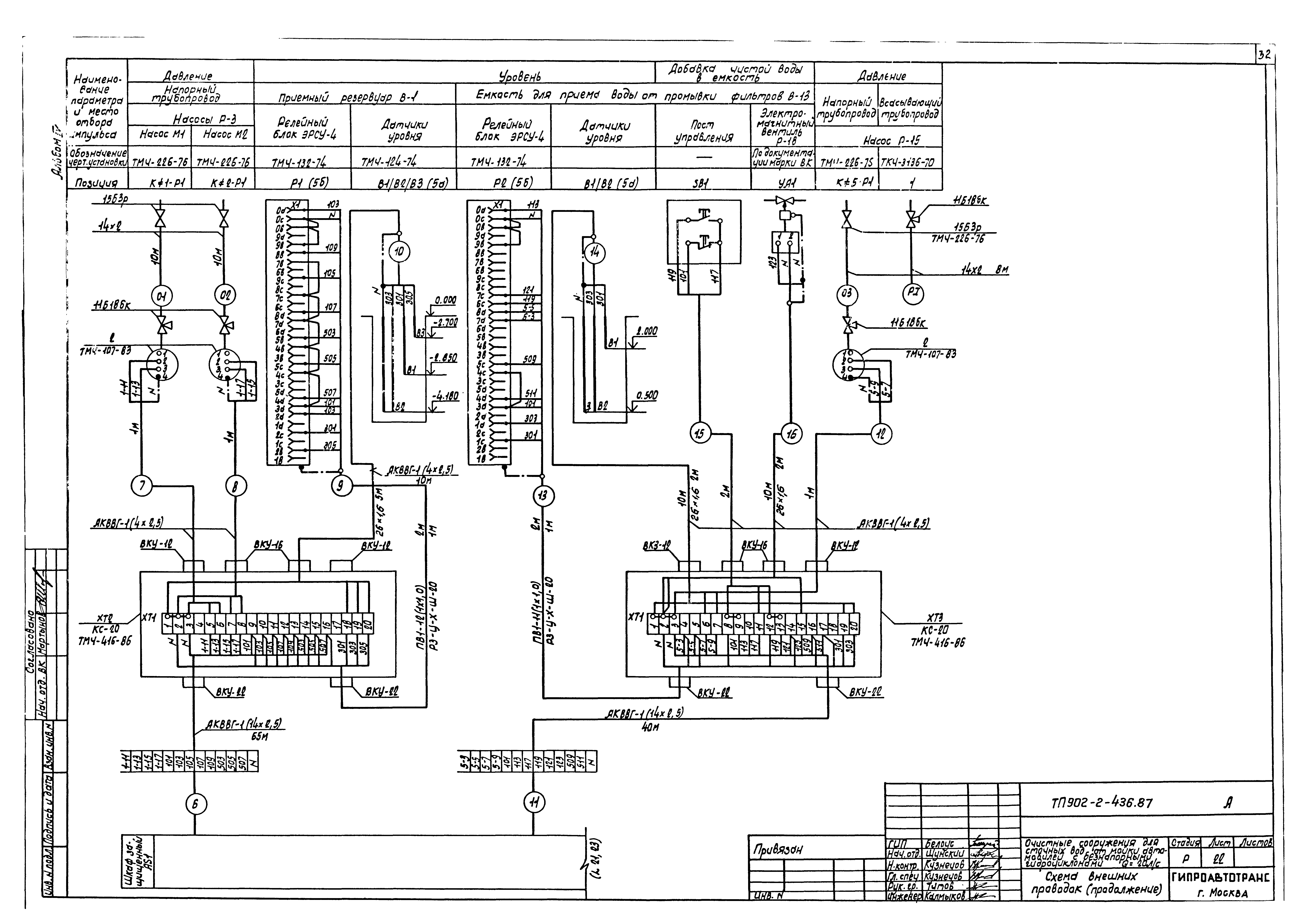
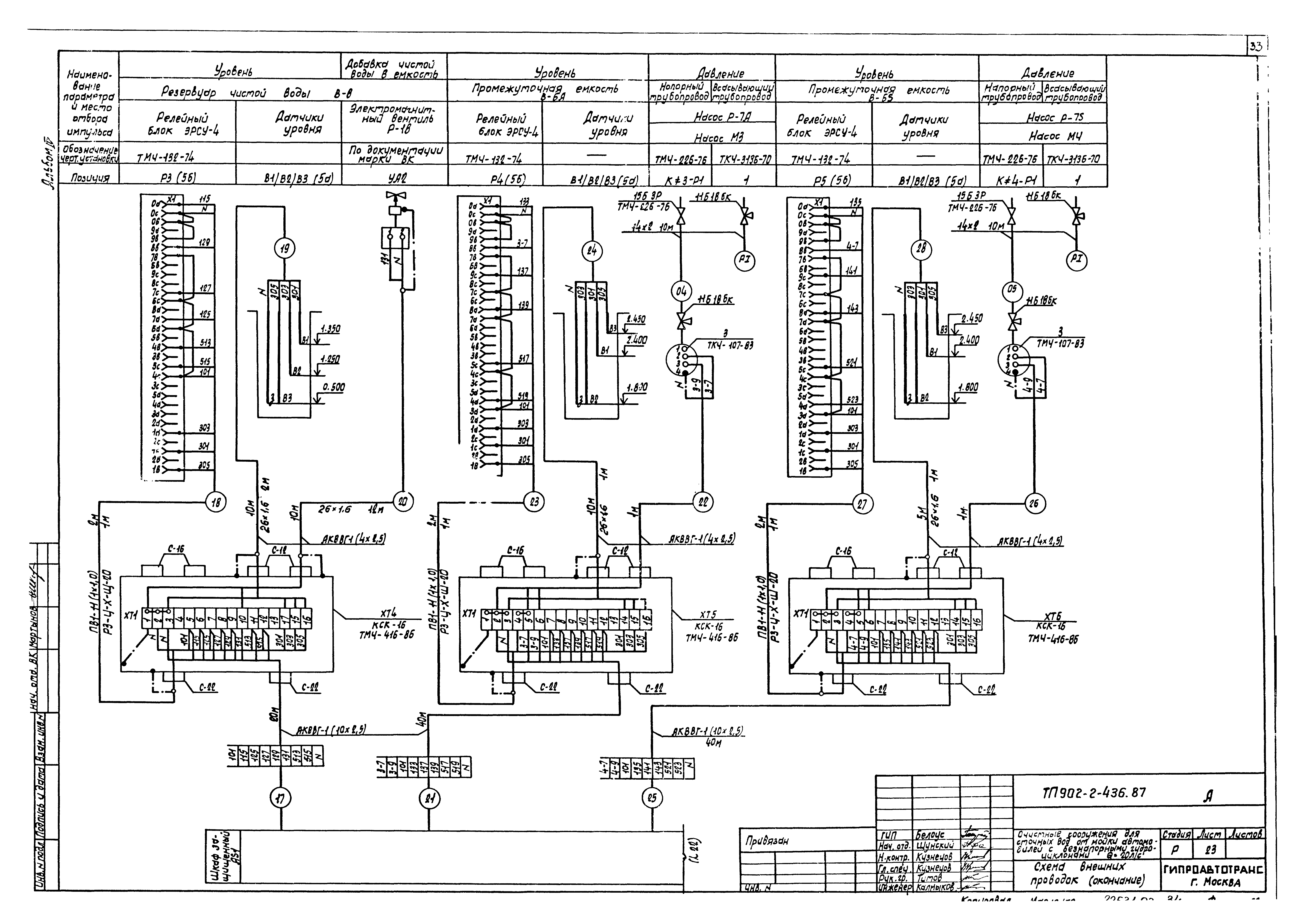
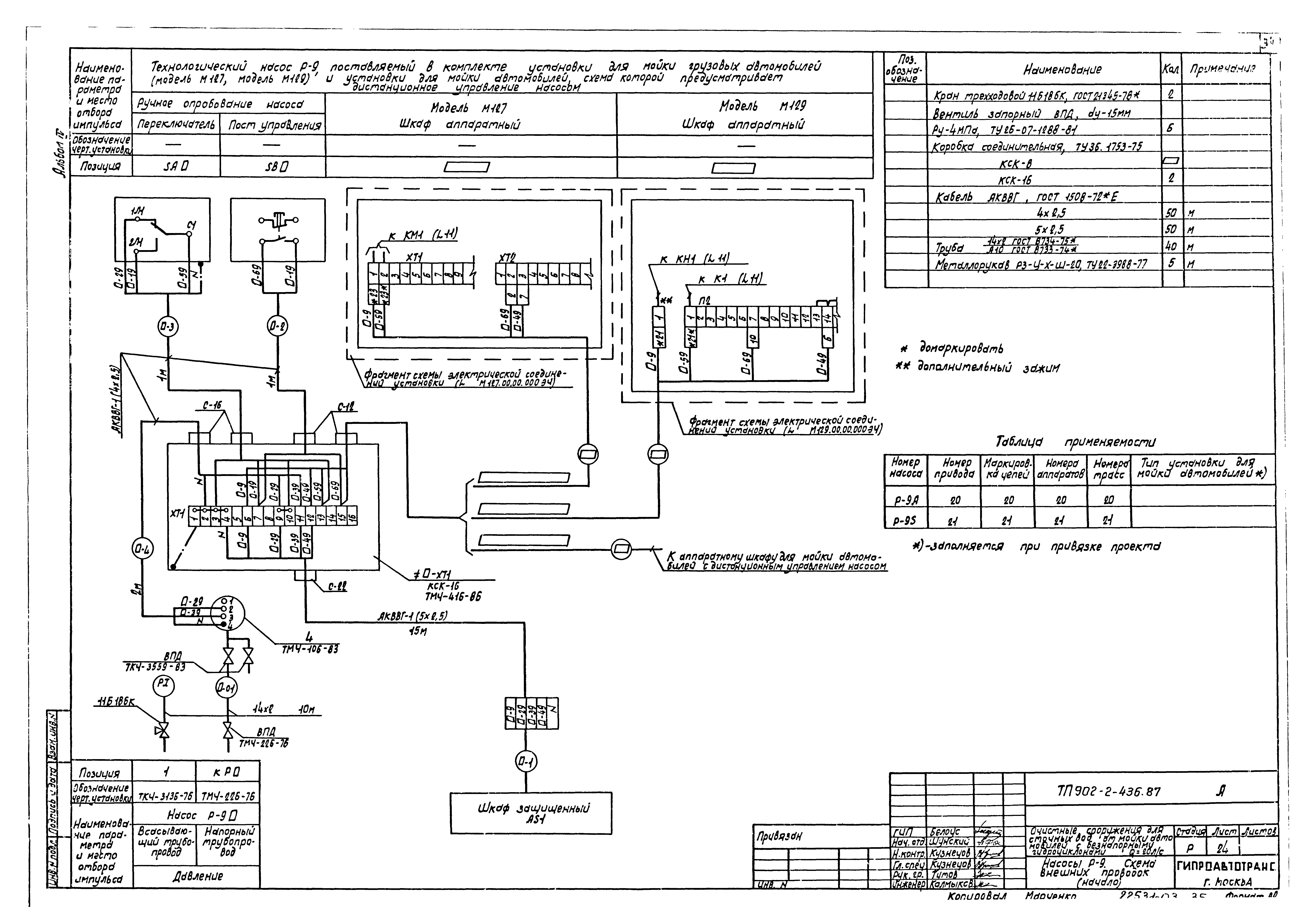
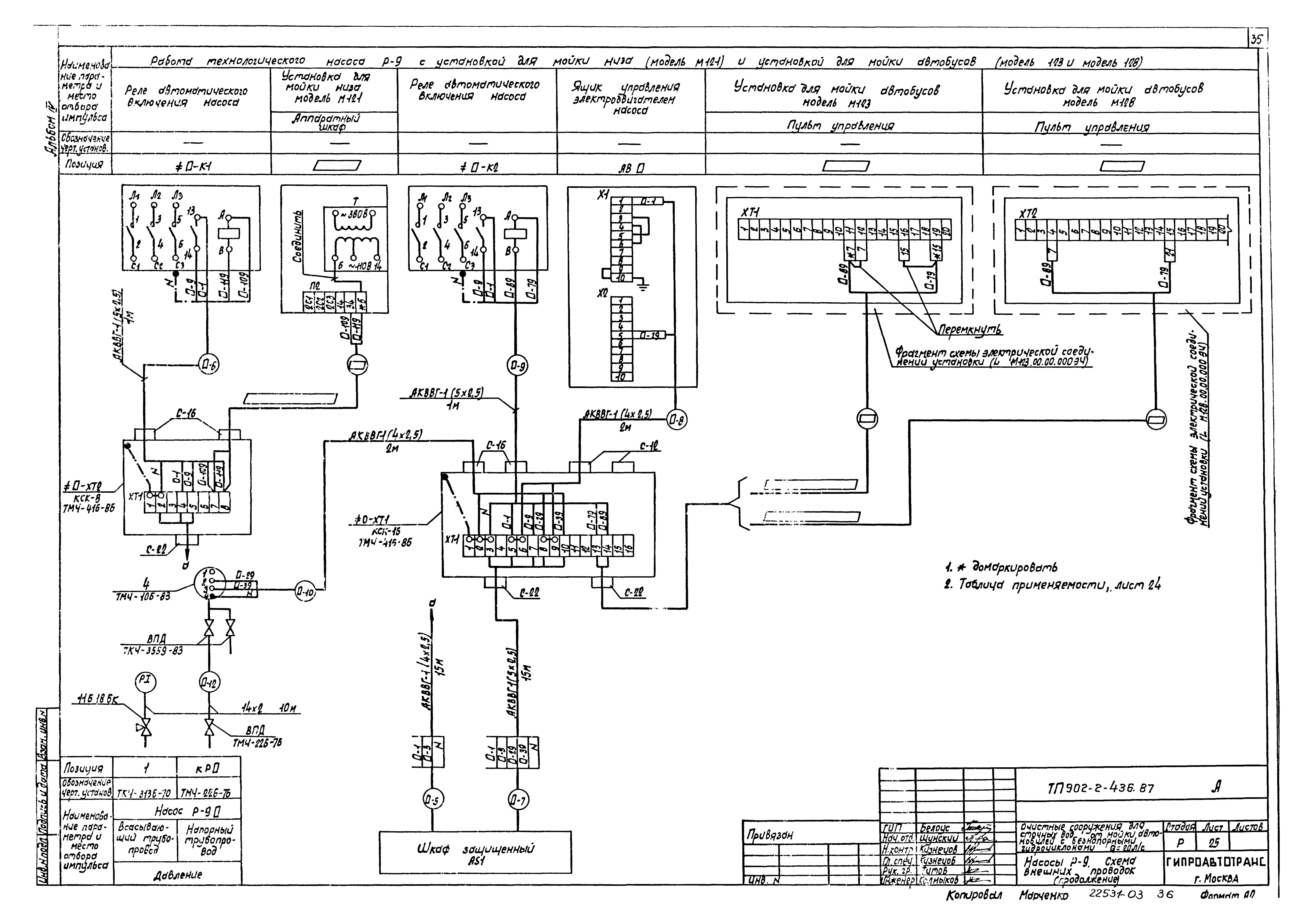
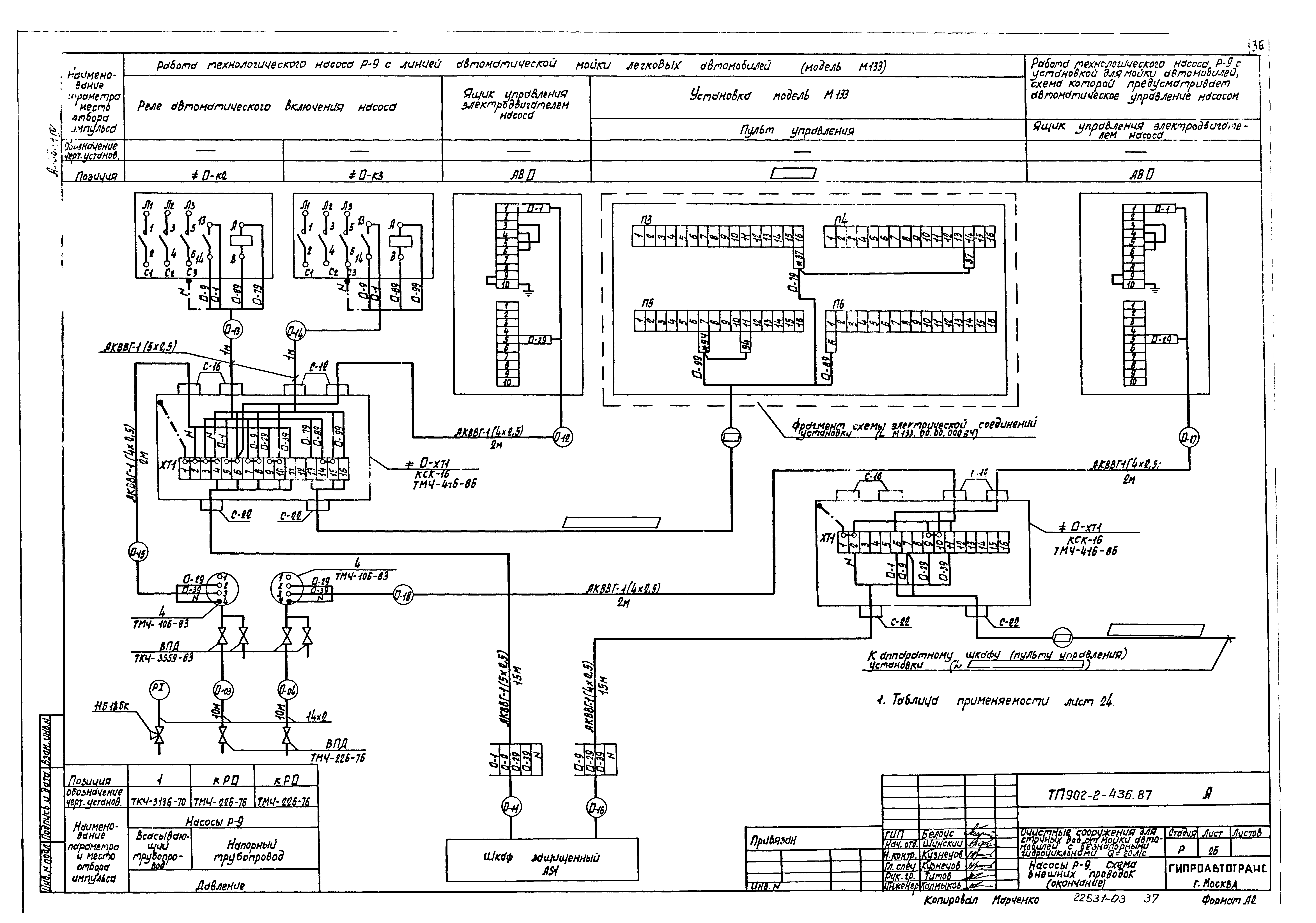
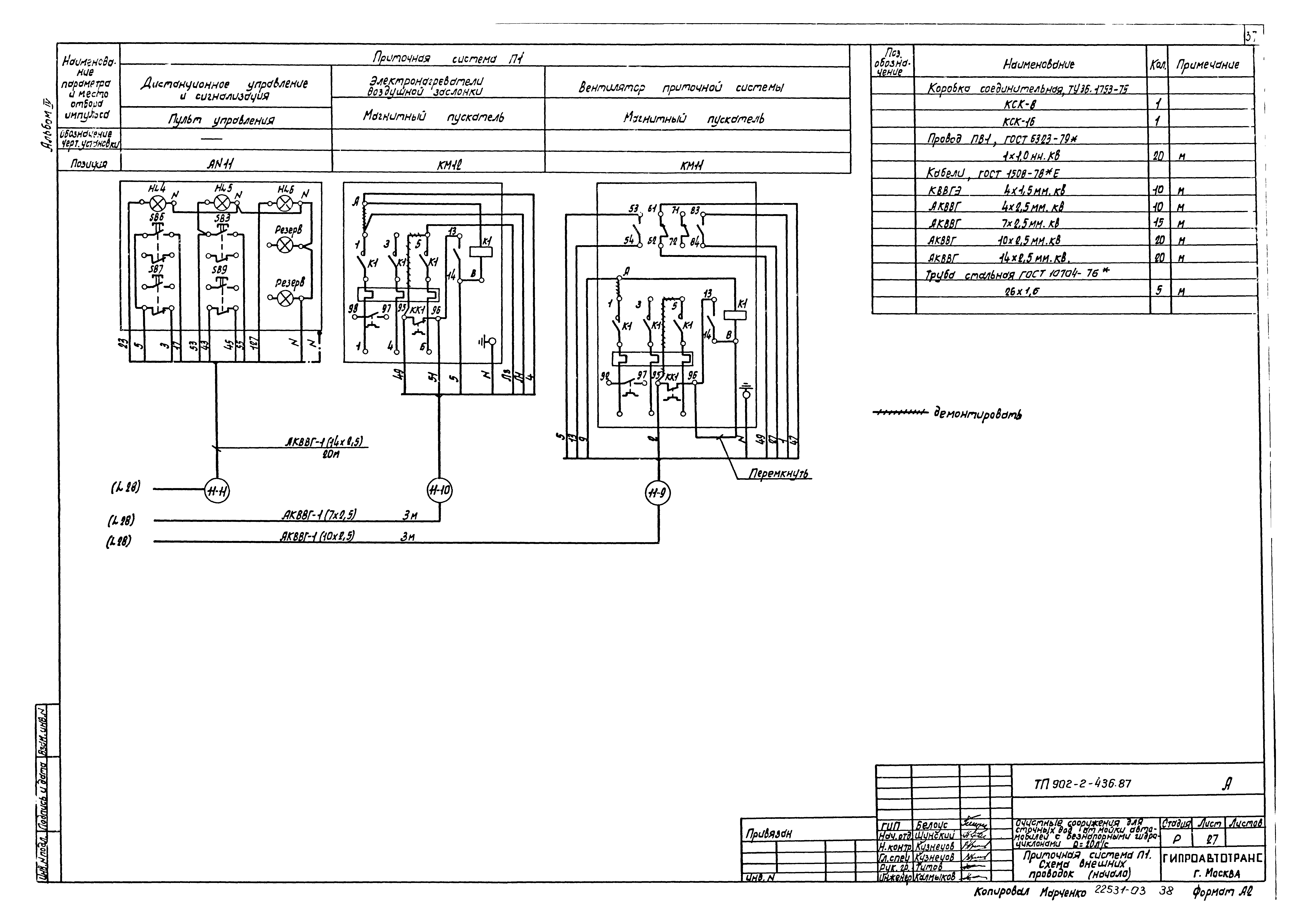
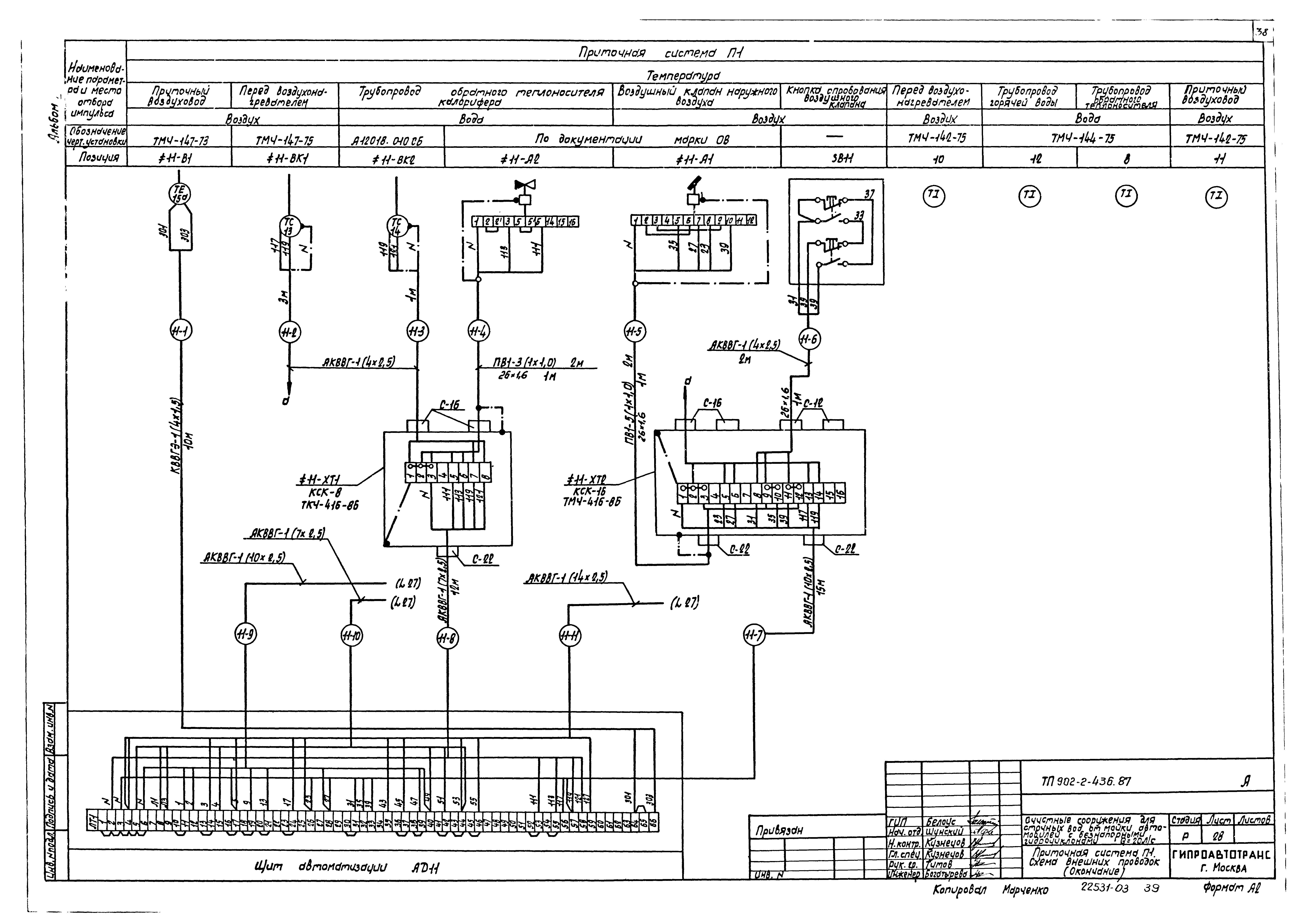
| Оглавление: | ТП 902-2-436.87-ЭМ Силовое электрооборудование ТП 902-2-436.87-ЭМ-1 Общие данные ТП 902-2-436.87-ЭМ-2 Распределительная сеть 380/220 В. Шкафы АР1,АР2. Схема принципиальная однолинейная ТП 902-2-436.87-ЭМ-3 Вентиляторы М9,М10,М13. Схема принципиальная управления. Цепи управления. Схема подключения ТП 902-2-436.87-ЭМ-4 Кабельный журнал. Сводка кабелей, проводов и труб, учтенных кабельным журналом ТП 902-2-436.87-ЭМ-5 Кабельная раскладка. Планы на отметках 0.000 и 3.600. План кровли ТП 902-2-436.87-ЭМ-6 Молниезащита. План и сечение ТП 902-2-436.87-ЭО Электроосвещение ТП 902-2-436.87-ЭО-1 Общие данные ТП 902-2-436.87-ЭО-2 Планы расположения на отметках 0.000 и 3.600 ТП 902-2-436.87-А Автоматизация ТП 902-2-436.87-А-1 Общие данные (начало) ТП 902-2-436.87-А-2 Общие данные (продолжение) ТП 902-2-436.87-А-3 Общие данные (окончание) ТП 902-2-436.87-А-4 Насосная. Схема функциональная (начало) ТП 902-2-436.87-А-5 Насосная. Схема функциональная (продолжение) ТП 902-2-436.87-А-6 Насосная. Схема функциональная (окончание) ТП 902-2-436.87-А-7 Тепловой узел. Схема функциональная. Схема внешних проводок ТП 902-2-436.87-А-8 Приточная система П1. Схема функциональная ТП 902-2-436.87-А-9 Насосы Р-3. Схема электрическая принципиальная управления ТП 902-2-436.87-А-10 Насосы Р-7,Р-15. Схема электрическая принципиальная управления ТП 902-2-436.87-А-11 Насосы Р-9. Схема электрическая принципиальная управления (начало) ТП 902-2-436.87-А-12 Насосы Р-9. Схема электрическая принципиальная управления (продолжение) ТП 902-2-436.87-А-13 Насосы Р-9. Схема электрическая принципиальная управления (окончание) ТП 902-2-436.87-А-14 Схема электрическая принципиальная системы измерений (начало) ТП 902-2-436.87-А-15 Схема электрическая принципиальная системы измерений (продолжение) ТП 902-2-436.87-А-16 Схема электрическая принципиальная системы измерений (окончание) ТП 902-2-436.87-А-17 Схема электрическая принципиальная сигнализации ТП 902-2-436.87-А-18 Приточная система П1. Схема электрическая принципиальная управления (начало) ТП 902-2-436.87-А-19 Приточная система П1. Схема электрическая принципиальная управления (окончание) ТП 902-2-436.87-А-20 Приточная система П1. Схема электрическая принципиальная регулирования ТП 902-2-436.87-А-21 Схема внешних проводок (начало) ТП 902-2-436.87-А-22 Схема внешних проводок (продолжение) ТП 902-2-436.87-А-23 Схема внешних проводок (окончание) ТП 902-2-436.87-А-24 Насосы Р-9. Схема внешних проводок (начало) ТП 902-2-436.87-А-25 Насосы Р-9. Схема внешних проводок (продолжение) ТП 902-2-436.87-А-26 Насосы Р-9. Схема внешних проводок (окончание) ТП 902-2-436.87-А-27 Приточная система П1. Схема внешних проводок (начало) ТП 902-2-436.87-А-28 Приточная система П1. Схема внешних проводок (окончание) ТП 902-2-436.87-А-29 План расположения (начало) ТП 902-2-436.87-А-30 План расположения (окончание) ТП 902-2-436.87-СС Связь и сигнализация ТП 902-2-436.87-СС-1 Общие данные. План расположения сетей на отм. 3.600 между осями 4-5 и А-В |
| Разработан: | Гипроавтотранс |
| Утверждён: | 01.10.1987 Минавтотранс РСФСР (Russian Federation Minavtotrans 11) |
| Заменяет собой: | |
| Чем заменён: |









































