Скачать Типовой проект 903-1-200 Альбом 4.6. Водоподготовительная установка. Технология общего потокаДата актуализации: 01.01.2021
|
| Обозначение: | Типовой проект 903-1-200 |
| Обозначение англ: | 903-1-200 |
| Статус: | действует |
| Название рус.: | Альбом 4.6. Водоподготовительная установка. Технология общего потока |
| Дата добавления в базу: | 01.09.2013 |
| Дата актуализации: | 01.01.2021 |
| Дата введения: | 01.07.1984 |
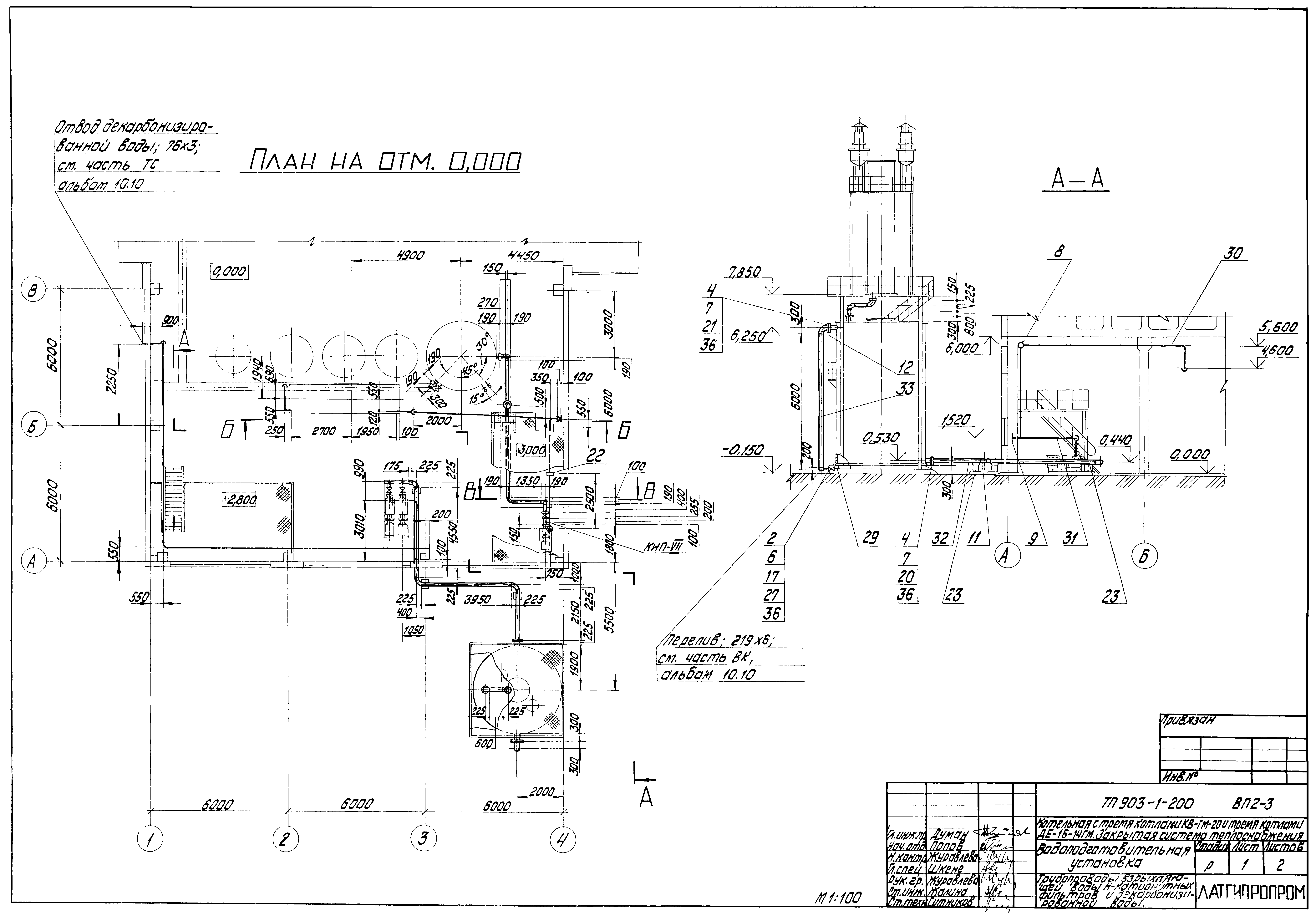
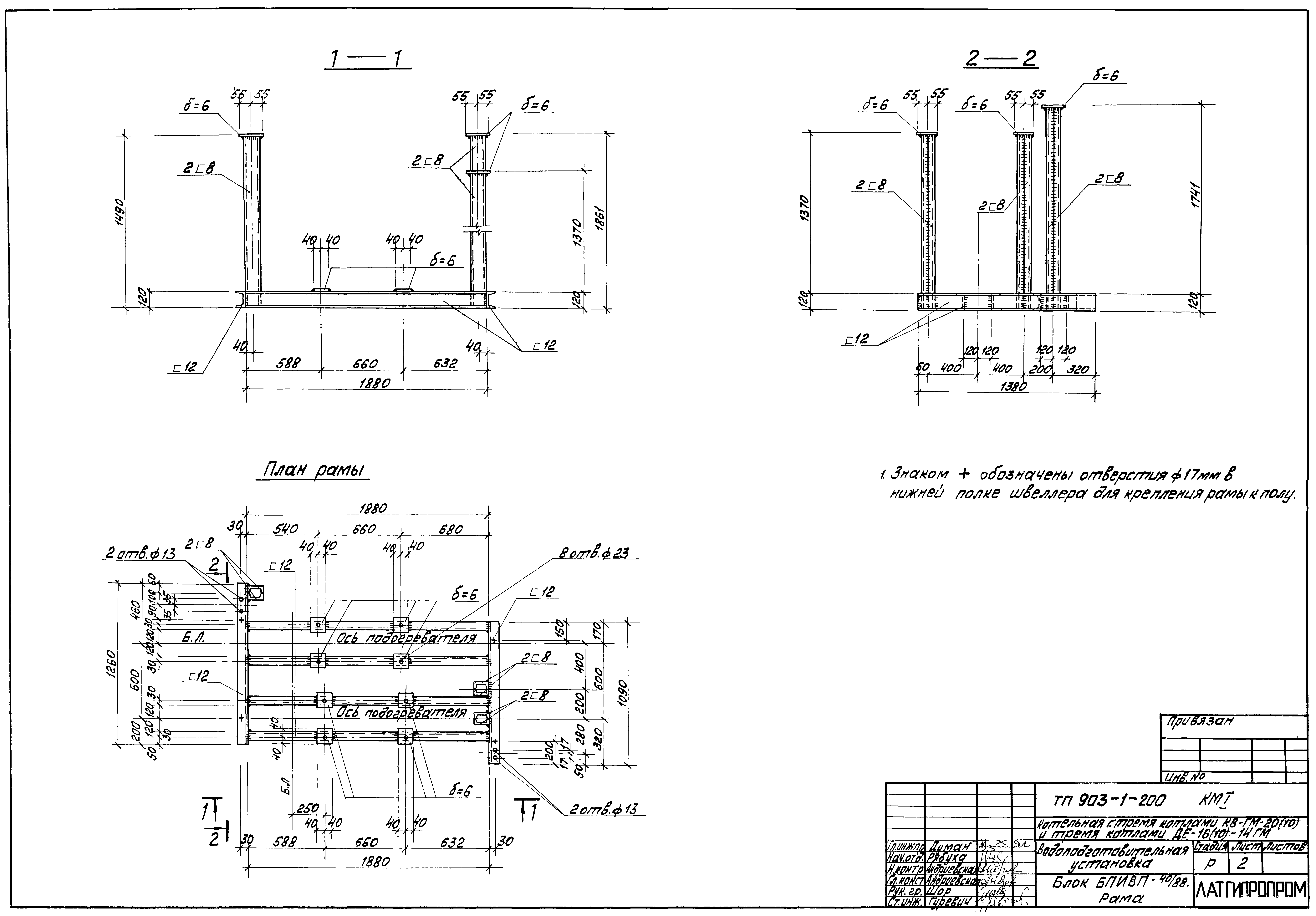
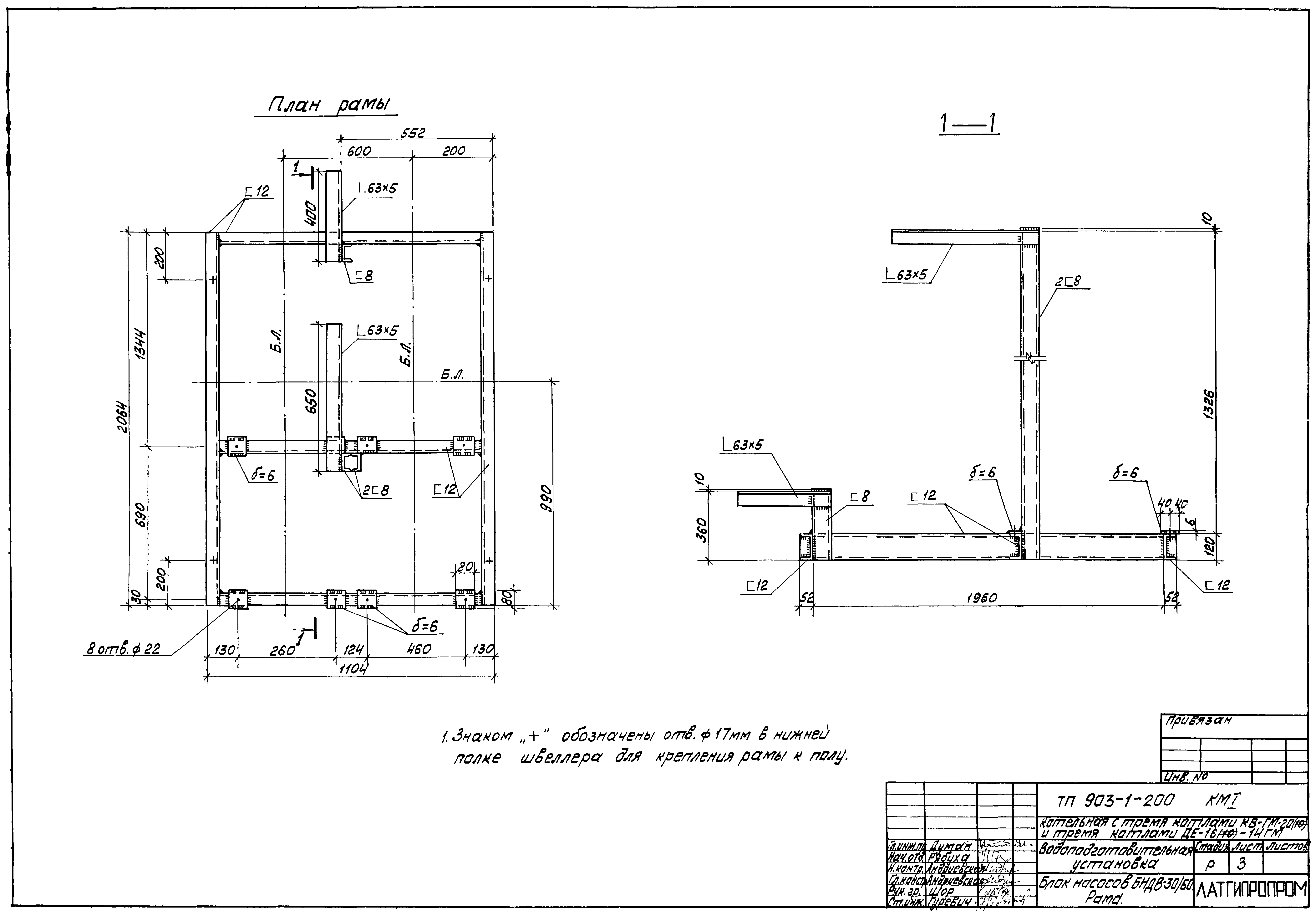
| Оглавление: | ТП 903-1-200 Содержание альбома ТП 903-1-200-ВП2 Водоподготовительная установка ТП 903-1-200-ВП2-1 Общие данные ТП 903-1-200-ВП2-2 Лист 1 Трубопроводы исходной и Н-катионированной воды ТП 903-1-200-ВП2-2 Лист 2 Трубопроводы исходной и Н-катионированной воды ТП 903-1-200-ВП2-3 Лист 1 Трубопроводы взрыхляющей воды Н-катионитных фильтров и декарбонизированной воды ТП 903-1-200-ВП2-3 Лист 2 Трубопроводы взрыхляющей воды Н-катионитных фильтров и декарбонизированной воды ТП 903-1-200-ВП2-4 Трубопроводы регенерационного раствора кислоты, гидроперегрузки и обвязки корпусов фильтров ТП 903-1-200-ВП2-5 Трубопроводы удаления газа из декарбонизатора ТП 903-1-200-ВП2-6 Лист 1 Ведомость работ по тепловой изоляции и антикоррозийным покрытиям ТП 903-1-200-ВП2-6 Лист 2 Ведомость работ по тепловой изоляции и антикоррозийным покрытиям ТП 903-1-200-ВП2-7 Лист 1 Блок БНДВ-30/60 ТП 903-1-200-ВП2-7 Лист 2 Блок БНИВ-30/60 ТП 903-1-200-ВП2-8 Лист 1 Блок БНИВ-30/60 ТП 903-1-200-ВП2-8 Лист 2 Блок БНДВ-30/60 ТП 903-1-200-ВП2-9 Лист 1 Блок БПИВП-40/88 ТП 903-1-200-ВП2-9 Лист 2 Блок БПИВП-40/88 ТП 903-1-200-ВП2-10 Лист 1 Блок БУ-Н-2000х3 ТП 903-1-200-ВП2-10 Лист 2 Блок БУ-Н-2000х3 ТП 903-1-200-ВП2-11 Трубопроводы пара и конденсата ТП 903-1-200-КМ1 Конструкции металлические ТП 903-1-200-КМ1-1 Общие данные. Схемы расположения рам под блоки ТП 903-1-200-КМ1-2 Блок БПИВП-40/88. Рама ТП 903-1-200-КМ1-3 Блок насосов БНДВ-30/60. Рама ТП 903-1-200-КМ1-4 Блок насосов БНИВ-30/60. Рама ТП 903-1-200-КМ1-5 Блок БУ-Н-2000х3. Рама |
| Разработан: | Латгипропром |
| Утверждён: | 10.11.1983 Главпромстройпроект Госстроя СССР (41) |



























