Скачать Типовой проект 903-1-200 Альбом 4.9. Водоподготовительная установка. Реагентное хозяйствоДата актуализации: 01.01.2021
|
| Обозначение: | Типовой проект 903-1-200 |
| Обозначение англ: | 903-1-200 |
| Статус: | действует |
| Название рус.: | Альбом 4.9. Водоподготовительная установка. Реагентное хозяйство |
| Дата добавления в базу: | 01.09.2013 |
| Дата актуализации: | 01.01.2021 |
| Дата введения: | 01.07.1984 |
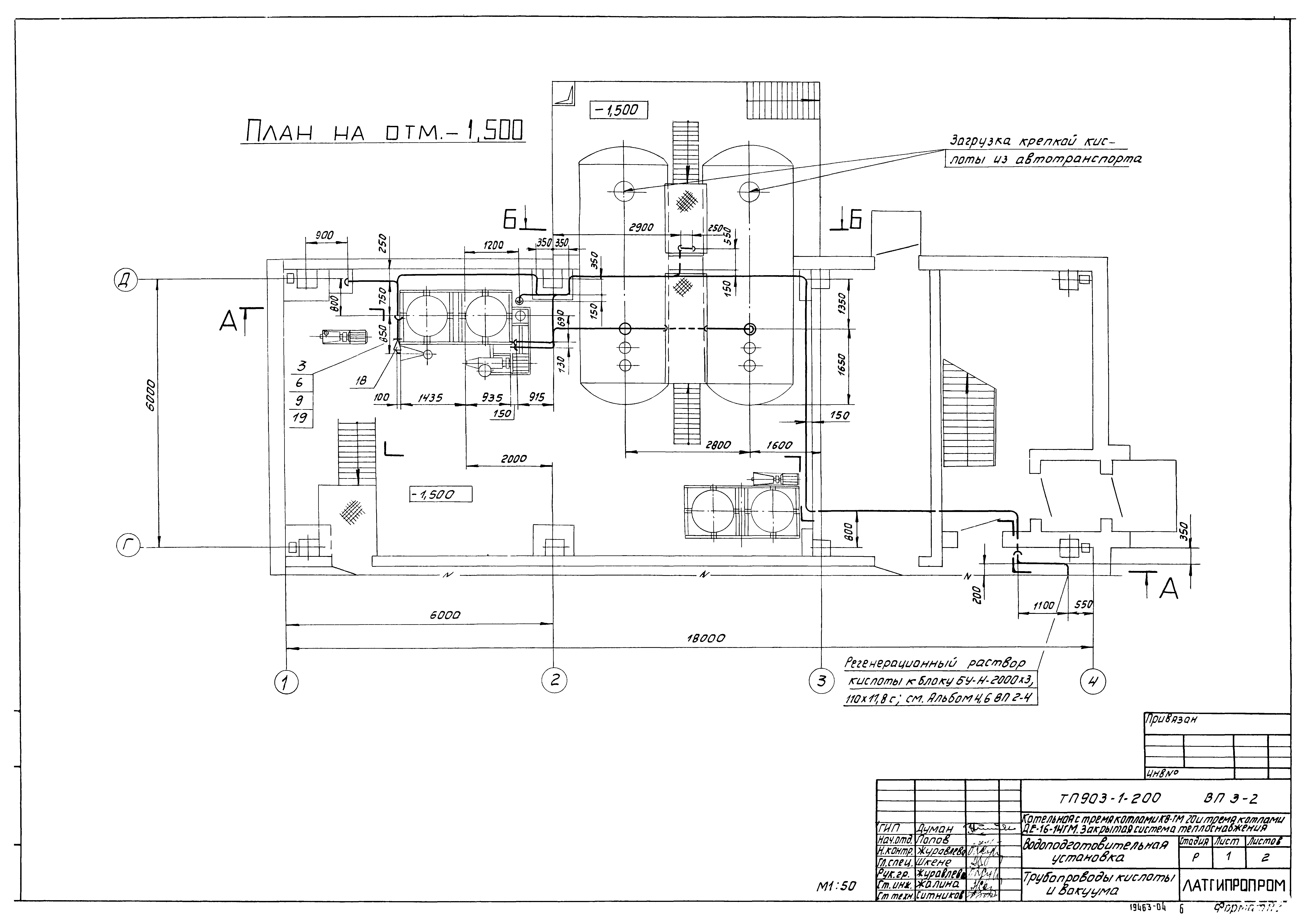
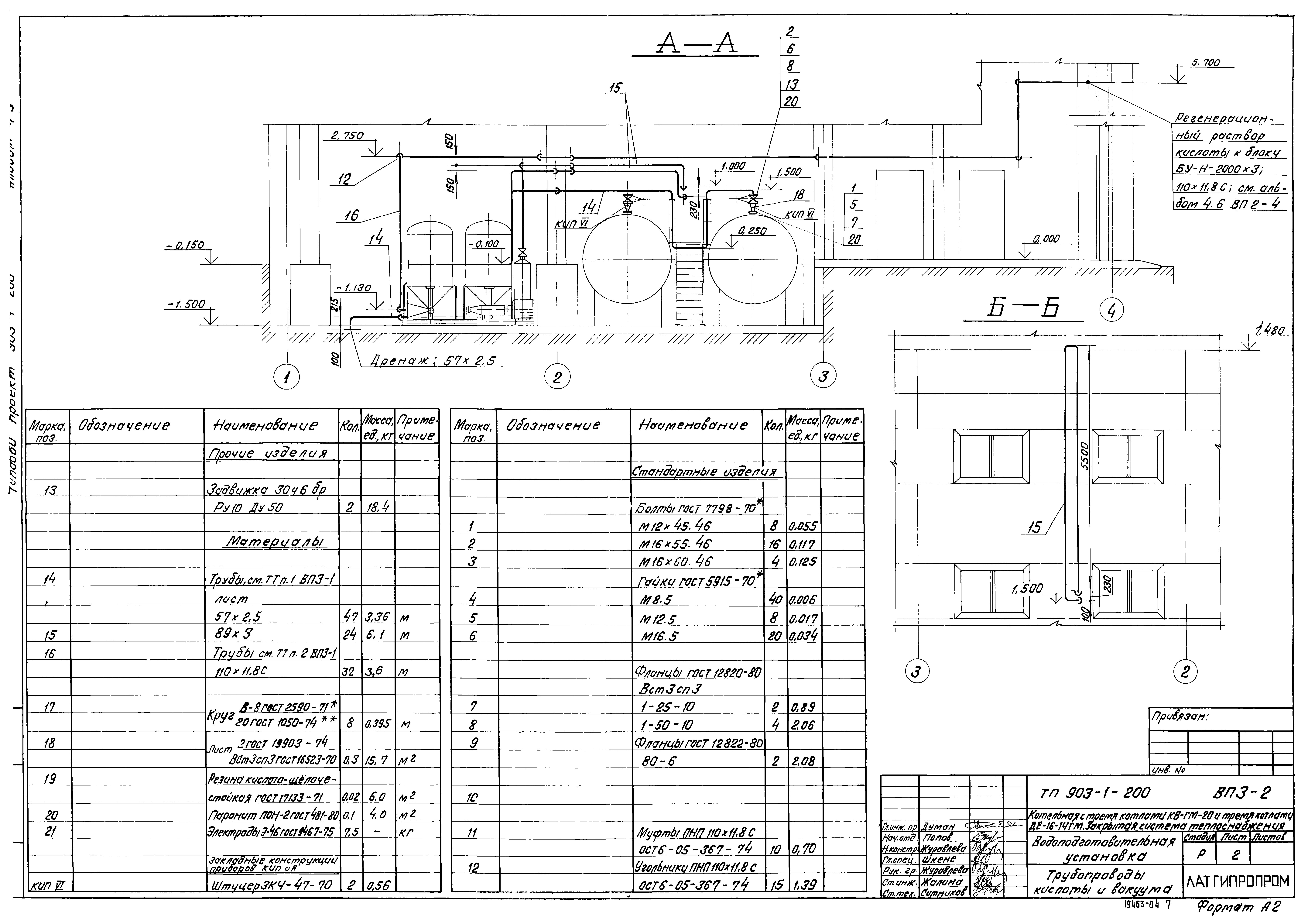
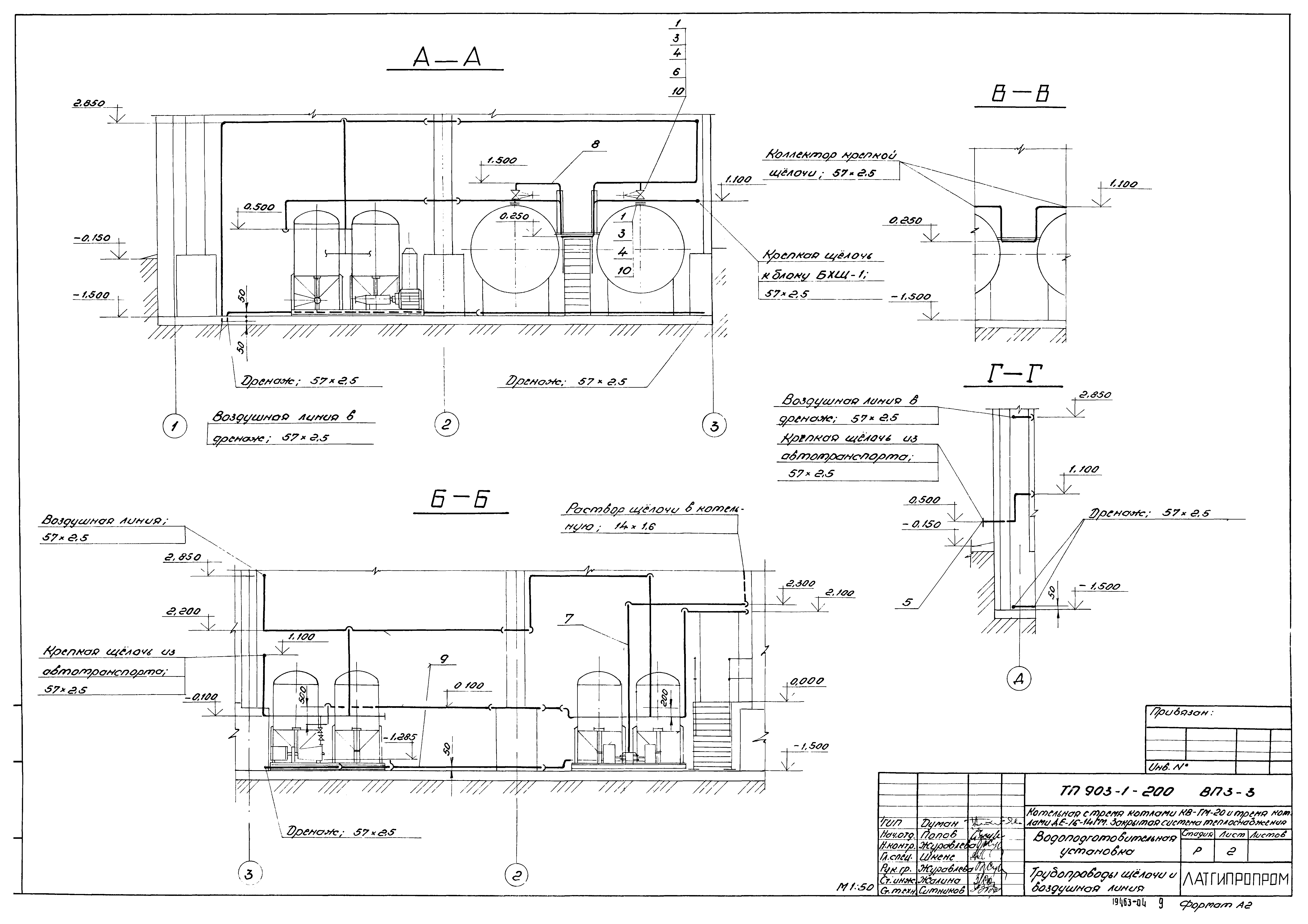
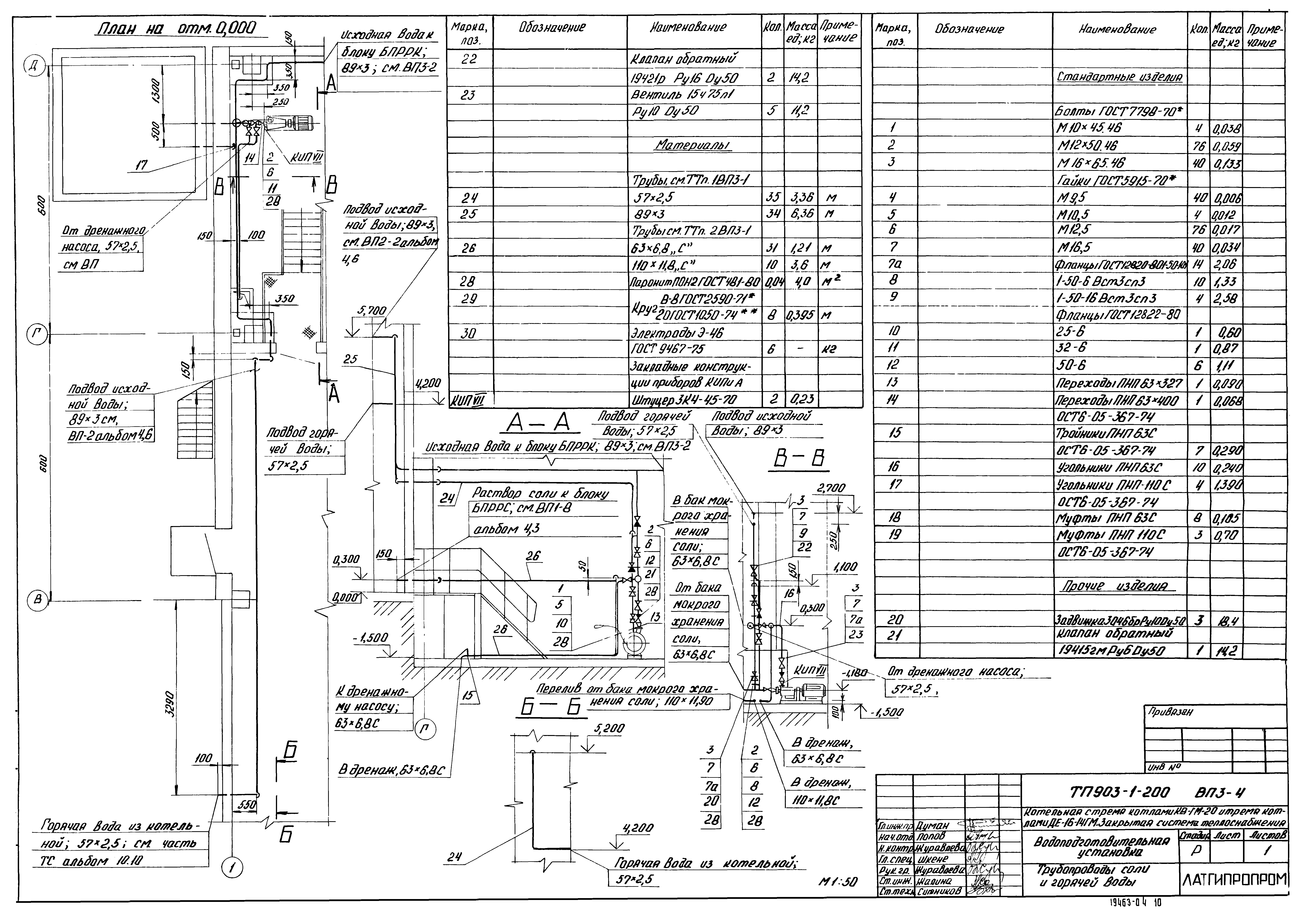
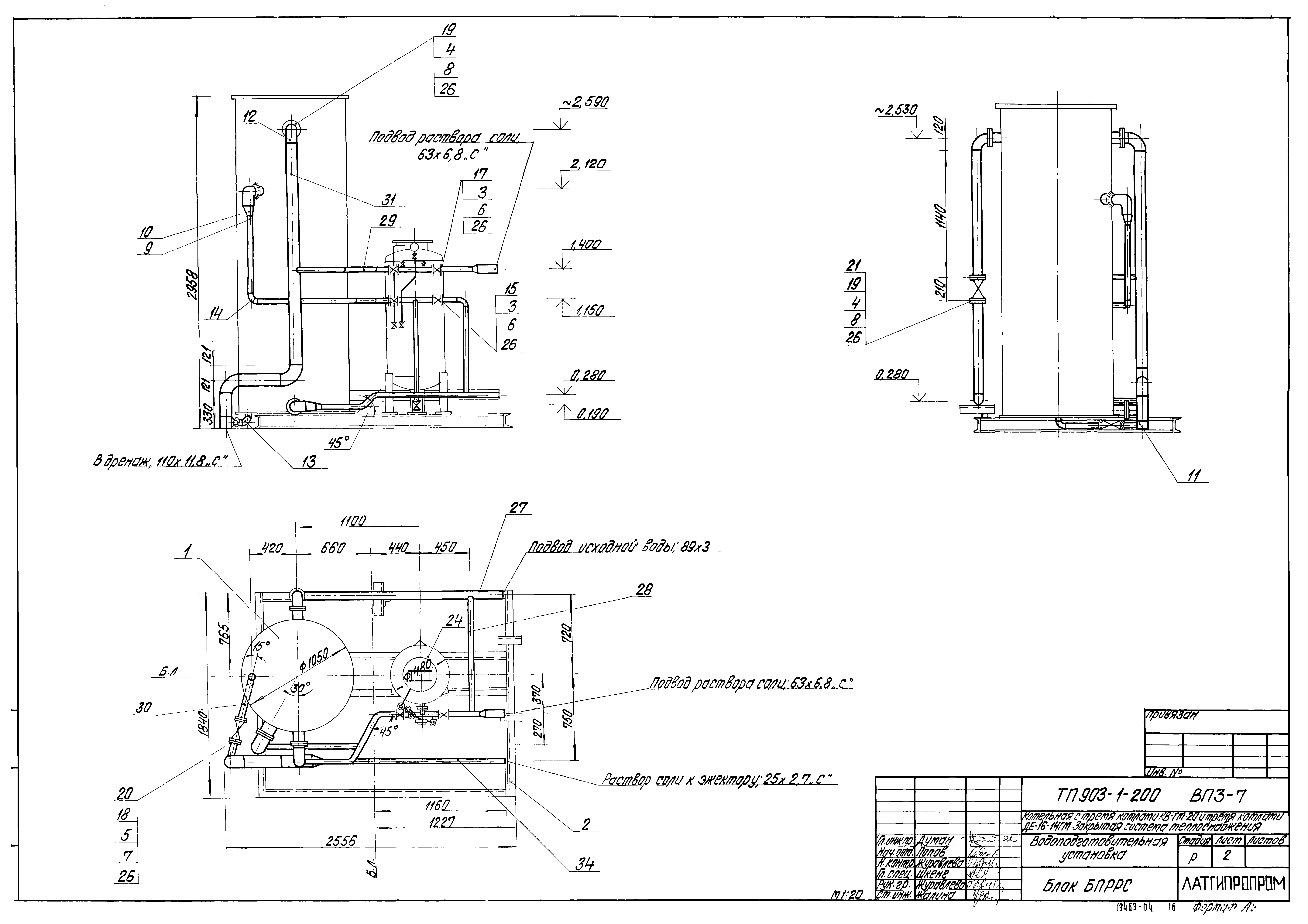
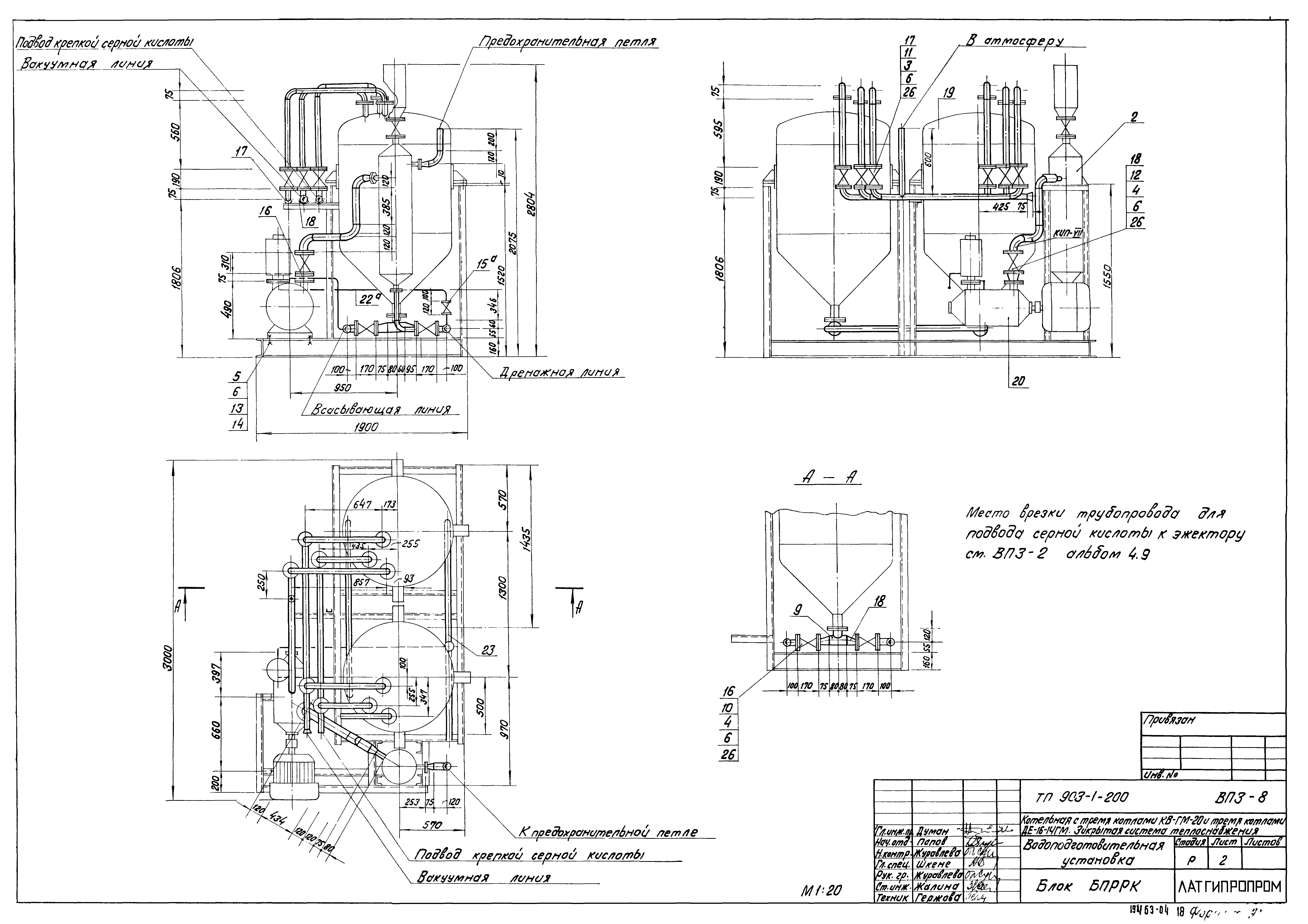
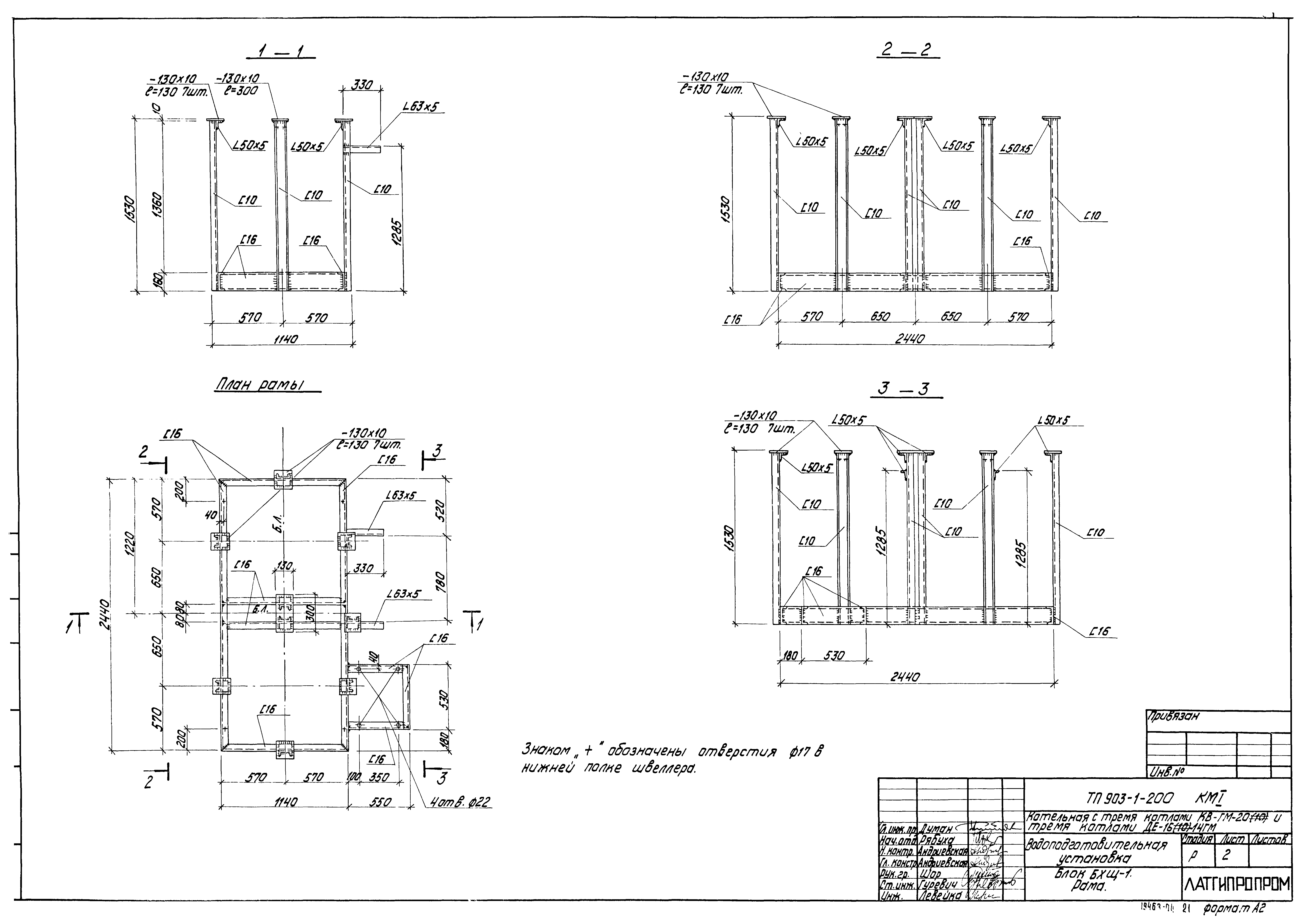
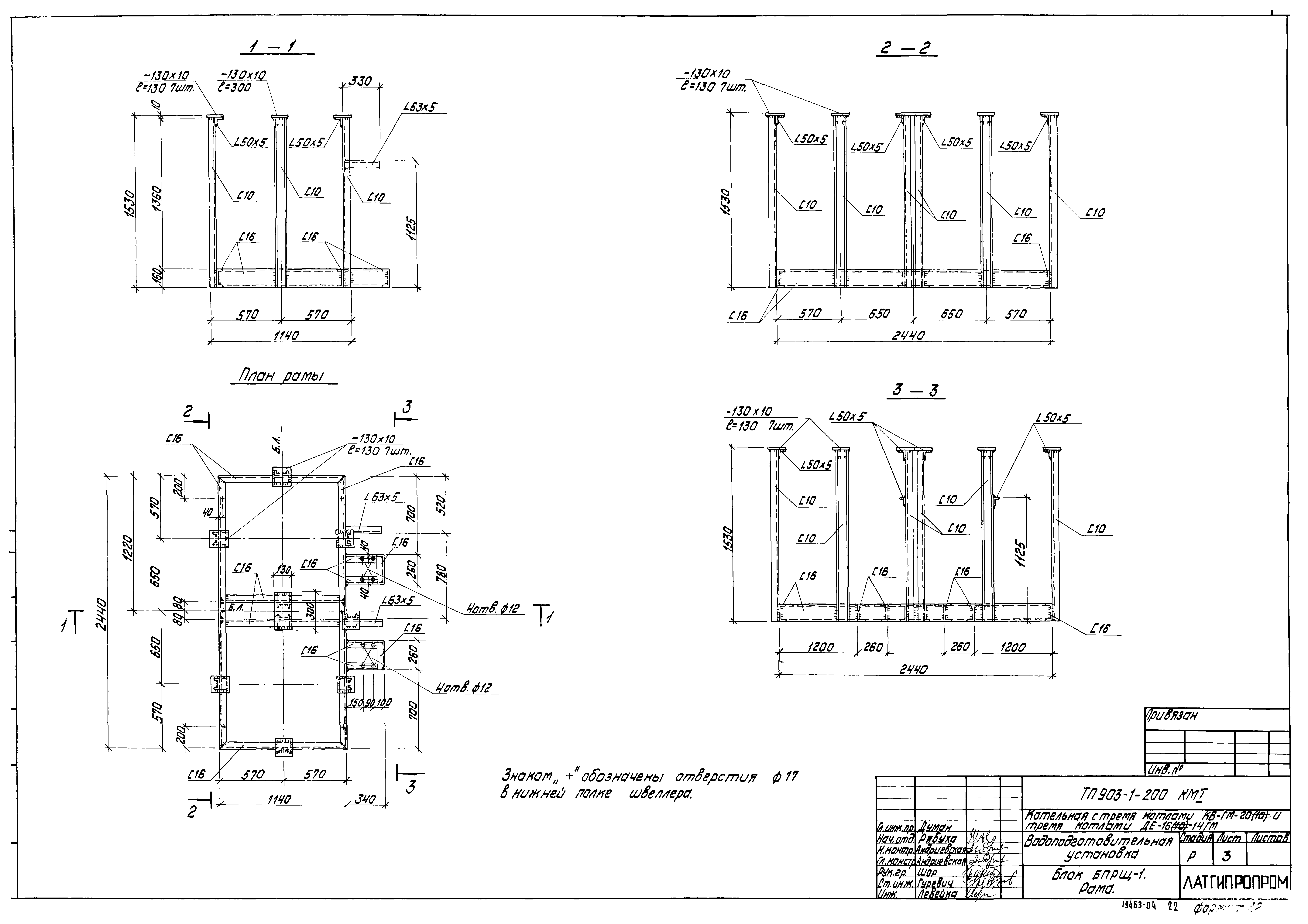
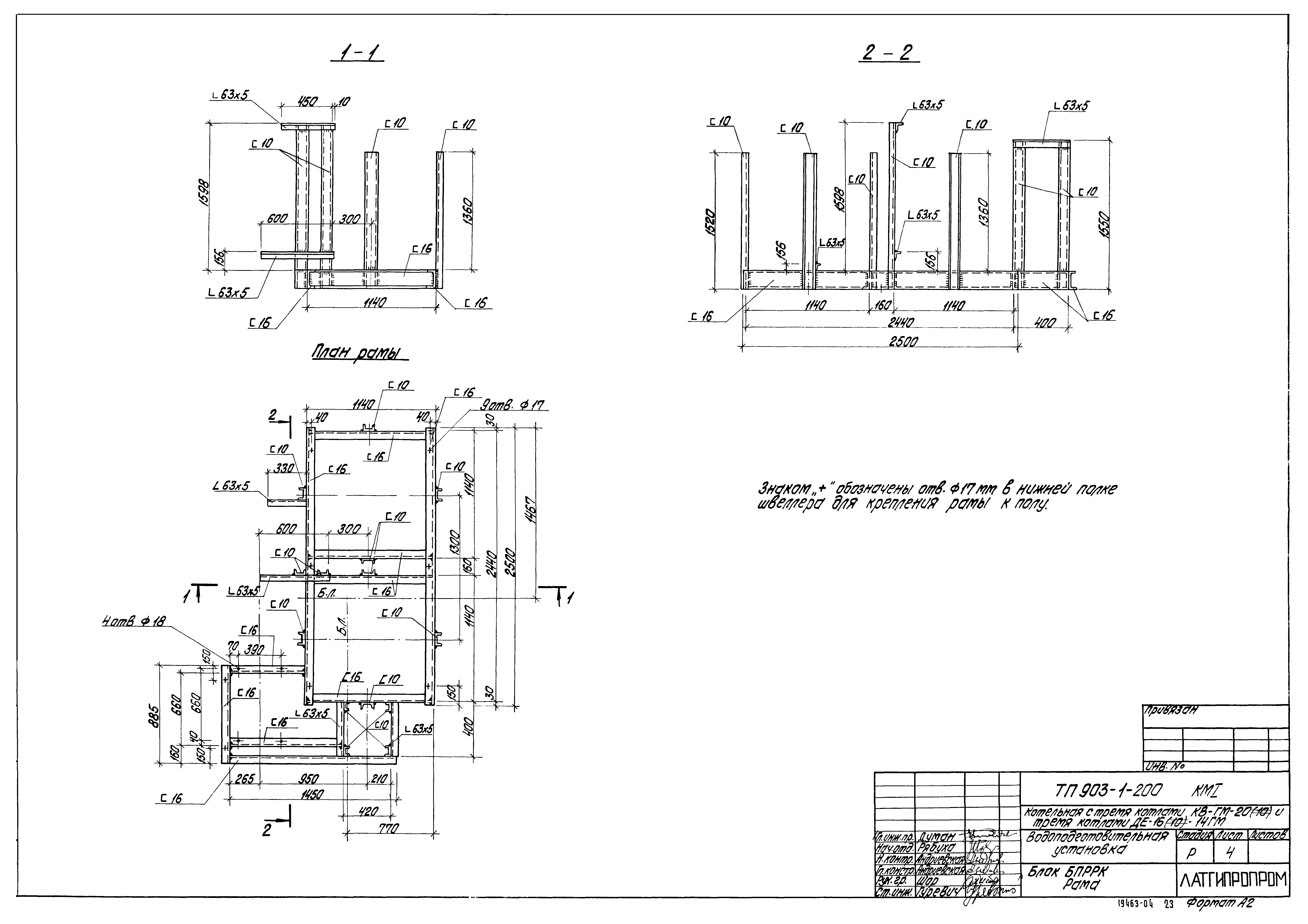
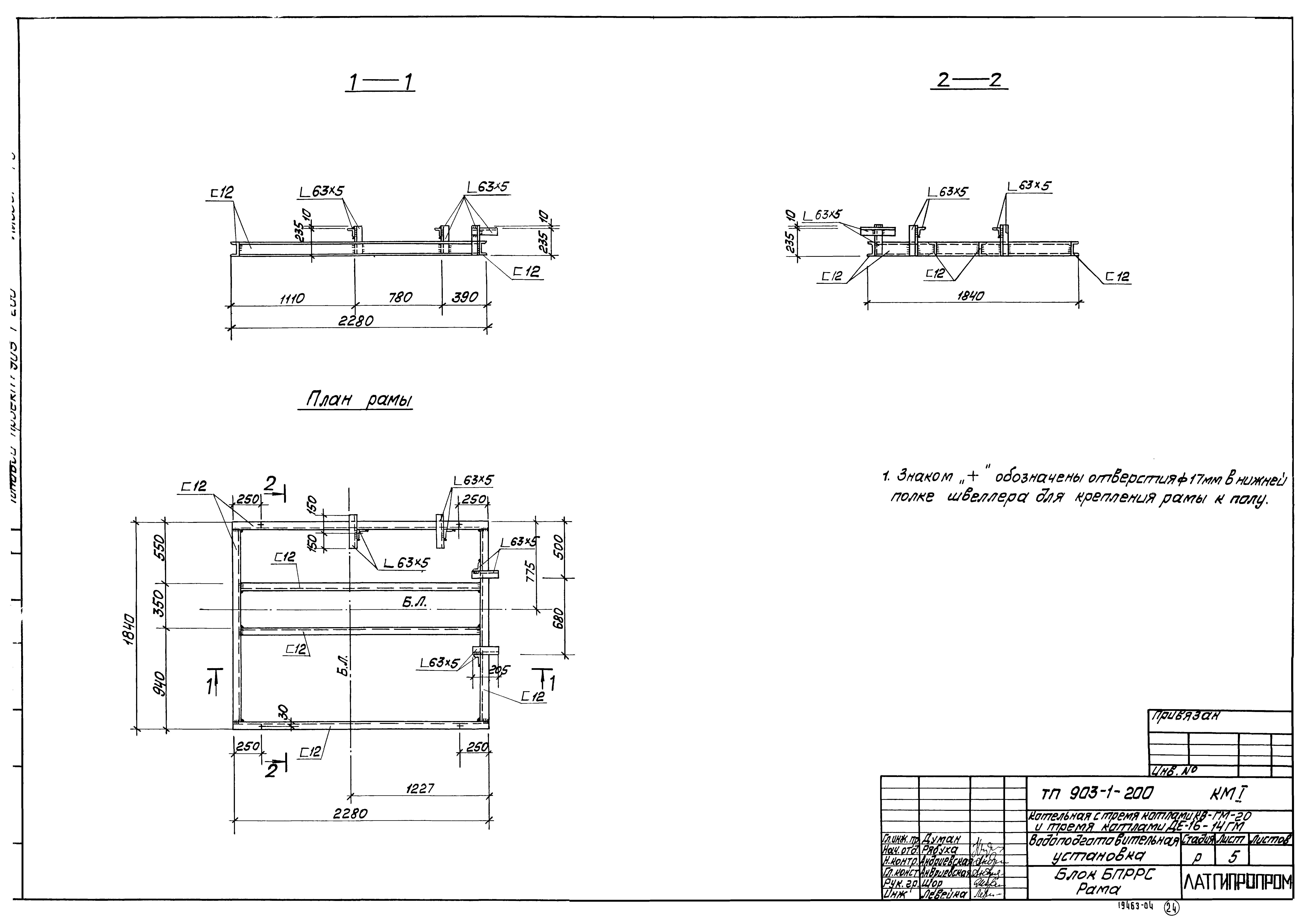
| Оглавление: | ТП 903-1-200 Содержание альбома ТП 903-1-200-ВП3 Водоподготовительная установка ТП 903-1-200-ВП3-1 Общие данные ТП 903-1-200-ВП3-2 Лист 1 Трубопроводы кислоты и вакуума ТП 903-1-200-ВП3-2 Лист 2 Трубопроводы кислоты и вакуума ТП 903-1-200-ВП3-3 Лист 1 Трубопроводы щелочи и воздушная линия ТП 903-1-200-ВП3-3 Лист 2 Трубопроводы щелочи и воздушная линия ТП 903-1-200-ВП3-4 Трубопроводы соли и горячей воды ТП 903-1-200-ВП3-5 Лист 1 Блок БХЩ-1 ТП 903-1-200-ВП3-5 Лист 2 Блок БХЩ-1 ТП 903-1-200-ВП3-6 Лист 1 Блок БПРЩ-1 ТП 903-1-200-ВП3-6 Лист 2 Блок БПРЩ-1 ТП 903-1-200-ВП3-7 Лист 1 Блок БПРРС ТП 903-1-200-ВП3-7 Лист 2 Блок БПРРС ТП 903-1-200-ВП3-8 Лист 1 Блок БПРРК ТП 903-1-200-ВП3-8 Лист 2 Блок БПРРК ТП 903-1-200-ВП3-9 Ведомость работ по тепловой изоляции и антикоррозийным покрытиям ТП 903-1-200-КМ1 Конструкции металлические ТП 903-1-200-КМ1-1 Общие данные. Схема расположения рам под блоки ТП 903-1-200-КМ1-2 Блок БХЩ-1. Рама ТП 903-1-200-КМ1-3 Блок БПРЩ-1. Рама ТП 903-1-200-КМ1-4 Блок БПРРК. Рама ТП 903-1-200-КМ1-5 Блок БПРРС. Рама |
| Разработан: | Латгипропром |
| Утверждён: | 10.11.1983 Главпромстройпроект Госстроя СССР (41) |
























