Скачать Типовой проект 903-1-203 Альбом 5.2. Котельная. Архитектурно-строительная часть. Общие чертежи (вариант закрытой установки дымососов) (из ТП 903-1-199)Дата актуализации: 01.01.2021
|
| Обозначение: | Типовой проект 903-1-203 |
| Обозначение англ: | 903-1-203 |
| Статус: | действует |
| Название рус.: | Альбом 5.2. Котельная. Архитектурно-строительная часть. Общие чертежи (вариант закрытой установки дымососов) (из ТП 903-1-199) |
| Дата добавления в базу: | 01.09.2013 |
| Дата актуализации: | 01.01.2021 |
| Дата введения: | 01.07.1984 |
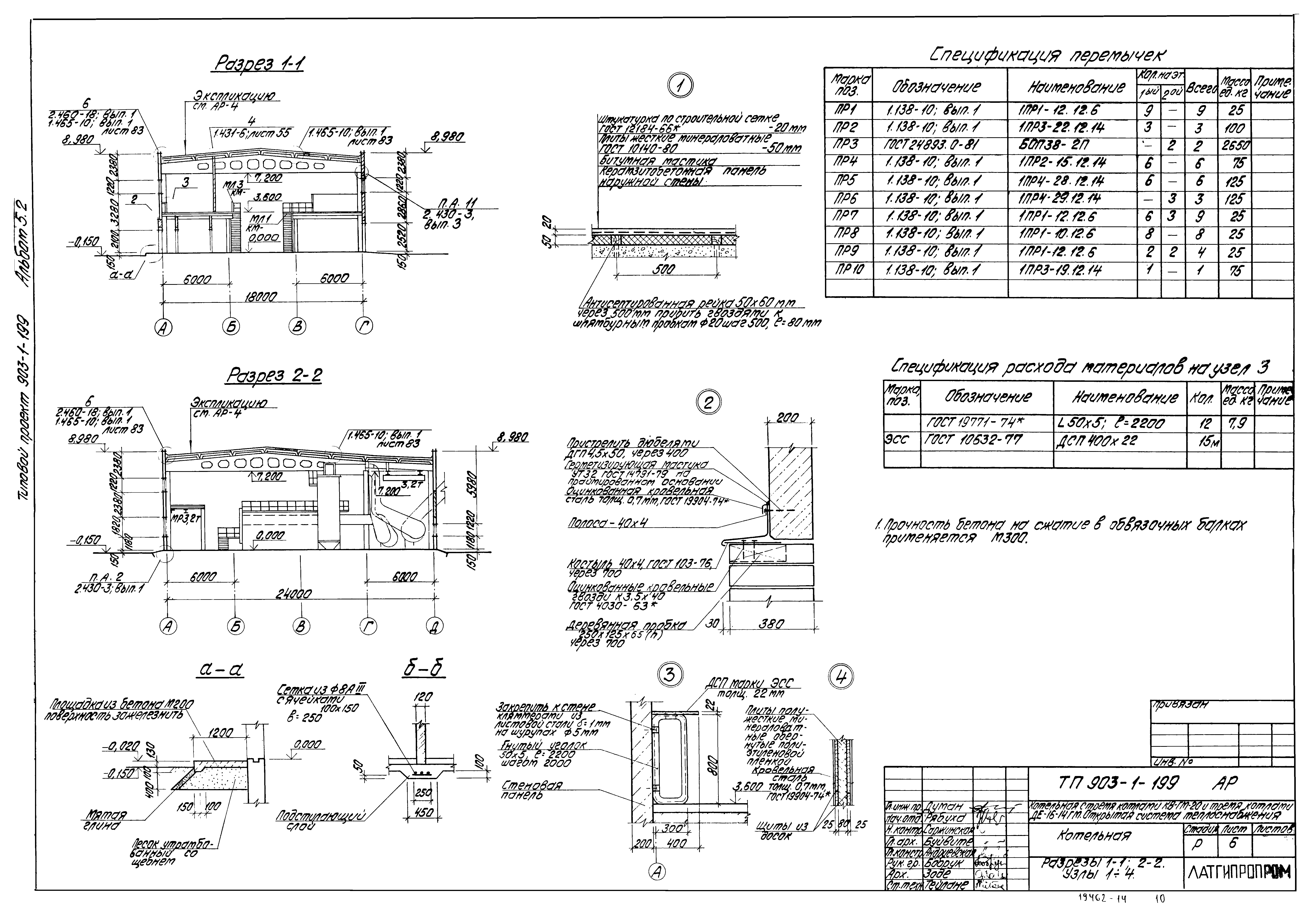
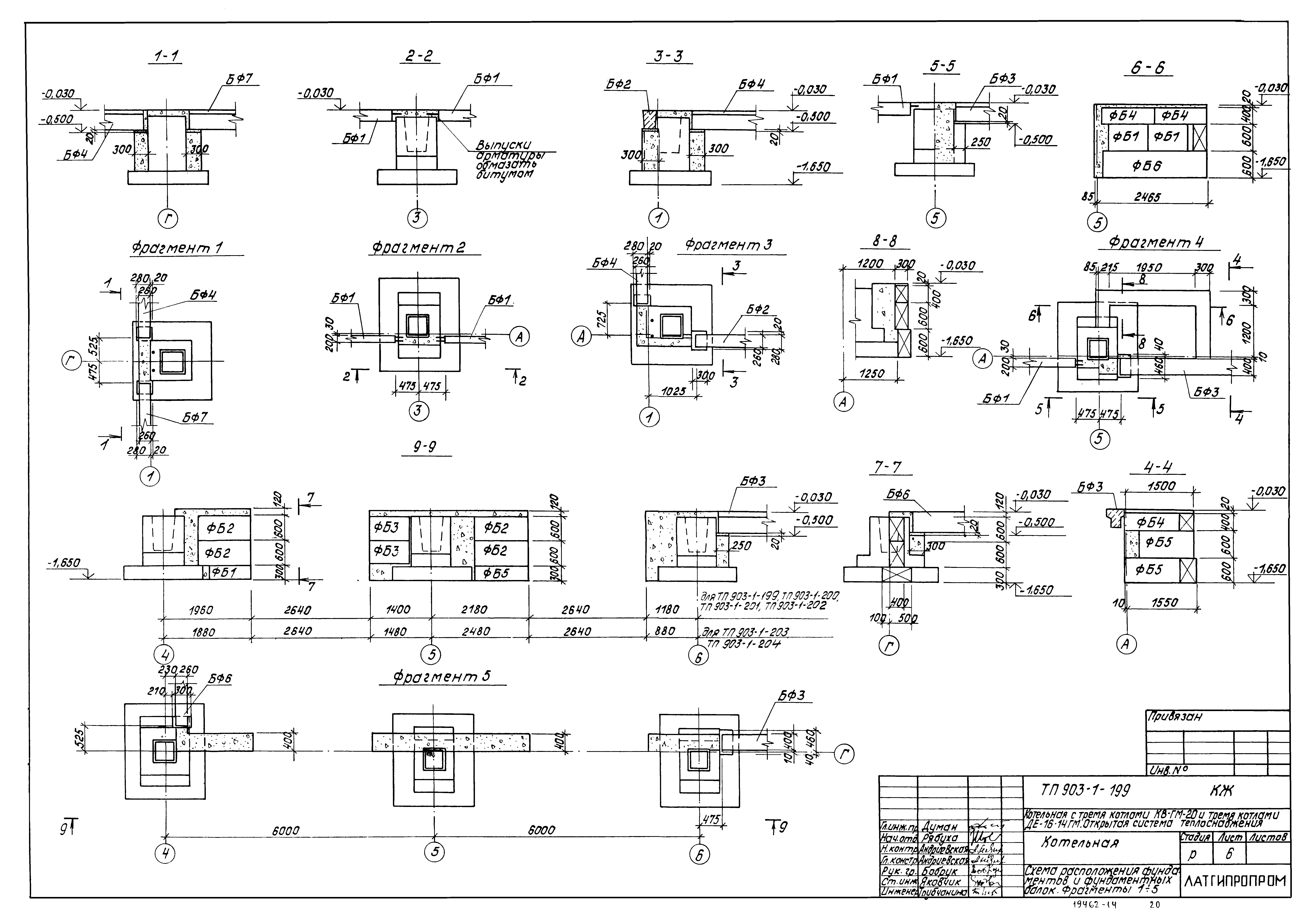
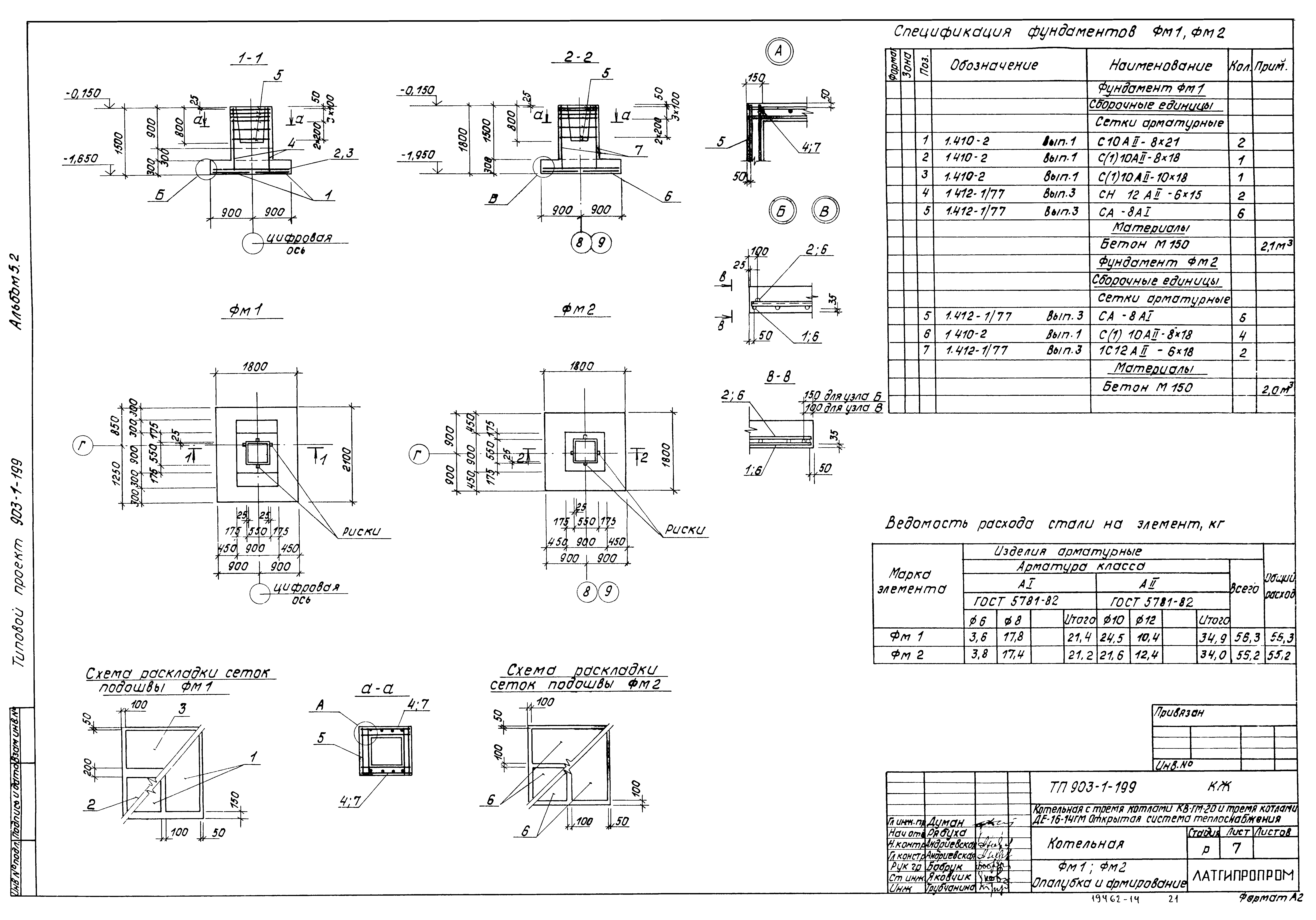
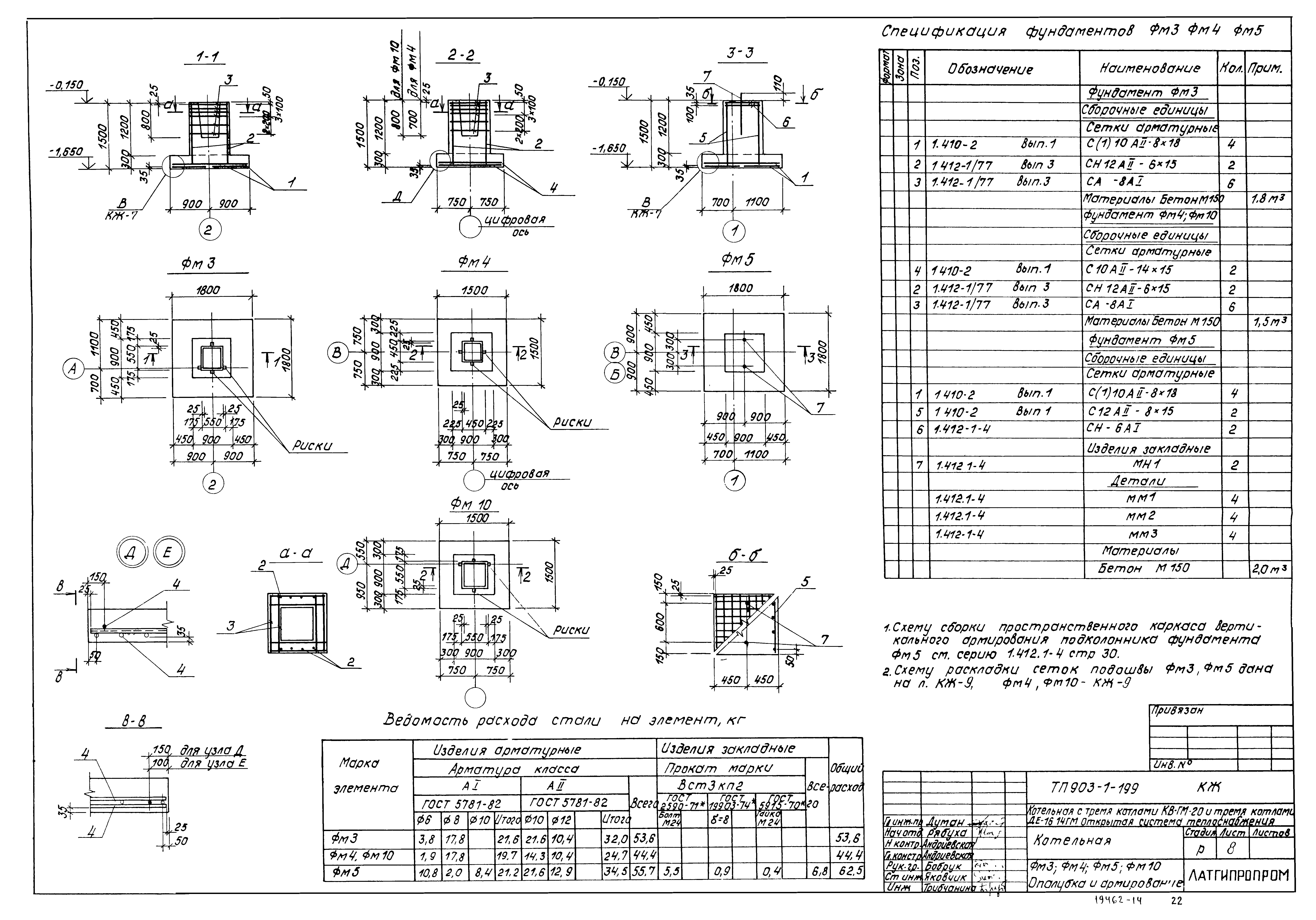
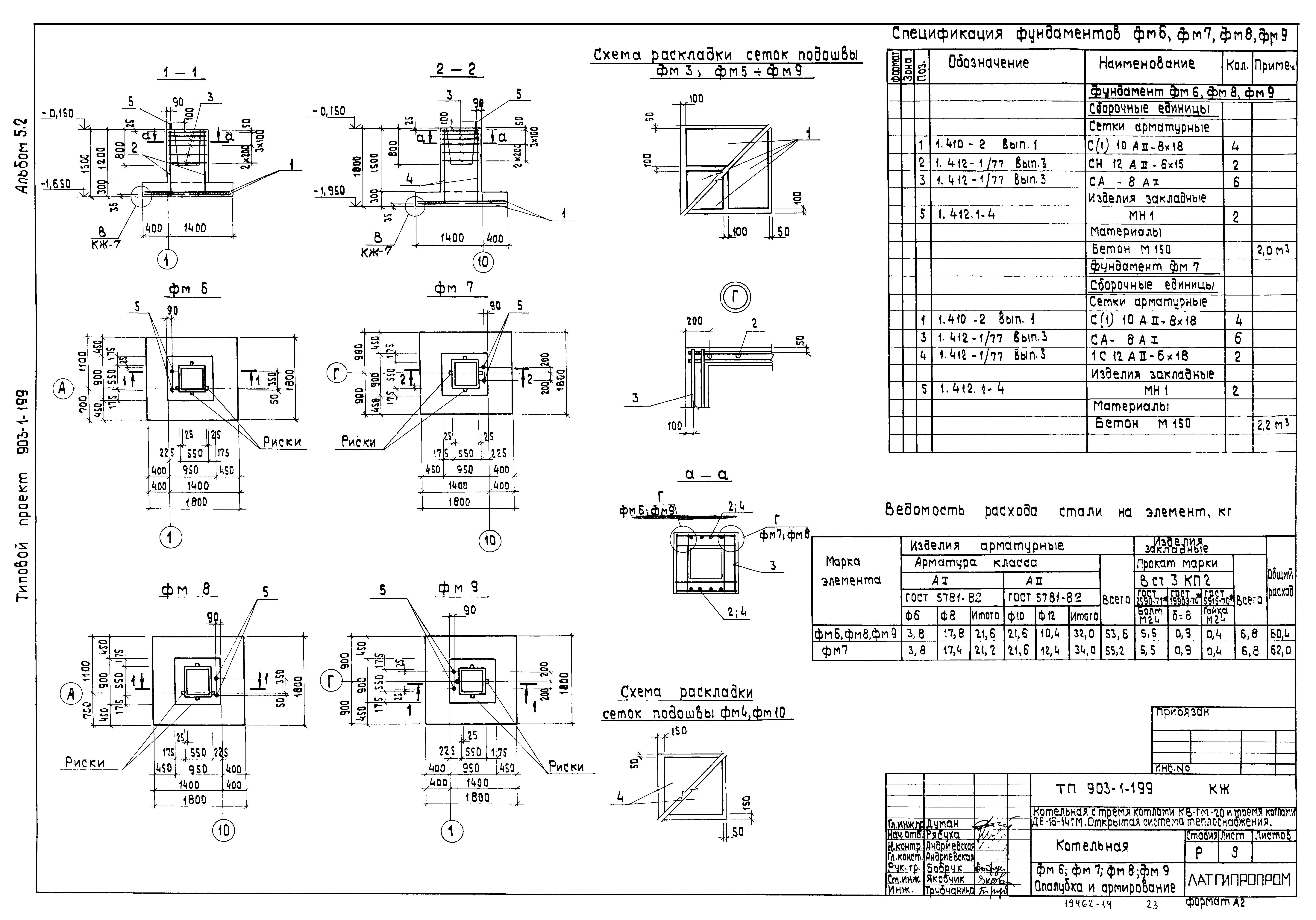
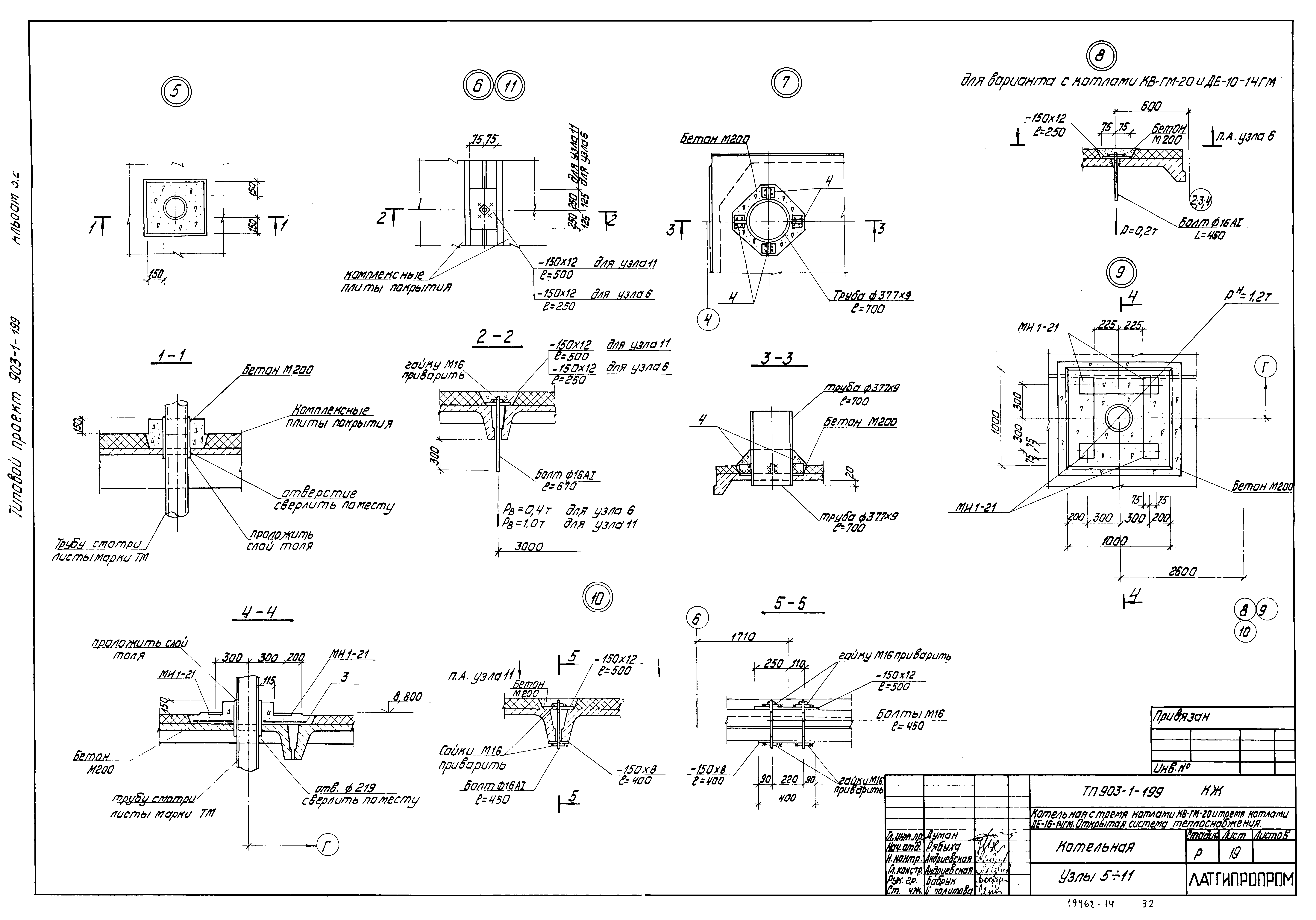
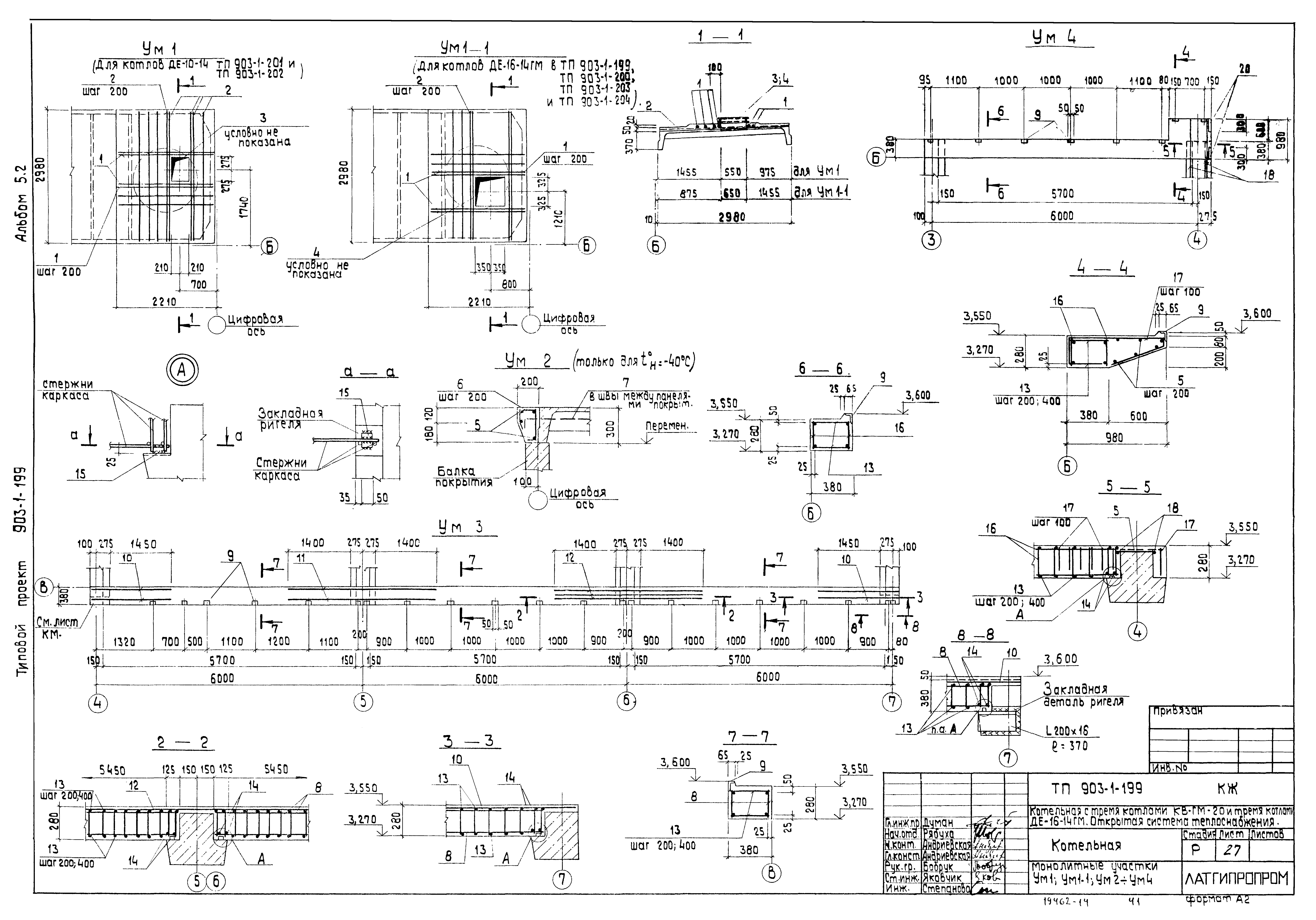
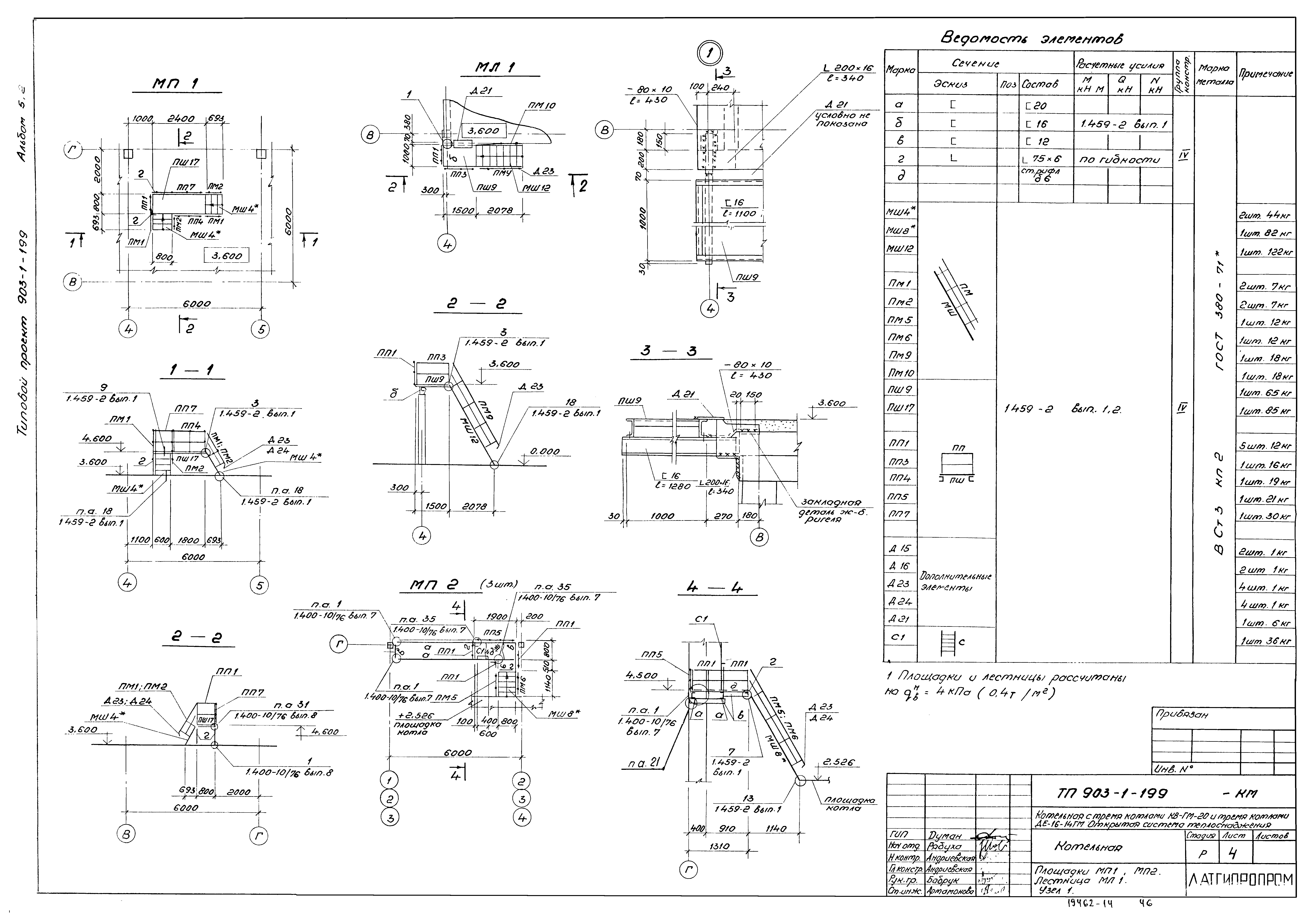
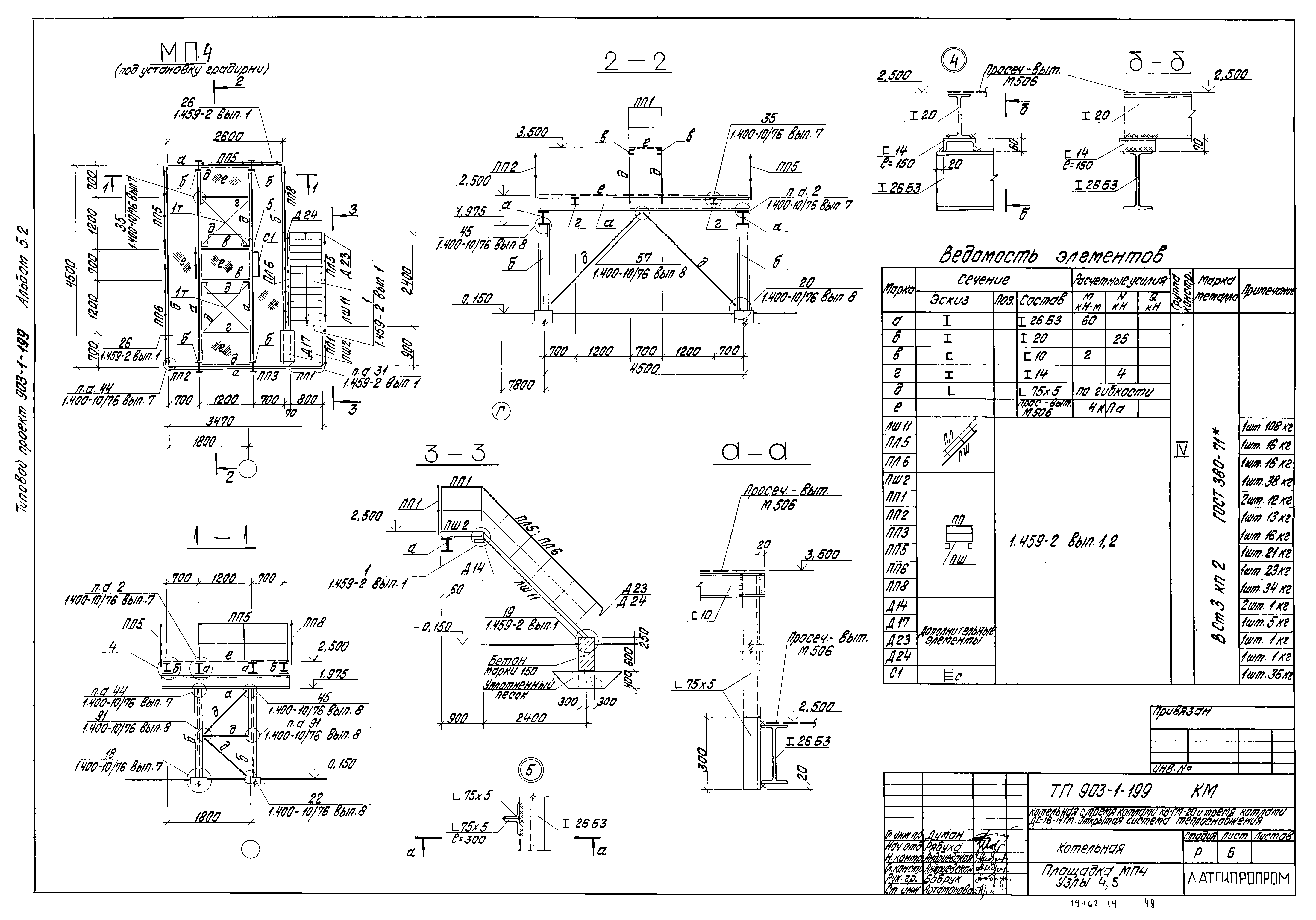
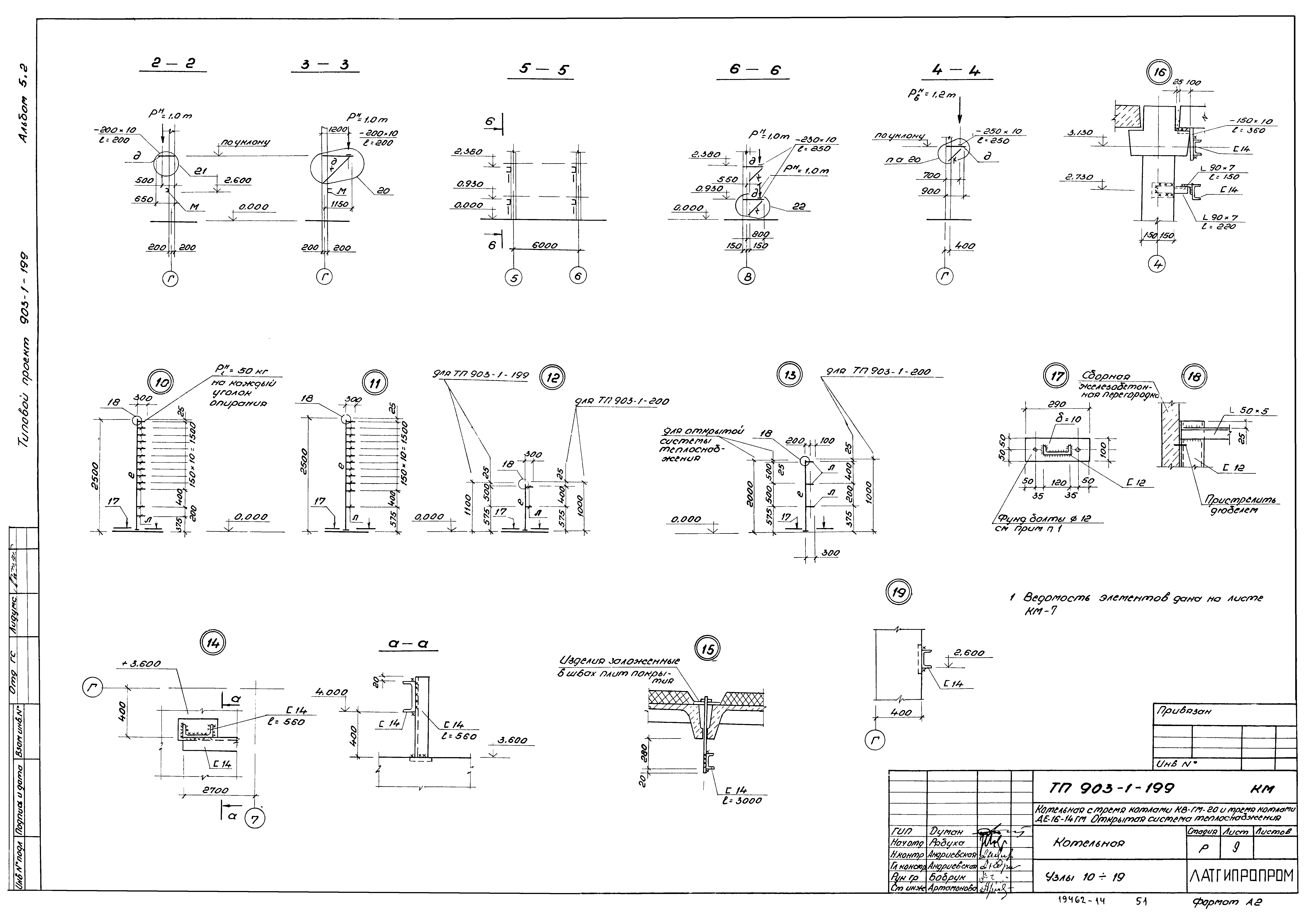
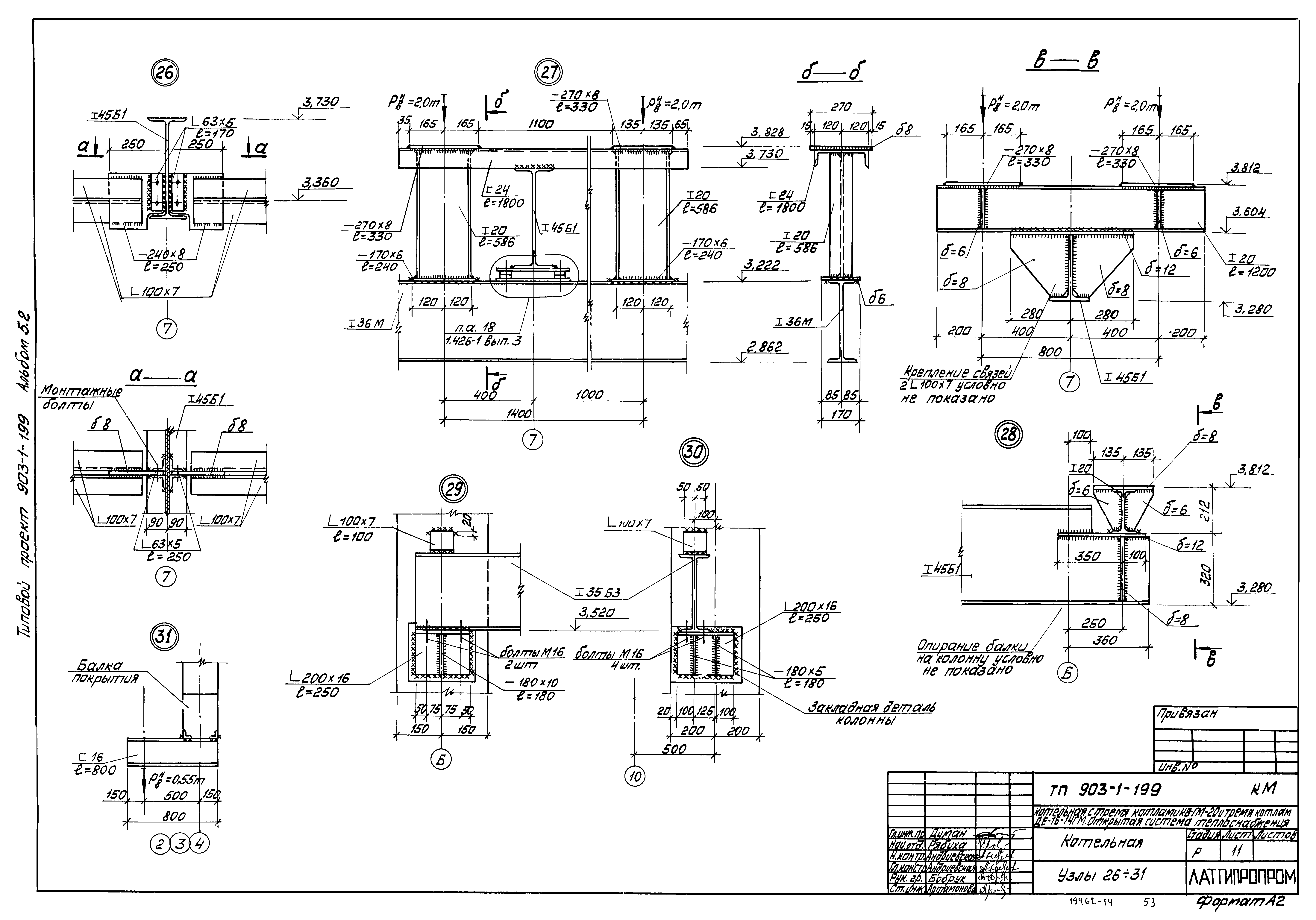
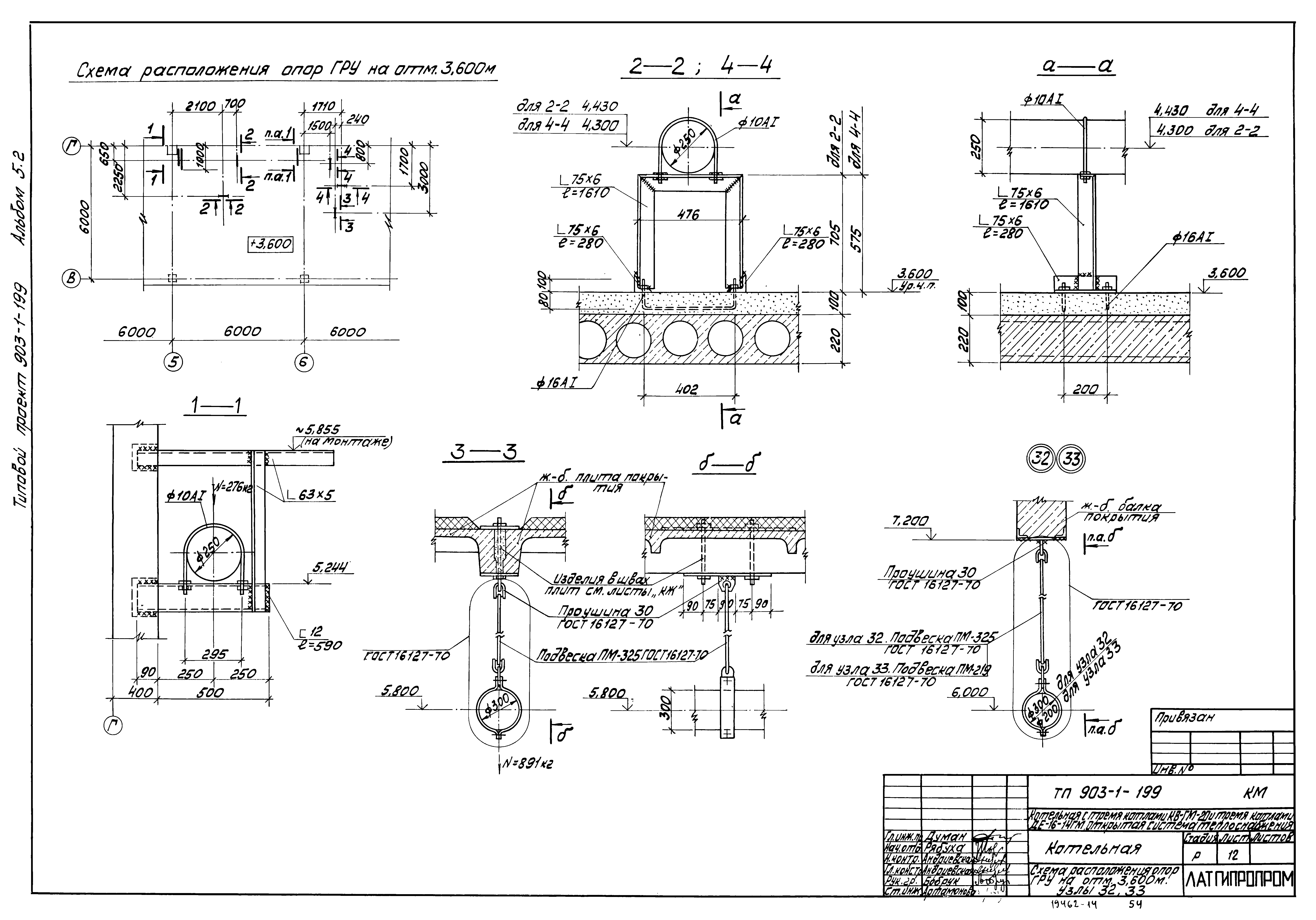
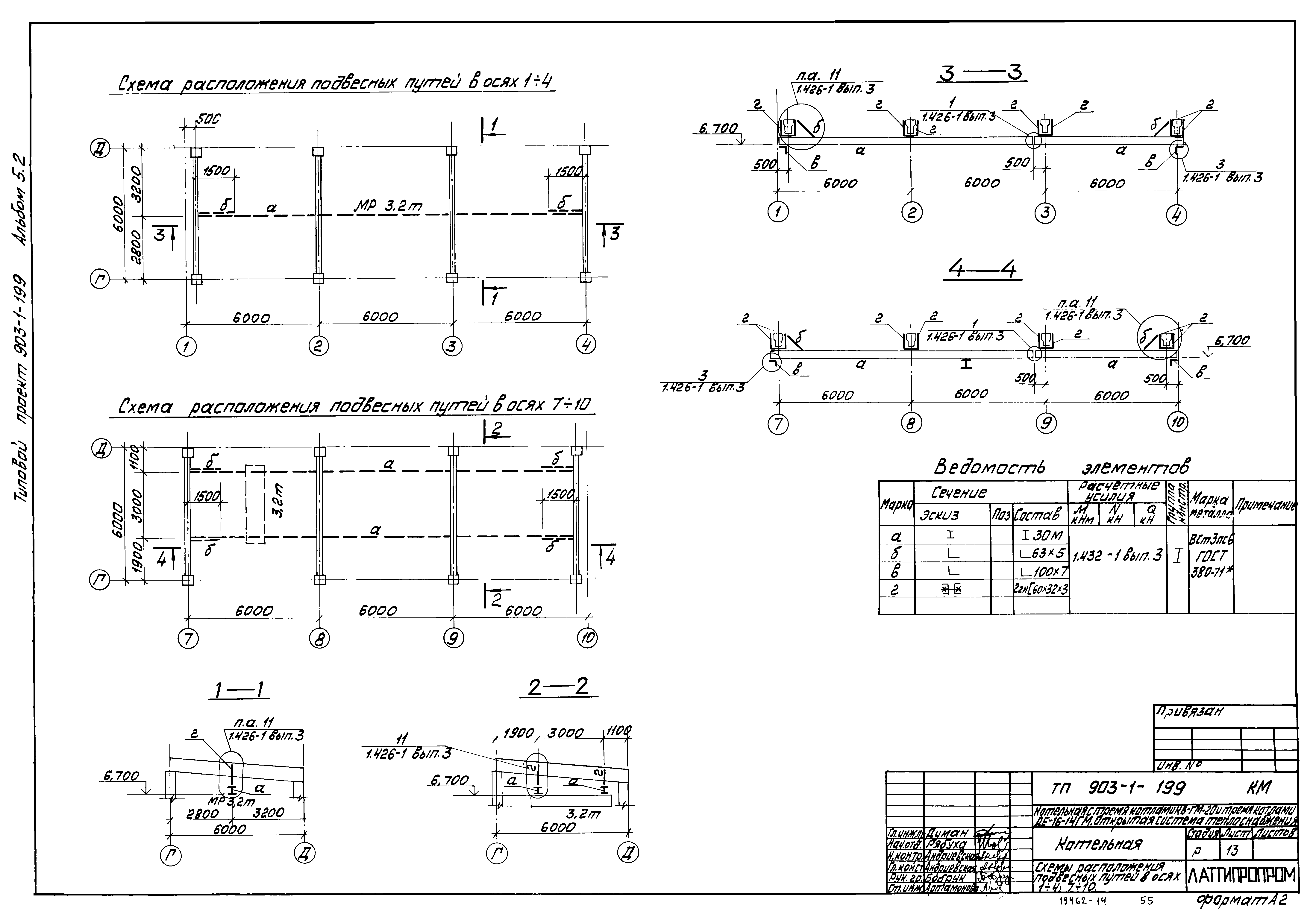
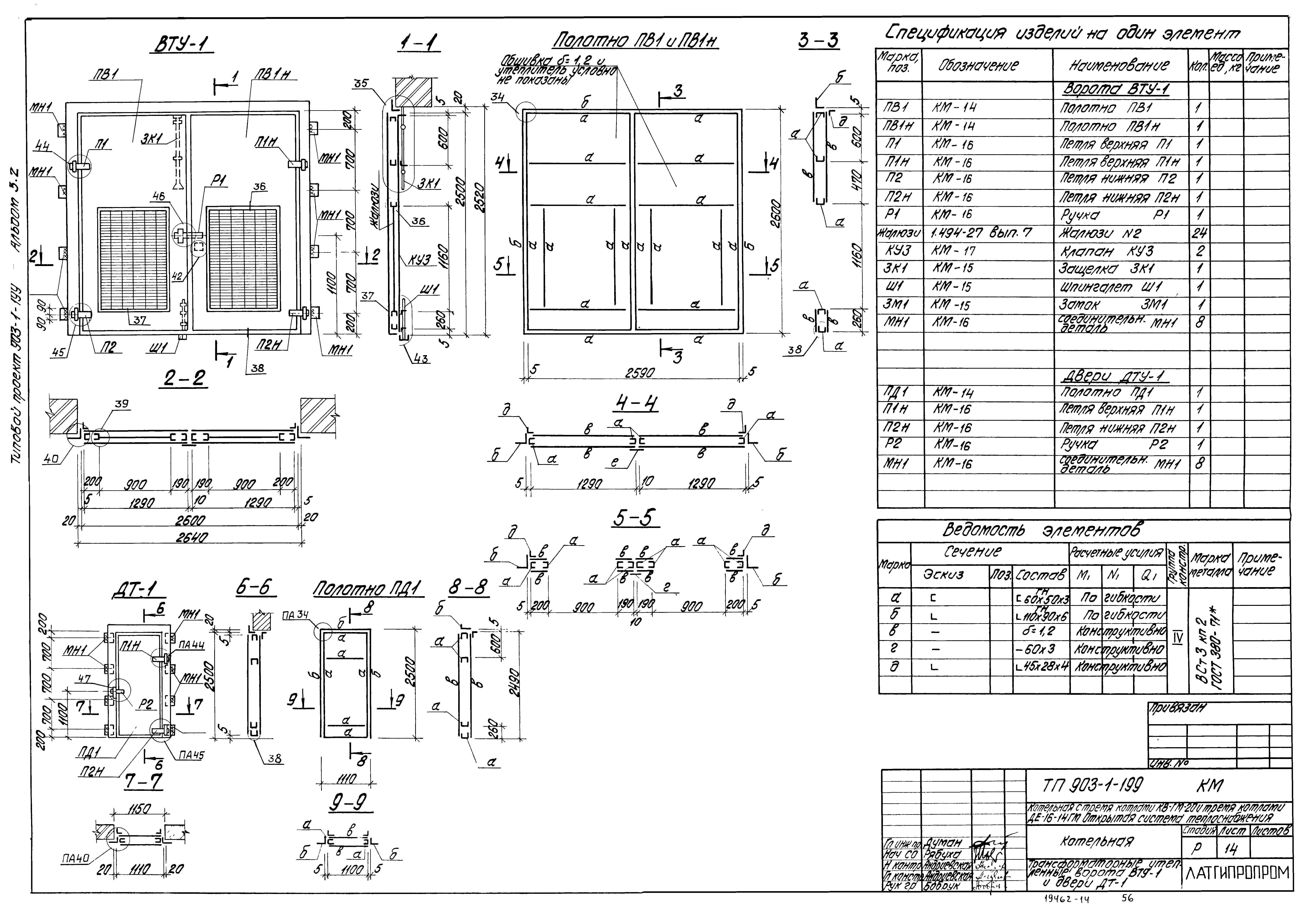
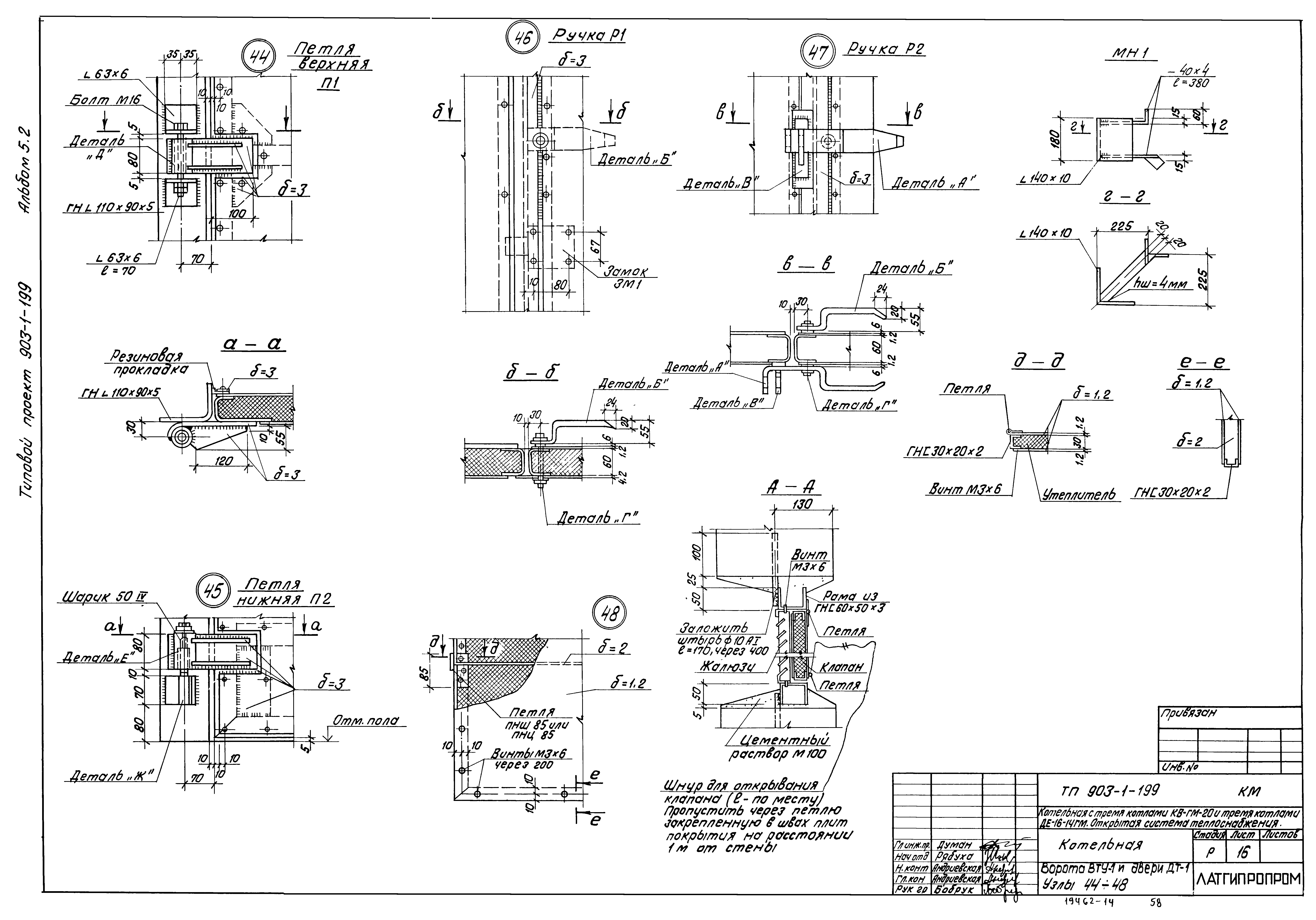
| Оглавление: | ТП 903-1-199 Содержание альбома ТП 903-1-199-АР Архитектурно-строительные решения ТП 903-1-199-АР-1 Общие данные (начало) ТП 903-1-199-АР-2 Общие данные (продолжение) ТП 903-1-199-АР-3 Общие данные (окончание) ТП 903-1-199-АР-4 План кровли. Планы полов на отм. 0.000 и 3.600 ТП 903-1-199-АР-5 Планы на отм. 0.000 и 3.600 ТП 903-1-199-АР-6 Разрезы 1-1,2-2. Узлы 1-4 ТП 903-1-199-АР-7 Фрагмент 1. Узел 5 ТП 903-1-199-АР-8 Фасады 1-10,А-Д,Д-А. Схемы заполнения оконных проемов ОК-1÷ОК-6 ТП 903-1-199-АР-9 Фасад 10-1. Схема заполнения оконного проема ОК-7. Фрагмент 2 ТП 903-1-199-АР-10 Фрагменты 3,4,5. Узлы 6-10 ТП 903-1-199-КЖ Конструкции железобетонные ТП 903-1-199-КЖ-1 Общие данные (начало) ТП 903-1-199-КЖ-2 Общие данные (продолжение) ТП 903-1-199-КЖ-3 Общие данные (окончание) ТП 903-1-199-КЖ-4 Схема расположения фундаментов и фундаментных балок ТП 903-1-199-КЖ-5 Таблица нагрузок на фундаменты. Фрагменты 6-8 ТП 903-1-199-КЖ-6 Схема расположения фундаментов и фундаментных балок. Фрагменты 1-5 ТП 903-1-199-КЖ-7 ФМ1,ФМ2. Опалубка и армирование ТП 903-1-199-КЖ-8 ФМ3,ФМ4,ФМ5,ФМ10. Опалубка и армирование ТП 903-1-199-КЖ-9 ФМ6,ФМ7,ФМ8,ФМ9. Опалубка и армирование ТП 903-1-199-КЖ-10 Схема расположения фундаментов по осям 1,10 при строительстве по очередям ФМ11,ФМ12,ФМ13. Опалубка и армирование ТП 903-1-199-КЖ-11 Схема заземляющего контура здания котельной. Узлы А-Е ТП 903-1-199-КЖ-12 Схема расположения колонн и ригелей ТП 903-1-199-КЖ-13 Схема расположения балок покрытия и плит площадок на отм. 3.600 в осях В-Г,4-7 и А-Б,3-6 ТП 903-1-199-КЖ-14 Схема расположения плит покрытия. Элемент плана № 1 (для ТП 903-1-199, ТП 903-1-200) ТП 903-1-199-КЖ-15 Схема расположения плит покрытия. Элемент плана № 1 (для ТП 903-1-201, ТП 903-1-202) ТП 903-1-199-КЖ-16 Схема расположения плит покрытия. Элемент плана № 1 (для ТП 903-1-203 и ТП 903-1-204) ТП 903-1-199-КЖ-17 Разрезы 1-1÷3-3. Узлы 1-4. Сечение А-А ТП 903-1-199-КЖ-18 Узлы 5-11 ТП 903-1-199-КЖ-19 Схемы расположения стеновых панелей по оси А,Д,4,8 ТП 903-1-199-КЖ-20 Схемы расположения стеновых панелей по осям 10,1 и стальных стоек и насадок торцевого фахверка по осям 1 и 10,7,4 ТП 903-1-199-КЖ-21 Фрагменты 1-9 ТП 903-1-199-КЖ-22 Фрагменты 10-15. Узлы 12-14 ТП 903-1-199-КЖ-23 Схемы расположения перегородок на отм. 0.000 по осям В,4,6 и на отм. 3.600 в осях А-Б ТП 903-1-199-КЖ-24 Каркасно-обшивной вкладыш В1. Узлы 15-20 ТП 903-1-199-КЖ-25 Схема расположения закладных изделий на отм. 3.600 по оси А ТП 903-1-199-КЖ-26 Схема расположения закладных изделий на отм. 3.600 в осях В-Г,4-7 ТП 903-1-199-КЖ-27 Монолитные участки УМ1,УМ1-1,УМ2-УМ4 ТП 903-1-199-КЖ-28 УМ5. Спецификация монолитных участков УМ-1,УМ1-1,УМ2-УМ5 ТП 903-1-199-КМ Конструкции металлические ТП 903-1-199-КМ-1 Общие данные. Ведомость металлоконструкций по видам профилей ТП 903-1-199-КМ-2 Техническая спецификация металла ТП 903-1-199-КМ-3 Техническая спецификация металла для специализированных заводов ТП 903-1-199-КМ-4 Площадки МП1,МП2. Лестница МЛ1. Узел 1 ТП 903-1-199-КМ-5 Лестницы МЛ2,МЛ3. Площадка МП3. Узлы 2,3 ТП 903-1-199-КМ-6 Площадка МП4. Узлы 4,5 ТП 903-1-199-КМ-7 Схема расположения опор под трубопроводы. Элемент плана № 1. Узел 34 ТП 903-1-199-КМ-8 Схема расположения подвесных путей в осях 7-10. Узлы 6-9 ТП 903-1-199-КМ-9 Узлы 10-19 ТП 903-1-199-КМ-10 Узлы 20-25 ТП 903-1-199-КМ-11 Узлы 26-31 ТП 903-1-199-КМ-12 Схема расположения опор ГРУ на отм. 3.600. Узлы 32,33 ТП 903-1-199-КМ-13 Схема расположения подвесных путей в осях 1-4,7-10 ТП 903-1-199-КМ-14 Трансформаторные утепленные ворота ВТУ-1 и двери ДТ-1 ТП 903-1-199-КМ-15 Ворота ВТУ-1 и двери ДТ-1. Узлы 34-43 ТП 903-1-199-КМ-16 Ворота ВТУ-1 и двери ДТ-1. Узлы 44-48 ТП 903-1-199-КМ-17 Ворота ВТУ-1 и двери ДТ-1. Узел 49. Клапаны КУ-1÷КУ-3. Детали А-И |
| Разработан: | Латгипропром |
| Утверждён: | 10.11.1983 Главпромстройпроект Госстроя СССР (41) |



























































