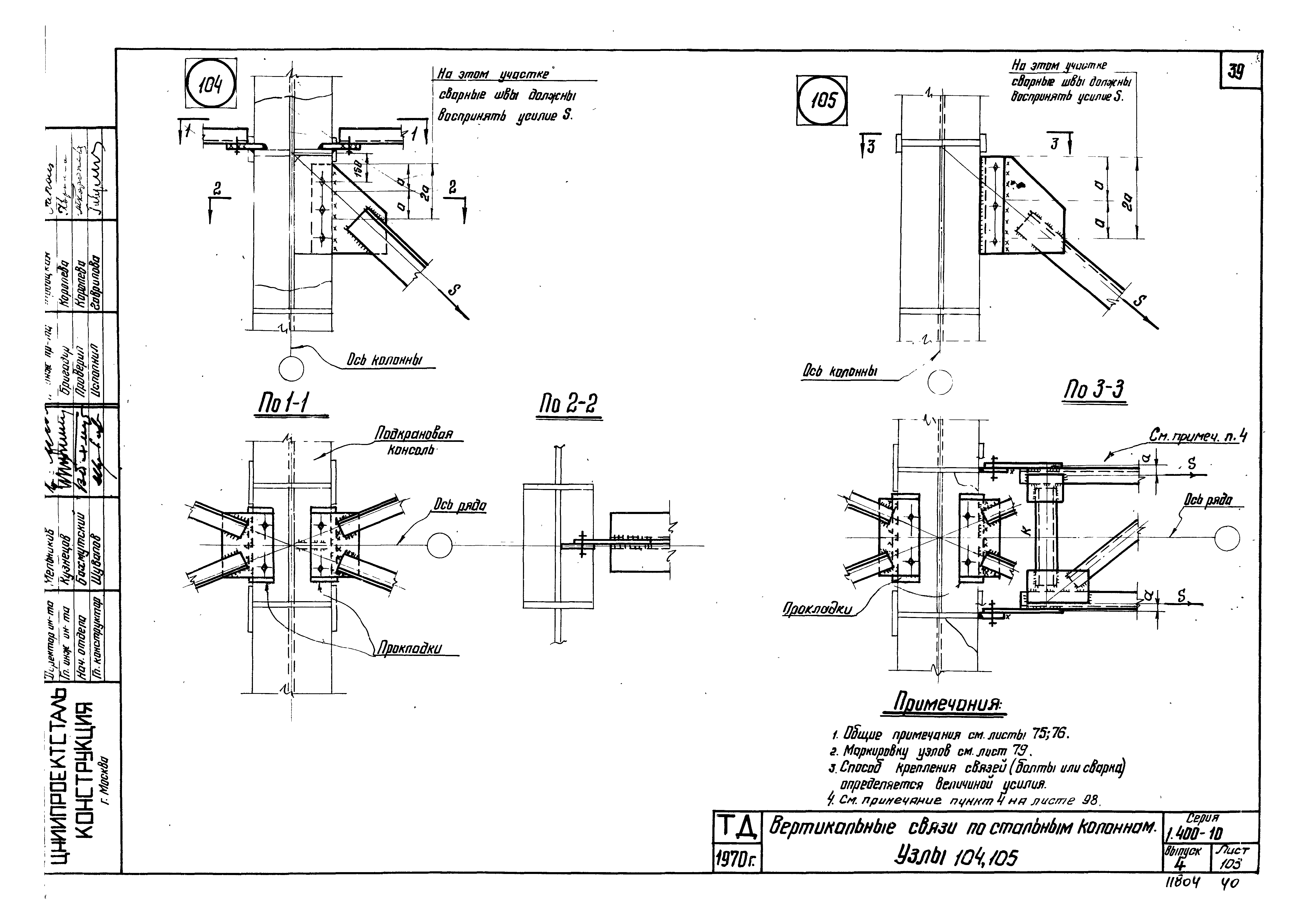
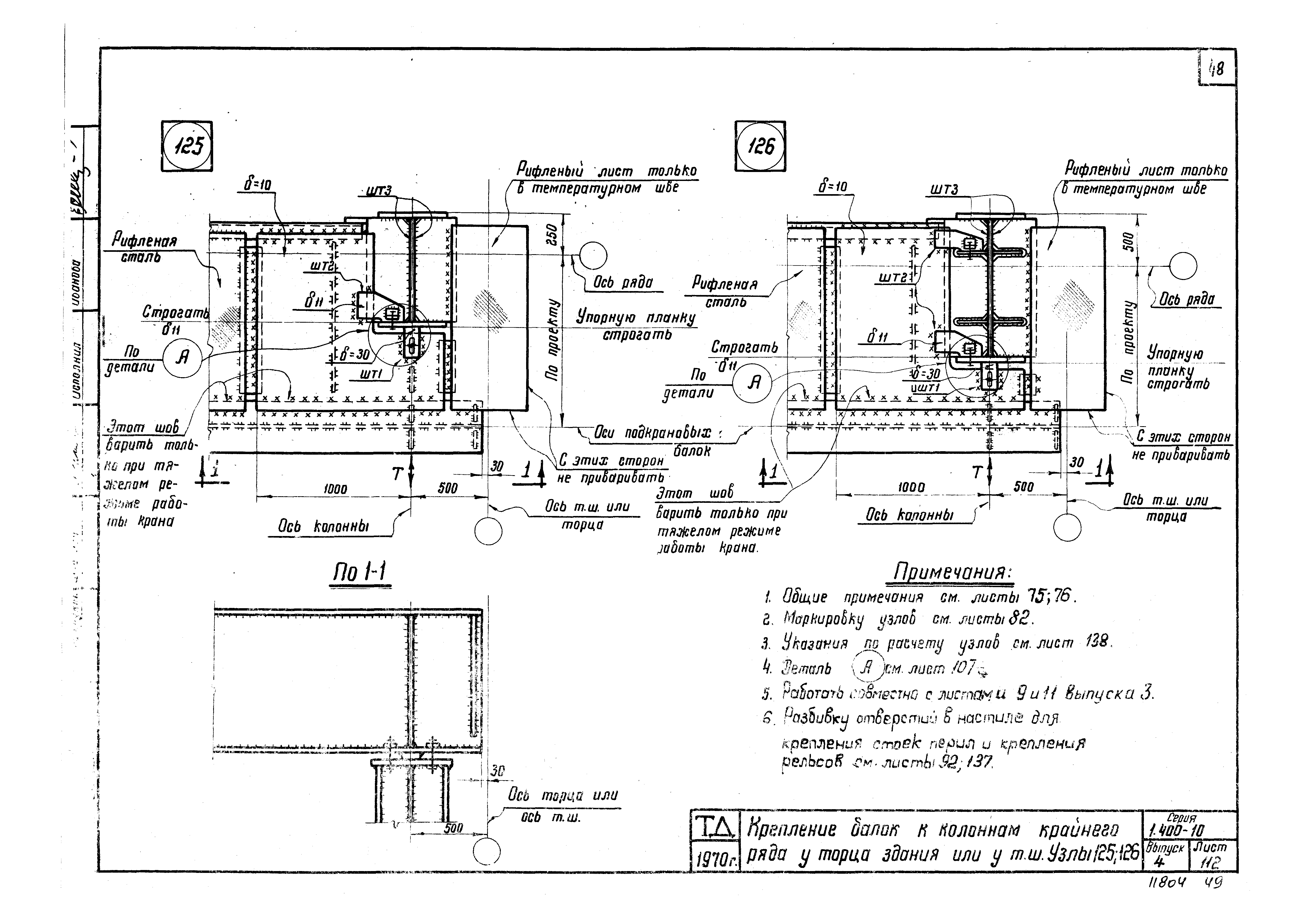
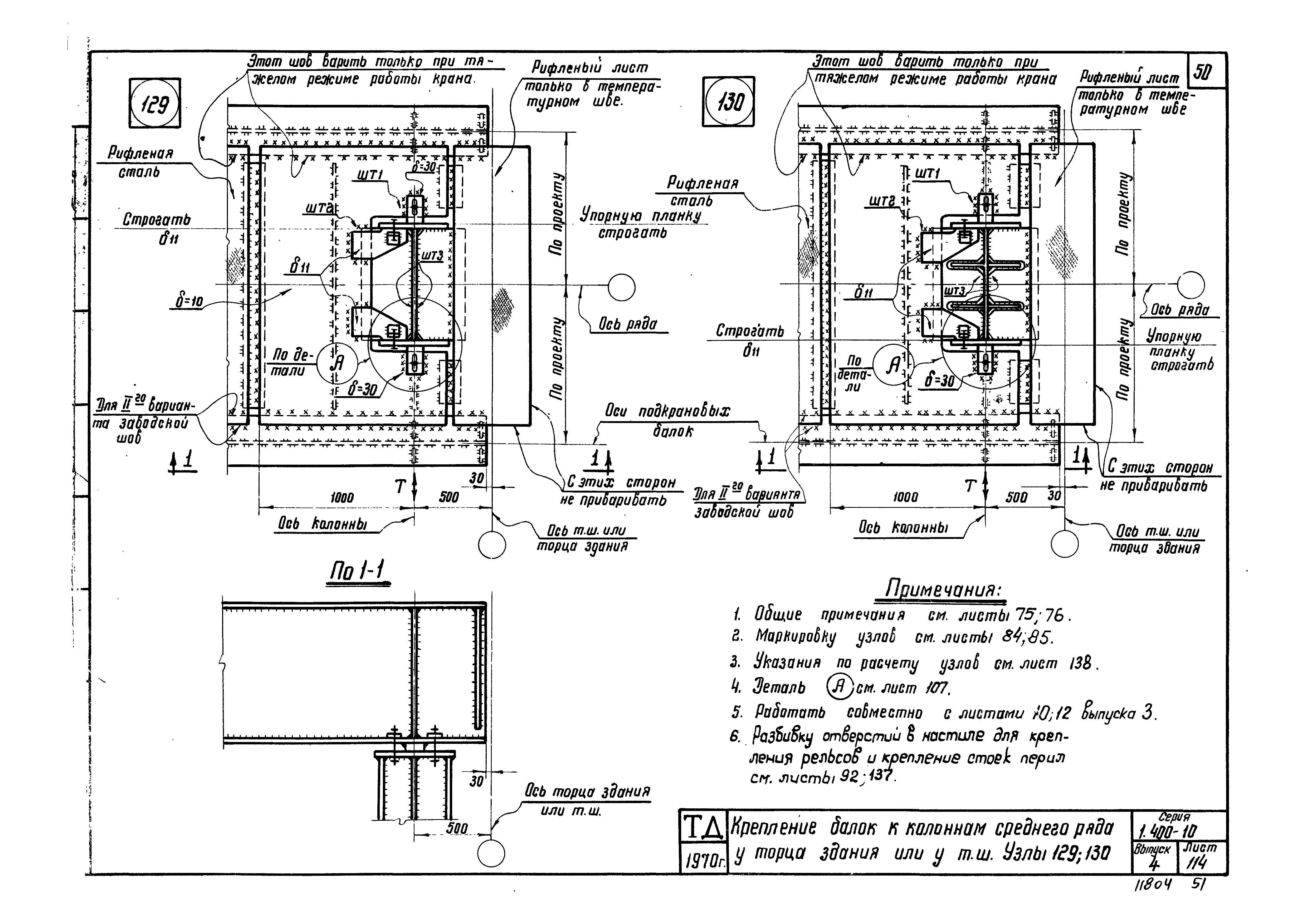
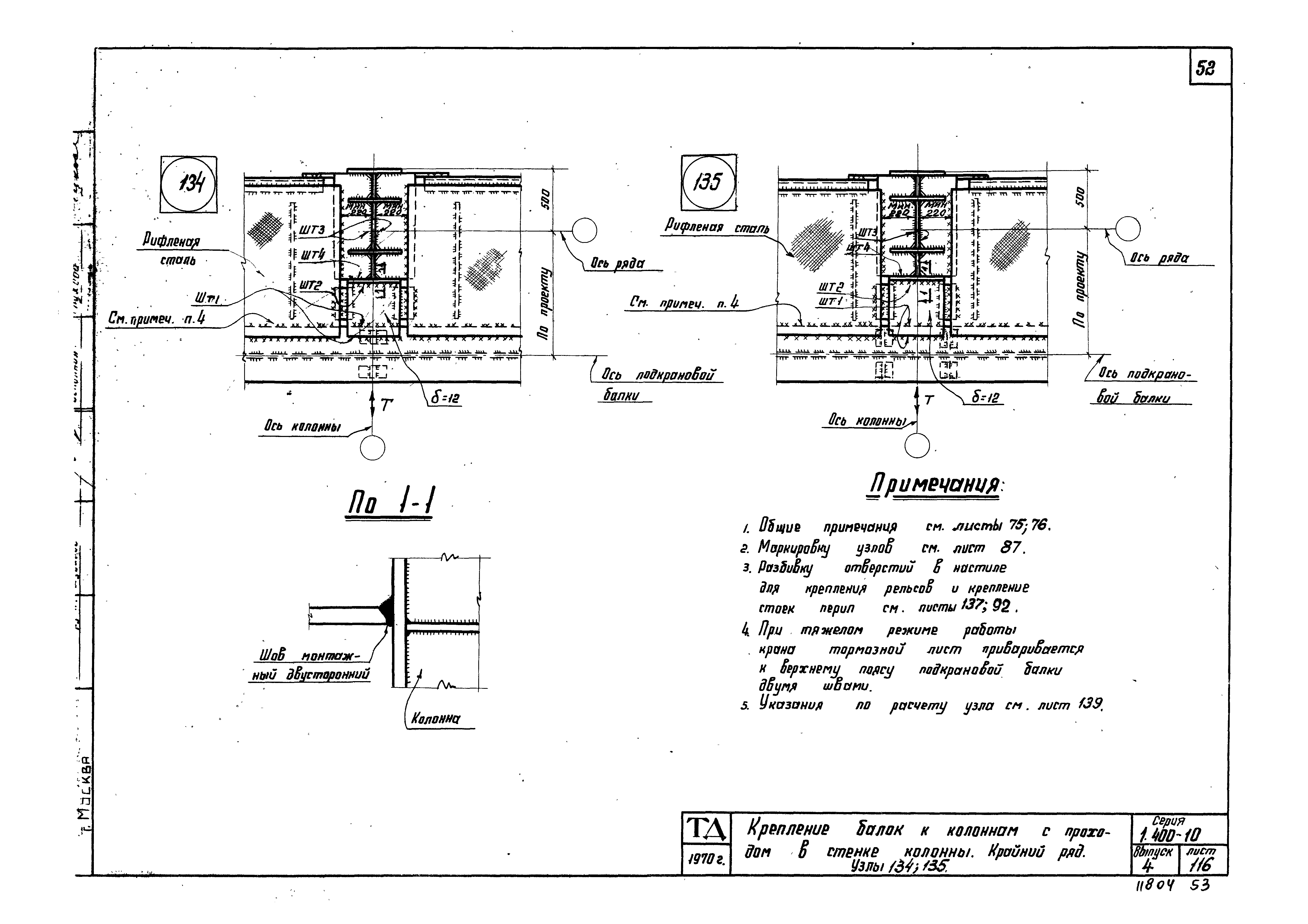
Скачать Серия 1.400-10 Выпуск 4. Узлы связей по колоннам и тормозных устройств подкрановых балок. Чертежи КМДата актуализации: 01.01.2021
|
| Обозначение: | Серия 1.400-10 |
| Обозначение англ: | Series 1.400-10 |
| Статус: | не действует |
| Название рус.: | Выпуск 4. Узлы связей по колоннам и тормозных устройств подкрановых балок. Чертежи КМ |
| Дата добавления в базу: | 01.09.2013 |
| Дата актуализации: | 01.01.2021 |
| Дата введения: | 01.04.1972 |
| Дата окончания срока действия: | 01.11.1977 |
| Разработан: | ЦНИИпроектстальконструкция |
| Утверждён: | 07.03.1972 Госстрой СССР (Государственный комитет Совета Министров СССР по делам строительства) (USSR Gosstroy 34) |
| Чем заменён: |










































































