Скачать Типовой проект 902-1-62 Альбом I. Технологические решения. Отопление и вентиляция. Внутренний водопровод и канализация (из ТП 902-1-60)Дата актуализации: 01.01.2021
|
| Обозначение: | Типовой проект 902-1-62 |
| Обозначение англ: | 902-1-62 |
| Статус: | действует |
| Название рус.: | Альбом I. Технологические решения. Отопление и вентиляция. Внутренний водопровод и канализация (из ТП 902-1-60) |
| Дата добавления в базу: | 01.09.2013 |
| Дата актуализации: | 01.01.2021 |
| Дата введения: | 01.10.1982 |
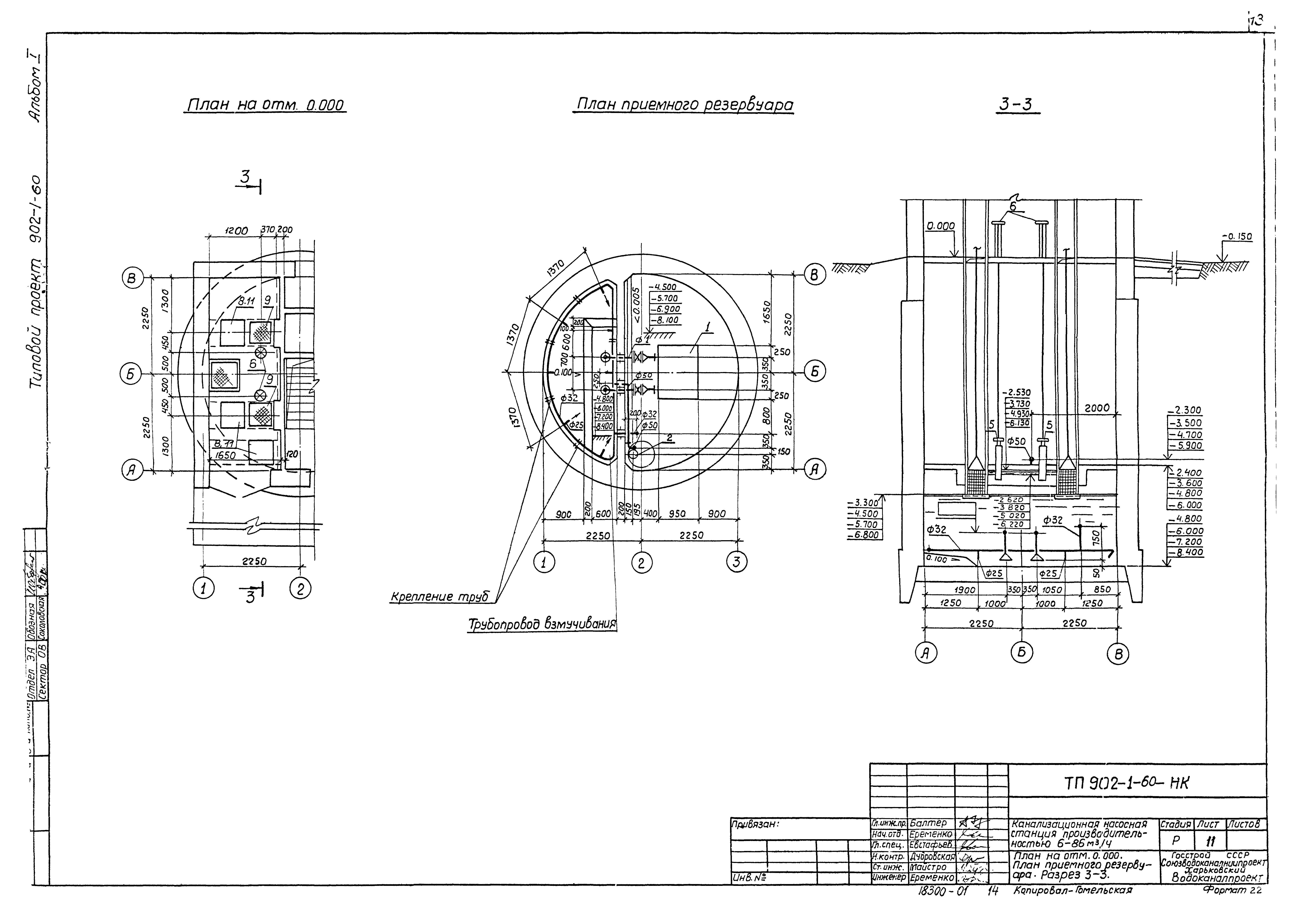
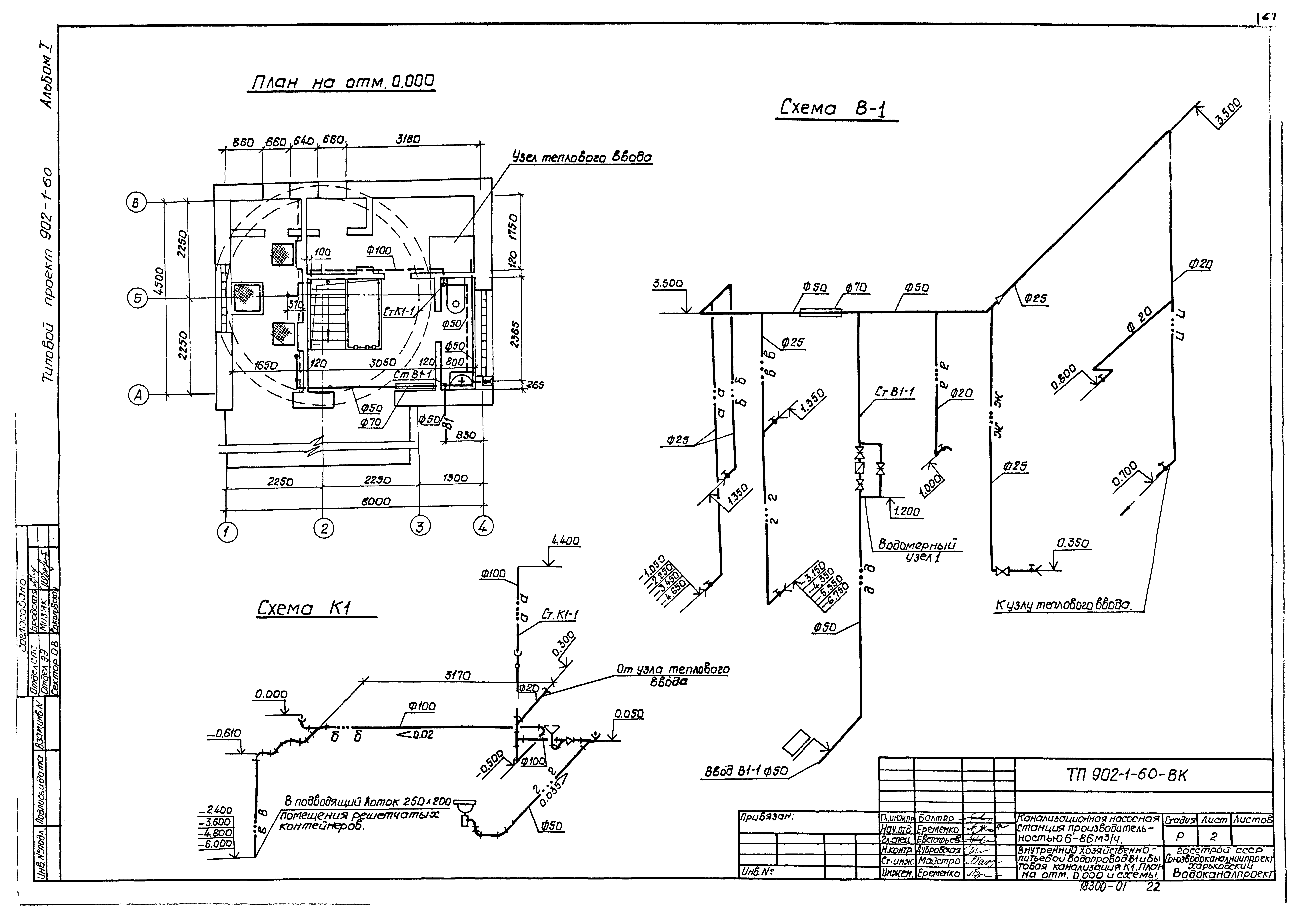
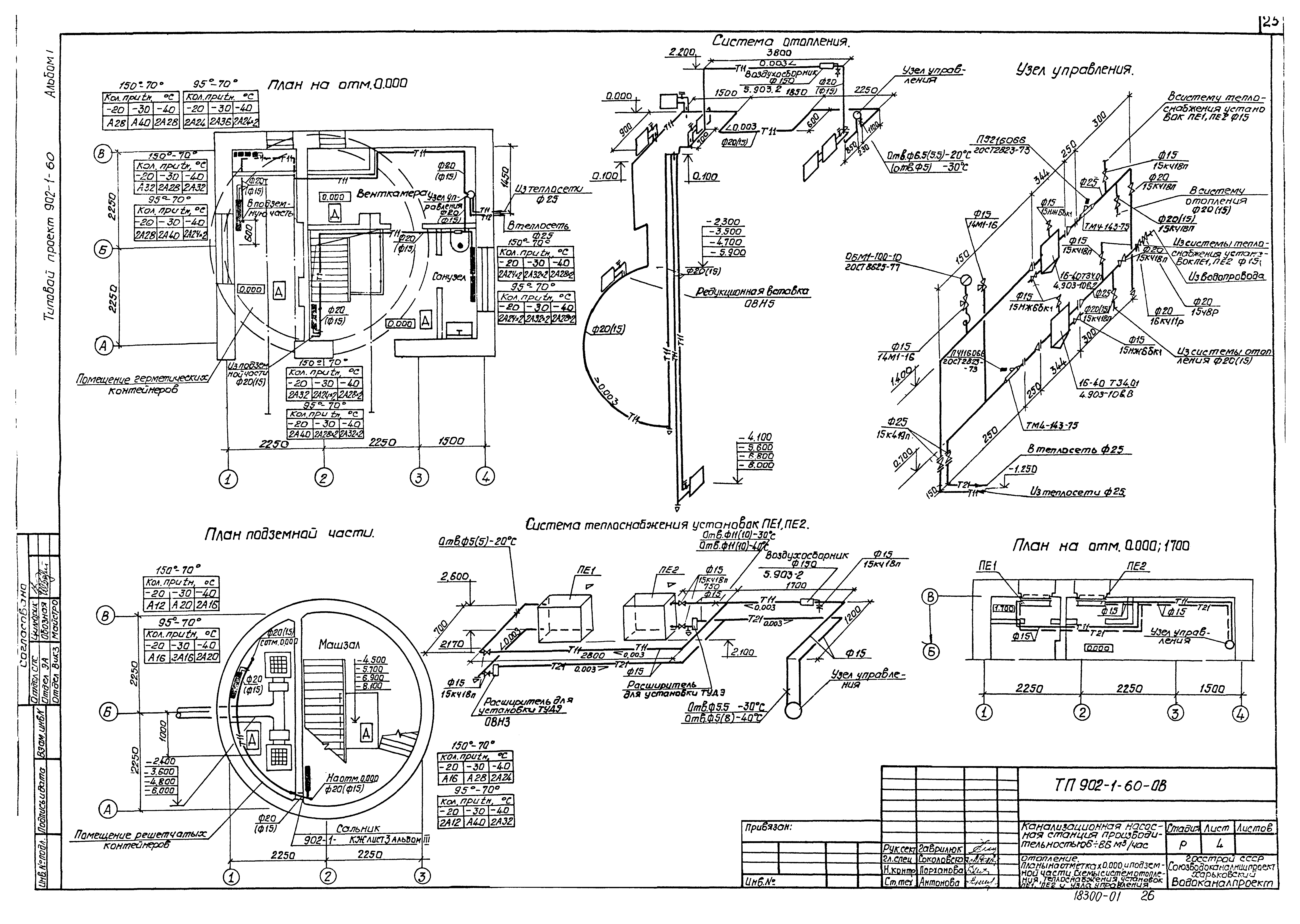
| Оглавление: | ТП 902-1-60 Содержание альбома ТП 902-1-60-НК Основной комплект марки НК ТП 902-1-60-НК-1 Общие данные (начало) ТП 902-1-60-НК-2 Общие данные (продолжение) ТП 902-1-60-НК-3 Общие данные (продолжение) ТП 902-1-60-НК-4 Общие данные (продолжение) ТП 902-1-60-НК-5 Общие данные (продолжение) ТП 902-1-60-НК-6 Общие данные (продолжение) ТП 902-1-60-НК-7 Общие данные (продолжение) ТП 902-1-60-НК-8 Общие данные (окончание) ТП 902-1-60-НК-9 План на отм. -1.500 ТП 902-1-60-НК-10 Разрезы 1-1 и 2-2 ТП 902-1-60-НК-11 План на отм. 0.000. План приемного резервуара. Разрез 3-3 ТП 902-1-60-НК-12 Схемы технологического и дренажного трубопроводов ТП 902-1-60-НК-13 Спецификация технологических и дренажного трубопроводов ТП 902-1-60-НКН Общие виды нетиповых конструкций марки НКН ТП 902-1-60-НКН Содержание ТП 902-1-60-НКН Установка распределителя мембранного. Чертеж общего вида ТП 902-1-60-НКН Контейнер герметический. Чертеж общего вида ТП 902-1-60-НКН Контейнер решетчатый. Чертеж общего вида ТП 902-1-60-НКН Крышка люка. Чертеж общего вида ТП 902-1-60-НКН Тележка. Чертеж общего вида ТП 902-1-60-ВК Основной комплект марки ВК ТП 902-1-60-ВК-1 Общие данные ТП 902-1-60-ВК-2 Внутренний хозяйственно-питьевой водопровод В1 и бытовая канализация К1. План. Схемы В1 и К1 ТП 902-1-60-ОВ Основной комплект марки ОВ ТП 902-1-60-ОВ-1 Общие данные (начало) ТП 902-1-60-ОВ-2 Общие данные (окончание) ТП 902-1-60-ОВ-3 Вентиляция. План на отм. 0.000 и подземной части. Разрез 1-1. Таблица местных отсосов от технологического оборудования ТП 902-1-60-ОВ-4 Отопление. Планы на отм. 0.000 и подземной части. Схемы систем отопления, теплоснабжения установок ПЕ1,ПЕ2 и узла управления ТП 902-1-60-ОВ-5 Вентиляция. Схемы систем ПЕ1,ПЕ2,В1,В2,ВЕ1. Установки систем ПЕ1,ПЕ2,В1,В2 ТП 902-1-60-ОВН Общие виды нетиповых конструкций марки ОВН ТП 902-1-60-ОВН Содержание ТП 902-1-60-ОВН1 Рама для крепления калорифера. Чертеж общего вида ТП 902-1-60-ОВН2 Лючок с заглушкой. Чертеж общего вида ТП 902-1-60-ОВН3 Расширитель. Чертеж общего вида ТП 902-1-60-ОВН4 Зонт. Чертеж общего вида ТП 902-1-60-ОВН5 Вставка редукционная. Чертеж общего вида ТП 902-1-60-ОВН6 Утепленный створный клапан. Чертеж общего вида ТП 902-1-60-ОВН7 Воздуховод. Чертеж общего вида |
| Разработан: | Харьковский Водоканалпроект |
| Утверждён: | 29.04.1982 Главпромстройпроект Госстроя СССР (15) |






























