Скачать Типовой проект 902-1-62 Альбом III. Строительные решения. Подземная часть (монолитный вариант)Дата актуализации: 01.01.2021
|
| Обозначение: | Типовой проект 902-1-62 |
| Обозначение англ: | 902-1-62 |
| Статус: | действует |
| Название рус.: | Альбом III. Строительные решения. Подземная часть (монолитный вариант) |
| Дата добавления в базу: | 01.09.2013 |
| Дата актуализации: | 01.01.2021 |
| Дата введения: | 01.10.1982 |
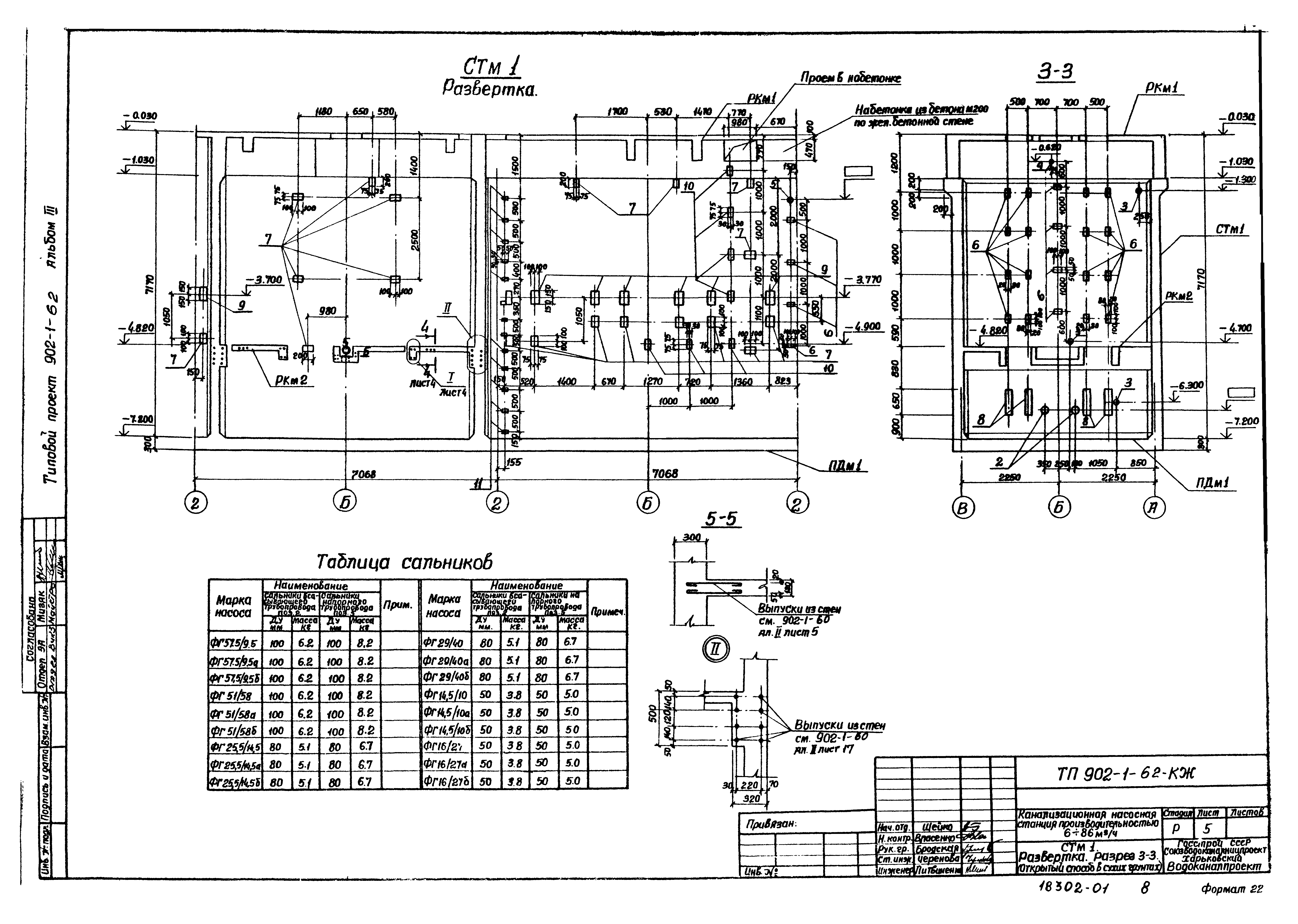
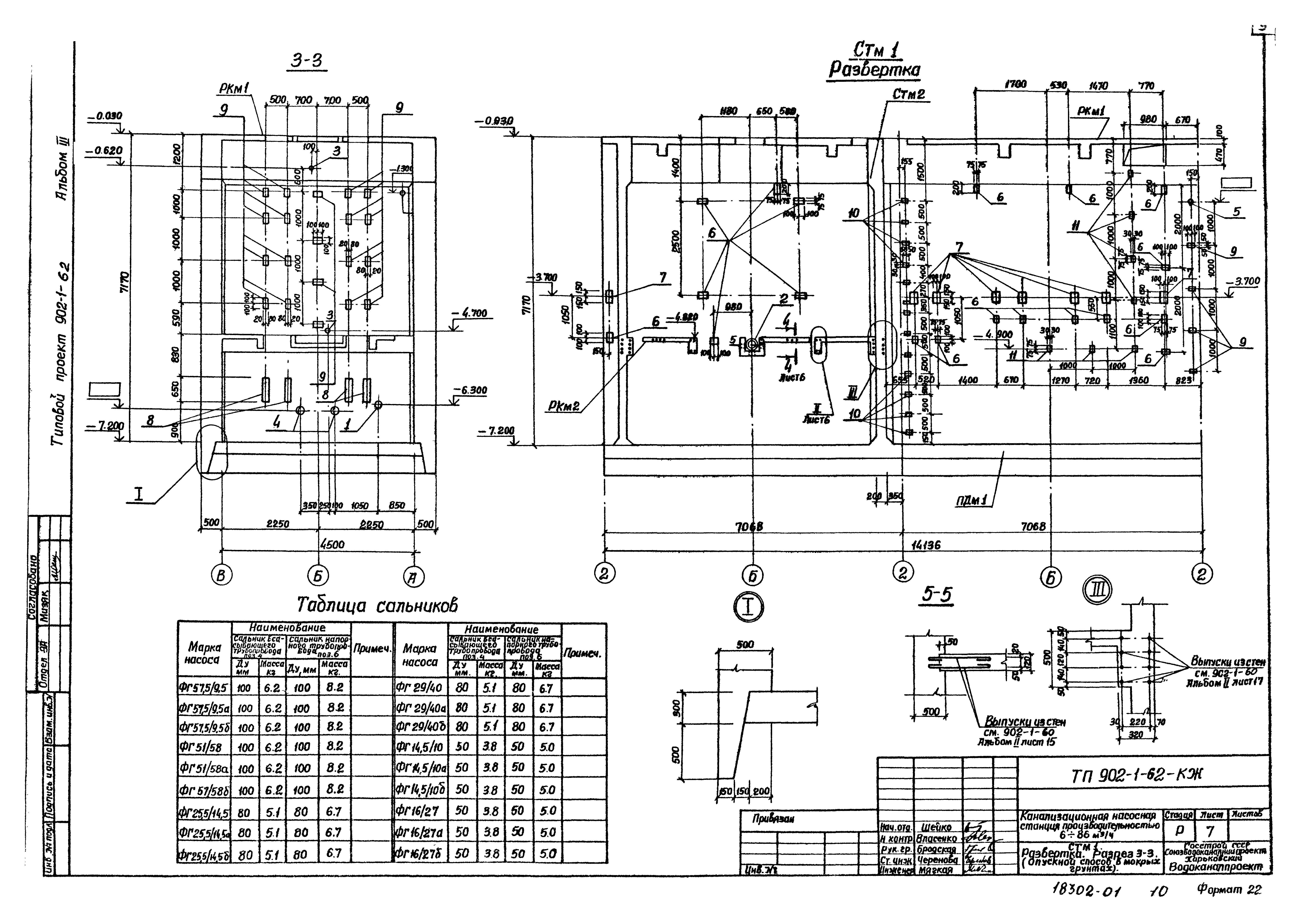
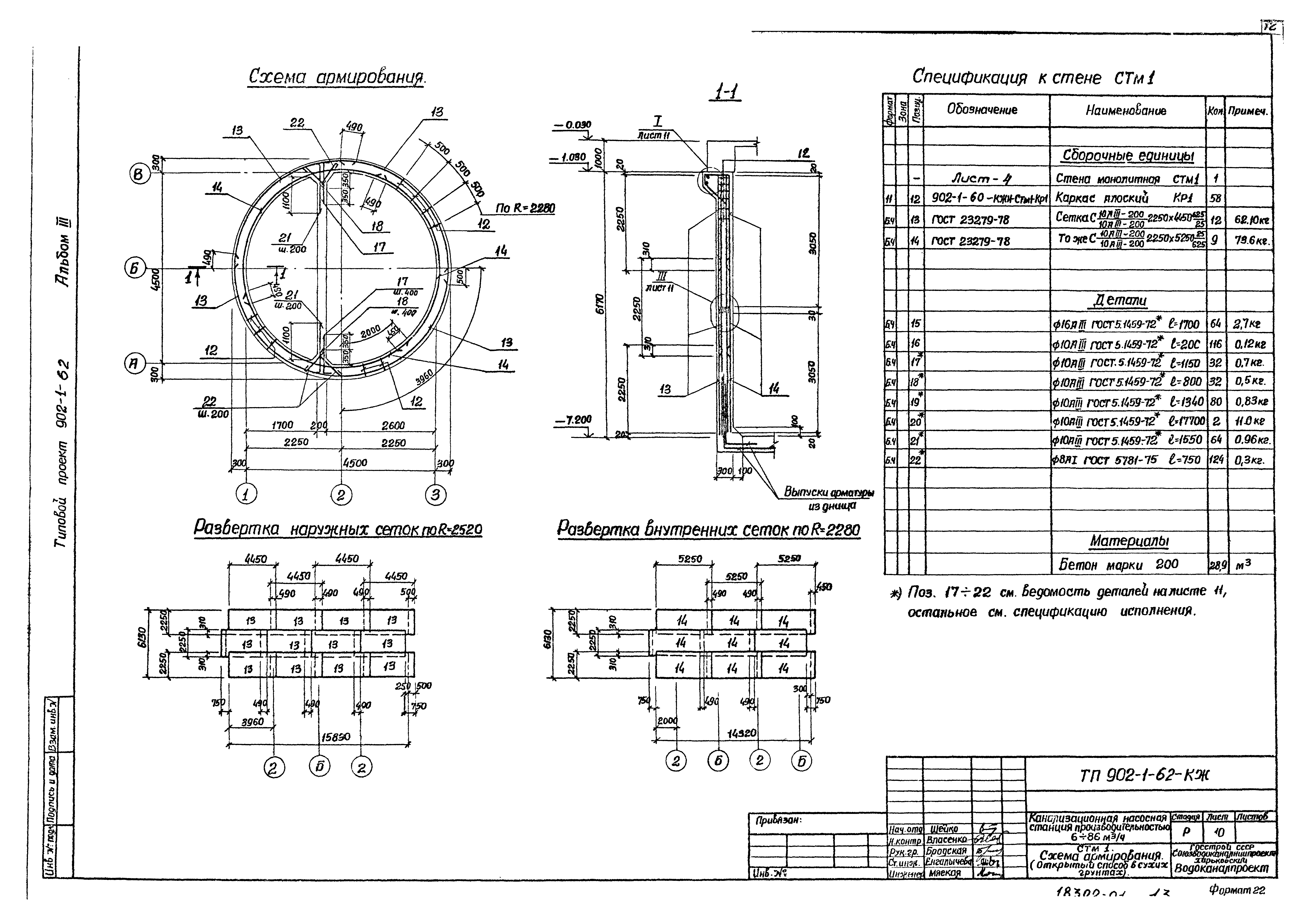
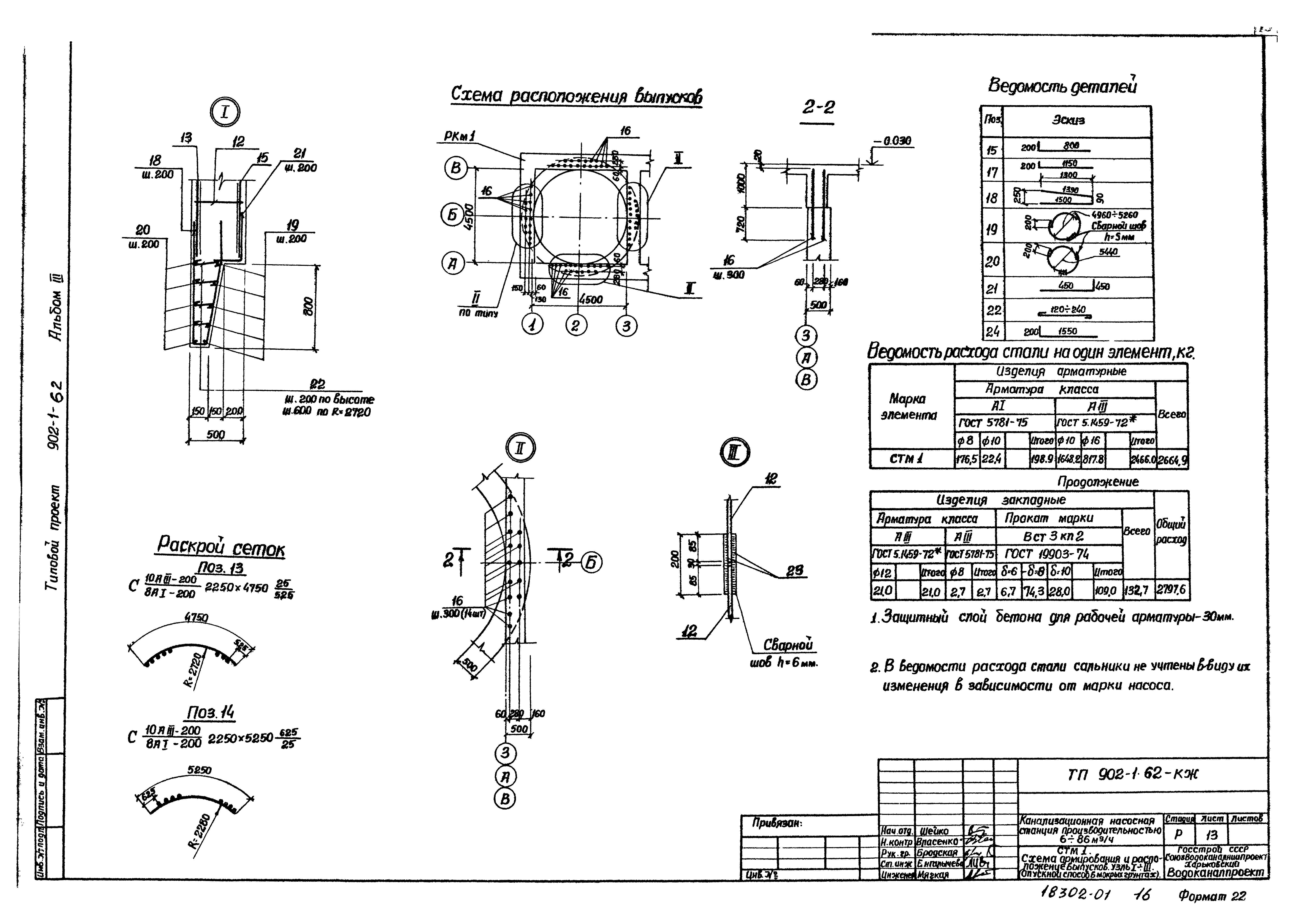
| Оглавление: | ТП 902-1-62 Содержание ТП 902-1-62-КЖ Основной комплект марки КЖ ТП 902-1-62-КЖ-1 Общие данные ТП 902-1-62-КЖ-2 Планы на отм. -3.600 и -6.900 Разрезы 1-1,2-2 (открытый способ в сухих и мокрых грунтах) ТП 902-1-62-КЖ-3 Планы на отм. -3.600 и -6.900 Разрезы 1-1,2-2 (опускной способ в мокрых грунтах) ТП 902-1-62-КЖ-4 Схема расположения элементов подземной части. Разрезы 1-1,2-2 (открытый способ в сухих грунтах) ТП 902-1-62-КЖ-5 СТМ1. Развертка. Разрез 3-3 (открытый способ в сухих грунтах) ТП 902-1-62-КЖ-6 Схема расположения элементов подземной части. Разрезы 1-1,2-2 (опускной способ в мокрых грунтах) ТП 902-1-62-КЖ-7 СТМ1. Развертка. Разрез 3-3 (опускной способ в мокрых грунтах) ТП 902-1-62-КЖ-8 Плита днища ПДМ1. Схема армирования (открытый способ в сухих грунтах) ТП 902-1-62-КЖ-9 Плита днища ПДМ1. Схема армирования (открытый способ в мокрых грунтах) ТП 902-1-62-КЖ-10 СТМ1. Схема армирования (открытый способ в сухих грунтах) ТП 902-1-62-КЖ-11 СТМ1. Схема армирования и расположения выпусков. Узлы 1-3 (открытый способ в сухих грунтах) ТП 902-1-62-КЖ-12 СТМ1. Схема армирования (опускной способ в мокрых грунтах) ТП 902-1-62-КЖ-13 СТМ1. Схема армирования и расположения выпусков. Узлы 1-2 (опускной способ в мокрых грунтах) ТП 902-1-62-КЖ-14 СТМ2. Схема армирования ТП 902-1-62-КМ Основной комплект марки КМ ТП 902-1-62-КМ-1 Общие данные ТП 902-1-62-КМ-2 Схемы расположения металлических лестниц и лестничных площадок ТП 902-1-62-КМ-3 Схемы расположения лестниц. Сечения 1-1÷7-7. Узел 1 |
| Разработан: | Харьковский Водоканалпроект |
| Утверждён: | 29.04.1982 Главпромстройпроект Госстроя СССР (15) |



















