Скачать Типовой проект 902-1-63 Альбом III. Строительные решения. Подземная часть (сборный вариант)Дата актуализации: 01.01.2021
|
| Обозначение: | Типовой проект 902-1-63 |
| Обозначение англ: | 902-1-63 |
| Статус: | действует |
| Название рус.: | Альбом III. Строительные решения. Подземная часть (сборный вариант) |
| Дата добавления в базу: | 01.09.2013 |
| Дата актуализации: | 01.01.2021 |
| Дата введения: | 01.11.1982 |
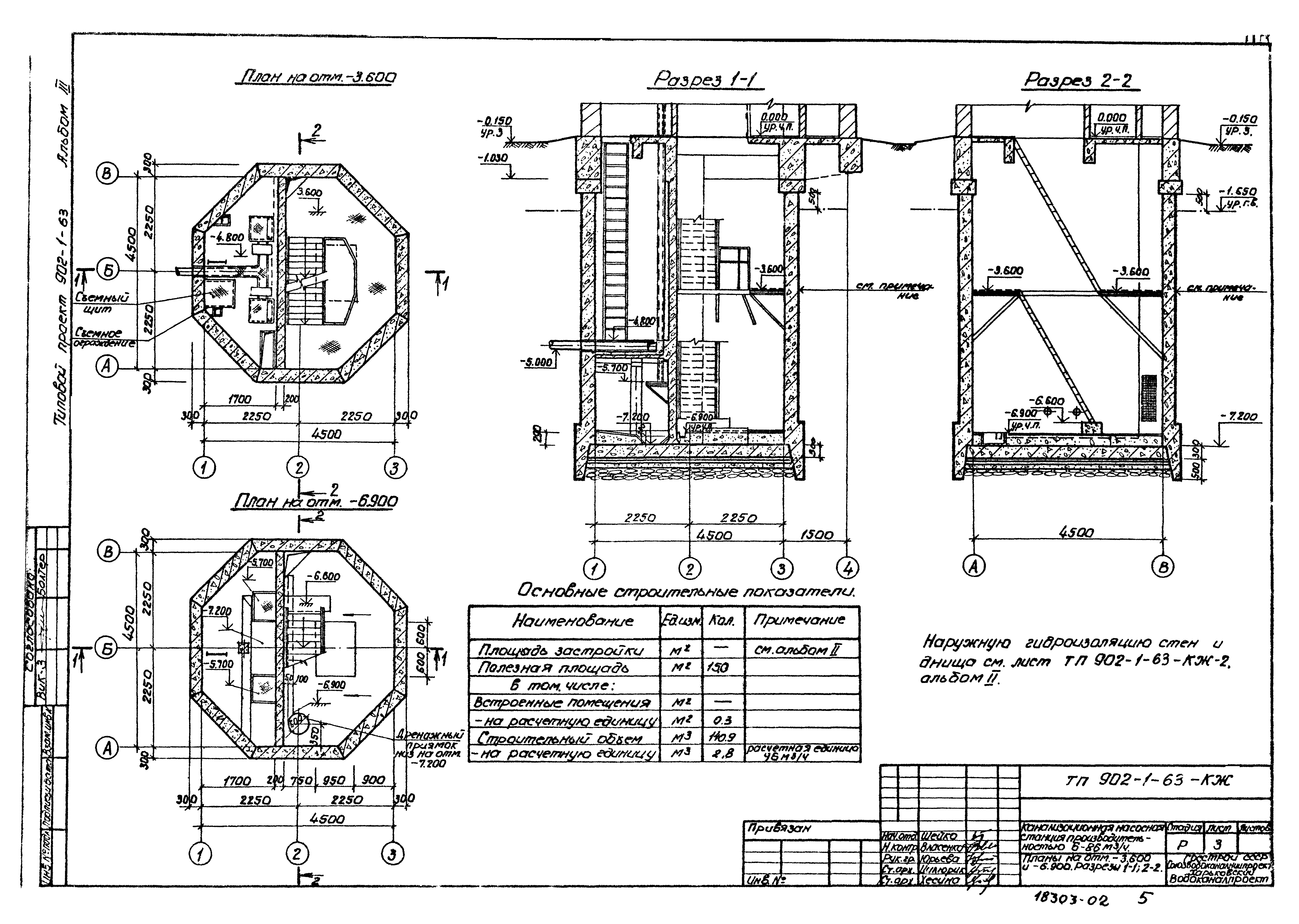
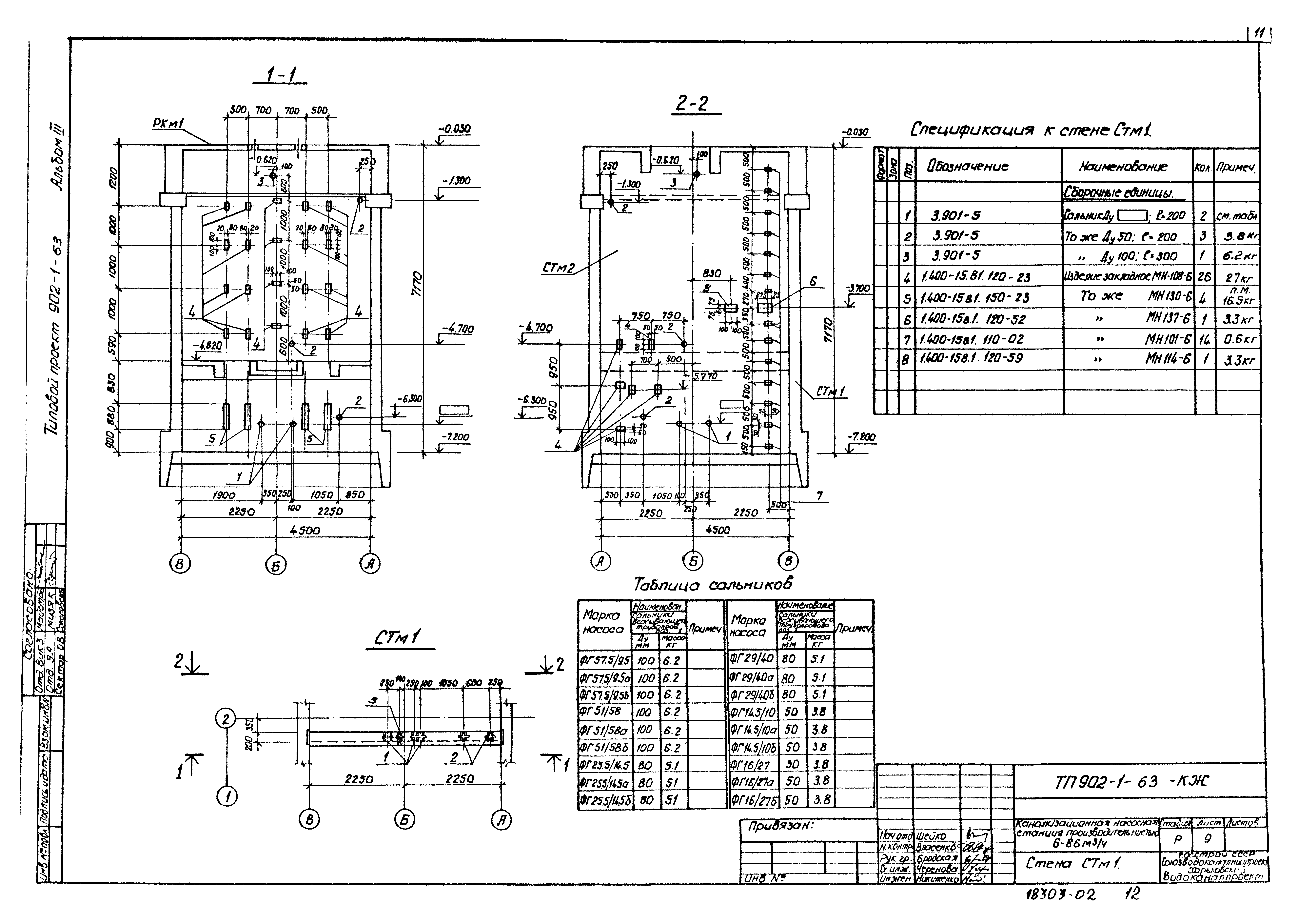
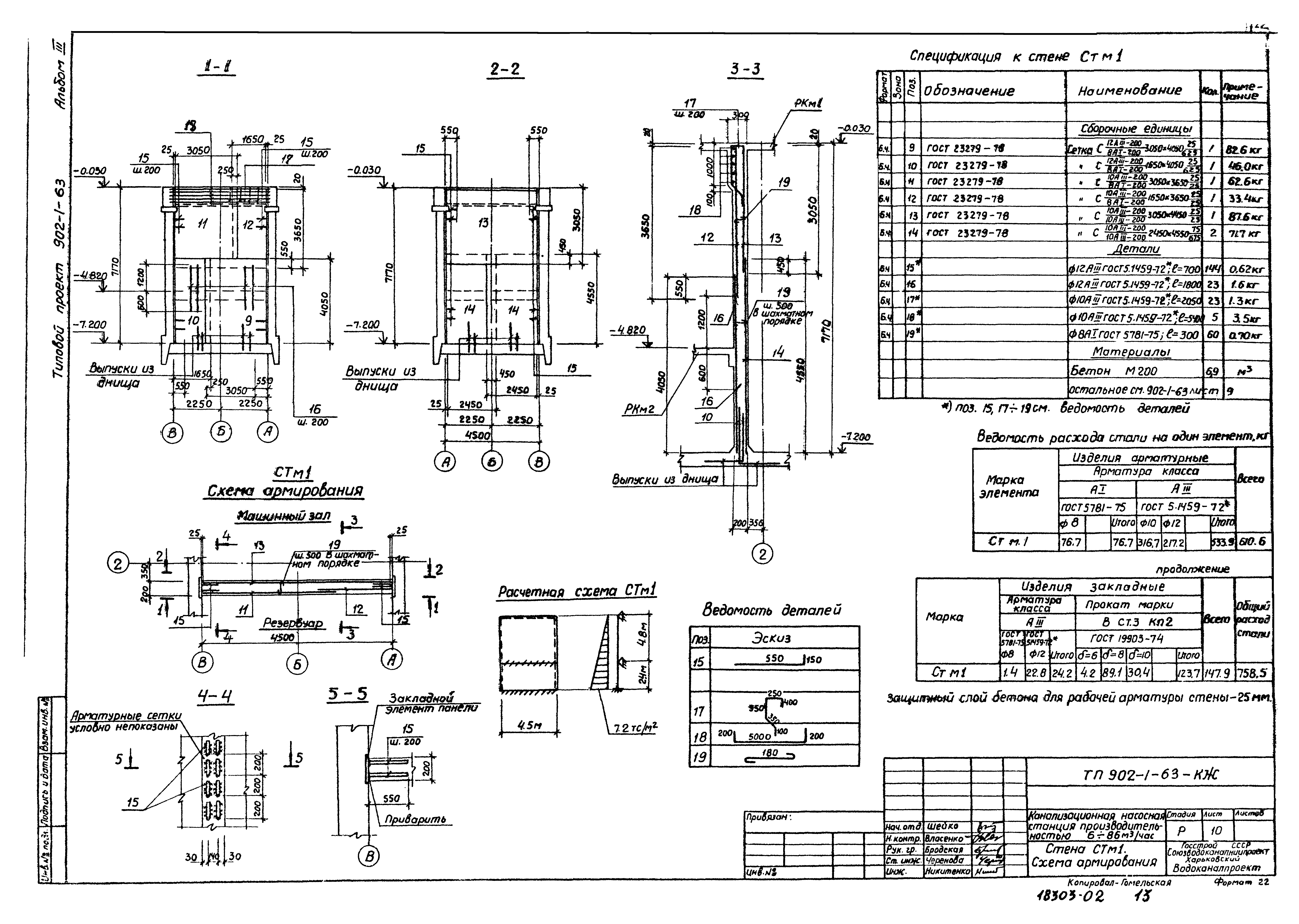
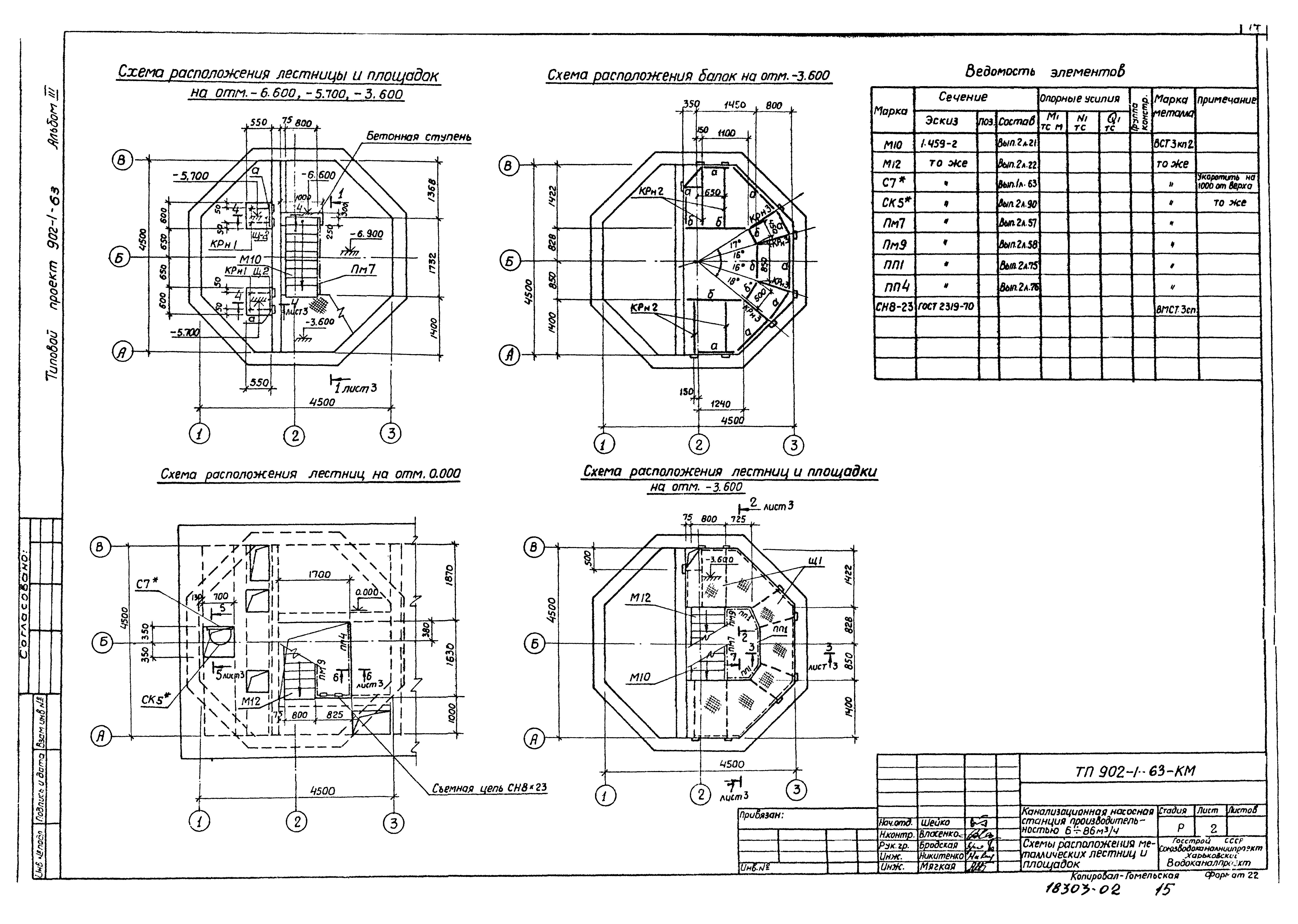
| Оглавление: | ТП 902-1-63-КЖ-1 Общие данные ТП 902-1-63-КЖ-2 Планы на отм. -3.600 и -6.900 Разрезы 1-1,2-2 ТП 902-1-63-КЖ-3 Схема расположения монолитных конструкций подземной части ТП 902-1-63-КЖ-4 Схема расположения стеновых панелей. Развертка наружной стены ТП 902-1-63-КЖ-5 Схема расположения стеновых панелей. Узлы 1-4 ТП 902-1-63-КЖ-6 Схема расположения стеновых панелей. Узлы 5-8 ТП 902-1-63-КЖ-7 Схема расположения стеновых панелей. Спецификация ТП 902-1-63-КЖ-8 Плита днища ПДМ1. Схема армирования ТП 902-1-63-КЖ-9 Стена СТМ1 ТП 902-1-63-КЖ-10 Стена СТМ1.Схема армирования ТП 902-1-63-КМ-1 Общие данные ТП 902-1-63-КМ-2 Схемы расположения металлических лестниц и площадок ТП 902-1-63-КМ-3 Схемы расположения металлических лестниц и площадок. Сечения 1-1÷7-7. Узел 1 |
| Разработан: | Харьковский Водоканалпроект |
| Утверждён: | 29.04.1982 Главпромстройпроект Госстроя СССР (15) |















