Скачать Типовой проект 320-4 Альбом I. Архитектурно-строительная частьДата актуализации: 01.01.2021
|
| Обозначение: | Типовой проект 320-4 |
| Обозначение англ: | 320-4 |
| Статус: | не определен законодательством |
| Название рус.: | Альбом I. Архитектурно-строительная часть |
| Дата добавления в базу: | 01.09.2013 |
| Дата актуализации: | 01.01.2021 |
| Дата введения: | 15.11.1965 |
| Дата окончания срока действия: | 30.06.2003 |
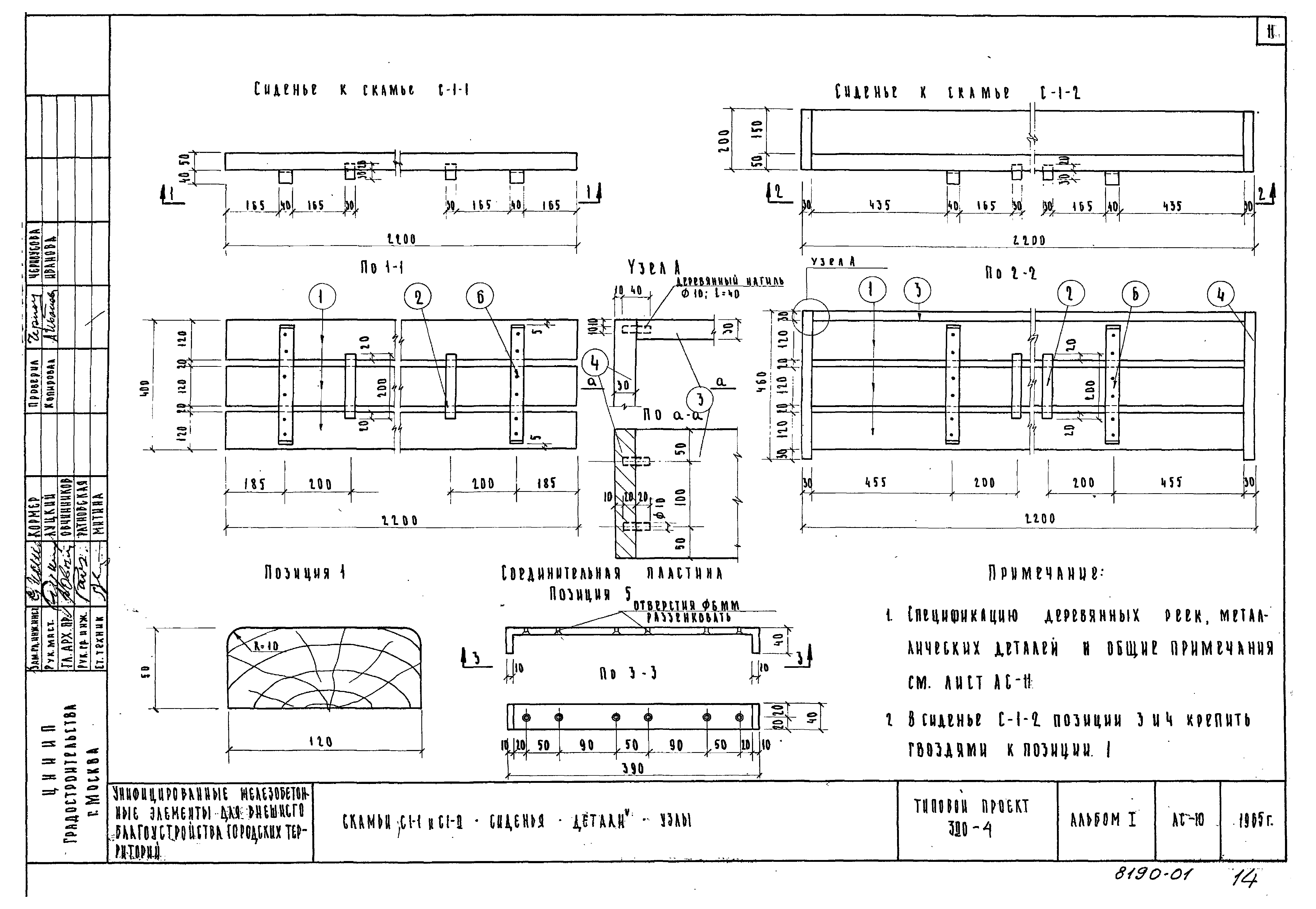
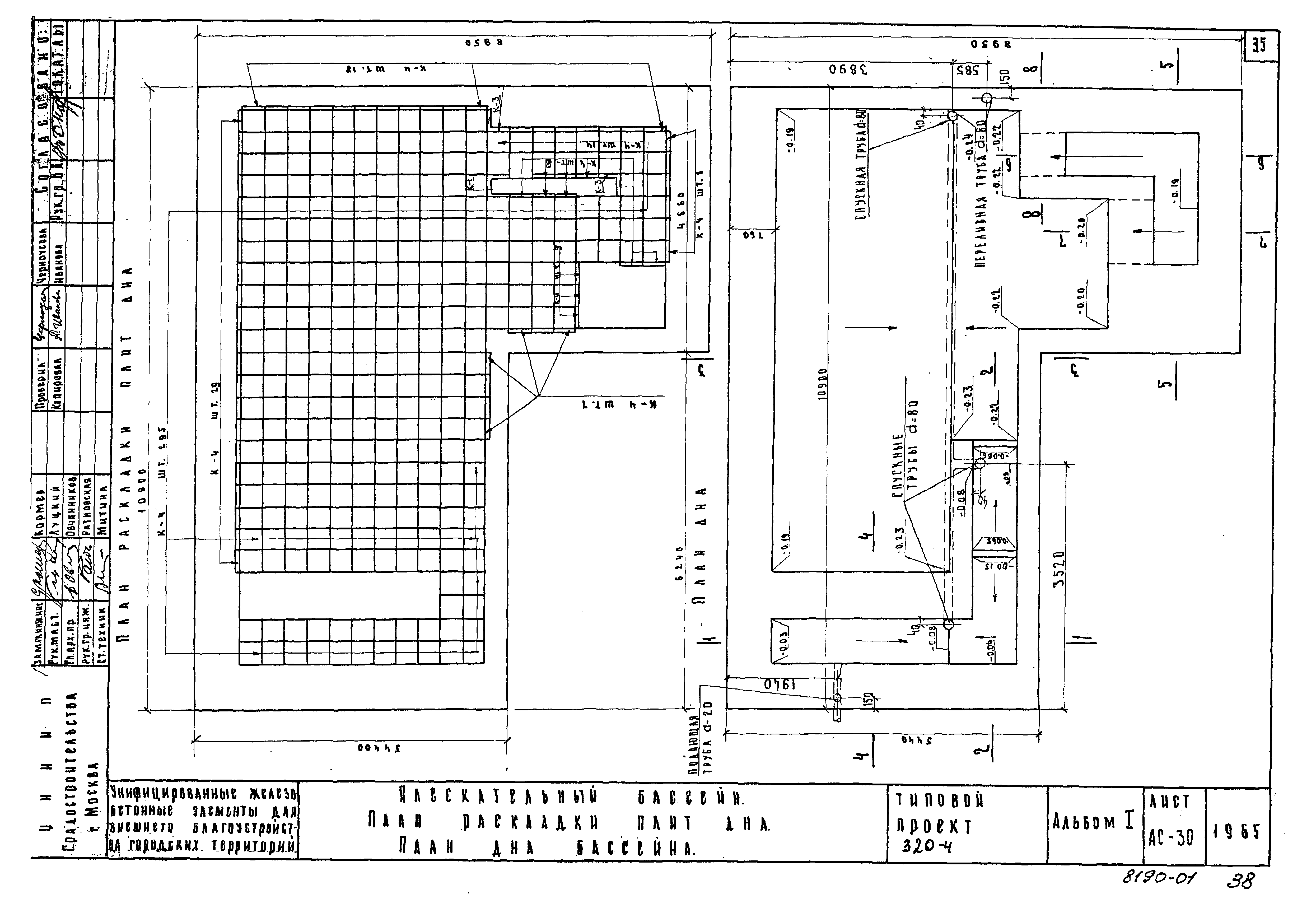
| Оглавление: | ТП 320-4 Пояснительная записка ТП 320-4-АС-1 Цветочница тип 1. Общий вид. План верхнего ряда ТП 320-4-АС-2 Цветочница тип 2 и тип 3. Общие виды ТП 320-4-АС-3 Лестница тип 1. Общий вид. Разрезы ТП 320-4-АС-4 Лестница тип 2. Общий вид. Разрез ТП 320-4-АС-5 Лестница тип 3. Общий вид. Разрез ТП 320-4-АС-6 Лестница тип 4. Общий вид. Разрез. Спецификация блоков. Расход материалов ТП 320-4-АС-7 Ограды тип 1, тип 2. Фасады. Разрез. Спецификация блоков. Расход материалов ТП 320-4-АС-8 Скамьи тип С1-1 и С1-2. Фасады. Планы. Узел "А" ТП 320-4-АС-9 Скамьи тип С1-3 и С1-4. Фасады. Планы. Боковые виды. Узел "А" ТП 320-4-АС-10 Скамьи тип С1-1 и С1-2. Сиденья. Детали. Узлы ТП 320-4-АС-11 Скамьи тип С1-3 и С1-4. Сиденья. Спецификация ТП 320-4-АС-12 Водостоки тип 1 и тип 2. Общие виды. Разрезы ТП 320-4-АС-13 Водостоки тип 3 и тип 4. Общие виды. Разрезы ТП 320-4-АС-14 Водосток тип 5. Общий вид. Разрез. Спецификация блоков. Расход материалов ТП 320-4-АС-15 Подпорные стенки тип 1 и тип 2. Общие виды. Разрезы ТП 320-4-АС-16 Подпорная стенка тип 3. Общий вид. Разрез ТП 320-4-АС-17 Подпорная стенка тип 4. Общий вид. Разрез. Спецификация блоков. Расход материалов ТП 320-4-АС-18 Песочница. Фасад. План. Спецификация блоков и расход материалов ТП 320-4-АС-19 Песочница. Разрезы. Узлы ТП 320-4-АС-20 Декоративный фонтан. План. Фасад ТП 320-4-АС-21 Декоративный фонтан. Планы по 2-2,3-3 ТП 320-4-АС-22 Декоративный фонтан. Разрез 4-4 ТП 320-4-АС-23 Декоративный фонтан. Сантехническое устройство ТП 320-4-ВК-1 Декоративный фонтан с бассейном. План. Фасад ТП 320-4-АС-24 Декоративный фонтан с бассейном. Фонтанирующие устройства ТП 320-4-АС-25 Декоративный фонтан с бассейном. Разрез 1-1;2-2 ТП 320-4-АС-26 Декоративный фонтан с бассейном. План дна. Сечения ТП 320-4-АС-27 Декоративный фонтан с бассейном. Сечения б-б,в-в,г-г,д-д ТП 320-4-АС-28 Декоративный фонтан с бассейном. Армирование плиты основания ТП 320-4-АС-28а Декоративный фонтан с бассейном. Армирование плиты основания. Сетка С-1. Спецификация ТП 320-4-ВК-2 Декоративный фонтан с бассейном. Сантехустройство ТП 320-4-ВК-3 Декоративный фонтан с бассейном. Сантехустройство ТП 320-4-АС-29 Плескательный бассейн. План. Фасад ТП 320-4-АС-30 Плескательный бассейн. План раскладки плит дна. План дна ТП 320-4-АС-31 Плескательный бассейн. План раскладки элементов борта ТП 320-4-АС-32 Плескательный бассейн. Разрез 1-1,2-2. Бортовая скамья ТП 320-4-АС-33 Плескательный бассейн. Сечение 1-1,2-2,3-3,4-4 ТП 320-4-АС-34 Плескательный бассейн. Сечения 5-5,6-6,7-7,8-8 ТП 320-4-АС-35 Плескательный бассейн. Армирование плиты основания. План сечения 1-1,2-2 ТП 320-4-АС-36 Плескательный бассейн. Армирование плиты основания. Сечения 3-3,6-6 ТП 320-4-АС-37 Плескательный бассейн. Армирование плиты основания. Спецификация арматуры ТП 320-4-ВК-4 Плескательный бассейн. Сантехустройство ТП 320-4-ВК-5 Плескательный бассейн. Сантехустройство ТП 320-4-ВК-6 Фонтаны и бассейны. Сантехустройство |
| Разработан: | ЦНИИП градостроительства |
| Утверждён: | 15.11.1965 ЦНИИП градостроительства Госгражданстроя (260) |















































