Скачать Типовой проект 264-14-21.86 Альбом I. Архитектурно-строительные решения, инженерное оборудование, технологияДата актуализации: 01.01.2021
|
| Обозначение: | Типовой проект 264-14-21.86 |
| Обозначение англ: | 264-14-21.86 |
| Статус: | действует |
| Название рус.: | Альбом I. Архитектурно-строительные решения, инженерное оборудование, технология |
| Дата добавления в базу: | 01.09.2013 |
| Дата актуализации: | 01.01.2021 |
| Дата введения: | 19.03.1987 |
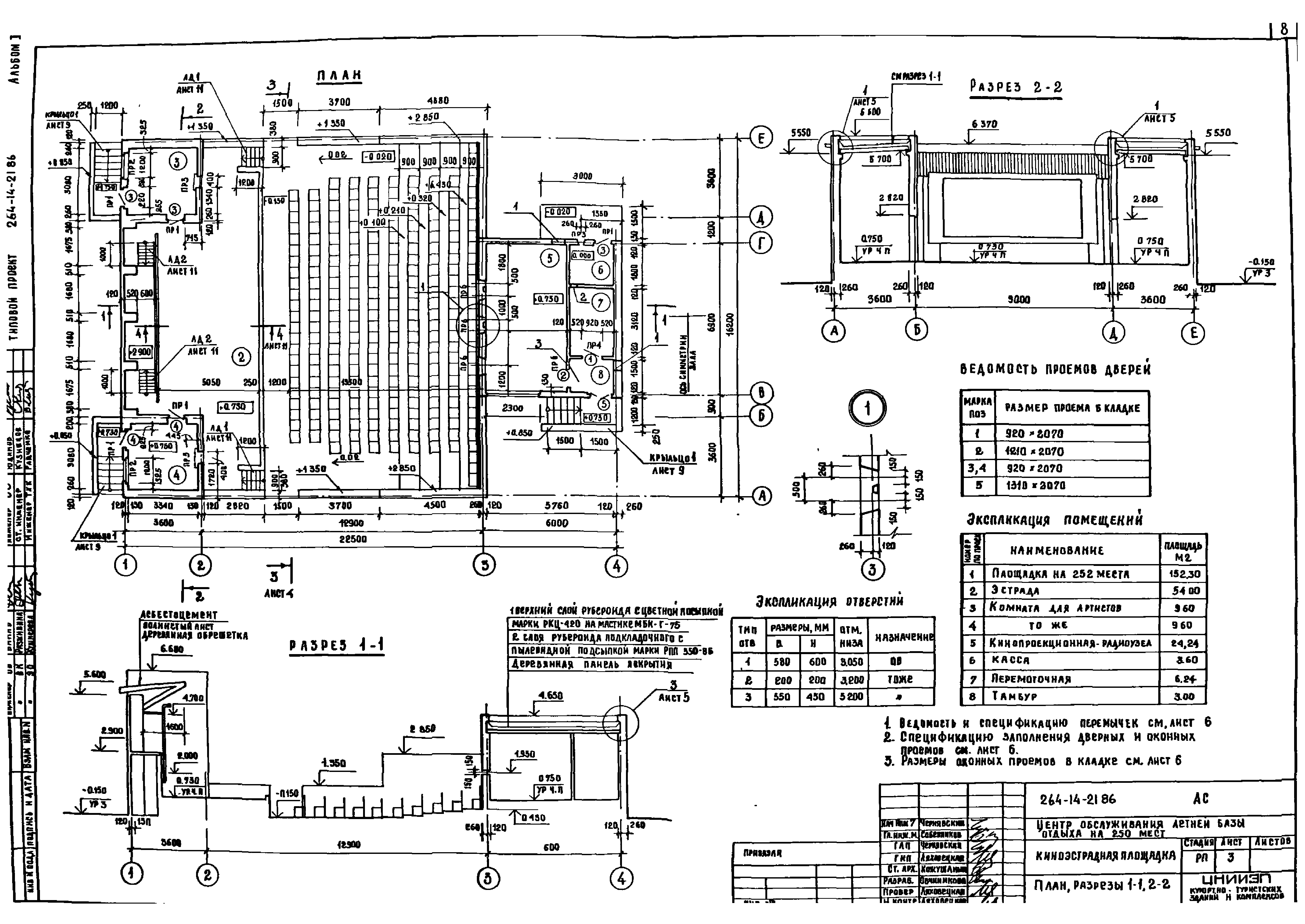
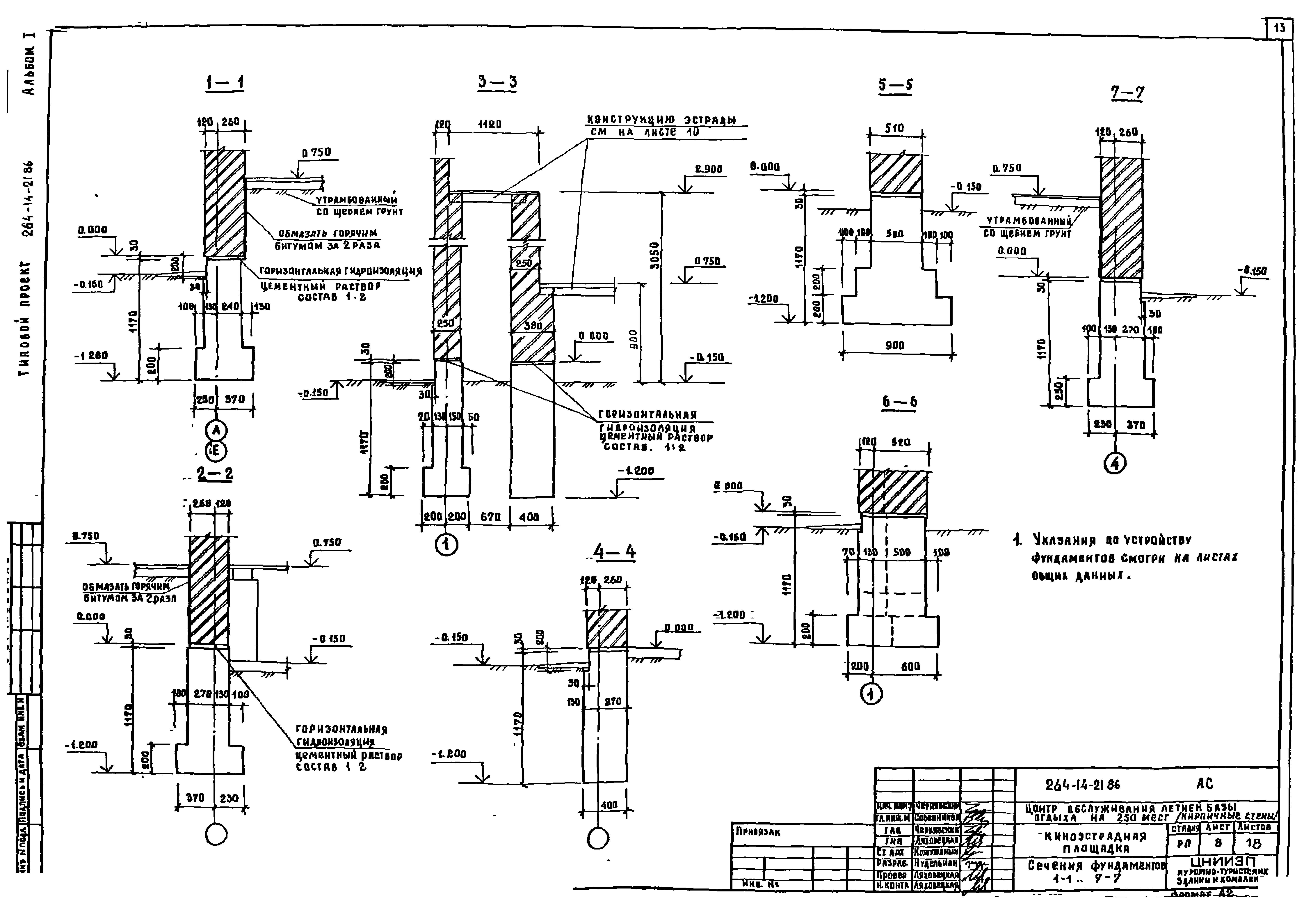
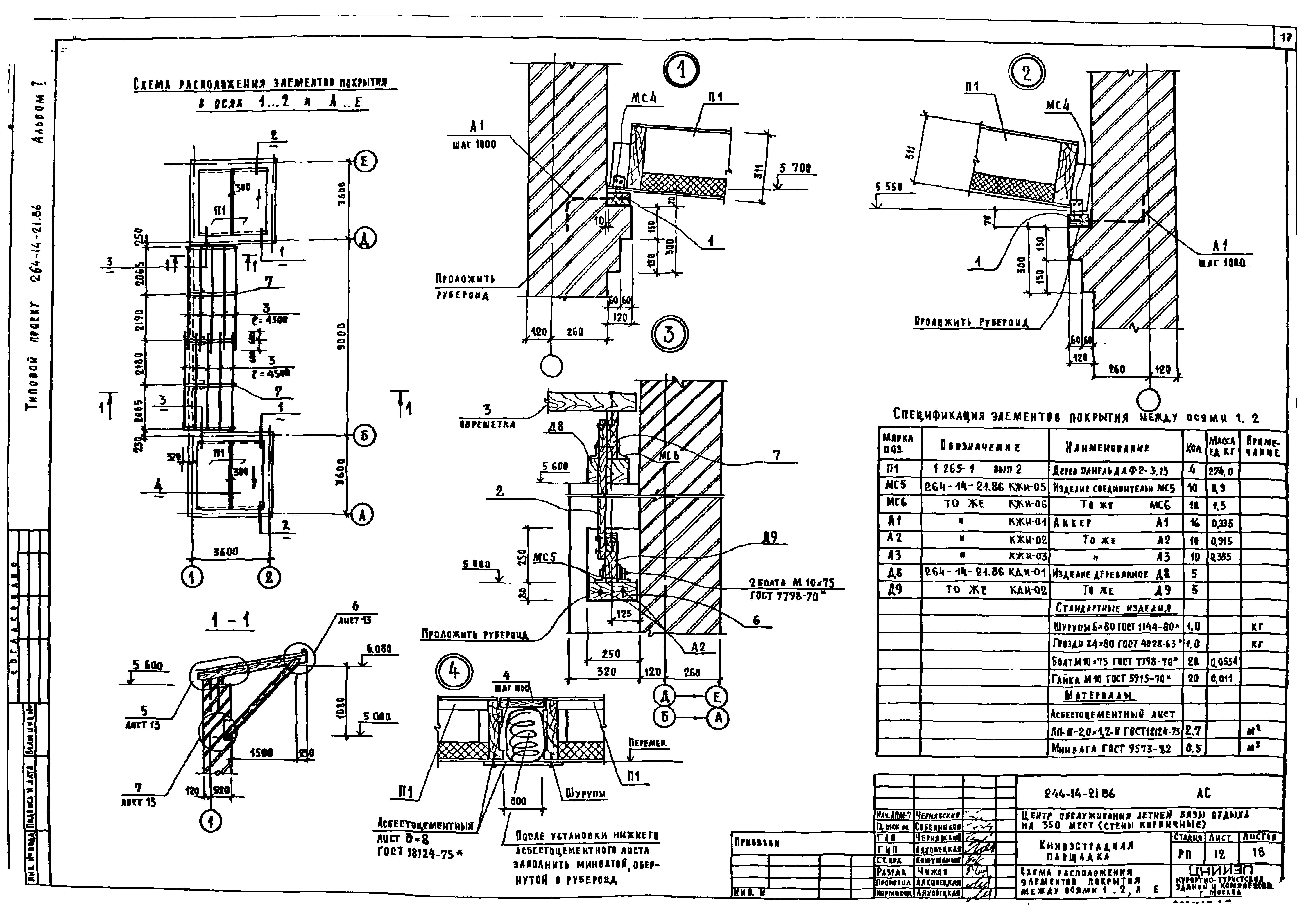
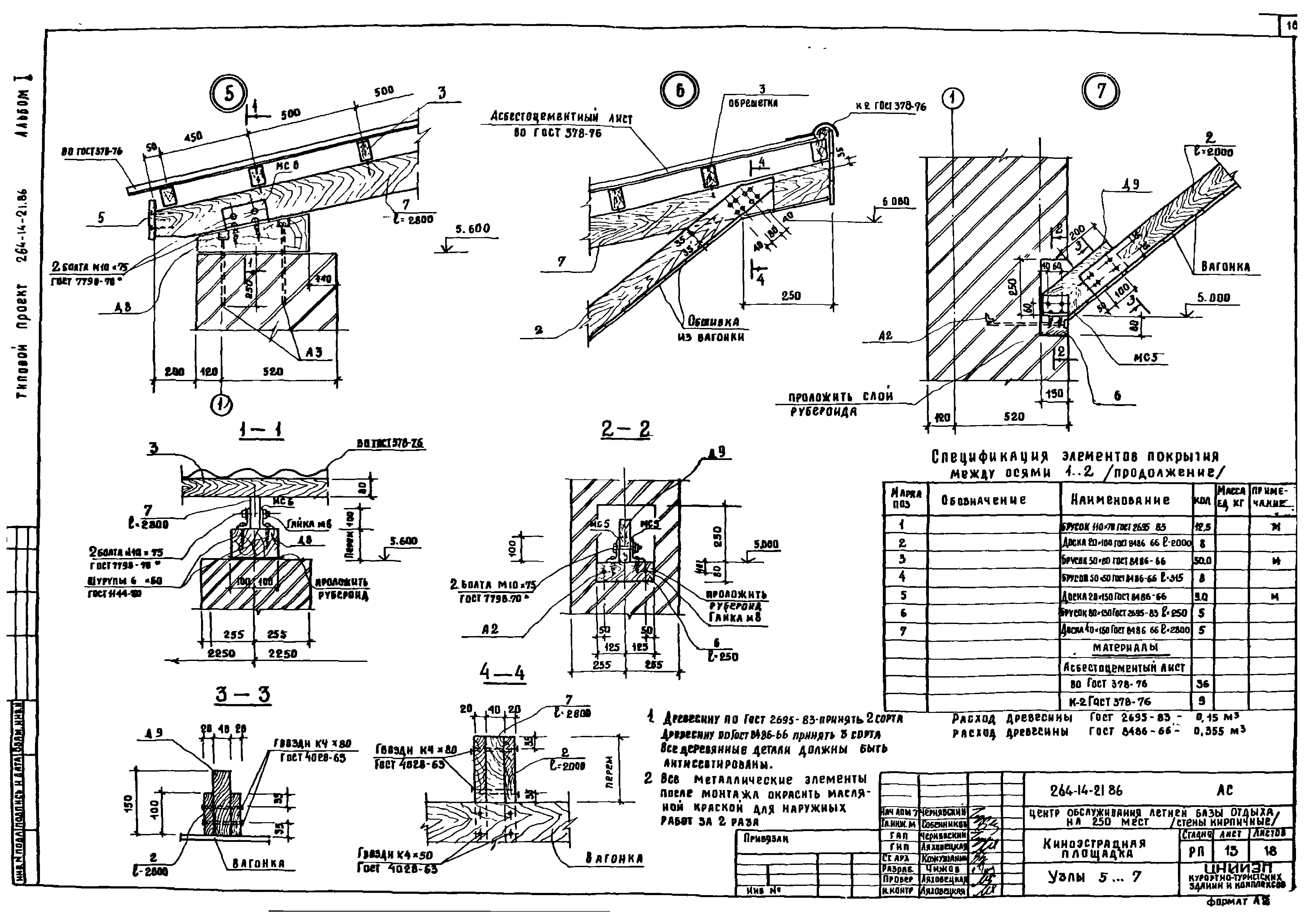
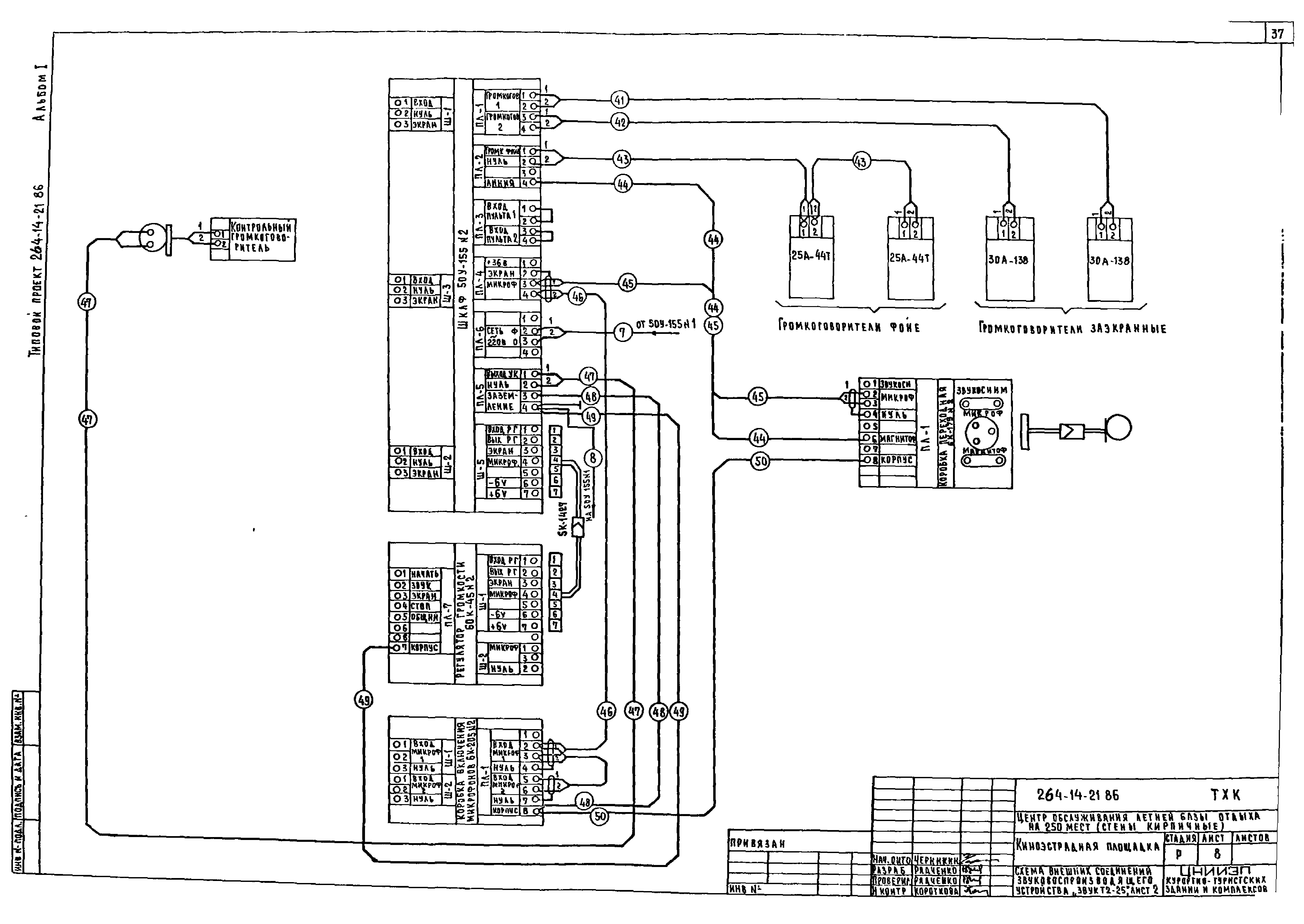
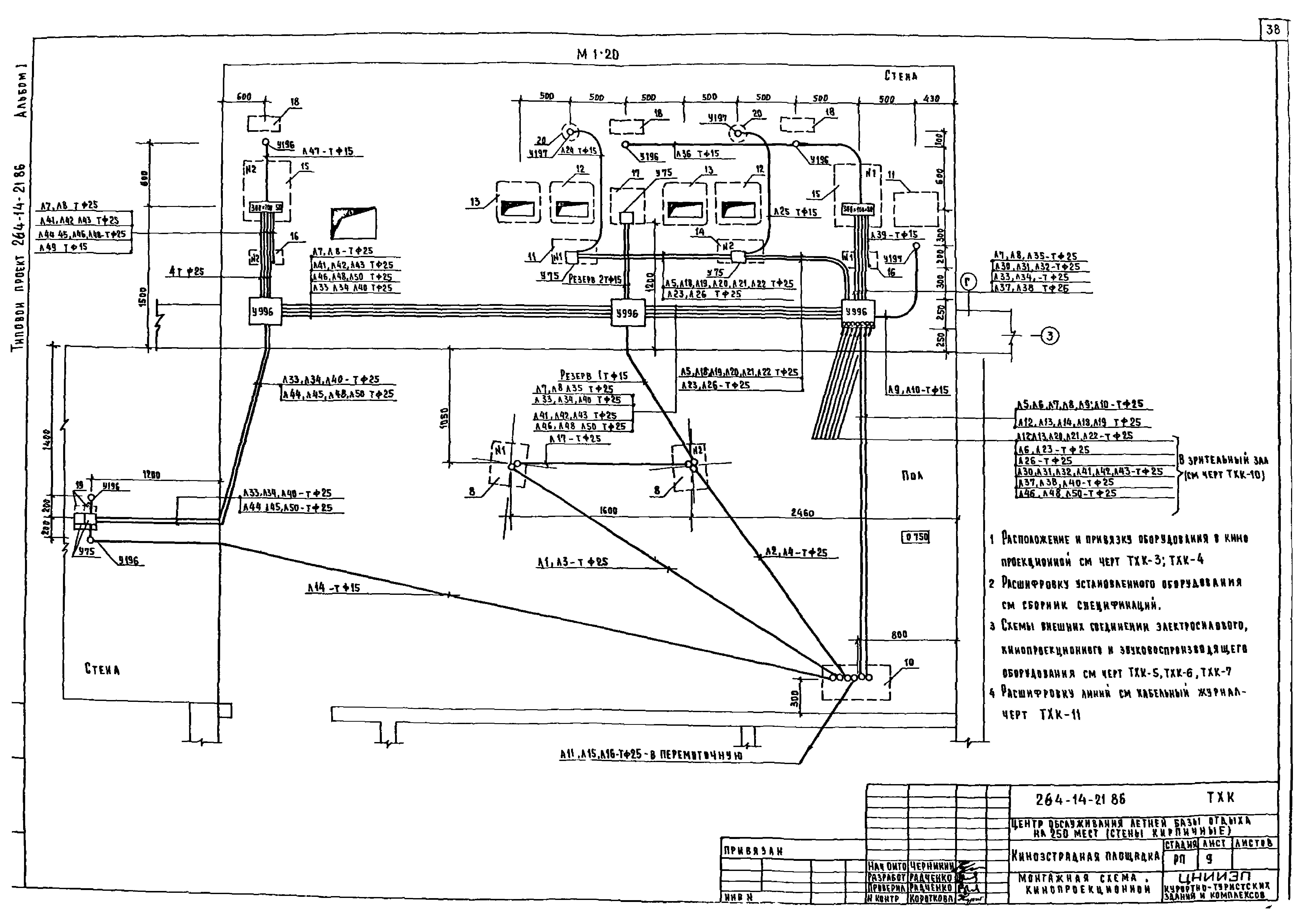
| Оглавление: | ТП 264-14-21.86 Содержание альбома ТП 264-14-21.86-О Общая часть (марка О) ТП 264-14-21.86-О-1 Общие данные. Пояснительная записка (начало) ТП 264-14-21.86-О-2 Пояснительная записка (продолжение) ТП 264-14-21.86-О-3 Пояснительная записка (окончание) ТП 264-14-21.86-АС Архитектурно-строительные решения (марка АС) ТП 264-14-21.86-АС-1 Общие данные (начало) ТП 264-14-21.86-АС-2 Общие данные (окончание) ТП 264-14-21.86-АС-3 План. Разрезы 1-1,2-2 ТП 264-14-21.86-АС-4 Фасады 4-1,А-Е,1-4,Е-А. Вид 1-1 ТП 264-14-21.86-АС-5 Разрез 3-3. План кровли. Узлы 1...4, а-а ТП 264-14-21.86-АС-6 Ведомость и спецификация перемычек. Элементы заполнения проемов. Спецификация элементов кровли, ВШ-1 ТП 264-14-21.86-АС-7 План фундаментов. Схема плана с расчетными сечениями ТП 264-14-21.86-АС-8 Сечения фундаментов 1-1...7-7 ТП 264-14-21.86-АС-9 Сечения фундаментов 8-8...12-12. Крыльцо 1 ТП 264-14-21.86-АС-10 Схема расположения элементов сцены. План бетонной подготовки ТП 264-14-21.86-АС-11 Сечения 4-4...8-8 ТП 264-14-21.86-АС-12 Схема расположения элементов покрытия между осями 1-2,А-Е ТП 264-14-21.86-АС-13 Узлы 5-7 ТП 264-14-21.86-АС-14 Схема расположения элементов покрытия между осями 3-4 и В-Г ТП 264-14-21.86-АС-15 Установка рамы экрана, троса занавеса Т31, трубы декоративной ТД-1 ТП 264-14-21.86-АС-16 Схема расположения крепления воздуховодов ТП 264-14-21.86-АС-17 Воздуховод В1 из асбестоцементных листов ТП 264-14-21.86-АС-18 Спецификация элементов воздуховодов ТП 264-14-21.86-ОВ Отопление и вентиляция (марка ОВ) ТП 264-14-21.86-ОВ-1 Общие данные. План. Системы В1,В2,ВЕ1 ТП 264-14-21.86-ВК Внутренние водопровод и канализация (марка ВК) ТП 264-14-21.86-ВК-1 Общие данные ТП 264-14-21.86-ВК-2 План. Схемы по водоснабжению и канализации ТП 264-14-21.86-ЭО Электрооборудование (марка ЭО) ТП 264-14-21.86-ЭО-1 Общие данные ТП 264-14-21.86-ЭО-2 План. Электрооборудование ТП 264-14-21.86-СС Связь и сигнализация (марка СС) ТП 264-14-21.86-СС-1 Общие данные. План на отм. 0.00 ТП 264-14-21.86-ТХК Кинотехнология (марка ТХК) ТП 264-14-21.86-ТХК-1 Общие данные ТП 264-14-21.86-ТХК-2 Планы и разрезы киноплощадки ТП 264-14-21.86-ТХК-3 План кинопроекционной ТП 264-14-21.86-ТХК-4 Разрезы "В-В" и "Г-Г кинопроекционной ТП 264-14-21.86-ТХК-5 Схема внешних соединений электросилового и кинопроекционного оборудования. Лист 1 ТП 264-14-21.86-ТХК-6 Схема внешних соединений электросилового и кинопроекционного оборудования. Лист 2 ТП 264-14-21.86-ТХК-7 Схемы внешних соединений звуковоспроизводящего устройства "Звук Т2-25". Лист 1 ТП 264-14-21.86-ТХК-8 Схемы внешних соединений звуковоспроизводящего устройства "Звук Т2-25". Лист 2 ТП 264-14-21.86-ТХК-9 Монтажная схема кинопроекционной ТП 264-14-21.86-ТХК-10 Монтажная схема ТП 264-14-21.86-ТХК-11 Кабельный журнал |
| Разработан: | ЦНИИЭП курортно-туристских зданий и комплексов Госгражданстроя |
| Утверждён: | 08.08.1985 Госгражданстрой (Gosgrazhdanstroy 229) |








































