Скачать Типовой проект 903-1-225.86 Альбом 1.1. Часть 2. Котельная. Блоки тепломеханического оборудованияДата актуализации: 01.01.2021
|
| Обозначение: | Типовой проект 903-1-225.86 |
| Обозначение англ: | 903-1-225.86 |
| Статус: | действует |
| Название рус.: | Альбом 1.1. Часть 2. Котельная. Блоки тепломеханического оборудования |
| Дата добавления в базу: | 01.09.2013 |
| Дата актуализации: | 01.01.2021 |
| Дата введения: | 20.05.1986 |
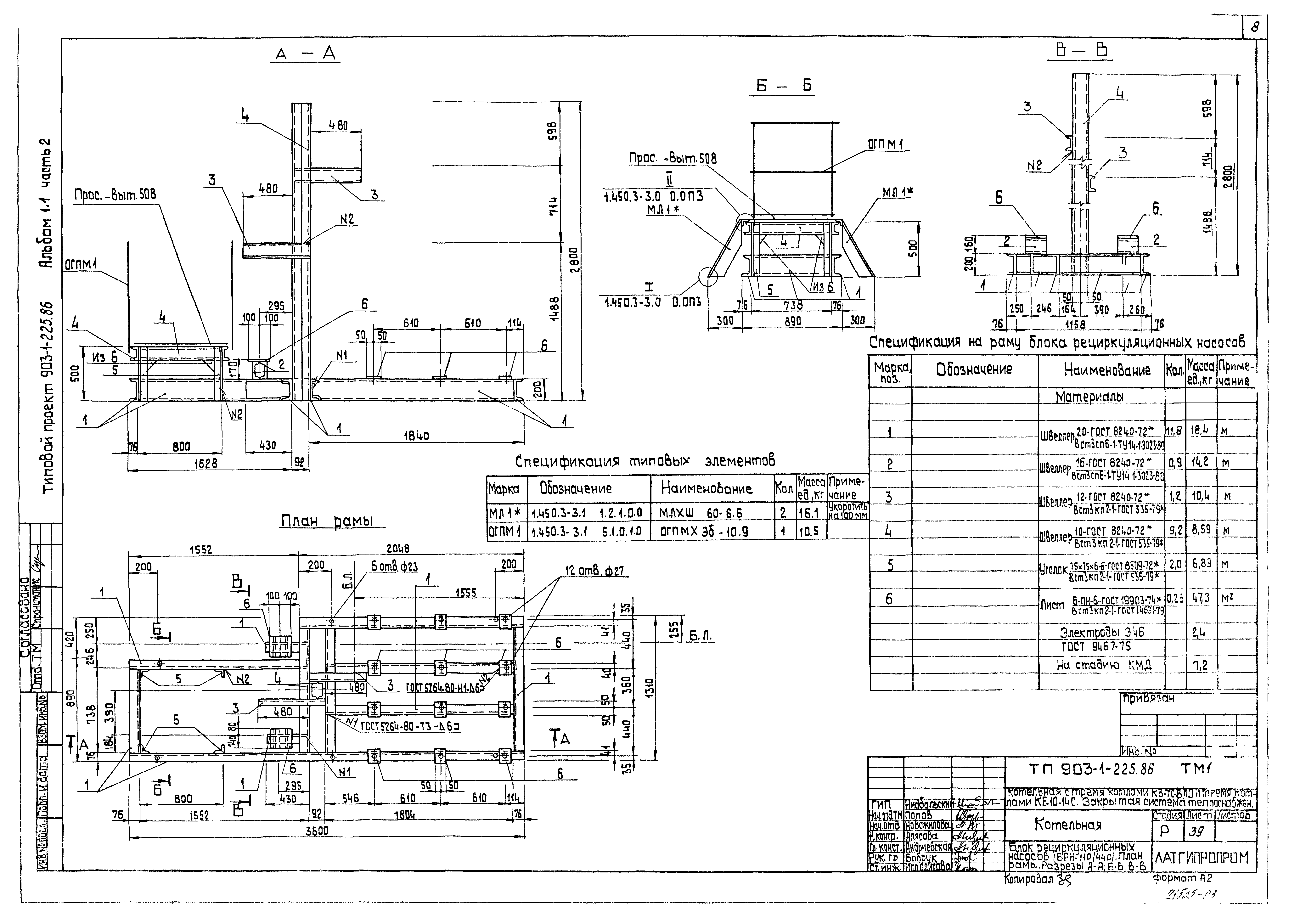
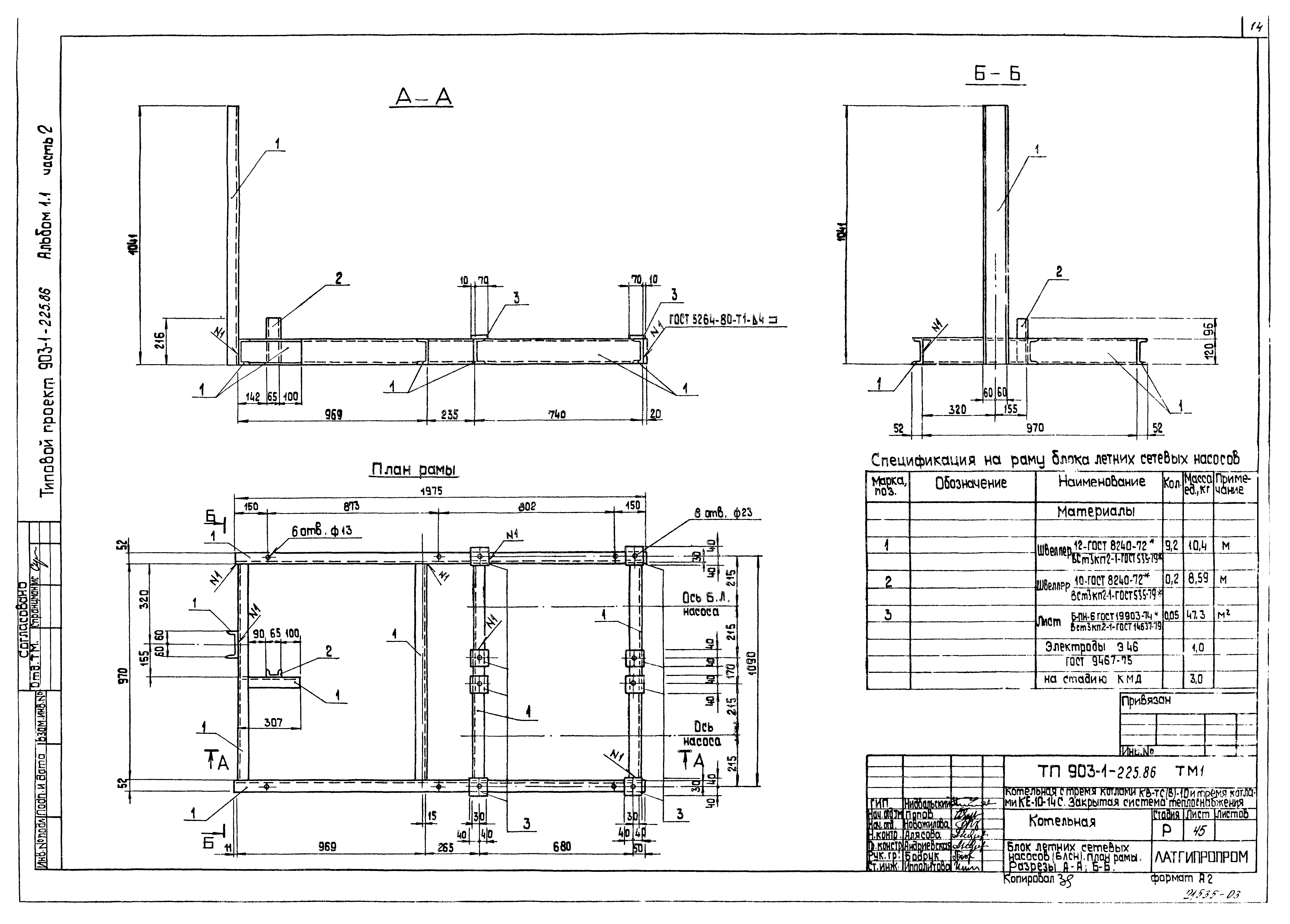
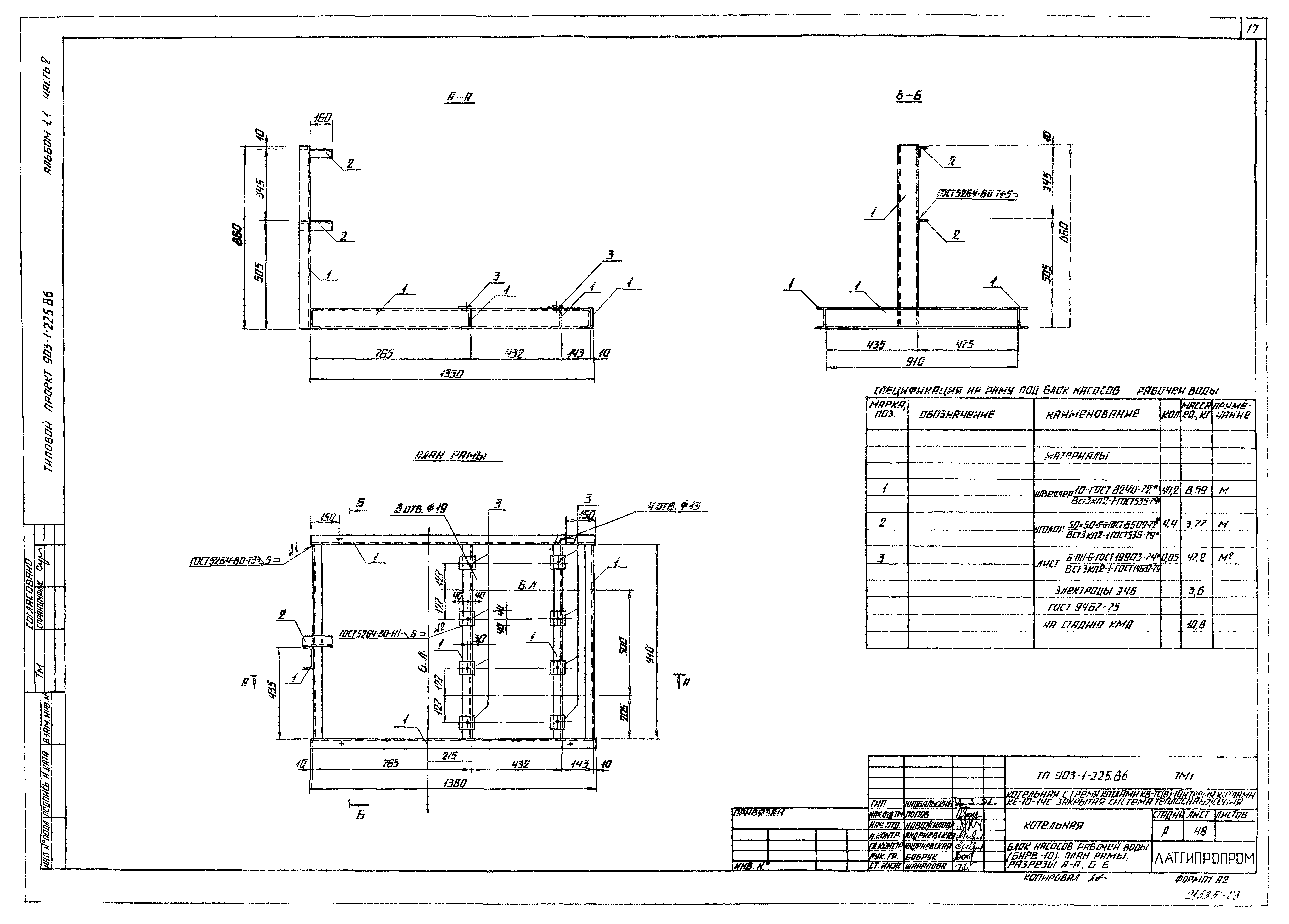
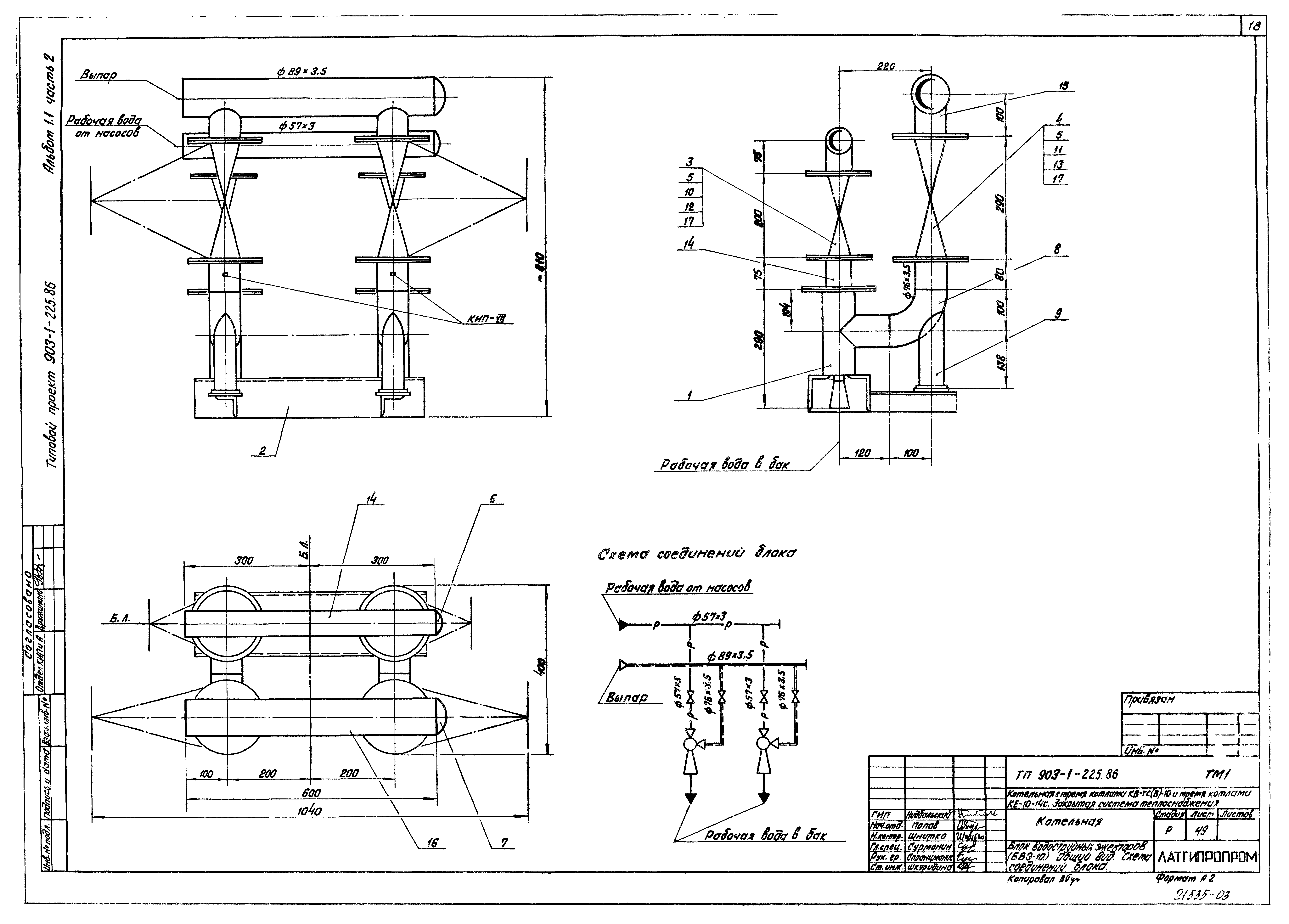
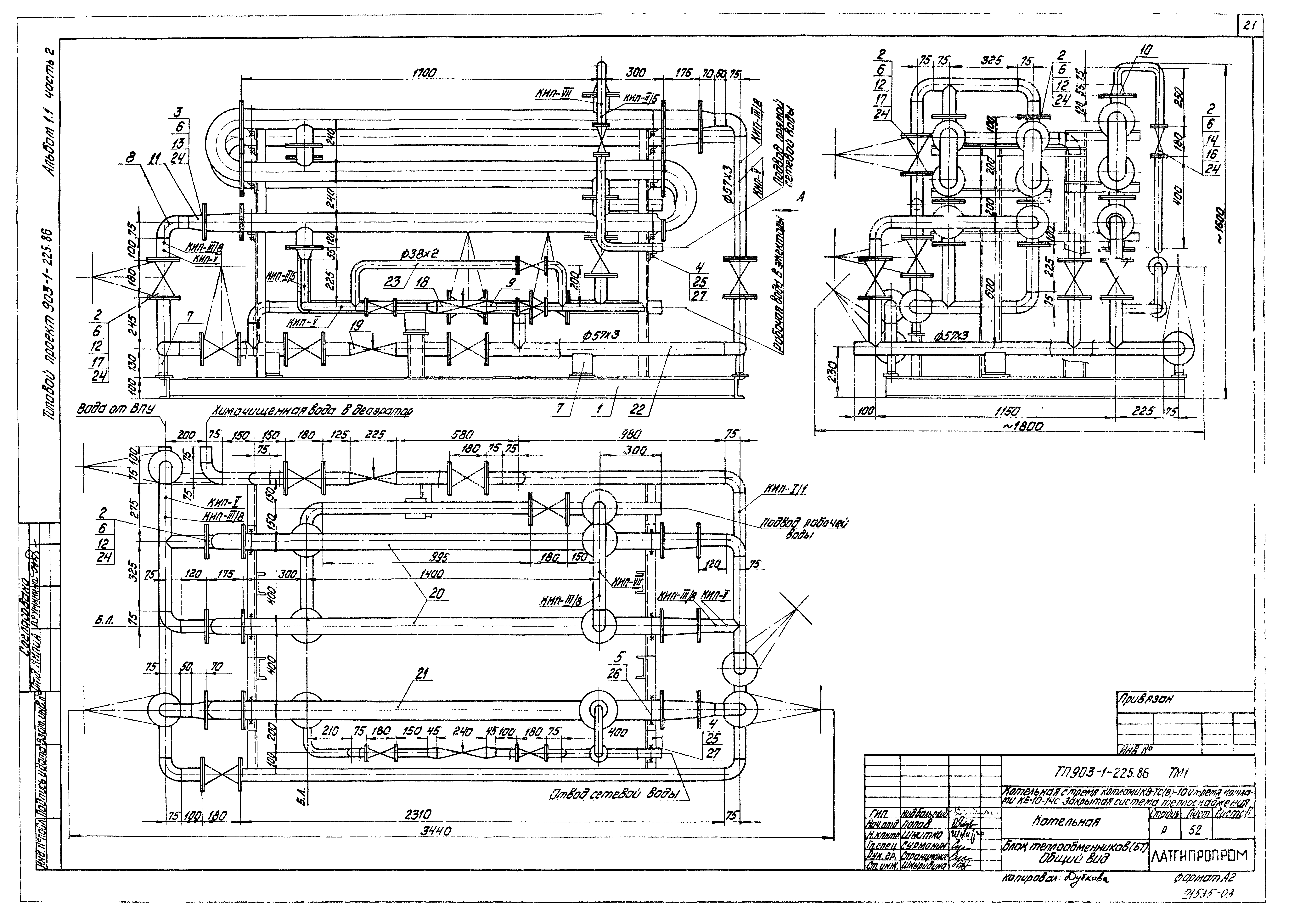
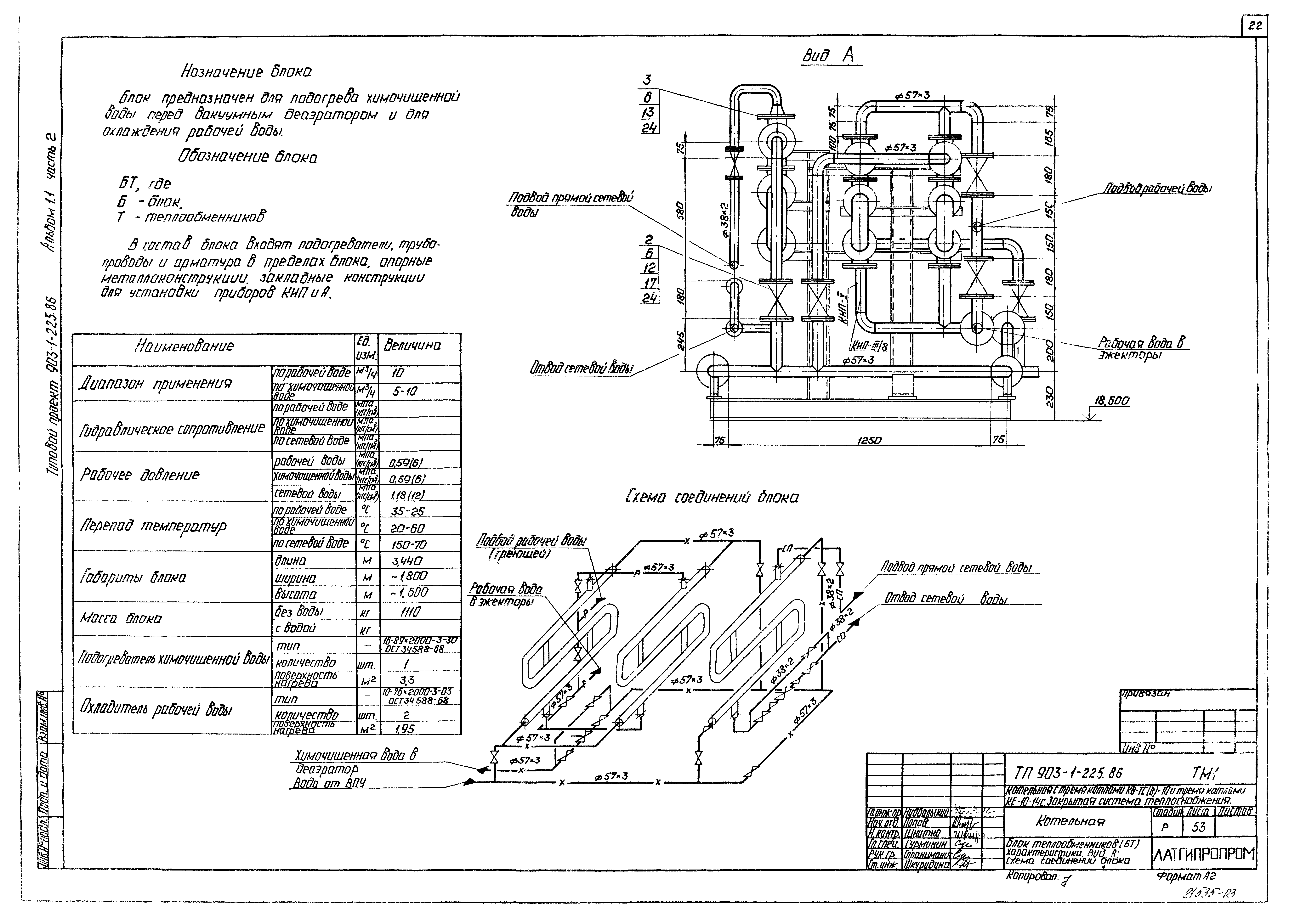
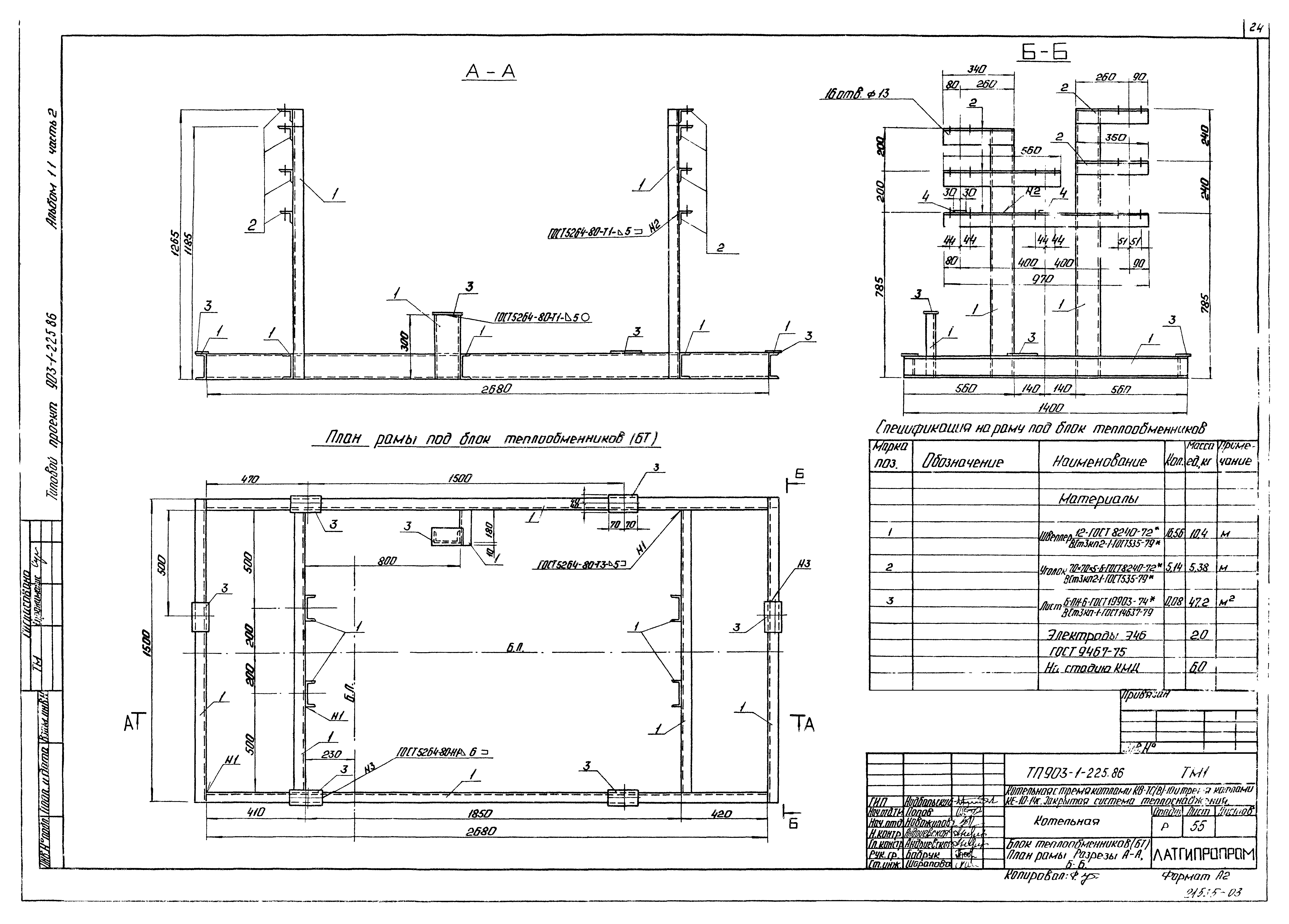
| Оглавление: | ТП 903-1-225.86-ТМ1 Тепломеханическая часть ТП 903-1-225.86-ТМ1 Основной комплект рабочих чертежей марки ТМ1 ТП 903-1-225.86-ТМ1-36 Блок рециркуляционных насосов (БРН-110/440). Общий вид. Схема соединений блока ТП 903-1-225.86-ТМ1-37 Блок рециркуляционных насосов (БРН-110/440). Характеристика. Спецификация ТП 903-1-225.86-ТМ1-38 Блок рециркуляционных насосов (БРН-110/440). Опора пружинная. Общий вид ТП 903-1-225.86-ТМ1-39 Блок рециркуляционных насосов (БРН-110/440). План рамы. Разрезы А-А,Б-Б,В-В ТП 903-1-225.86-ТМ1-40 Блок подпиточных насосов (БПН-20). Общий вид. Схема соединений блока ТП 903-1-225.86-ТМ1-41 Блок подпиточных насосов (БПН-20). Характеристика, спецификация ТП 903-1-225.86-ТМ1-42 Блок подпиточных насосов (БПН-20). План рамы. Разрезы А-А,Б-Б ТП 903-1-225.86-ТМ1-43 Блок летних сетевых насосов (БЛСН). Общий вид. Схема соединений блока ТП 903-1-225.86-ТМ1-44 Блок летних сетевых насосов (БЛСН). Характеристика, спецификация ТП 903-1-225.86-ТМ1-45 Блок летних сетевых насосов (БЛСН). План рамы. Разрезы А-А,Б-Б ТП 903-1-225.86-ТМ1-46 Блок насосов рабочей воды (БНРВ-10). Общий вид. Схема соединений блока ТП 903-1-225.86-ТМ1-47 Блок насосов рабочей воды (БНРВ-10). Характеристика, спецификация ТП 903-1-225.86-ТМ1-48 Блок насосов рабочей воды (БНРВ-10). План рамы. Разрезы А-А,Б-Б ТП 903-1-225.86-ТМ1-49 Блок водоструйных эжекторов (БВЭ-10). Общий вид. Схема соединений блока ТП 903-1-225.86-ТМ1-50 Блок водоструйных эжекторов (БВЭ-10). Характеристика, спецификация ТП 903-1-225.86-ТМ1-51 Блок водоструйных эжекторов (БВЭ-10). План рамы. Разрезы А-А,Б-Б ТП 903-1-225.86-ТМ1-52 Блок теплообменников (БТ). Общий вид ТП 903-1-225.86-ТМ1-53 Блок теплообменников (БТ). Характеристика. Вид А. Схема соединений блока ТП 903-1-225.86-ТМ1-54 Блок теплообменников (БТ). Спецификация ТП 903-1-225.86-ТМ1-55 Блок теплообменников (БТ). План рамы. Разрез А-А,Б-Б ТП 903-1-225.86-ТМ1-56 Блок узла конденсата (БК). Общий вид. Разрезы А-А,Б-Б,В-В,Г-Г ТП 903-1-225.86-ТМ1-57 Блок узла конденсата (БК). Схема соединений блока ТП 903-1-225.86-ТМ1-58 Блок узла конденсата (БК). Спецификация ТП 903-1-225.86-ТМ1-59 Блок узла конденсата (БК). План рамы. Разрезы А-А,Б-Б,В-В |
| Разработан: | Латгипропром |
| Утверждён: | 20.05.1986 Госстрой СССР (Государственный комитет Совета Министров СССР по делам строительства) (USSR Gosstroy АЧ-30) |





























