Скачать Типовой проект 903-1-225.86 Альбом 5.1. Водоподготовительная установка. Архитектурно-строительная частьДата актуализации: 01.01.2021
|
| Обозначение: | Типовой проект 903-1-225.86 |
| Обозначение англ: | 903-1-225.86 |
| Статус: | действует |
| Название рус.: | Альбом 5.1. Водоподготовительная установка. Архитектурно-строительная часть |
| Дата добавления в базу: | 01.09.2013 |
| Дата актуализации: | 01.01.2021 |
| Дата введения: | 20.05.1986 |
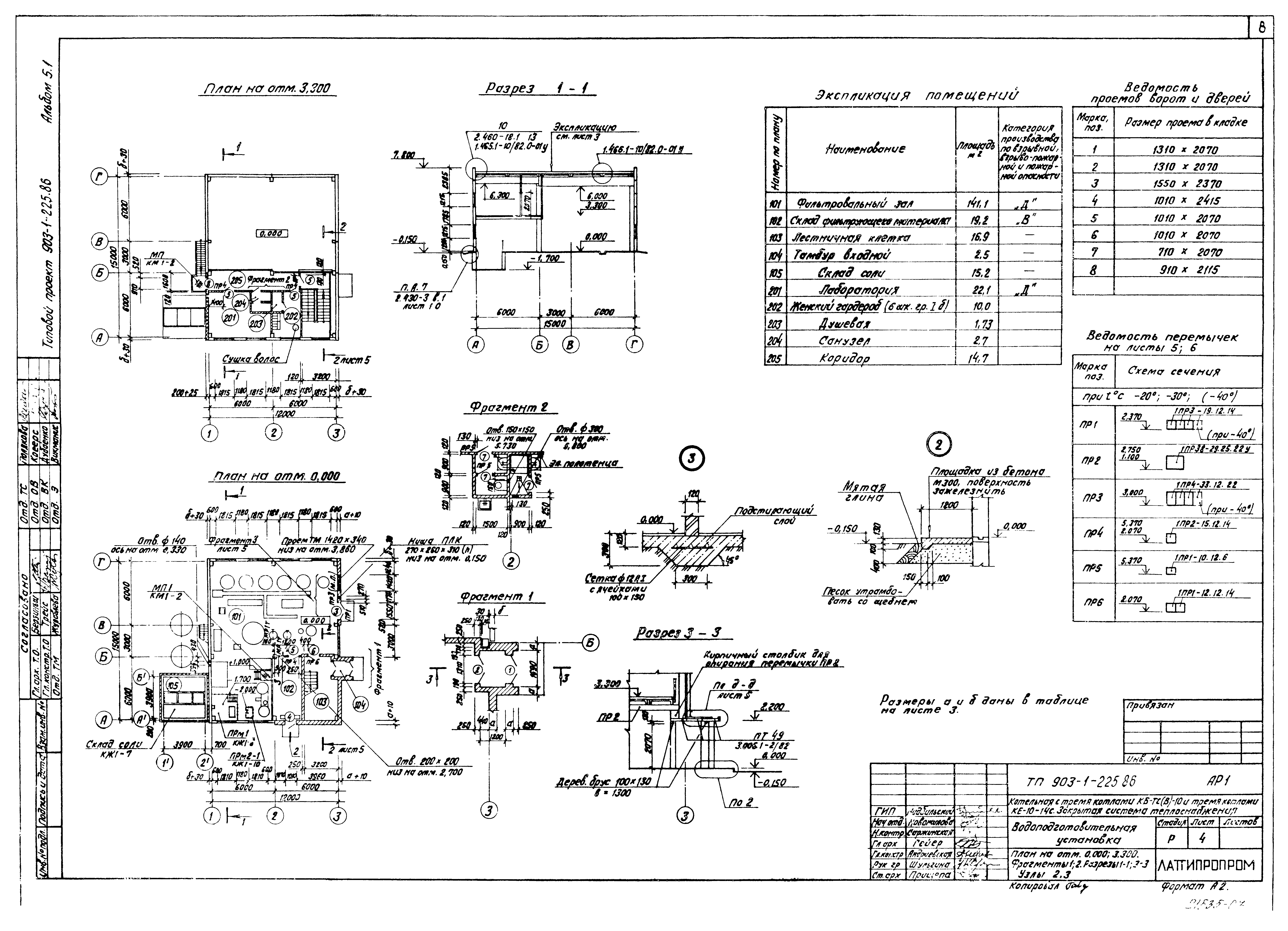
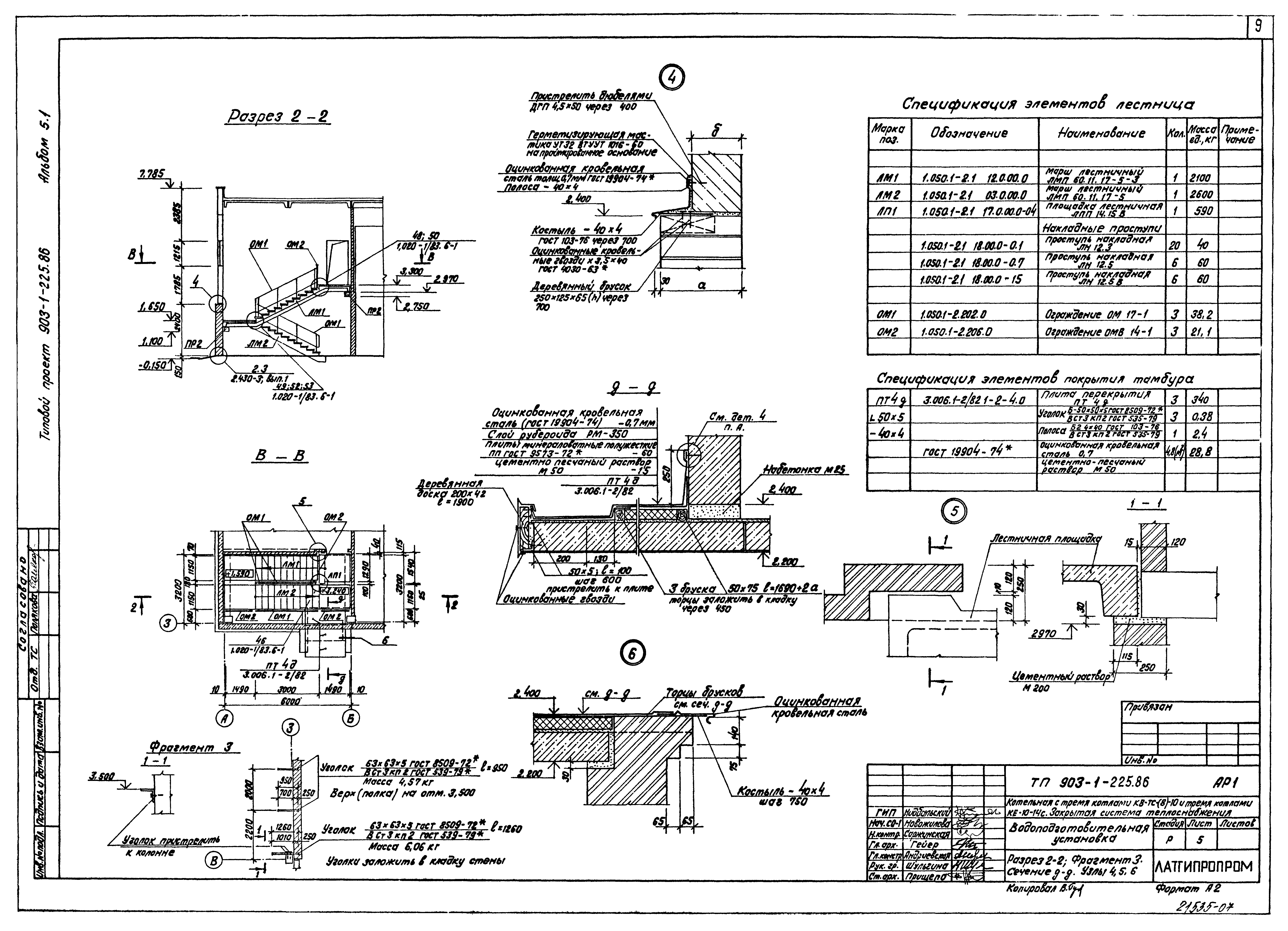
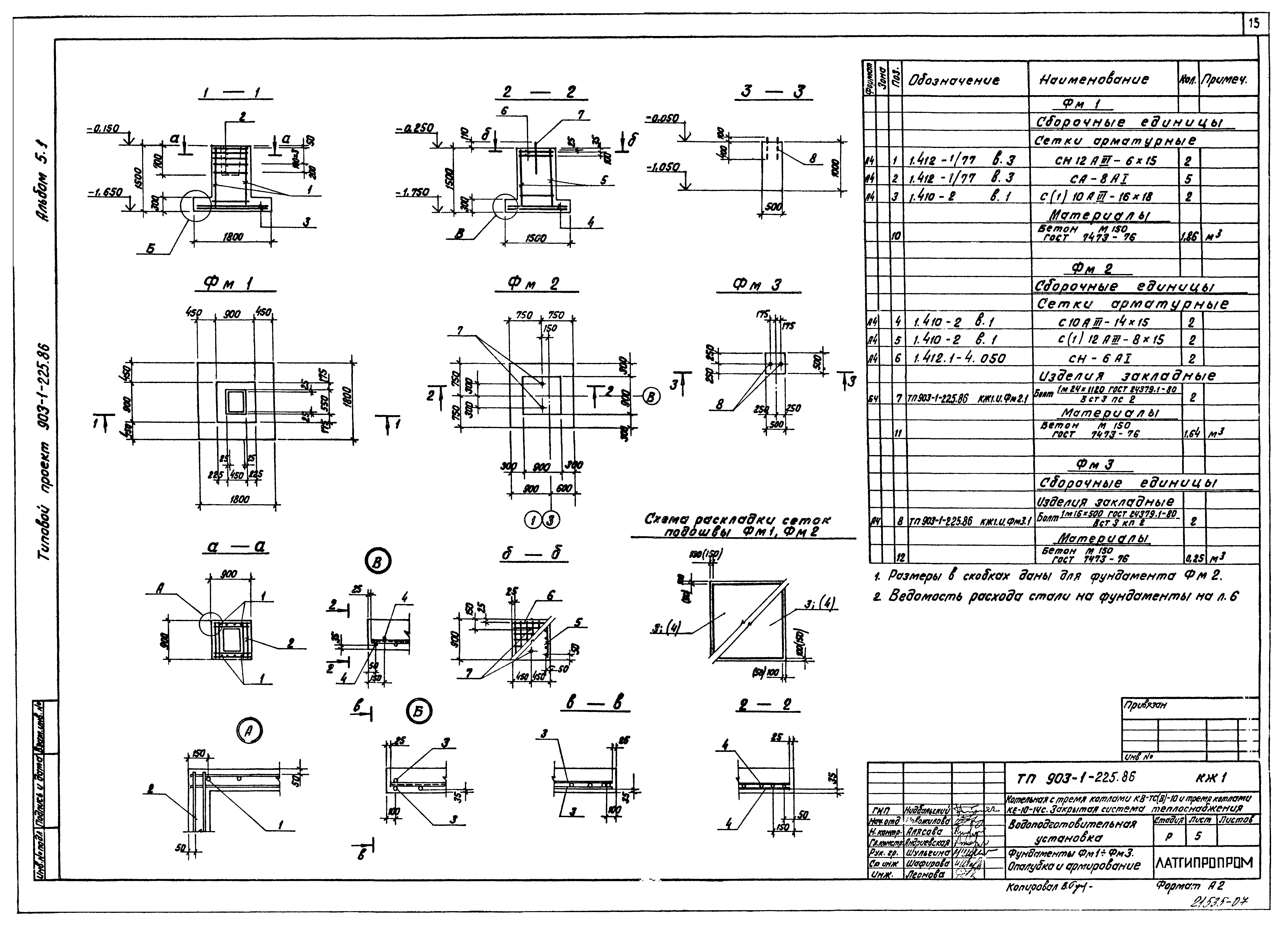
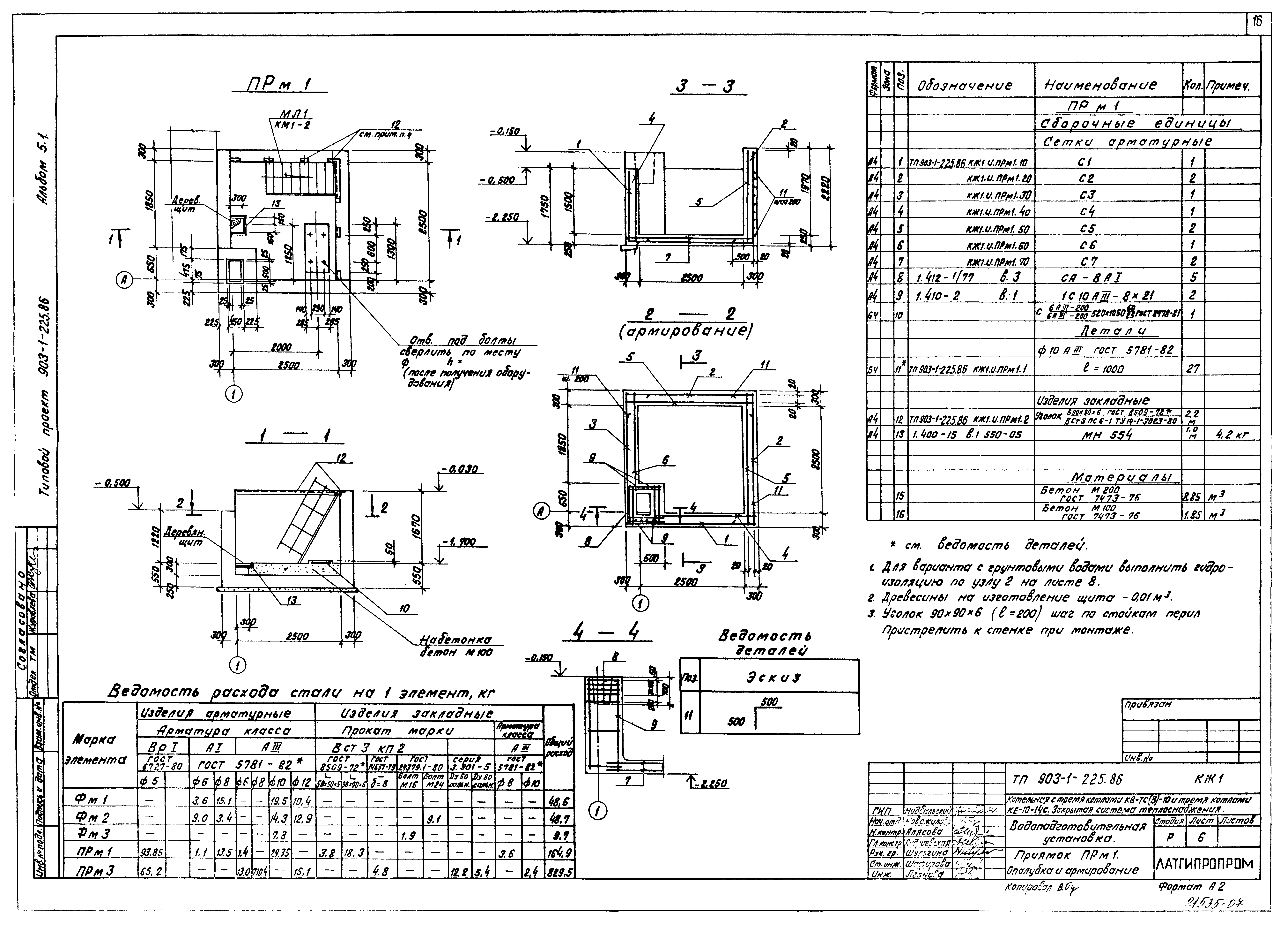
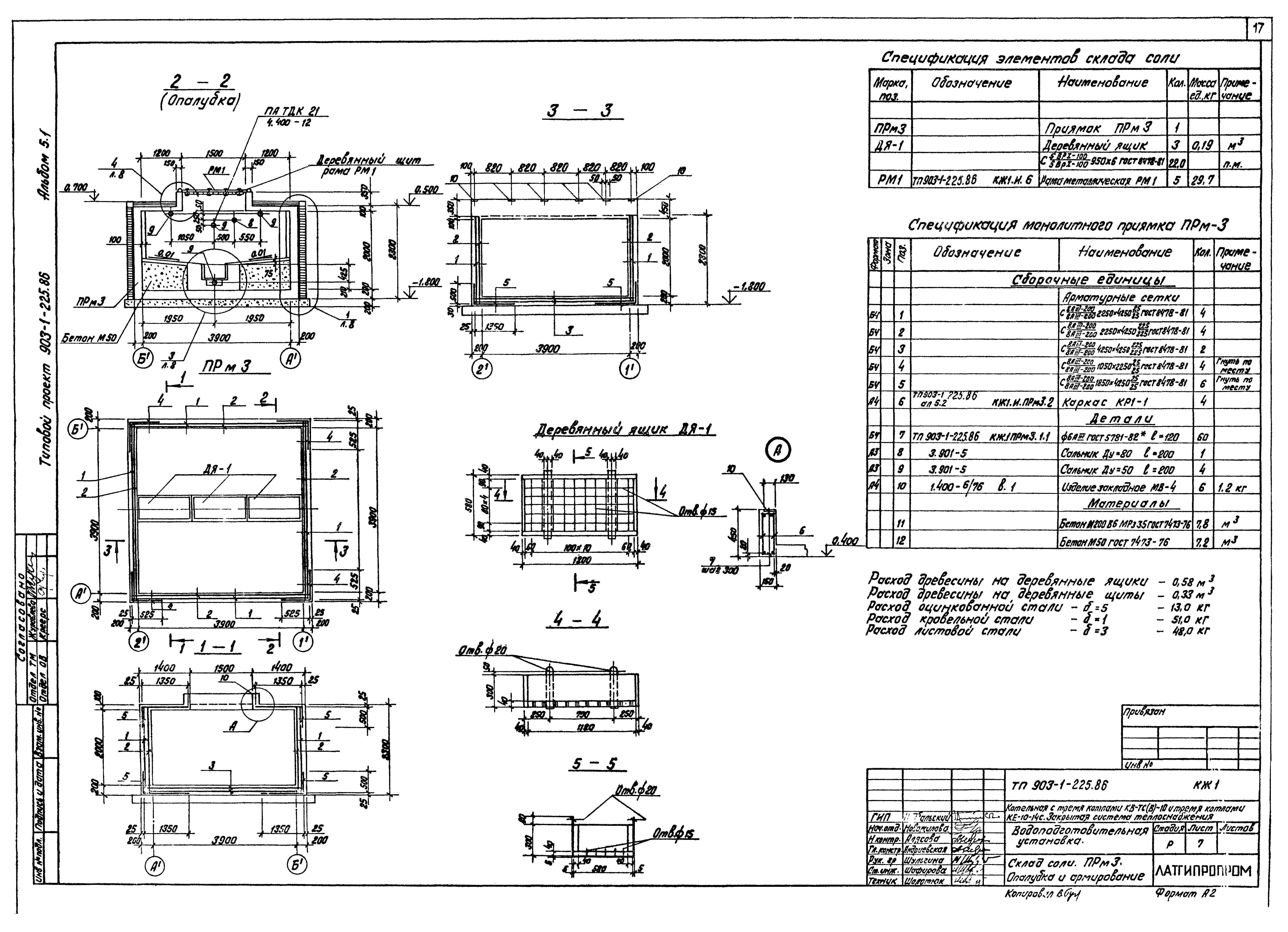
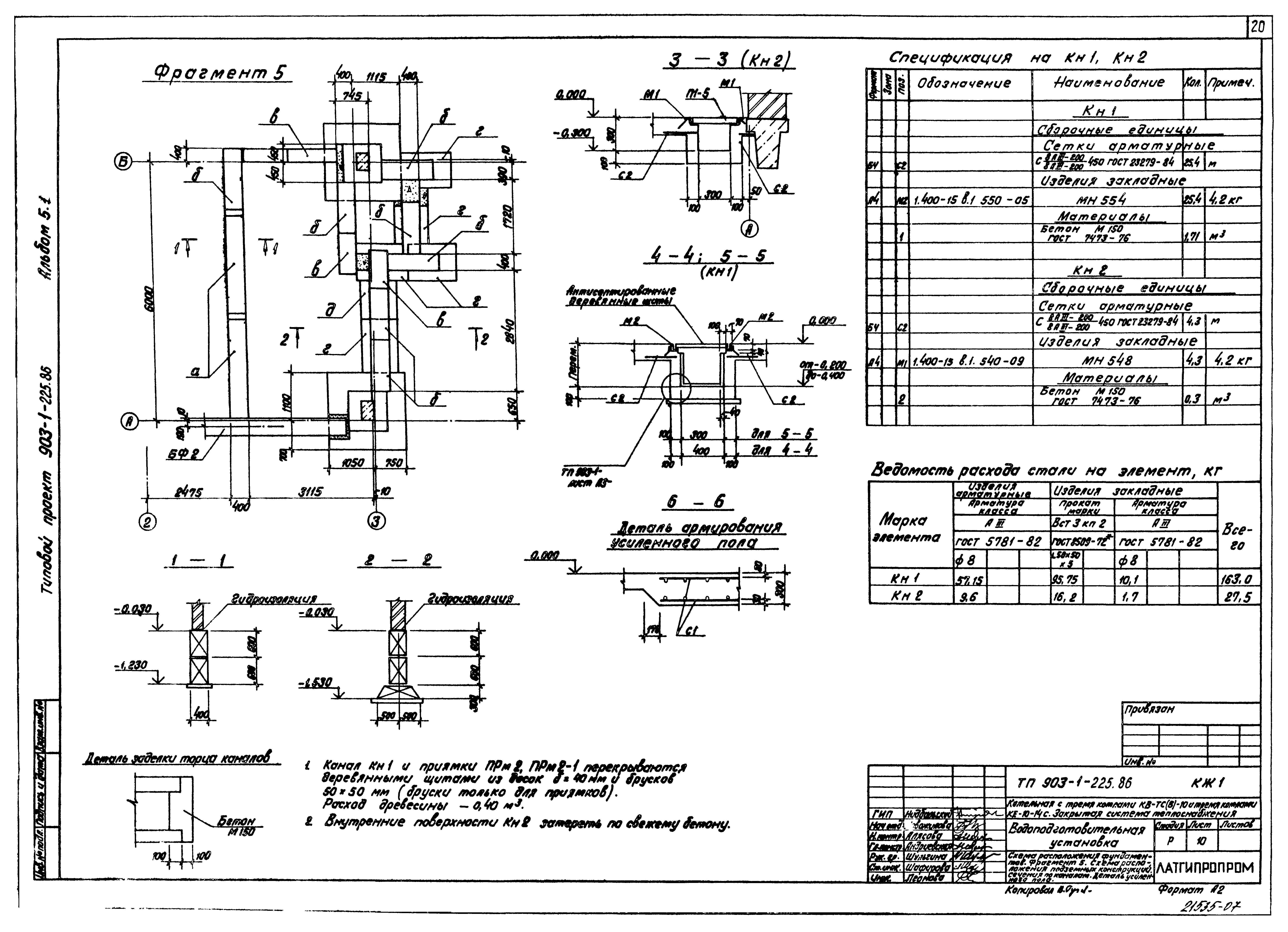
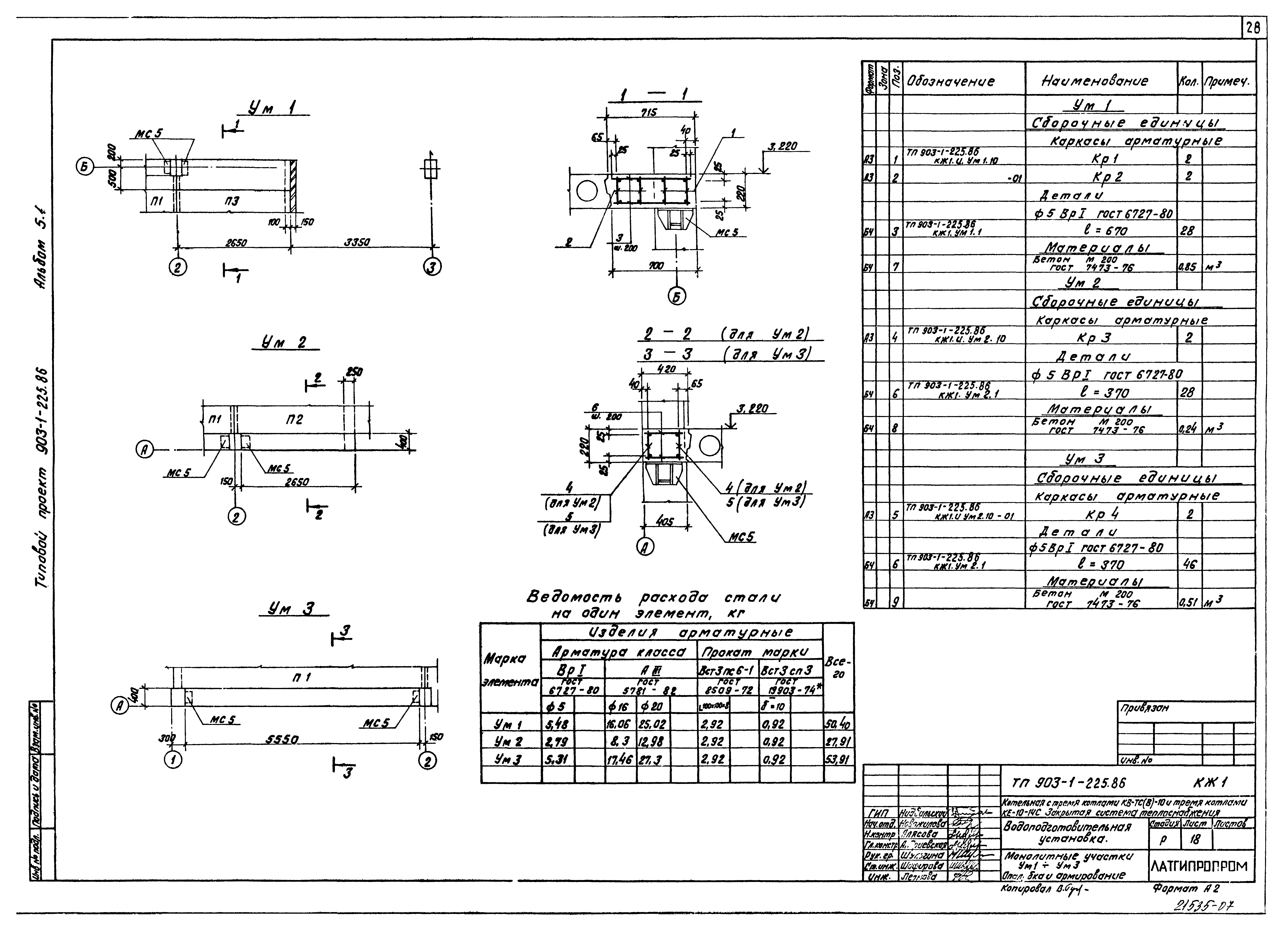
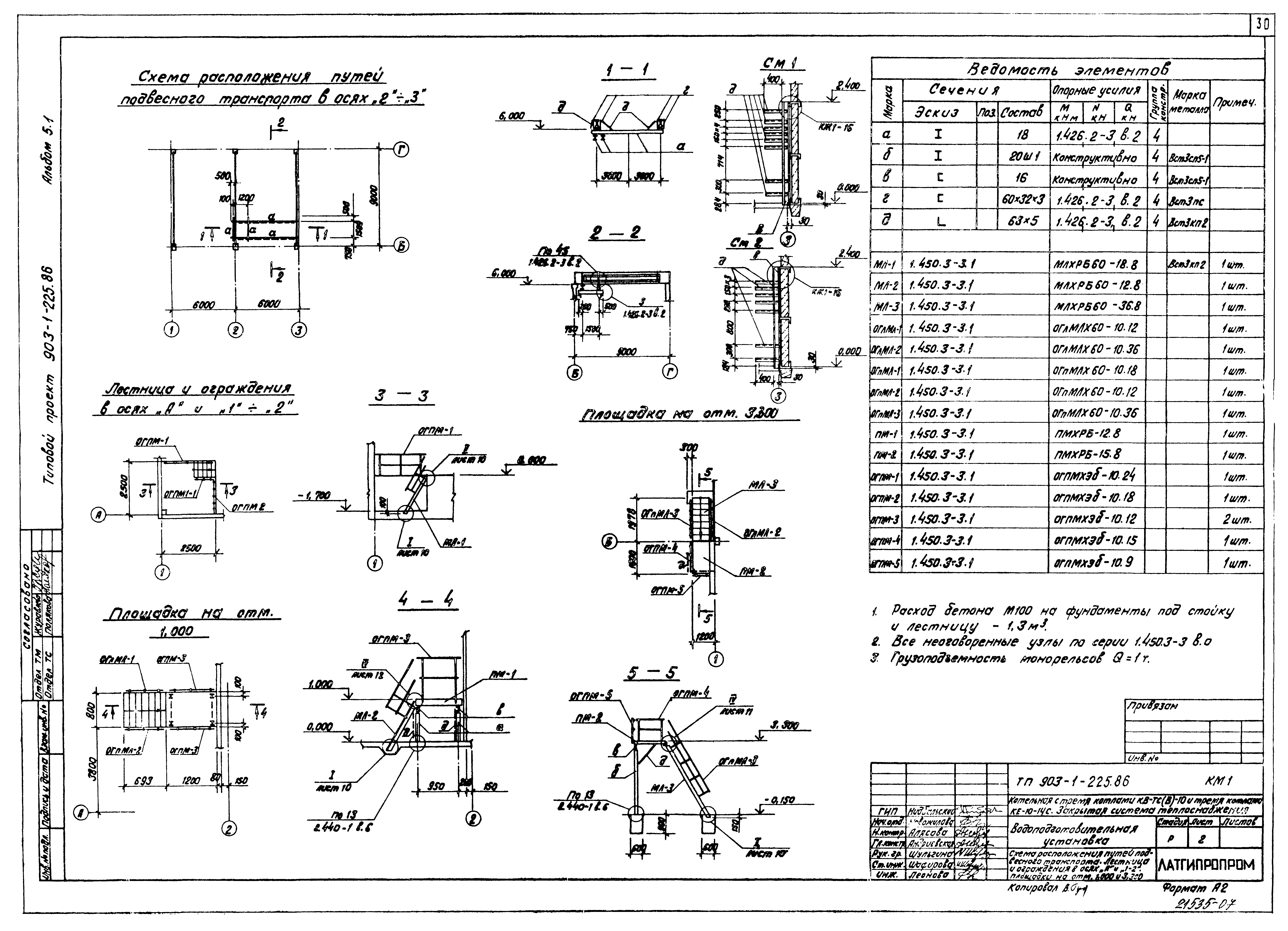
| Оглавление: | ТП 903-1-225.86-АР1 Архитектурно-строительные решения АР1 ТП 903-1-225.86-АР1-1 Общие данные (начало) ТП 903-1-225.86-АР1-2 Общие данные (окончание) ТП 903-1-225.86-АР1-3 План полов на отм. 0.000;3.300. План кровли. Ведомость отделки помещений. Узел 1 ТП 903-1-225.86-АР1-4 План полов на отм. 0.000;3.300. Фрагменты 1,2. Разрезы 101,2-2. Узлы 2,3 ТП 903-1-225.86-АР1-5 Разрез 2-2. Фрагмент 3. Сечение д-д. Узлы 4,5,6 ТП 903-1-225.86-АР1-6 Фасады 1-3,А-Г,3-1,Г-А. Фрагмент 4. Узлы 7,8,9,10 ТП 903-1-225.86-КЖ1 Конструкции железобетонные КЖ1 ТП 903-1-225.86-КЖ1-1 Общие данные (начало) ТП 903-1-225.86-КЖ1-2 Общие данные (окончание) ТП 903-1-225.86-КЖ1-3 Схема расположения фундаментов и фундаментных балок ТП 903-1-225.86-КЖ1-4 Фрагменты 1-4 ТП 903-1-225.86-КЖ1-5 Фундаменты ФМ1-ФМ4. Опалубка и армирование ТП 903-1-225.86-КЖ1-6 Приямок ПРМ1. Опалубка и армирование ТП 903-1-225.86-КЖ1-7 Склад соли. Приямок ПРМ3. Опалубка и армирование ТП 903-1-225.86-КЖ1-8 Склад соли. Узлы 1-4 ТП 903-1-225.86-КЖ1-9 Схема расположения подземных конструкций ТП 903-1-225.86-КЖ1-10 Схема расположения фундаментов. Фрагмент 5. Схема расположения подземных конструкций. Сечения по каналам. Деталь усиленного пола ТП 903-1-225.86-КЖ1-11 Схема расположения подземных конструкций. Приямок ПРМ2,ПРМ2-1. Фундаменты ФОМ1,ФОМ2 ТП 903-1-225.86-КЖ1-12 Схемы расположения колонн, ригелей, балок покрытия. Разрезы 1-1,2-2 ТП 903-1-225.86-КЖ1-13 Схемы расположения колонн, ригелей, балок покрытия. Разрезы 3-3÷5-5. Узлы 5-8,11 ТП 903-1-225.86-КЖ1-14 Схемы расположения плит перекрытия и плит покрытия ТП 903-1-225.86-КЖ1-15 Схемы расположения стеновых панелей. Фрагменты 1-3 ТП 903-1-225.86-КЖ1-16 Схемы расположения стеновых панелей. Фрагменты 4-13 ТП 903-1-225.86-КЖ1-17 Схемы расположения перегородок по осям "Б" и "2". Вкладыши В1,В2 ТП 903-1-225.86-КЖ1-18 Монолитные участки УМ1-УМ3. Опалубка и армирование ТП 903-1-225.86-КМ1 Конструкции металлические КМ1 ТП 903-1-225.86-КМ1-1 Общие данные ТП 903-1-225.86-КМ1-2 Схема расположения путей подвесного транспорта. Лестница и ограждения в осях "А" и "1-2". Площадки на отм. 1.000 и 3.300 ТП 903-1-225.86-АЗ Антикоррозийная защита АЗ ТП 903-1-225.86-АЗ-1 Общие данные ТП 903-1-225.86-АЗ-2 План полов на отм. 0.000. Узлы 1,2 |
| Разработан: | Латгипропром |
| Утверждён: | 20.05.1986 Госстрой СССР (Государственный комитет Совета Министров СССР по делам строительства) (USSR Gosstroy АЧ-30) |

































