Скачать Типовой проект 903-1-225.86 Альбом 7.1. Котельная. Электротехническая часть, связь и сигнализация. Чертежи монтажной зоныДата актуализации: 01.01.2021
|
| Обозначение: | Типовой проект 903-1-225.86 |
| Обозначение англ: | 903-1-225.86 |
| Статус: | действует |
| Название рус.: | Альбом 7.1. Котельная. Электротехническая часть, связь и сигнализация. Чертежи монтажной зоны |
| Дата добавления в базу: | 01.09.2013 |
| Дата актуализации: | 01.01.2021 |
| Дата введения: | 20.05.1986 |
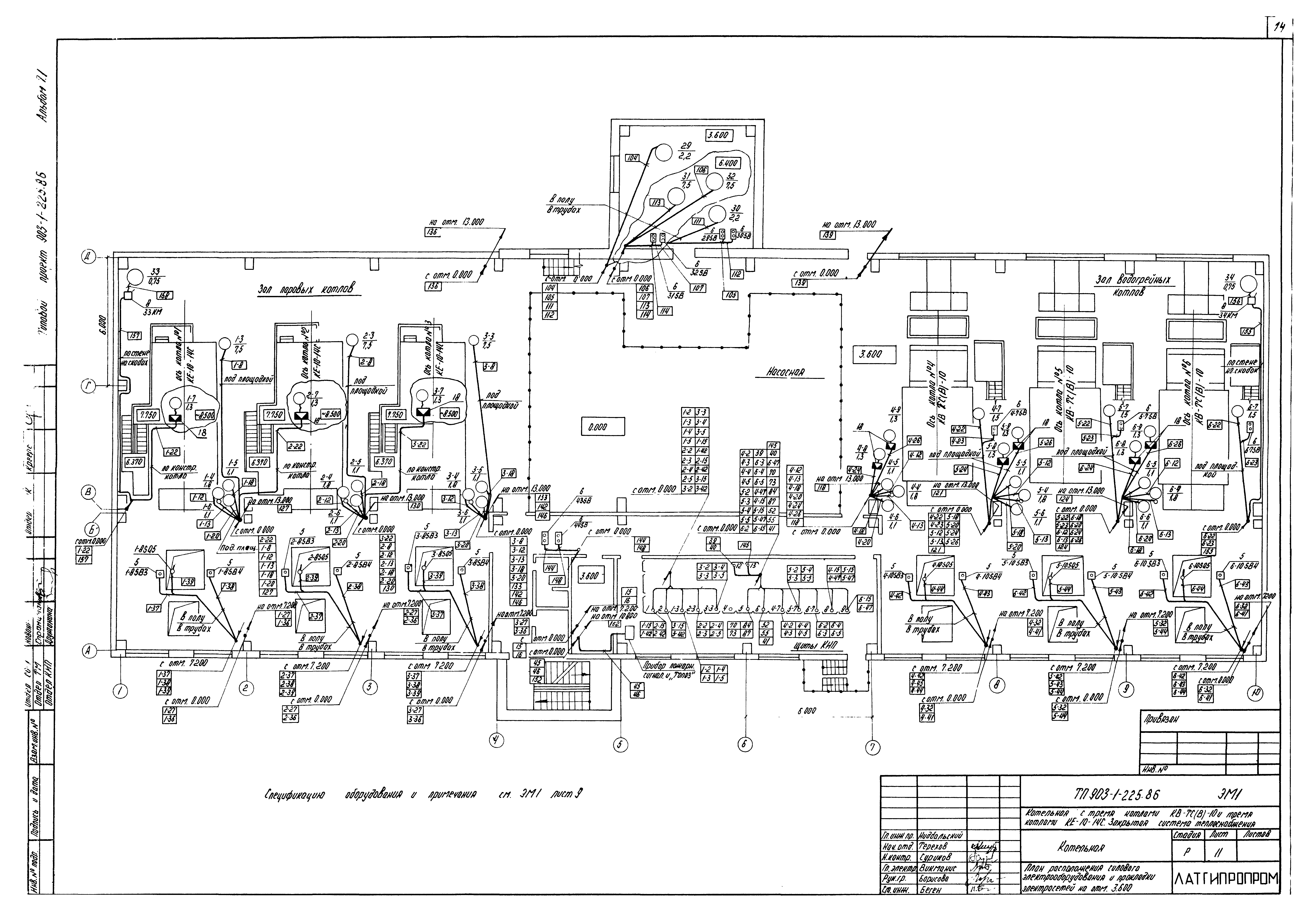
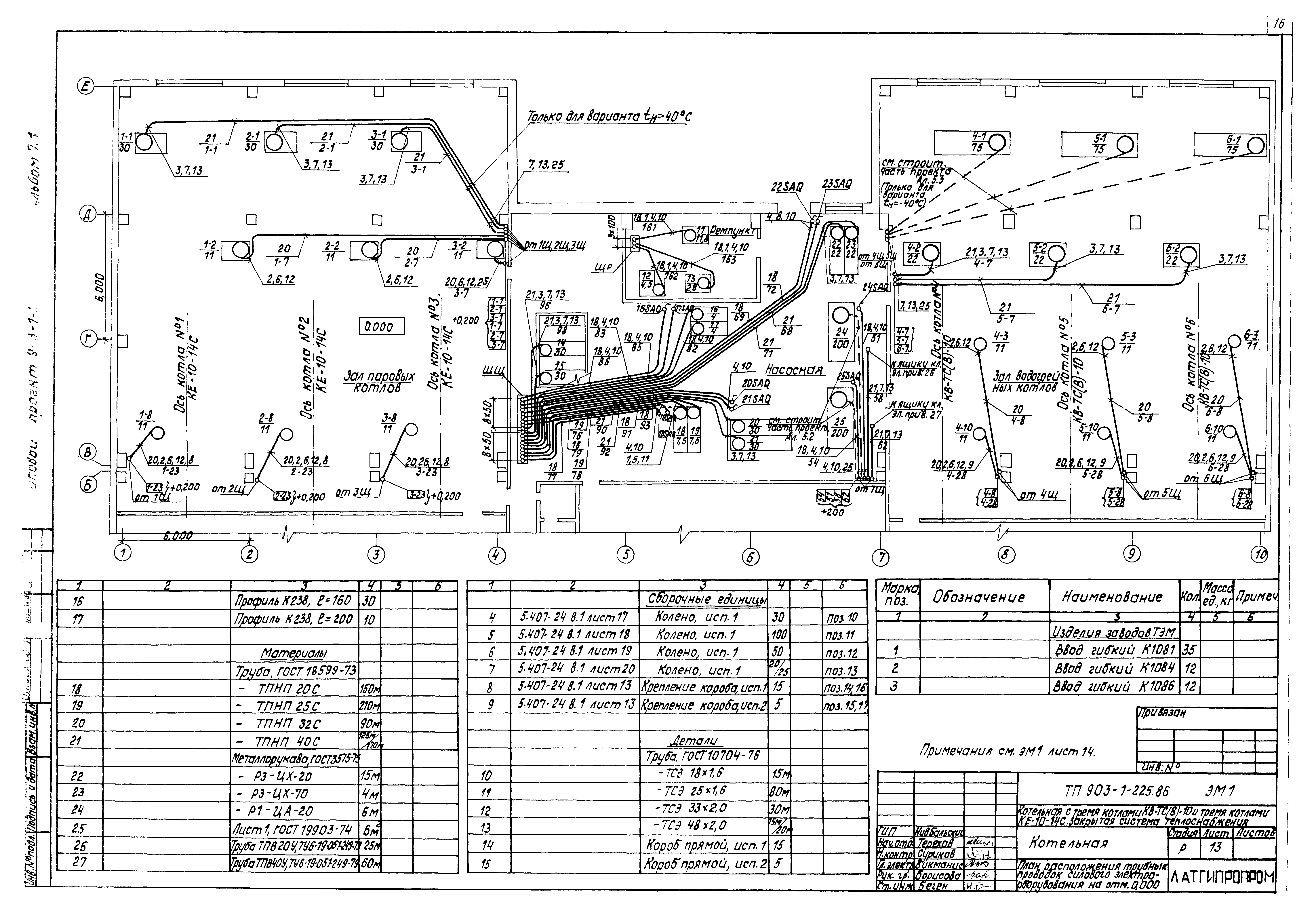
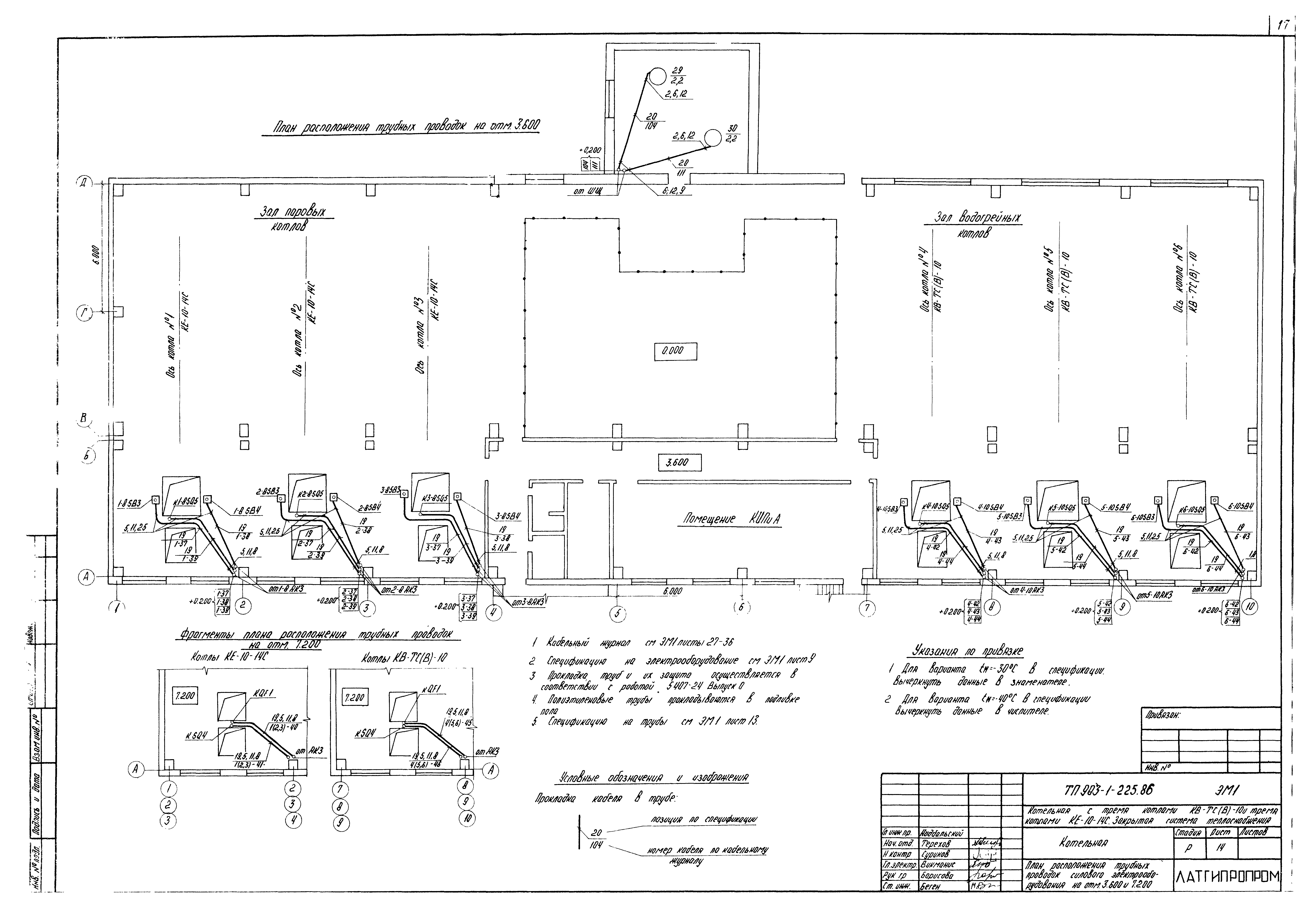
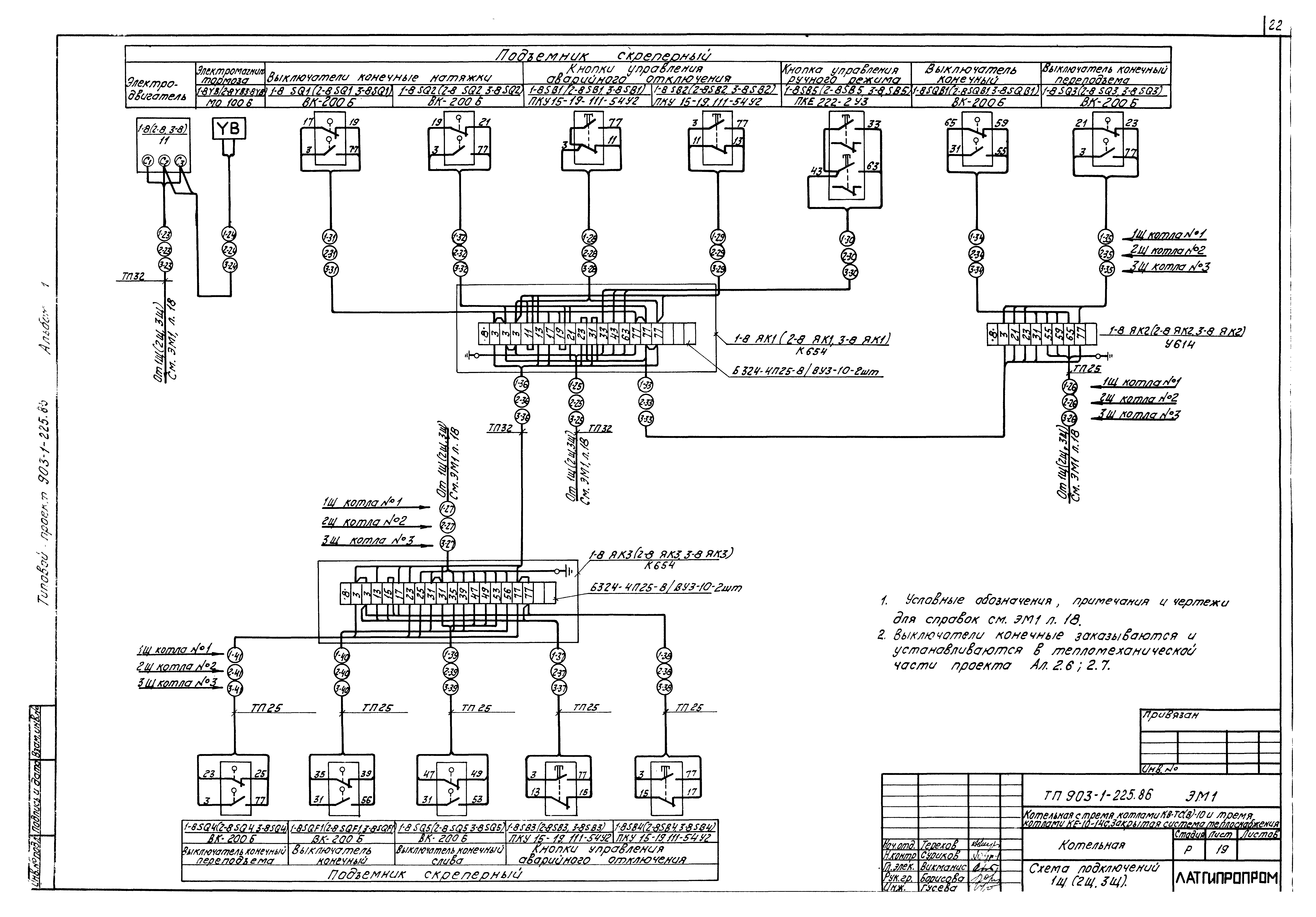
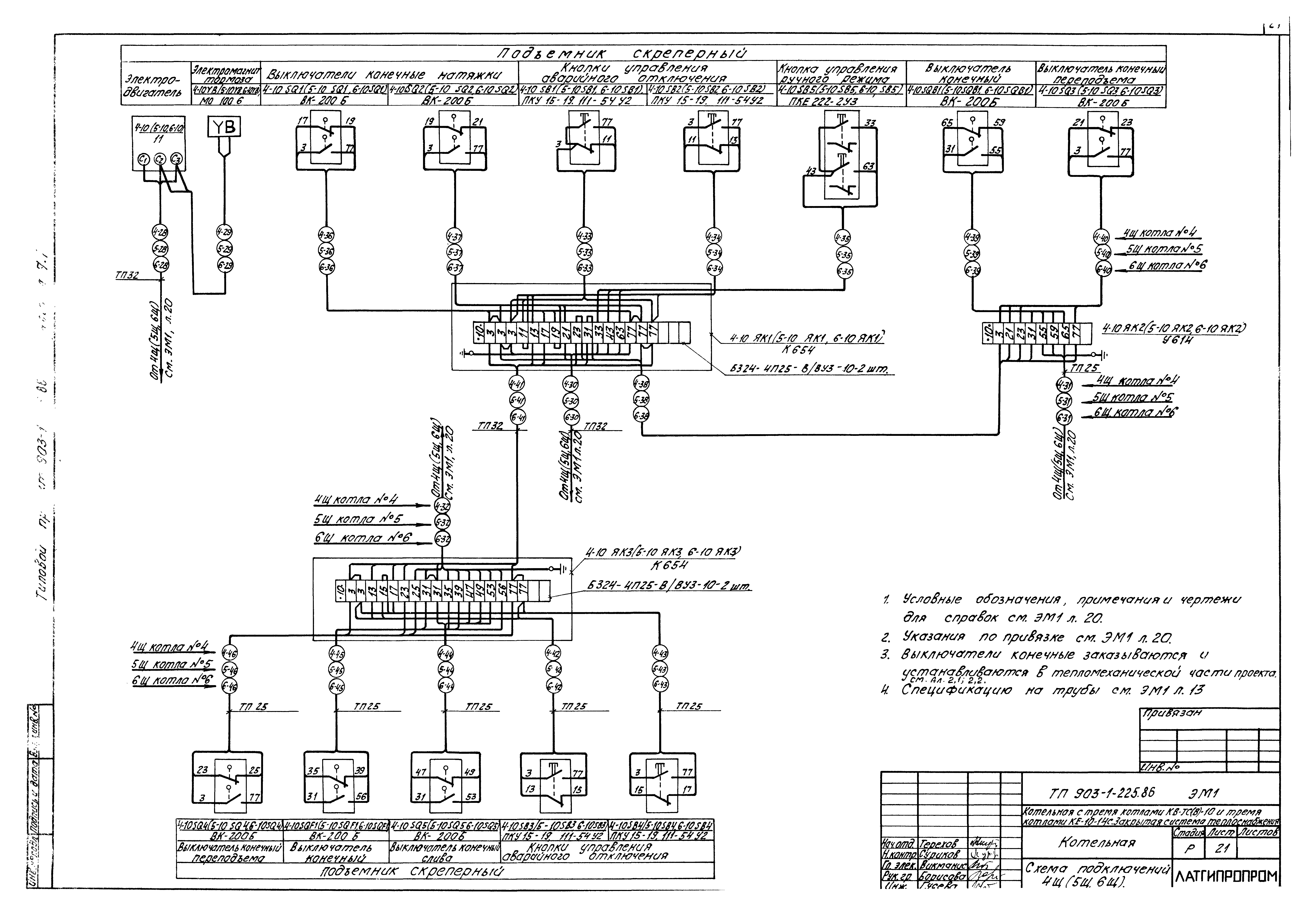
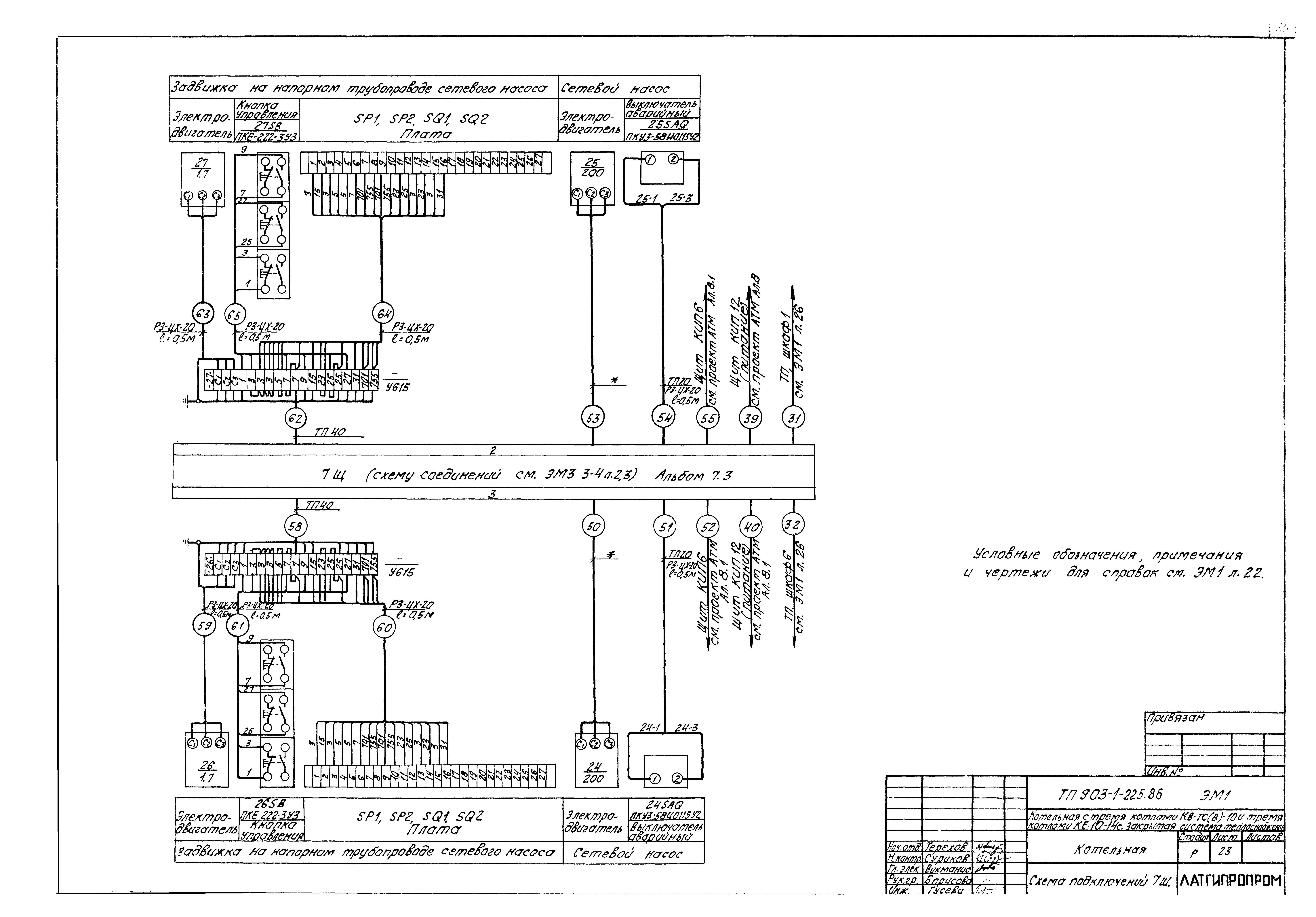
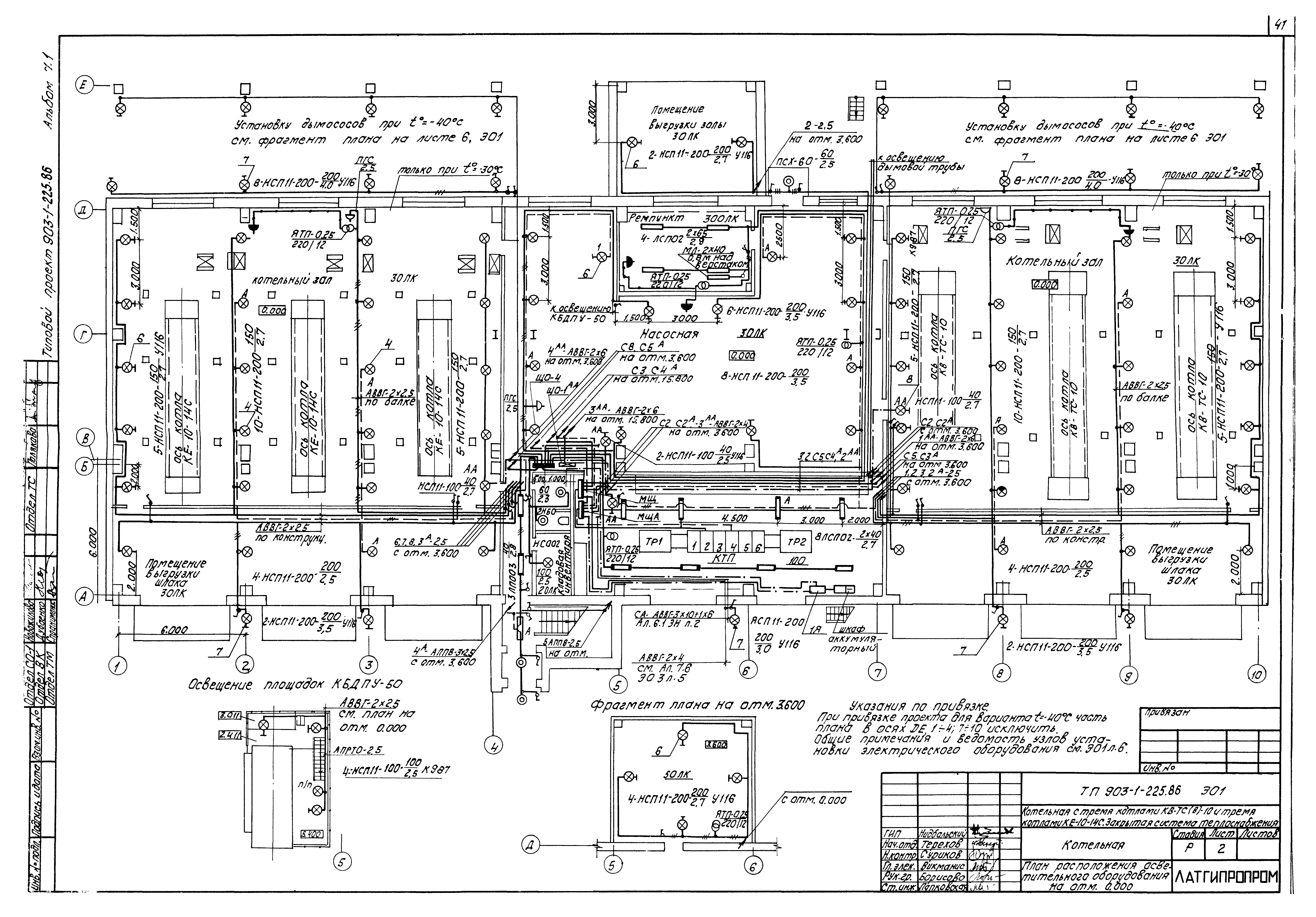
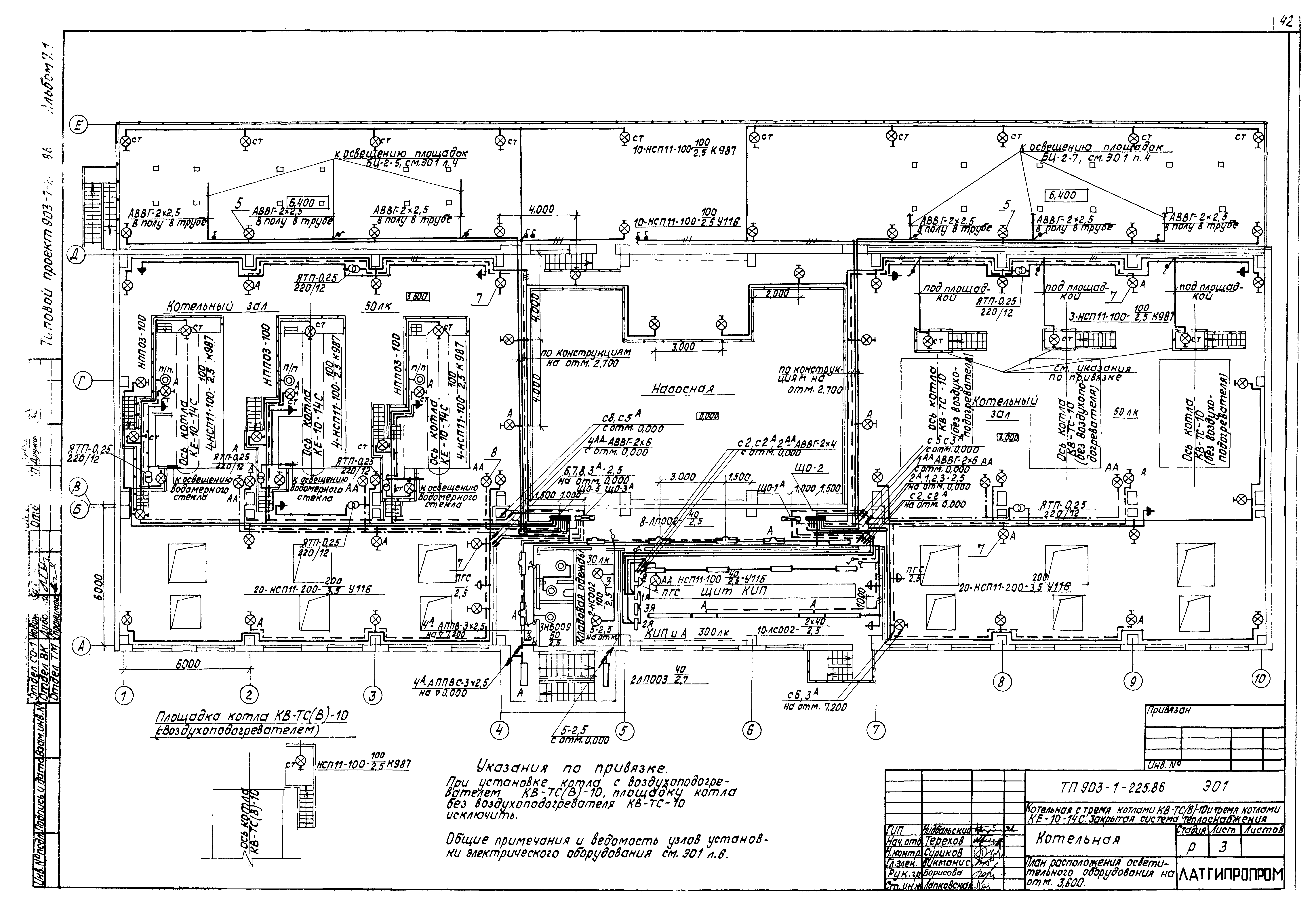
| Оглавление: | ТП 903-1-225.86 Содержание альбома ТП 903-1-225.86-ЭМ1 Ведомость рабочих чертежей основного комплекта марки ЭМ1 ТП 903-1-225.86-ЭМ1-1,2,3 Общие данные ТП 903-1-225.86-ЭМ1-4 Схема электрических соединений 6-10 кВ 10,4-0,23 кВ ТП 903-1-225.86-ЭМ1-5 Принципиальная схема питающей сети ~380 В 1Щ,2Щ,3Щ ТП 903-1-225.86-ЭМ1-6 Принципиальная схема питающей сети ~380 В 4Щ,5Щ,6Щ ТП 903-1-225.86-ЭМ1-7 Принципиальная схема питающей сети ~380 В 7Щ,ЩР. Индивидуальные фидера ТП 903-1-225.86-ЭМ1-8 Принципиальная схема питающей сети ~380 В ШЩ ТП 903-1-225.86-ЭМ1-9 План расположения силового электрооборудования и прокладки электросетей. Спецификация и примечания ТП 903-1-225.86-ЭМ1-10 План расположения силового электрооборудования и прокладки электросетей на отм. 0.000 ТП 903-1-225.86-ЭМ1-11 План расположения силового электрооборудования и прокладки электросетей на отм. 3.500 ТП 903-1-225.86-ЭМ1-12 План расположения силового электрооборудования и прокладки электросетей на отм. 7.200 ТП 903-1-225.86-ЭМ1-13 План расположения трубных проводок силового электрооборудования на отм. 0.000 ТП 903-1-225.86-ЭМ1-14 План расположения трубных проводок силового электрооборудования на отм. 3.600,7.200 ТП 903-1-225.86-ЭМ1-15 План расположения заземляющих устройств и кабельных конструкций ТП 903-1-225.86-ЭМ1-16,17 Разрезы по кабельным конструкциям ТП 903-1-225.86-ЭМ1-18,19 Схема подключений 1Щ(2Щ,3Щ) ТП 903-1-225.86-ЭМ1-20,21 Схема подключений 4Щ(5Щ,6Щ) ТП 903-1-225.86-ЭМ1-22,23 Схема подключений 7Щ ТП 903-1-225.86-ЭМ1-24,25 Схема подключений ШЩ ТП 903-1-225.86-ЭМ1-26 Схема подключений ТП и ЩР ТП 903-1-225.86-ЭМ1-27-36 Кабельный журнал ТП 903-1-225.86-ЭО1 Ведомость рабочих чертежей основного комплекта марки ЭО1 ТП 903-1-225.86-ЭО1-1 Общие данные ТП 903-1-225.86-ЭО1-2 План расположения осветительного оборудования на отм. 0.000 ТП 903-1-225.86-ЭО1-3 План расположения осветительного оборудования на отм. 3.600 ТП 903-1-225.86-ЭО1-4 План расположения осветительного оборудования на отм. 7.200,10.800 ТП 903-1-225.86-ЭО1-5 Принципиальная схема питающей сети освещения. Схема подключения шкафа аккумуляторного ТП 903-1-225.86-ЭО1-6 Фрагмент плана расположения осветительного оборудования на отм. 0.000 для варианта tн=-40ºС. Общие примечания ТП 903-1-225.86-СС1 Ведомость рабочих чертежей основного комплекта марки СС1 ТП 903-1-225.86-СС1-1 Общие данные ТП 903-1-225.86-СС1-2 План расположения сетей связи и сигнализации ТП 903-1-225.86-СС1-3 Схема расположения устройств |
| Разработан: | Латгипропром |
| Утверждён: | 20.05.1986 Госстрой СССР (Государственный комитет Совета Министров СССР по делам строительства) (USSR Gosstroy АЧ-30) |

















































