Скачать Типовой проект 902-2-323 Альбом II. Генплан. Производственно-вспомогательное зданиеДата актуализации: 01.01.2021
|
| Обозначение: | Типовой проект 902-2-323 |
| Обозначение англ: | 902-2-323 |
| Статус: | действует |
| Название рус.: | Альбом II. Генплан. Производственно-вспомогательное здание |
| Дата добавления в базу: | 01.09.2013 |
| Дата актуализации: | 01.01.2021 |
| Дата введения: | 29.09.1978 |
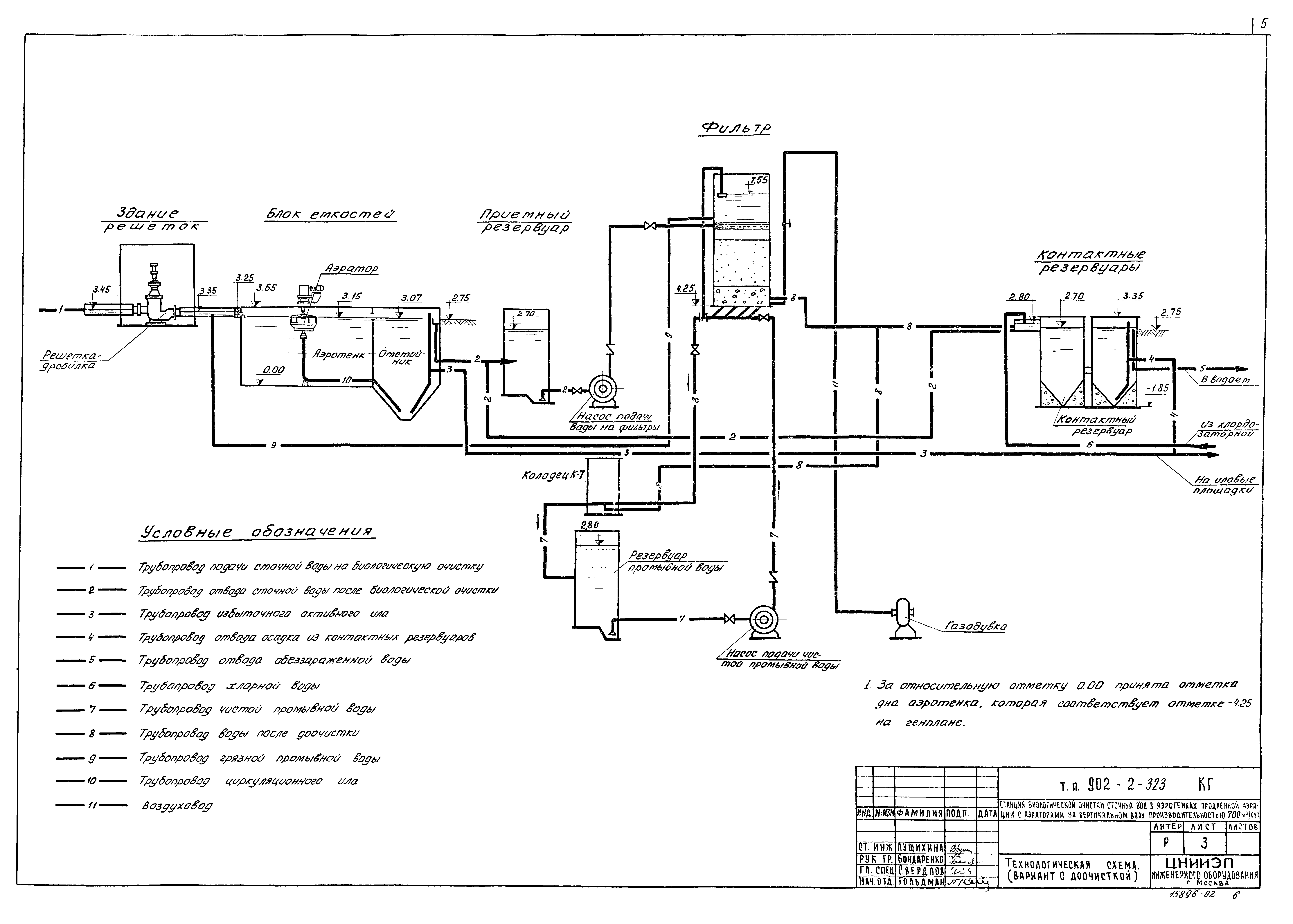
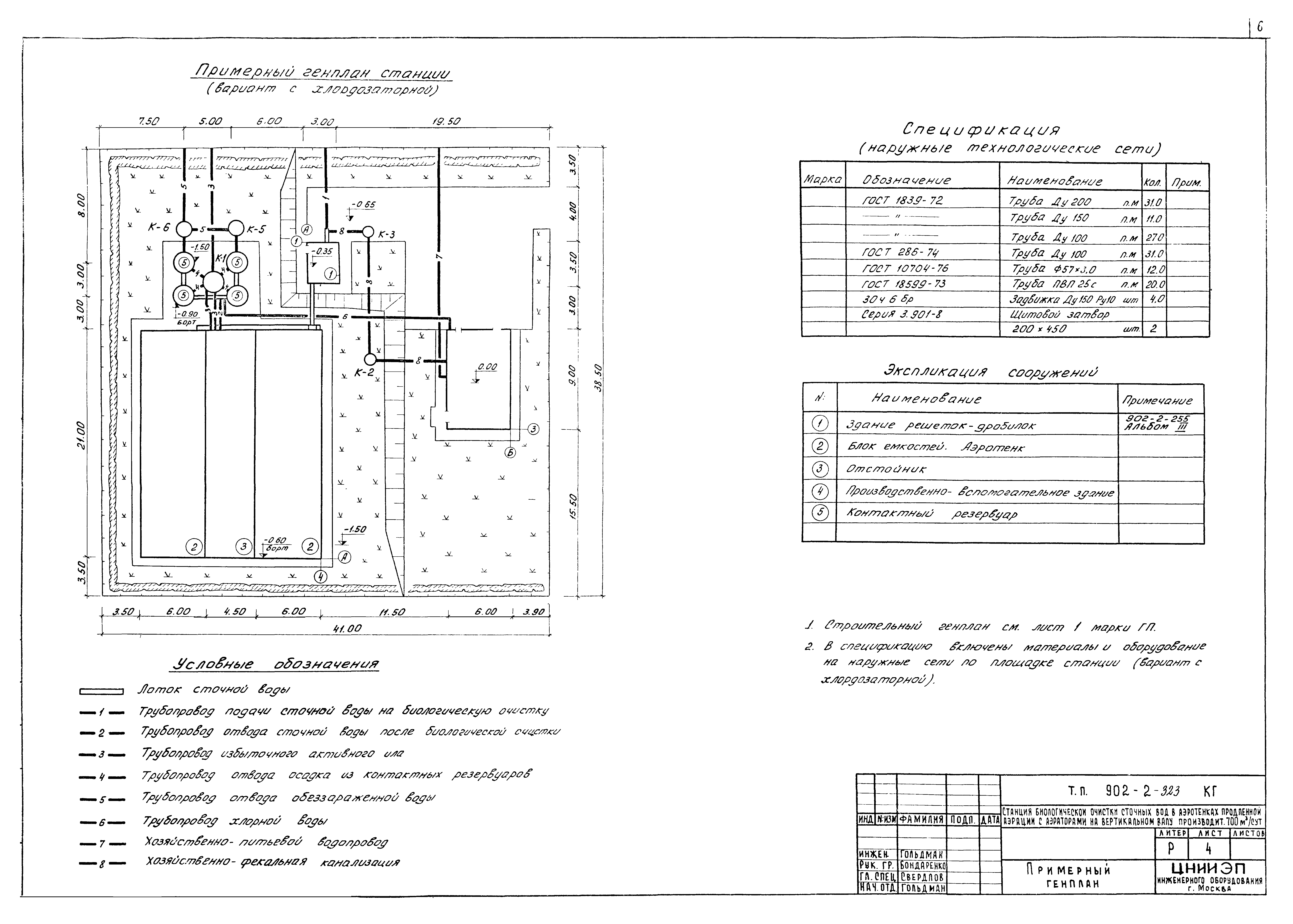
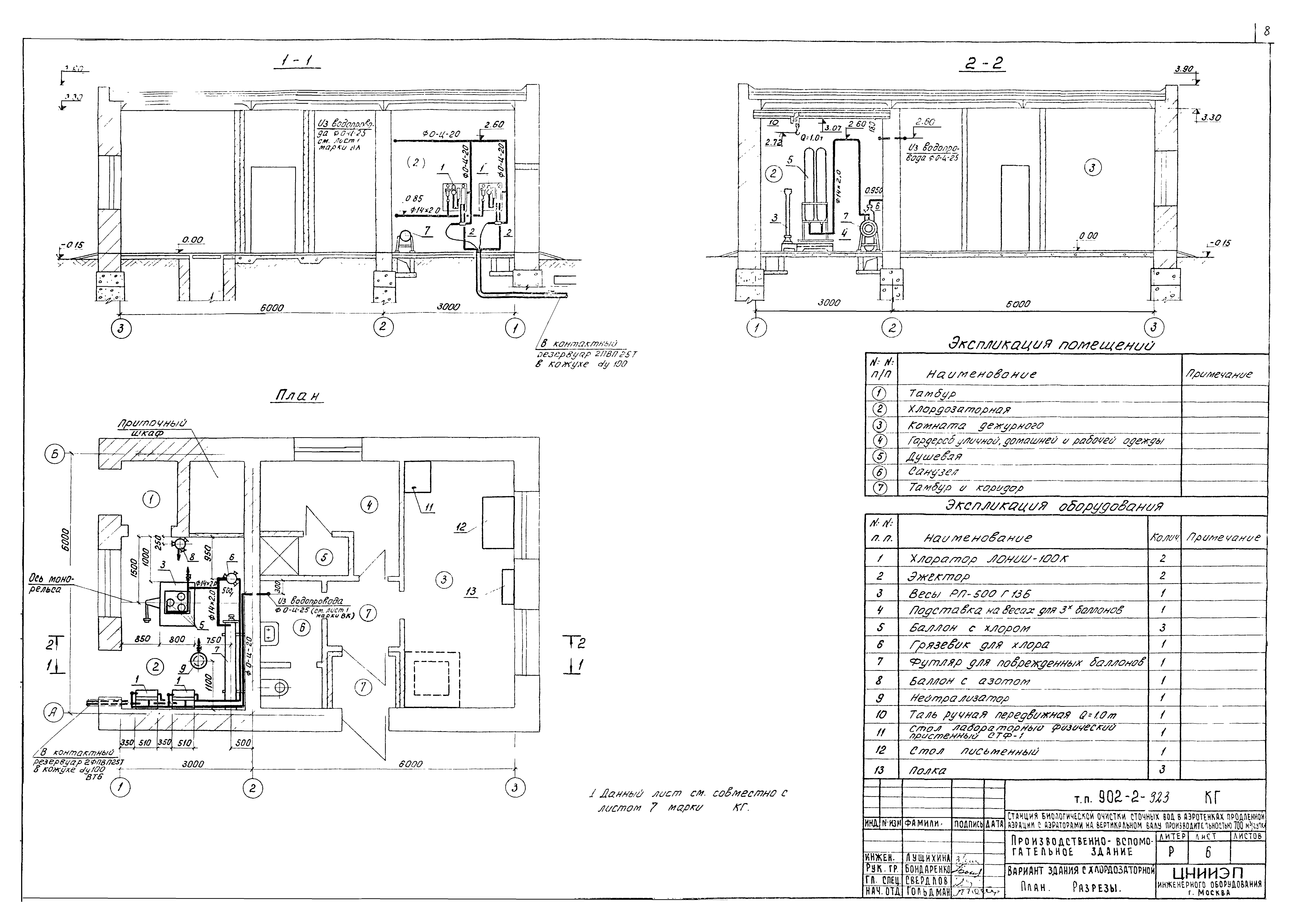
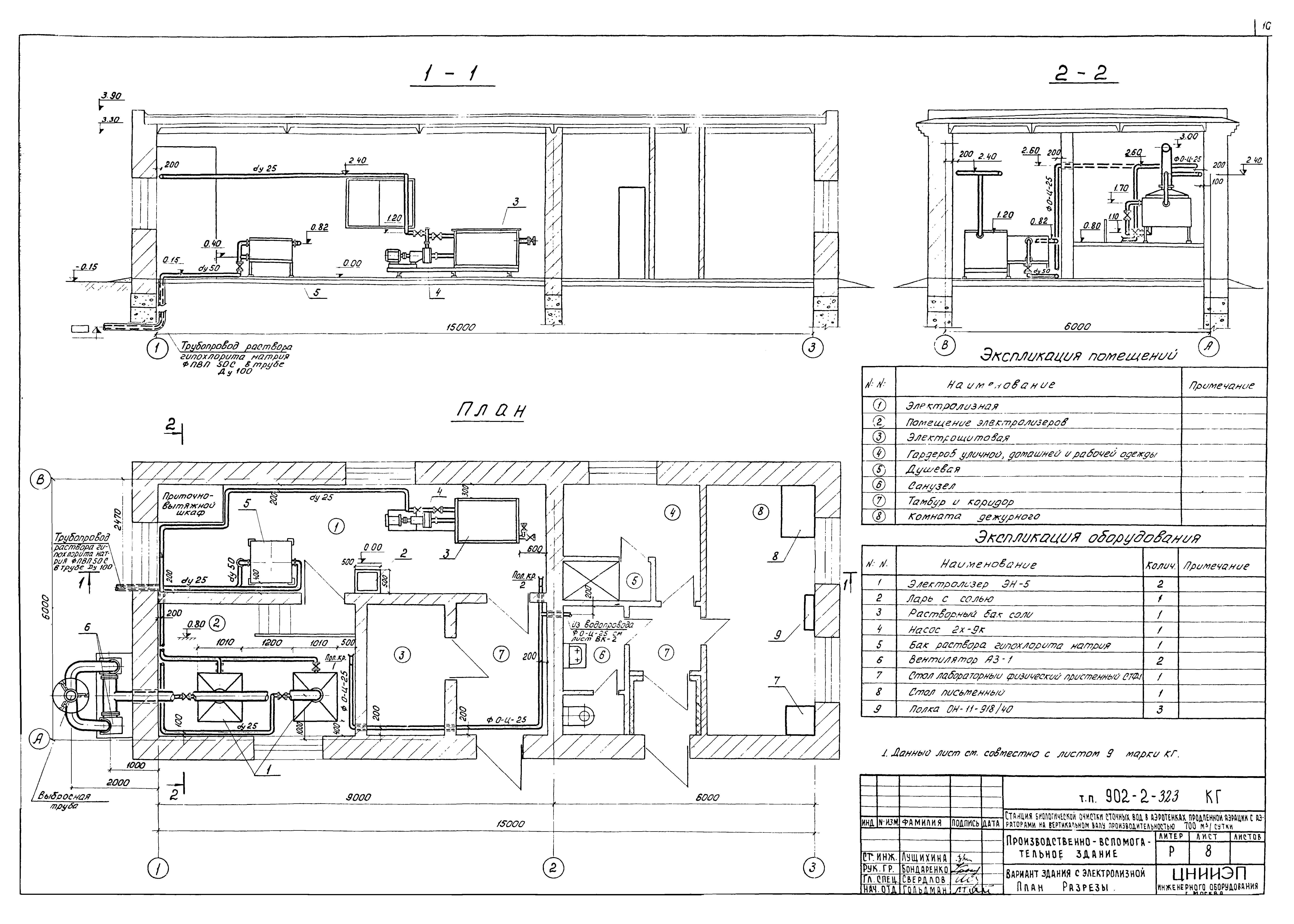
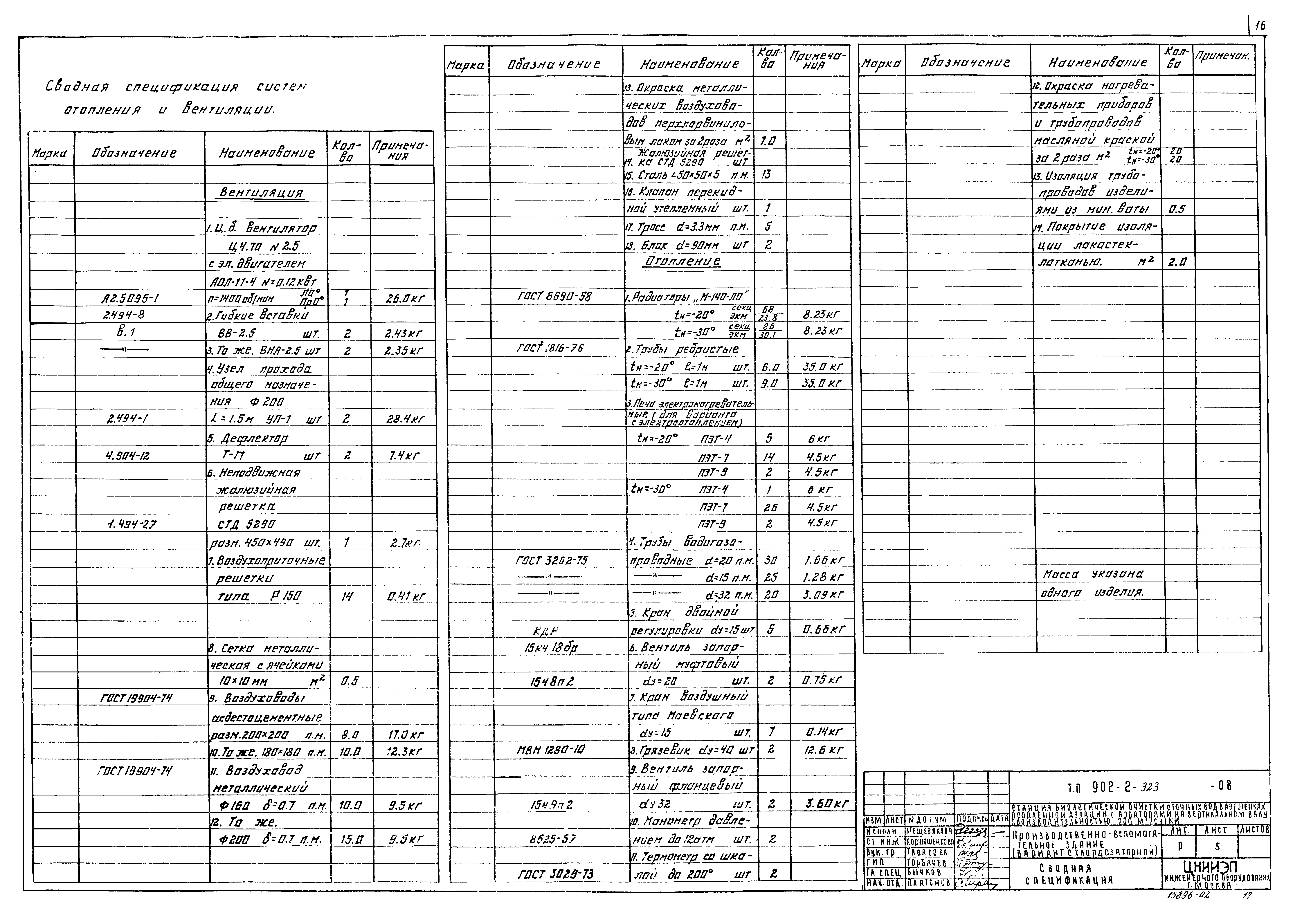
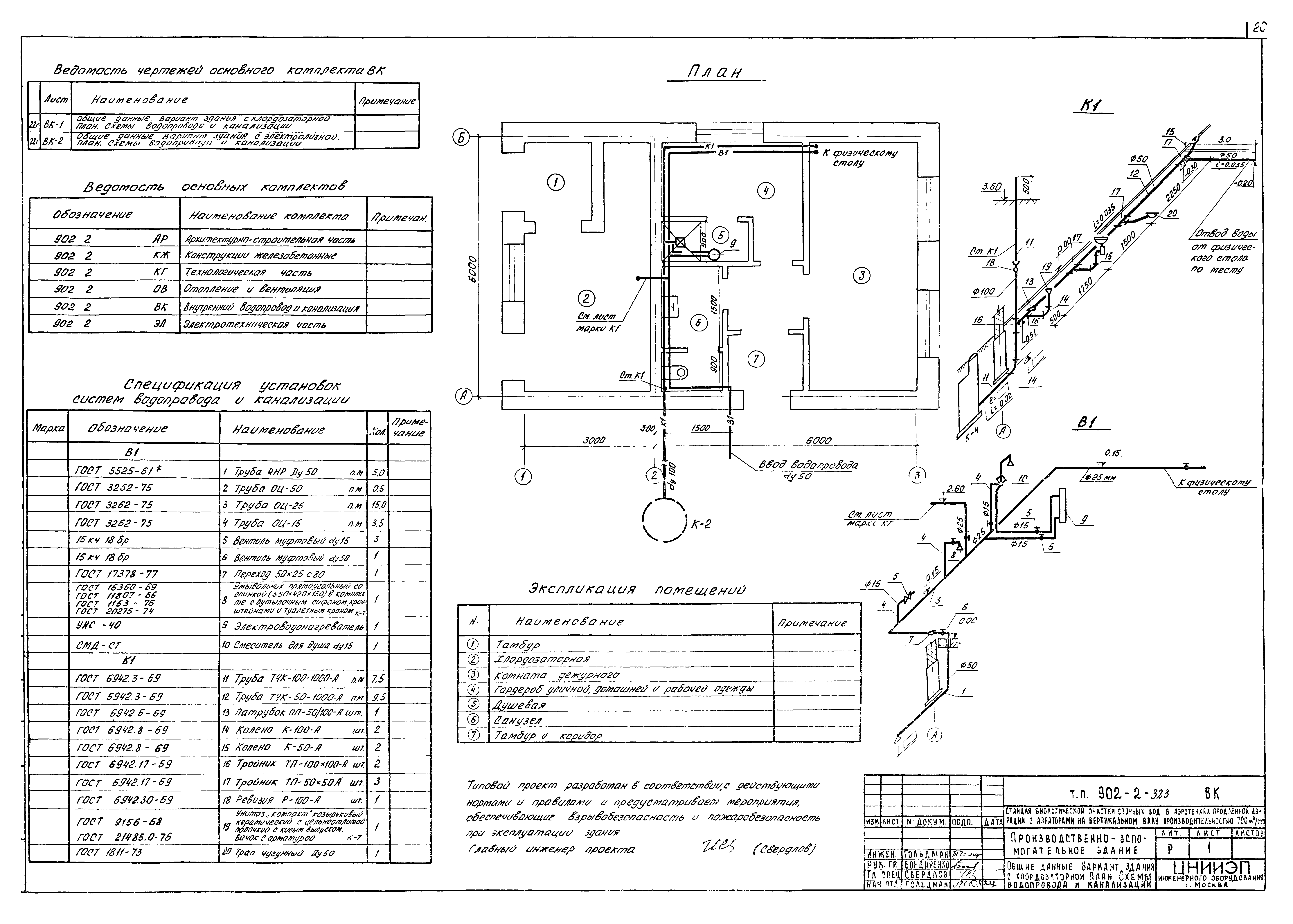
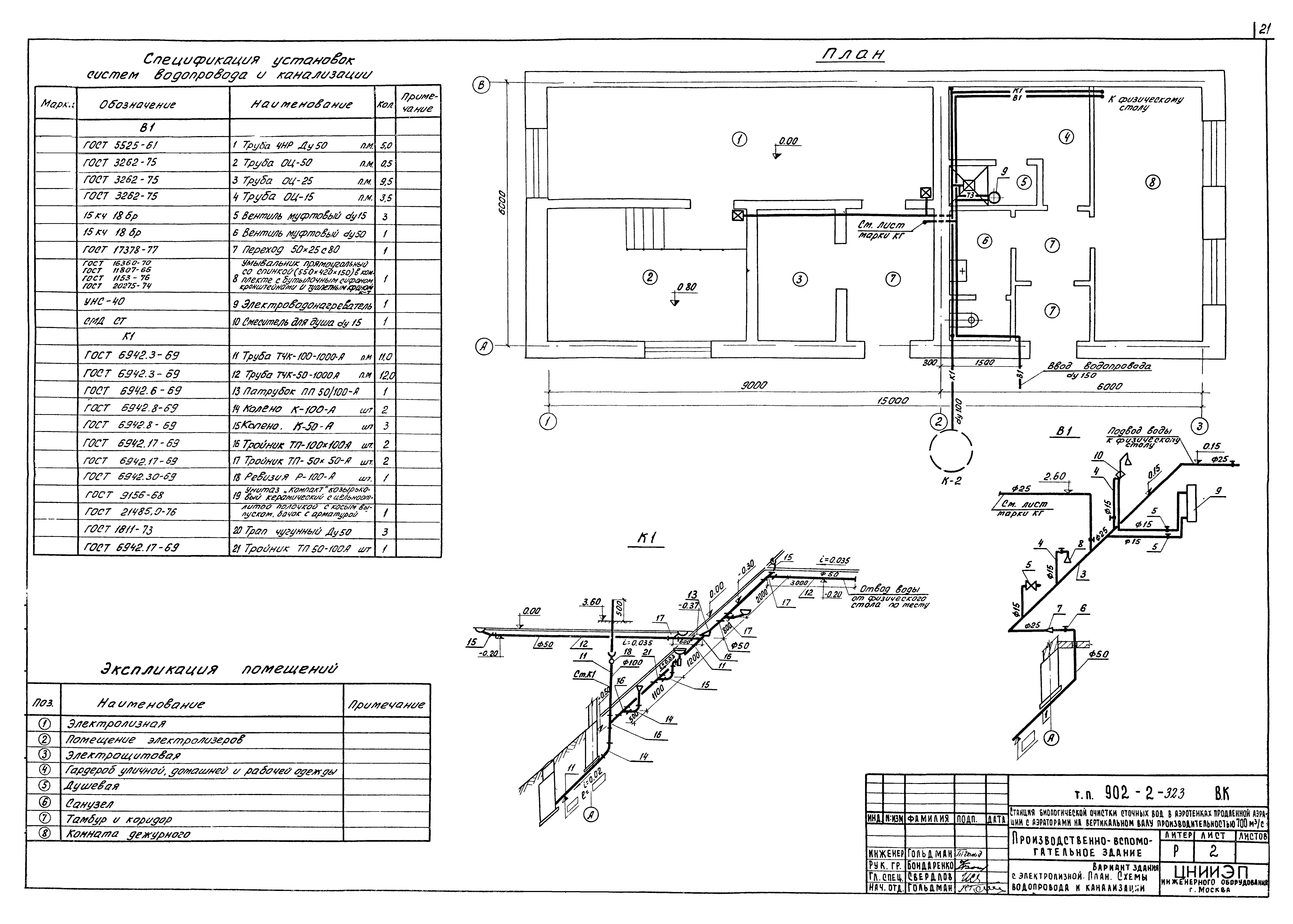
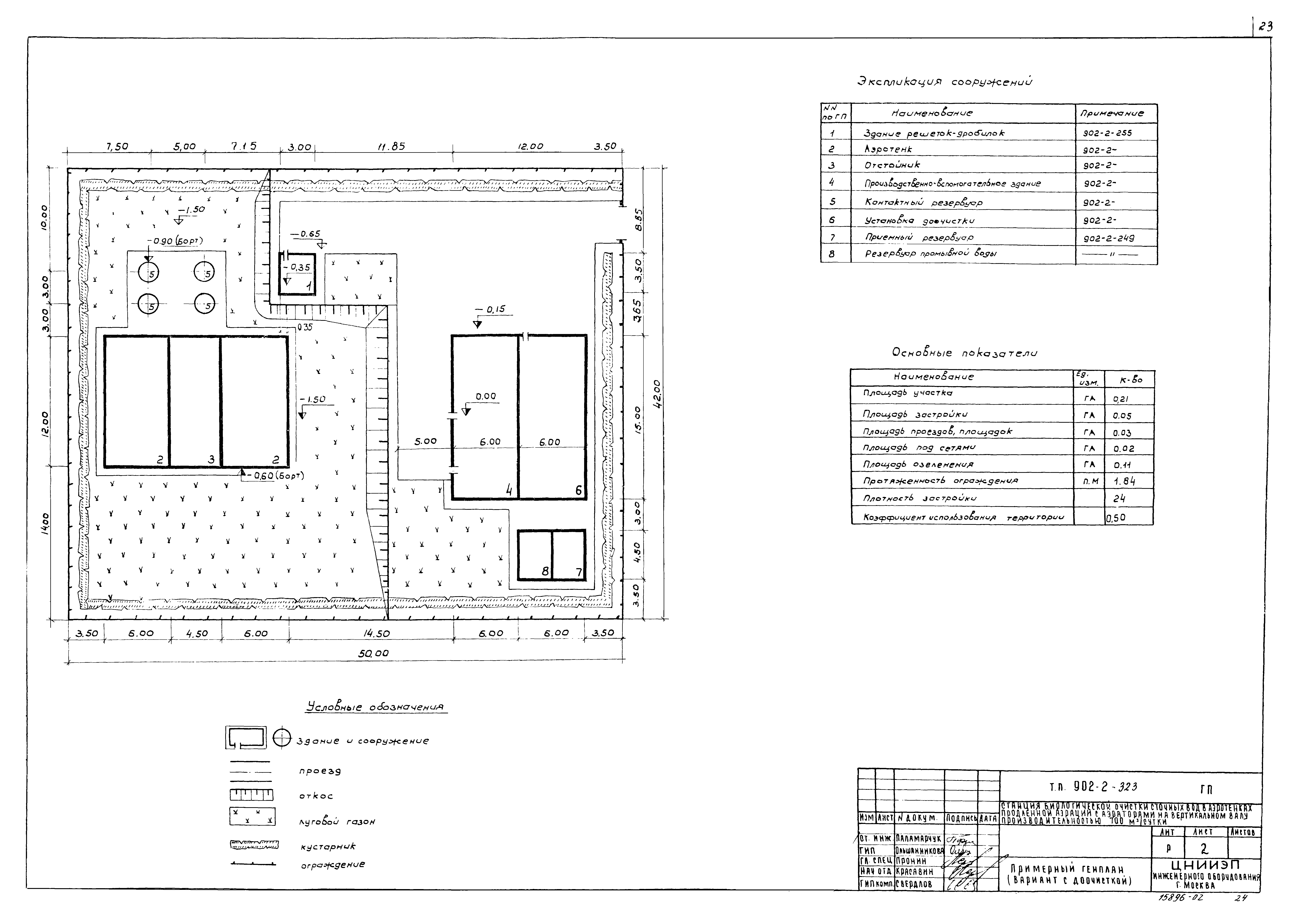
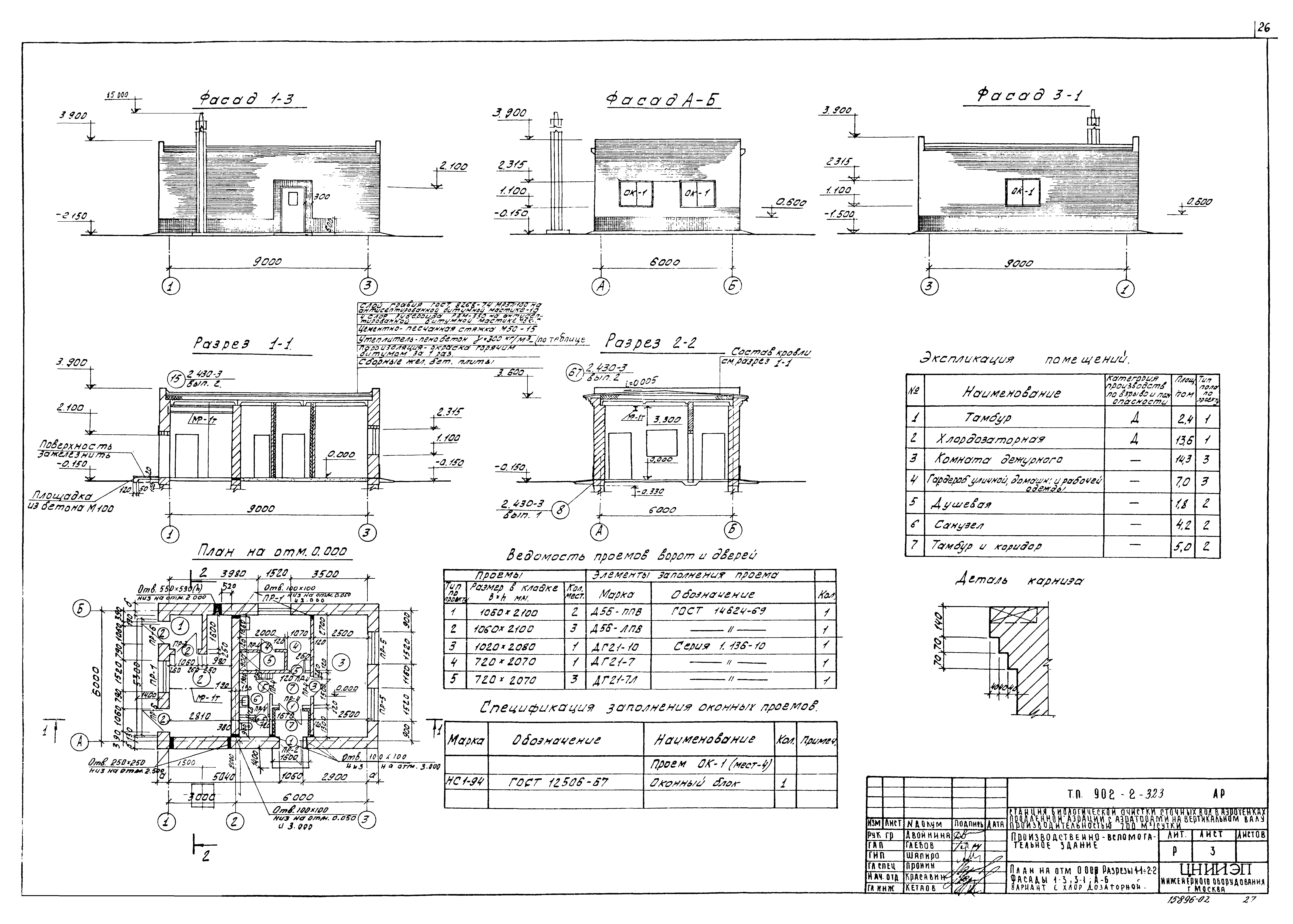
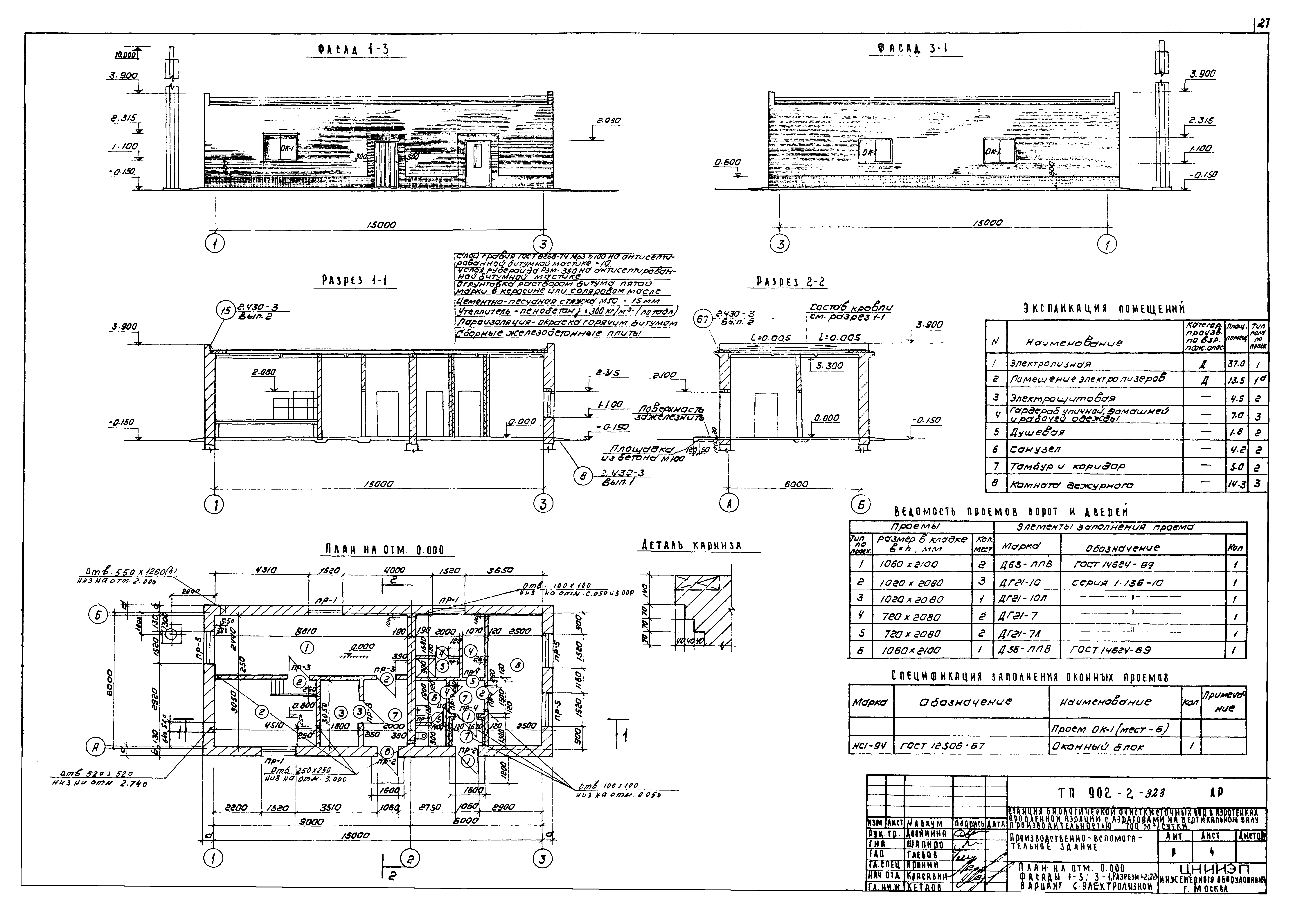
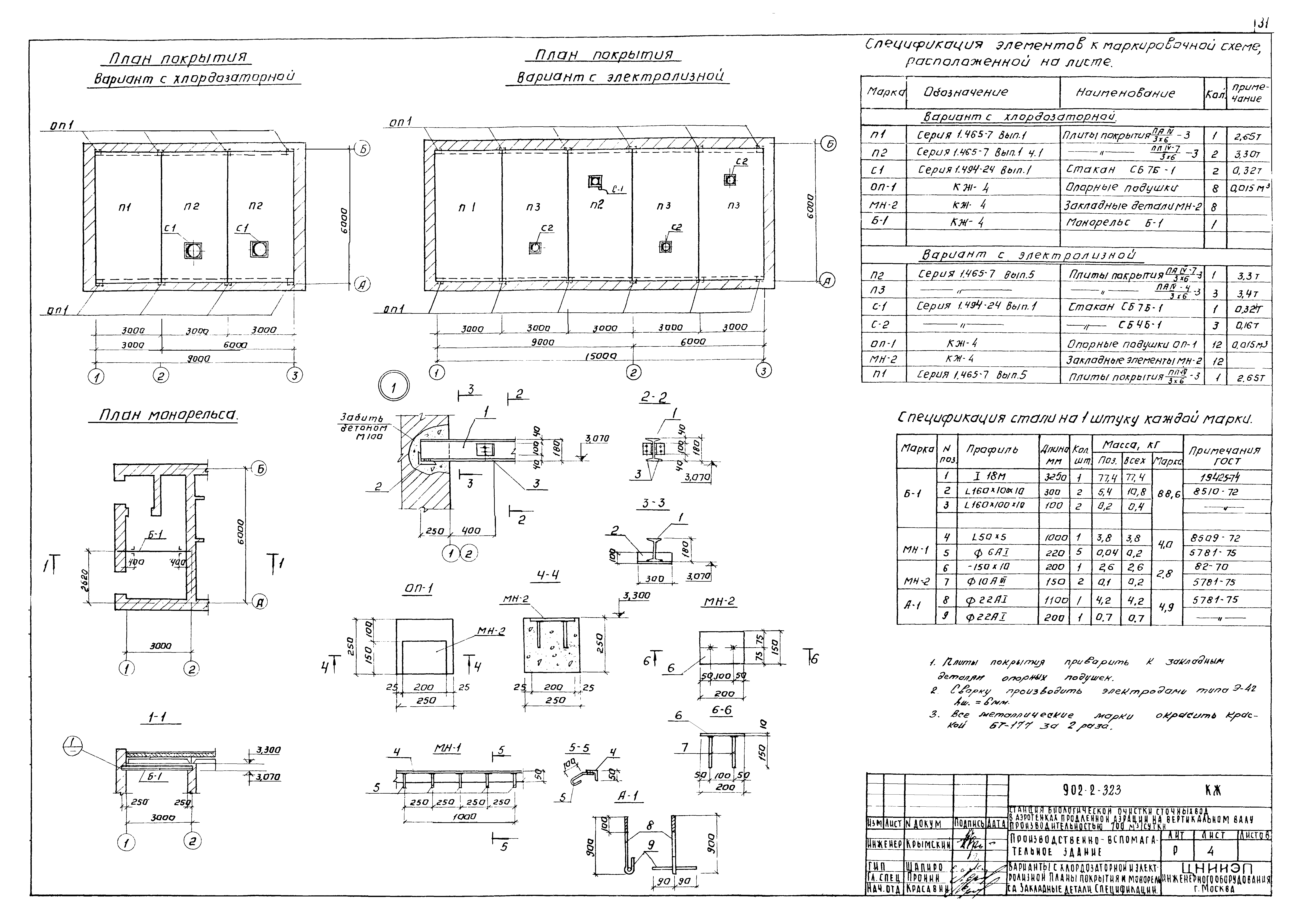
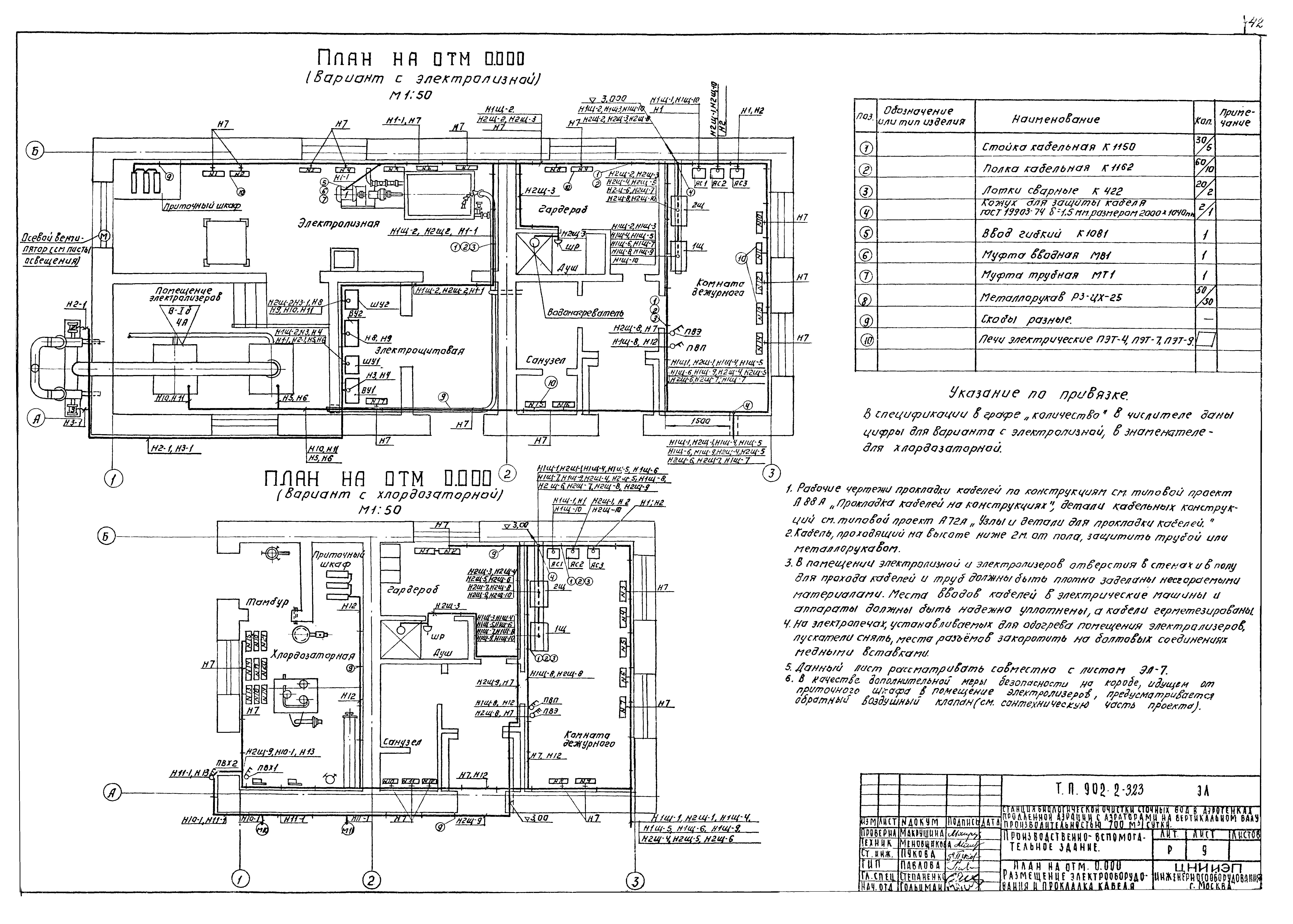
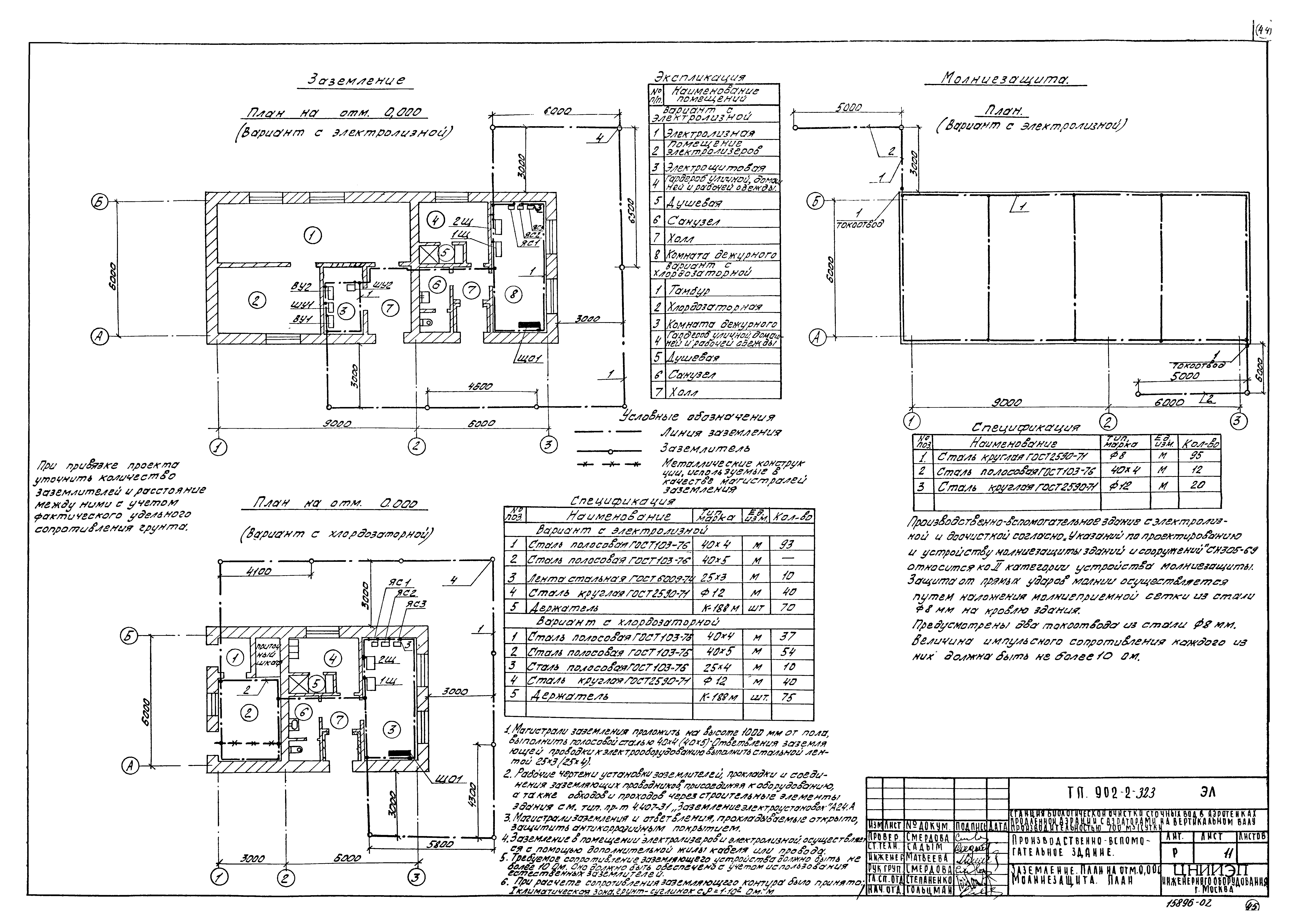
| Оглавление: | ТП 902-2-323 Содержание альбома ТП 902-2-323-КГ Технологическая часть ТП 902-2-323-КГ-1 Общие данные ТП 902-2-323-КГ-2 Технологическая схема ТП 902-2-323-КГ-3 Технологическая схема (вариант с доочисткой) ТП 902-2-323-КГ-4 Примерный генплан ТП 902-2-323-КГ-5 Примерный генплан (вариант с доочисткой) ТП 902-2-323 Производственно-вспомогательное здание ТП 902-2-323-КГ-6 Вариант здания с хлордозаторной. План. Разрезы ТП 902-2-323-КГ-7 Вариант здания с хлордозаторной. Схема трубопроводов ТП 902-2-323-КГ-8 Вариант здания с электролизной. План. Разрезы ТП 902-2-323-КГ-9 Вариант здания с электролизной. Схема трубопроводов ТП 902-2-323-ОВ,ВК Санитарно-техническая часть ТП 902-2-323-ОВ-1 Общие данные (начало) ТП 902-2-323-ОВ-2 Общие данные (продолжение) ТП 902-2-323 Производственно-вспомогательное здание с хдордозаторной ТП 902-2-323-ОВ-3 Планы на отм. 0.00 (варианты с теплоносителем вода 95º-70º и с электроэнергией). Схемы отопления и вентиляции. Тепловой узел ТП 902-2-323-ОВ-4 Приточный шкаф. План. Разрезы. Схема обвязки ребристых труб. Спецификация ТП 902-2-323-ОВ-5 Сводная спецификация ТП 902-2-323 Производственно-вспомогательное здание с электролизной ТП 902-2-323-ОВ-6 Планы на отм. 0.00 (варианты с теплоносителем вода 95º-70º и с электроэнергией). Схемы отопления и вентиляции. Тепловой узел ТП 902-2-323-ОВ-7 Приточный шкаф. План. Разрезы. Схема обвязки ребристых труб. Спецификация ТП 902-2-323-ОВ-8 Сводная спецификация ТП 902-2-323-ВК-1 Общие данные. Вариант здания с хлордозаторной. План. Схемы водопровода и канализации ТП 902-2-323-ВК-2 Вариант здания с электролизной. План. Схемы водопровода и канализации ТП 902-2-323-ГП,АР,КЖ Архитектурно-строительная часть ТП 902-2-323-ГП-1 Примерный генплан ТП 902-2-323-ГП-2 Примерный генплан (вариант с доочисткой) ТП 902-2-323 Производственно-вспомогательное здание ТП 902-2-323-АР-1 Общие данные (начало) ТП 902-2-323-АР-2 Общие данные (окончание) ТП 902-2-323-АР-3 Планы на отм. 0.00. Разрезы 1-1;2-2. Фасады 1-3;3-1;АБ. Вариант с хлордозаторной ТП 902-2-323-АР-4 Планы на отм. 0.00. Фасады 1-3;3-1. Разрезы 1-1;2-2. Вариант с электролизной ТП 902-2-323-КЖ-1 Общие данные ТП 902-2-323-КЖ-2 Варианты с хлордозаторной и электролизной. Маркировочные схемы фундаментов ТП 902-2-323-КЖ-3 Варианты с хлордозаторной и электролизной. Подземное хозяйство ТП 902-2-323-КЖ-4 Варианты с хлордозаторной и электролизной. Планы покрытия и монорельса. Закладные детали. Спецификации ТП 902-2-323-КЖ-5 Варианты с хлордозаторной и электролизной. Вентиляционные трубы. Разрезы. Спецификации ТП 902-2-323-КЖ-6 Подводящие лотки ТП 902-2-323-ЭЛ Электротехническая часть ТП 902-2-323-ЭЛ-1 Общие данные ТП 902-2-323-ЭЛ-2 Ведомость электрооборудования, изделий и материалов (начало) ТП 902-2-323-ЭЛ-3 Ведомость электрооборудования, изделий и материалов (окончание) ТП 902-2-323-ЭЛ-4 Ведомость электрооборудования, изделий и материалов электроосвещения (начало) ТП 902-2-323-ЭЛ-5 Ведомость электрооборудования, изделий и материалов электроосвещения (окончание) ТП 902-2-323-ЭЛ-6 Питание электрооборудования. Схема принципиальная электрическая (начало) ТП 902-2-323-ЭЛ-7 Питание электрооборудования. Схема принципиальная электрическая (окончание). Схема подключения электрооборудования ТП 902-2-323-ЭЛ-8 Кабельный журнал ТП 902-2-323-ЭЛ-9 План на отм. 0.00. Размещение электрооборудования и прокладка кабеля ТП 902-2-323-ЭЛ-10 Электрическое освещение. План на отм. 0.00 ТП 902-2-323-ЭЛ-11 Заземление. План на отм. 0.00. Молниезащита. План |
| Разработан: | ЦНИИЭП |
| Утверждён: | 19.07.1977 Госгражданстрой (Gosgrazhdanstroy 144) |













































